Скачать Типовой проект 801-3-39.84 Альбом I. Архитектурно-строительные решения. Конструкции железобетонные. Конструкции деревянные. Конструкции металлическиеДата актуализации: 01.01.2021
|
| Обозначение: | Типовой проект 801-3-39.84 |
| Обозначение англ: | 801-3-39.84 |
| Статус: | не определен законодательством |
| Название рус.: | Альбом I. Архитектурно-строительные решения. Конструкции железобетонные. Конструкции деревянные. Конструкции металлические |
| Дата добавления в базу: | 01.10.2014 |
| Дата актуализации: | 01.01.2021 |
| Дата введения: | 29.12.1984 |
| Дата окончания срока действия: | 30.06.2003 |
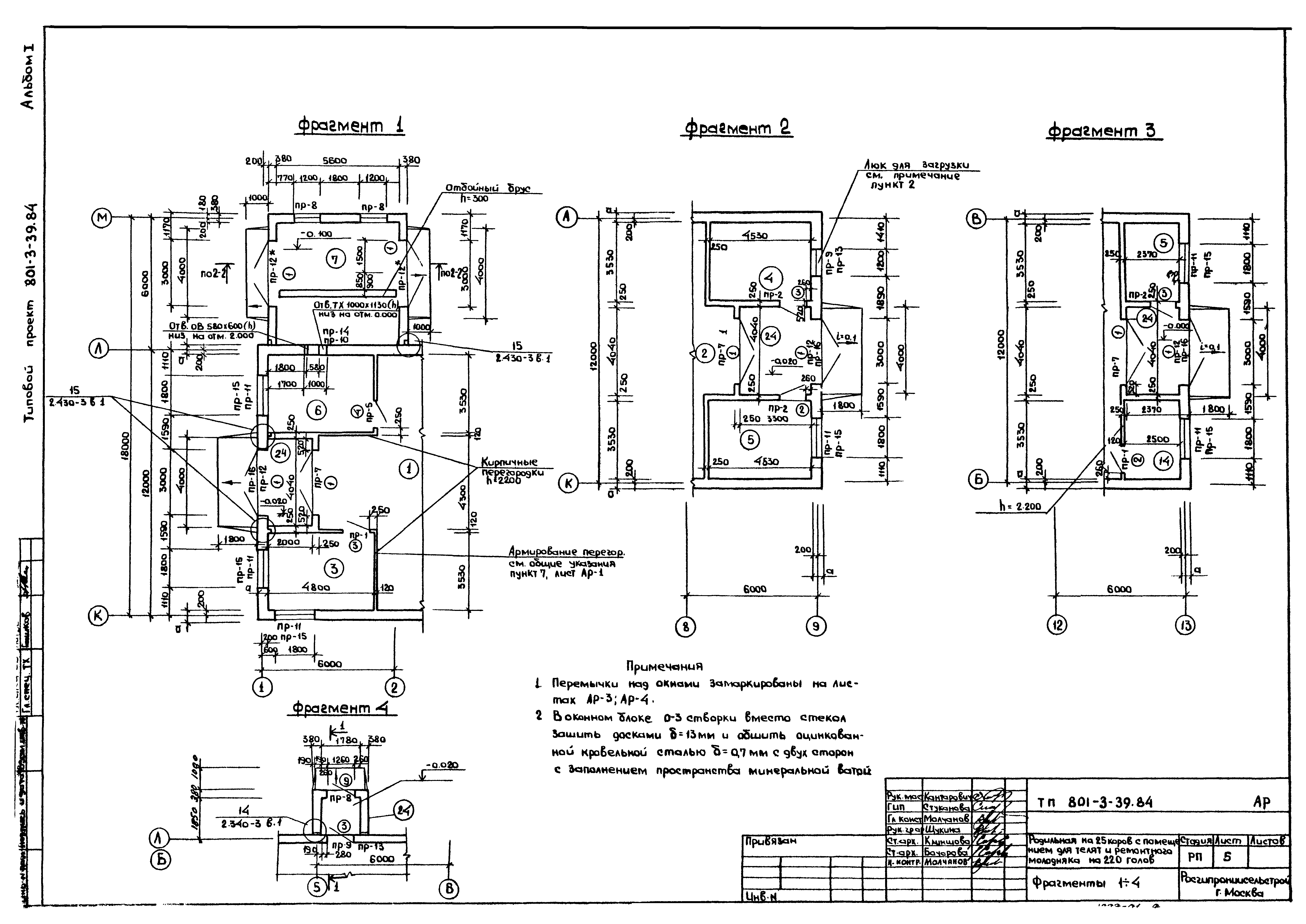
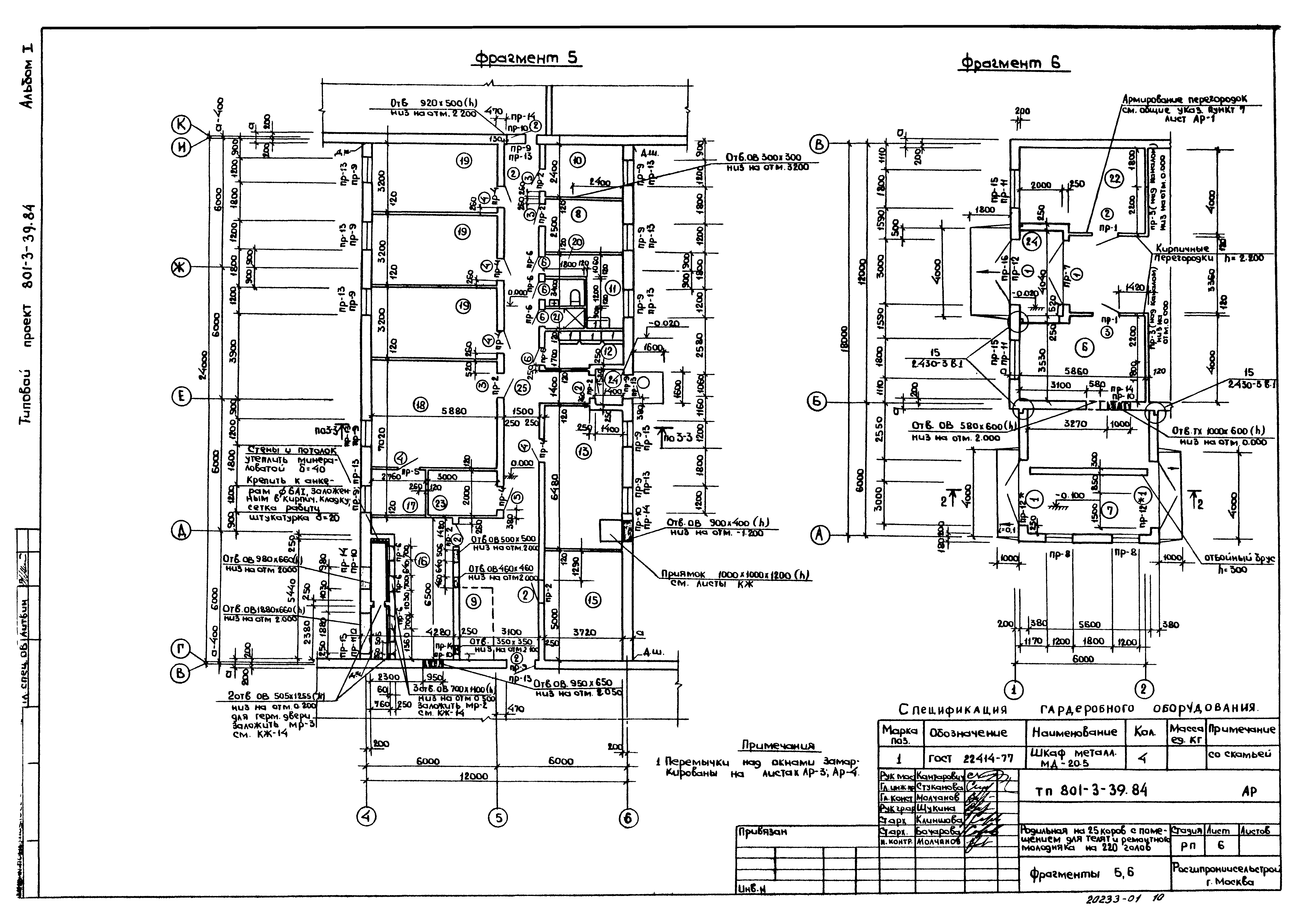
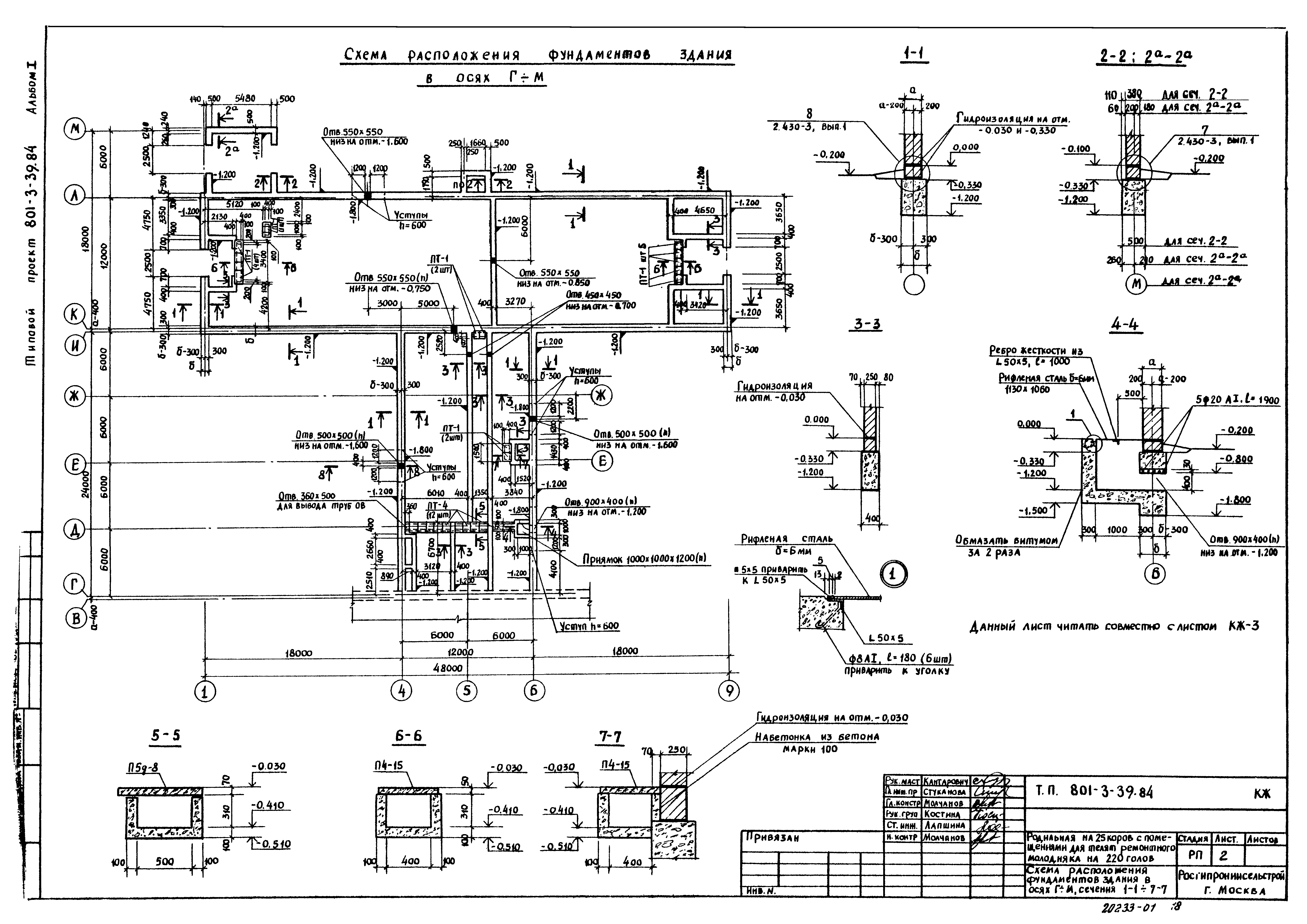
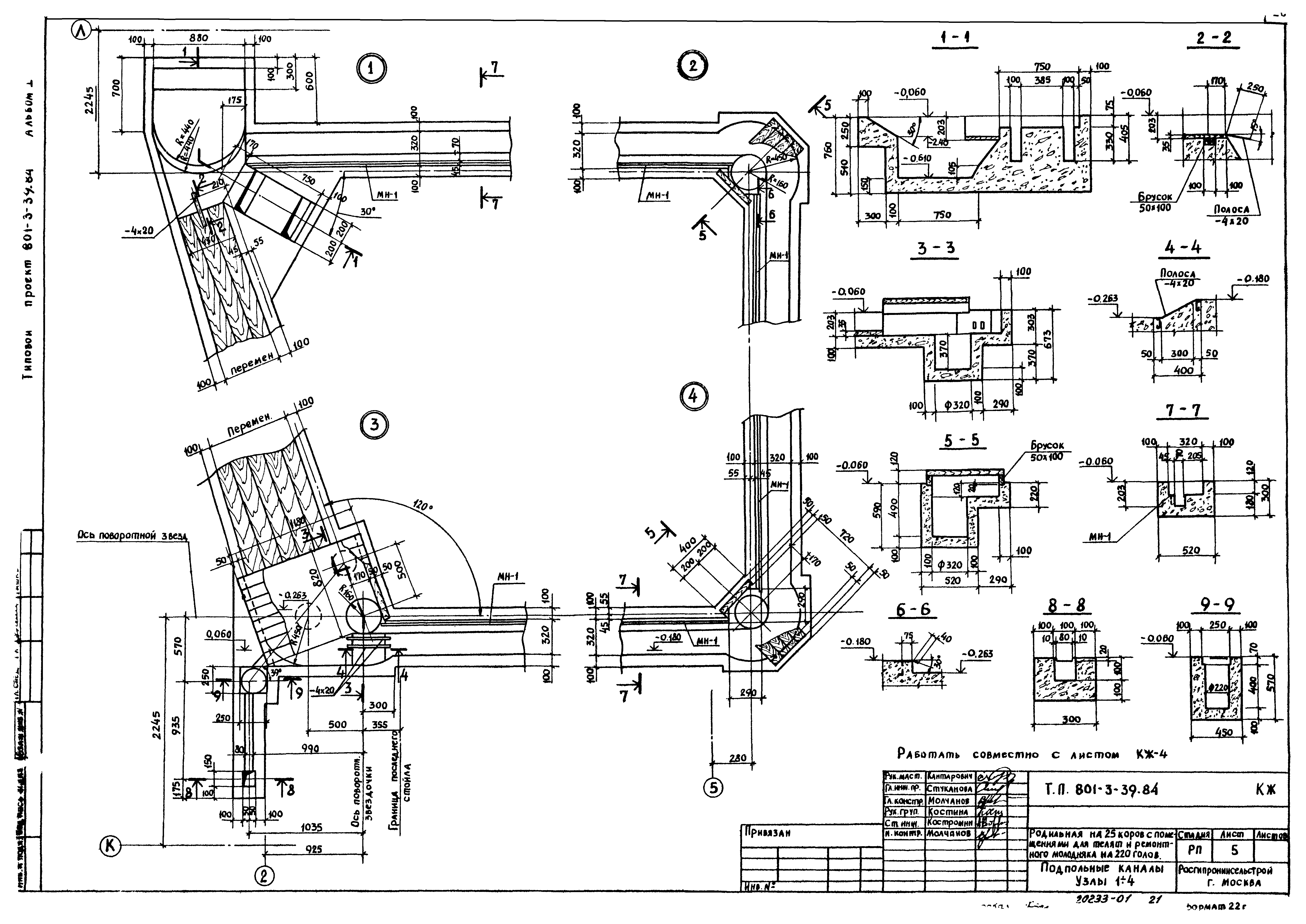
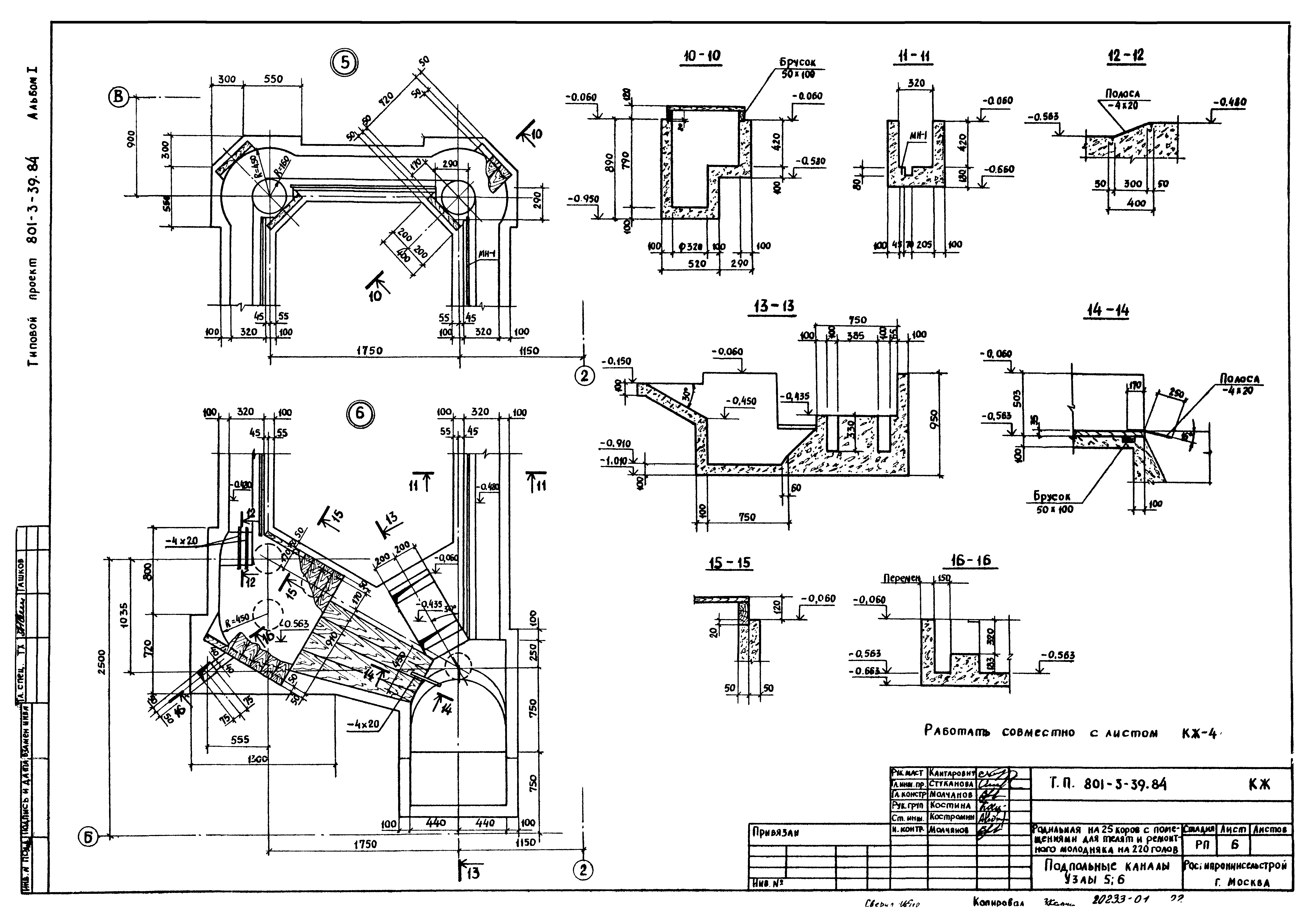
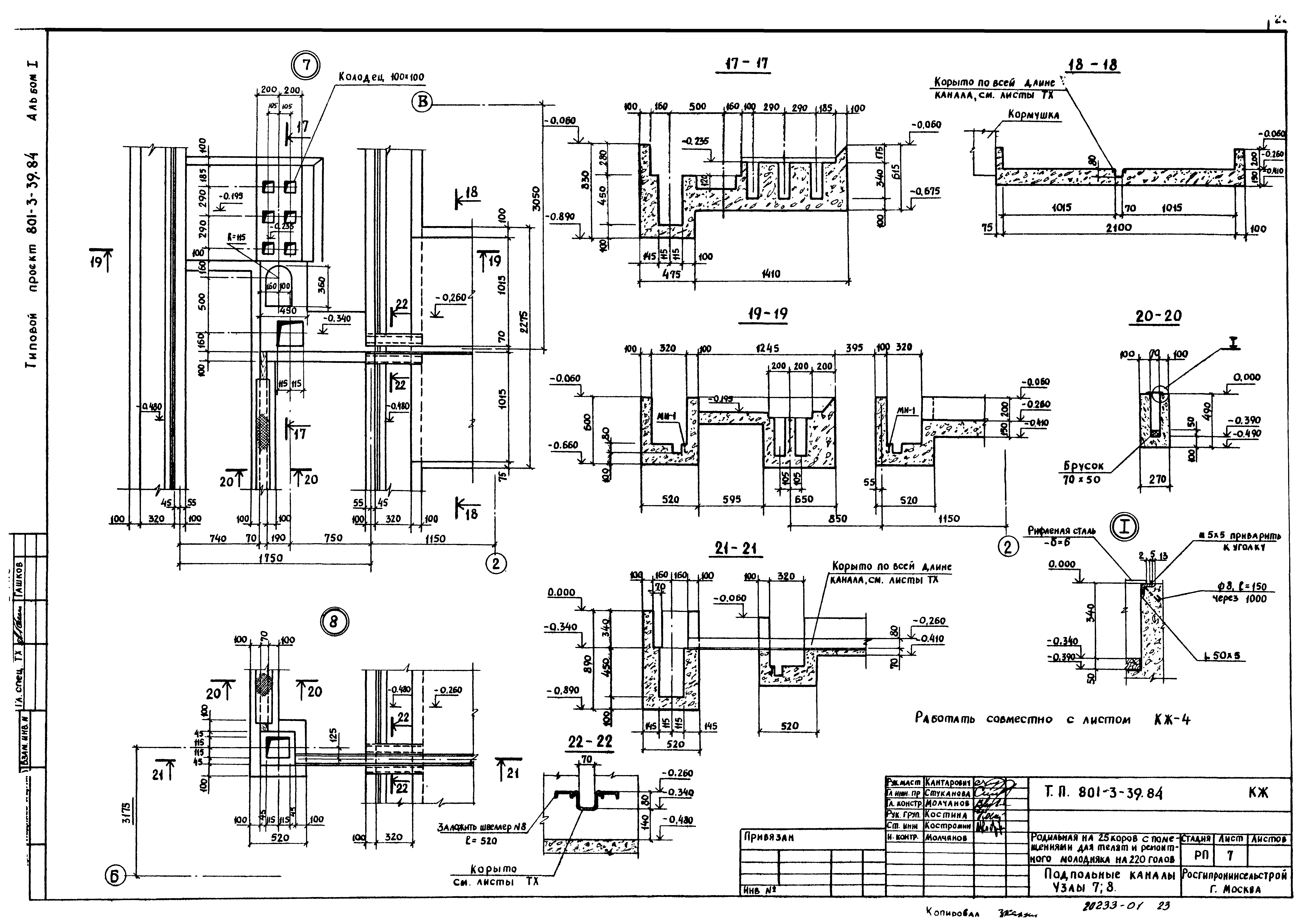
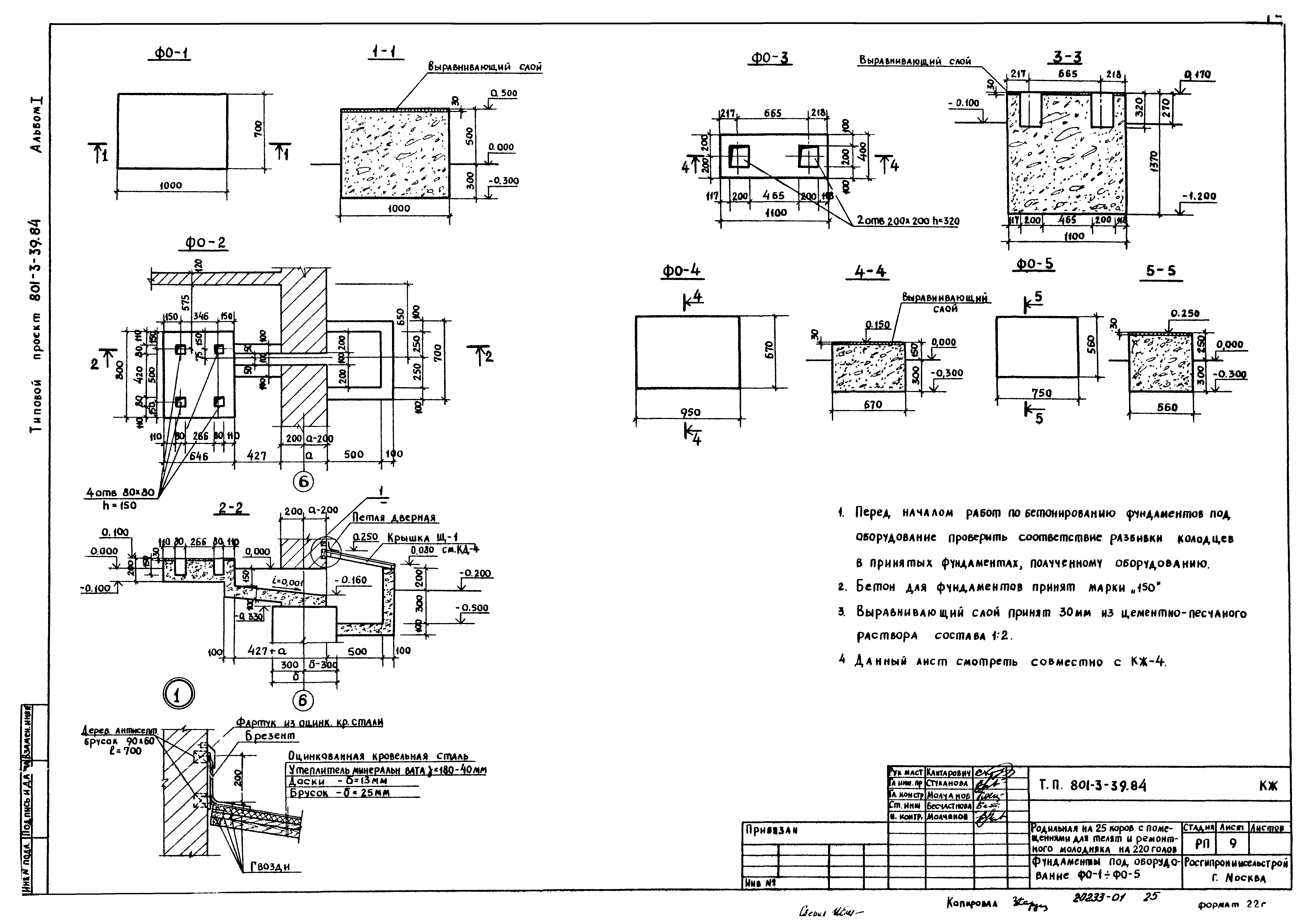
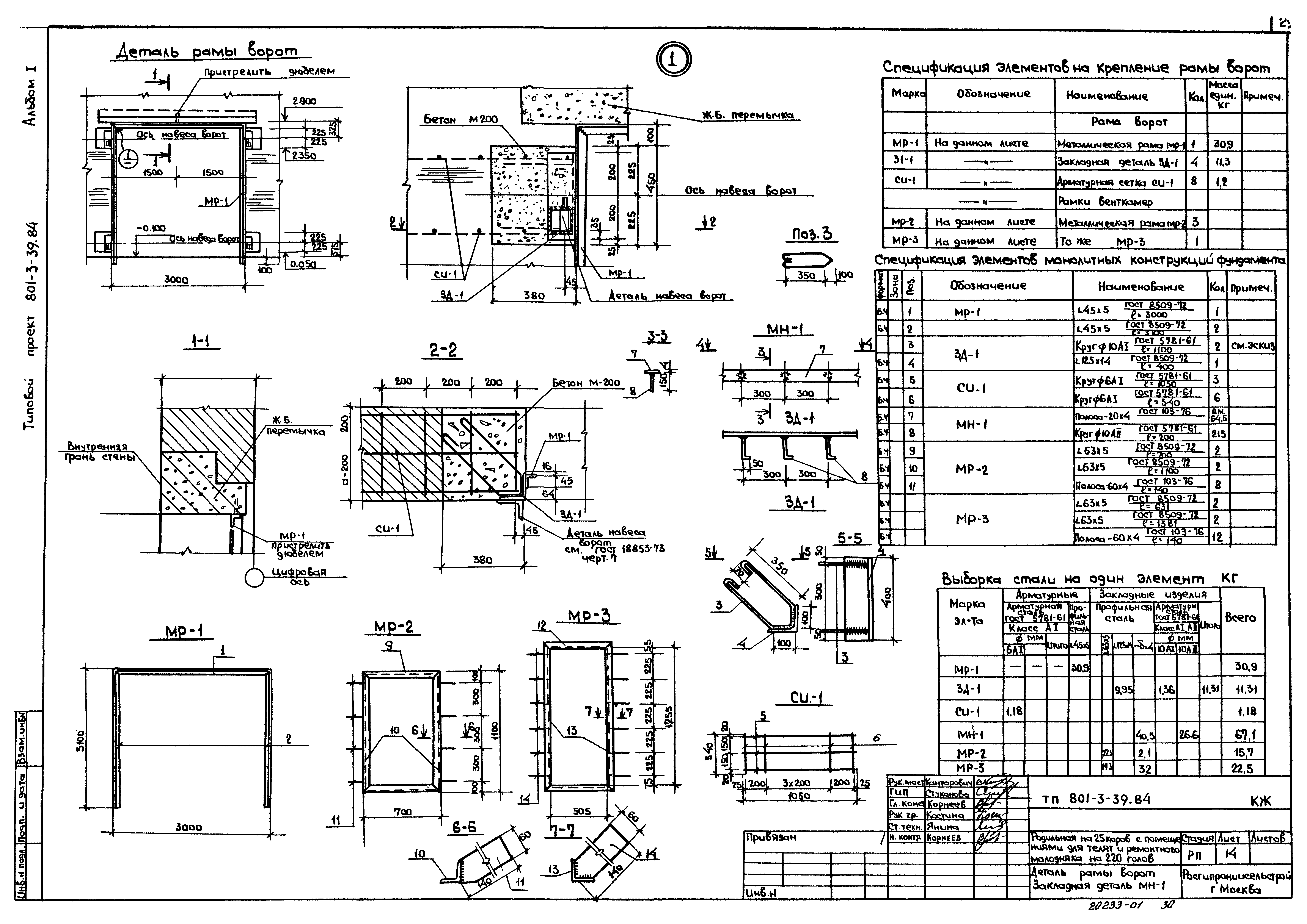
| Оглавление: | Содержание альбома Пояснительная записка Чертежи основного комплекта марки АР Общие данные План на отм. 0.000. Экспликация помещений План на отм. 0.000. Разрезы 1-1, 2-2 Фрагменты 1 - 4 Фрагменты 5, 6 Фасады "Б - Л", "М - А". Разрез 3-3. Узлы 6 - 7 Фасады 1 - 13; 13 - 1; 1 - 9; 9 - 1. Схемы заполнения оконных проемов План полов. Сечения 1-1 - 3-3 План полов Схемы расположения элементов кровли и асбестоцементных листов Планы стропил. Узлы 1 - 5 Чертежи основного комплекта марки КЖ Общие данные Схема расположения фундаментов здания в осях Г - М. Сечения 1-1 - 7-7 Схема расположения фундаментов здания в осях А - В Схема расположения элементов подпольных каналов и фундаментов под оборудование Подпольные каналы. Узлы 1 - 4 Подпольные каналы. Узлы 5, 6 Подпольные каналы. Узлы 7 - 8 Подпольные каналы. Узлы 9, 10 Фундаменты под оборудование ФО-1 - ФО-5 Схемы расположения колодцев под стойки технологического оборудования в осях К - Л и 2 - 8; Б - В и 2 - 5 Сечения к схемам колодцев под технологическое оборудование Схема расположения колодцев под стойки технологического оборудования в осях Б - В и 5 - 12 Схема расположения опорных подушек. Опорная подушка ОП-1 Деталь рамы ворот. Закладная деталь МН-1 Клетка металлическая для телят КТД-1 Узлы 1 - 4 и спецификация к листу КЖ-15 Чертежи основного комплекта марки КД Общие данные Схема расположения ферм, стропил, горизонтальных связей Схема расположения плит покрытия Денник Д-1. Узлы 1, 2, 3. Кормушка КДи-1; щит Щ-2 Схема расположения элементов выгульных площадок по оси Л, Б |
| Разработан: | Росгипрониисельстрой |
| Утверждён: | 21.01.1983 МСХ СССР Главное управление лугов, кормов и пастбищ (9) |





































