Скачать Типовой проект 801-3-39.84 Альбом V. Нестандартизированное оборудованиеДата актуализации: 01.01.2021
|
| Обозначение: | Типовой проект 801-3-39.84 |
| Обозначение англ: | 801-3-39.84 |
| Статус: | не определен законодательством |
| Название рус.: | Альбом V. Нестандартизированное оборудование |
| Дата добавления в базу: | 01.10.2014 |
| Дата актуализации: | 01.01.2021 |
| Дата введения: | 29.12.1984 |
| Дата окончания срока действия: | 30.06.2003 |
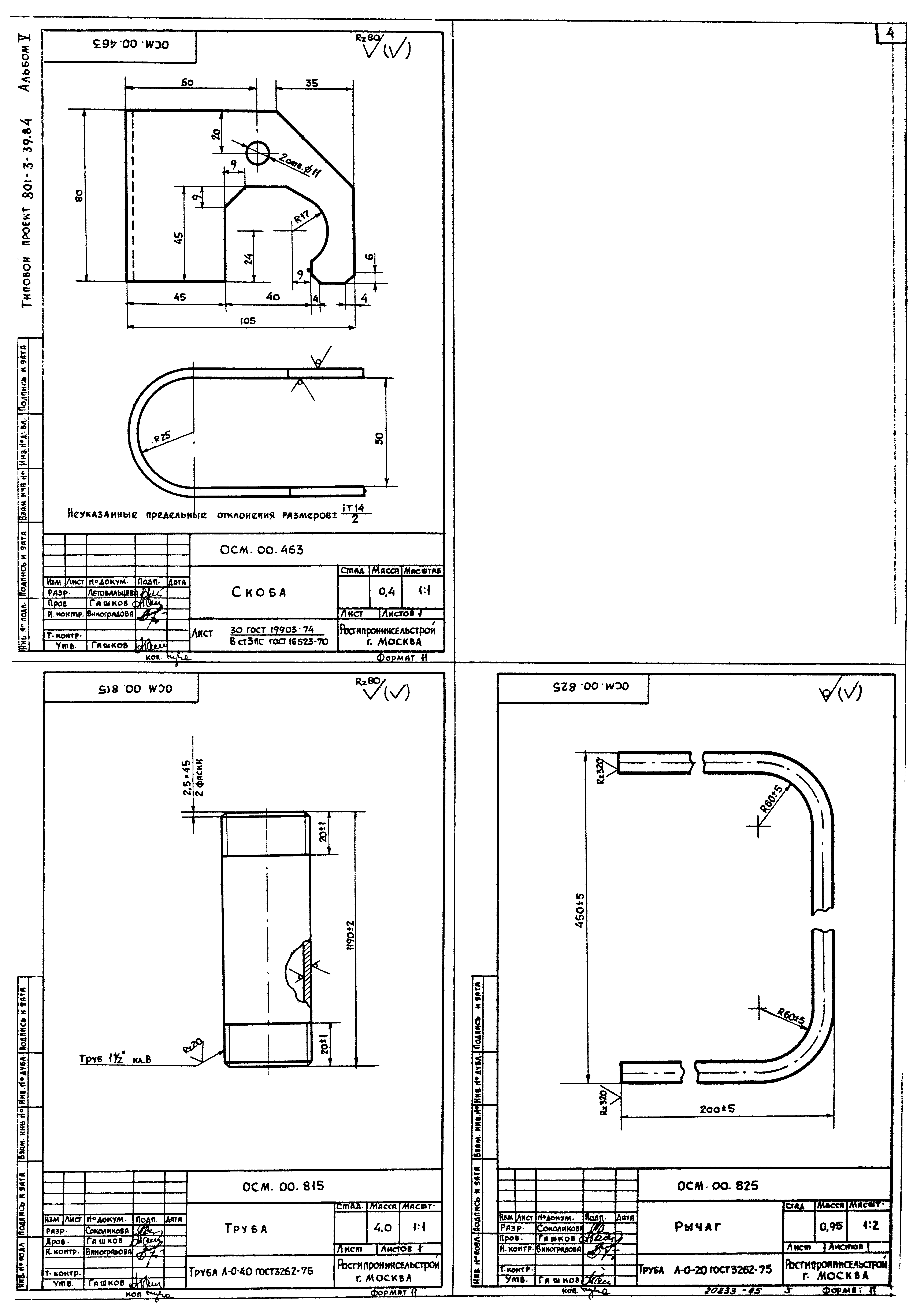
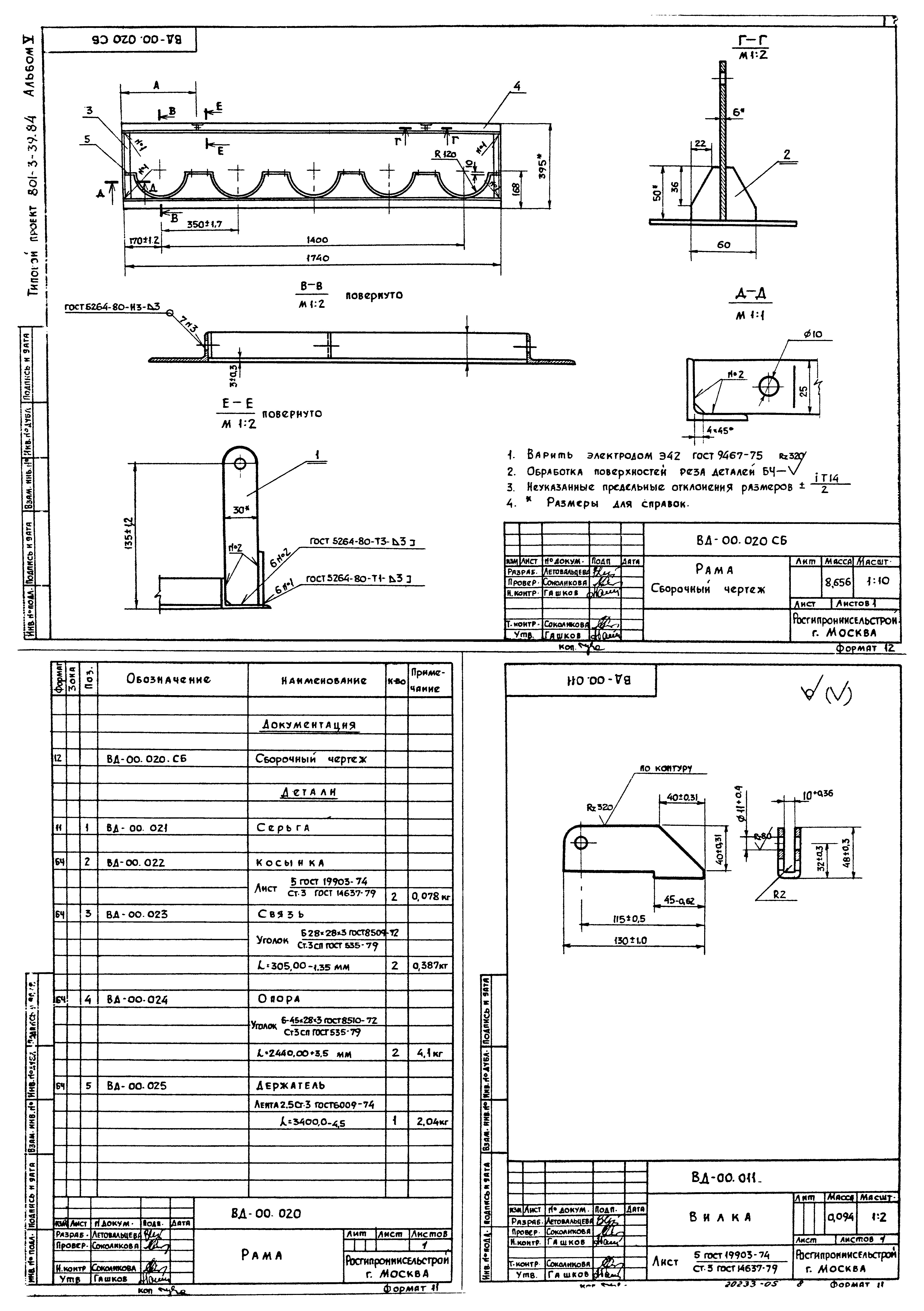
| Оглавление: | Содержание Дополнительный узел управления Дополнительный узел управления. Сборочный чертеж Рычаг. Труба. Скоба Ведродержатель. Сборочный чертеж Серьга. Пружина. Ведродержатель Вилка. Рама. Сборочный чертеж Кронштейн. Фиксатор Фиксатор. Сборочный чертеж Кронштейн. Сборочный чертеж |
| Разработан: | Росгипрониисельстрой |
| Утверждён: | 21.01.1983 МСХ СССР Главное управление лугов, кормов и пастбищ (9) |









