Скачать Типовые проектные решения 820-1-0101с.90 Альбом 1. Пояснительная записка. Регуляторы-водовыпуски с водомером и плоским затвором из канала в лоток с переездом. Строительные изделия. Спецификация оборудованияДата актуализации: 01.01.2021
|
| Обозначение: | Типовые проектные решения 820-1-0101с.90 |
| Обозначение англ: | 820-1-0101с.90 |
| Статус: | справочные материалы, мп, тпр |
| Название рус.: | Альбом 1. Пояснительная записка. Регуляторы-водовыпуски с водомером и плоским затвором из канала в лоток с переездом. Строительные изделия. Спецификация оборудования |
| Дата добавления в базу: | 01.10.2014 |
| Дата актуализации: | 01.01.2021 |
| Дата введения: | 26.04.1990 |
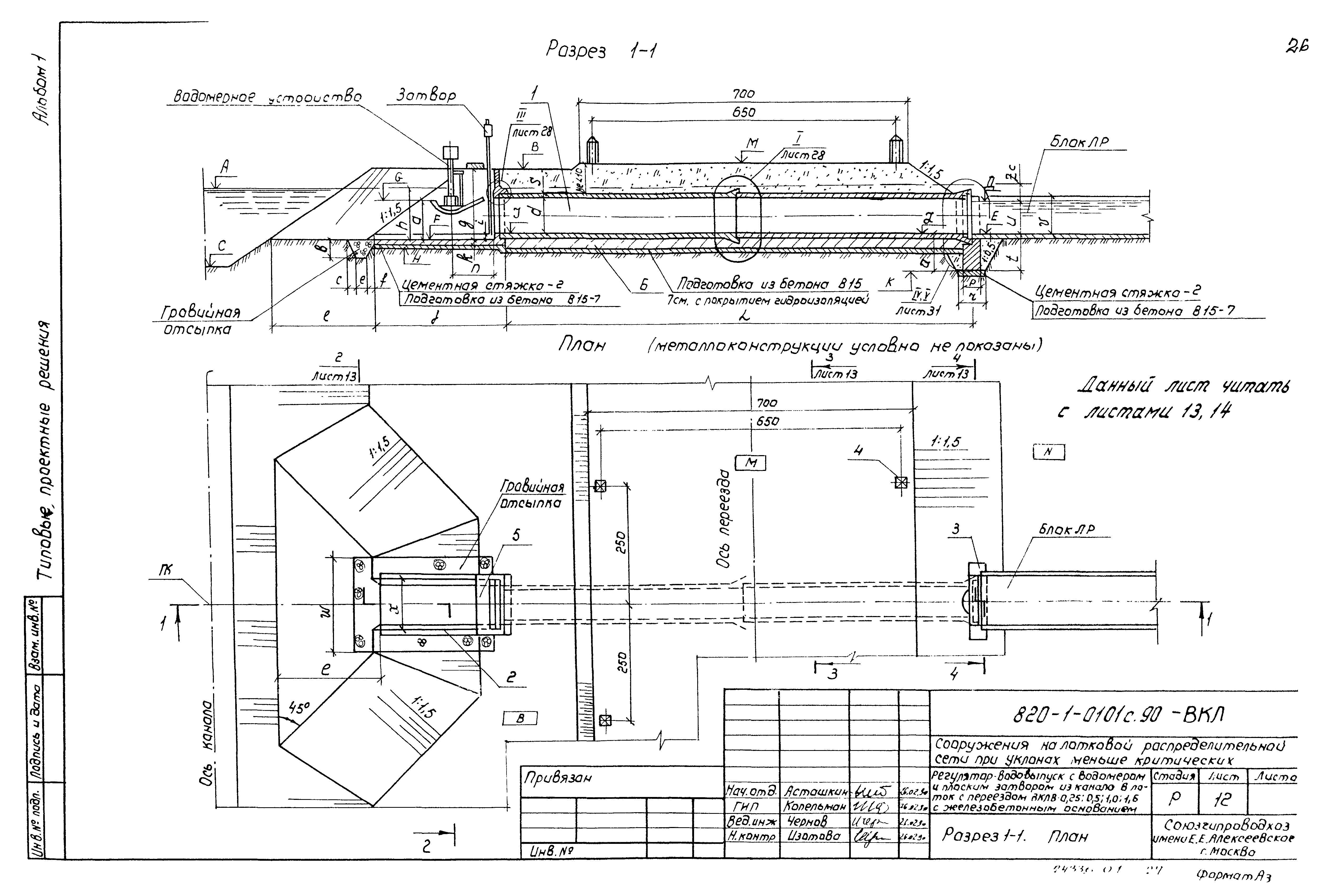
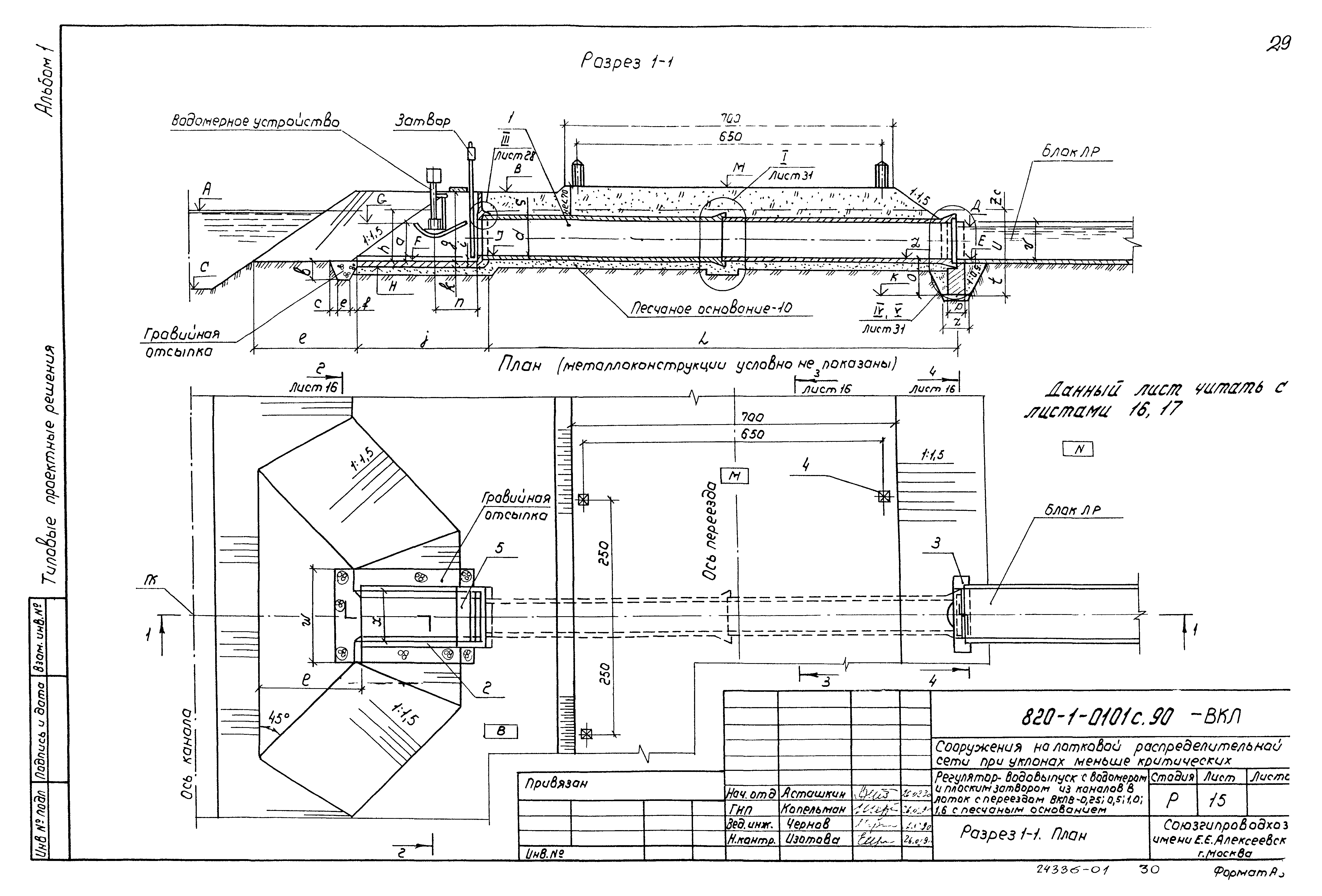
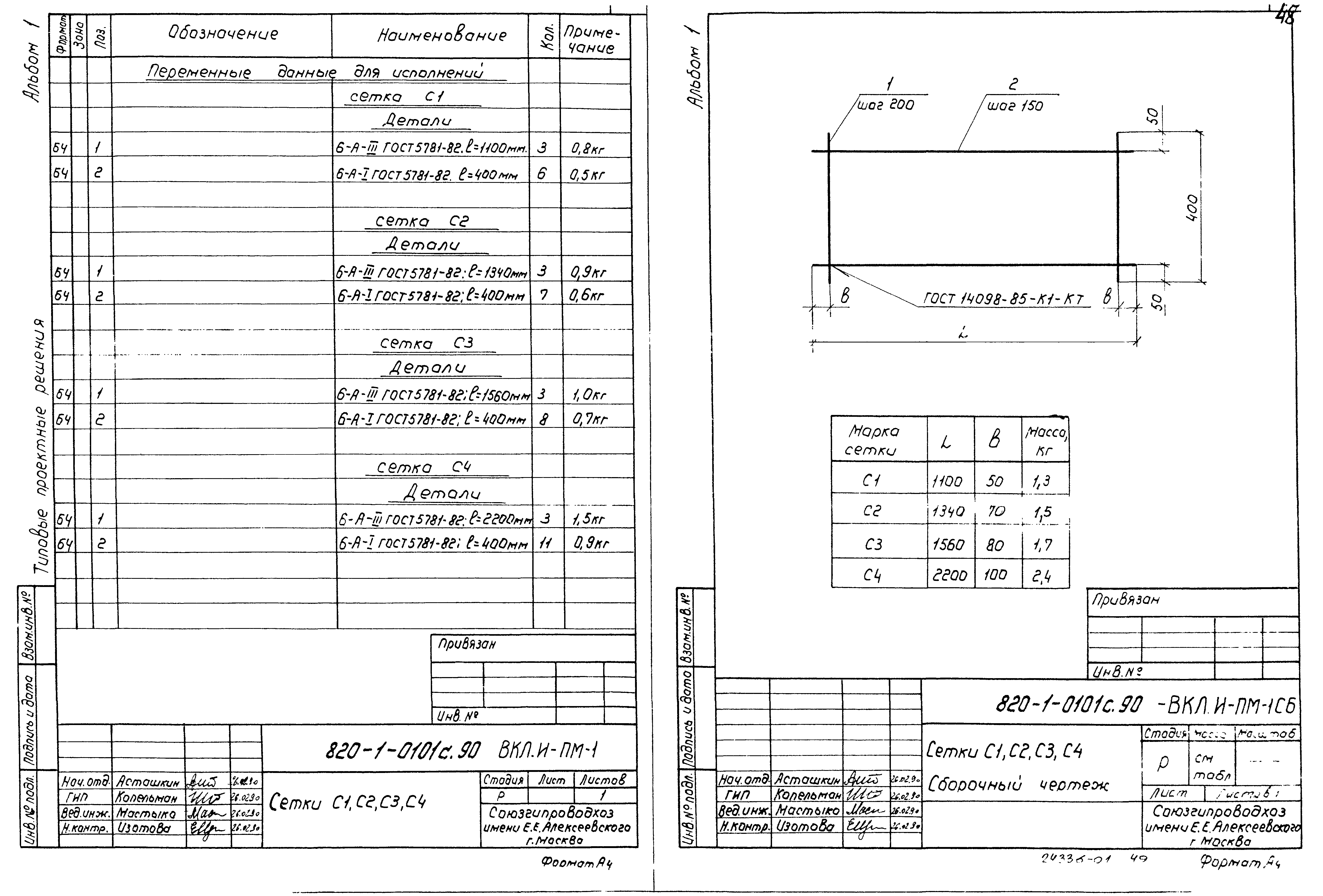
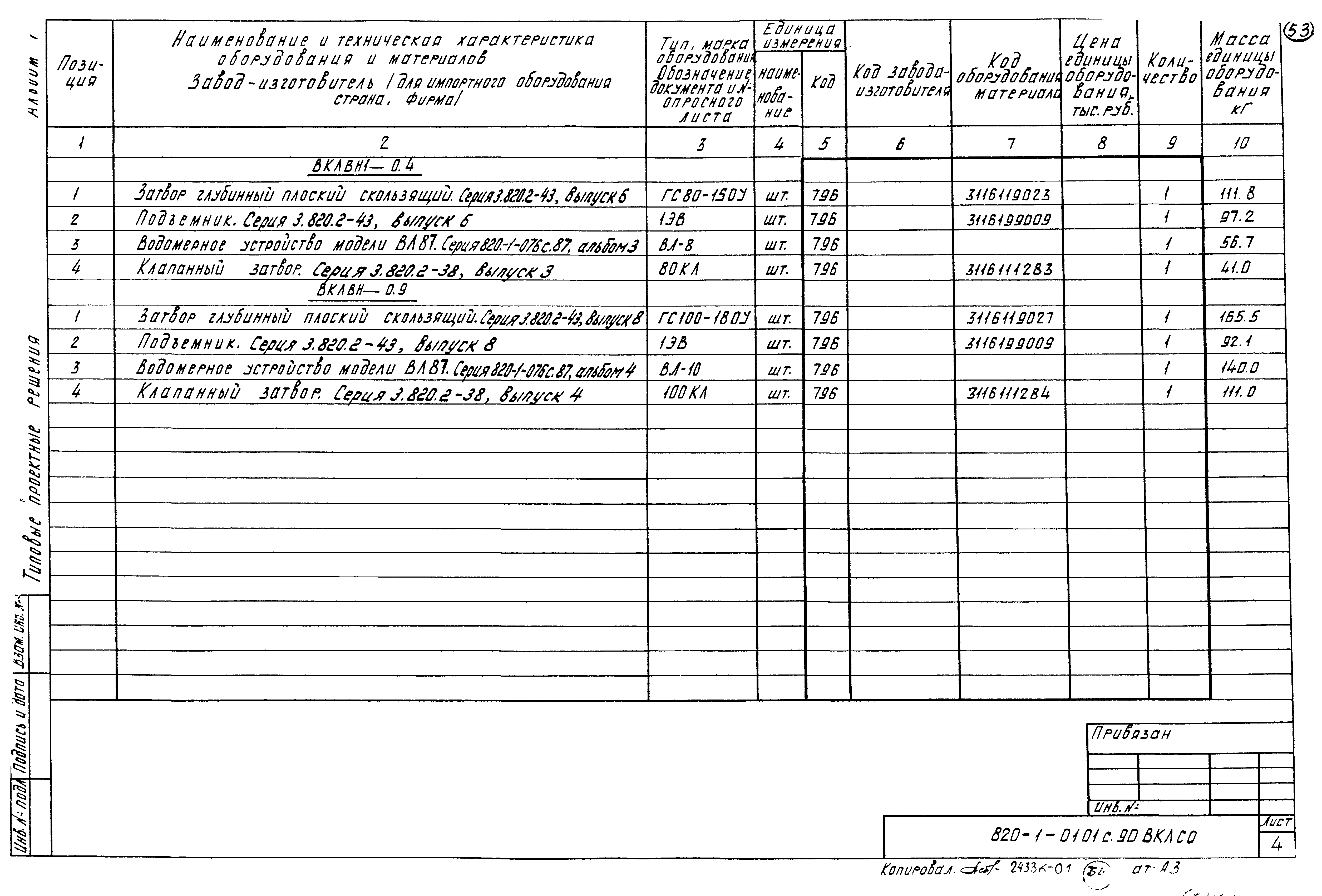
| Оглавление: | Регуляторы-водовыпуски с водомером и плоским затвором из канала в лоток с переездом Пояснительная записка Регуляторы-водовыпуски с водомером и плоским затвором из канала в лоток с переездом ВКЛВ-0,25; 0,5; 1,0; 1,6 с железобетонным основанием Общие данные Разрез 1-1. План Сечения 2-2, 3-3, 4-4 Спецификации Регуляторы-водовыпуски с водомером и плоским затвором из канала в лоток с переездом ВКЛВ-0,25; 0,5; 1,0; 1,6 с песчаным основанием Разрез 1-1. План Сечения 2-2, 3-3, 4-4 Спецификации Регулятор-водовыпуск с водомером и плоским затвором из канала в лоток с переездом ВКЛВ-2,1 с железобетонным основанием Разрез 1-1. План Сечения 2-2, 3-3, 4-4. Спецификация Регулятор-водовыпуск с водомером и плоским затвором из канала в лоток с переездом ВКЛВ-2,1 с песчаным основанием Разрез 1-1. План Сечения 2-2, 3-3, 4-4. Спецификация Регуляторы-водовыпуски с водомером в нижнем бьефе и плоским затвором из канала в лоток с переездом ВКЛВН-0,2; 0,4; 0,9; ВКЛВН-0,4 с железобетонным основанием Разрез 1-1. План Сечения 2-2, 3-3, 4-4 Спецификация Регуляторы-водовыпуски с водомером в нижнем бьефе и плоским затвором из канала в лоток с переездом ВКЛВН-0,2; 0,4; 0,9; ВКЛВН-0,4 с песчаным основанием Разрез 1-1. План Сечения 2-2, 3-3, 4-4 Спецификация Регуляторы-водовыпуски с водомером и плоским затвором из каналов в лоток с переездом с железобетонным основанием Основание под трубы. Основание оголовка ВКЛВ-2,1. Узлы I, II, III. Сечения 1-1, 2-2 Спецификации плит-оснований под трубы ВКЛВ, ВКЛВН Спецификация плиты-основания и плиты основания оголовка для ВКЛВ-2,1. Ведомость расхода стали Регуляторы-водовыпуски с водомером и плоским затвором из канала в лоток с переездом с песчаным основанием Основание под трубы. Узлы I, IV, V. Сечение 1-1 ВКЛ.И Строительные изделия Плиты для служебных мостиков М-6, М-8, М-10, М-14 Сетки С1, С2, С3, С4 Петля П-1 Ведомость расхода стали на служебные мостики М ВКЛ.СО Спецификация оборудования Спецификация оборудования ВКЛВ-0,25; 0,5; 1,0; 1,6; 2,1. ВКЛВН-0,2; 0,4; 0,9. ВКЛВН1-0,4 |
| Разработан: | Союзгипроводхоз Минводхоза СССР |
| Утверждён: | 26.04.1990 Минводстрой СССР (824) |
| Издан: | ЦИТП Госстроя СССР (CITP, Gosstroy (USSR) 1990 г. ) |
| Заменяет собой: |
|




















































