Скачать Типовой проект 703-2-1.86 Альбом 1. Пояснительная записка. Схема генерального плана. Технология. Холодоснабжение. Отопление и вентиляция. Внутренние водопровод и канализация. Электрооборудование. Автоматизация. Связь и сигнализацияДата актуализации: 01.01.2021
|
| Обозначение: | Типовой проект 703-2-1.86 |
| Обозначение англ: | 703-2-1.86 |
| Статус: | не определен законодательством |
| Название рус.: | Альбом 1. Пояснительная записка. Схема генерального плана. Технология. Холодоснабжение. Отопление и вентиляция. Внутренние водопровод и канализация. Электрооборудование. Автоматизация. Связь и сигнализация |
| Дата добавления в базу: | 01.10.2014 |
| Дата актуализации: | 01.01.2021 |
| Дата введения: | 23.05.1986 |
| Дата окончания срока действия: | 30.06.2003 |
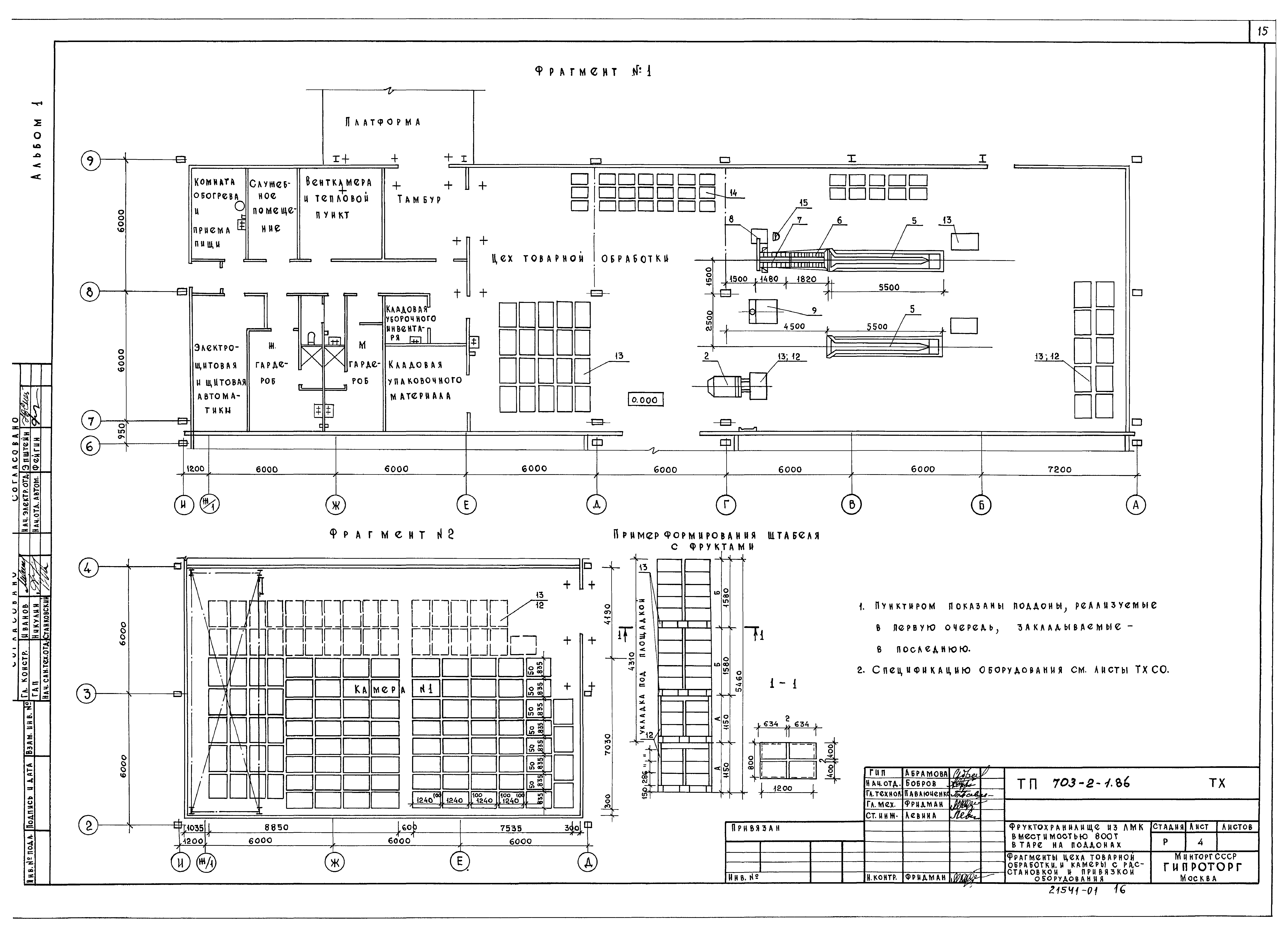
| Оглавление: | Содержание альбома Пояснительная записка Схема генерального плана Технология Общие данные Принципиальная схема технологических процессов и механизации производства План на отм. 0.000 с расстановкой технологического и подъемно-транспортного оборудования. Схема грузопотоков Фрагменты цеха товарной обработки и камеры с расстановкой и привязкой оборудования Разрезы Б-Б, В-В, Г-Г, Д-Д Холодоснабжение Общие данные План машинных отделений и холодильных камер. Разрез 1-1. Схема хладоновых трубопроводов Отопление и вентиляция Общие данные План на отм. 0.000 между осями 6 - 9; А - И. Схема отопления, теплоснабжения Установка системы П1. Схема вентиляции П1, ВЕ1 - ВЕ3. Узел управления Лючок для измерения параметров воздуха Конструкция тепловой изоляции трубопроводов Дроссельная втулка Внутренние водопровод и канализация Общие данные План и фрагмент №1 на отм. 0.000 с сетями В1, Т3, Т4, К1, К2, К3 Схемы систем В1, Т3, Т4 Схемы систем К1, К2, К3 Конструкция изоляции трубопроводов Электрооборудование Общие данные Схема принципиальная питающей сети Схема принципиальная распределительной сети Схема электрическая принципиальная отключения вентсистемы при пожаре Отключение вентсистемы при пожаре. Схема соединений внешних проводок План распределительной сети в осях 1 - 6; А - И План распределительной сети в осях 6 - 9; А - И План сети освещения Опросный лист на изготовление щитов ВРУI Автоматизация Общие данные Холодильные машины №1, №4. Схема соединений внешних проводок Фруктохранилище. План расположения Связь и сигнализация Общие данные Сети связи на плане и фрагменте №1 Сети пожарной и тревожной сигнализации на плане и фрагменте №1 |
| Разработан: | Гипроторг Гипропромтеплица |
| Утверждён: | 17.02.1986 Министерство торговли СССР (USSR Ministry of Commerce 31/П-3) |














































