Скачать Типовой проект А-IV-600-476.90 Альбом 3. Конструкции железобетонные. Организация строительстваДата актуализации: 01.01.2021
|
| Обозначение: | Типовой проект А-IV-600-476.90 |
| Обозначение англ: | А-IV-600-476.90 |
| Статус: | не определен законодательством |
| Название рус.: | Альбом 3. Конструкции железобетонные. Организация строительства |
| Дата добавления в базу: | 01.10.2014 |
| Дата актуализации: | 01.01.2021 |
| Дата введения: | 24.08.1990 |
| Дата окончания срока действия: | 30.06.2003 |
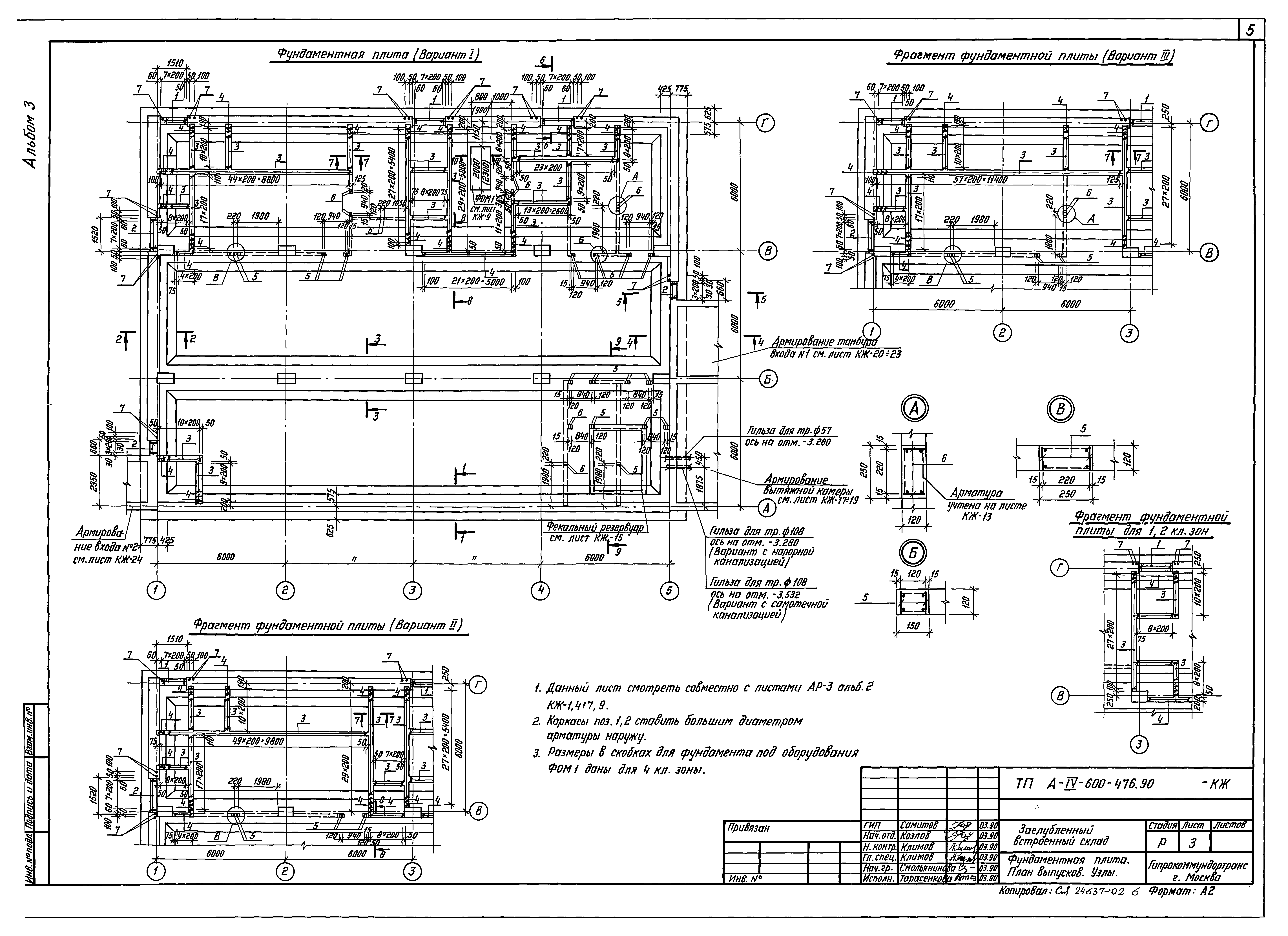
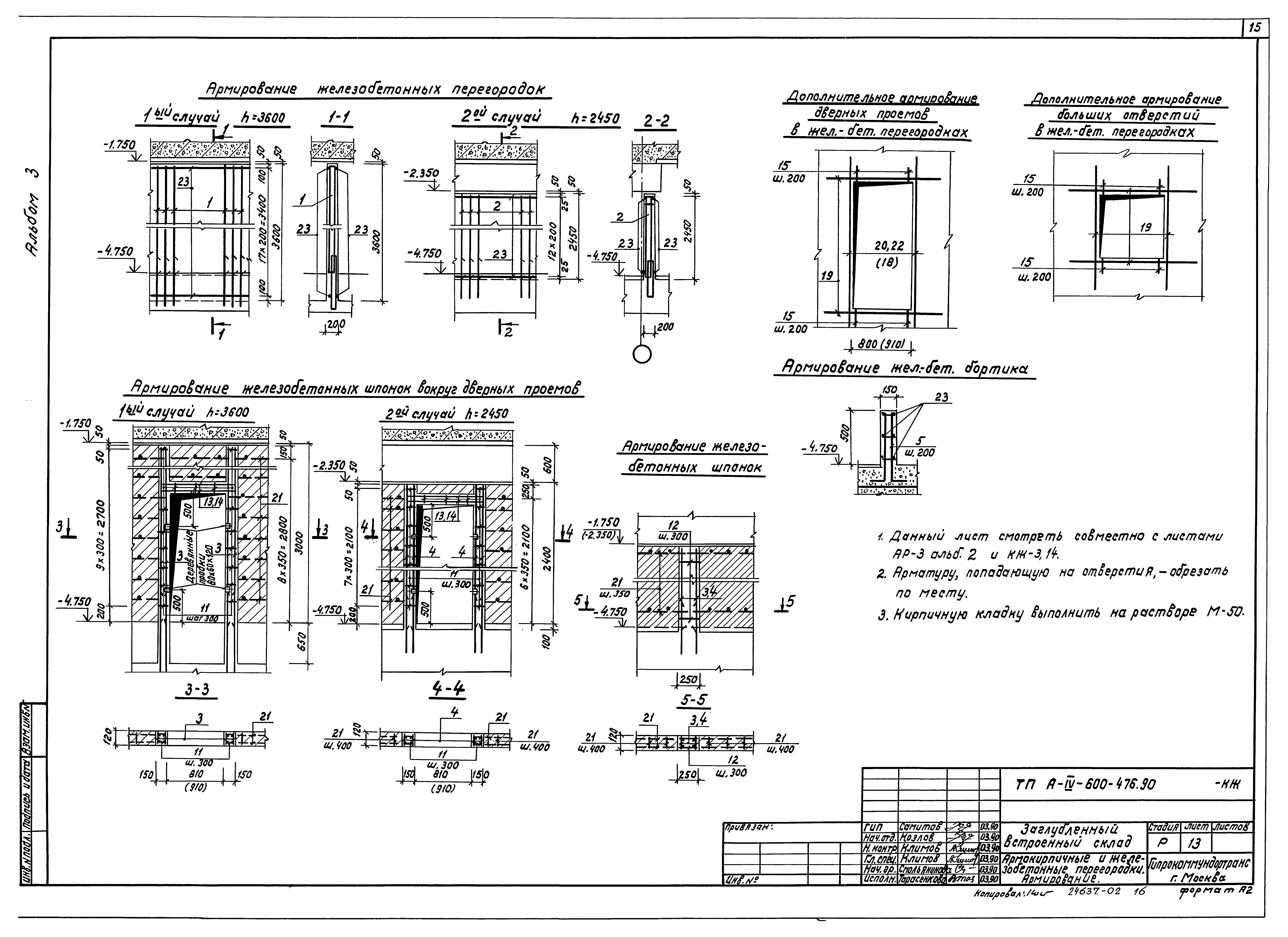
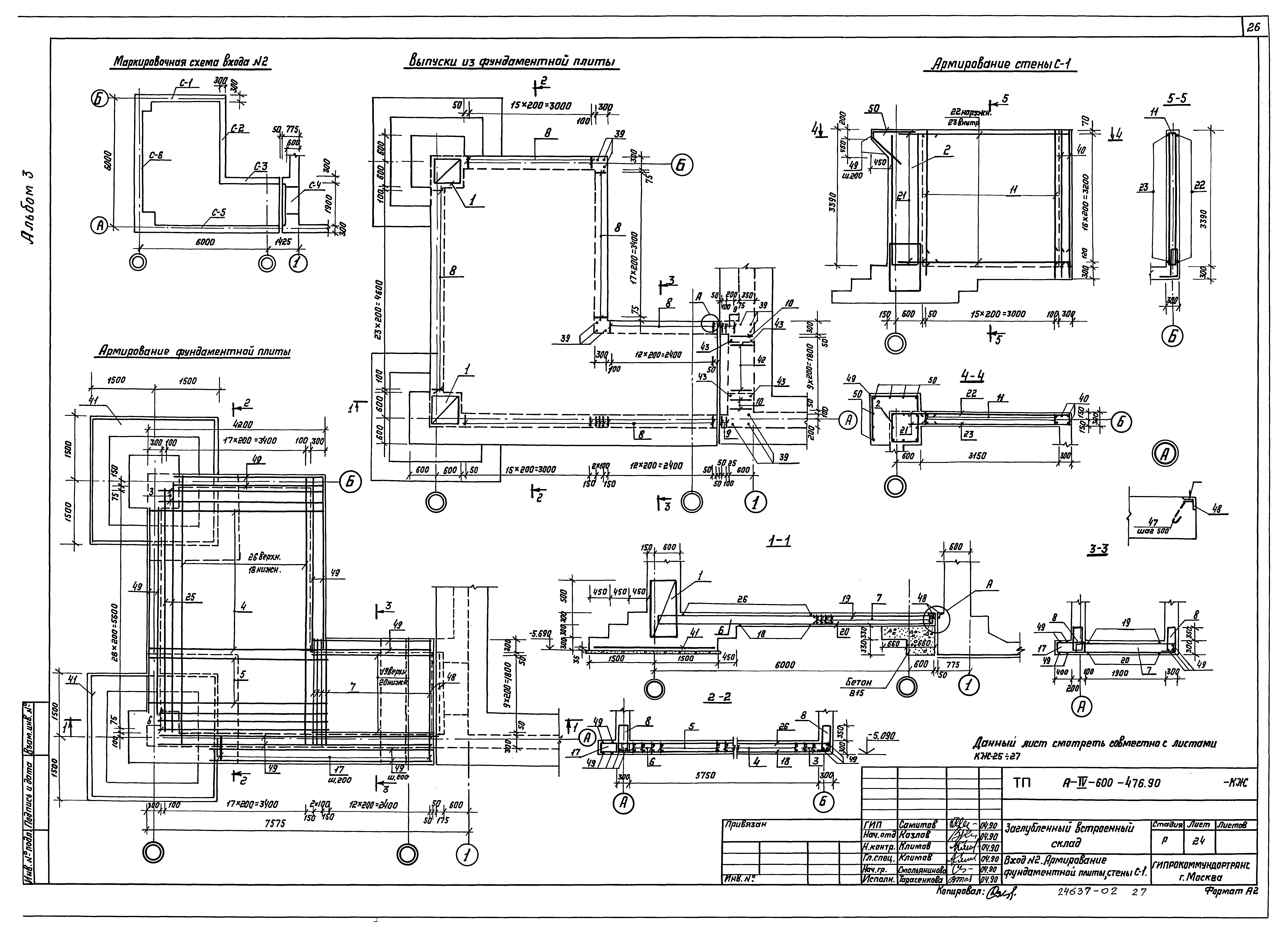
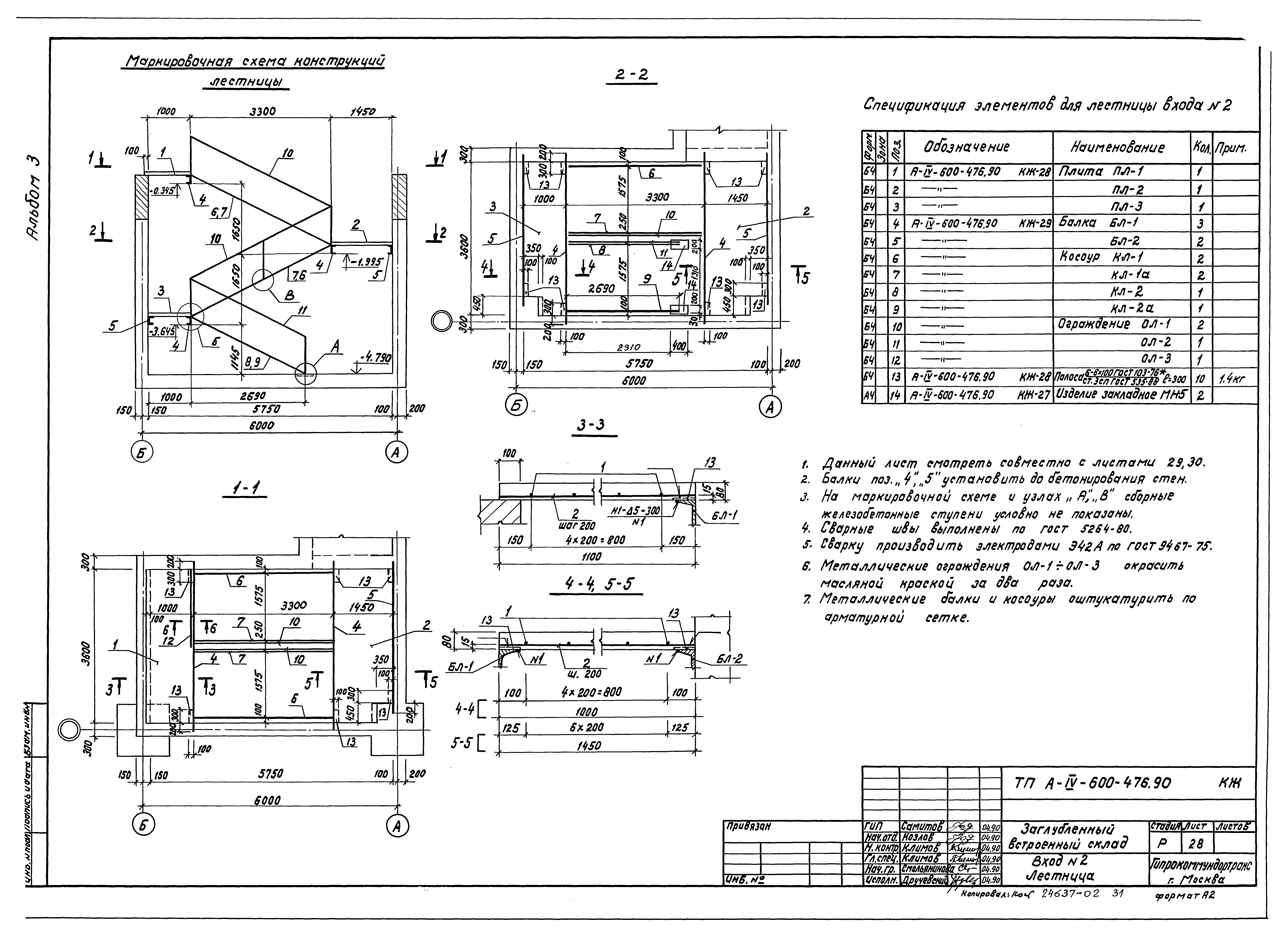
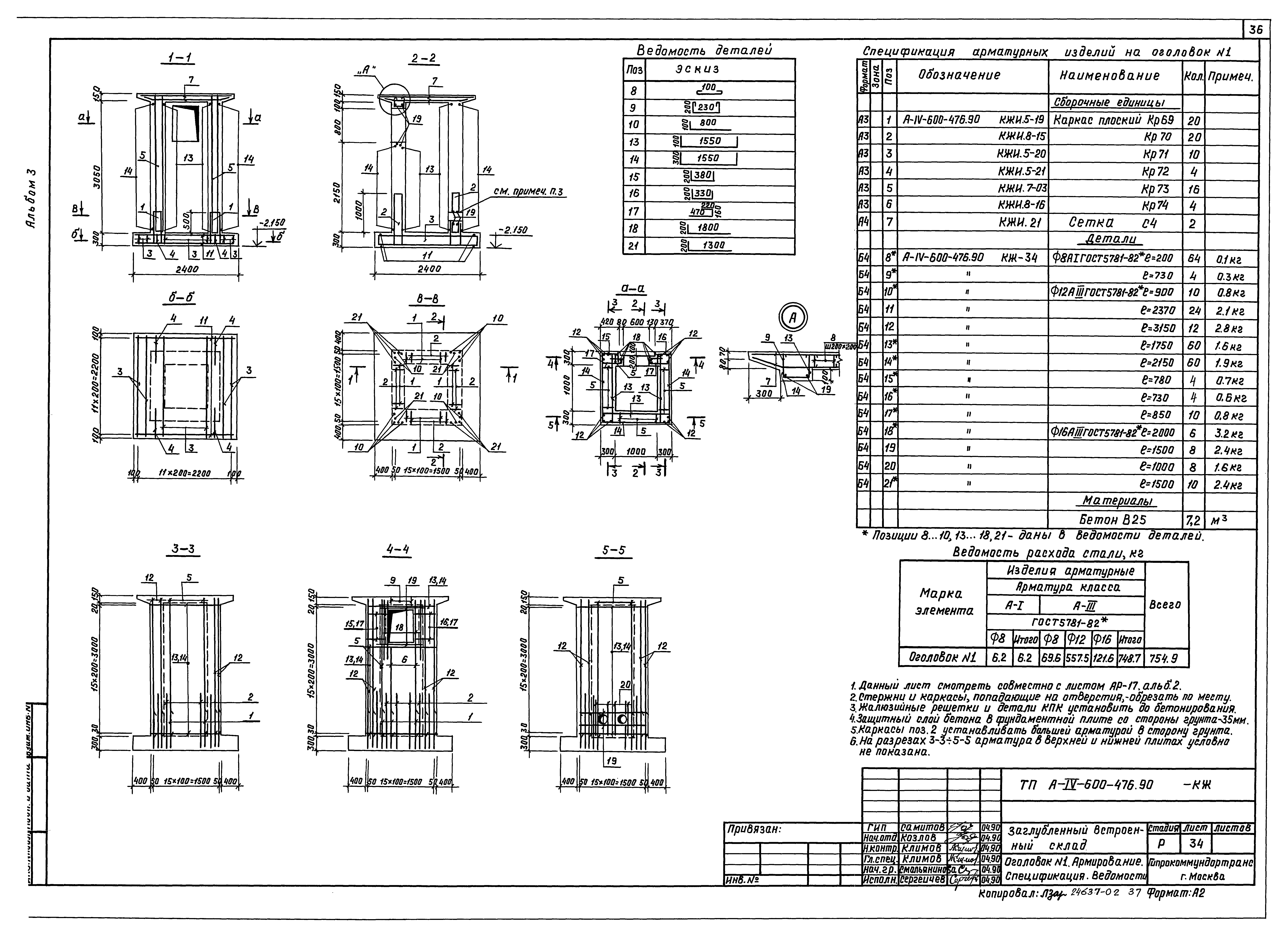
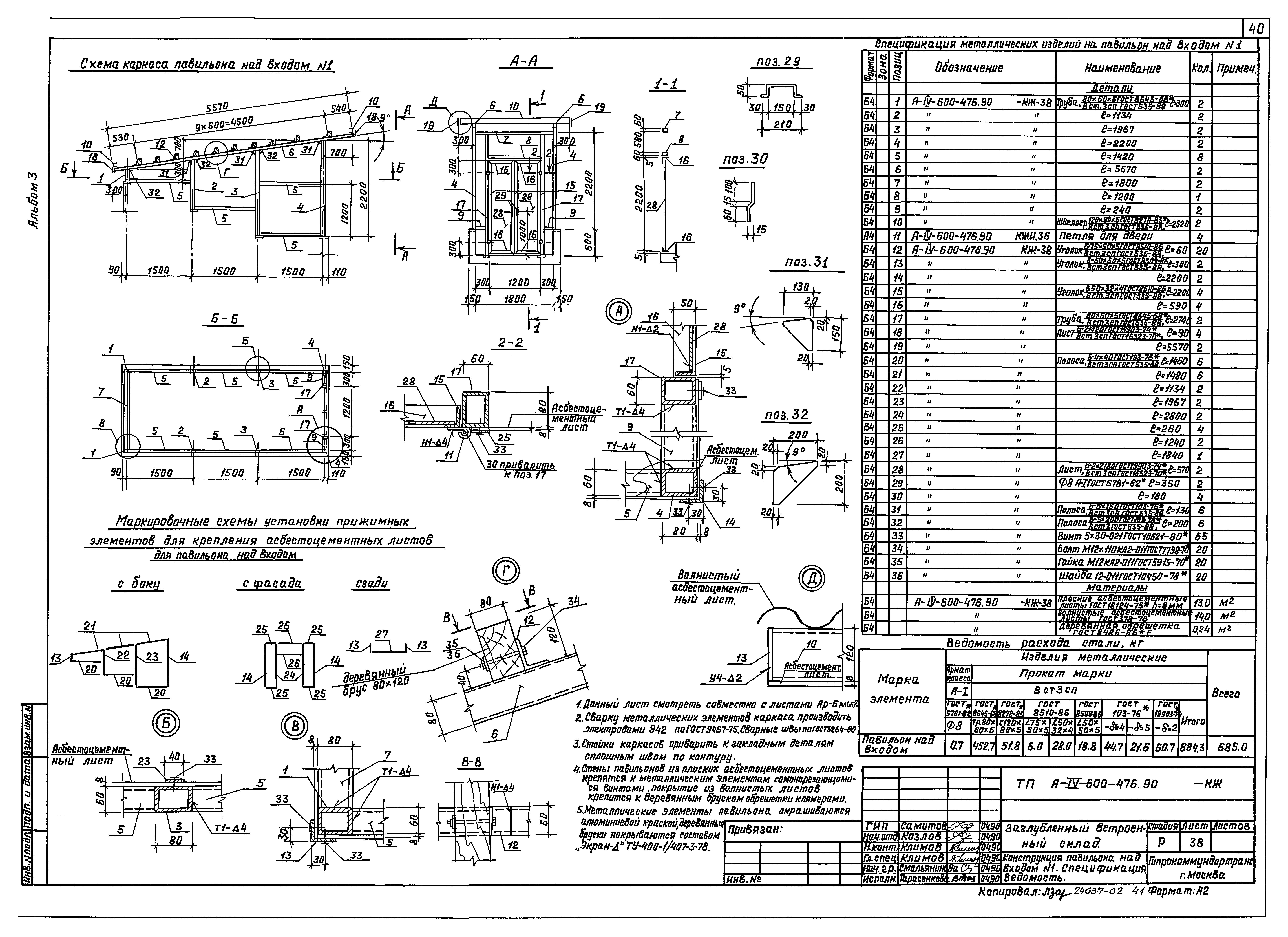
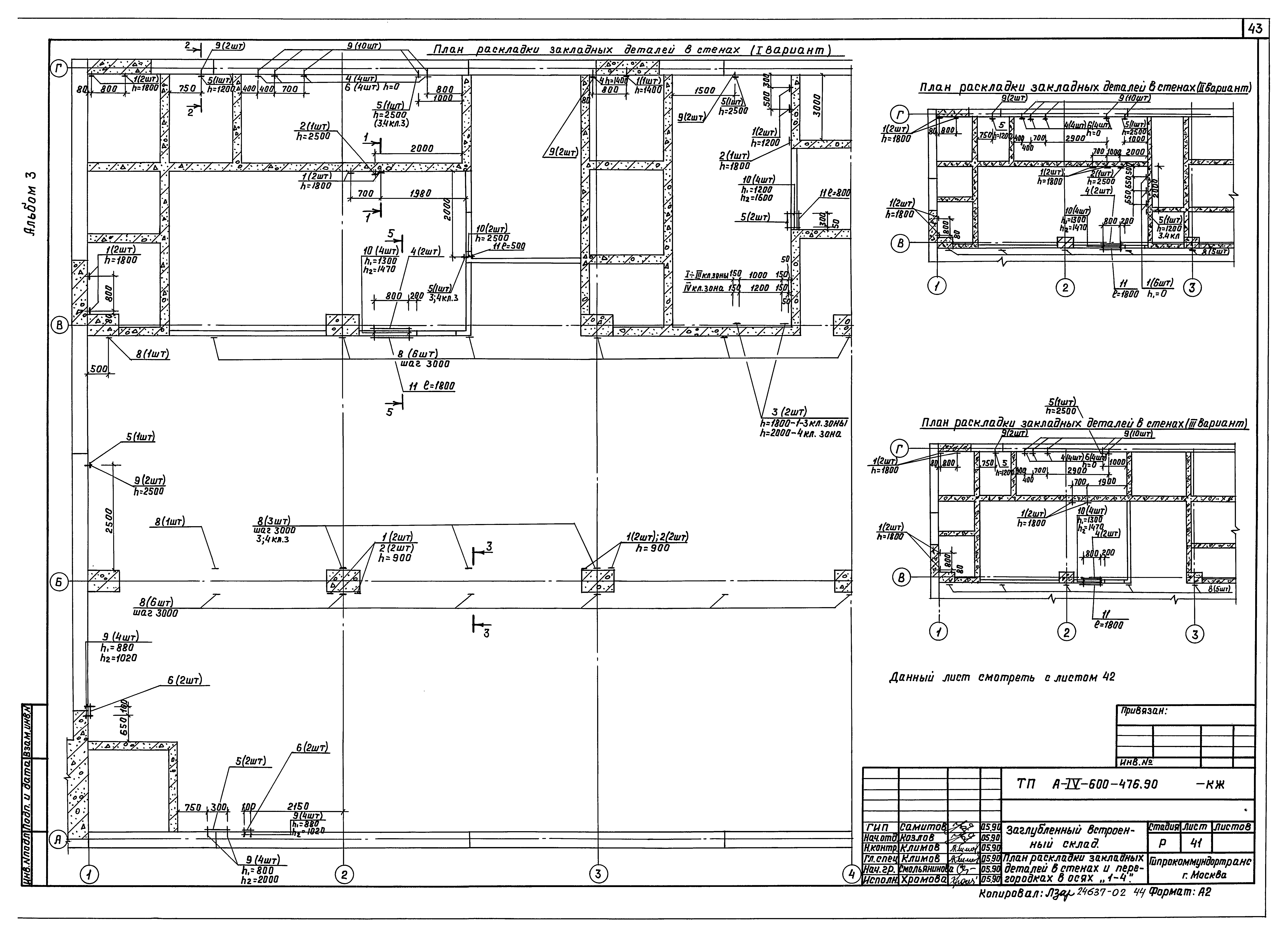
| Оглавление: | Содержание Конструкции железобетонные Общие данные Фундаментная плита. План выпусков. Узлы Фундаментная плита. Выпуски из фундаментной плиты. Сечения 1-1 - 10-10 Фундаментная плита. Спецификация и ведомость расхода стали на выпуски Фундаментная плита. Армирование. Ведомость Фундаментная плита. Спецификация арматурных изделий Монтажная схема железобетонных конструкций и соединительных каркасов. Спецификация Фундамент под оборудование Фом-1. Спецификация. Ведомость расхода стали на Фом-1 и колонны Км5 и Км6 Армирование монолитной части покрытия. Спецификация. Ведомость Монолитные стеновые панели МСП-1 - МСП-6. Армирование. Ведомости Монолитные стеновые панели МСП-1 - МСП-6. Спецификация Армокирпичные и железобетонные перегородки. Армирование Армокирпичные и железобетонные перегородки. Детали. Спецификация. Ведомости Фекальный резервуар. Армирование. Спецификация. Ведомости Металлическая рубашка фекального резервуара. Спецификация. Ведомость Вытяжная камера. Армирование плиты П-1, стен С-1, С-2 Вытяжная камера. Армирование плиты П-1, стен С-3, С-4. Спецификация Вытяжная камера. Спецификация. Ведомости Тамбур входа №1. Армирование плиты П-1, стен С-1, С-2 Тамбур входа №1. Армирование стен С-3 - С-6, плиты П-2 Тамбур входа №1. Спецификация Тамбур входа №1. Спецификация. Ведомости Вход №2. Армирование фундаментной плиты, стены С-1 Вход №2. Армирование стен С-2 - С-6 Вход №2. Армирование верхней плиты. Спецификация. Ведомость Вход №2. Спецификация. Ведомость Вход №2. Лестница Вход №2. Лестница. Узлы. Элементы Вход №2. Спецификация и ведомость расхода стали на лестницу Наклонный вход №1. Армирование Наклонный вход №1. Спецификация. Ведомости Раскладка сборных блоков наклонного входа. Спецификация Оголовок №1. Армирование. Спецификация. Ведомости Компенсационное устройство на вводе электрокабелей и кабелей связи Павильон шахты подъемника. Схемы элементов конструкций Павильон шахты подъемника. Узлы 1 - 4 Конструкция павильона над входом №1. Спецификация. Ведомость План раскладки закладных изделий в покрытии. Разрезы 1-1 - 4-4 План раскладки закладных изделий в покрытии. Спецификация. Ведомость План раскладки закладных изделий в стенах и перегородках в осях "1 - 4" План раскладки закладных изделий в стенах и перегородках в осях "4 - 5". Спецификация. Ведомость Подвесные пути и монорельс. Узлы. Детали. Спецификация. Ведомость Деталь установки сальника жесткого закрепления. Ведомость. Спецификация Организация строительства Пояснительная записка Стройгенплан подвальной части здания График производства работ |
| Разработан: | Гипрокоммундортранс |
| Утверждён: | 17.08.1990 НГО СССР (62) |


















































