Скачать Типовой проект А-IV-600-476.90 Альбом 5. Часть 3. Отопление и вентиляция. Водопровод и канализация (4 климатическая зона)Дата актуализации: 01.01.2021
|
| Обозначение: | Типовой проект А-IV-600-476.90 |
| Обозначение англ: | А-IV-600-476.90 |
| Статус: | не определен законодательством |
| Название рус.: | Альбом 5. Часть 3. Отопление и вентиляция. Водопровод и канализация (4 климатическая зона) |
| Дата добавления в базу: | 01.10.2014 |
| Дата актуализации: | 01.01.2021 |
| Дата введения: | 24.08.1990 |
| Дата окончания срока действия: | 30.06.2003 |
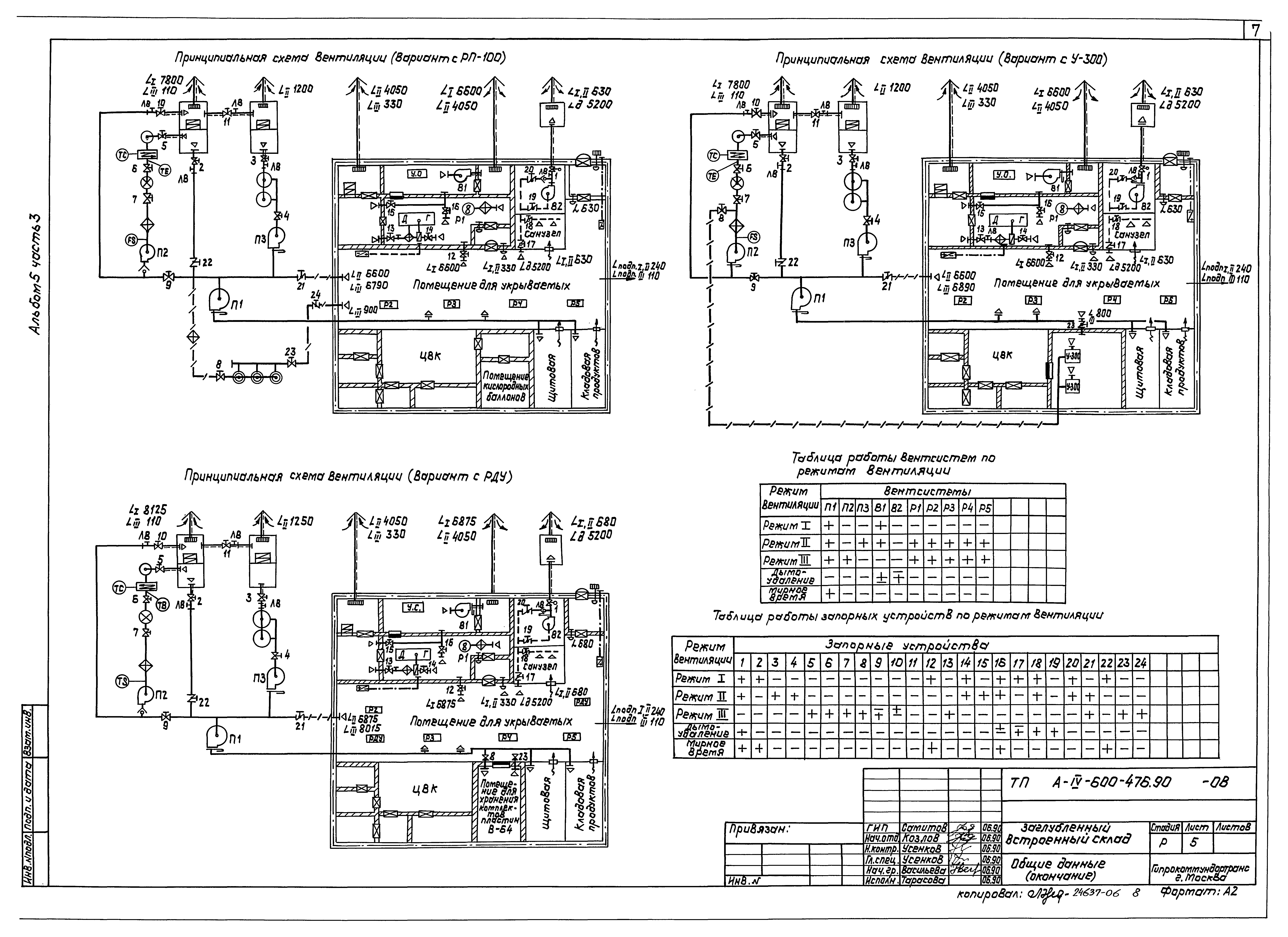
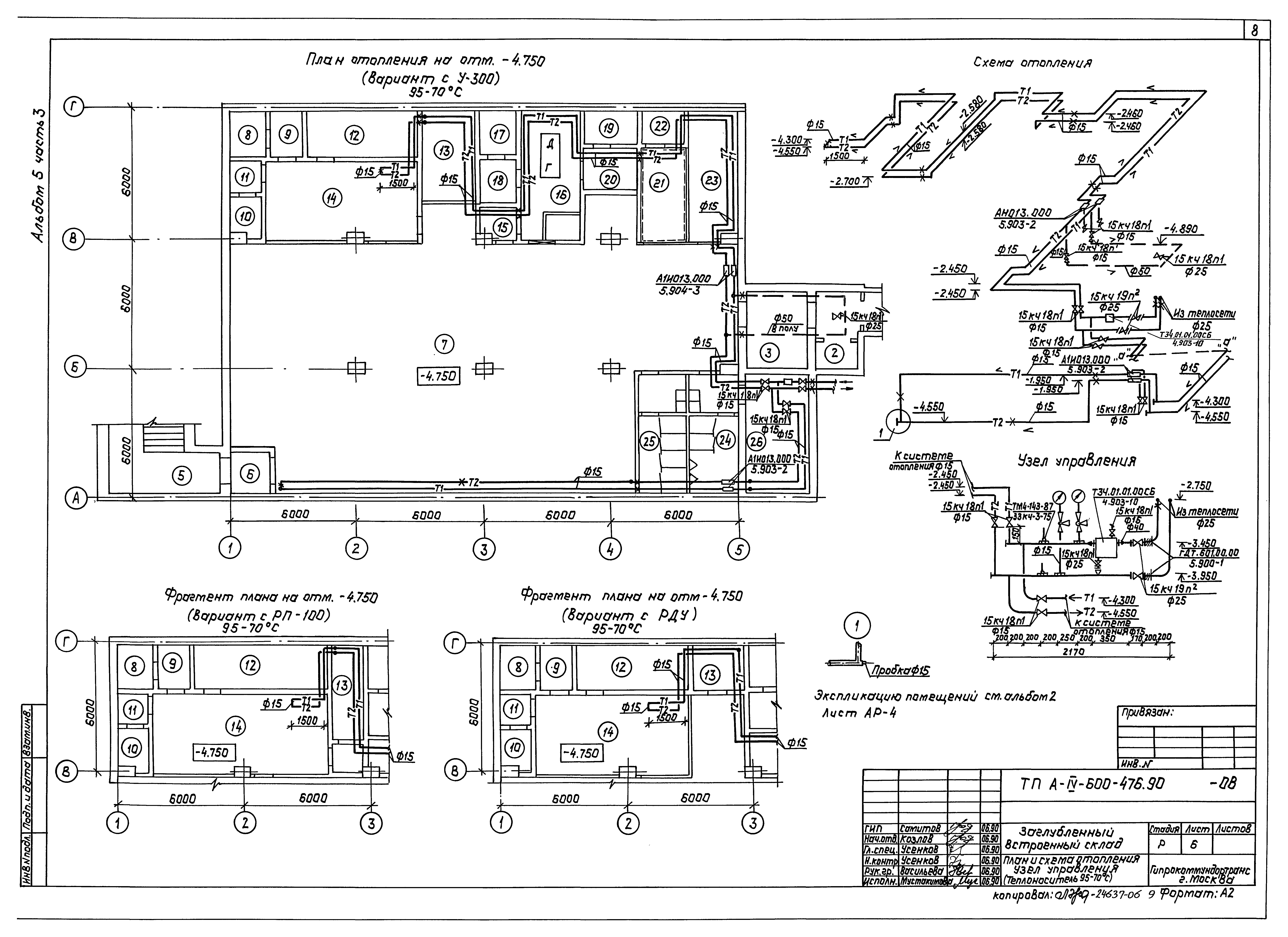
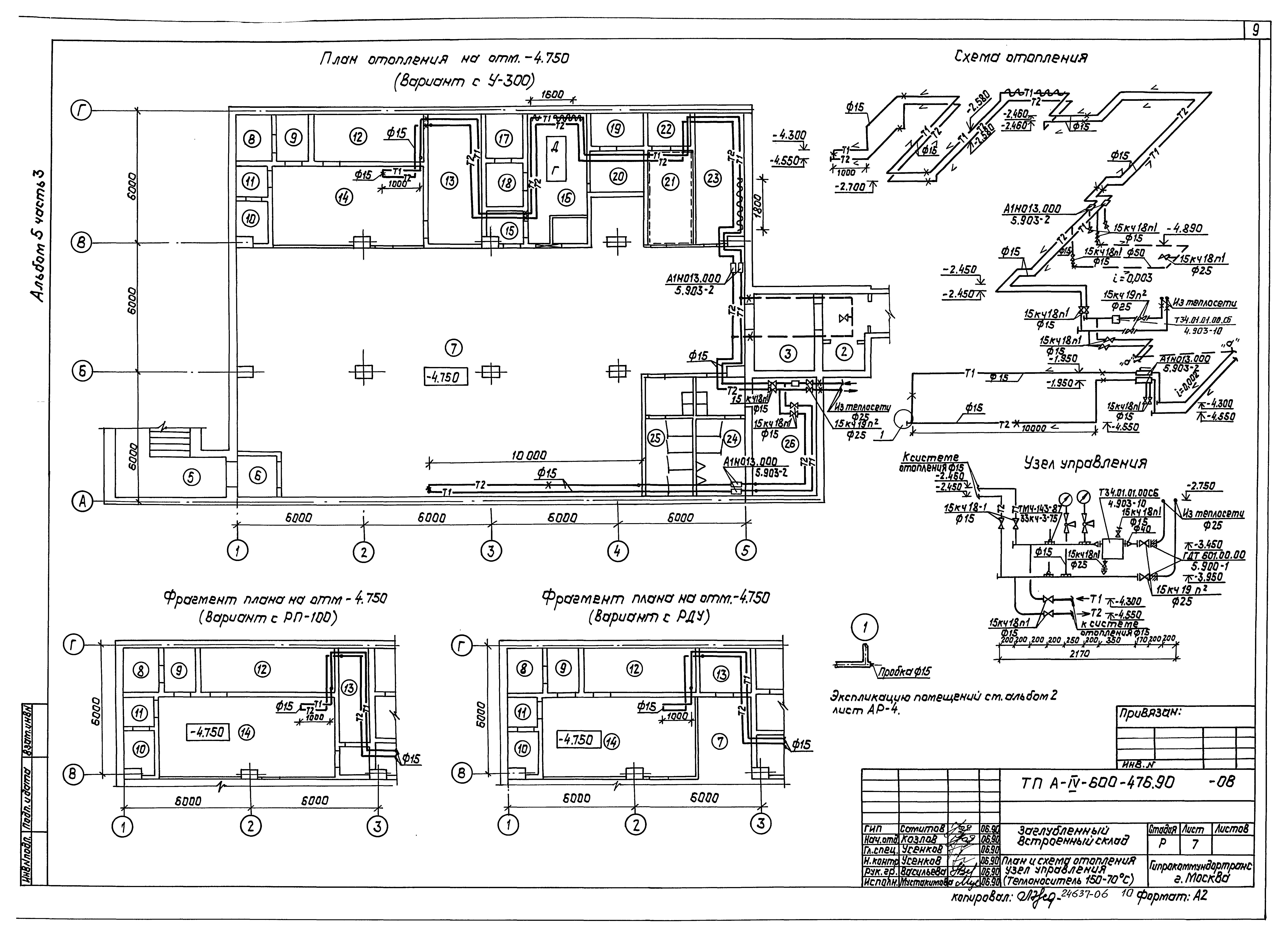
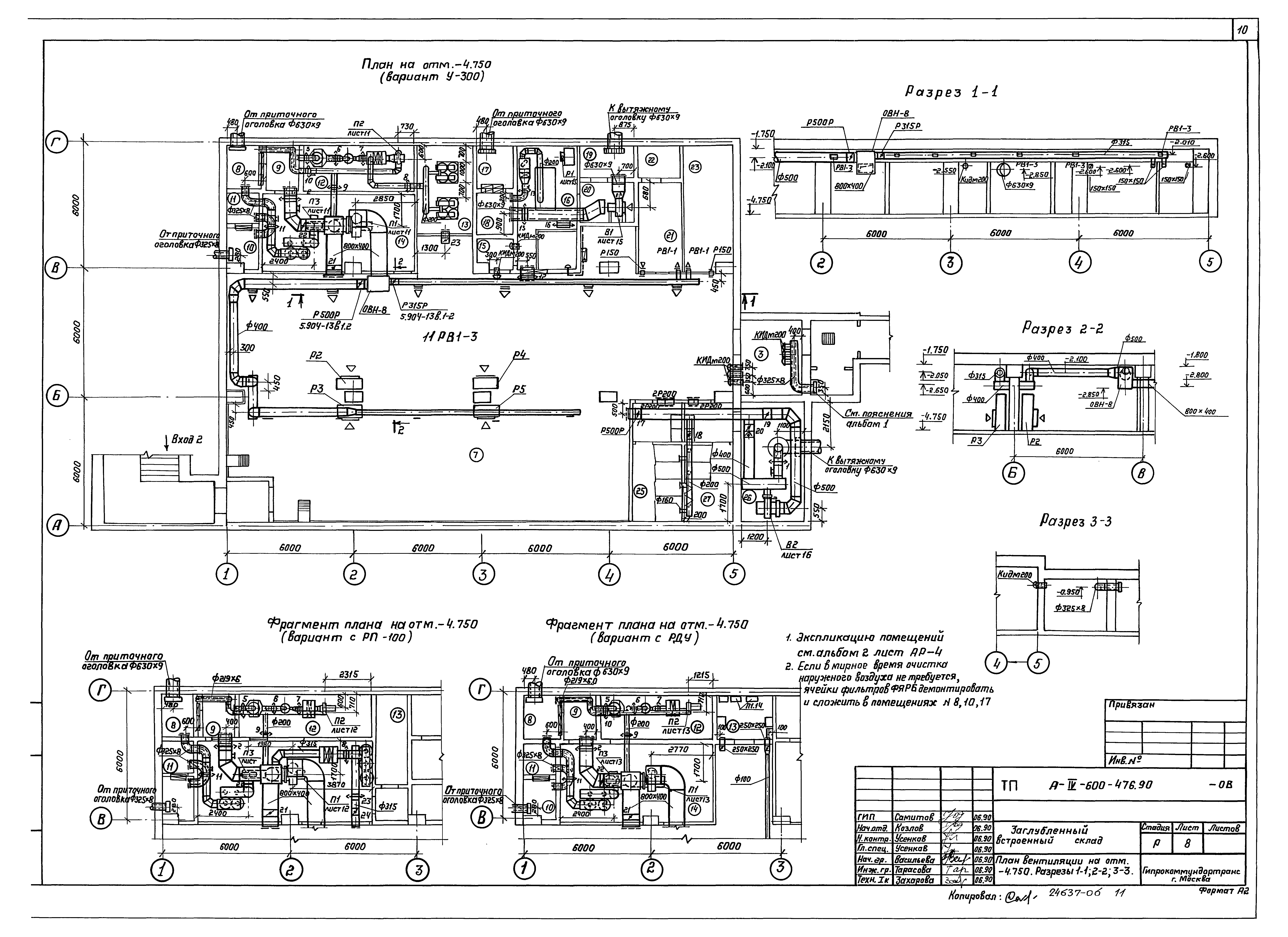
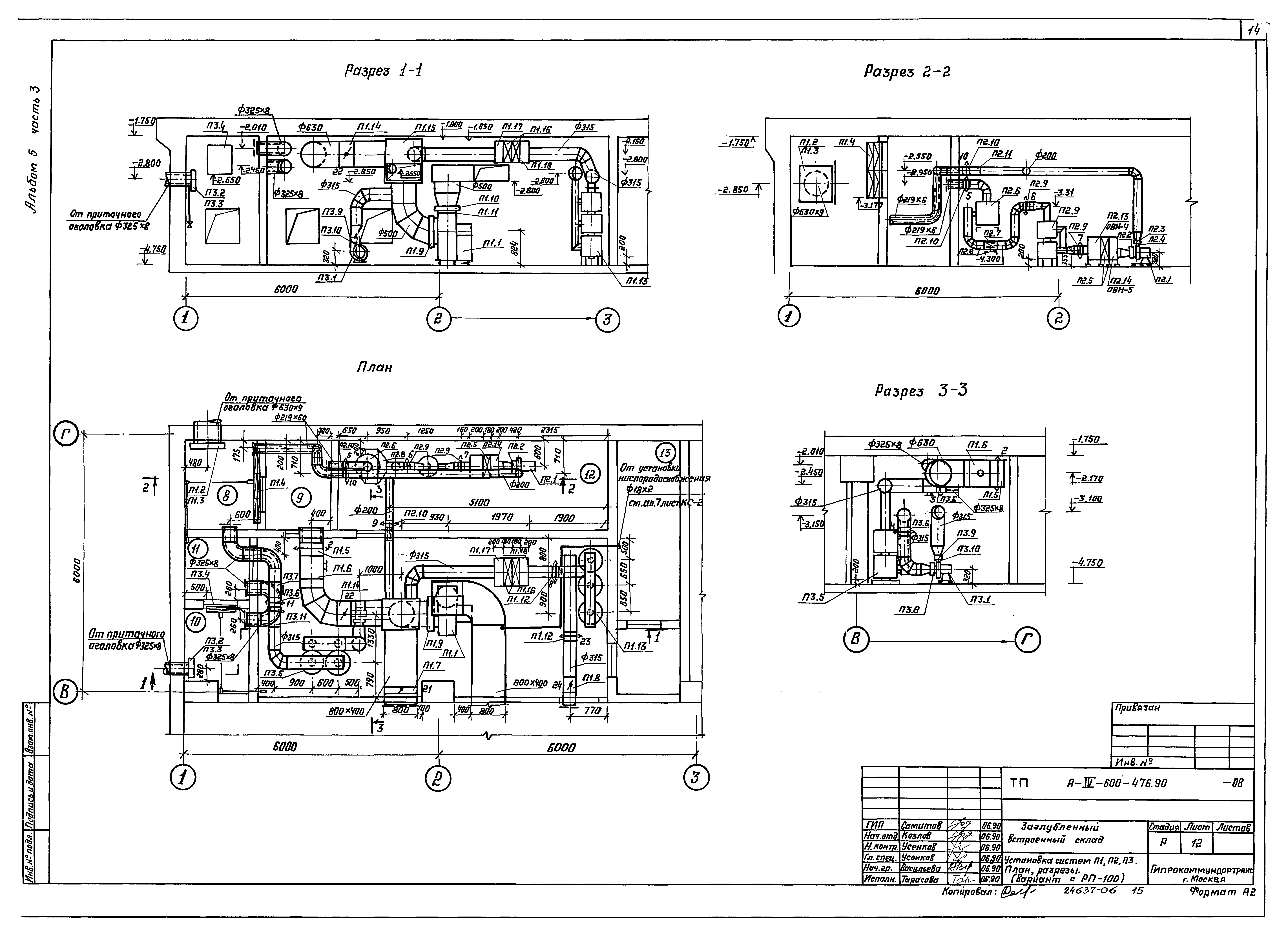
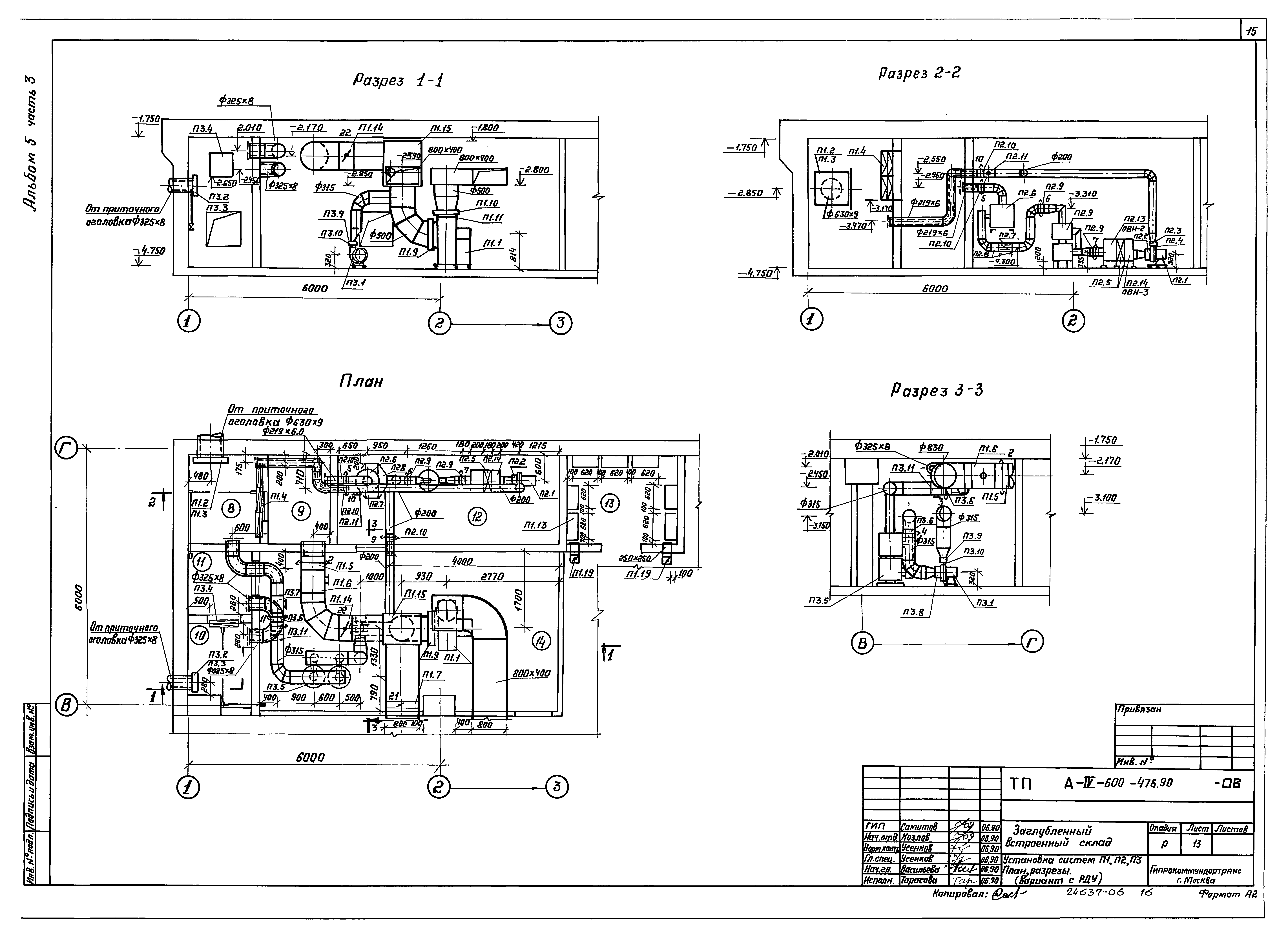
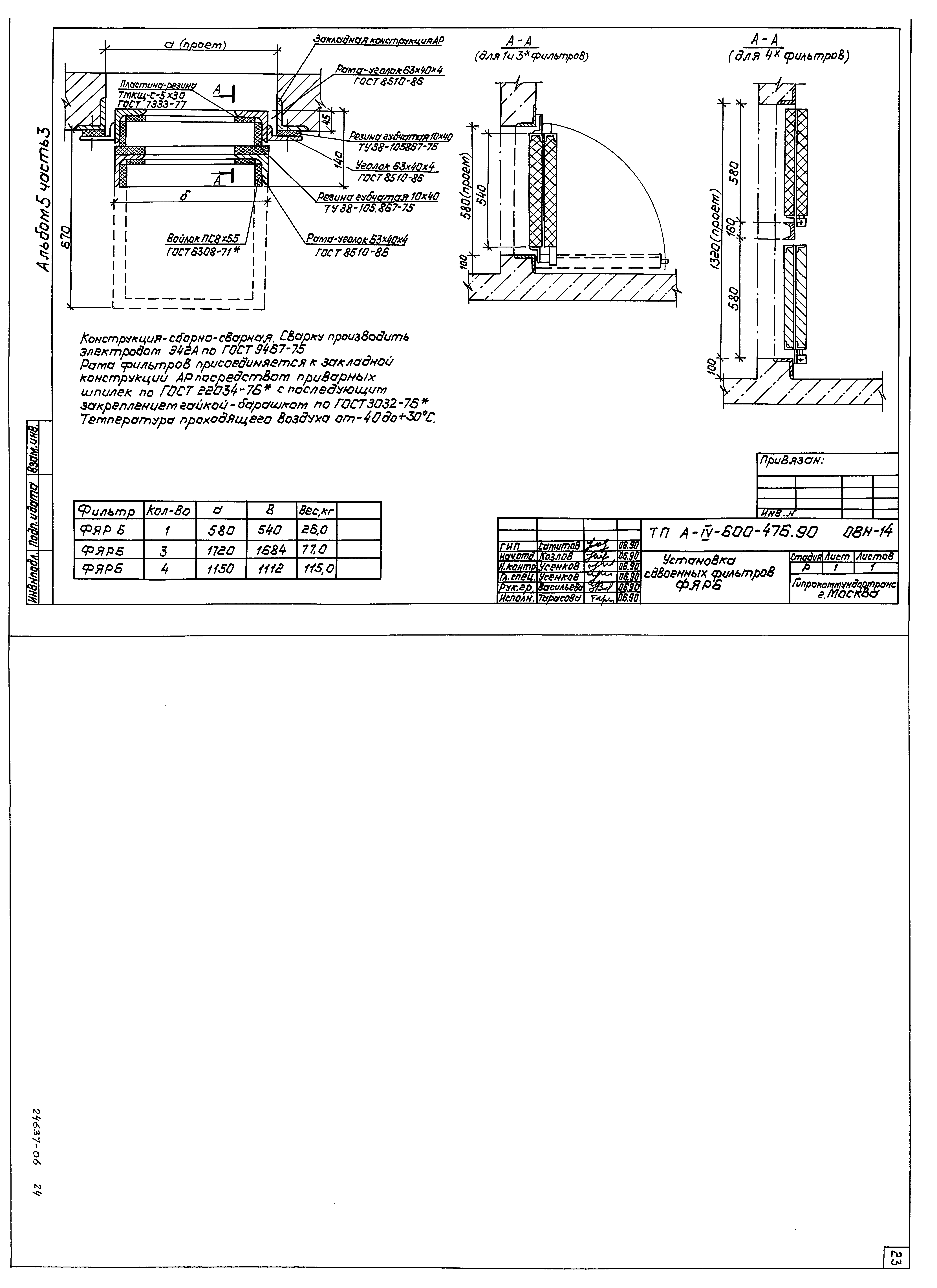
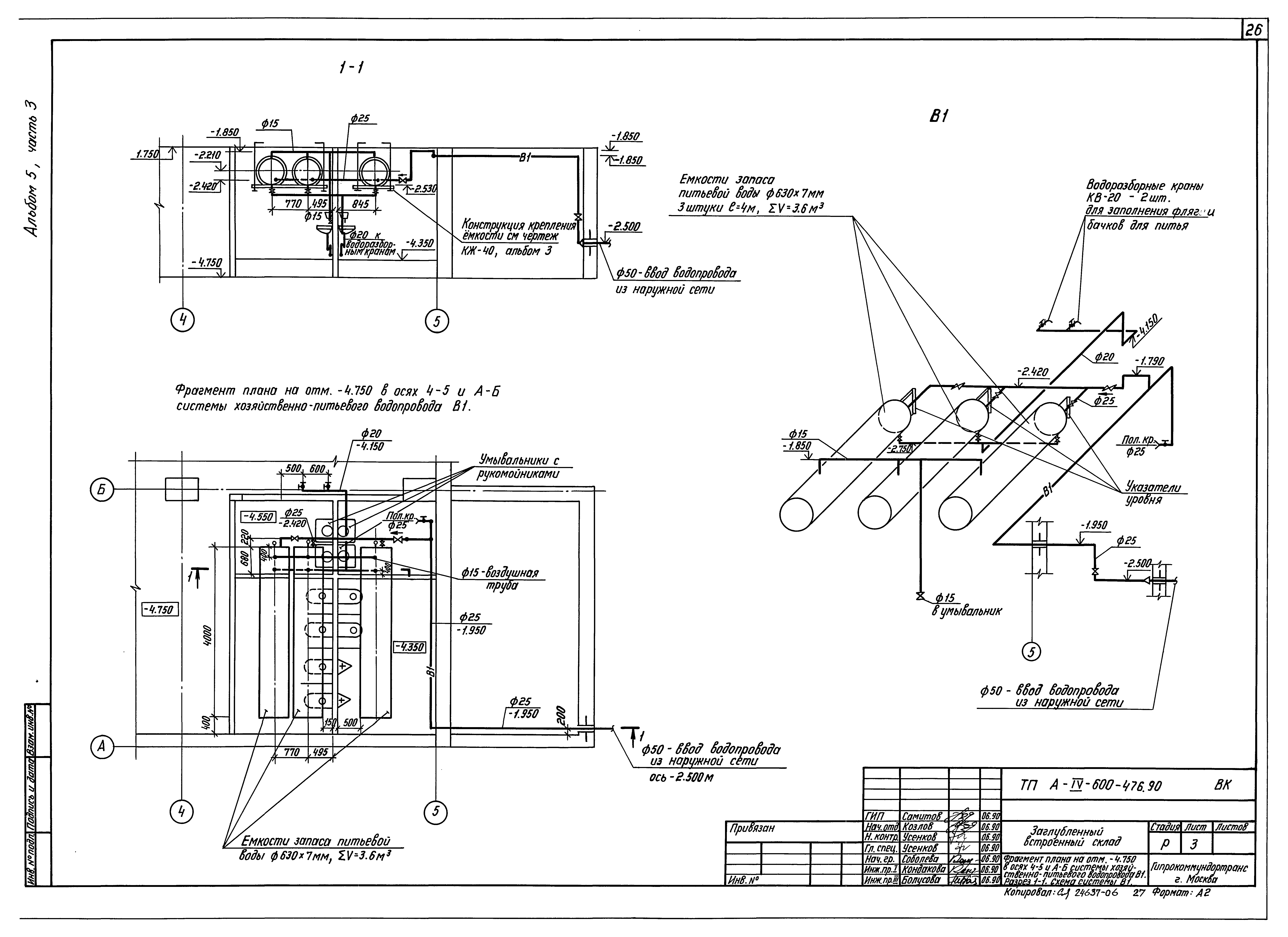
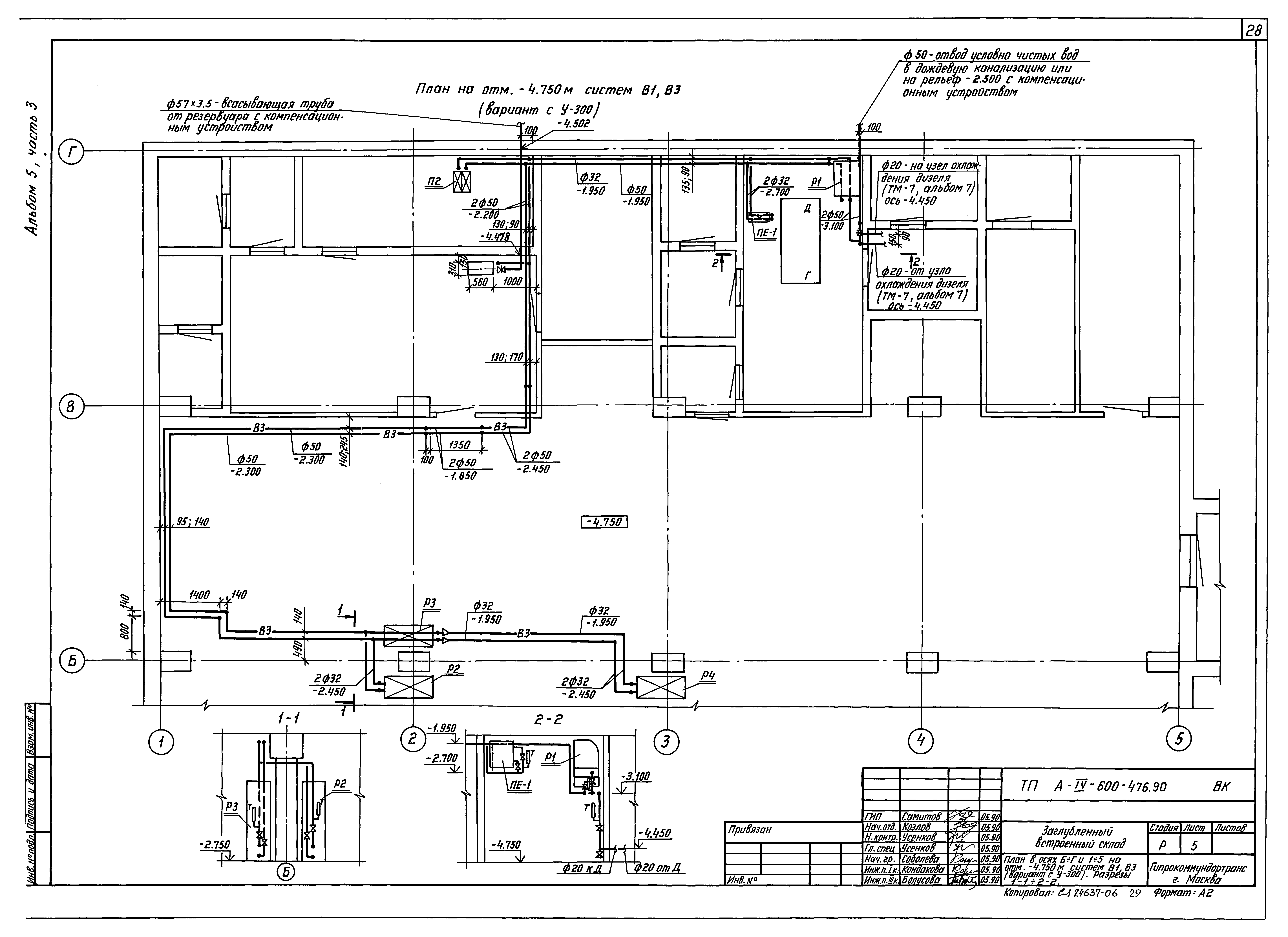
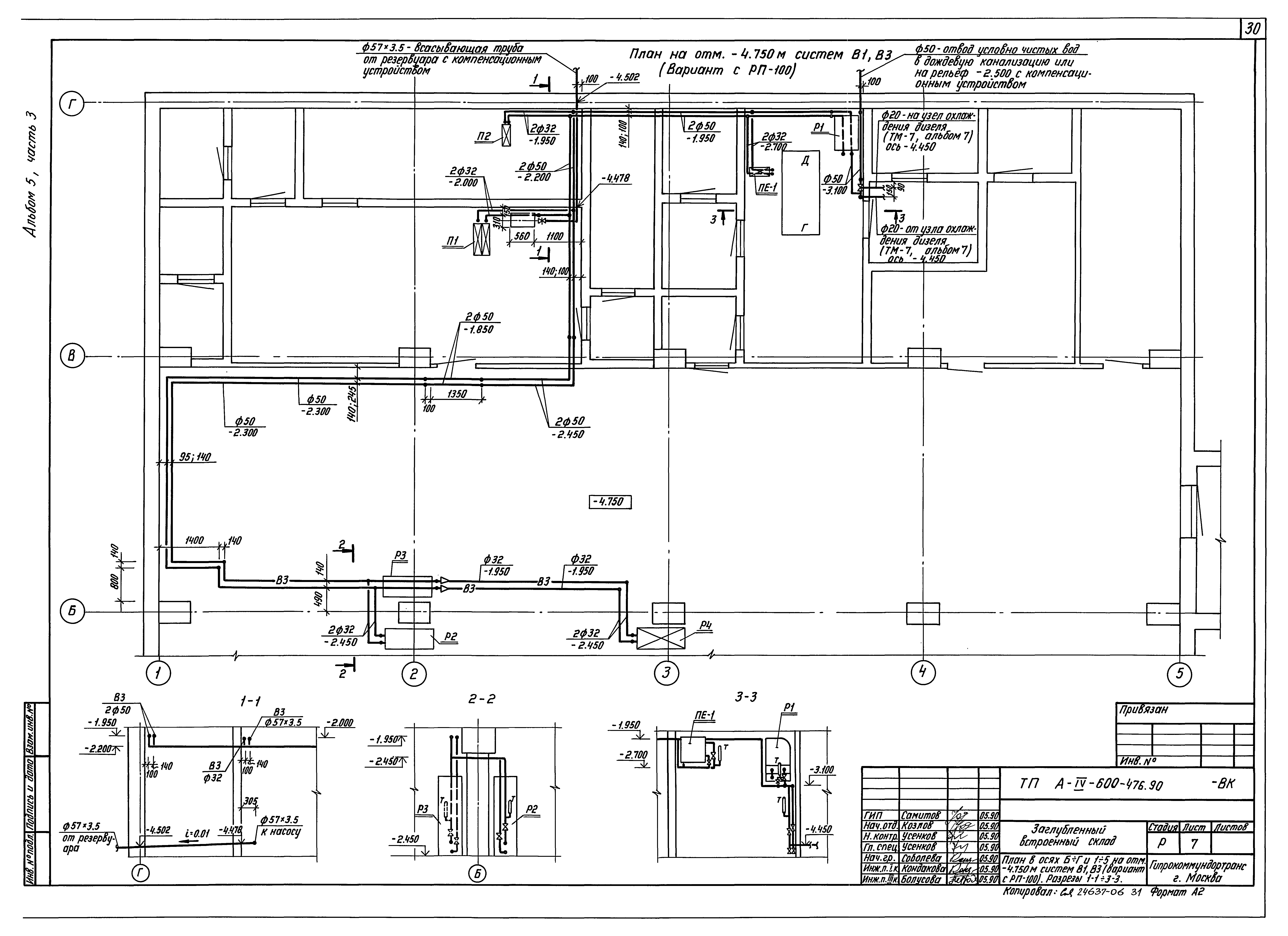
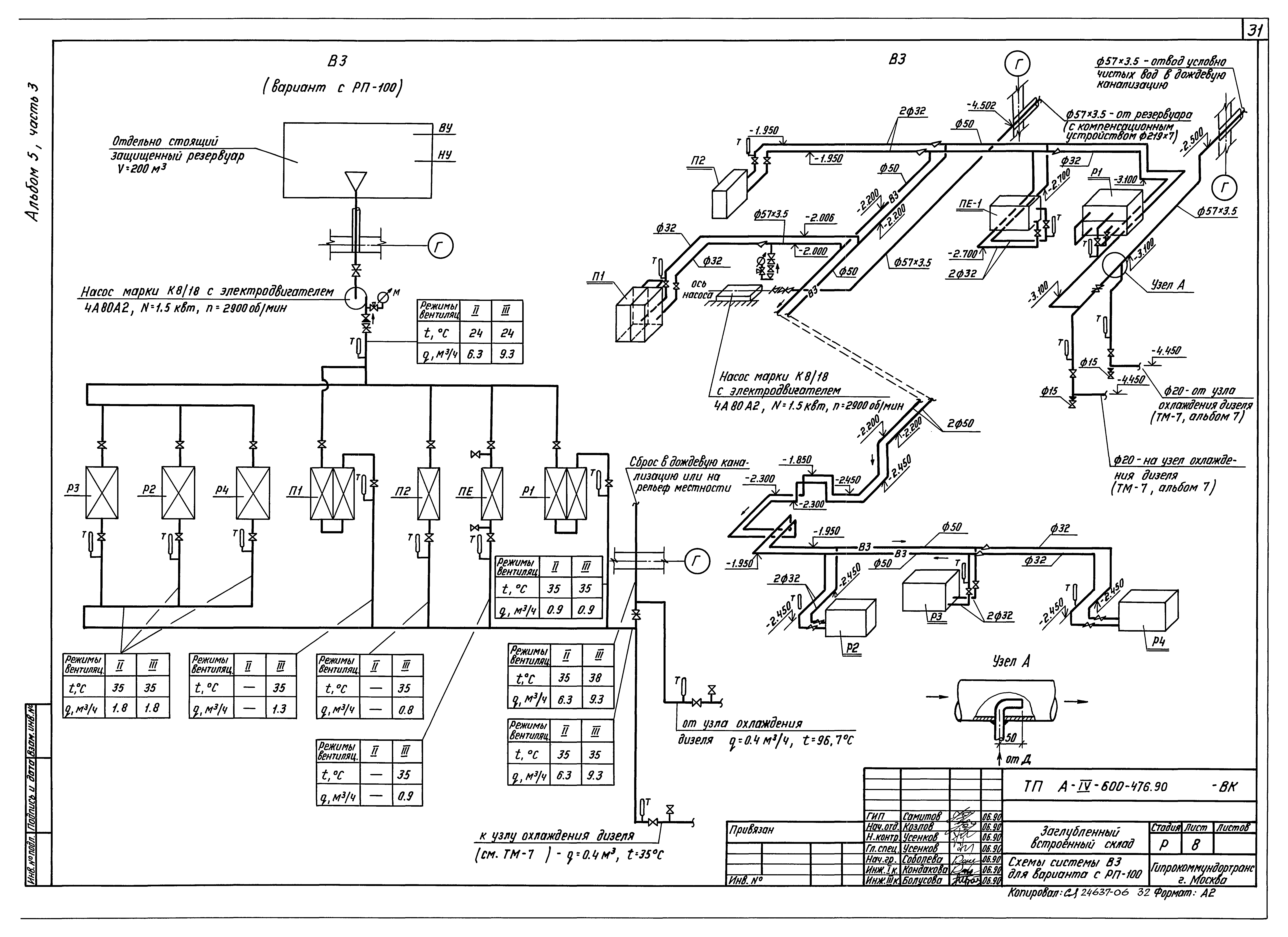
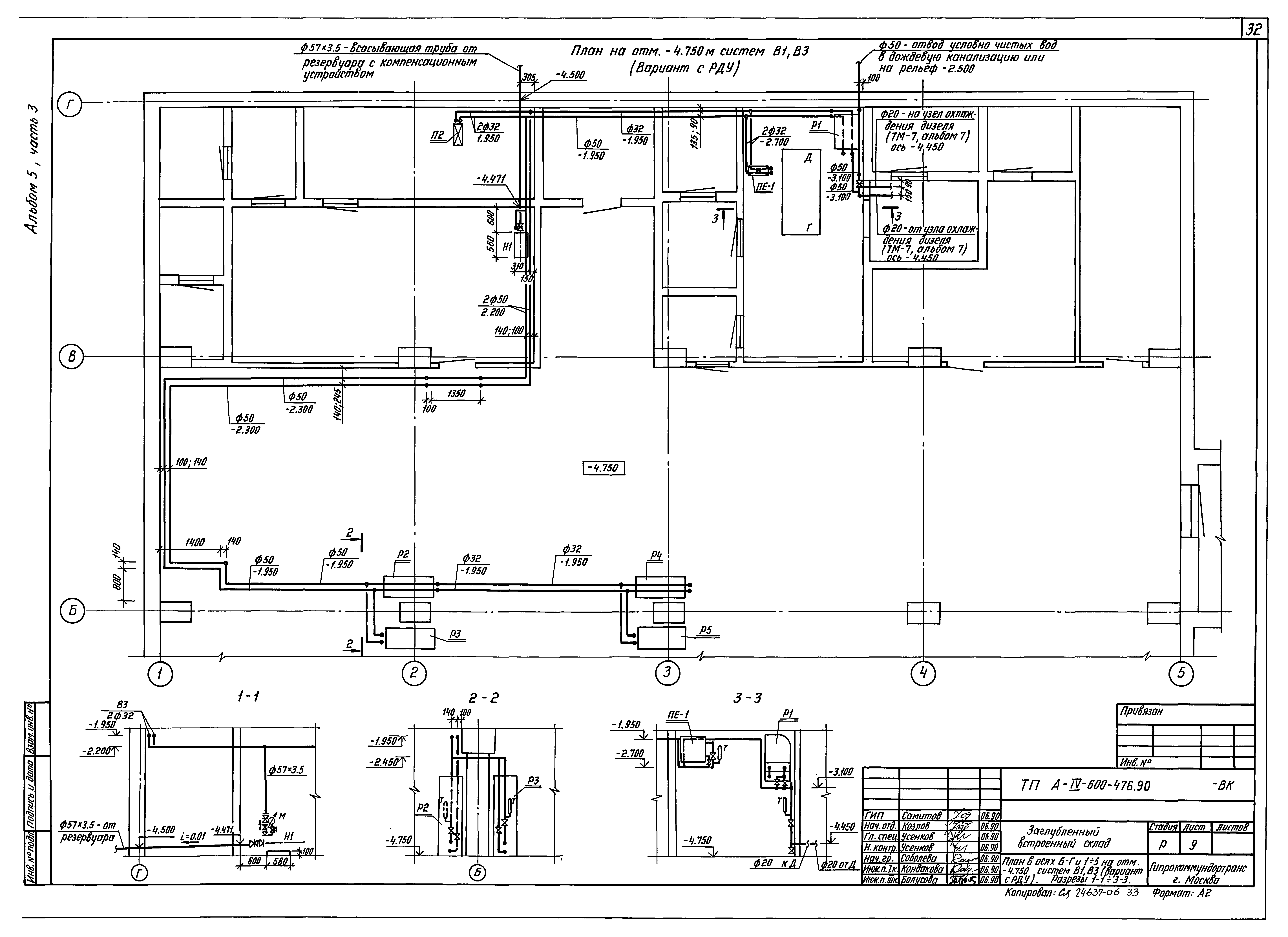
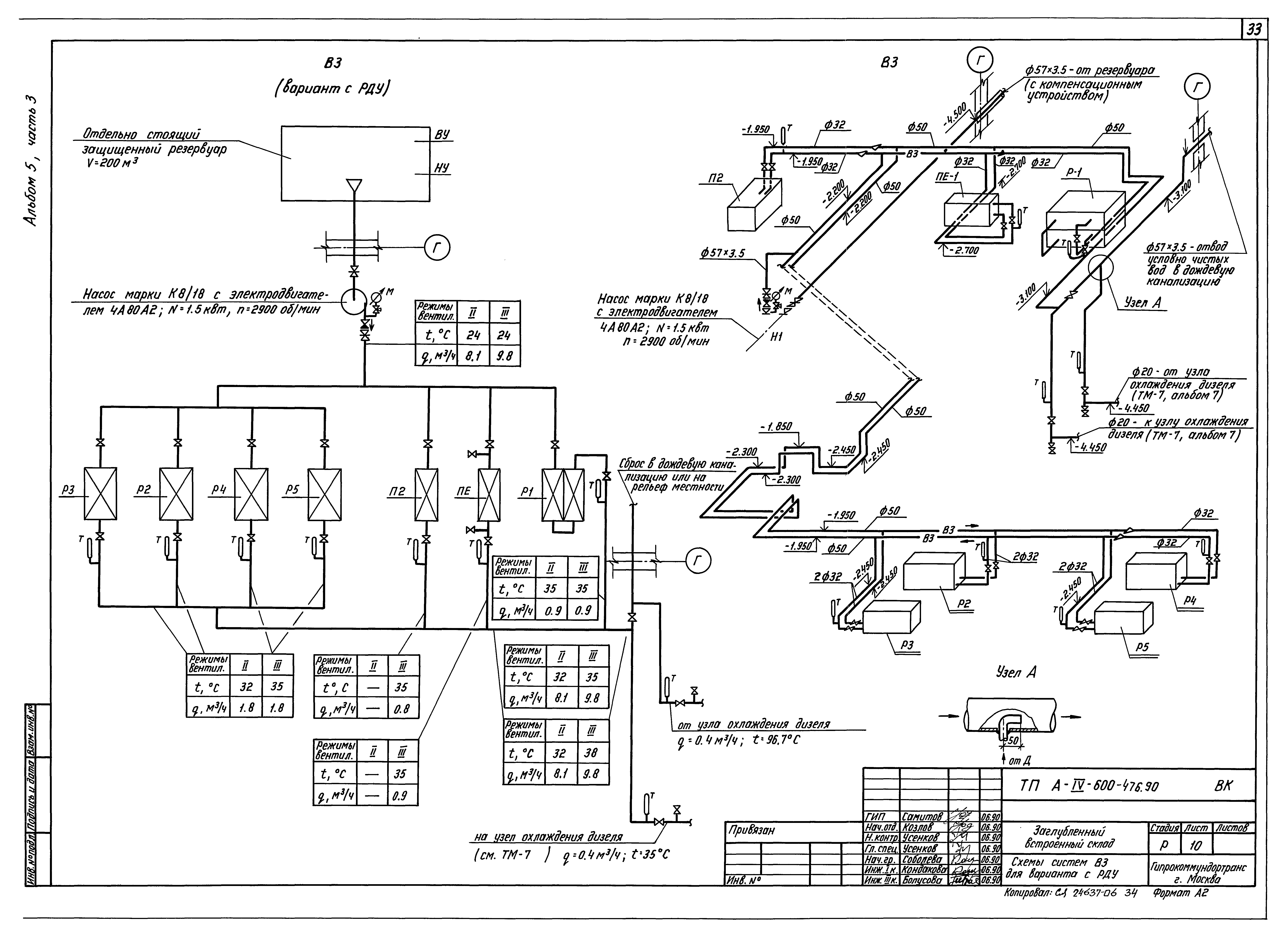
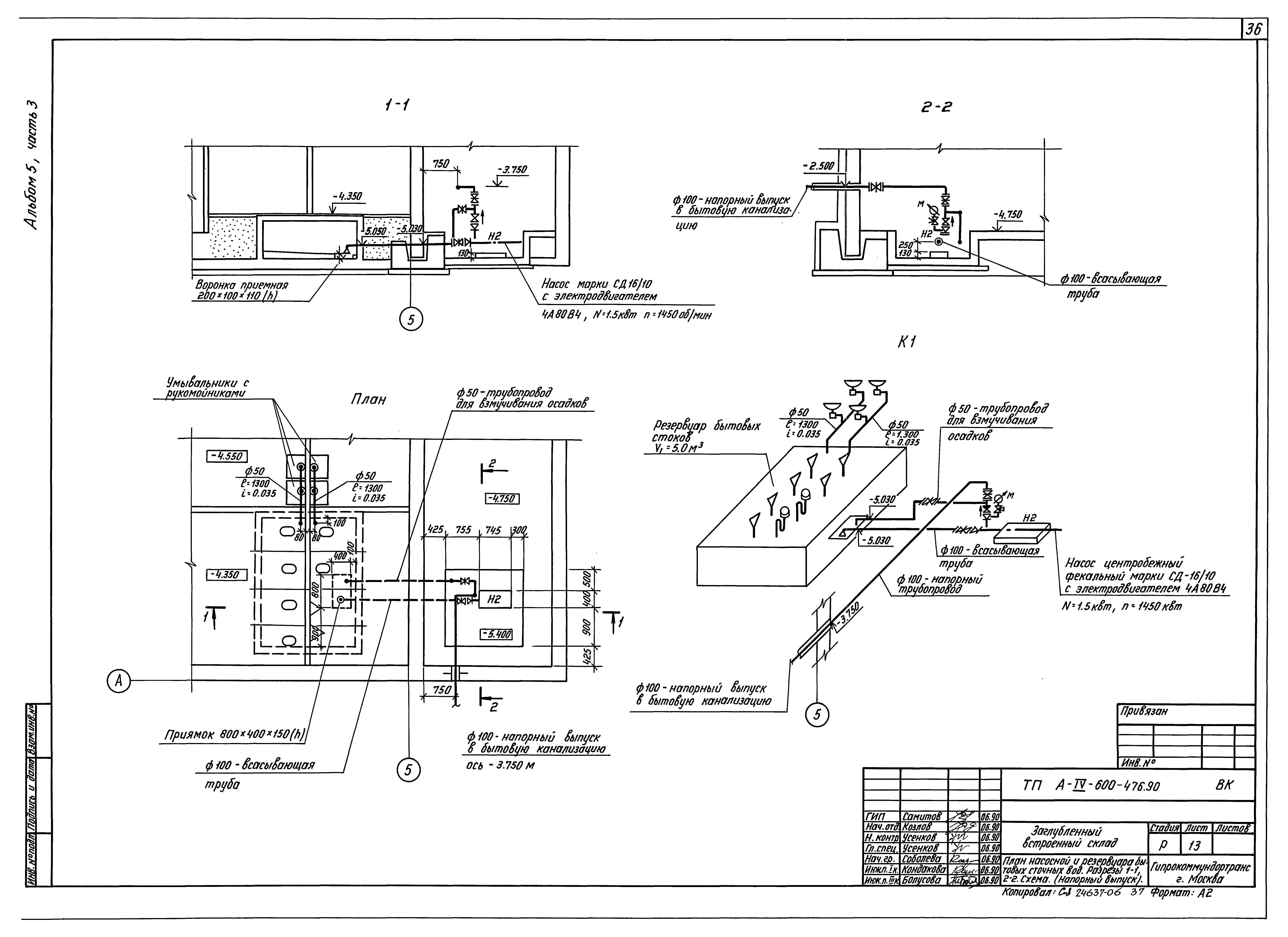
| Оглавление: | Содержание альбома Отопление и вентиляция Общие данные План и схема отопления. Узел управления (теплоноситель 95 - 70 градусов Цельсия) План и схема отопления. Узел управления (теплоноситель 150 - 70 градусов Цельсия) План вентиляции на отм. - 4.750. Разрезы 1-1, 2-2, 3-3 Схема приточных систем П1, П2, П3 Схемы вытяжных систем В1, В2, Р1 и системы ПЕ1 Установка систем П1, П2, П3. План, разрезы (вариант с У-300) Установка систем П1, П2, П3. План, разрезы (вариант с РП-100) Установка систем П1, П2, П3. План, разрезы (вариант с РДУ) Спецификация вентиляционных установок П1, П2, П3 Установка систем ПЕ1, В1, Р1. План, разрезы. Спецификация Установка системы В2. План, разрезы, спецификация Коробка размером 900х700х1000 мм Коробка размером 300х530х503 мм Коробка размером 200х530х503 мм Переход размером Ф200/530х503 мм Коробка размером 530х300х503 мм Переход размером 350х355/Ф630 мм Коробка размером 655х503х650 мм Коробка размером 600х900х1050 мм Стеллажи для комплектов В-64 Коробка размером 655х200х503 мм Питометражный лючок Патрубки с сеткой Расширитель для установки ДРПВ-2 Установки сдвоенных фильтров ФЯРБ Водопровод и канализация Общие данные Фрагмент плана на отм. - 4.750 м в осях 4 - 5 и А - Б системы хозяйственно-питьевого водопровода В1. Разрез 1-1. Схема системы В1 Спецификация системы В1 План в осях Б - Г и 1 - 5 на отм. - 4.750 м систем В1, В3 (вариант с У-300). Разрезы 1-1, 2-2 Схемы системы В3 для варианта с У-300 План в осях Б - Г и 1 - 5 на отм. - 4.750 м систем В1, В3 (вариант с РП-100). Разрезы 1-1- 3-3 Схемы системы В3 для варианта с РП-100 План в осях Б - Г и 1 - 5 на отм. - 4.750 м систем В1, В3 (вариант с РДУ). Разрезы 1-1- 3-3 Схемы системы В3 для варианта с РДУ Спецификация системы В3 План насосной и резервуара бытовых сточных вод. Разрезы 1-1, 2-2. Схема (напорный выпуск) План насосной и резервуара бытовых сточных вод. Разрезы 1-1, 2-2. Схема (самотечный выпуск). Водоотведение из входов Спецификация системы К1 Емкости запаса питьевой воды. Общий вид. Разрезы Стульчак. План. Общий вид Стульчак. Разрез 1-1 |
| Разработан: | Гипрокоммундортранс |
| Утверждён: | 17.08.1990 НГО СССР (62) |








































