Скачать Типовой проект А-IV-600-476.90 Альбом 6. Электросиловое оборудование. Электроосвещение. Связь. АвтоматизацияДата актуализации: 01.01.2021
|
| Обозначение: | Типовой проект А-IV-600-476.90 |
| Обозначение англ: | А-IV-600-476.90 |
| Статус: | не определен законодательством |
| Название рус.: | Альбом 6. Электросиловое оборудование. Электроосвещение. Связь. Автоматизация |
| Дата добавления в базу: | 01.10.2014 |
| Дата актуализации: | 01.01.2021 |
| Дата введения: | 24.08.1990 |
| Дата окончания срока действия: | 30.06.2003 |
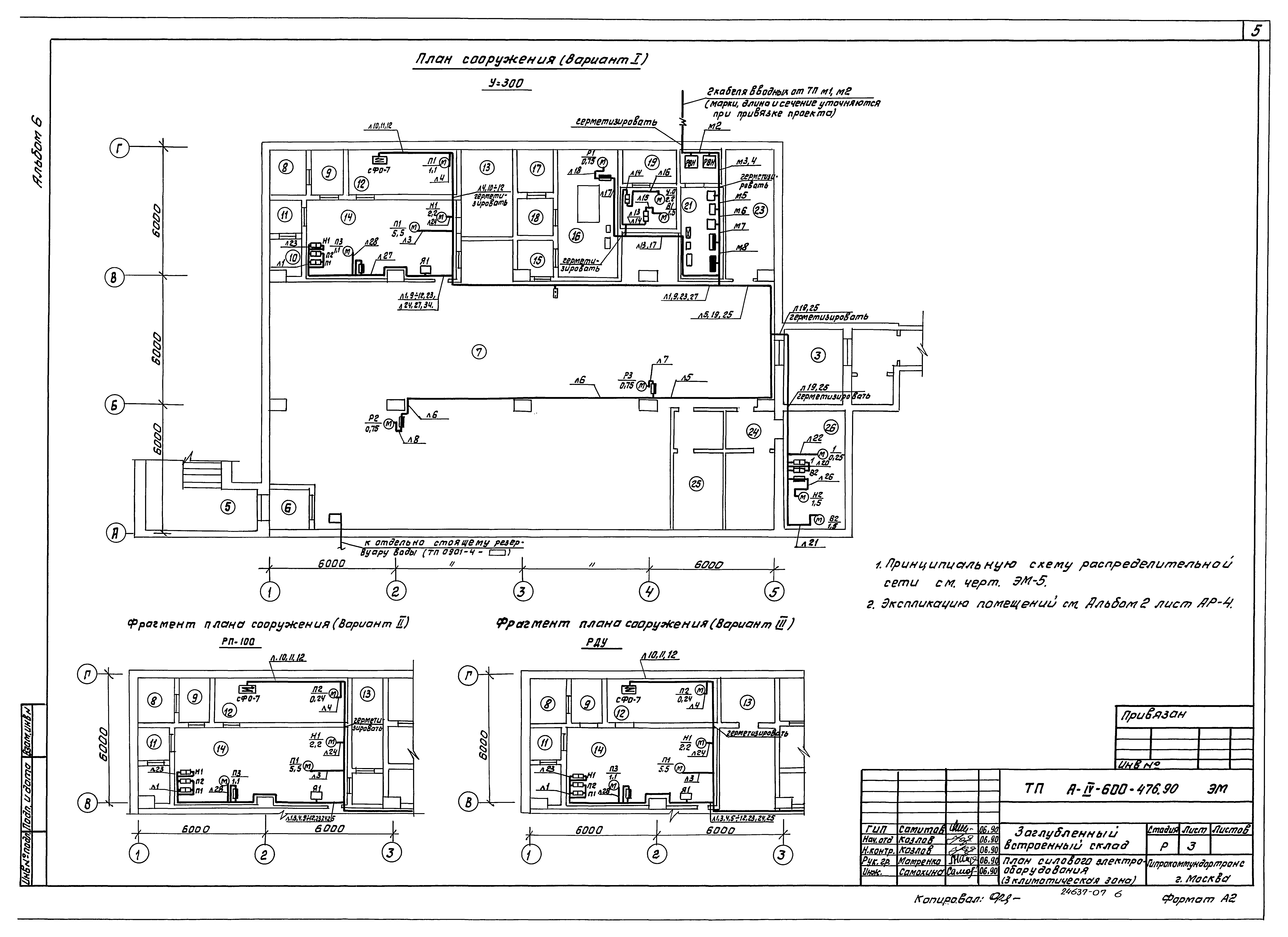
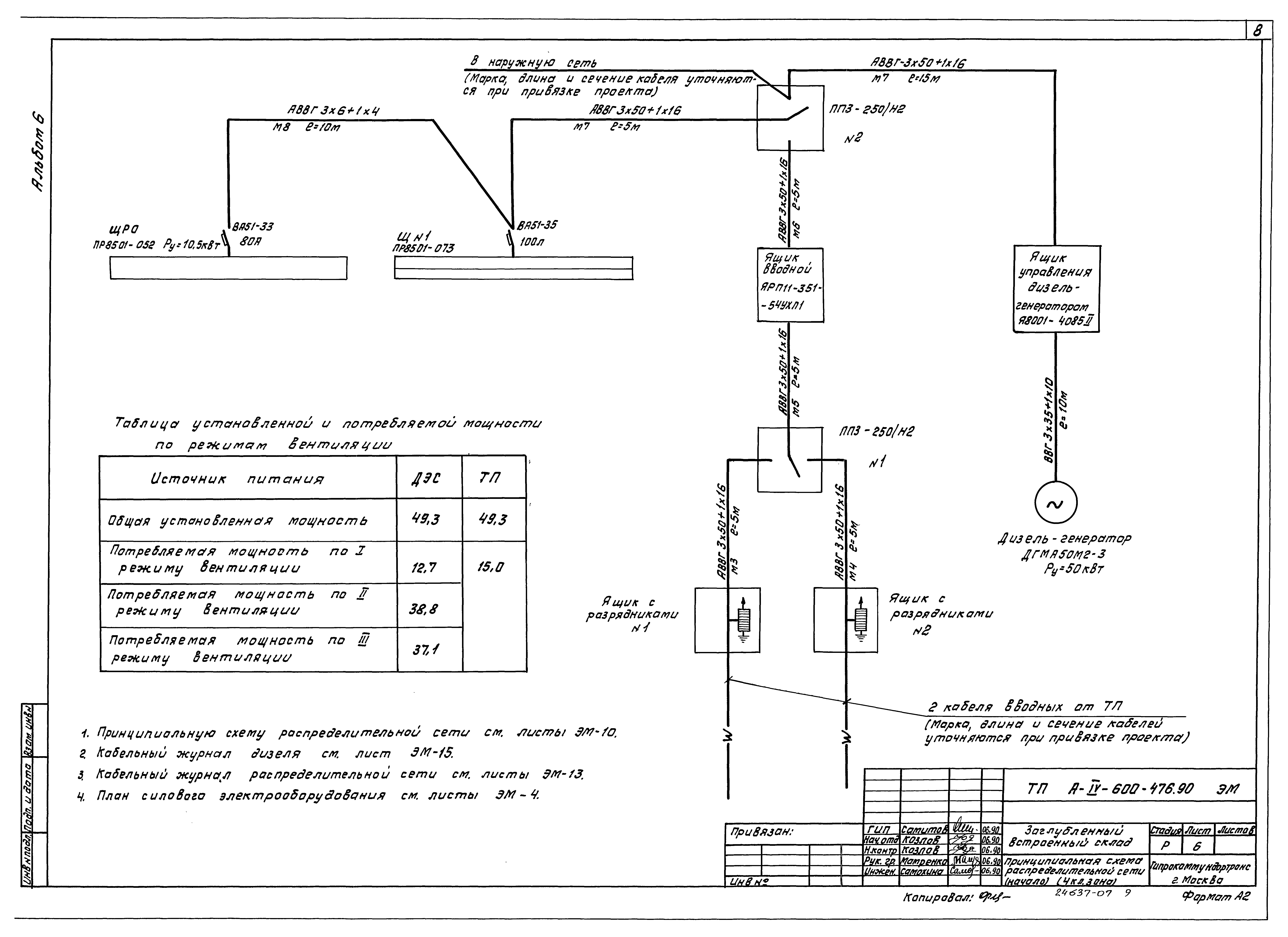
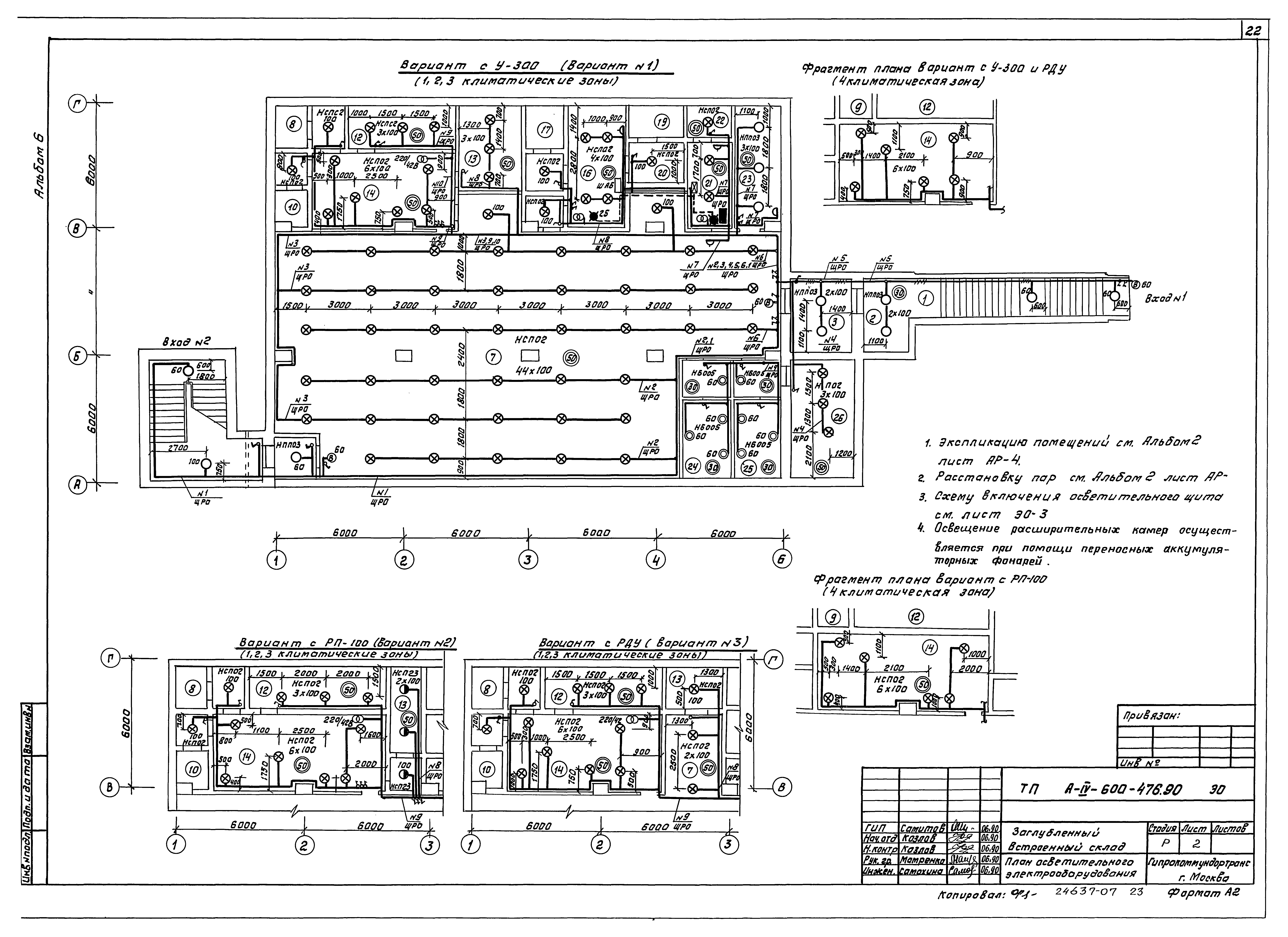
| Оглавление: | Содержание альбома Силовое электрооборудование Общие данные План силового электрооборудования (1, 2 климатические зоны) План силового электрооборудования (3 климатическая зона) План силового электрооборудования (4 климатическая зона) Принципиальная схема распределительной сети (1, 2, 3 климатические зоны) Принципиальная схема распределительной сети (4 климатическая зона) Кабельный журнал (1, 2 климатические зоны) Кабельный журнал (3 климатическая зона) Кабельный журнал (4 климатическая зона) План кабельных линий ДЭС. Кабельный журнал ДЭС (1, 2, 3 климатические зоны) План кабельных линий ДЭС. Кабельный журнал ДЭС (4 климатическая зона) Принципиальная электрическая схема включения вентилятора В1 с двух мест План заземления электрооборудования Шкаф с 3-мя разрядниками Осветительное электрооборудование Общие данные План осветительного электрооборудования Схема включения осветительного щита Эскиз общего вида шкафа аварийного освещения ШАО Чертежи основного комплекта марки СС Общие данные План телефонизации и радиофикации Чертежи основного комплекта марки А Общие данные Система В2. Схема электрическая принципиальная Система В2. Схема внешних проводок Электрокалорифер. Схема внешних проводок План расположения |
| Разработан: | Гипрокоммундортранс |
| Утверждён: | 17.08.1990 НГО СССР (62) |
































