Скачать Типовой проект Г.2-IV-3.90 Альбом 5. Электросиловое оборудование. ЭлектроосвещениеДата актуализации: 01.01.2021
|
| Обозначение: | Типовой проект Г.2-IV-3.90 |
| Обозначение англ: | Г.2-IV-3.90 |
| Статус: | не определен законодательством |
| Название рус.: | Альбом 5. Электросиловое оборудование. Электроосвещение |
| Дата добавления в базу: | 01.10.2014 |
| Дата актуализации: | 01.01.2021 |
| Дата введения: | 23.04.1990 |
| Дата окончания срока действия: | 30.06.2003 |
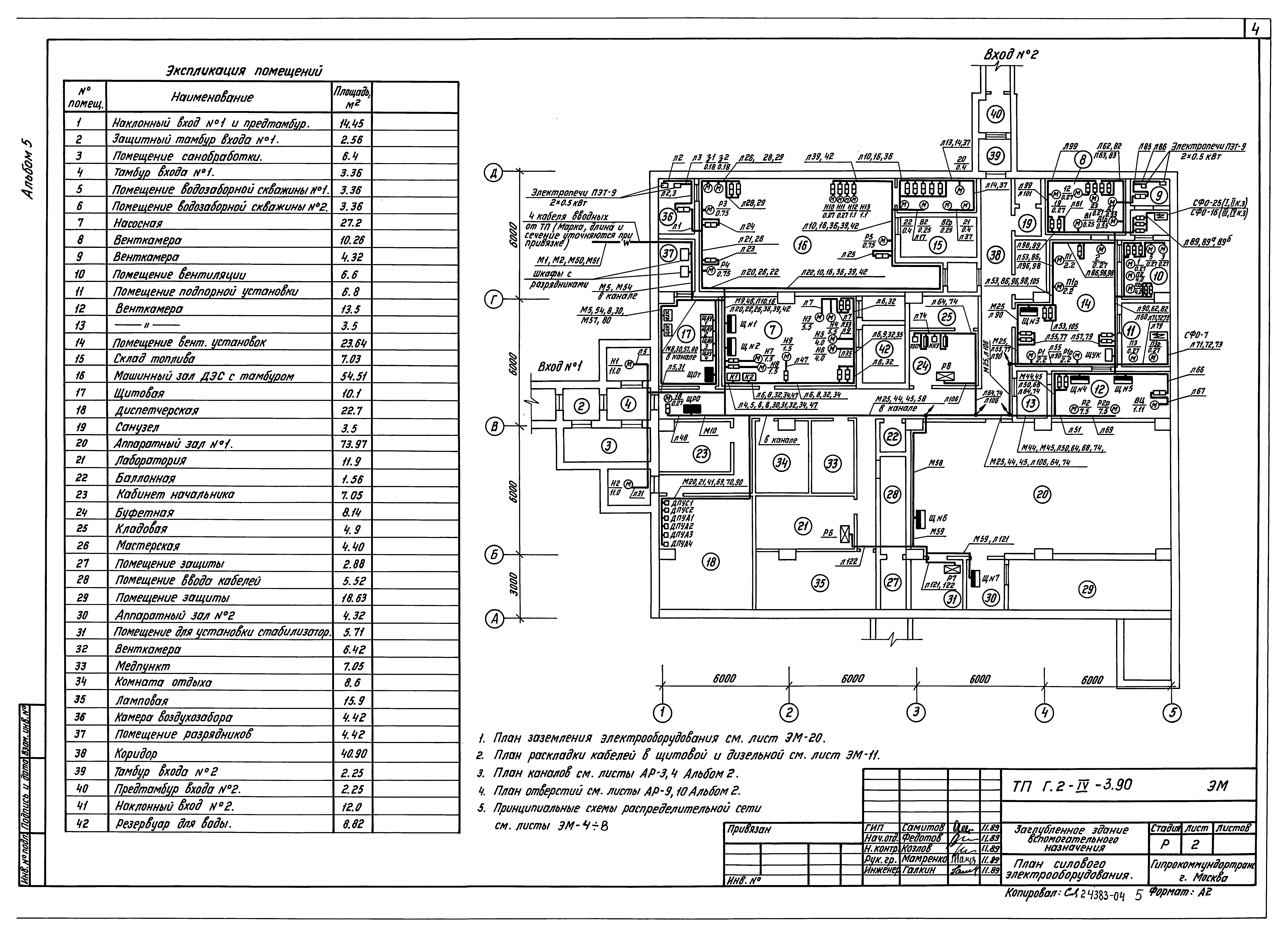
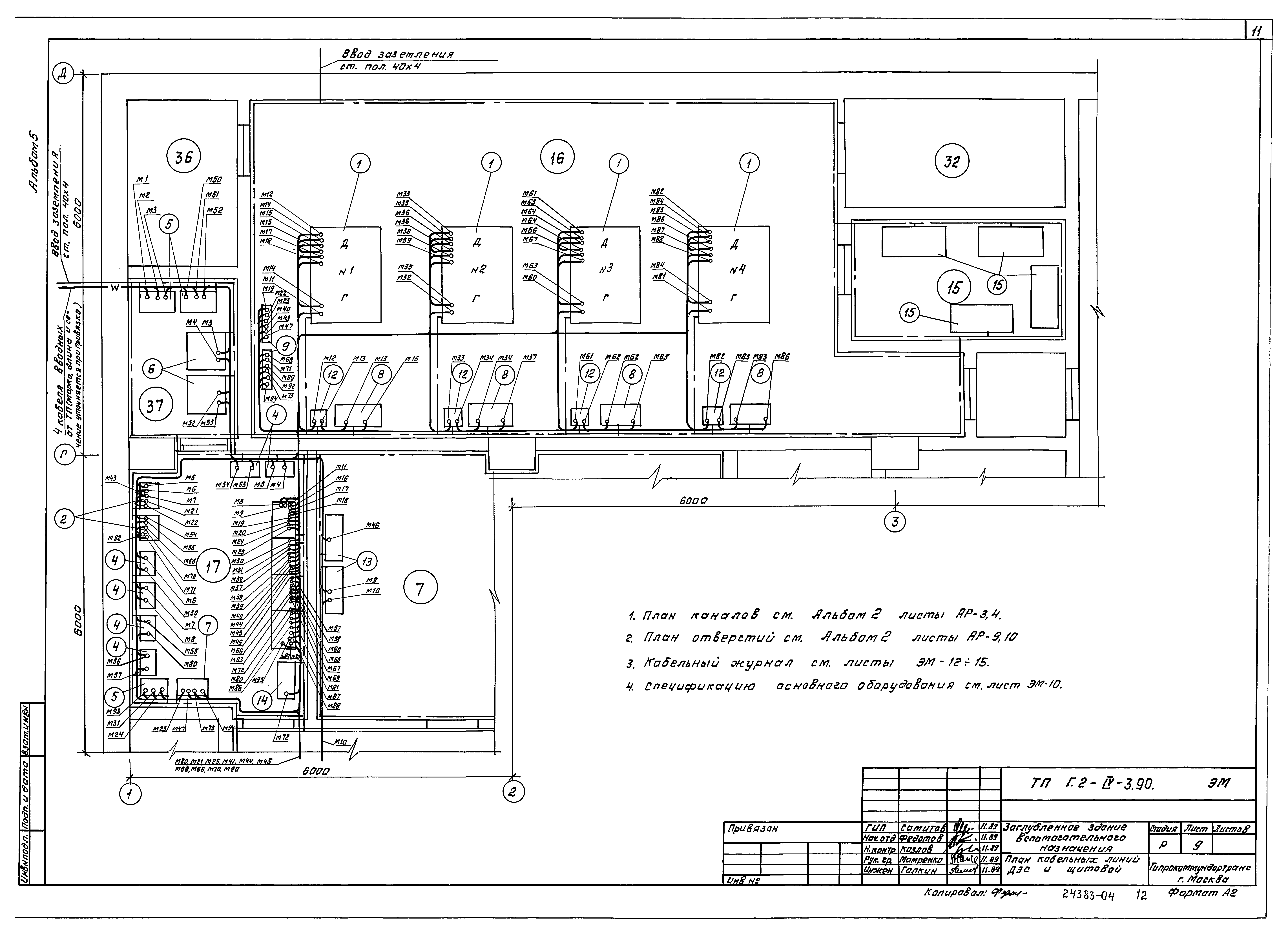
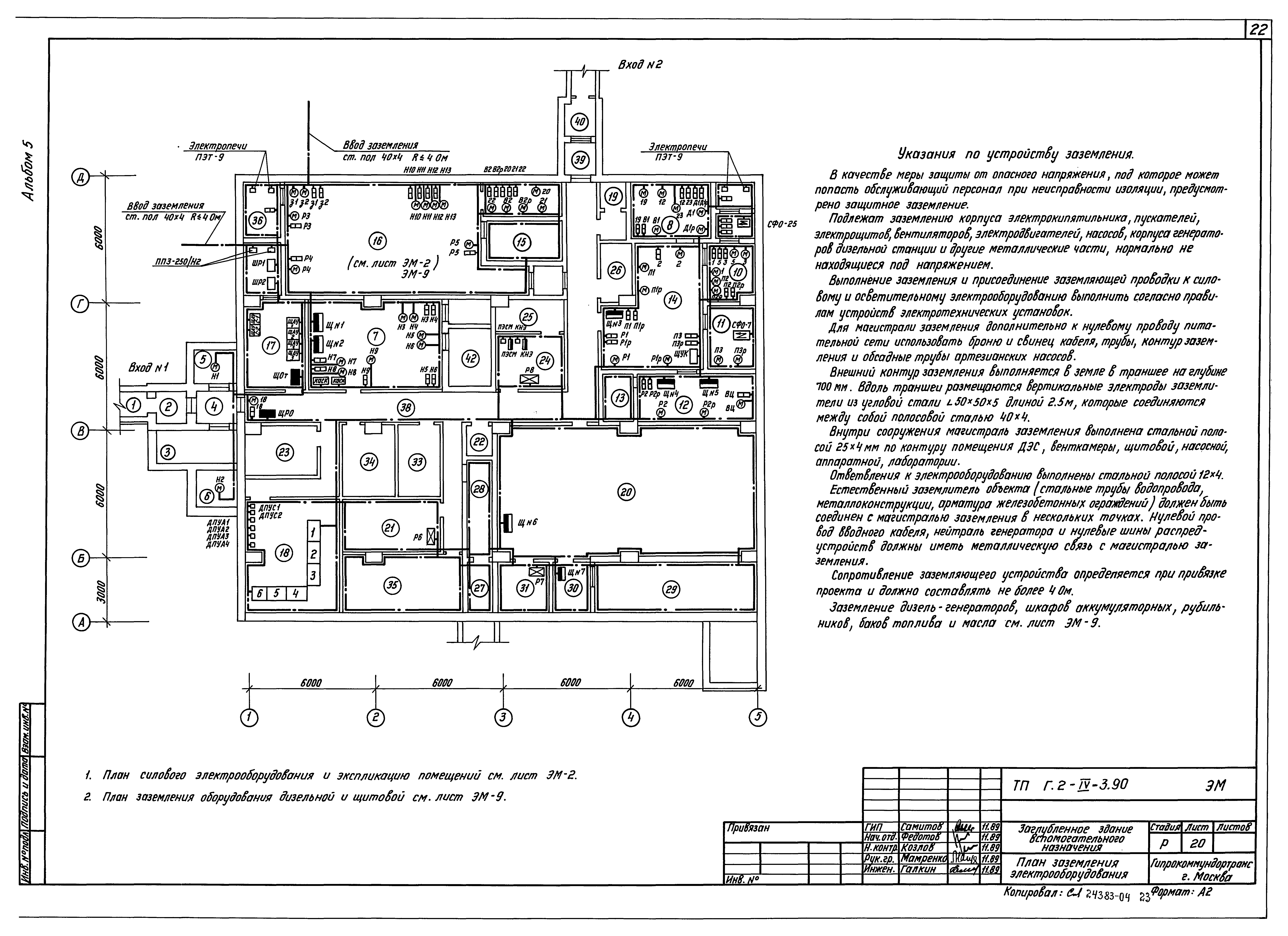
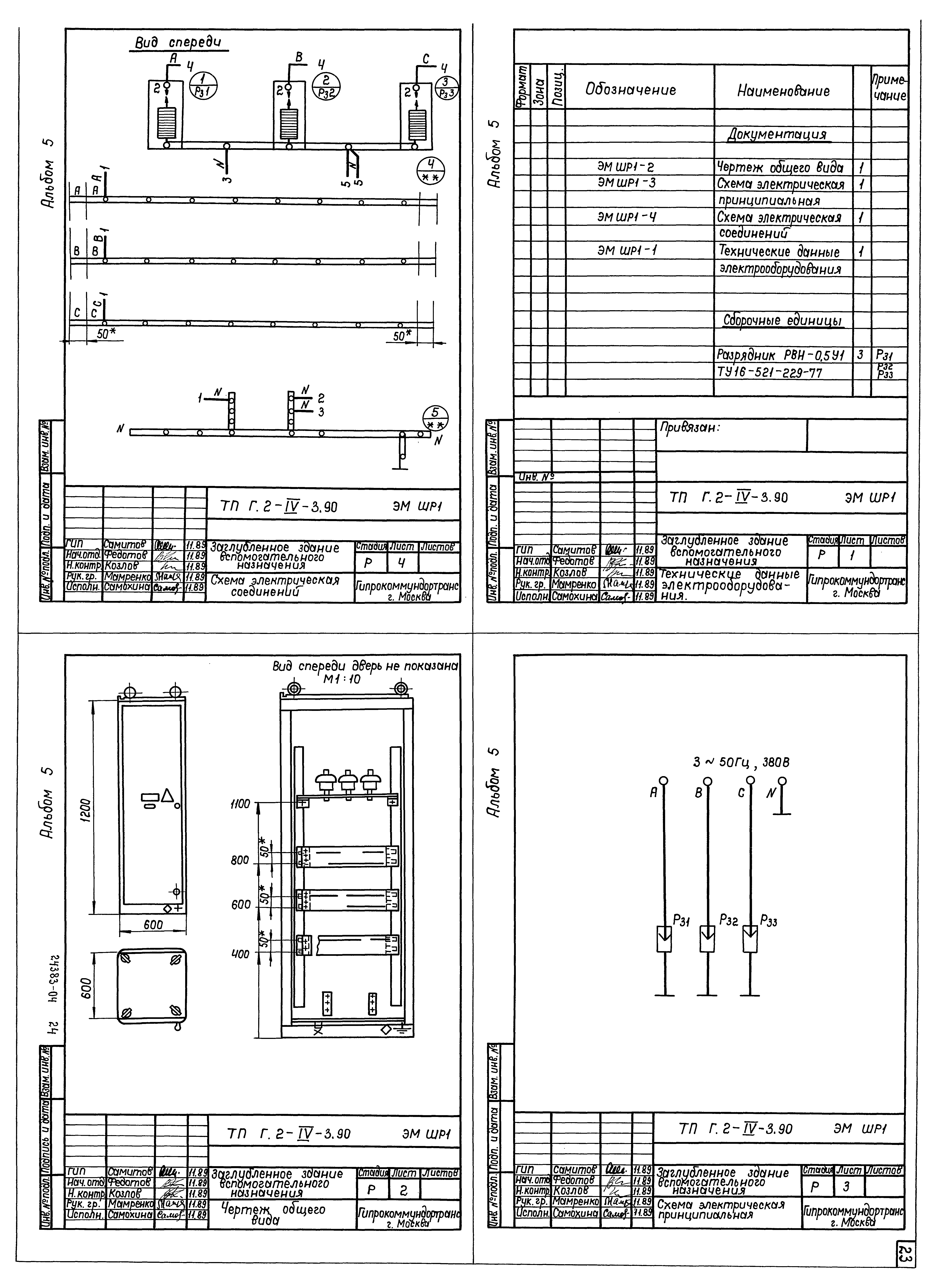
| Оглавление: | Содержание альбома Силовое электрооборудование Общие данные План силового электрооборудования Принципиальная однолинейная схема питающей сети Принципиальная схема распределительной сети План кабельных линий ДЭС и щитовой Перечень кабелей дизелей. Спецификация основного оборудования Схема внешних соединений электроагрегатов АСДА Кабельный журнал План заземления электрооборудования Шкаф на 3 разрядника Осветительное электрооборудование Общие данные План осветительного электрооборудования План осветительного электрооборудования. Вход №1 и №2 План отопления Схема включения осветительных щитков Принципиальная однолинейная схема питающей сети Эскиз общего вида шкафа аварийного освещения ШАО |
| Разработан: | Гипрокоммундортранс |
| Утверждён: | 18.04.1990 Штаб гражданской обороны СССР (USSR Civil Defense Headquarters 56) |































