Скачать Типовой проект 409-29-61 Альбом II. Выпуск 2. Архитектурно-строительная и санитарно-техническая части. Стационарный вариант (в сборном железобетоне)Дата актуализации: 01.01.2021
|
| Обозначение: | Типовой проект 409-29-61 |
| Обозначение англ: | 409-29-61 |
| Статус: | действует |
| Название рус.: | Альбом II. Выпуск 2. Архитектурно-строительная и санитарно-техническая части. Стационарный вариант (в сборном железобетоне) |
| Дата добавления в базу: | 01.10.2014 |
| Дата актуализации: | 01.01.2021 |
| Дата введения: | 30.11.1979 |
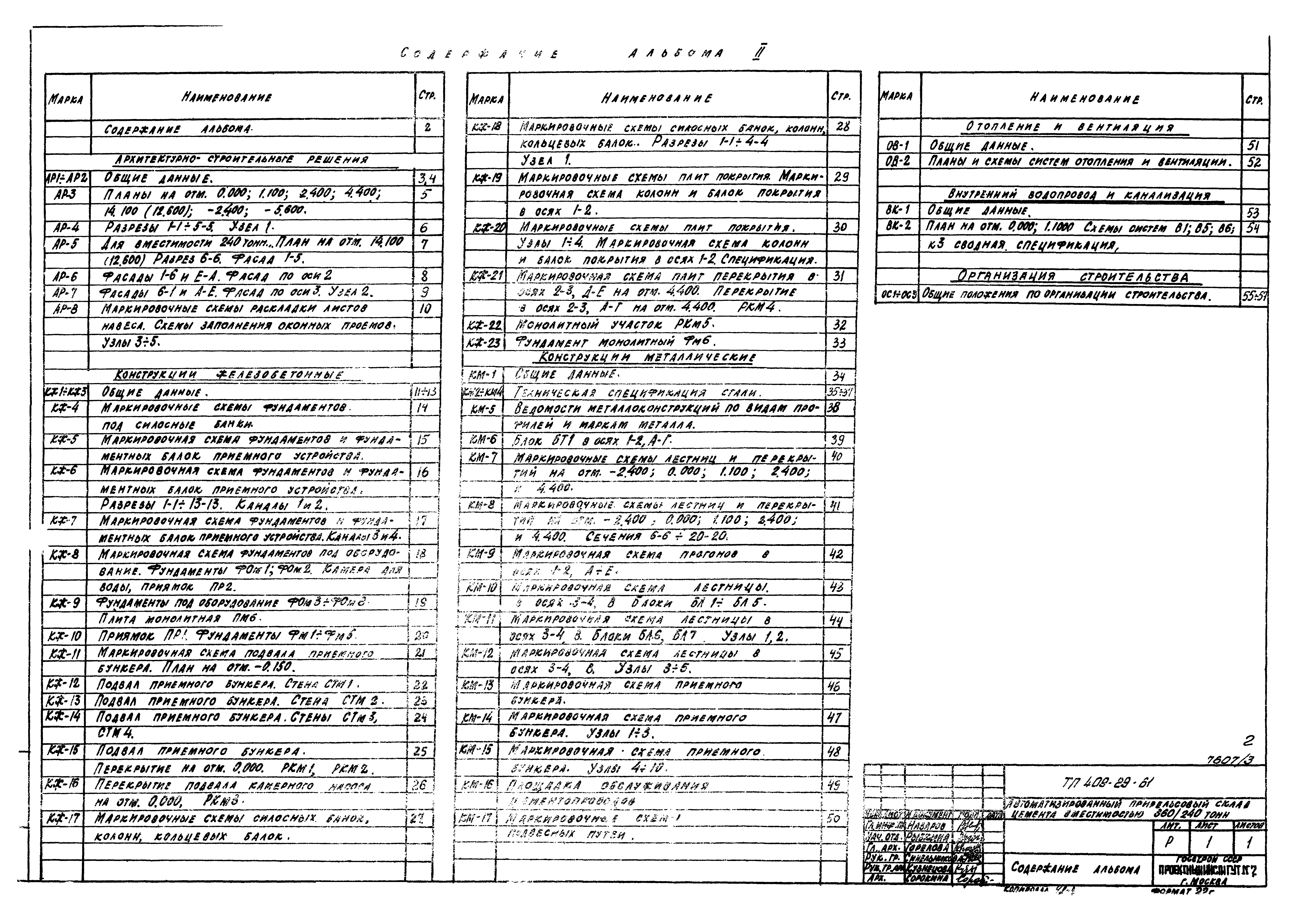
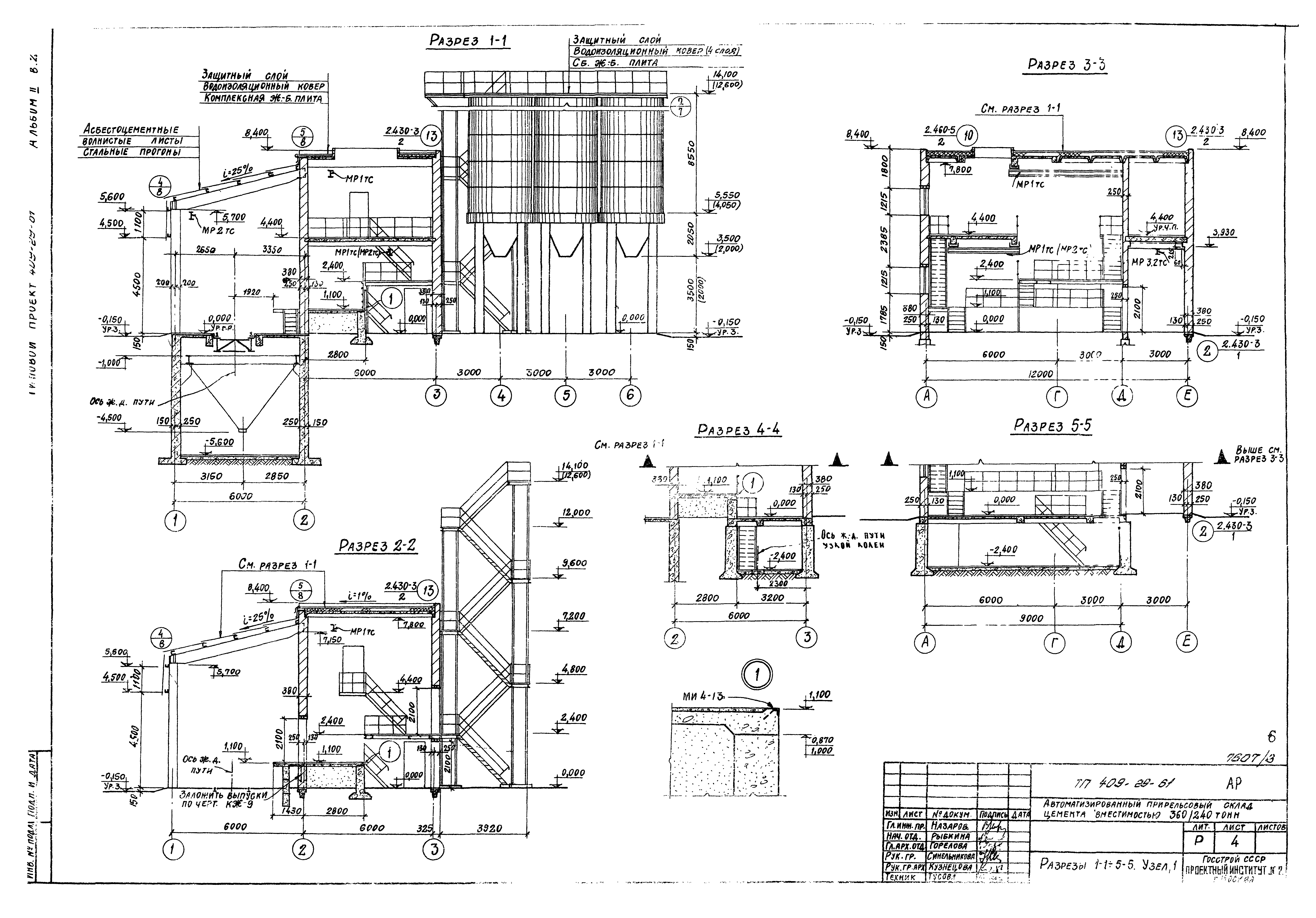
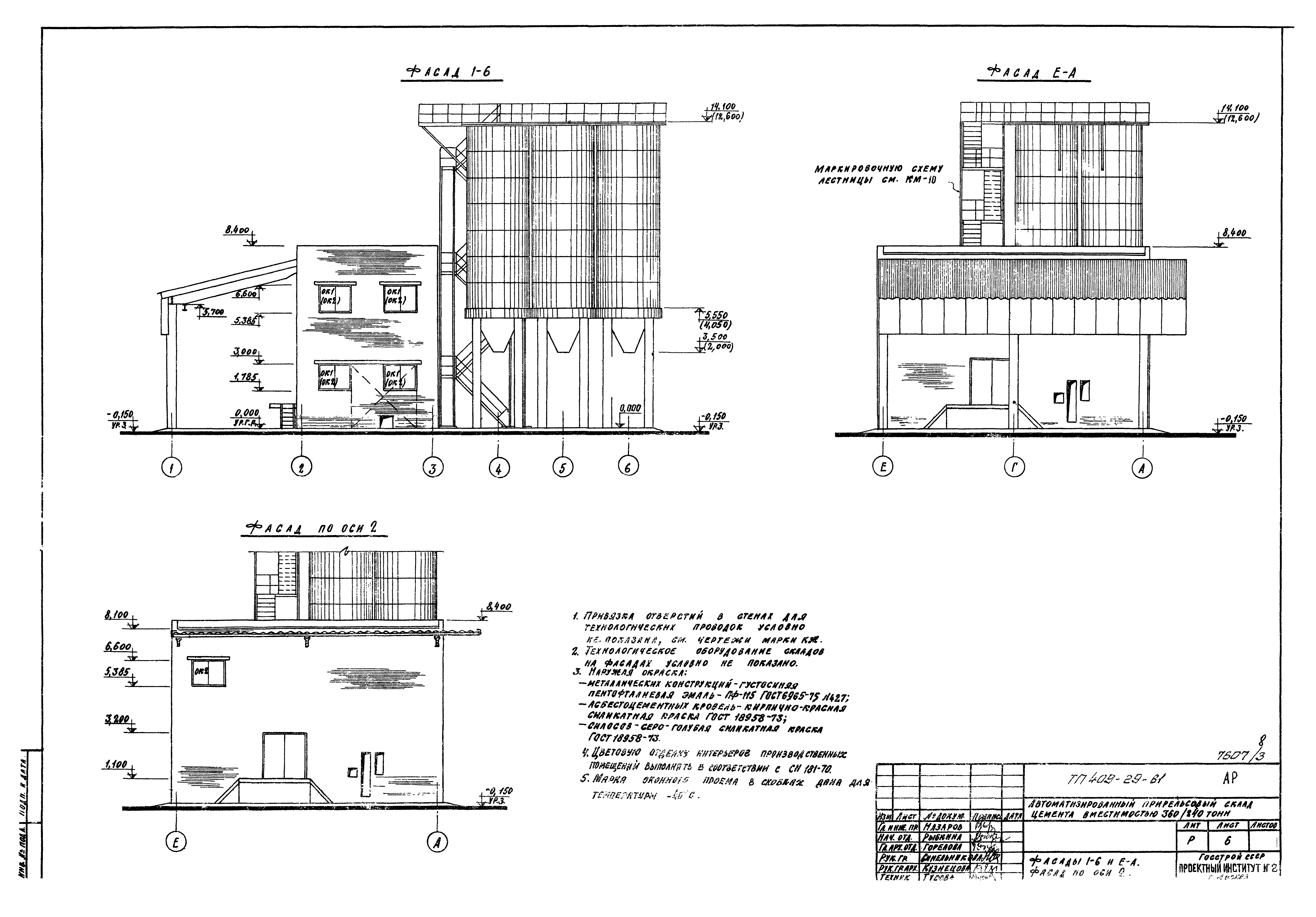
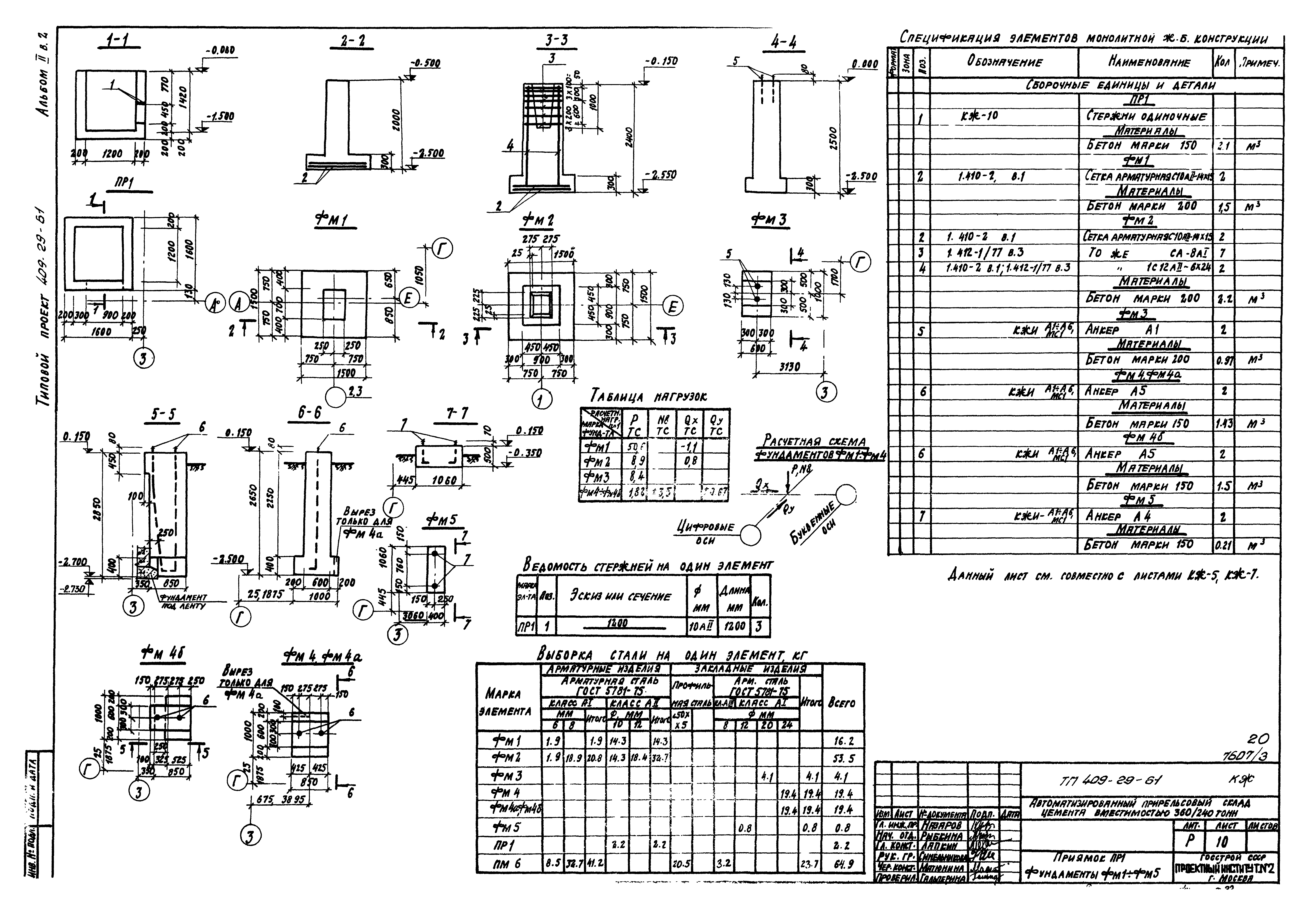
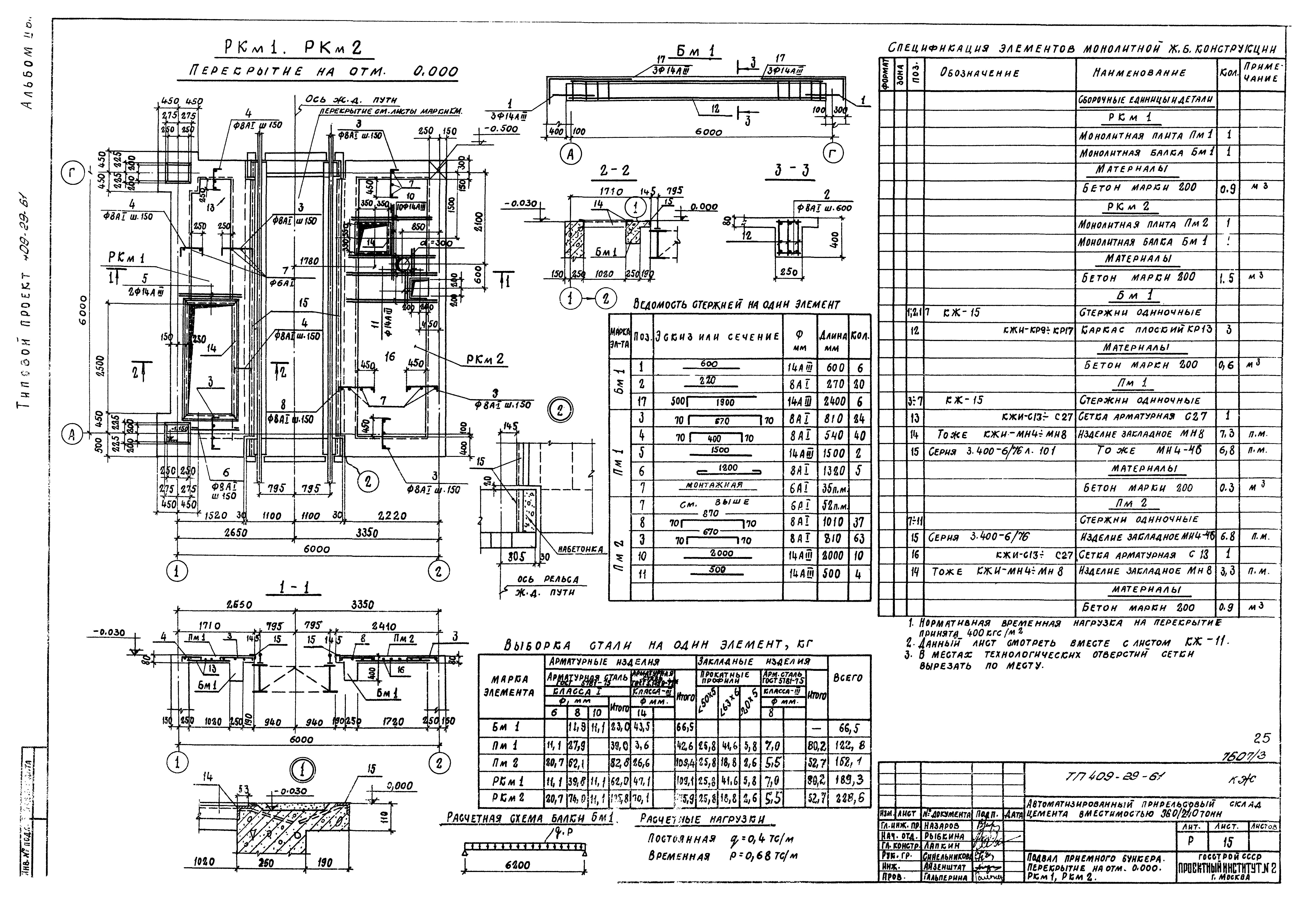
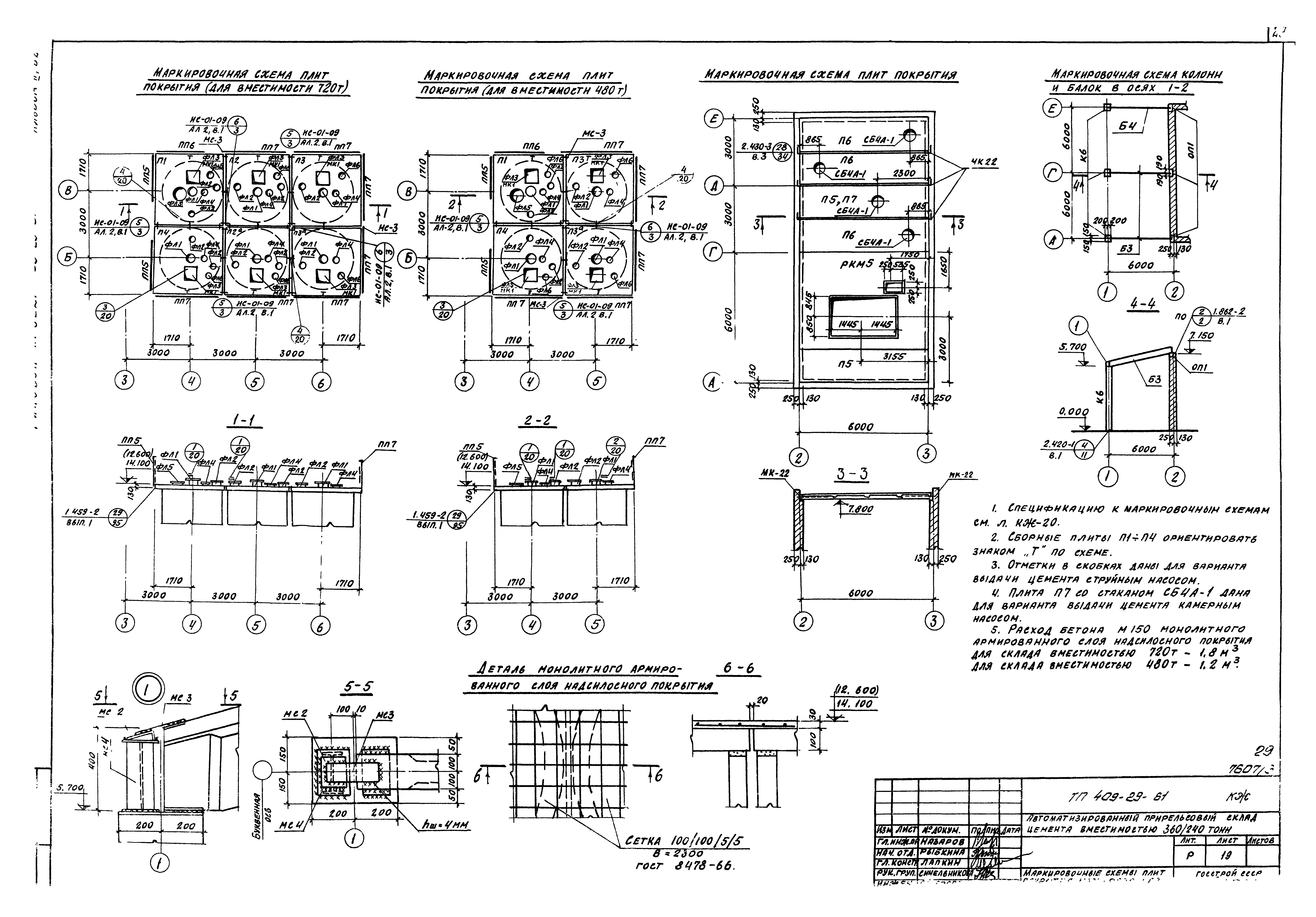
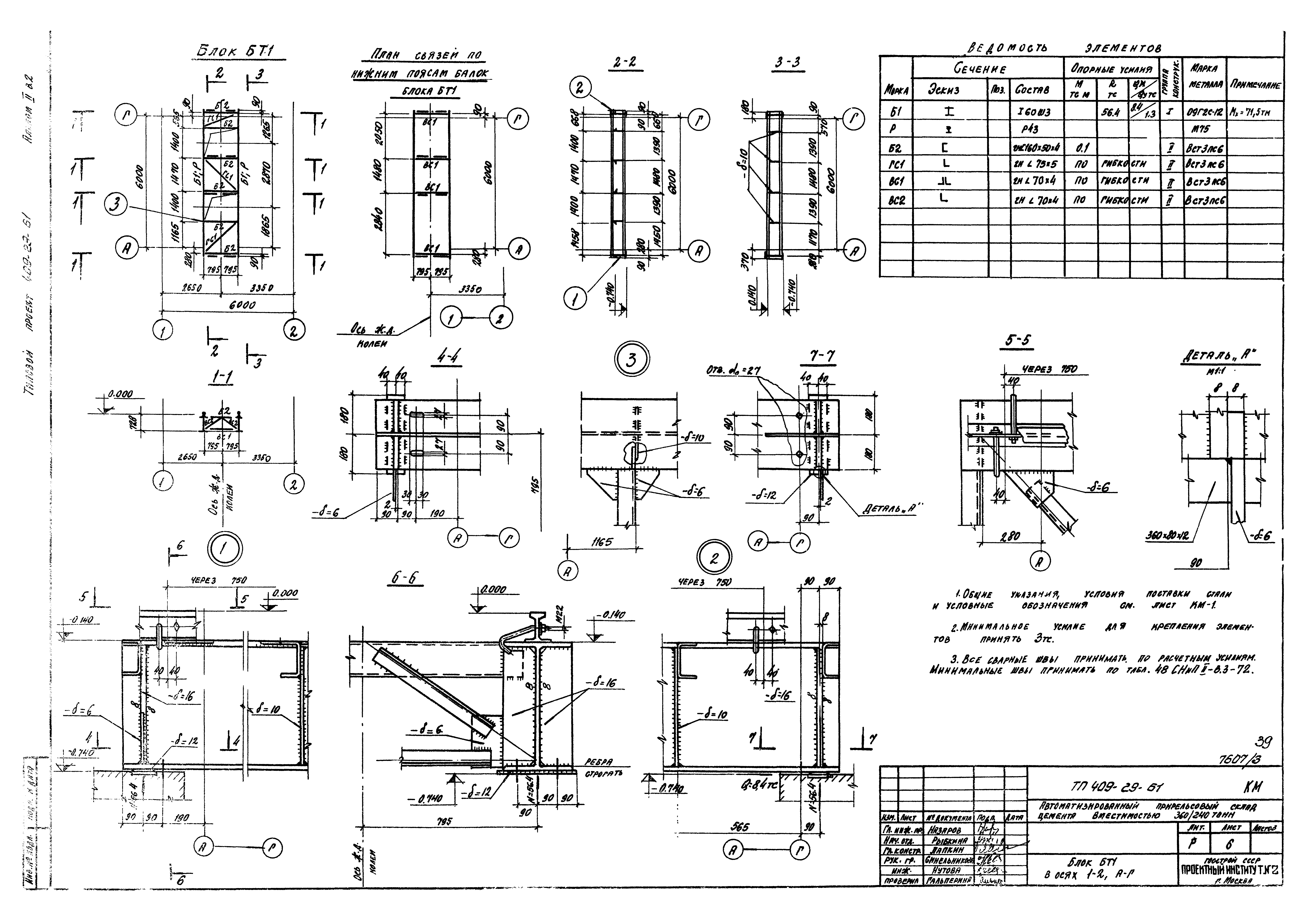
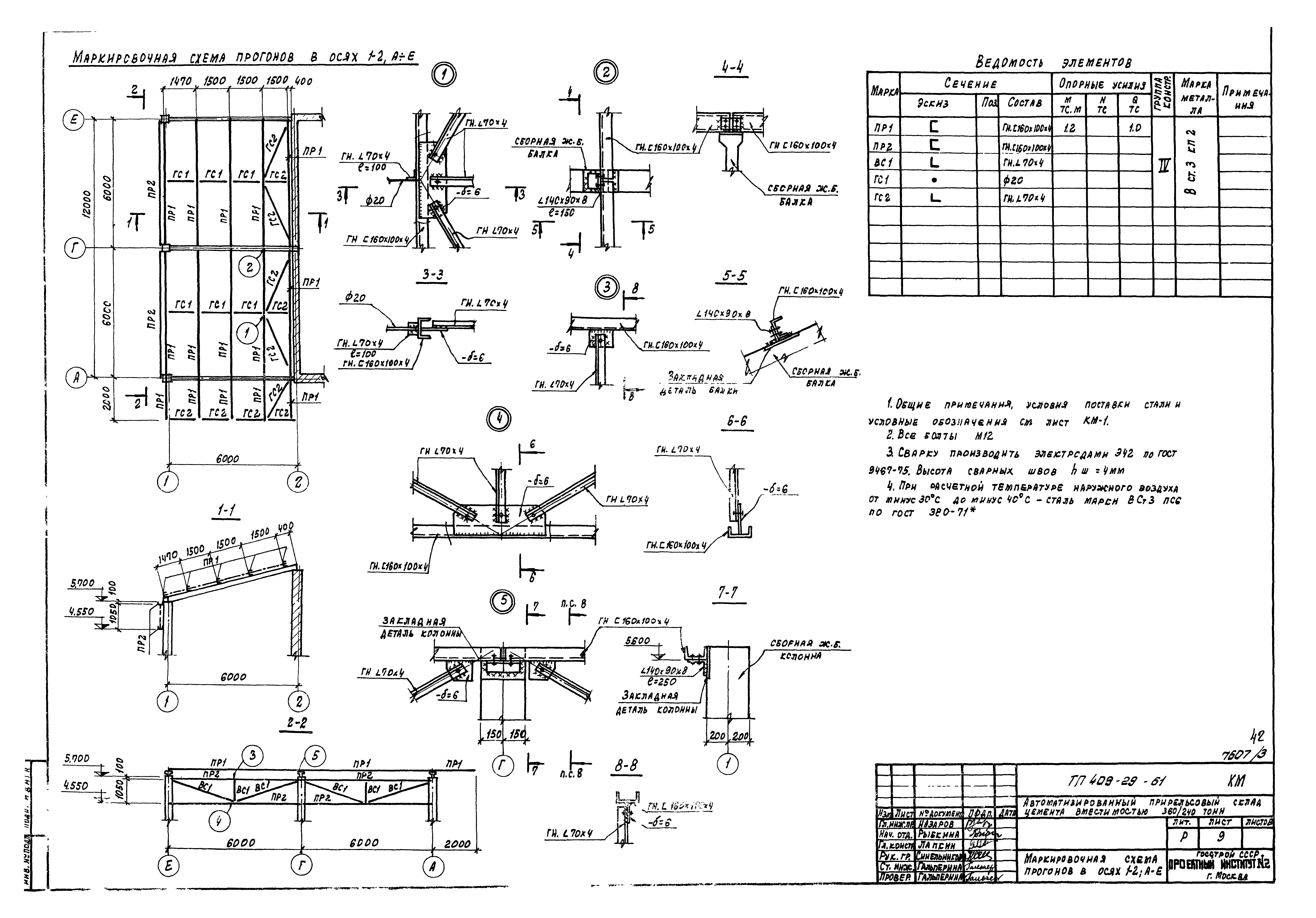
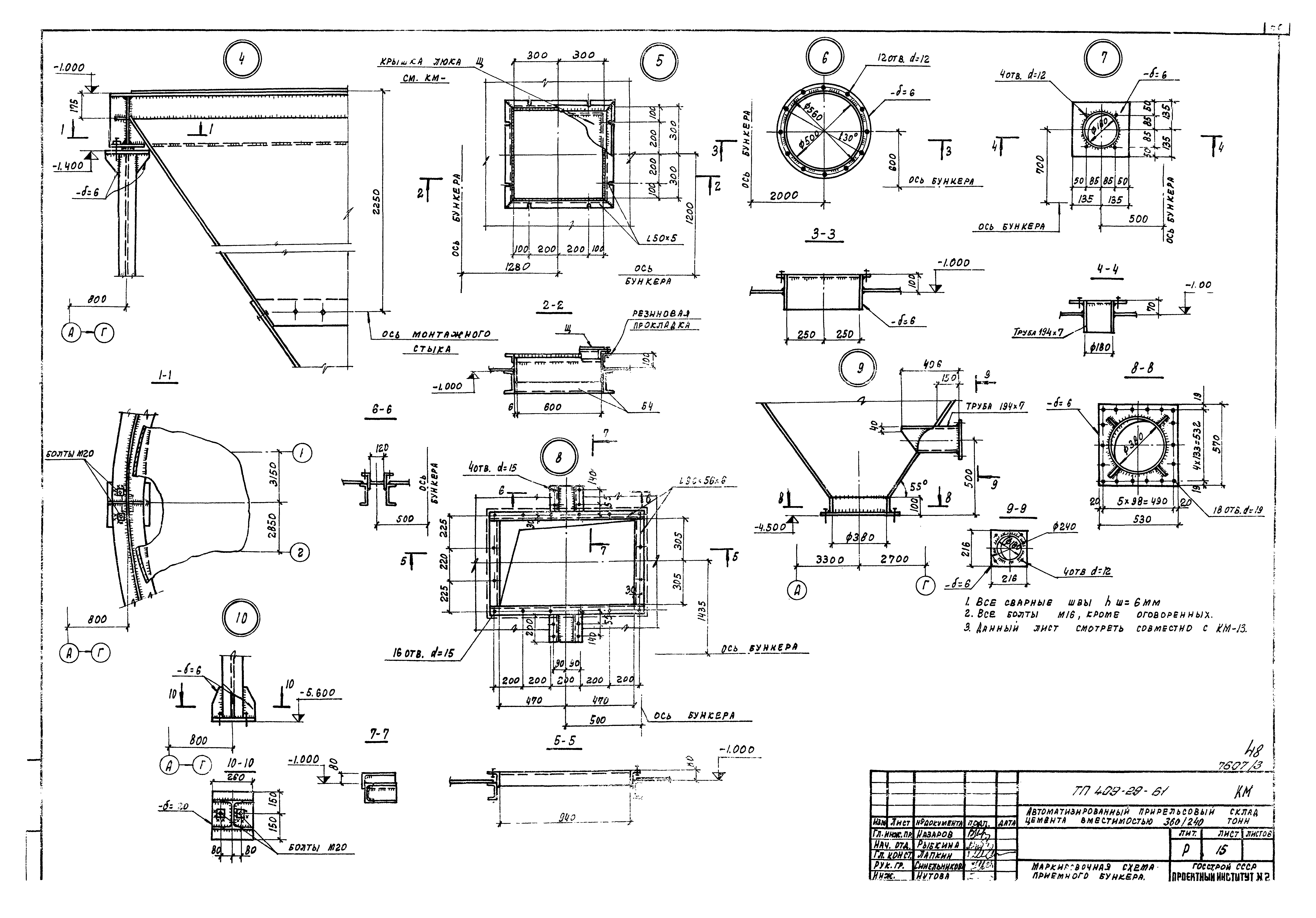
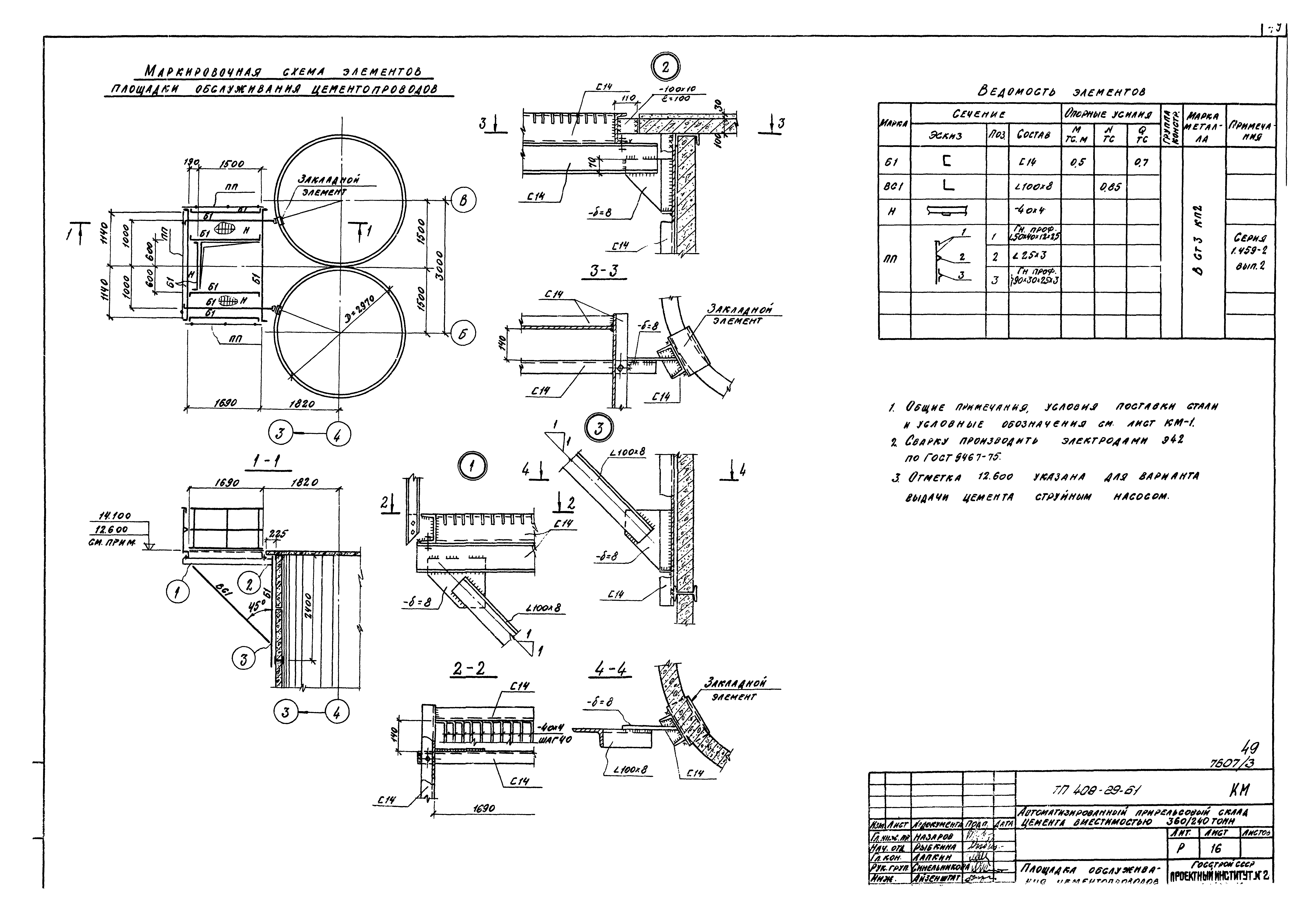
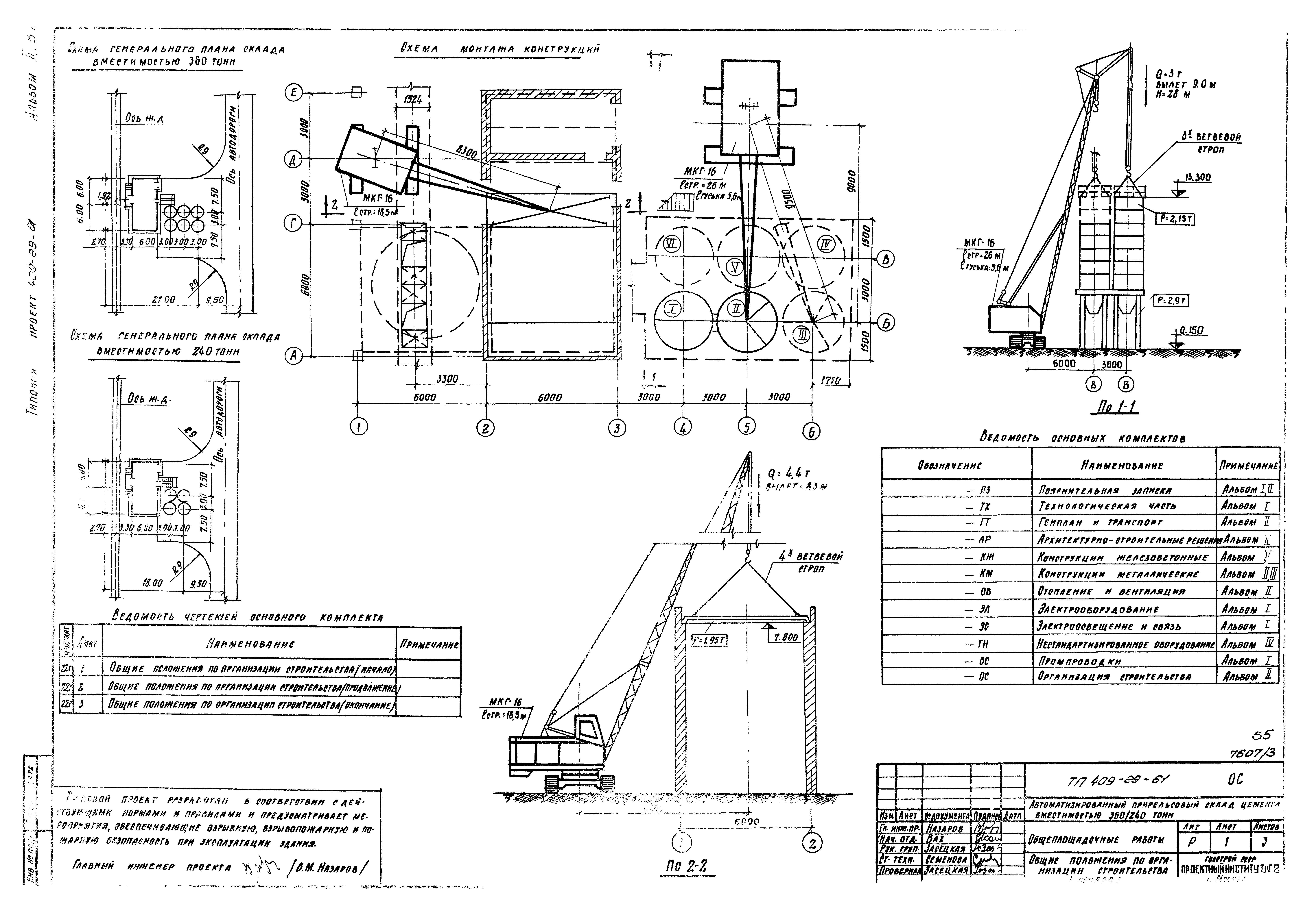
| Оглавление: | Содержание альбома Архитектурно-строительные решения Общие данные Планы на отм. 0.000; 1.100; 2.400; 4.400; 14.400 (12.600); - 2.400; - 5.600 Разрезы 1-1 - 5-5. Узел 1 Для вместимости 240 тонн. План на отм. 14.100 (12.600). Разрез 6-6. Фасад 1 - 5 Фасады 1 - 6 и Е - А. Фасад по оси 2 Фасады 6 - 1 и А - Е. Фасад по оси 3. Узел 2 Маркировочные схемы раскладки листов навеса. Схемы заполнения оконных проемов. Узлы 3 - 5 Конструкции железобетонные Общие данные Маркировочные схемы фундаментов под силосные банки Маркировочная схема фундаментов и фундаментных балок приемного устройства Маркировочная схема фундаментов и фундаментных балок приемного устройства. Разрезы 1-1 - 13-13. Каналы 1 и 2 Маркировочная схема фундаментов и фундаментных балок приемного устройства. Каналы 3 и 4 Маркировочная схема фундаментов под оборудование. Фундаменты ФОм1, ФОм2. Камера для воды, приямок ПР2 Фундаменты под оборудование ФОм3 - ФОм8. Плита монолитная ПМ6 Приямок ПР1. Фундаменты ФМ1 - ФМ5 Маркировочная схема подвала приемного бункера. План на отм. - 0.150 Подвал приемного бункера. Стена СТм1 Подвал приемного бункера. Стена СТм2 Подвал приемного бункера. Стены СТм3, СТм4 Подвал приемного бункера. Перекрытие на отм. 0.000. РКМ1, РКМ2 Перекрытие подвала камерного насоса на отм. 0.000. РКМ3 Маркировочные схемы силосных банок, колонн, кольцевых балок Маркировочные схемы силосных банок, колонн, кольцевых балок. Разрезы 1-1 - 4-4. Узел 1 Маркировочные схемы плит покрытия. Маркировочная схема колонн и балок покрытия в осях 1 - 2 Маркировочные схемы плит покрытия. Узлы 1 - 4. Маркировочная схема колонн и балок покрытия в осях 1 - 2. Спецификация Маркировочная схема плит перекрытия в осях 2 - 3; Д - Е на отм. 4.400. перекрытие в осях 2 - 3; А - Г на отм. 4.400. РКМ4 Монолитный участок РКМ5 Фундамент монолитный Фм6 Конструкции металлические Общие данные Техническая спецификация стали Ведомости металлоконструкций по видам профилей и маркам металла Блок БТ1 в осях 1 - 2; А - Г Маркировочные схемы лестниц и перекрытий на отм. - 2.400; 0.000; 1.100; 2.400 и 4.400 Маркировочные схемы лестниц и перекрытий на отм. - 2.400; 0.000; 1.100; 2.400 и 4.400. Сечения 6-6 - 20-20 Маркировочная схема прогонов в осях 1 - 2; А - Е Маркировочная схема лестницы в осях 3 - 4, В. Блоки БЛ1 - БЛ5 Маркировочная схема лестницы в осях 3 - 4, В. Блоки БЛ6, БЛ7. Узлы 1, 2 Маркировочная схема лестницы в осях 3 - 4, В. Узлы 3 - 5 Маркировочная схема приемного бункера Маркировочная схема приемного бункера. Узлы 1 - 3 Маркировочная схема приемного бункера. Узлы 4 - 10 Площадка обслуживания цементопроводов Маркировочная схема подвесных путей Отопление и вентиляция Общие данные Планы и схемы систем отопления и вентиляции Внутренний водопровод и канализация Общие данные План на отм. 0.000; 1.100. Схемы систем В1, В5, В6, К3. Сводная спецификация Организация строительства Общие положения по организации строительства |
| Разработан: | Гипростроммашина |
| Утверждён: | 02.07.1979 Госстрой СССР (Государственный комитет Совета Министров СССР по делам строительства) (USSR Gosstroy 35) |
























































