Скачать Типовой проект 409-29-61 Альбом VI. Выпуск 2. Нестандартизированное оборудованиеДата актуализации: 01.01.2021
|
| Обозначение: | Типовой проект 409-29-61 |
| Обозначение англ: | 409-29-61 |
| Статус: | действует |
| Название рус.: | Альбом VI. Выпуск 2. Нестандартизированное оборудование |
| Дата добавления в базу: | 01.10.2014 |
| Дата актуализации: | 01.01.2021 |
| Дата введения: | 30.11.1979 |
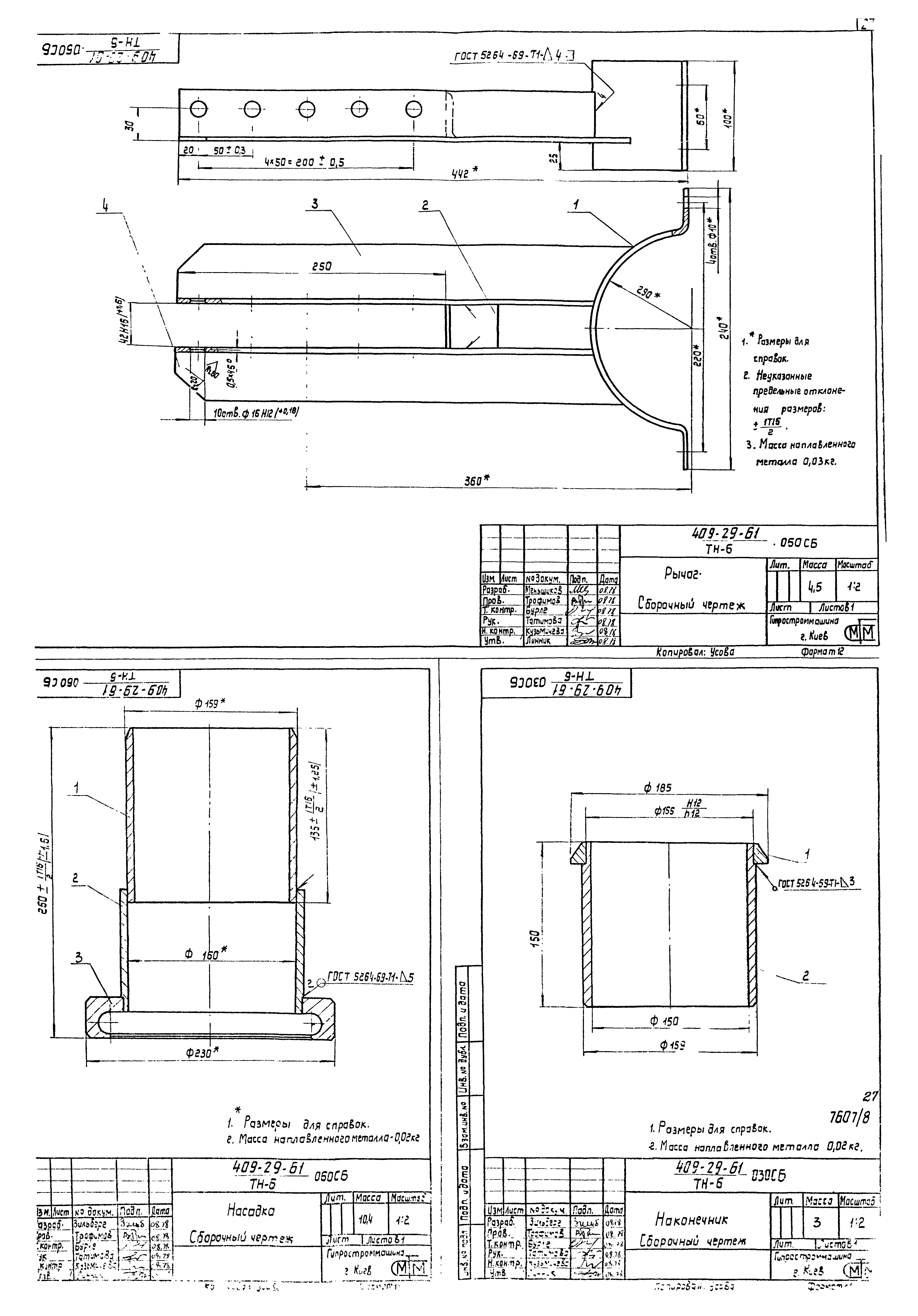
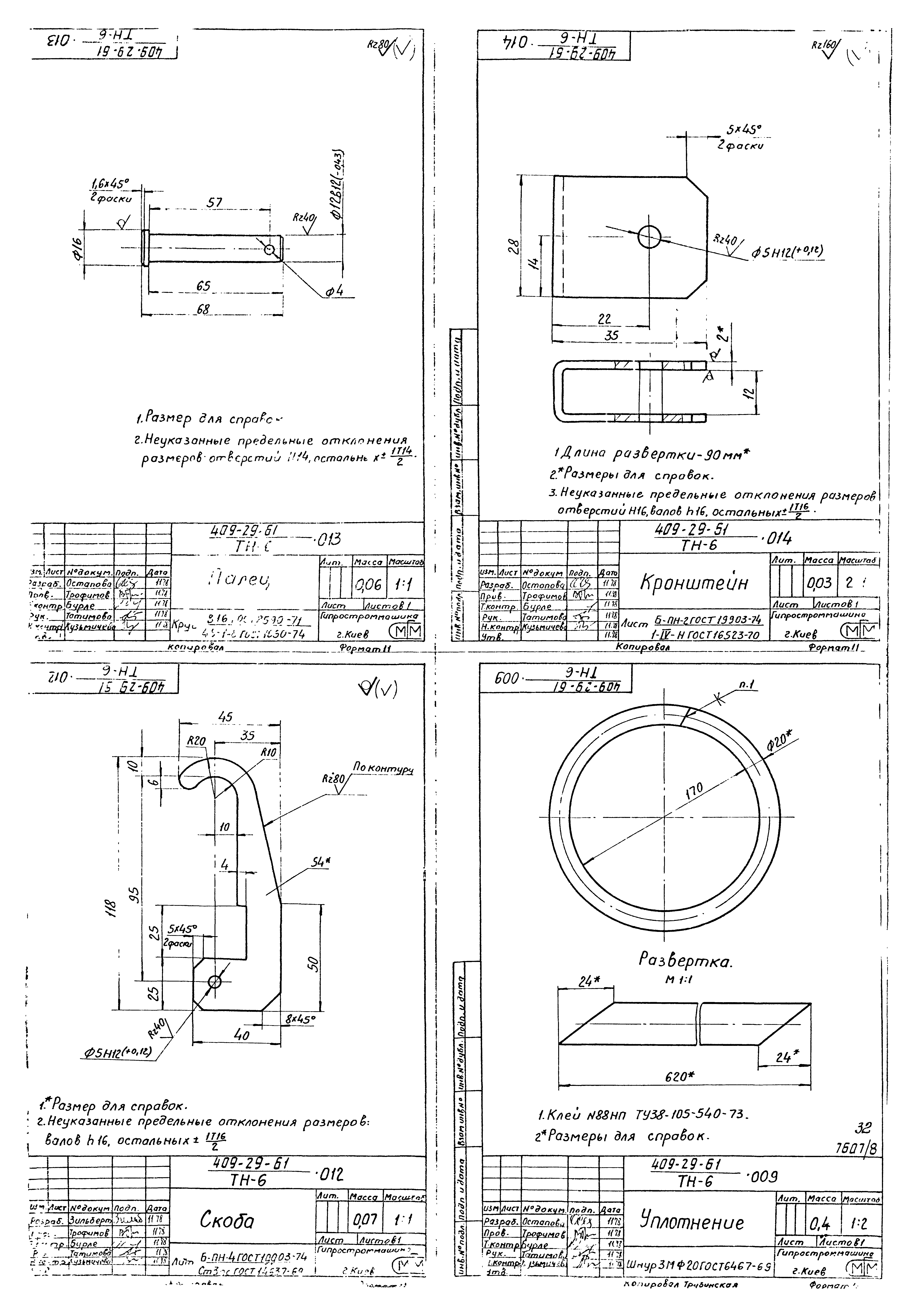
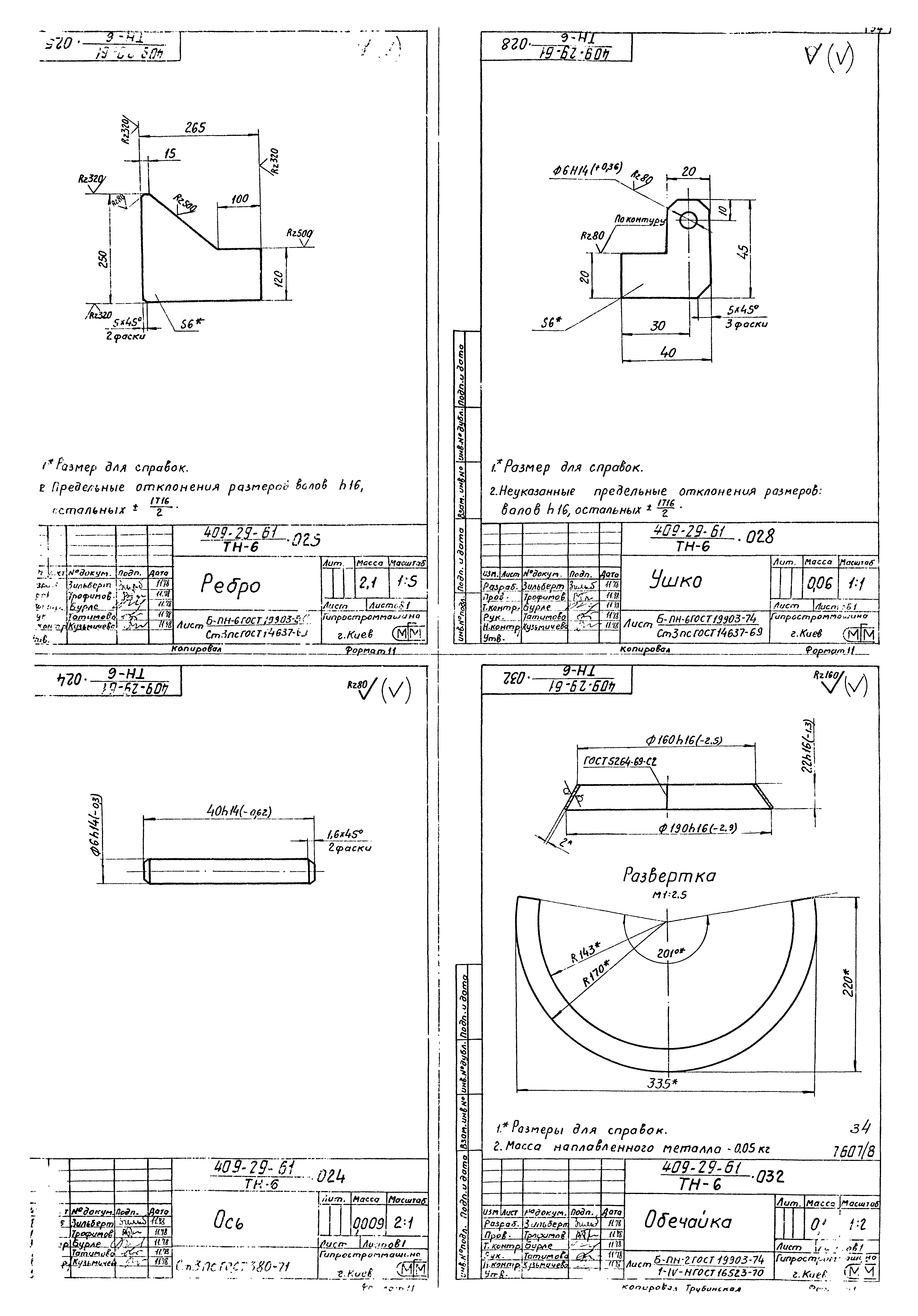
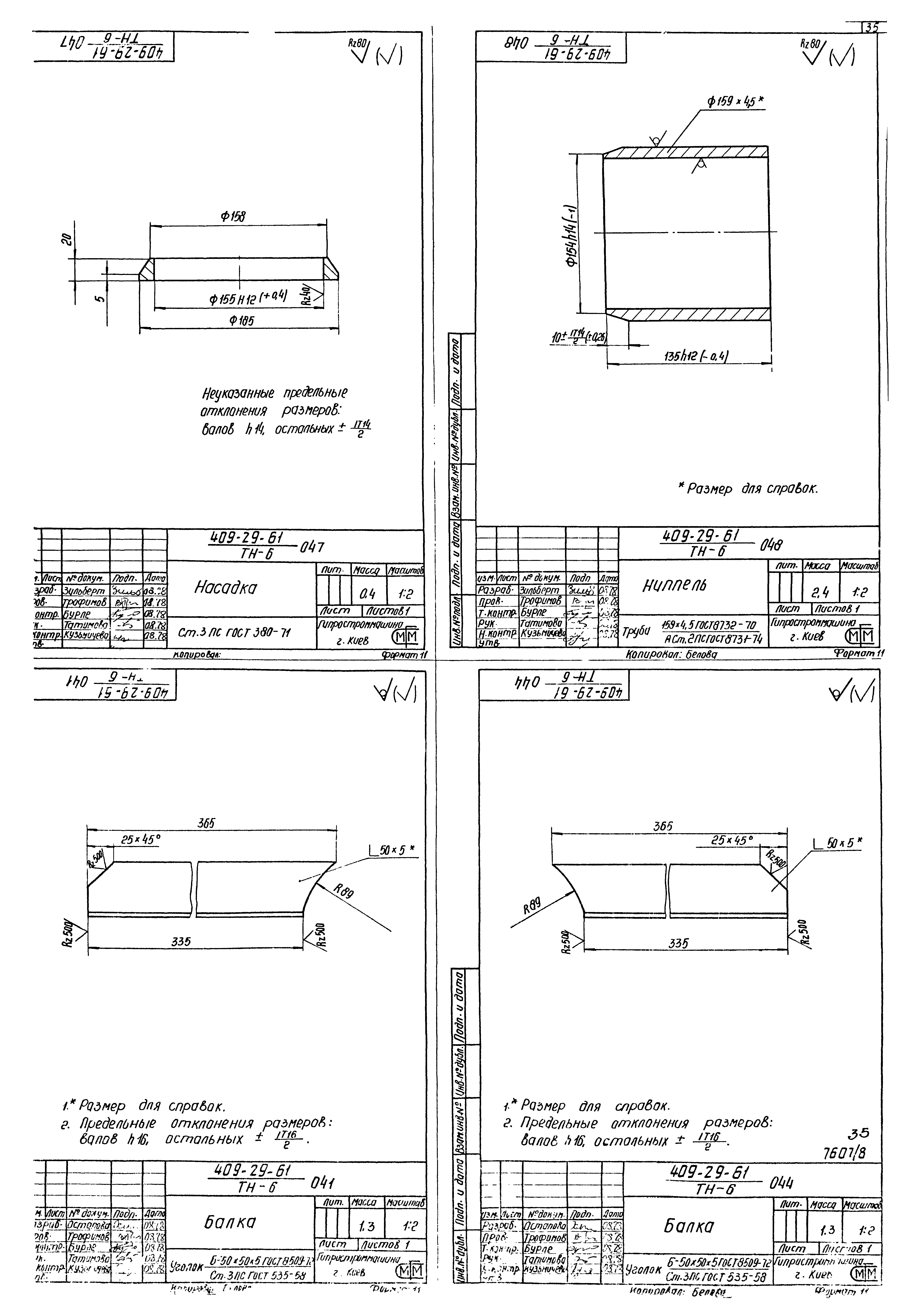
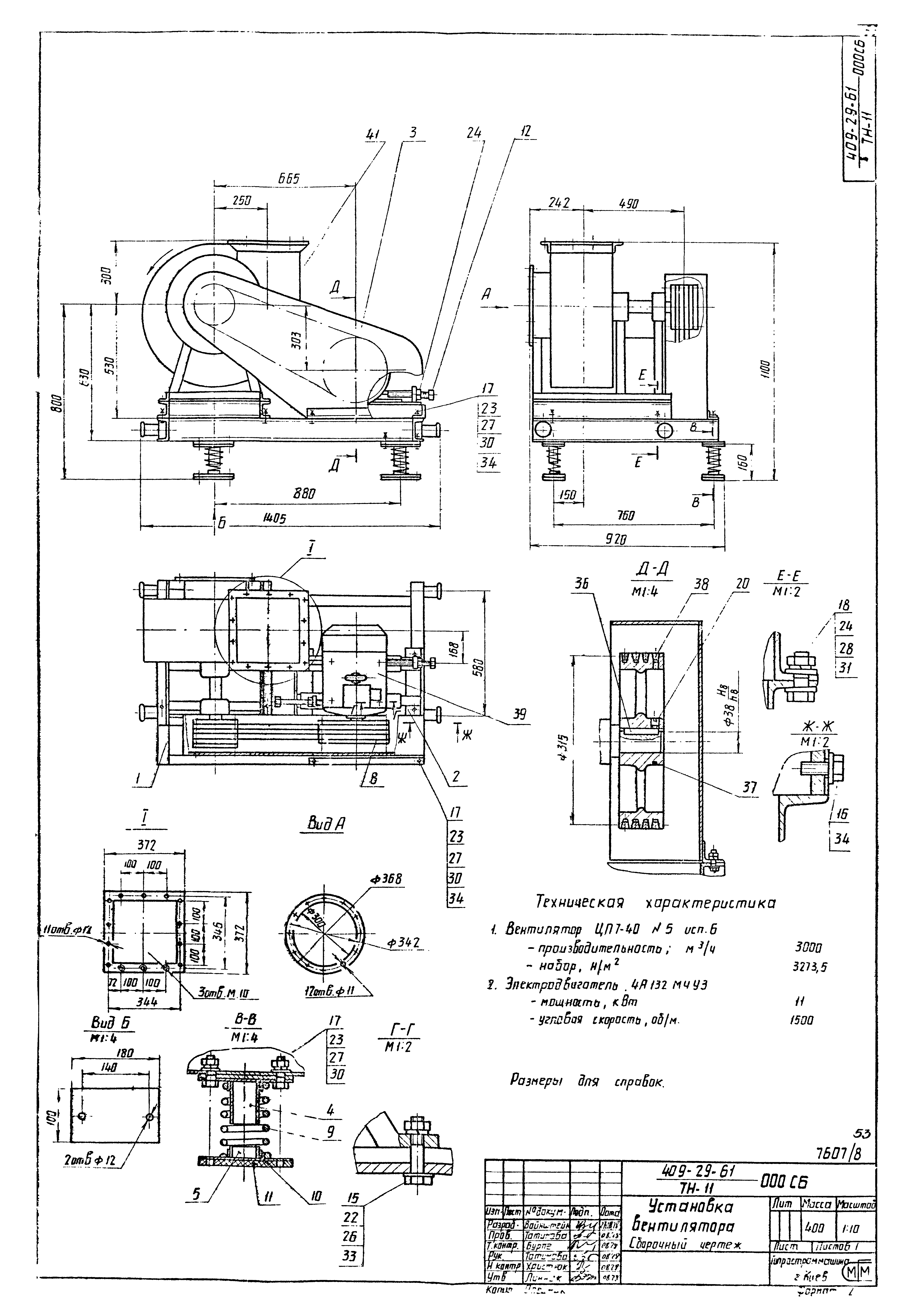
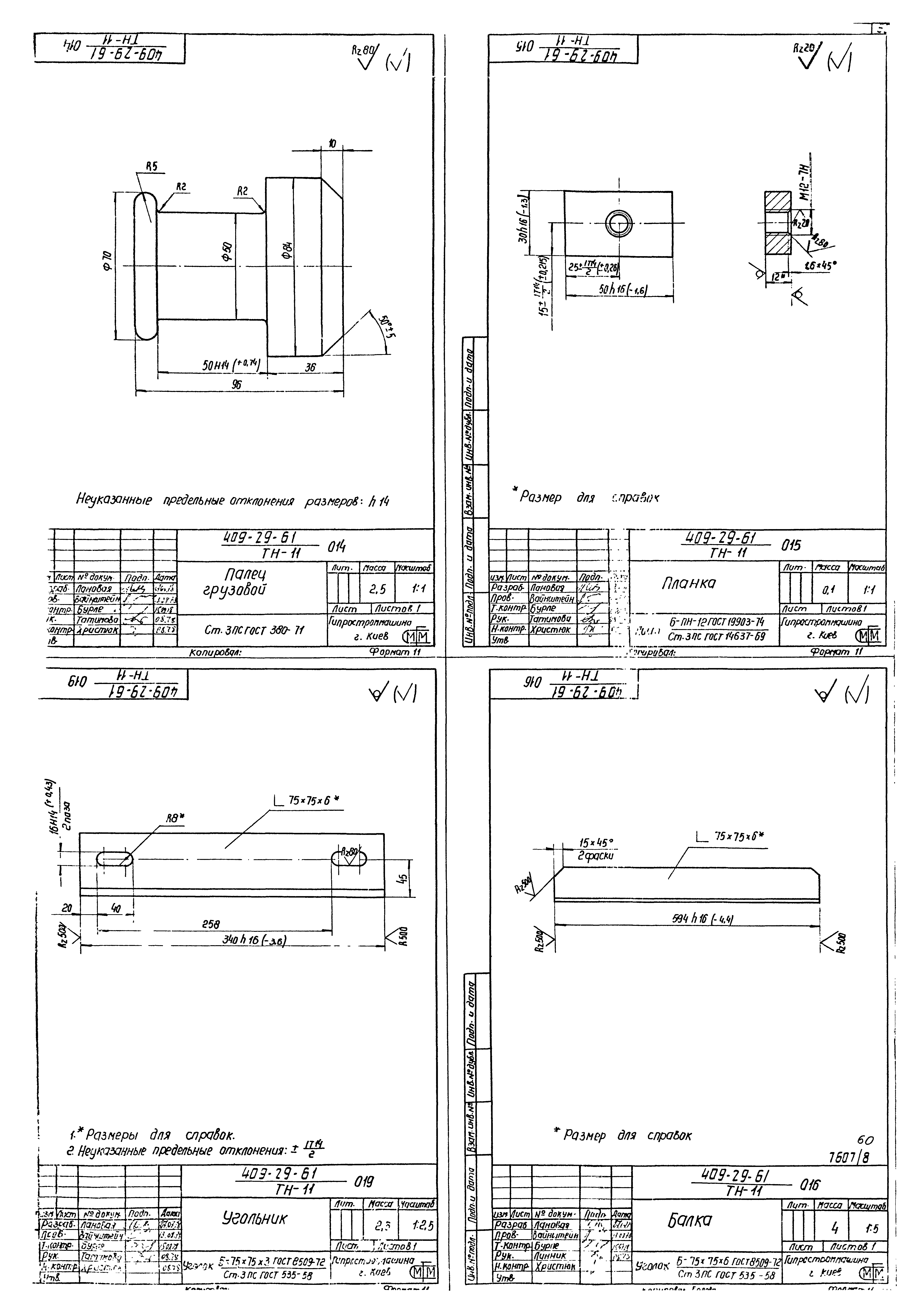
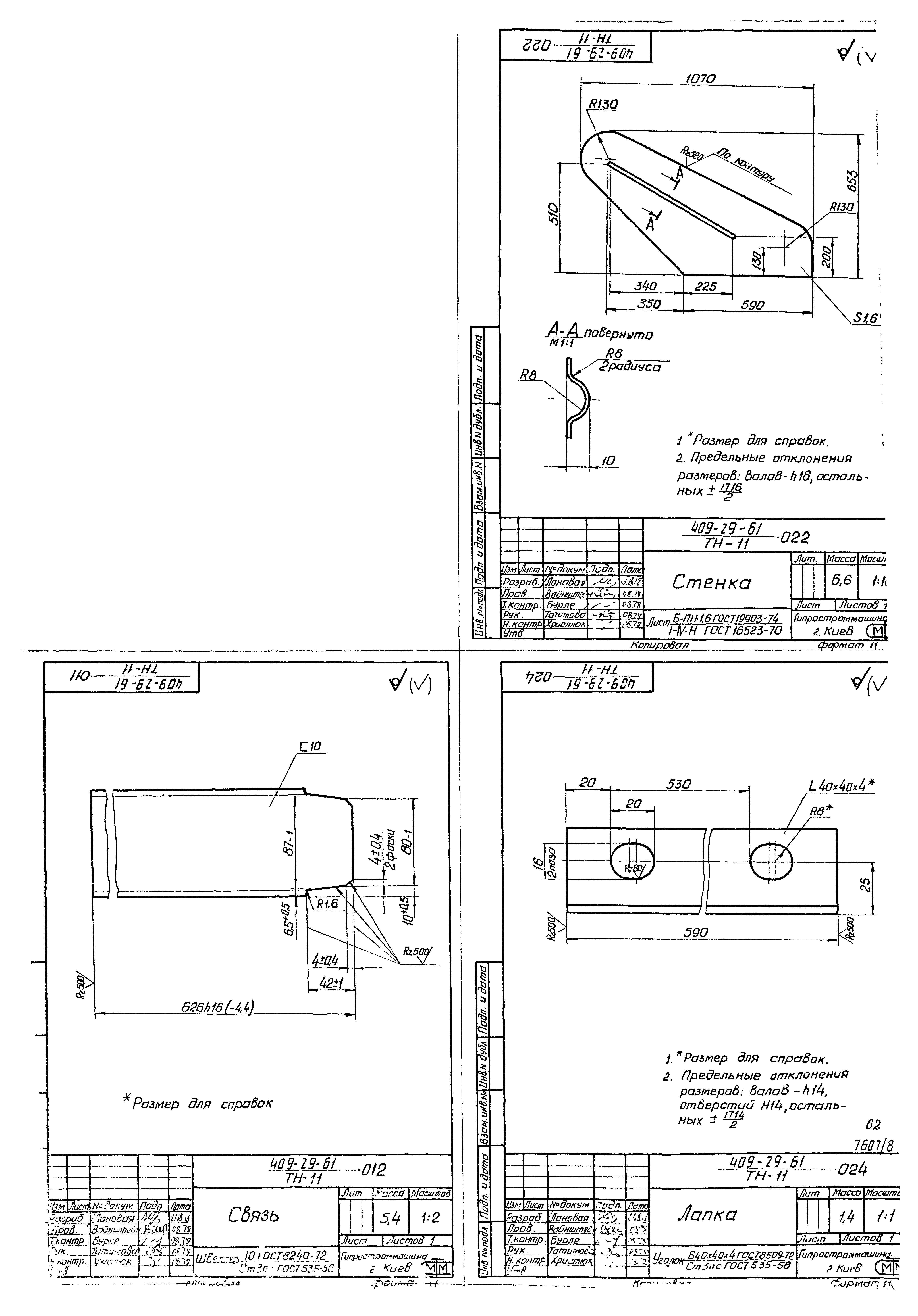
| Оглавление: | 409-29-61/ТН-2 000МЧ Цементопровод от эрлифта 409-29-61/ТН-2 010СБ Цементопровод 409-29-61/ТН-2 001 Фланец 409-29-61/ТН-2 005 Фланец 409-29-61/ТН-2 006 Трубопровод 409-29-61/ТН-2 010 Цементопровод 409-29-61/ТН-2 000ВП Цементопровод от эрлифта 409-29-61/ТН-2 002 Прокладка 409-29-61/ТН-2 003 Плита 409-29-61/ТН-2 000ВС Цементопровод от эрлифта 409-29-61/ТН-4 000МЧ Цементопровод 409-29-61/ТН-4 010СБ Заглушка 409-29-61/ТН-4 020СБ Корпус 409-29-61/ТН-4 030СБ Патрубок 409-29-61/ТН-4 005 Рукоятка 409-29-61/ТН-4 001 Палец 409-29-61/ТН-4 006 Накладка 409-29-61/ТН-4 007 Палец 409-29-61/ТН-4 011 Кронштейн 409-29-61/ТН-4 004 Прокладка 409-29-61/ТН-4 013 Основание 409-29-61/ТН-4 018 Наконечник 409-29-61/ТН-4 019 Кронштейн 409-29-61/ТН-4 008 Скоба 409-29-61/ТН-4 012 Скоба 409-29-61/ТН-4 010 Заглушка 409-29-61/ТН-4 020 Корпус 409-29-61/ТН-4 030 Патрубок 409-29-61/ТН-4 000ВЗ Цементопровод 409-29-61/ТН-4 000ВП Цементопровод 409-29-61/ТН-4 000ВС Цементопровод 409-29-61/ТН-5 000СБ Цементопровод в сборе 409-29-61/ТН-5 010СБ Цементопровод 409-29-61/ТН-5 001 Патрубок 409-29-61/ТН-5 000 Цементопровод в сборе 409-29-61/ТН-5 010 Цементопровод 409-29-61/ТН-5 000ВЗ Цементопровод в сборе 409-29-61/ТН-5 000ВП Цементопровод в сборе 409-29-61/ТН-5 000ВС Цементопровод в сборе 409-29-61/ТН-6 000СБ Устройство для переключения цементопроводов 409-29-61/ТН-6 010СБ Корпус 409-29-61/ТН-6 020СБ Рычаг 409-29-61/ТН-6 040СБ Штурвал 409-29-61/ТН-6 030СБ Наконечник 409-29-61/ТН-6 050СБ Рычаг 409-29-61/ТН-6 070СБ Вал в сборе 409-29-61/ТН-6 001 Крышка 409-29-61/ТН-6 002 Крышка 409-29-61/ТН-6 003 Палец 409-29-61/ТН-6 004 Хомут 409-29-61/ТН-6 005 Винт 409-29-61/ТН-6 006 Винт 409-29-61/ТН-6 011 Рукоятка 409-29-61/ТН-6 007 Хомут 409-29-61/ТН-6 008 Прокладка 409-29-61/ТН-6 023 Кронштейн 409-29-61/ТН-6 031 Планка 409-29-61/ТН-6 009 Уплотнение 409-29-61/ТН-6 012 Скоба 409-29-61/ТН-6 013 Палец 409-29-61/ТН-6 014 Кронштейн 409-29-61/ТН-6 021 Гильза 409-29-61/ТН-6 022 Кольцо 409-29-61/ТН-6 026 Стакан 409-29-61/ТН-6 029 Фланец 409-29-61/ТН-6 024 Ось 409-29-61/ТН-6 025 Ребро 409-29-61/ТН-6 028 Ушко 409-29-61/ТН-6 032 Обечайка 409-29-61/ТН-6 041 Балка 409-29-61/ТН-6 044 Балка 409-29-61/ТН-6 047 Насадка 409-29-61/ТН-6 048 Ниппель 409-29-61/ТН-6 051 Кольцо 409-29-61/ТН-6 052 Ступица 409-29-61/ТН-6 057 Балка 409-29-61/ТН-6 058 Балка 409-29-61/ТН-6 062 Переходник 409-29-61/ТН-6 063 Кольцо 409-29-61/ТН-6 066 Вал 409-29-61/ТН-6 067 Угольник 409-29-61/ТН-6 000 Устройство для переключения цементопроводов 409-29-61/ТН-6 010 Корпус 409-29-61/ТН-6 020 Рычаг 409-29-61/ТН-6 030 Наконечник 409-29-61/ТН-6 040 Штурвал 409-29-61/ТН-6 050 Рычаг 409-29-61/ТН-6 060 Насадка 409-29-61/ТН-6 070 Вал в сборе 409-29-61/ТН-6 000ВЗ Устройство для переключения цементопроводов 409-29-61/ТН-6 000ВП Устройство для переключения цементопроводов 409-29-61/ТН-6 000ВС Устройство для переключения цементопроводов 409-29-61/ТН-7 000СБ Устройство для переключения цементопроводов 409-29-61/ТН-7 010СБ Корпус 409-29-61/ТН-7 000 Устройство для переключения цементопроводов 409-29-61/ТН-7 010 Корпус 409-29-61/ТН-7 000ВЗ Устройство для переключения цементопроводов 409-29-61/ТН-7 000ВП Устройство для переключения цементопроводов 409-29-61/ТН-7 000ВС Устройство для переключения цементопроводов 409-29-61/ТН-8 000СБ Патрубок концевой 409-29-61/ТН-8 001 Патрубок 409-29-61/ТН-8 002 Прокладка 409-29-61/ТН-8 000 Патрубок концевой 409-29-61/ТН-8 000ВП Патрубок концевой 409-29-61/ТН-11 000СБ Установка вентилятора 409-29-61/ТН-11 010СБ Рама 409-29-61/ТН-11 020СБ Рамка 409-29-61/ТН-11 030СБ Ограждение 409-29-61/ТН-11 040СБ Стакан 409-29-61/ТН-11 050СБ Стакан 409-29-61/ТН-11 004 Прокладка 409-29-61/ТН-11 026 Плита 409-29-61/ТН-11 001 Шкив 409-29-61/ТН-11 040 Стакан 409-29-61/ТН-11 050 Стакан 409-29-61/ТН-11 002 Пружина 409-29-61/ТН-11 003 Кольцо 409-29-61/ТН-11 005 Винт 409-29-61/ТН-11 018 Упор 409-29-61/ТН-11 014 Палец грузовой 409-29-61/ТН-11 015 Планка 409-29-61/ТН-11 016 Балка 409-29-61/ТН-11 019 Угольник 409-29-61/ТН-11 023 Кожух 409-29-61/ТН-11 020 Рамка 409-29-61/ТН-11 030 Ограждение 409-29-61/ТН-11 012 Связь 409-29-61/ТН-11 022 Стенка 409-29-61/ТН-11 024 Лапка 409-29-61/ТН-11 000 Установка вентилятора 409-29-61/ТН-11 010 Рама 409-29-61/ТН-11 000ВП Установка вентилятора 409-29-61/ТН-11 000ВС Установка вентилятора 409-29-61/ТН-14 000МЧ Воздуховод от циклона к фильтру 409-29-61/ТН-14 001 Прокладка 409-29-61/ТН-14 021 Накладка 409-29-61/ТН-14 010 Воздуховод 409-29-61/ТН-14 020СБ Патрубок правый 409-29-61/ТН-14 030СБ Патрубок левый 409-29-61/ТН-14 040СБ Тройник 409-29-61/ТН-14 050СБ Воздуховод 409-29-61/ТН-14 002 Прокладка 409-29-61/ТН-14 003 Прокладка 409-29-61/ТН-14 012 Стенка 409-29-61/ТН-14 004 Боковина 409-29-61/ТН-14 005 Боковина 409-29-61/ТН-14 006 Стенка 409-29-61/ТН-14 039 Боковина 409-29-61/ТН-14 007 Стенка 409-29-61/ТН-14 015 Стенка 409-29-61/ТН-14 041 Боковина 409-29-61/ТН-14 042 Стенка 409-29-61/ТН-14 013 Боковина 409-29-61/ТН-14 014 Косынка 409-29-61/ТН-14 022 Накладка 409-29-61/ТН-14 023 Накладка 409-29-61/ТН-14 010 Воздуховод 409-29-61/ТН-14 020 Патрубок правый 409-29-61/ТН-14 030 Патрубок левый 409-29-61/ТН-14 040 Тройник 409-29-61/ТН-14 050 Воздуховод 409-29-61/ТН-14 000ВП Воздуховод от циклона к фильтру 409-29-61/ТН-14 000ВС Воздуховод от циклона к фильтру |
| Разработан: | Гипростроммашина |
| Утверждён: | 02.07.1979 Госстрой СССР (Государственный комитет Совета Министров СССР по делам строительства) (USSR Gosstroy 35) |














































































