Скачать Типовые проектные решения 705-6-013с.89 Альбом 2. Основные положения по производству монтажных работ (из ТПР 705-6-08с.89)Дата актуализации: 01.01.2021
|
| Обозначение: | Типовые проектные решения 705-6-013с.89 |
| Обозначение англ: | 705-6-013с.89 |
| Статус: | справочные материалы, мп, тпр |
| Название рус.: | Альбом 2. Основные положения по производству монтажных работ (из ТПР 705-6-08с.89) |
| Дата добавления в базу: | 01.10.2014 |
| Дата актуализации: | 01.01.2021 |
| Дата окончания срока действия: | 31.07.1989 |
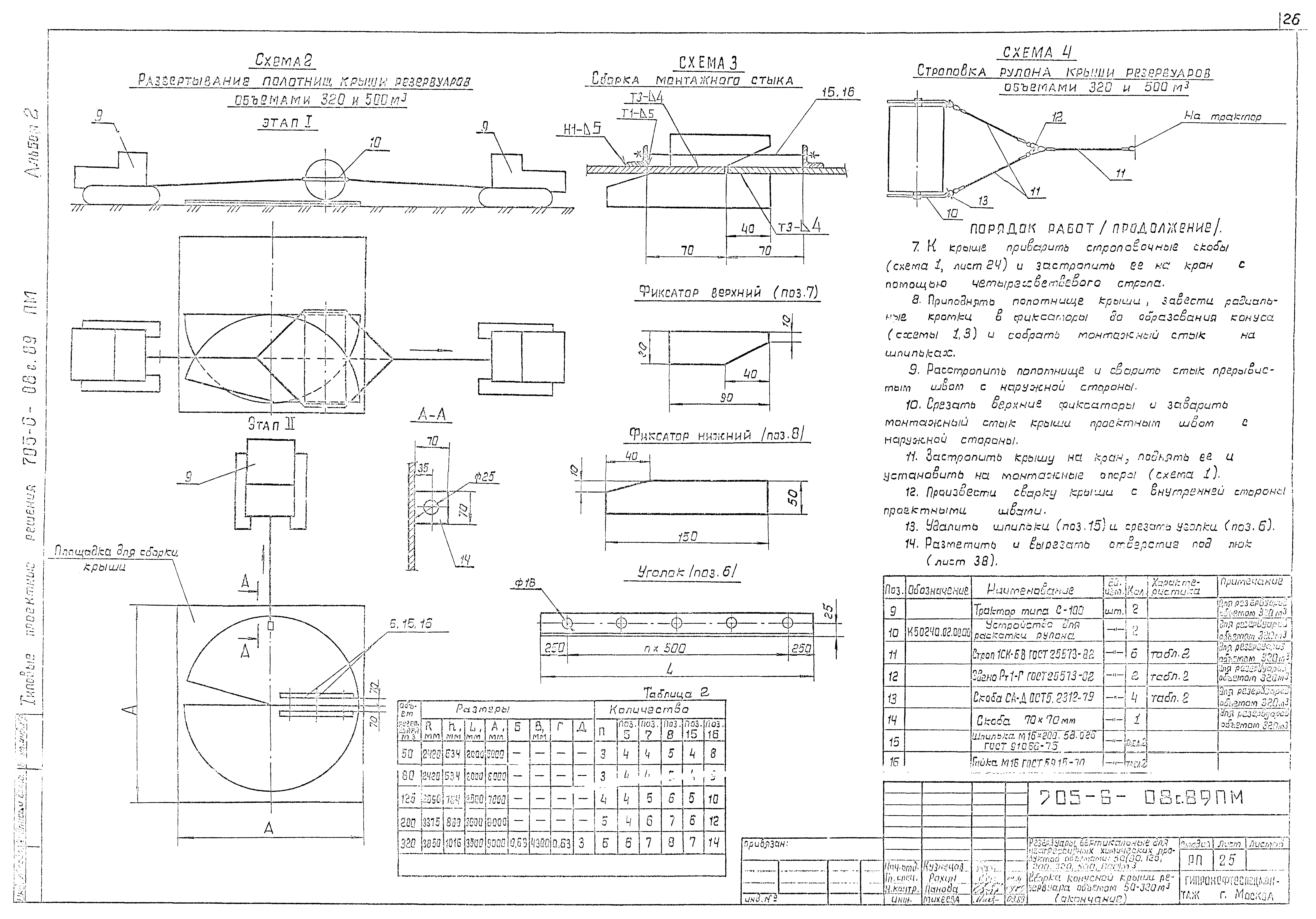
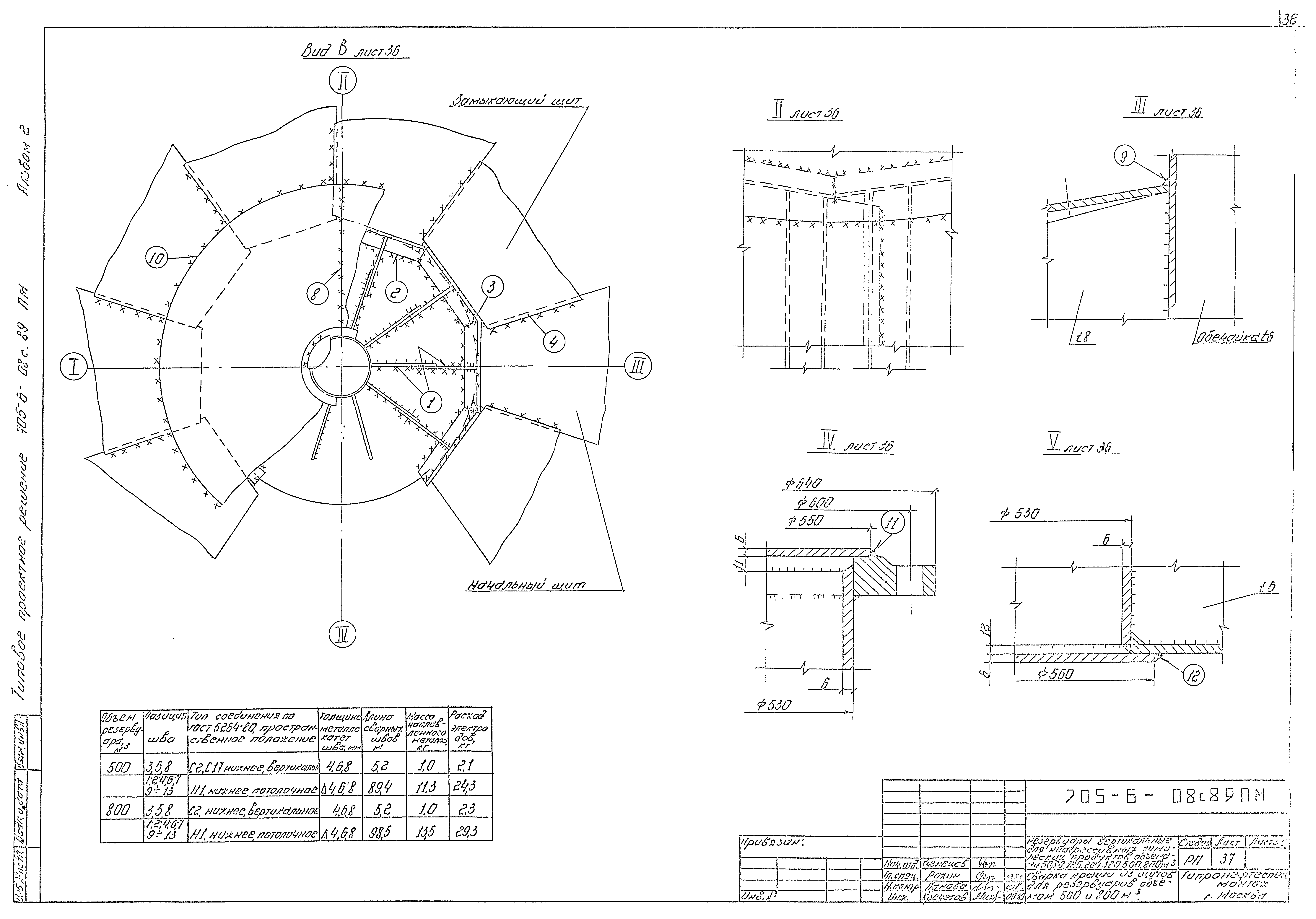
| Оглавление: | Общие данные Ведомости приспособлений, механизмов, монтажной оснастки и материалов Ведомость оборудования, инструмента и материалов для производства сварочных работ Общий вид Условный стройгенплан монтажной площадки для резервуаров объемами 50 - 320 куб. м Условный стройгенплан монтажной площадки для резервуаров объемами 500 - 800 куб. м Монтаж днища резервуаров Разметка днища Подъем рулона стенки резервуаров объемами 50 - 800 куб. м Развертывание рулонной стенки резервуара Монтаж центральной монтажной стойки для резервуаров объемами 500 - 800 куб. м Замыкание вертикального монтажного стыка стенки резервуара Сборка конусной крыши резервуаров объемами 50 - 320 куб. м Установка конусной крыши в проектное положение Монтаж щитовой крыши для резервуаров объемами 500 - 800 куб. м Демонтаж монтажной стойки для резервуаров объемами 500 - 800 куб. м Гидроиспытание резервуара Сварка днища из рулонов Сварка стенки резервуара Сварка конусной крыши Сварка крыши из щитов Сварка люков и лазов График производства работ |
| Разработан: | ЦНИИпроектстальконструкция Гипрококс |
| Утверждён: | 31.07.1989 Министерство металлургии СССР (USSR Ministry of Metallurgy 62) |










































