Скачать 2176/2000 Выпуск 1. Материалы для проектирования. Рабочие чертежиДата актуализации: 01.01.2021
|
| Обозначение: | 2176/2000 |
| Обозначение англ: | 2176/2000 |
| Статус: | не определен законодательством |
| Название рус.: | Выпуск 1. Материалы для проектирования. Рабочие чертежи |
| Дата добавления в базу: | 01.10.2014 |
| Дата актуализации: | 01.01.2021 |
| Дата введения: | 01.07.2001 |
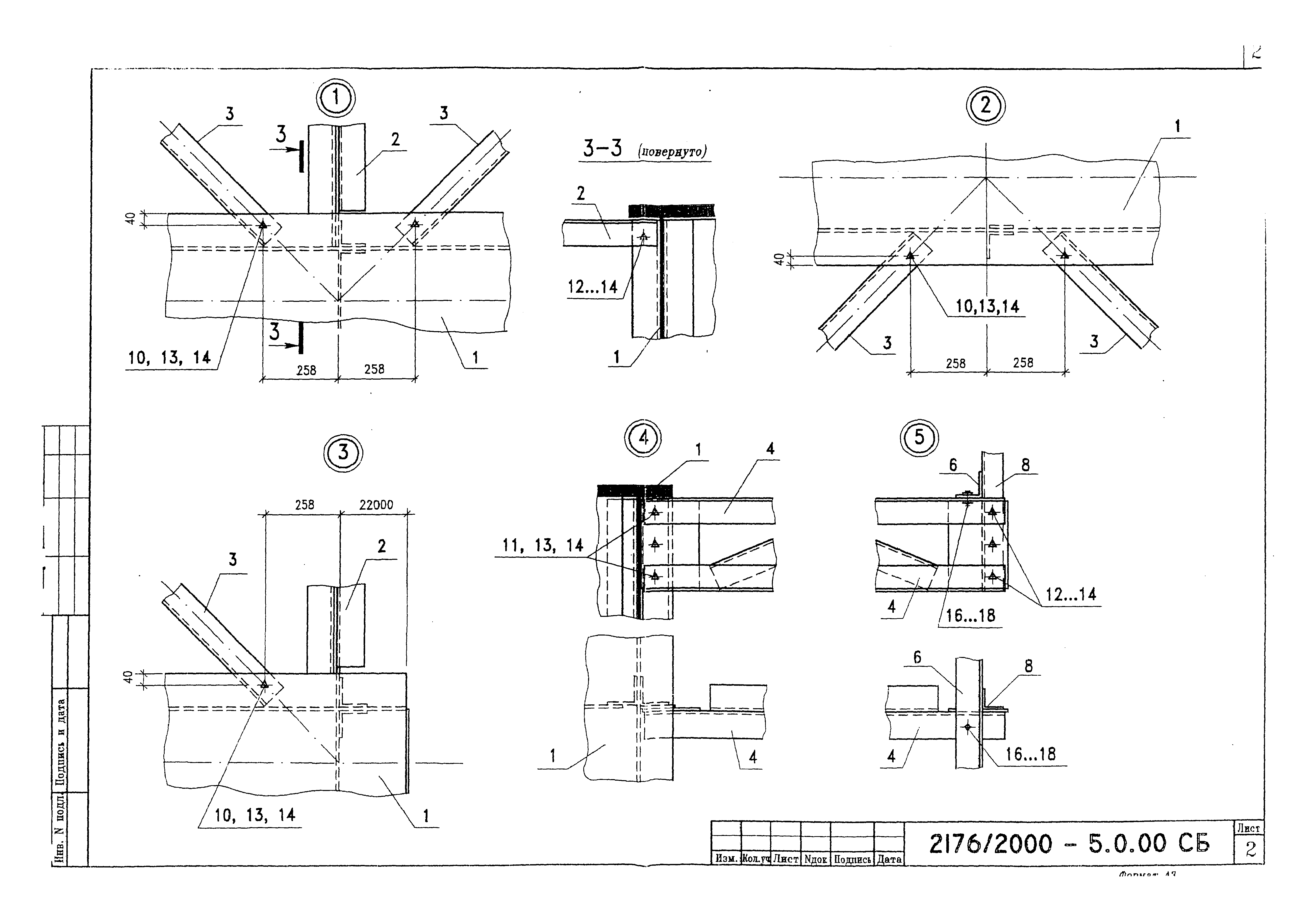
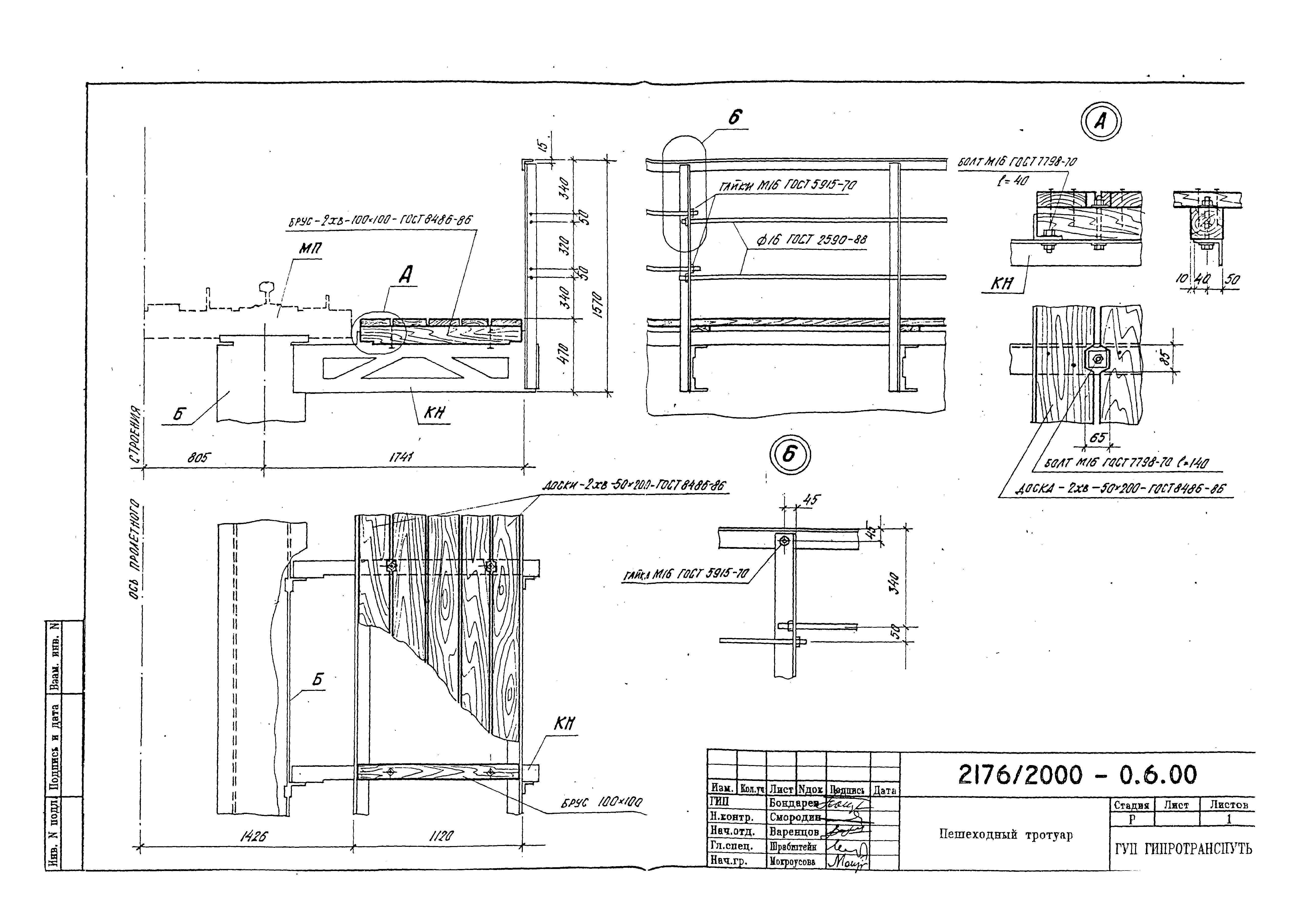
| Оглавление: | 2176/2000-ПЗ Пояснительная записка 2176/2000-НИ Номенклатура пролетных строений 2176/2000-Д Описание пролетных строений 2176/2000-1.0.00 Пролетное строение Lp = 23,0 м. Спецификация 2176/2000-1.0.00СБ Пролетное строение Lp = 23,0 м. Схема расположения элементов 2176/2000-2.0.00 Пролетное строение Lp = 18,2 м. Спецификация 2176/2000-2.0.00СБ Пролетное строение Lp = 18,2 м. Схема расположения элементов 2176/2000-3.0.00 Пролетное строение Lp = 15,6 м. Спецификация 2176/2000-3.0.00СБ Пролетное строение Lp = 15,6 м. Схема расположения элементов 2176/2000-4.0.00 Пролетное строение Lp = 12,0 м. Спецификация 2176/2000-4.0.00СБ Пролетное строение Lp = 12,0 м. Схема расположения элементов 2176/2000-5.0.00 Пролетное строение Lp = 8,0 м. Спецификация 2176/2000-5.0.00СБ Пролетное строение Lp = 8,0 м. Схема расположения элементов 2176/2000-1.1.00 Главная балка Б1 2176/2000-2.1.00 Главная балка Б2 2176/2000-3.1.00 Главная балка Б3 2176/2000-4.1.00 Главная балка Б4 2176/2000-5.1.00 Главная балка Б5 2176/2000-0.1.07 Опорный лист 2176/2000-1.1.00СБ Главная балка Б1. Сборочный чертеж 2176/2000-2.1.00СБ Главная балка Б2. Сборочный чертеж 2176/2000-3.1.00СБ Главная балка Б3. Сборочный чертеж 2176/2000-4.1.00СБ Главная балка Б4. Сборочный чертеж 2176/2000-5.1.00СБ Главная балка Б5. Сборочный чертеж 2176/2000-1.2.00 Поперечные связи РП1, РП2, РП3 2176/2000-4.2.00 Поперечные связи РП4, РП5 2176/2000-1.3.00 Продольные связи Д1…Д9 2176/2000-4.3.00 Продольные связи Д10, Д11 2176/2000-1.4.00 Консоль КН тротуара 2176/2000-1.5.00 Мостовое полотно МП1…МП5. Спецификация металла 2176/2000-1.5.00СБ Мостовое полотно МП1…МП5. Сборочный чертеж 2176/2000-0.6.00 Пешеходный тротуар 2176/2000-0.1.01 Вертикальный лист 2176/2000-0.1.02 Верхний горизонтальный лист 2176/2000-0.1.03 Нижний горизонтальный лист 2176/2000-0.1.04 Горизонтальный лист 2176/2000-0.1.05 Горизонтальный лист 2176/2000-0.1.06 Торцовый лист 2176/2000-0.1.08 Ребро жесткости 2176/2000-0.1.09 Обойма 2176/2000-0.1.10 Диафрагма опорная 2176/2000-0.1.11 Диафрагма 2176/2000-0.1.12 Ребро жесткости опорное |
| Разработан: | ГУП Гипротранспуть |
| Утверждён: | 26.03.2001 Министерство путей сообщения РФ (Russian Federation Ministry of Railroads ЦПИ-6/6) |
| Заменяет собой: |
|




















































