Скачать Типовой проект 85-049/1.2 ОМП.2-1. Общие материалы для 9-этажных блок-секций серии 85Дата актуализации: 01.01.2021
|
| Обозначение: | Типовой проект 85-049/1.2 |
| Обозначение англ: | 85-049/1.2 |
| Статус: | не определен законодательством |
| Название рус.: | ОМП.2-1. Общие материалы для 9-этажных блок-секций серии 85 |
| Дата добавления в базу: | 01.10.2014 |
| Дата актуализации: | 01.01.2021 |
| Дата введения: | 01.06.1982 |
| Дата окончания срока действия: | 30.06.2003 |
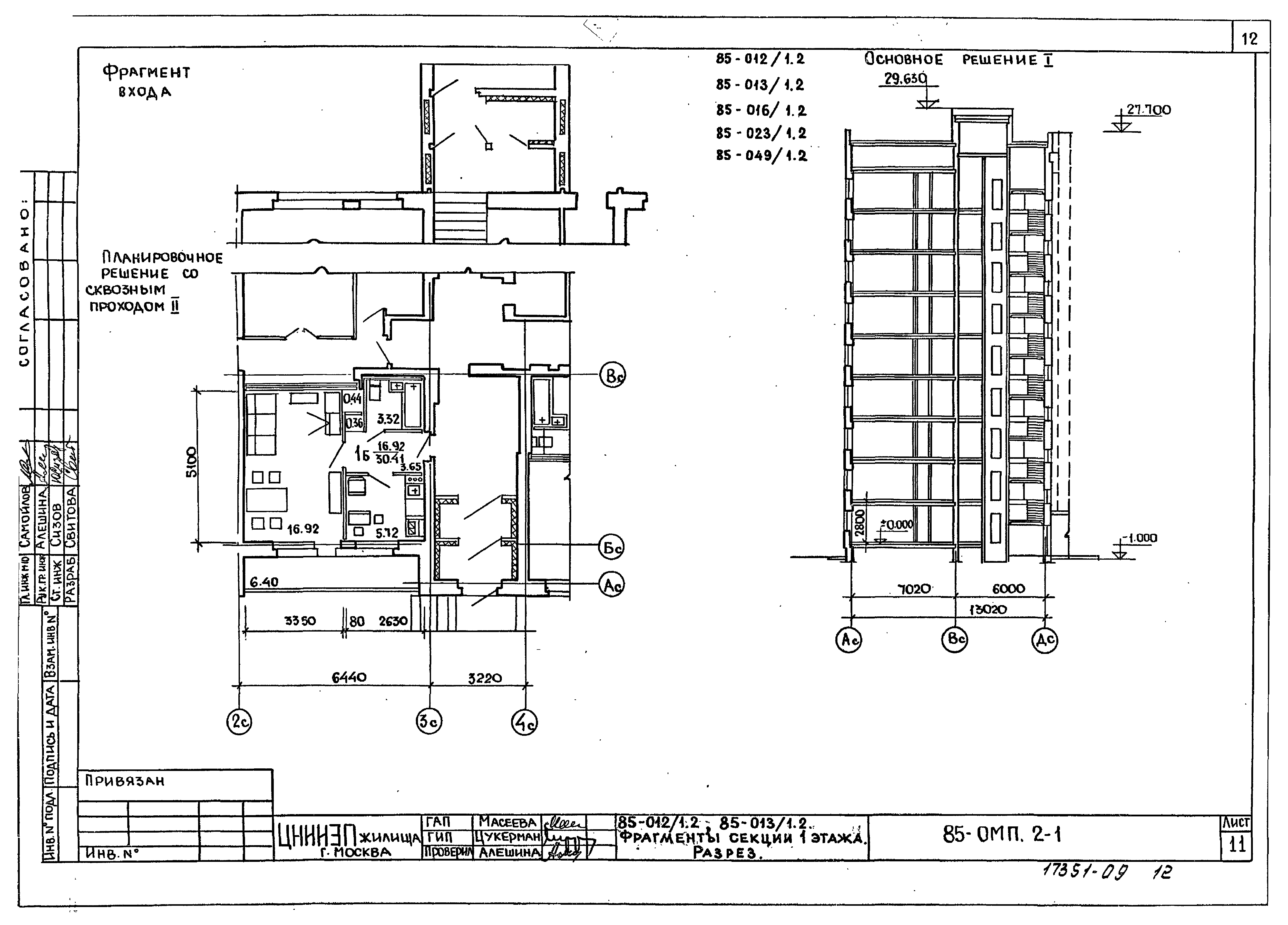
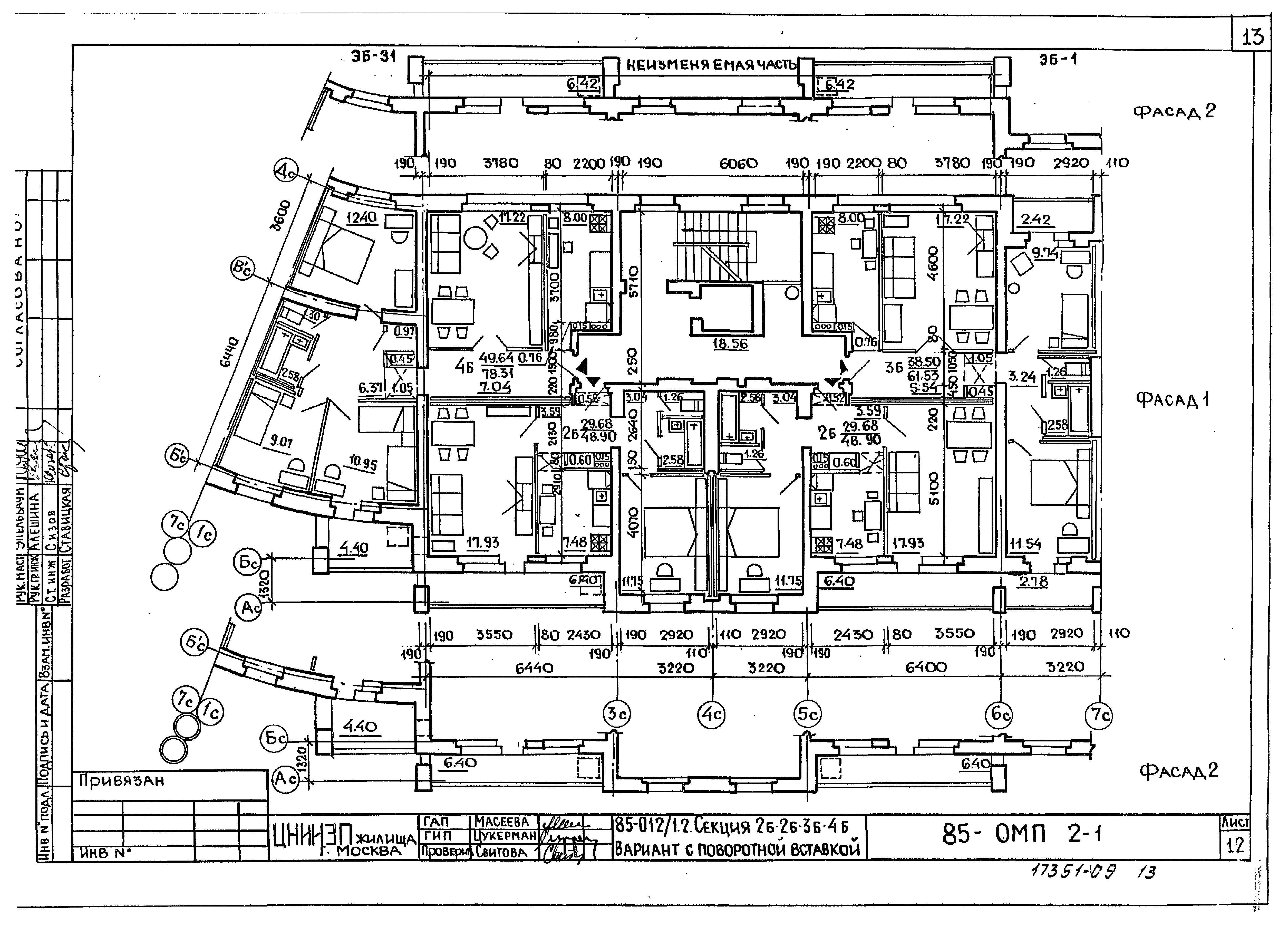
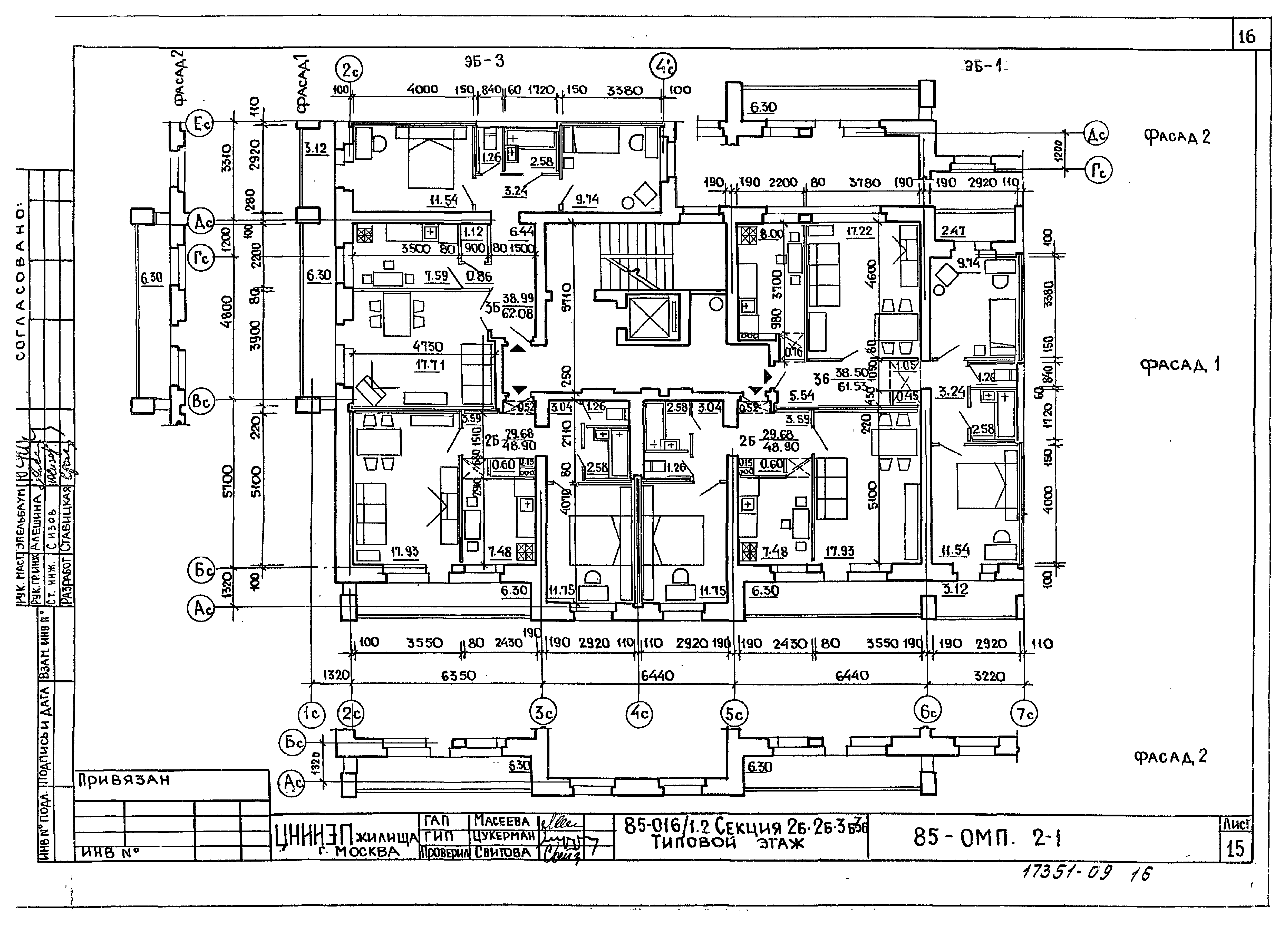
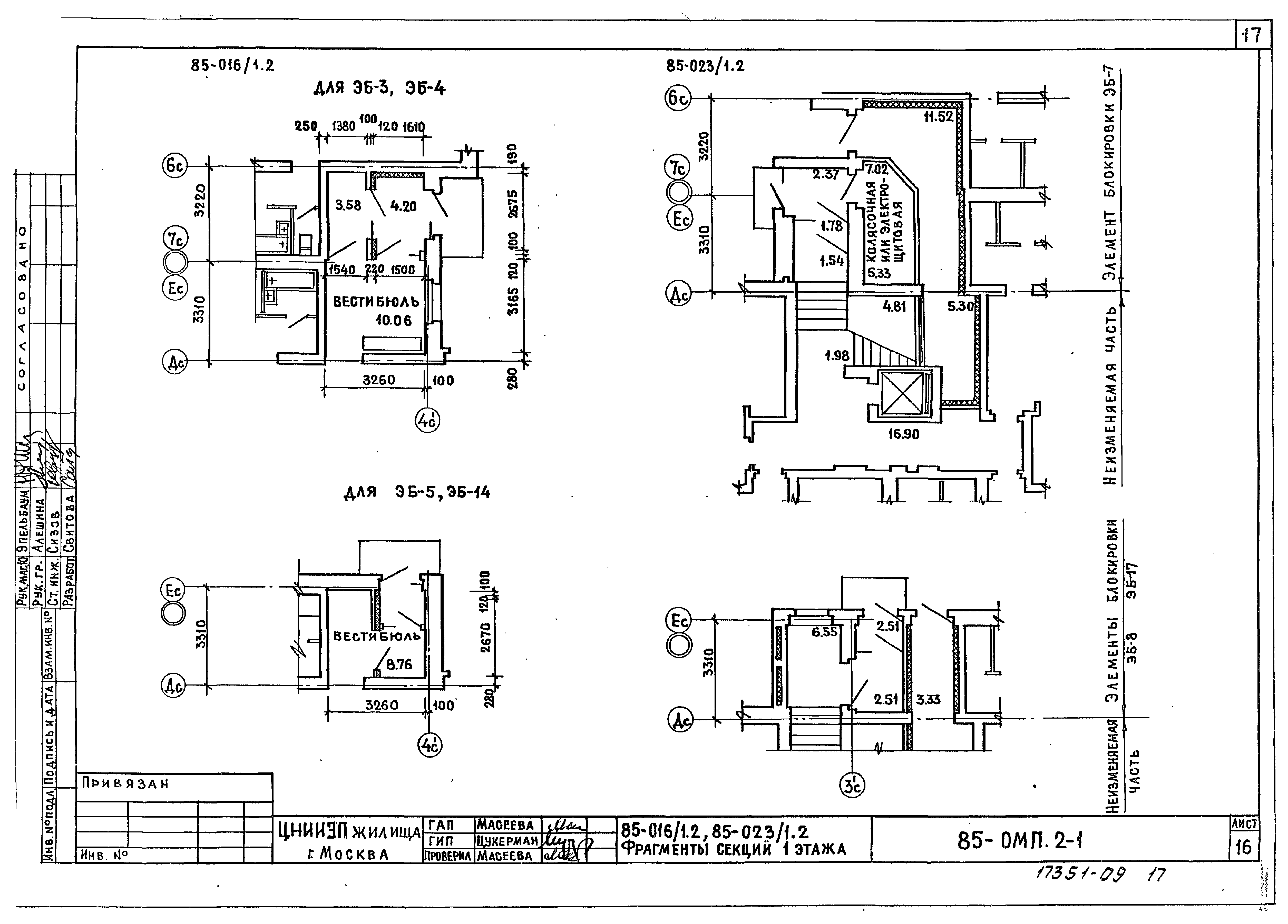
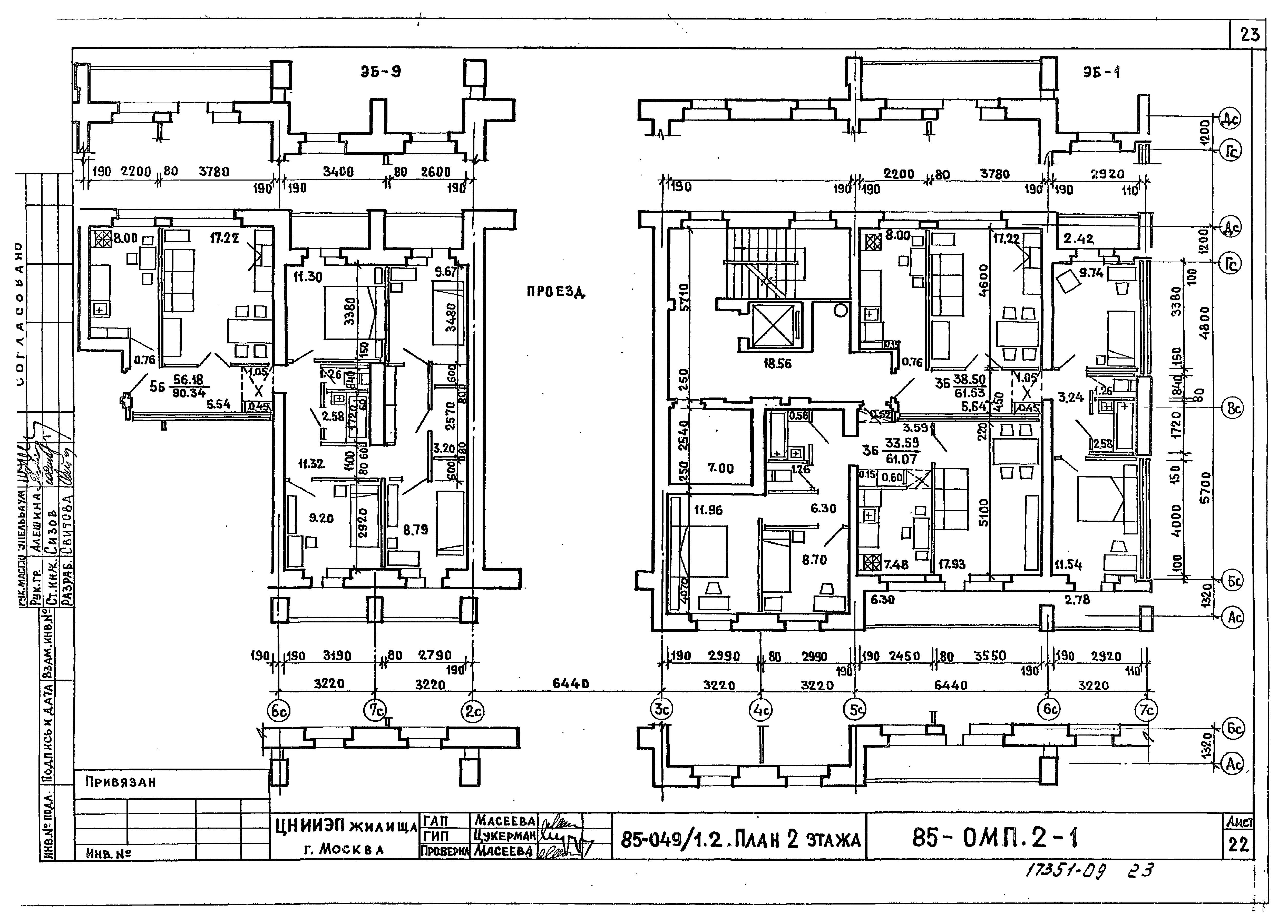
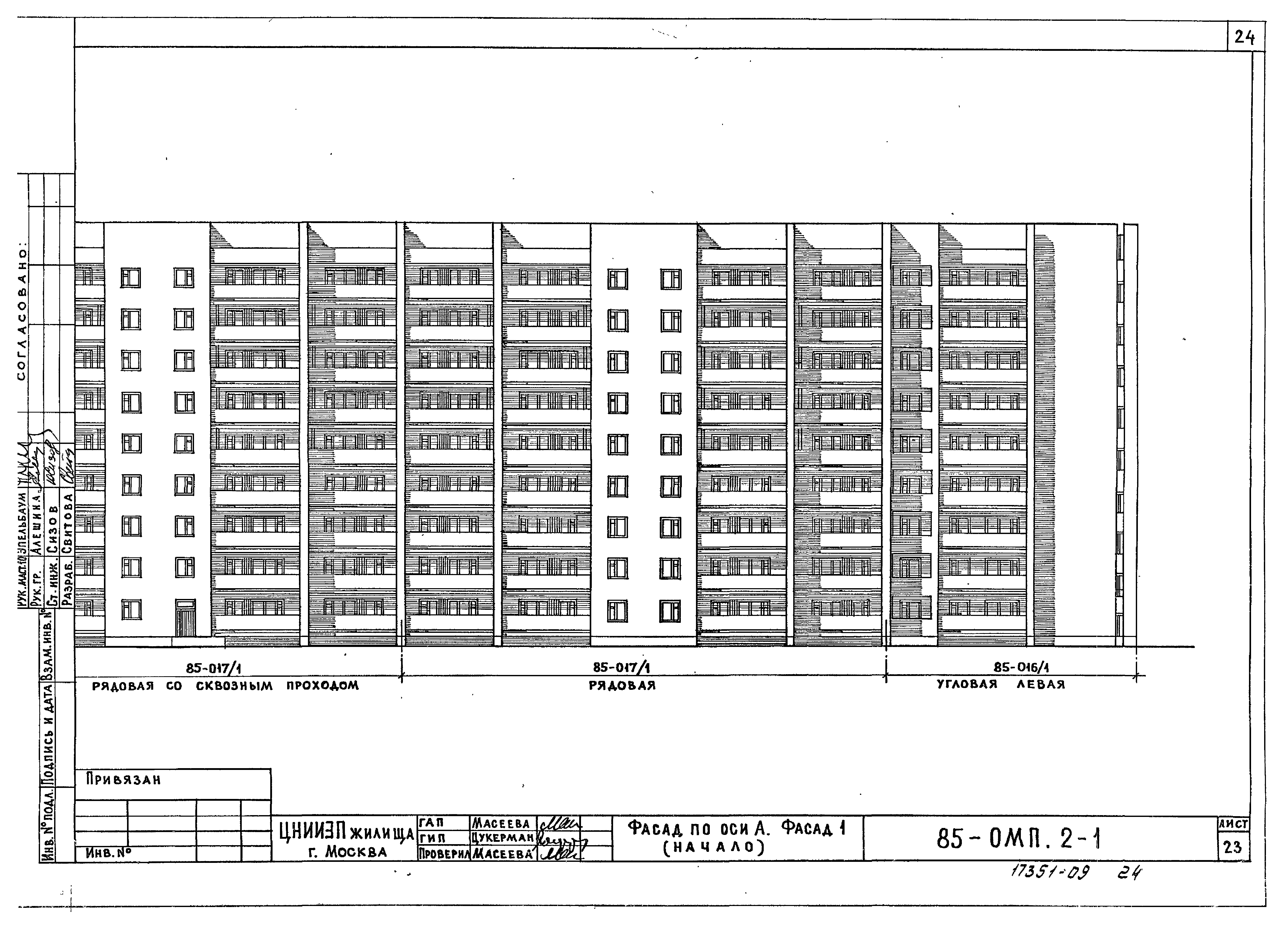
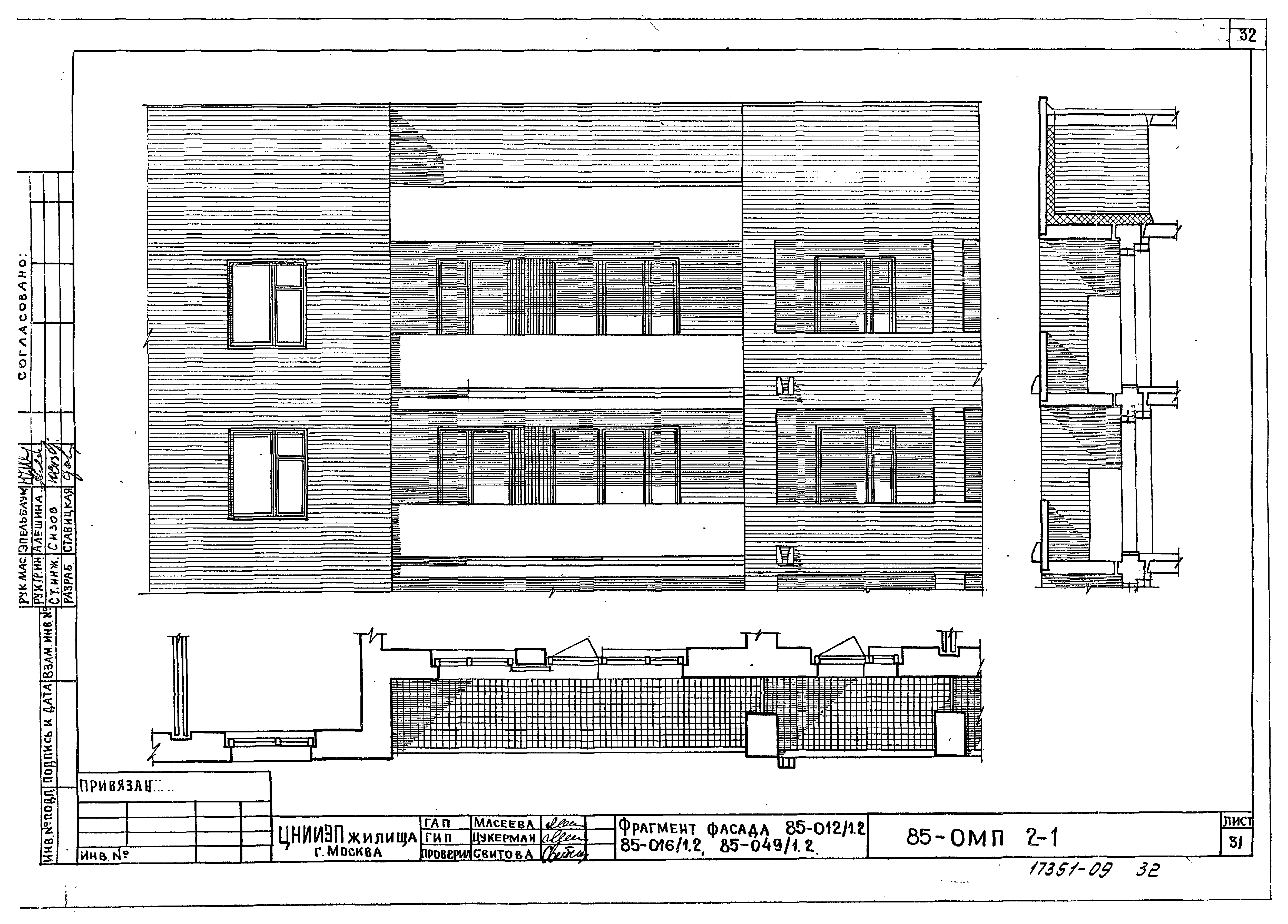
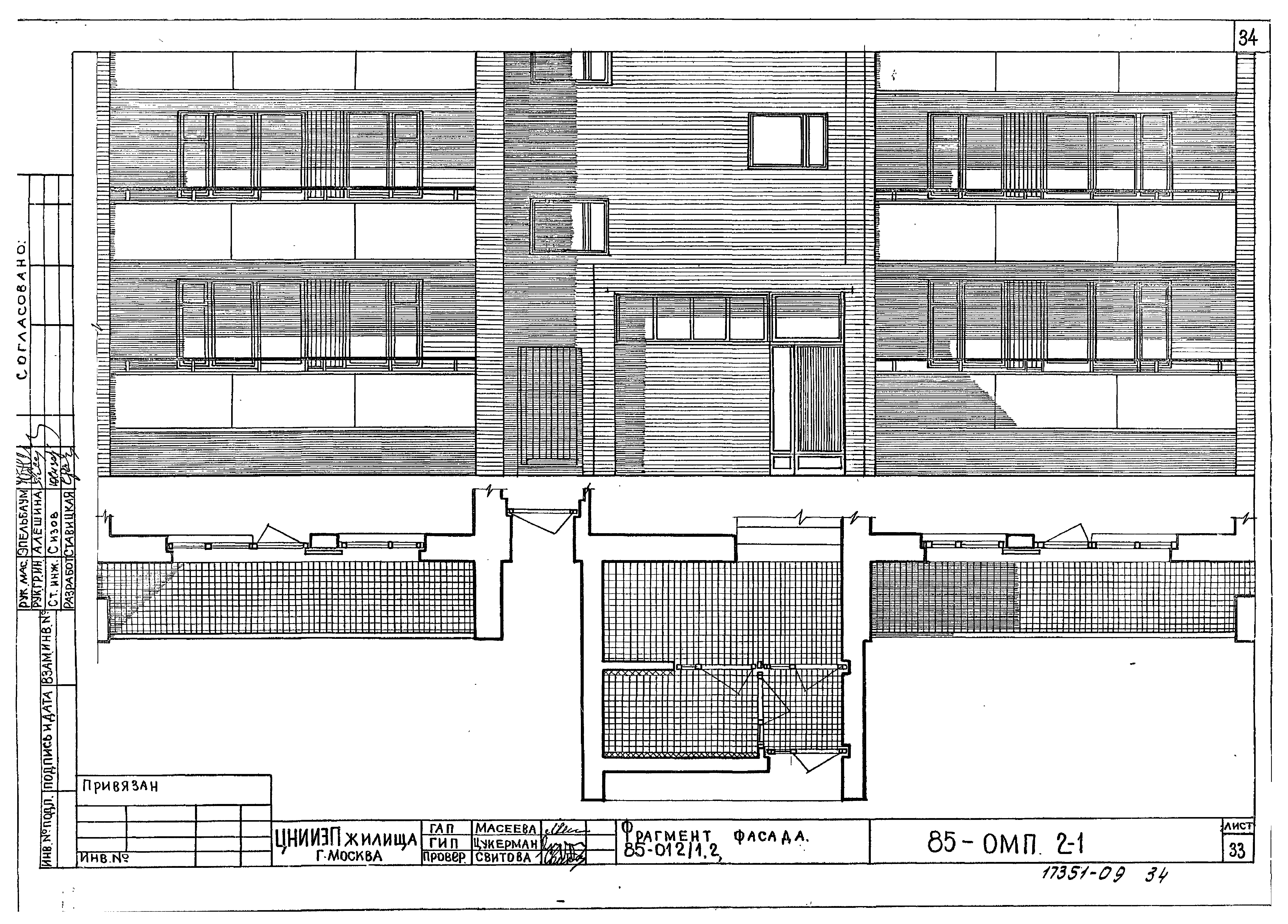
| Оглавление: | Общие данные Ведомость чертежей Номенклатура блок-секций Полный комплект. Основные комплекты. Прилагаемые документы Полный комплект. Ссылочные документы Схемы блокировок Таблица площадей и объемов Варианты проектных решений 85-012/1.2 и 85-049/1.2. Секция 2Б-2Б-3Б-3Б. Типовой этаж 85-012/1.2; 85-013/1.2. Фрагменты секции 1 этажа. Разрез 85-012/1.2. Секция 2Б-2Б-3Б-4Б. Вариант с поворотной вставкой 85-013/1.2. Секция 1Б-2Б-3Б-4Б. Типовой этаж Элементы блокировки 85-016/1.2. Секция 2Б-2Б-3Б-3Б. Типовой этаж 85-016/1.2; 85-023/1.2. Фрагменты секции 1 этажа 85-017/1.2. Секция -Б-2Б-2Б-2Б-3Б-3Б. Типовой этаж 85-017/1.2. Фрагменты секции 1 этажа. Разрез 85-023/1.2. Секция 2Б-2Б-3Б-3Б. Типовой этаж Элементы блокировки 85-049/1.2. План 1 этажа 85-049/1.2. План 2 этажа Фасад по оси А. Фасад 1 Фасад по оси А. Фасад 2 Фасад по оси И. Фасад 1 Фасад по оси Д. Фасад 1 Фасад по оси Д. Фасад 2 Фрагмент фасада 85-012/1.2; 85-016/1.2; 85-049/1.2 Фрагмент фасада 85-012/1.2; 85-049/1.2 Фрагмент фасада 85-017/1.2 Лоджии. Варианты ограждений Фрагмент фасада 85-049/1.2 |
| Разработан: | ЦНИИЭП жилища |
| Утверждён: | ЦНИИЭП жилища (TsNIIEPzhilishcha ) |






































