Скачать Типовой проект 902-2-470.89 Альбом 2. Технологические решения. Отопление и вентиляция. Внутренние водопровод и канализацияДата актуализации: 01.01.2021
|
| Обозначение: | Типовой проект 902-2-470.89 |
| Обозначение англ: | 902-2-470.89 |
| Статус: | не определен законодательством |
| Название рус.: | Альбом 2. Технологические решения. Отопление и вентиляция. Внутренние водопровод и канализация |
| Дата добавления в базу: | 01.10.2014 |
| Дата актуализации: | 01.01.2021 |
| Дата введения: | 27.04.1989 |
| Дата окончания срока действия: | 30.06.2003 |
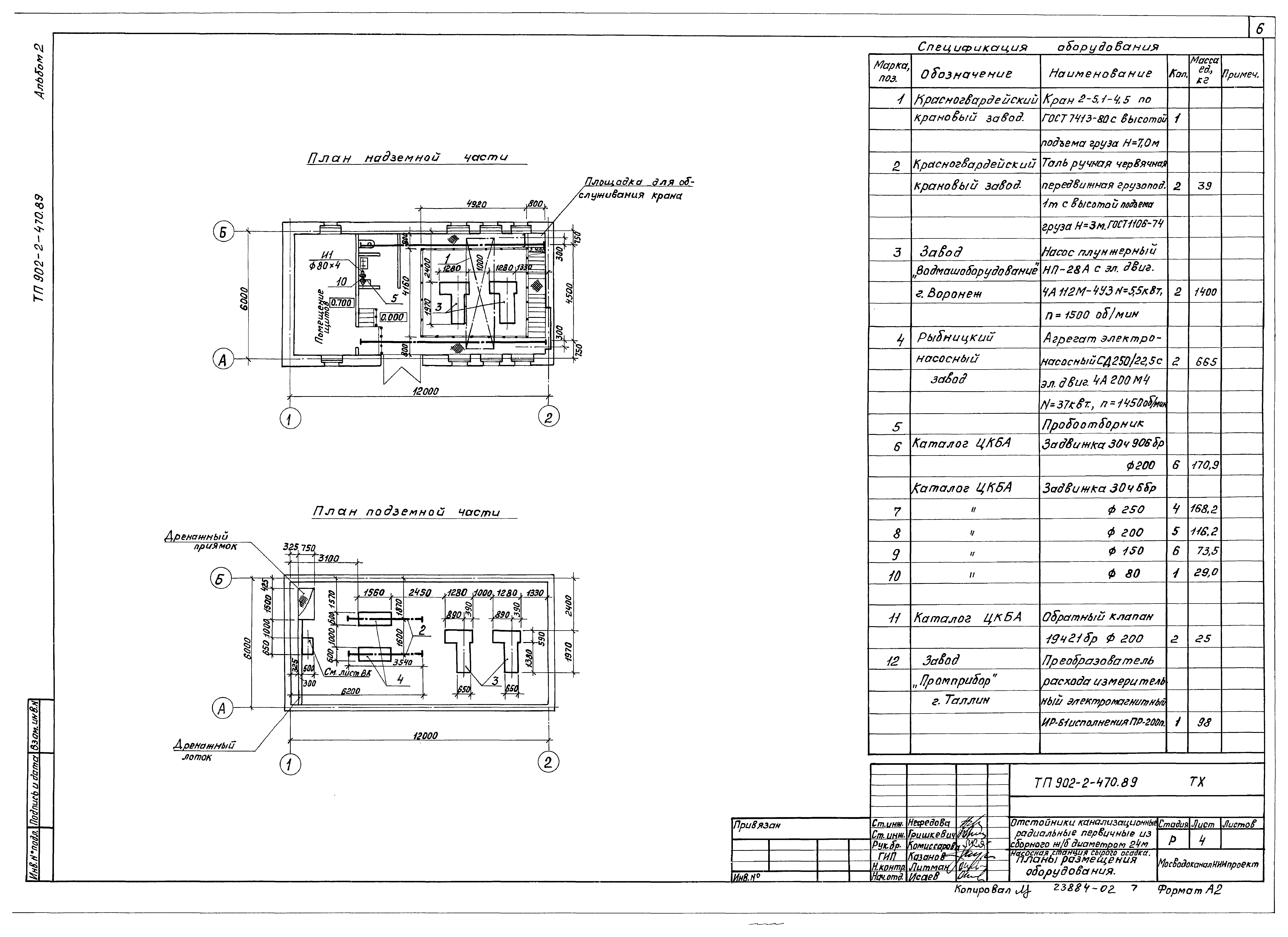
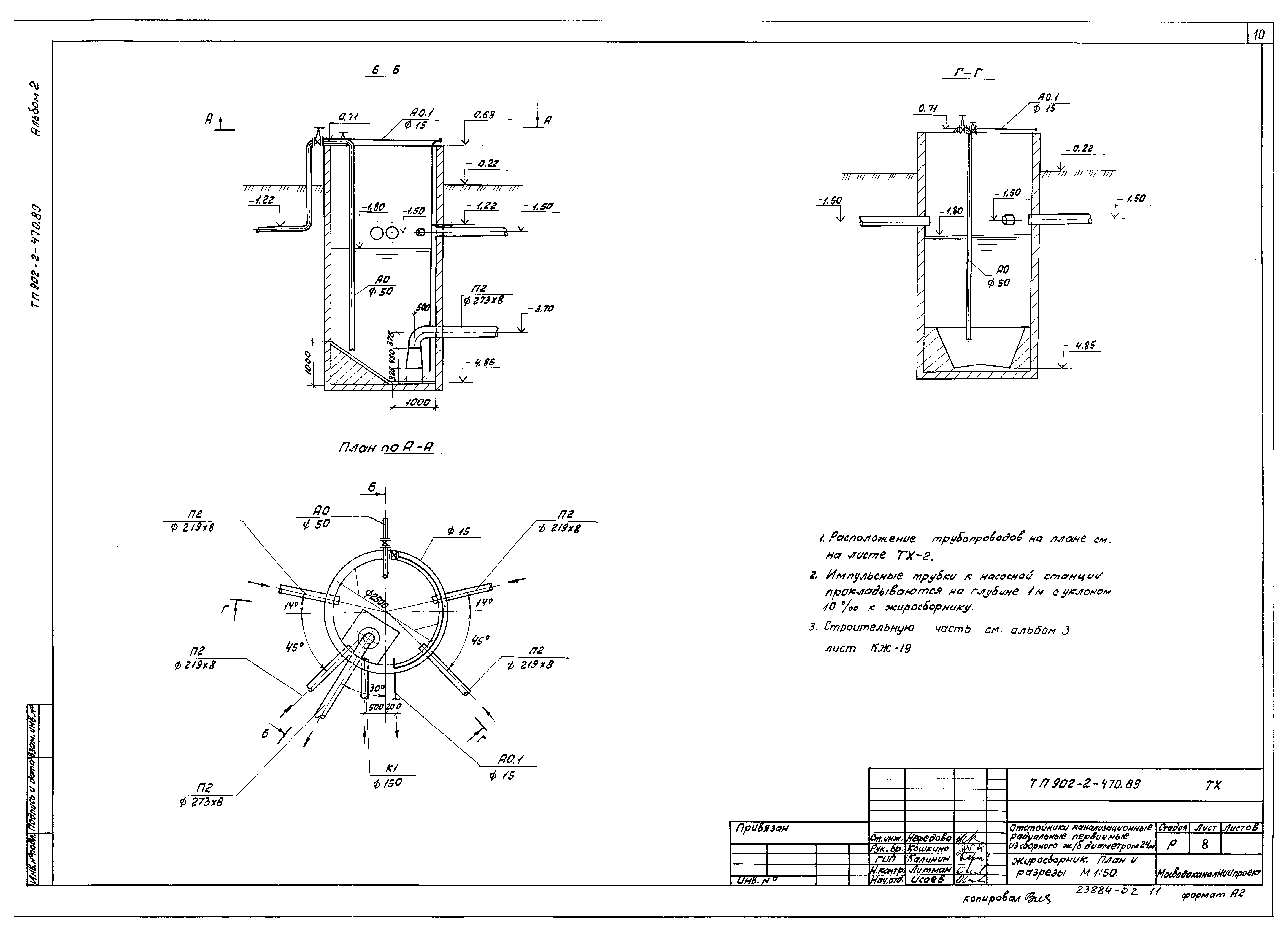
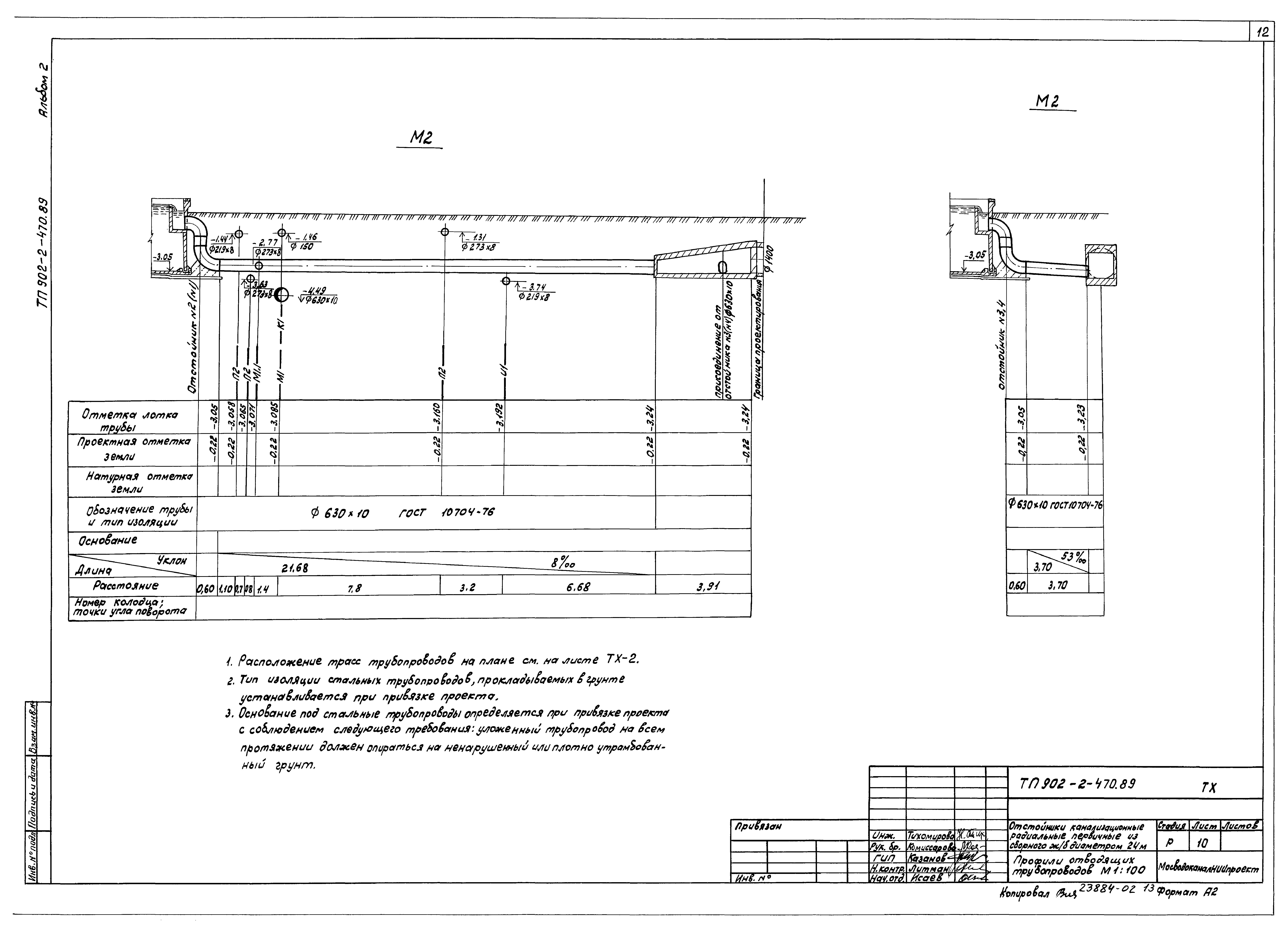
| Оглавление: | Содержание альбома Технические решения Общие данные План группы отстойников Отстойник №1. План, разрезы Насосная станция сырого осадка. Планы размещения оборудования Насосная станция сырого осадка. План, разрезы Насосная станция сырого осадка. Технологическая схема Распределительная чаша. Планы и разрезы Жиросборник. План и разрезы Профили подводящих трубопроводов Профили отводящих трубопроводов Профили всасывающих трубопроводов сырого осадка Профили трубопроводов промывных вод и опорожнения Профили жиропроводов Отопление и вентиляция Общие данные Планы на отм. - 3.800 и 0.000. Схема системы отопления. Схема системы П1 Установка системы П1. План. Разрез. Спецификация Узел управления. Спецификация. Схема систем теплоснабжения установки П1 Переходы утепленные Переходы неутепленные Внутренний водопровод и канализация Общие данные Насосная станция сырого осадка. Планы и схемы систем |
| Разработан: | МосводоканалНИИпроект |
| Утверждён: | 24.04.1989 Мосгорисполком (Mosgorispolkom 841р) |






















