Скачать Типовой проект 902-2-470.89 Альбом 6. Электросиловое оборудование. Автоматизация технологического процесса. Автоматизация вентсистемДата актуализации: 01.01.2021
|
| Обозначение: | Типовой проект 902-2-470.89 |
| Обозначение англ: | 902-2-470.89 |
| Статус: | не определен законодательством |
| Название рус.: | Альбом 6. Электросиловое оборудование. Автоматизация технологического процесса. Автоматизация вентсистем |
| Дата добавления в базу: | 01.10.2014 |
| Дата актуализации: | 01.01.2021 |
| Дата введения: | 27.04.1989 |
| Дата окончания срока действия: | 30.06.2003 |
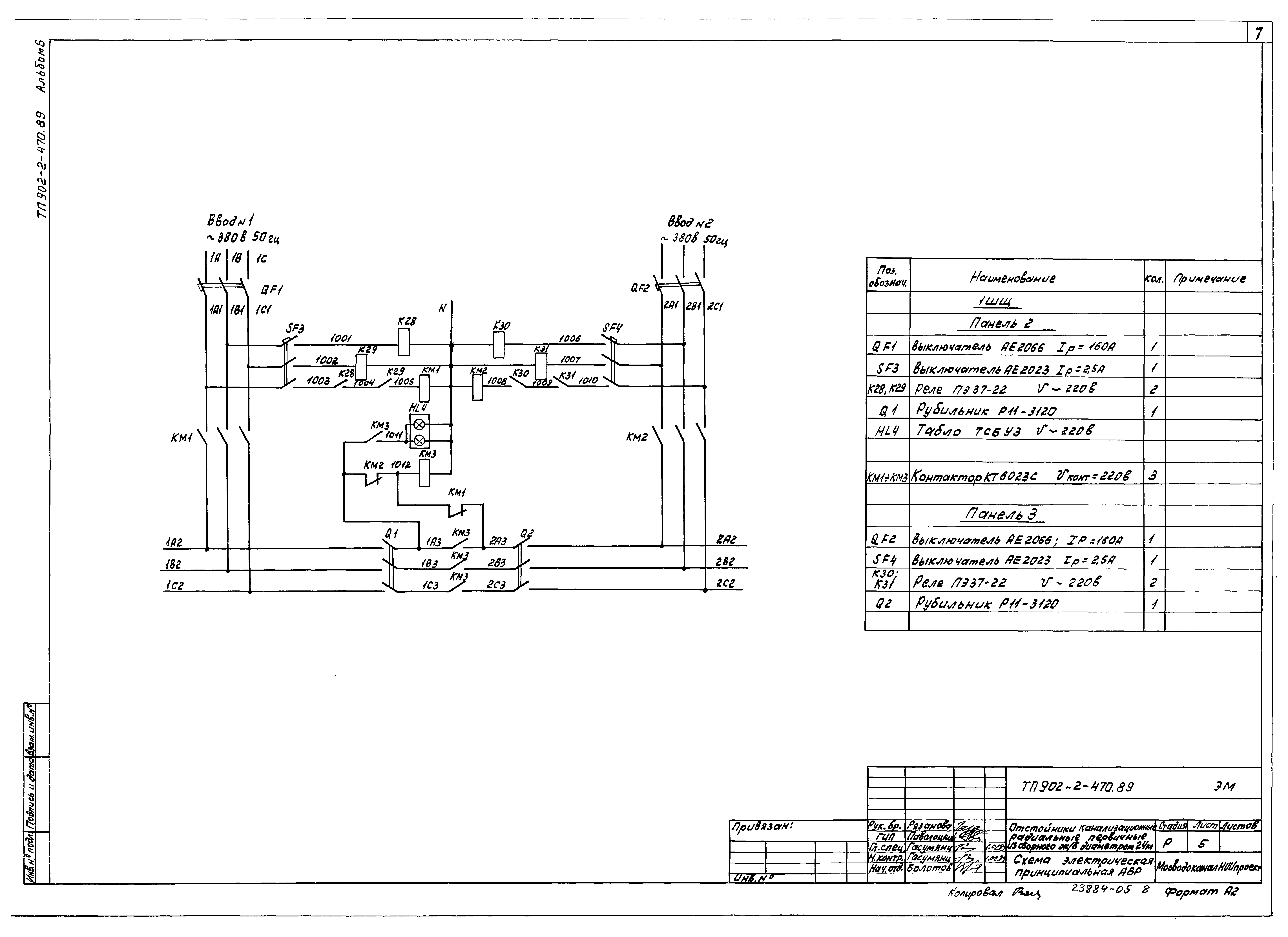
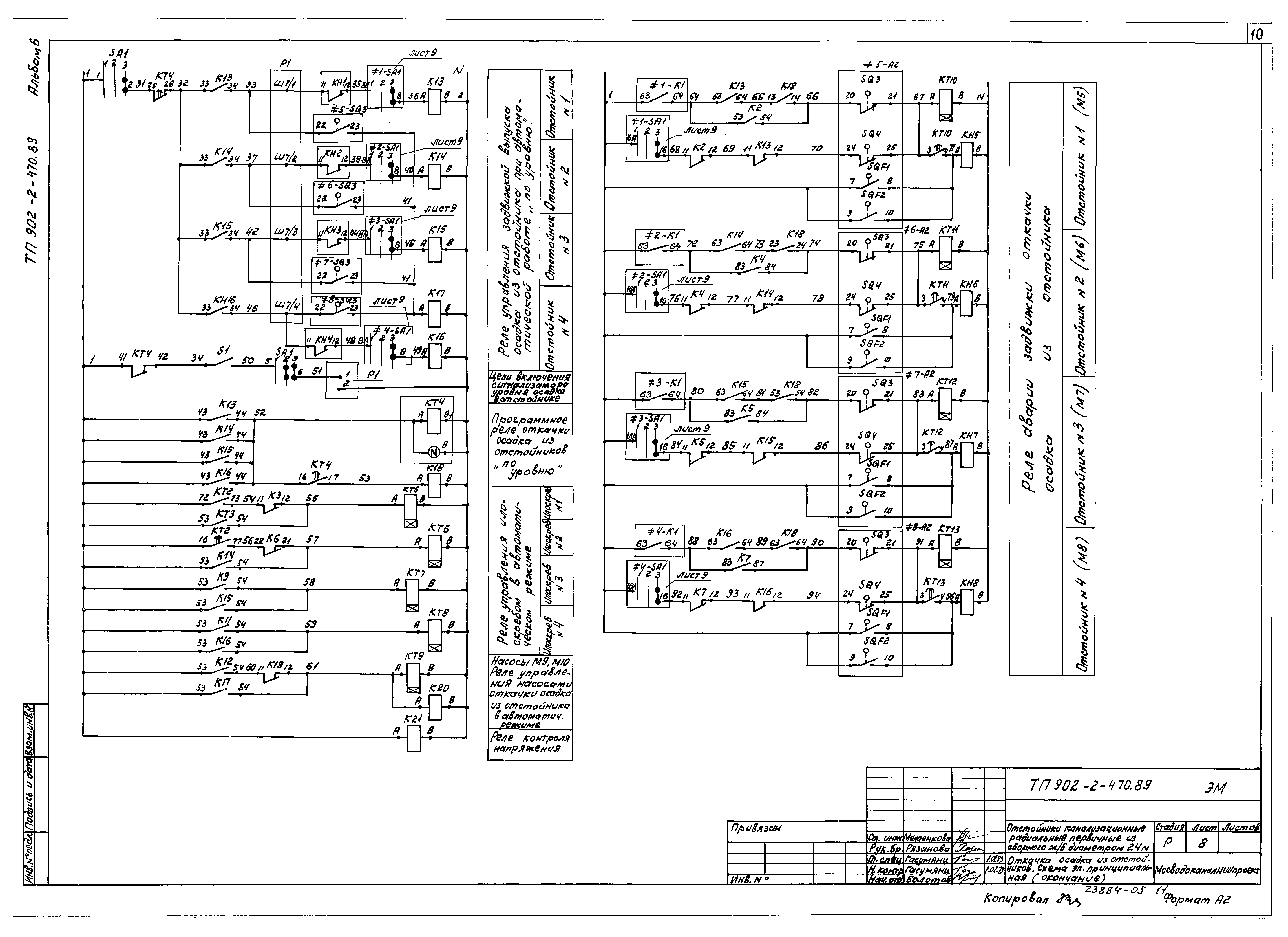
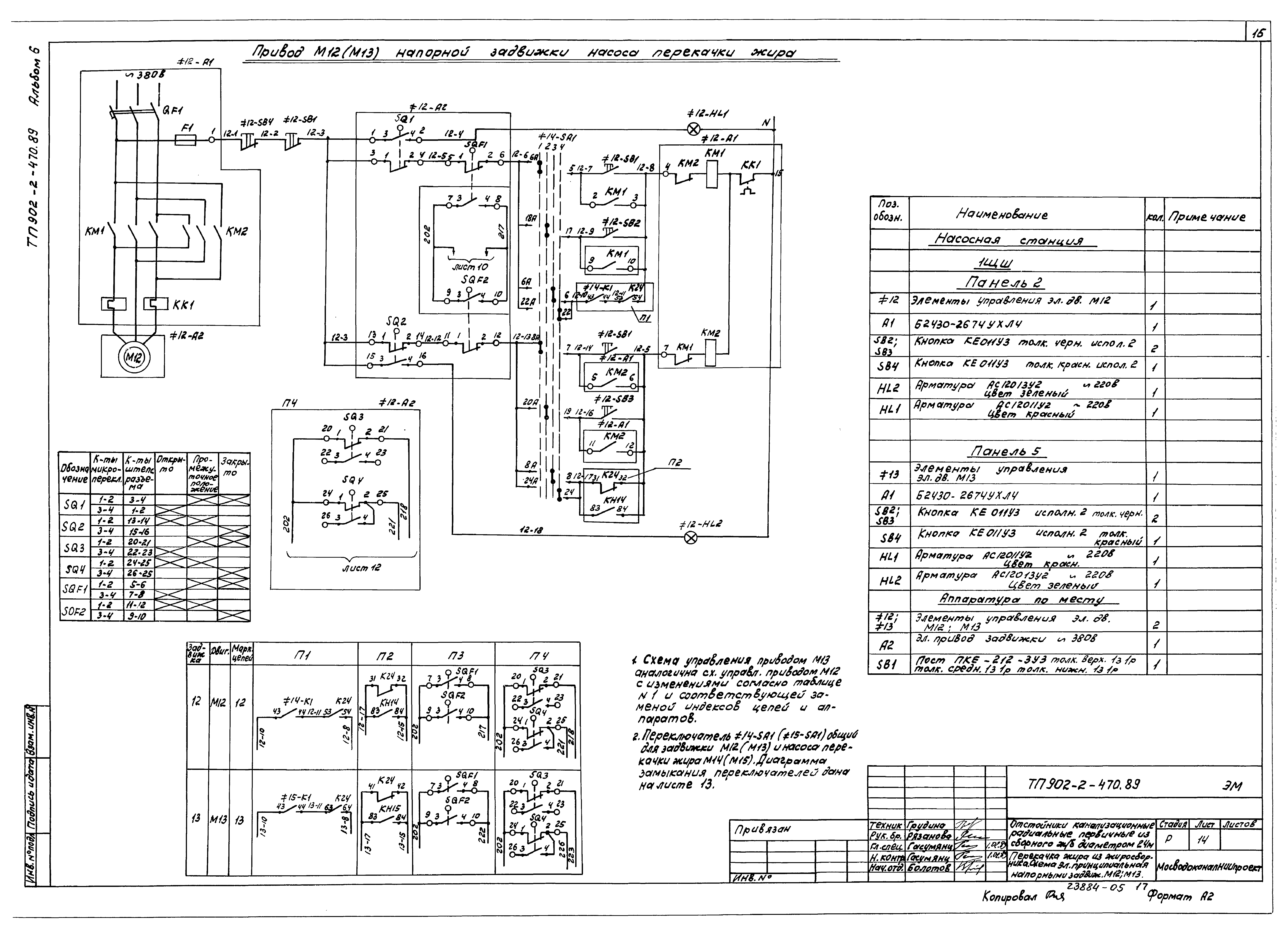
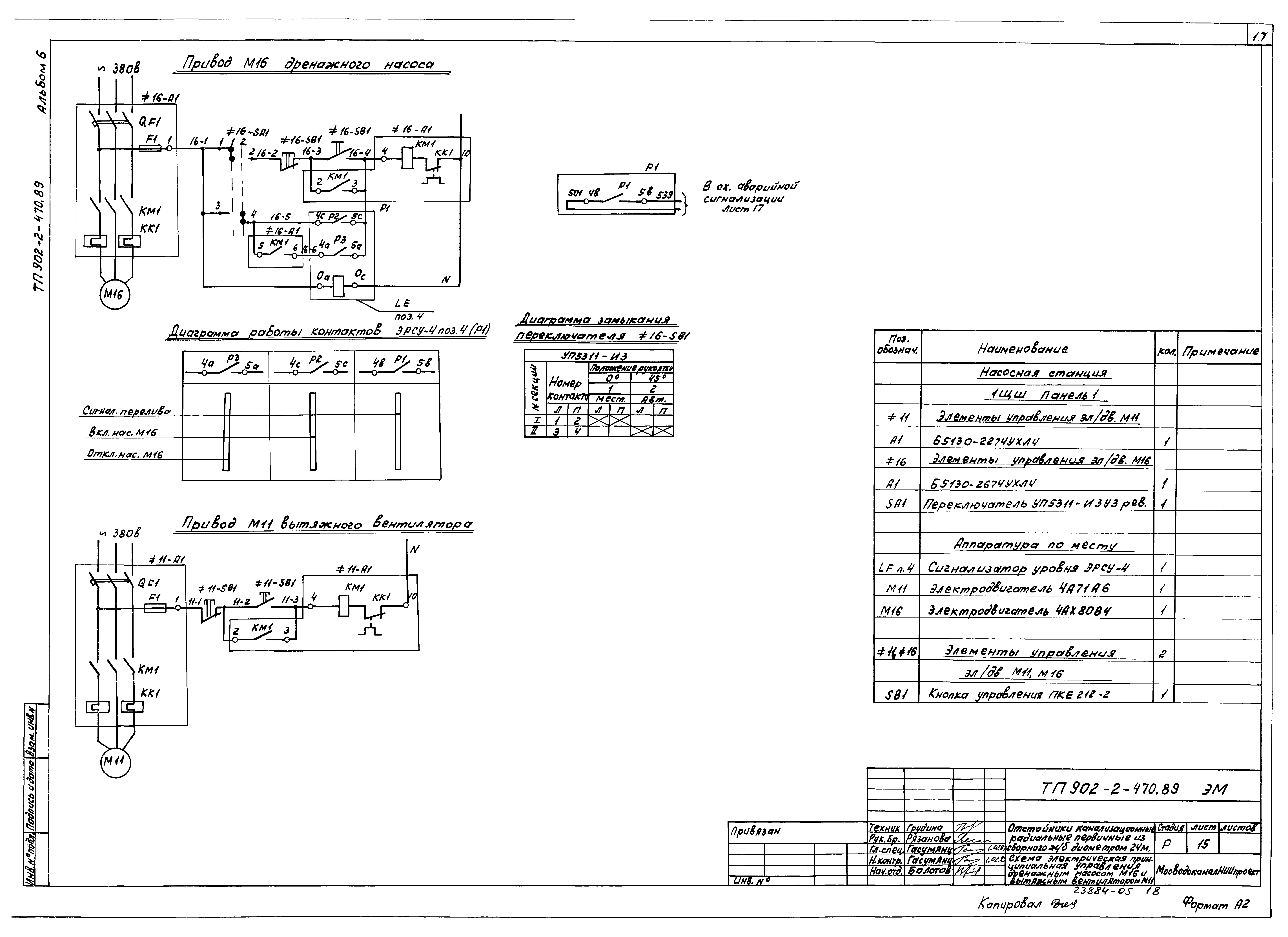
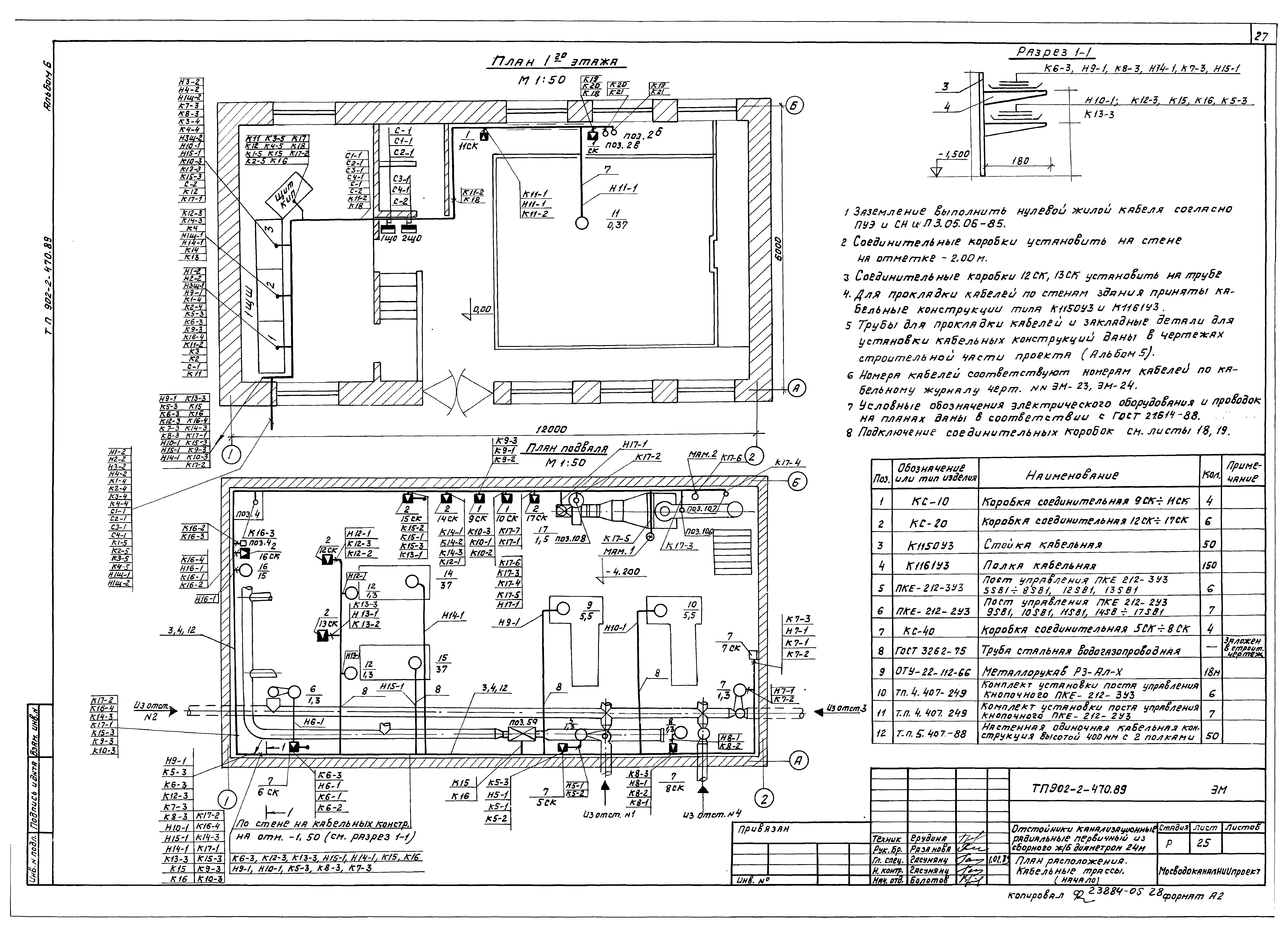
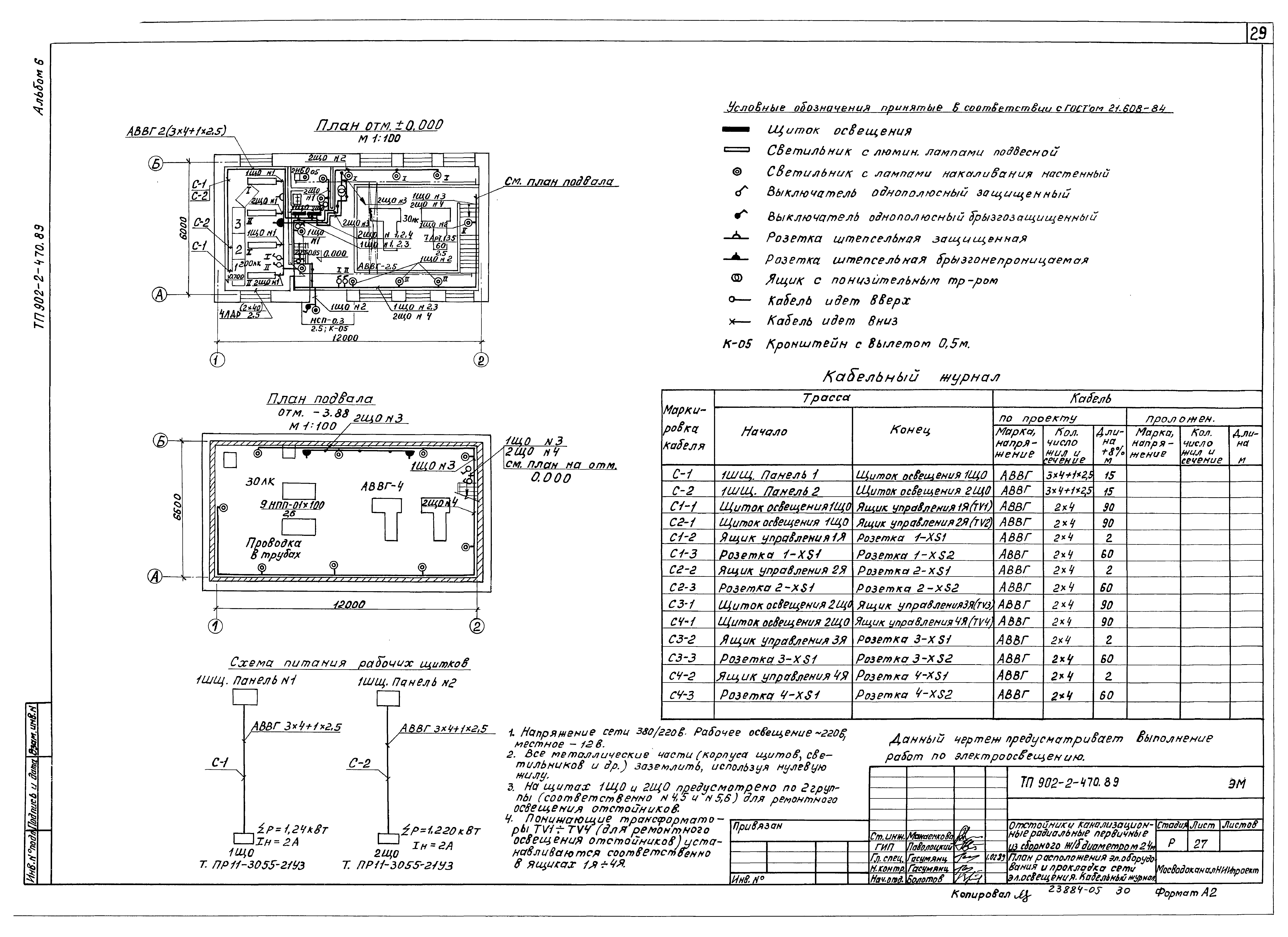
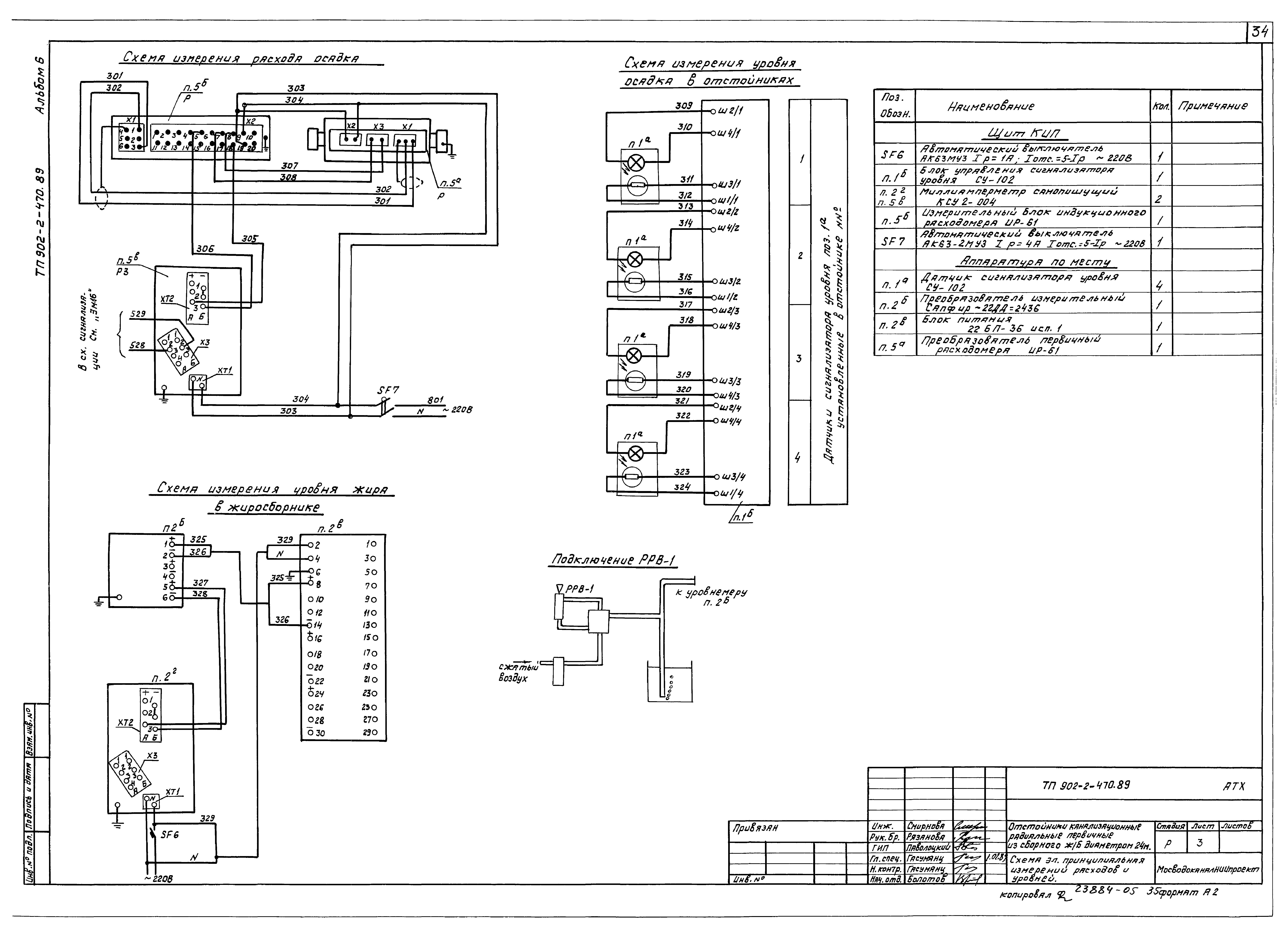
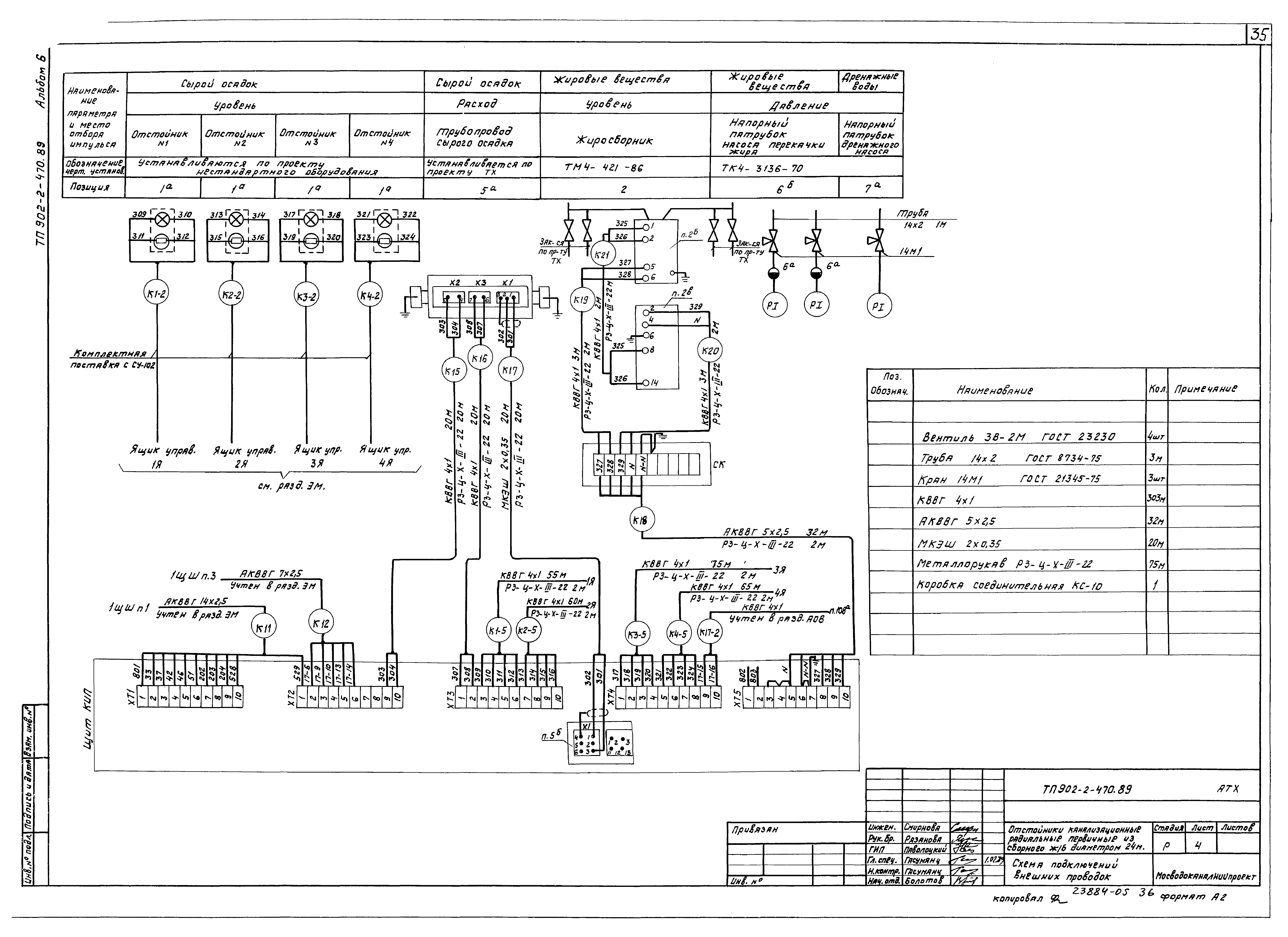
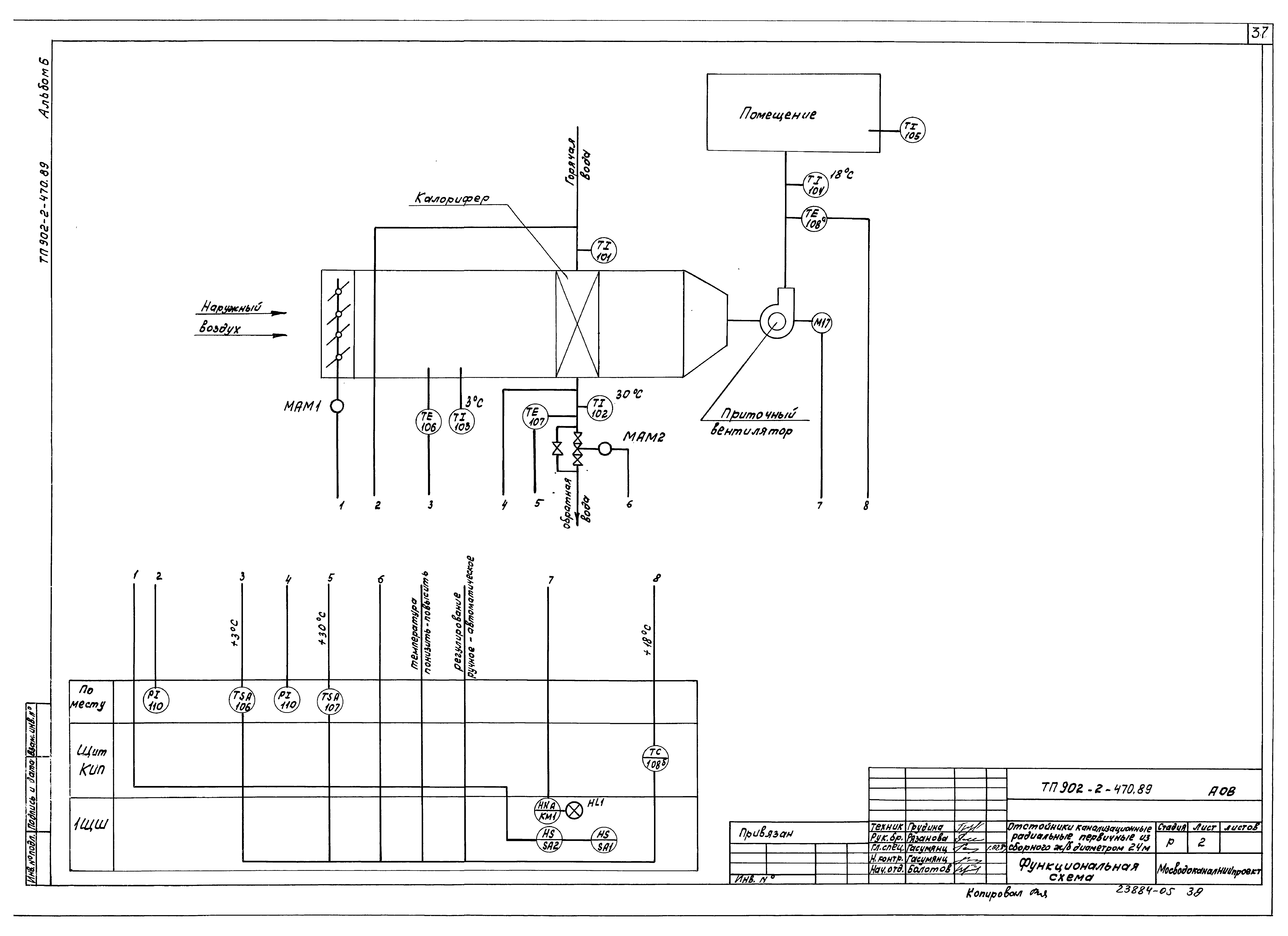
| Оглавление: | Содержание альбома Чертежи основного комплекта марки ЭМ Общие данные Функциональная схема Схема электрическая принципиальная распределительной сети 380/220 В Схема электрическая принципиальная АВР Откачка осадка из отстойников. Диаграмма работы механизмов и настройка программных реле времени Откачка осадка из отстойников. Схема электрическая принципиальная Откачка осадка из отстойников. Схема электрическая принципиальная управления илоскребами (М1…М4) Откачка осадка из отстойников. Схема электрическая принципиальная управления задвижками выпуска осадка (М5…М8) Откачка осадка из отстойников. Схема электрическая принципиальная управления насосами М9, М10 Перекачка жира из жиросборника. Схема электрическая принципиальная Перекачка жира из жиросборника. Схема электрическая принципиальная управления насосами М14, М15 Перекачка жира из жиросборника. Схема электрическая принципиальная управления напорными задвижками М12…М13 Схема электрическая принципиальная управления дренажным насосом М16 и вытяжным вентилятором М11 Схема электрическая принципиальная аварийной сигнализации Схема подключения внешних проводок Кабельный журнал План расположения. Кабельные трассы План расположения электрооборудования. Прокладка сети электроосвещения. Кабельный журнал Щит 1ЩШ. Ящики 1Я…4Я. Эскизный чертеж общего вида Чертежи основного комплекта марки АТК Общие данные Схема автоматизации. Схема питания Схема электрическая принципиальная измерения расходов и уровней Схема подключений внешних проводок Чертежи основного комплекта марки АОВ Общие данные Функциональная схема Схема электрическая принципиальная управления и регулирования приточной системой Схема соединений внешних проводок |
| Разработан: | МосводоканалНИИпроект |
| Утверждён: | 24.04.1989 Мосгорисполком (Mosgorispolkom 841р) |







































