Скачать Типовой проект 144-000-545.87 Альбом I. Архитектурно-строительные, санитарно-технические и электротехнические чертежиДата актуализации: 01.01.2021
|
| Обозначение: | Типовой проект 144-000-545.87 |
| Обозначение англ: | 144-000-545.87 |
| Статус: | действует |
| Название рус.: | Альбом I. Архитектурно-строительные, санитарно-технические и электротехнические чертежи |
| Дата добавления в базу: | 01.10.2014 |
| Дата актуализации: | 01.01.2021 |
| Дата введения: | 06.02.1987 |
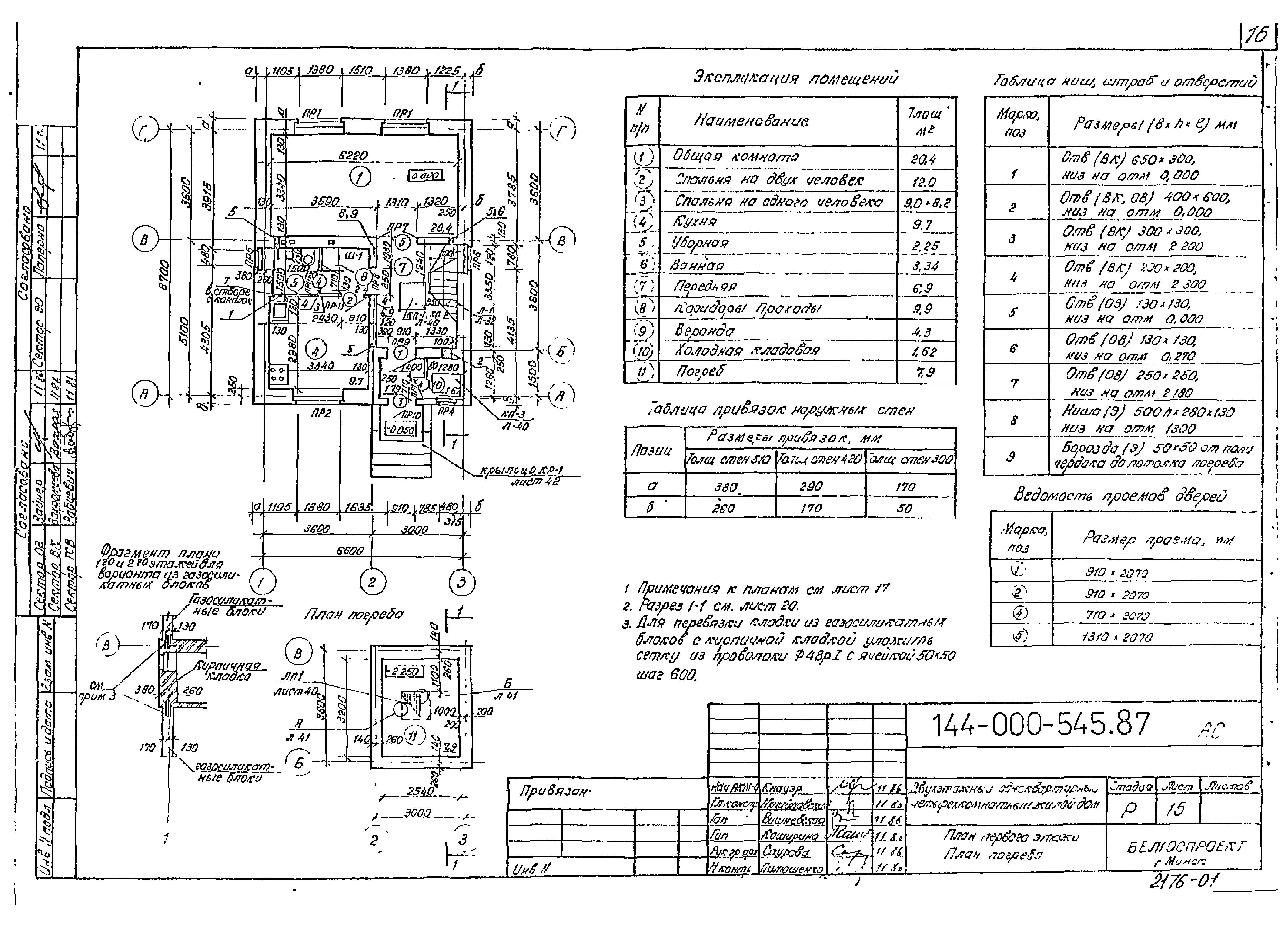
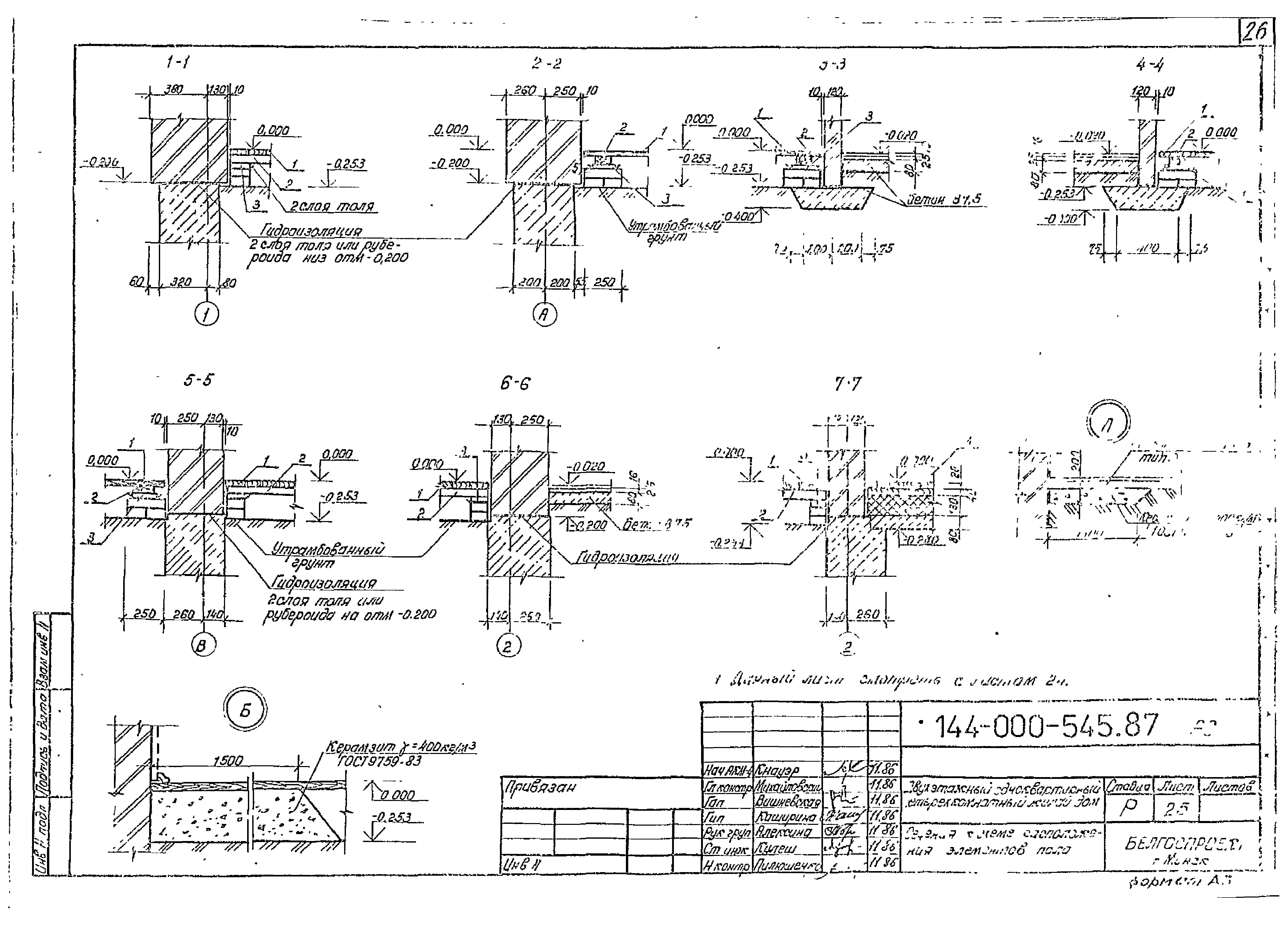
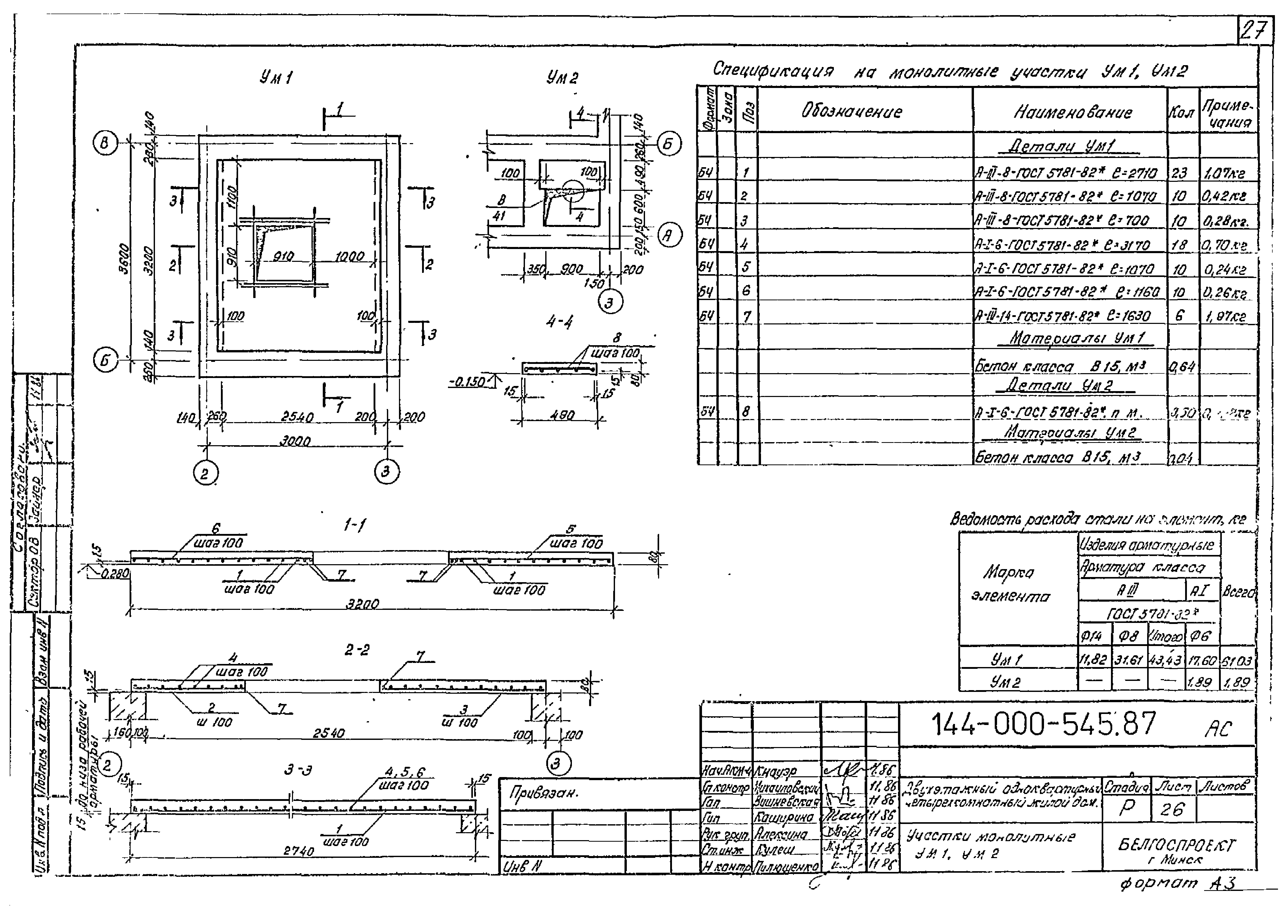
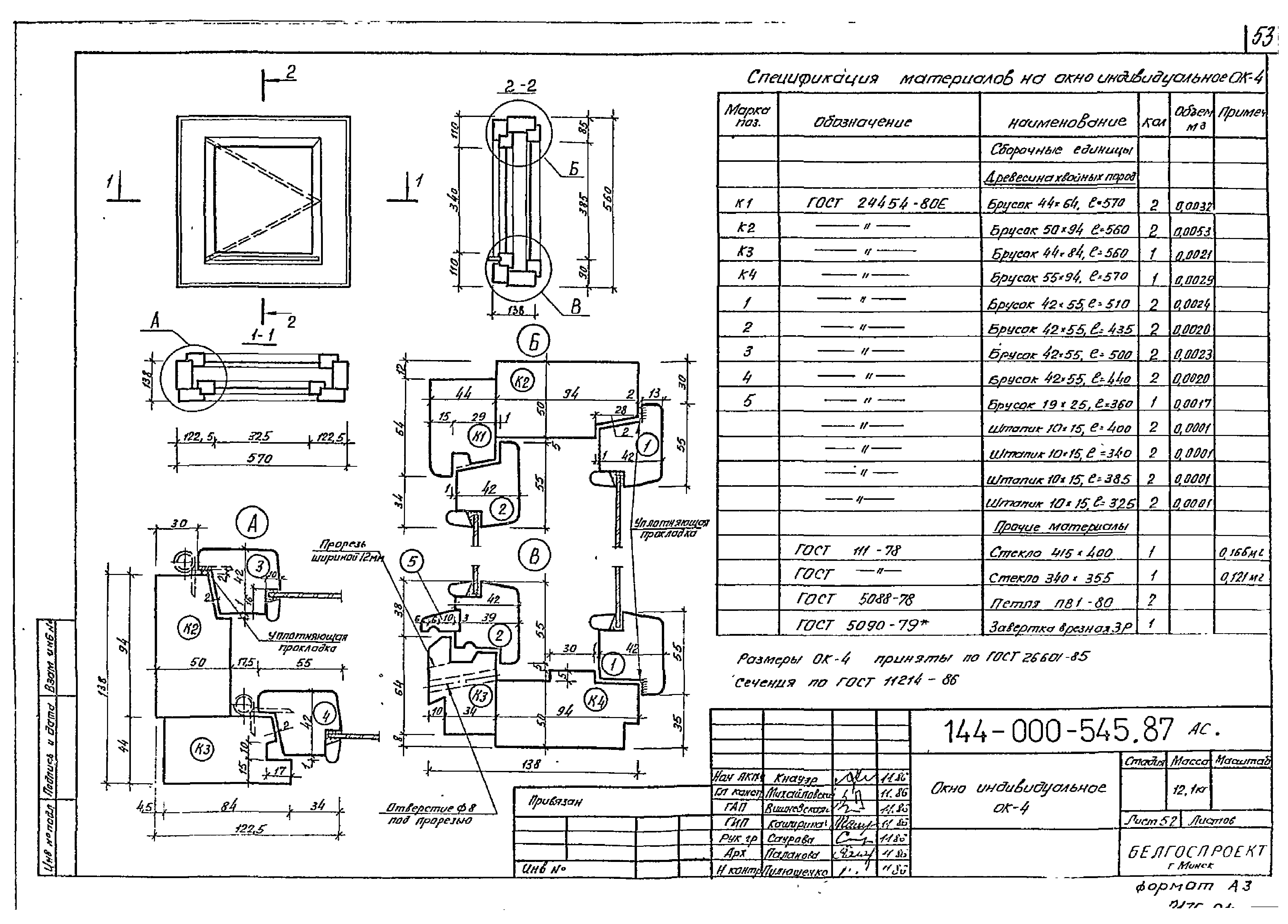
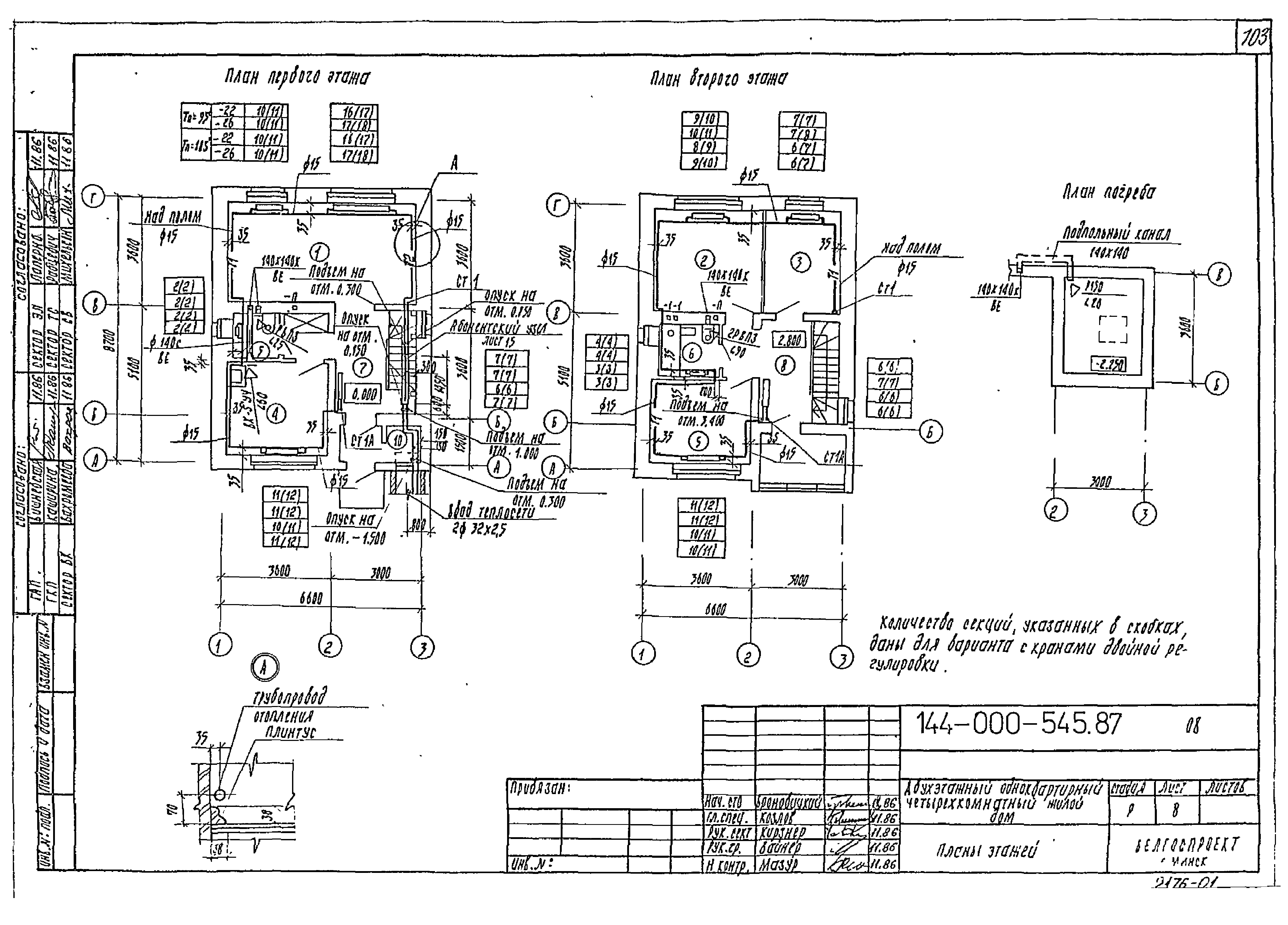
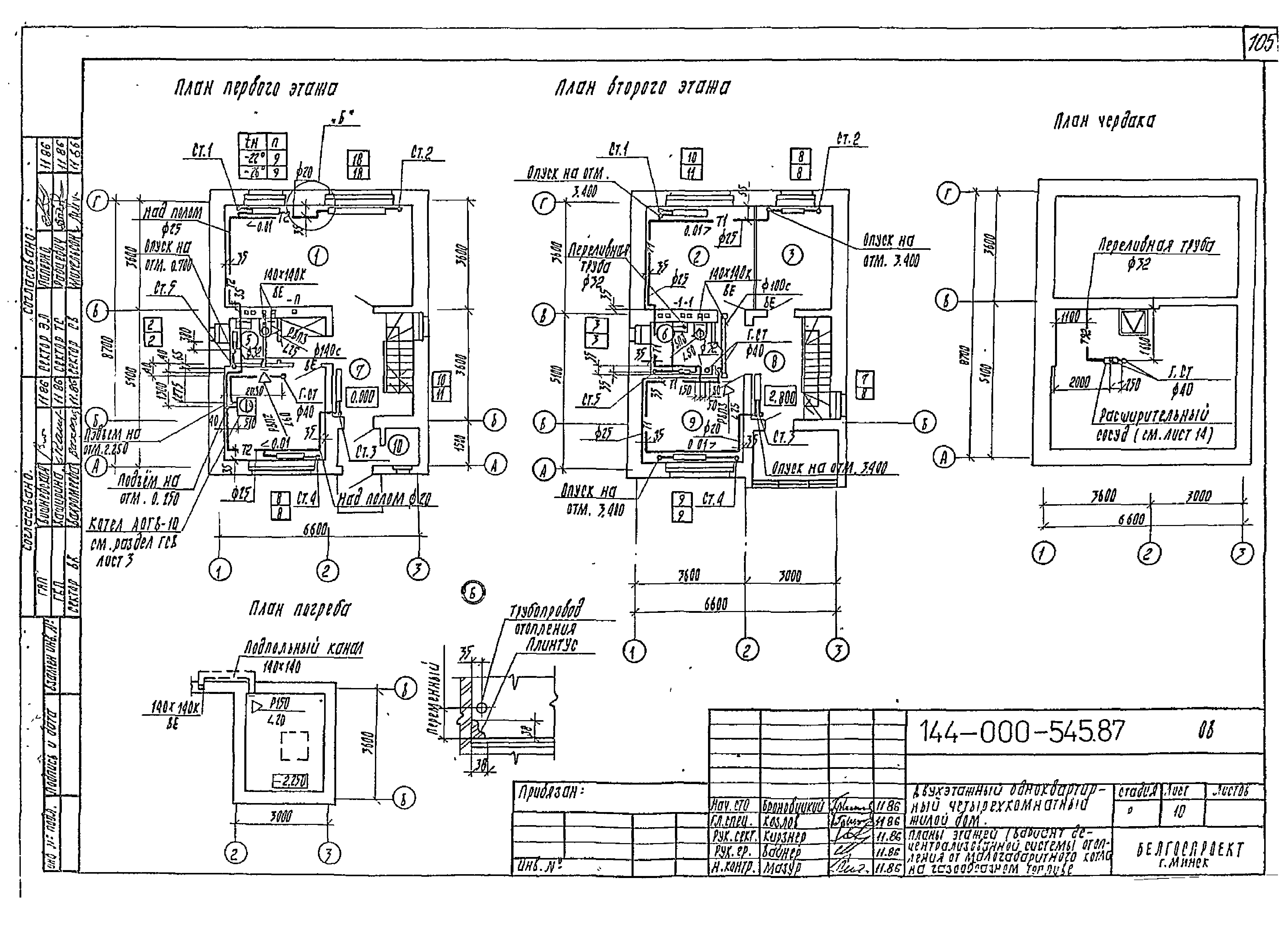
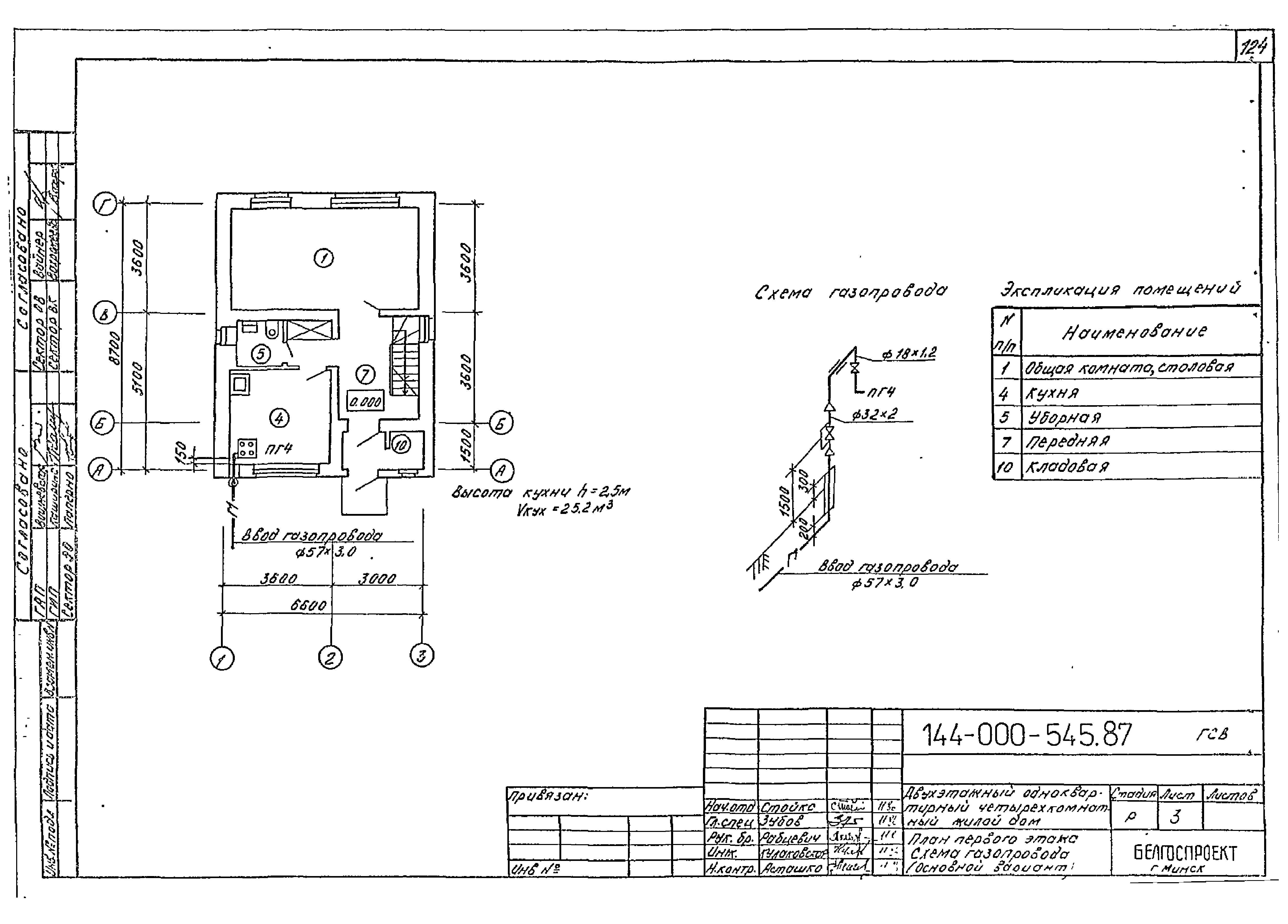
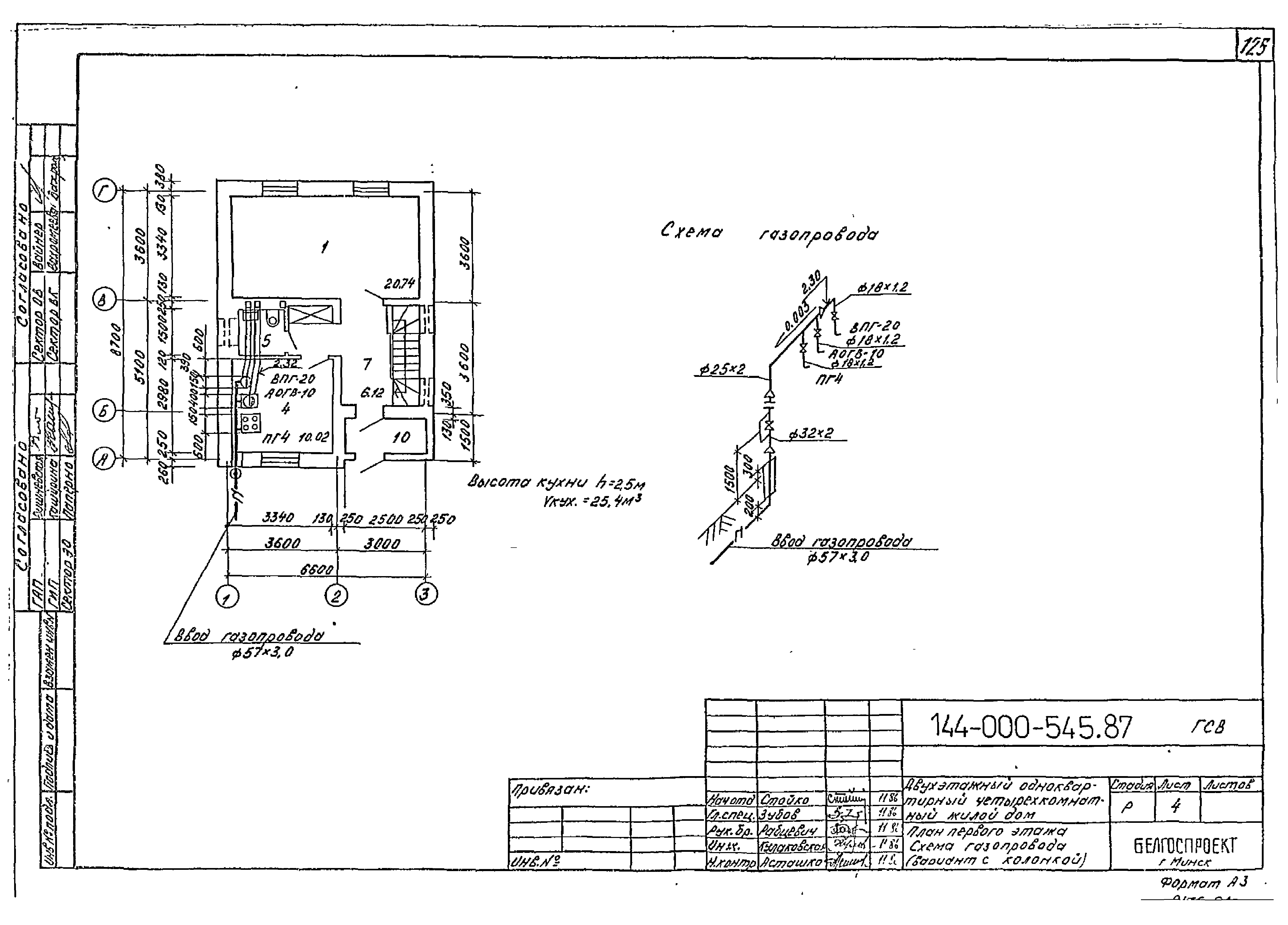
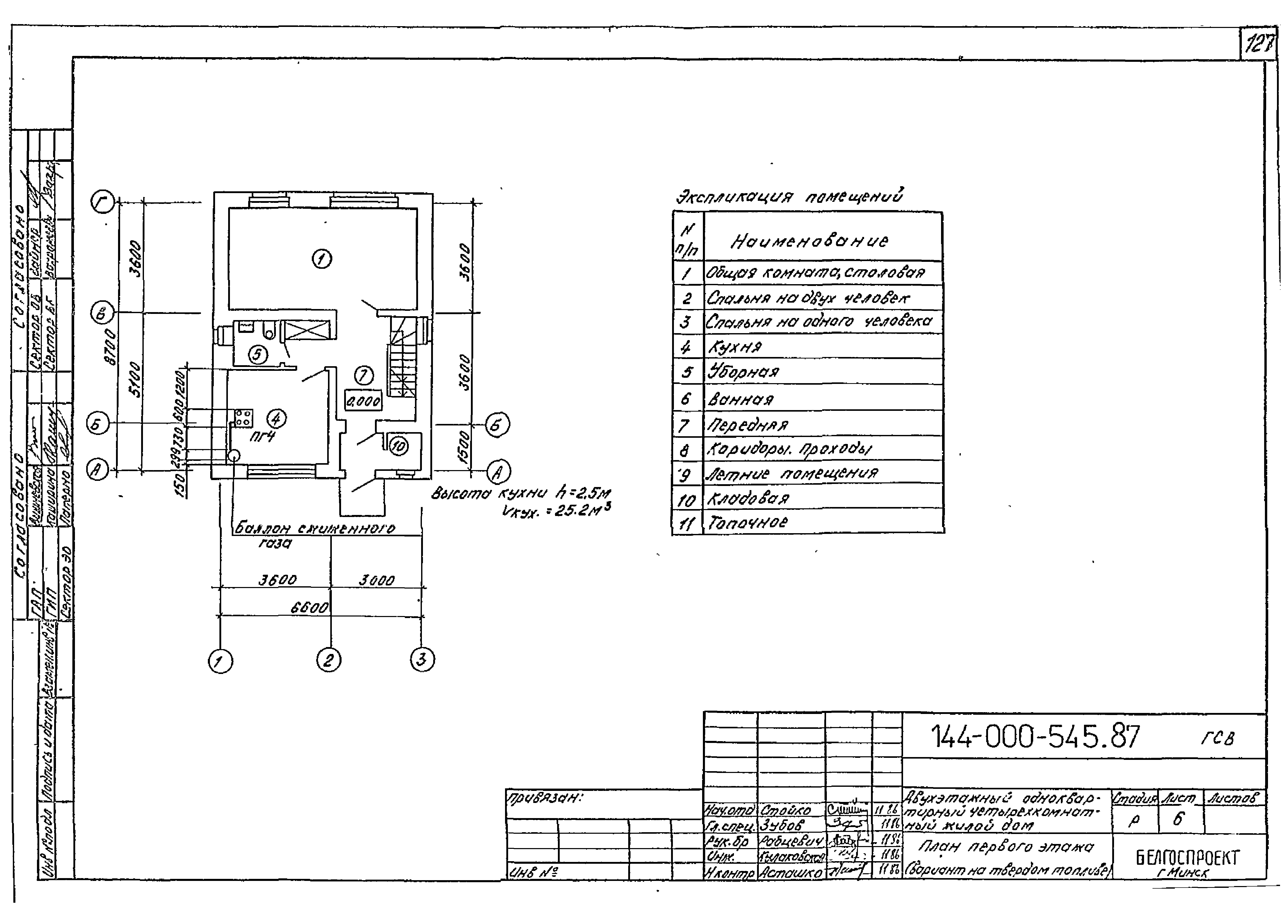
| Оглавление: | Чертежи основного комплекта марки АР Общие данные План первого этажа. План погреба План второго этажа Примечания к планам Фасад 1 - 3. Фасад 3 - 1 Фасад А - Г. Фасад Г - А Разрез 1-1 Таблица усредненных расчетных нагрузок Схема расположения элементов фундаментов Сечения по фундаментам Схема расположения элементов пола на отм. 0.000 Сечения к схеме расположения элементов пола Участки монолитные УМ-1, УМ-2 Схема расположения элементов перекрытия на отм. 2.480 Схема расположения элементов перекрытия на отм. 5.300 Сечения к схеме расположения элементов перекрытия Арматурные изделия Лестница Л1 Лестница Л1. Детали Лестничный марш ЛМ1 Ограждение лестницы ОГ1, ОГ2 Лестница Л1. Детали Спецификация элементов на лестницу Л1 Лестница Л2 Лестница ЛП1. Крышки люка КП1, КП2, КП3 Узлы крепления лестницы ЛП1 и крышек люка КП1, КП2, КП3 Входное крыльцо КР1 Ведомость и спецификация перемычек Развертка стены по оси В с вентканалами Схема расположения элементов покрытия Разрезы 1-1, 2-2. Узлы 1, 2 схемы расположения элементов покрытия Разрез 3-3. Узлы 5, 6 схемы расположения элементов покрытия Узлы 3, 4, 7 схемы расположения элементов покрытия Узлы кровли 1 - 5 План кровли Схемы заполнения оконных проемов. Спецификация столярных изделий Окно индивидуальное ОК-4 Окно индивидуальное ОК-3 Окно индивидуальное ОК-5 с жалюзийным заполнением Шкаф Ш-1 Планы полов. Экспликация полов Ведомость отделки помещений Ведомость отделки помещений. Ведомость отделки фасадов Планы первого и второго этажей. Вариант горячего водоснабжения от газового нагревателя План подвала. Вариант горячего водоснабжения от водогрейной колонки на твердом топливе Планы первого и второго этажей. Вариант горячего водоснабжения от водогрейной колонки на твердом топливе Разрез 1-1. Вариант с подвалом Планы полов. Экспликация полов (вариант) Схемы расположения элементов фундаментов (вариант) Схемы расположения элементов стен подвала (вариант) Сечения по фундаментам (вариант с подвалом) Вариант фундаментов на пучинистых грунтах Схема расположения элементов пола на отм. 0.000 (вариант с подвалом) Схема расположения элементов перекрытия над подвалом. Сечения Схема расположения элементов перекрытия на отм. 2.800 (вариант) Схема расположения элементов перекрытия на отм. 5.300 (вариант) Узлы и детали к схемам расположения перекрытий (вариант) Ведомость и спецификация перемычек (вариант) Ограждение абонентского узла ОГ-1 (примерное решение) Вариант расстановки мебели Варианты фасадов Ведомость и спецификация перемычек (для варианта фасадов 1) Крыльцо КР-2 для варианта фасадов 1 Варианты пристроенных строений, архитектурных элементов и деталей (фасады) Варианты блокировок Вариант пристроенных строений, архитектурных элементов и деталей. Схемы Чертежи основного комплекта марки ВК Общие данные Планы этажей. Схема В1, Т3, Т4, К1 Планы этажей. Схема В1, Т3, Т4, К1 (вариант с газовым водонагревателем ВПГ-20) Планы этажей (вариант с котлом на твердом топливе КС-ТГ-20В) Схема В1, Т3, К1 (вариант с котлом на твердом топливе КС-ТГ-20В) Спецификации оборудования Чертежи основного комплекта марки ОВ Общие данные Планы этажей Планы этажей (вариант с конвекторами "Универсал-20") Планы этажей (вариант децентрализованной системы отопления от малогабаритного котла на газообразном топливе) Планы этажей (вариант децентрализованной системы отопления от малогабаритного котла на твердом топливе) Схемы стояков системы отопления (радиаторный и конвекторный варианты) Схемы системы отопления (вариант децентрализованной системы отопления от малогабаритного котла на газообразном топливе) Схемы системы отопления (вариант децентрализованной системы отопления от малогабаритного котла на твердом топливе) Абонентский узел План топочного отделения. Установка и обвязка малогабаритного котла на твердом топливе Спецификация оборудования Чертежи основного комплекта марки ГСВ Общие данные План 1 этажа, схема газопровода (основной вариант) План 1 этажа, схема газопровода (вариант с колонкой) План 2 этажа (вариант с колонкой) План 1 этажа (вариант на твердом топливе) План 1 этажа (вариант без блокировки) Спецификация оборудования Чертежи основного комплекта марки Э Общие данные Первый этаж. Второй этаж. Подвал. Погреб. Планы расположения Спецификация оборудования Чертежи основного комплекта марки СС Общие данные План первого этажа, план второго этажа с сетями радиофикации Спецификация оборудования |
| Разработан: | Белгоспроект |
| Утверждён: | 06.02.1987 Госстрой БССР (BSSR Gosstroy 15) |

















































































































































