Скачать Типовой проект 221-1-25-372 Альбом III. Электротехнические чертежиДата актуализации: 01.01.2021
|
| Обозначение: | Типовой проект 221-1-25-372 |
| Обозначение англ: | 221-1-25-372 |
| Статус: | действует |
| Название рус.: | Альбом III. Электротехнические чертежи |
| Дата добавления в базу: | 01.10.2014 |
| Дата актуализации: | 01.01.2021 |
| Дата введения: | 25.08.1980 |
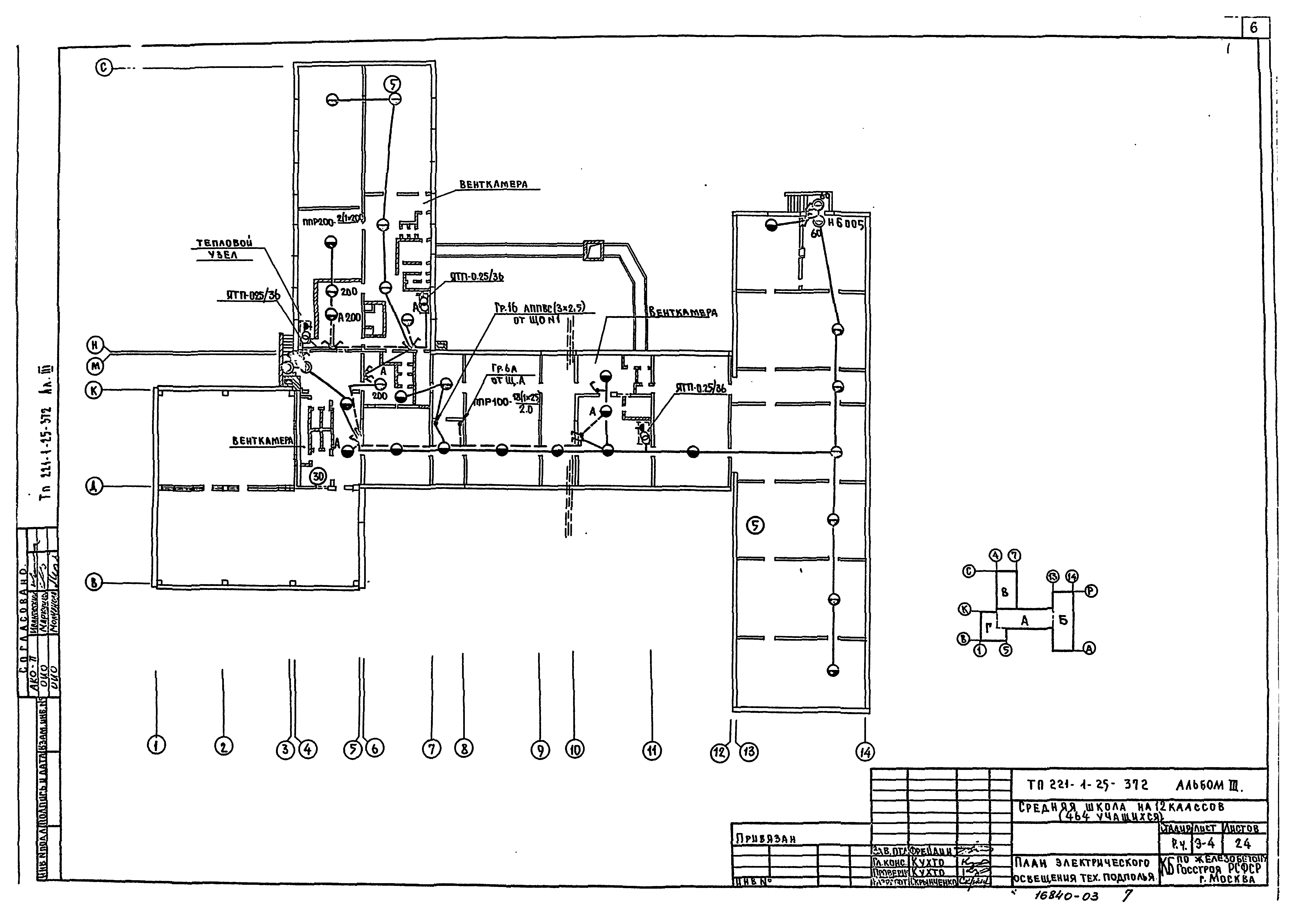
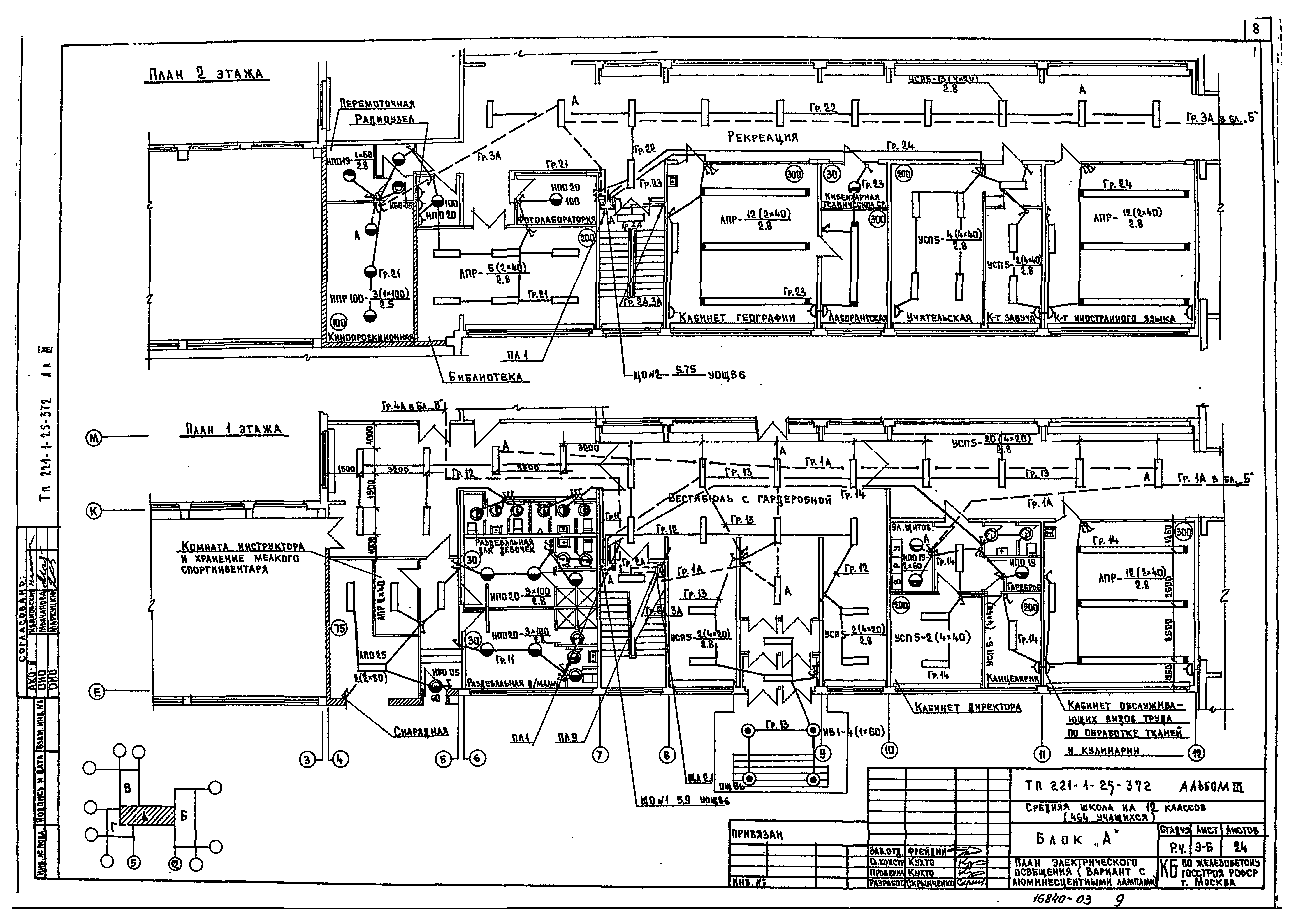
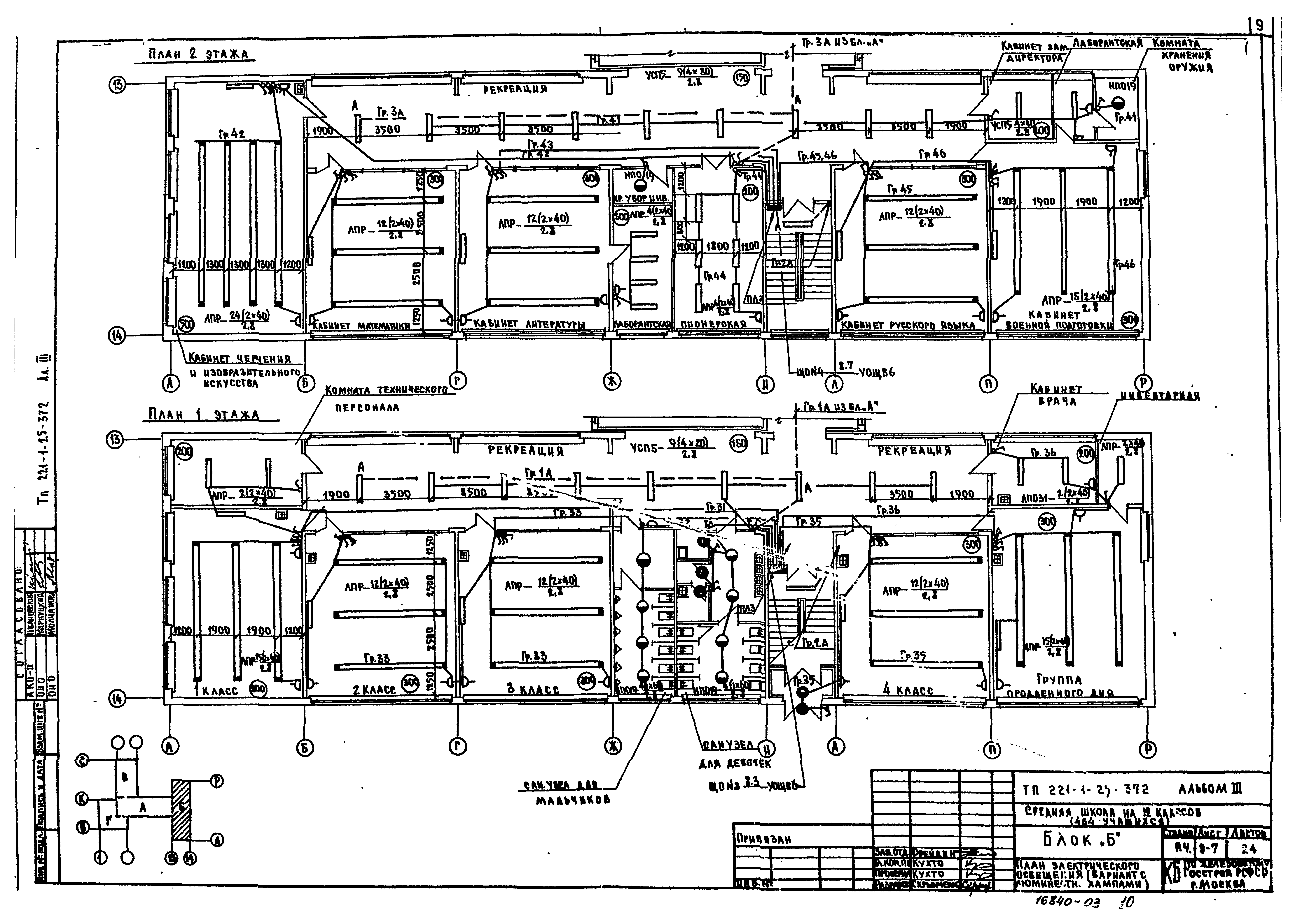
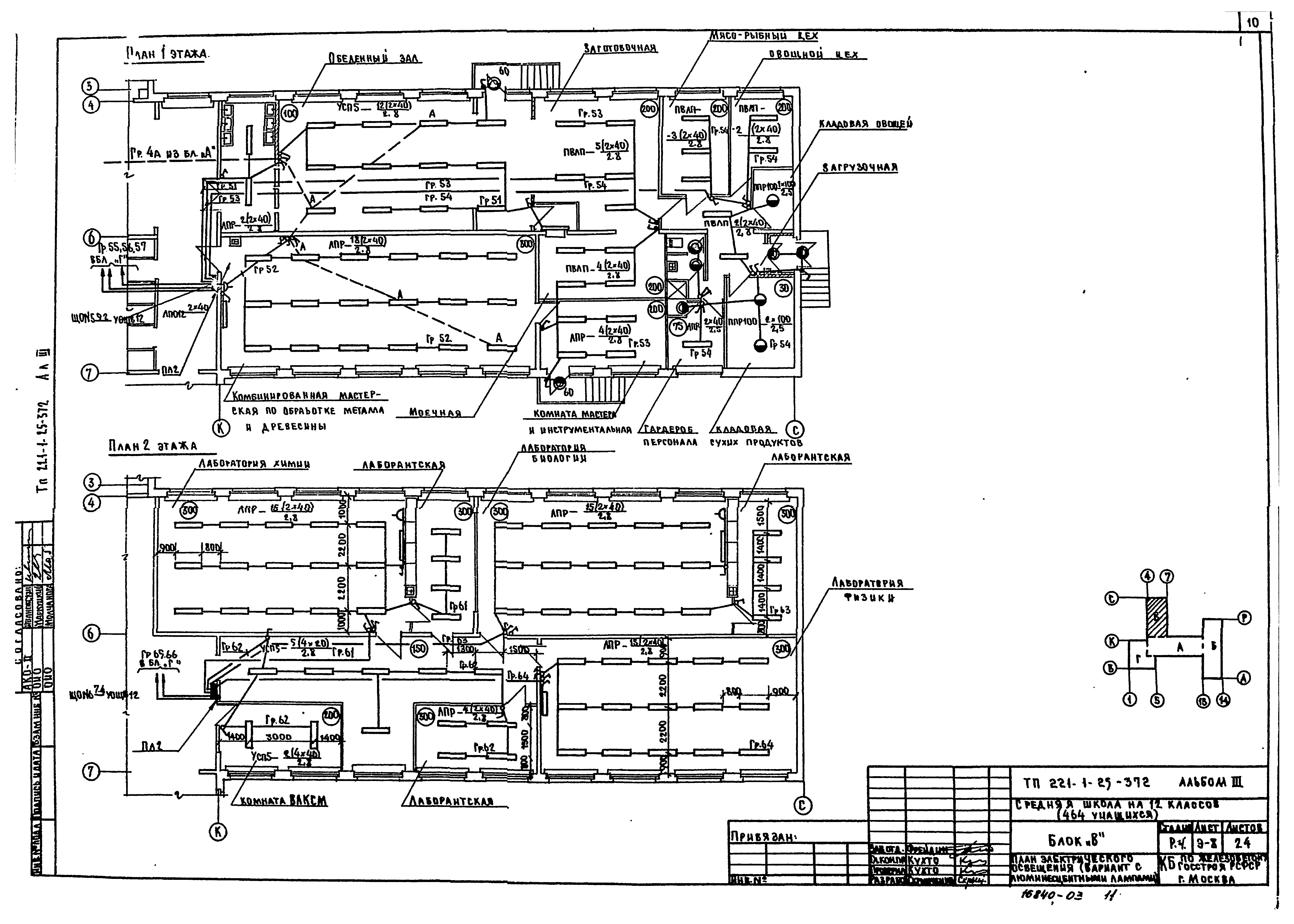
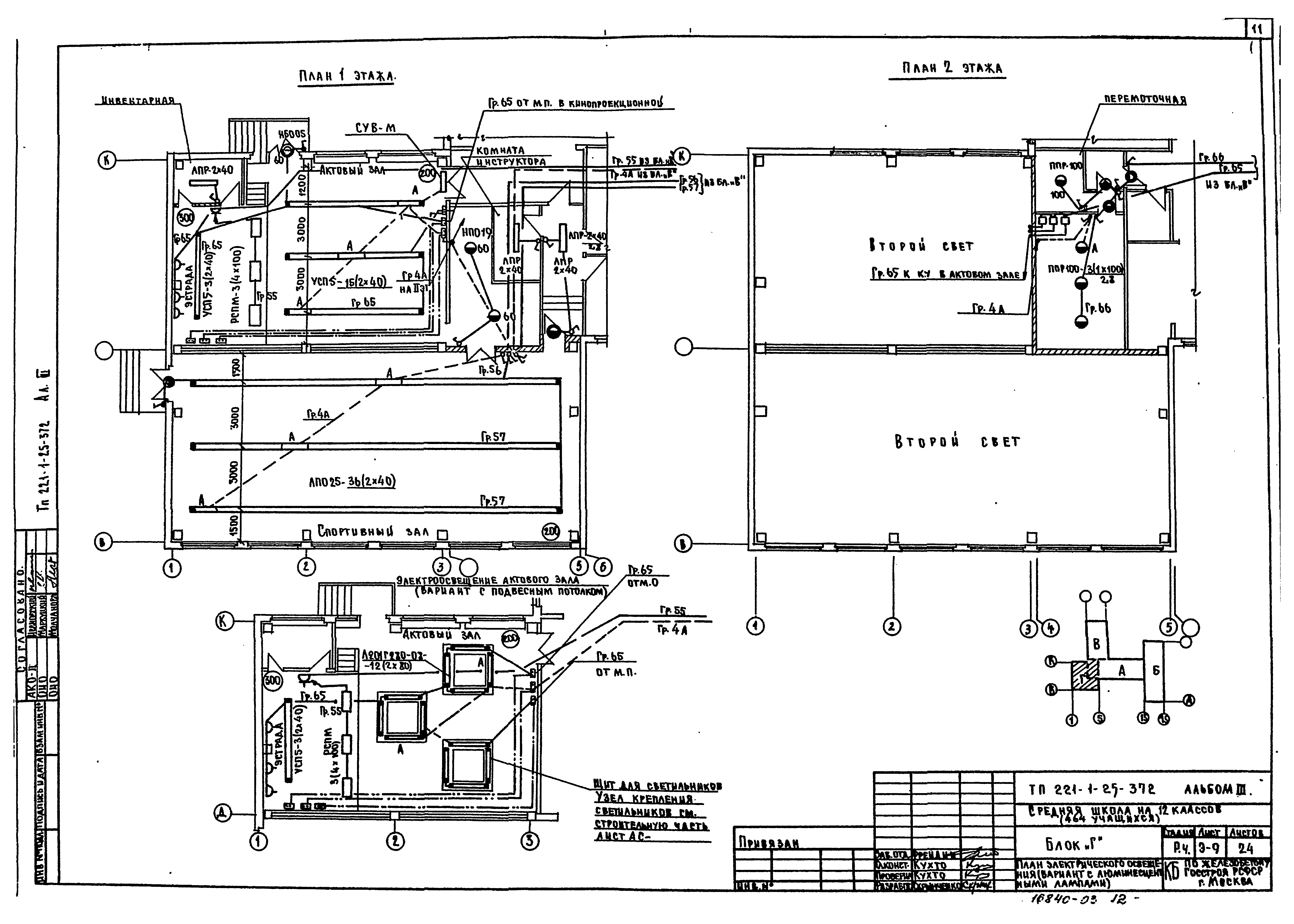
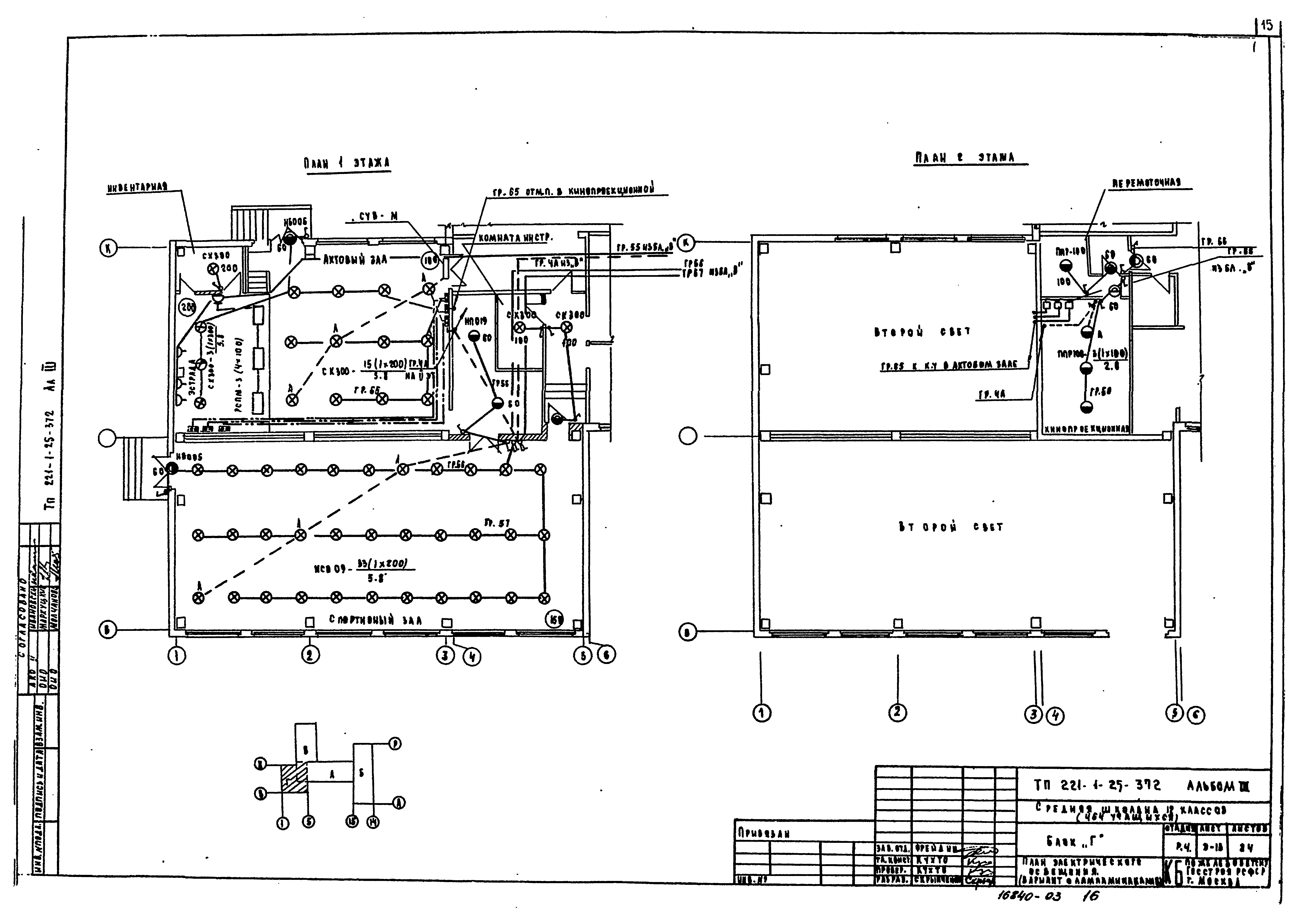
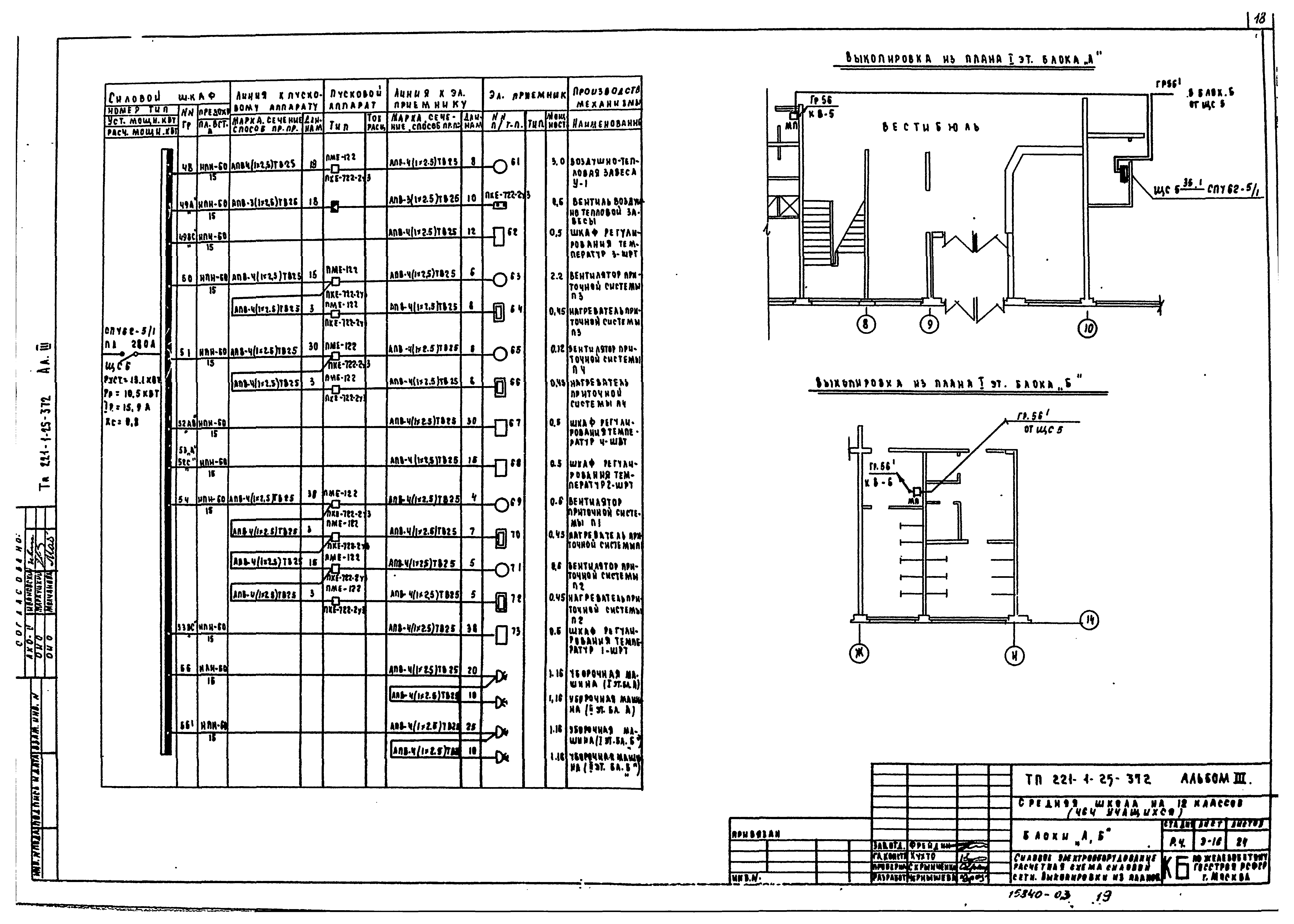
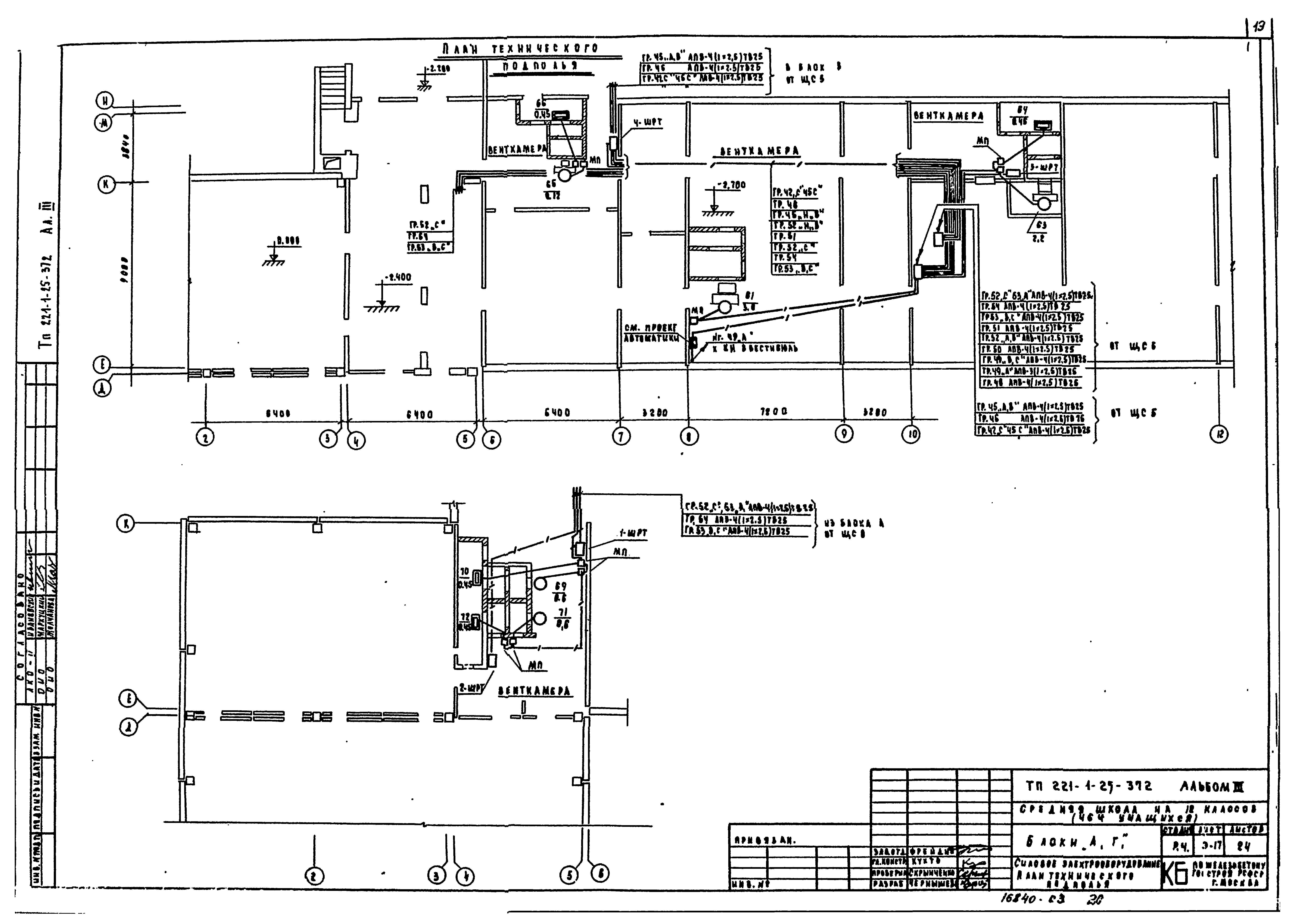
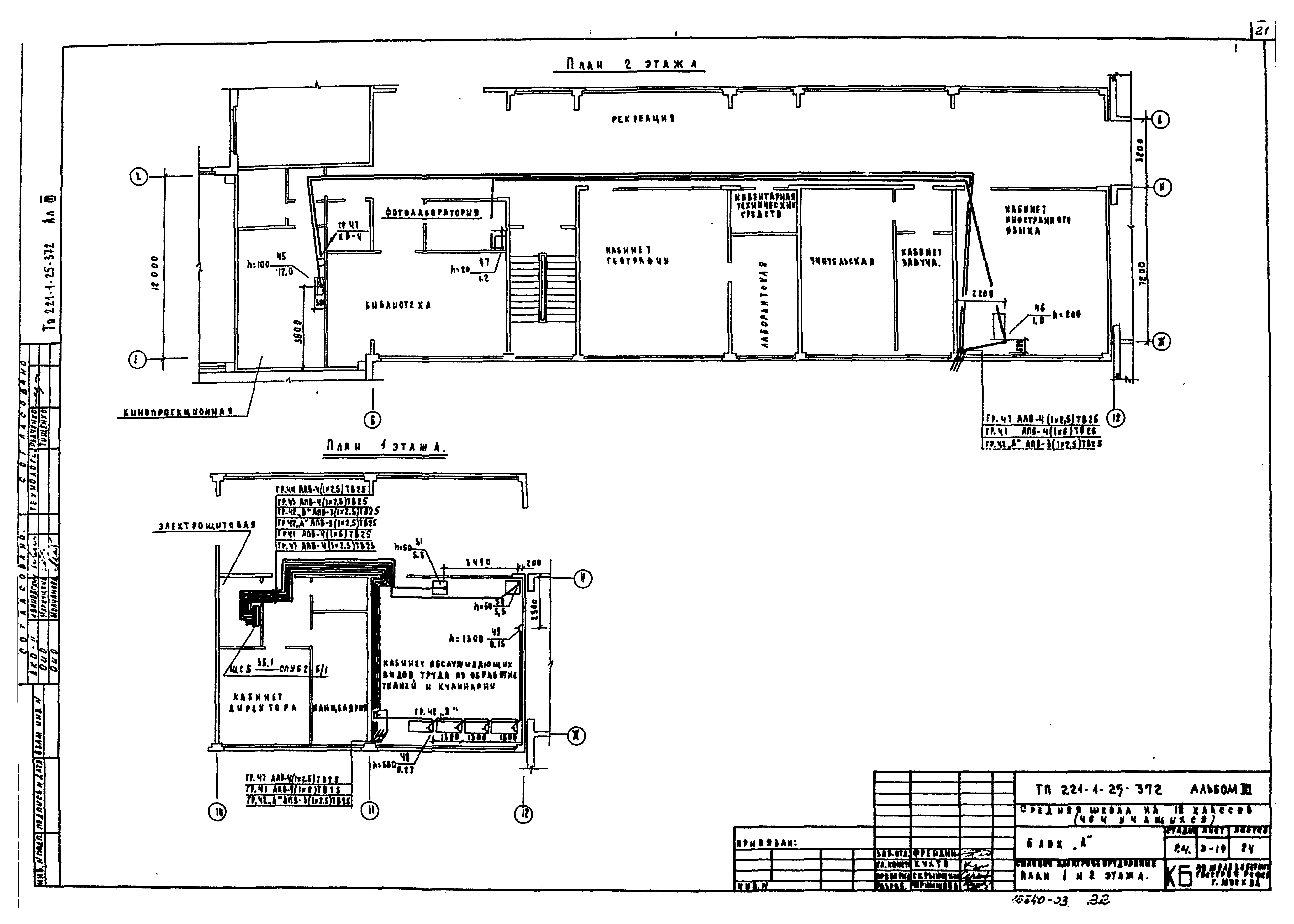
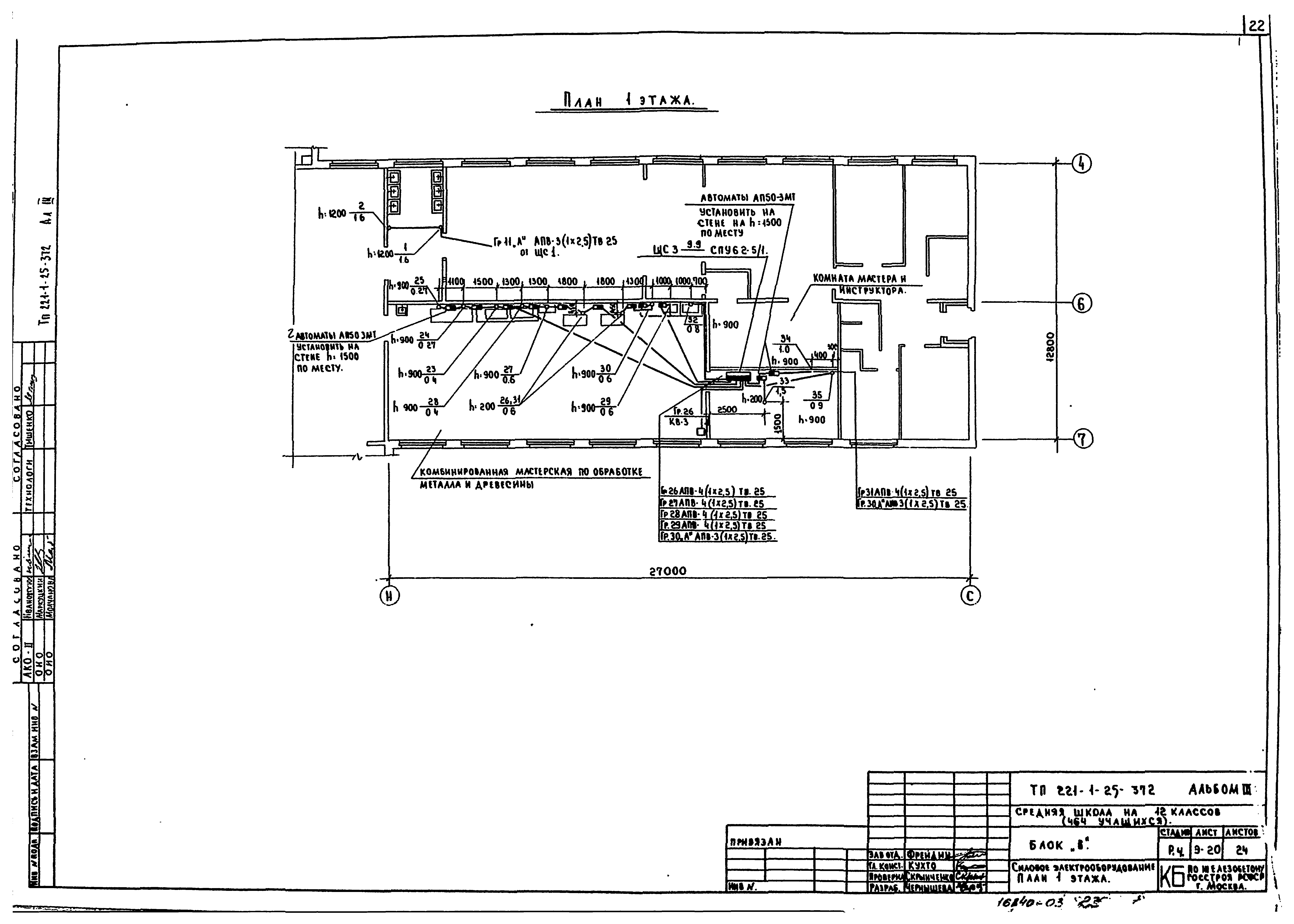
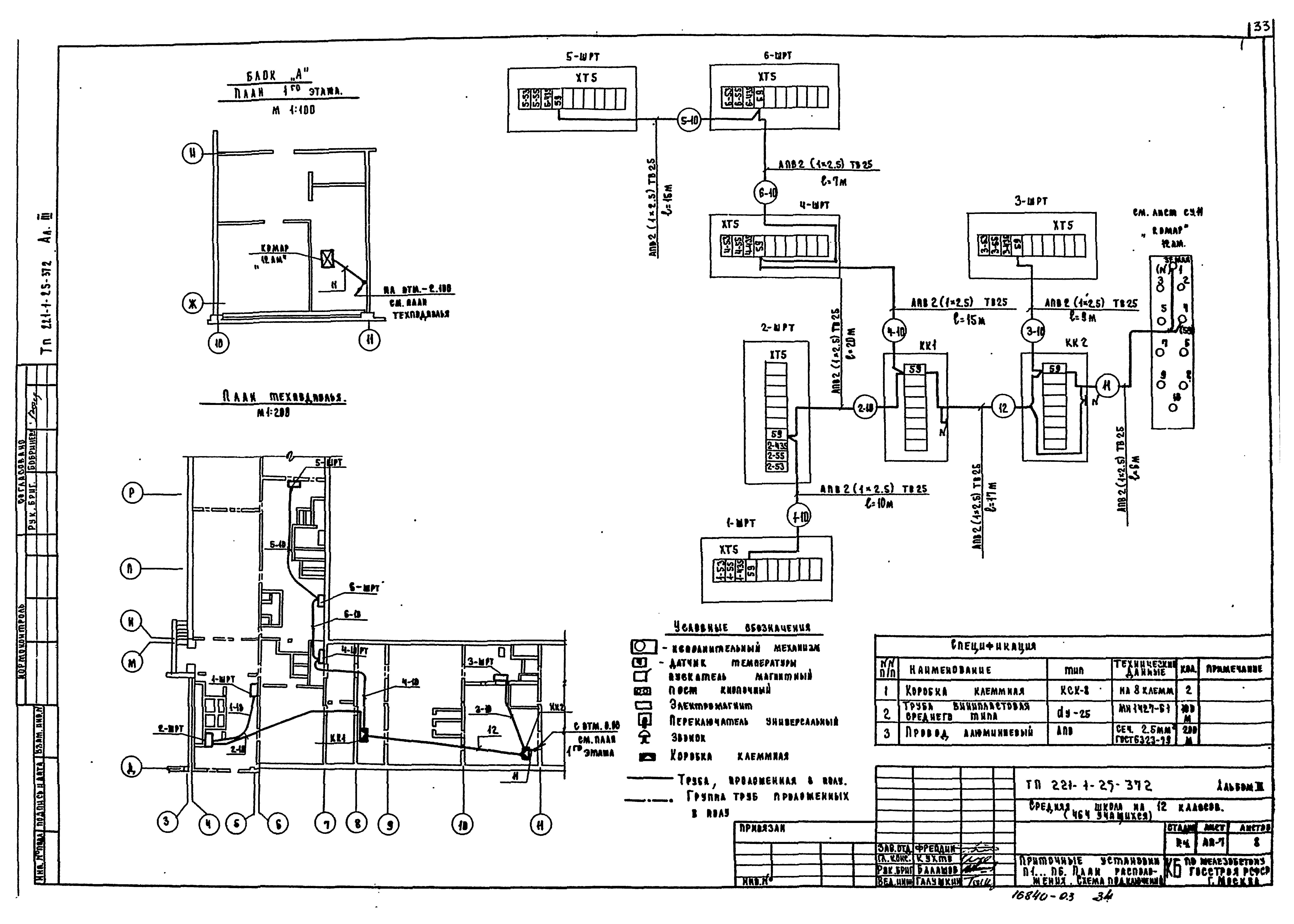
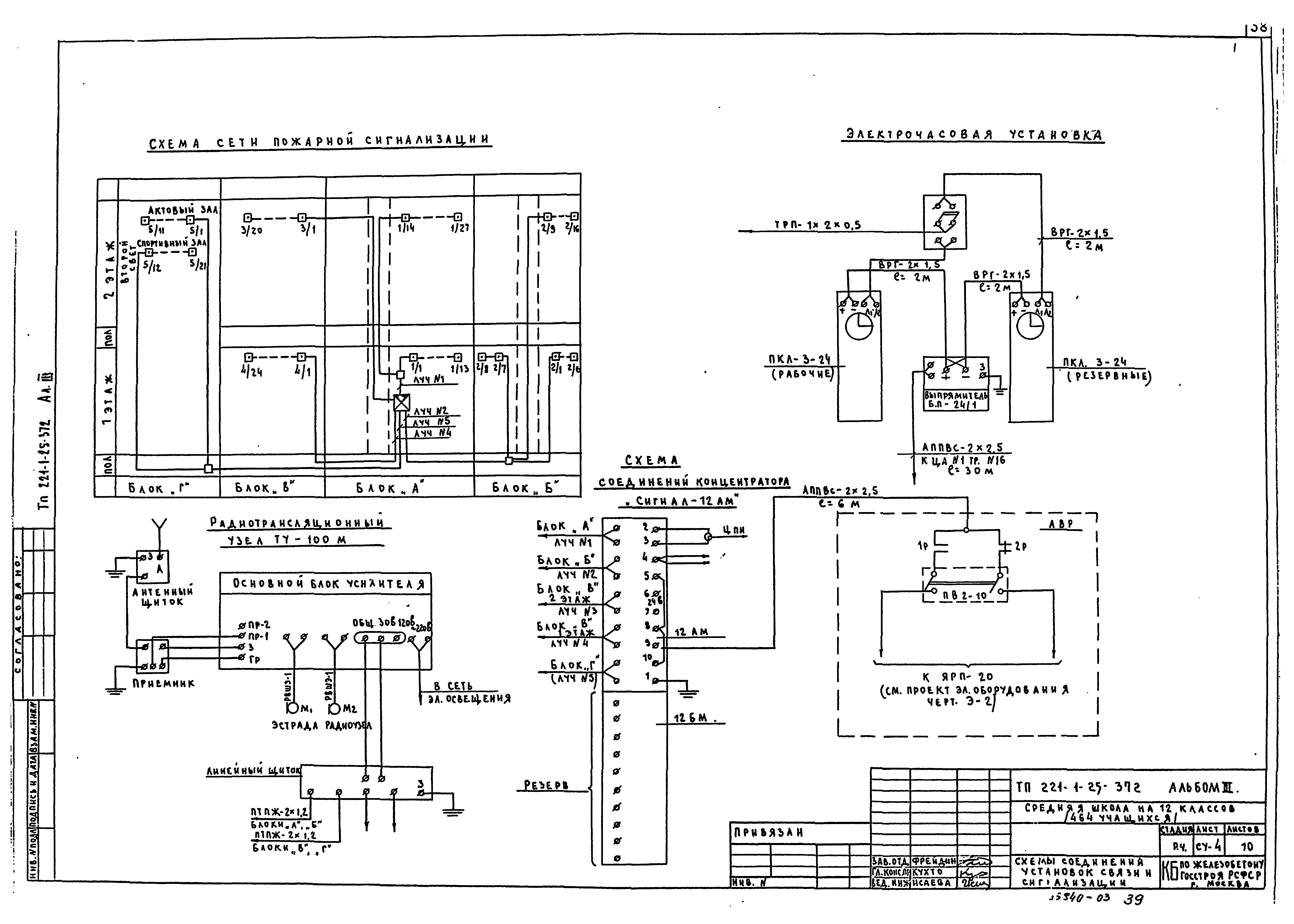
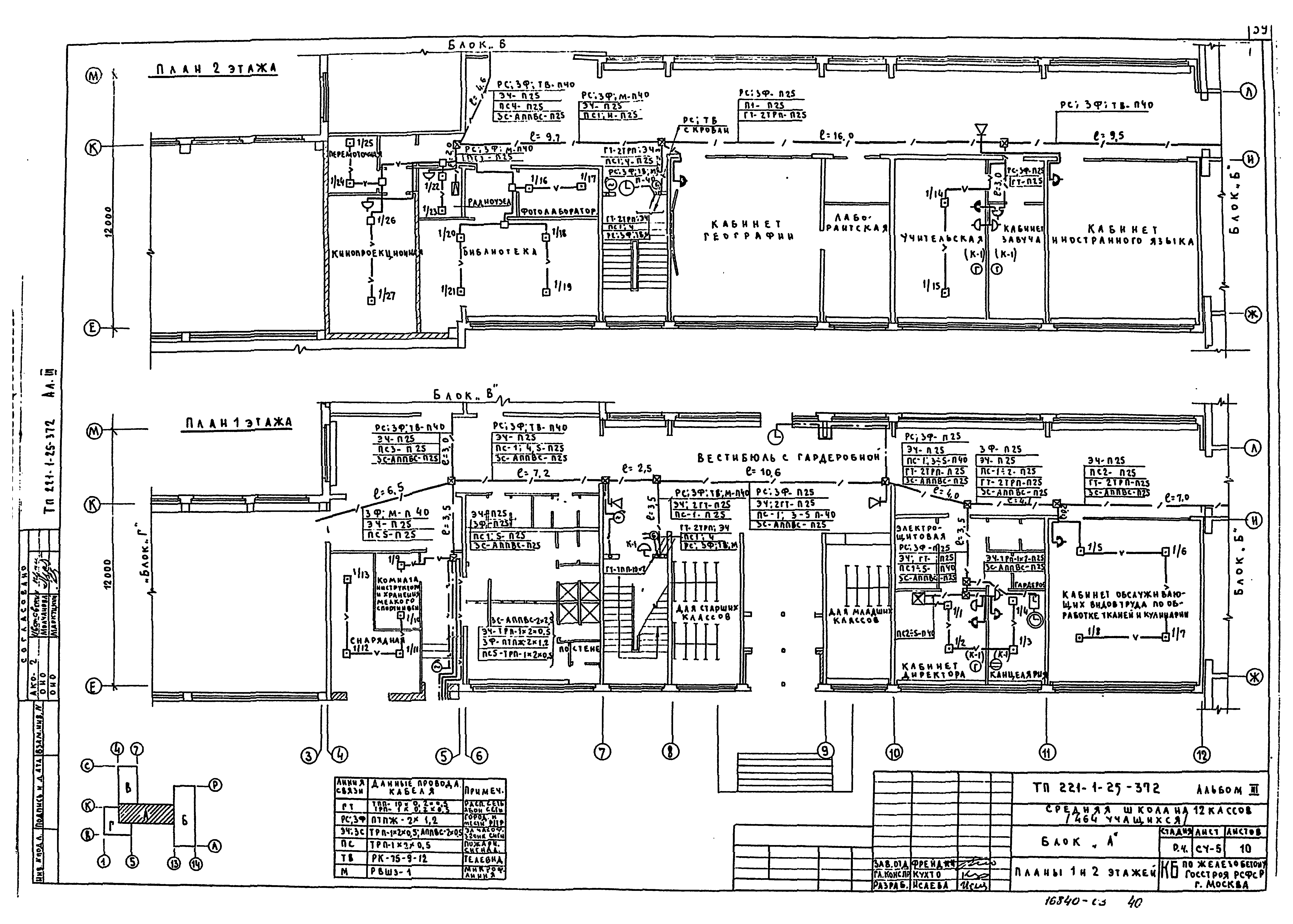
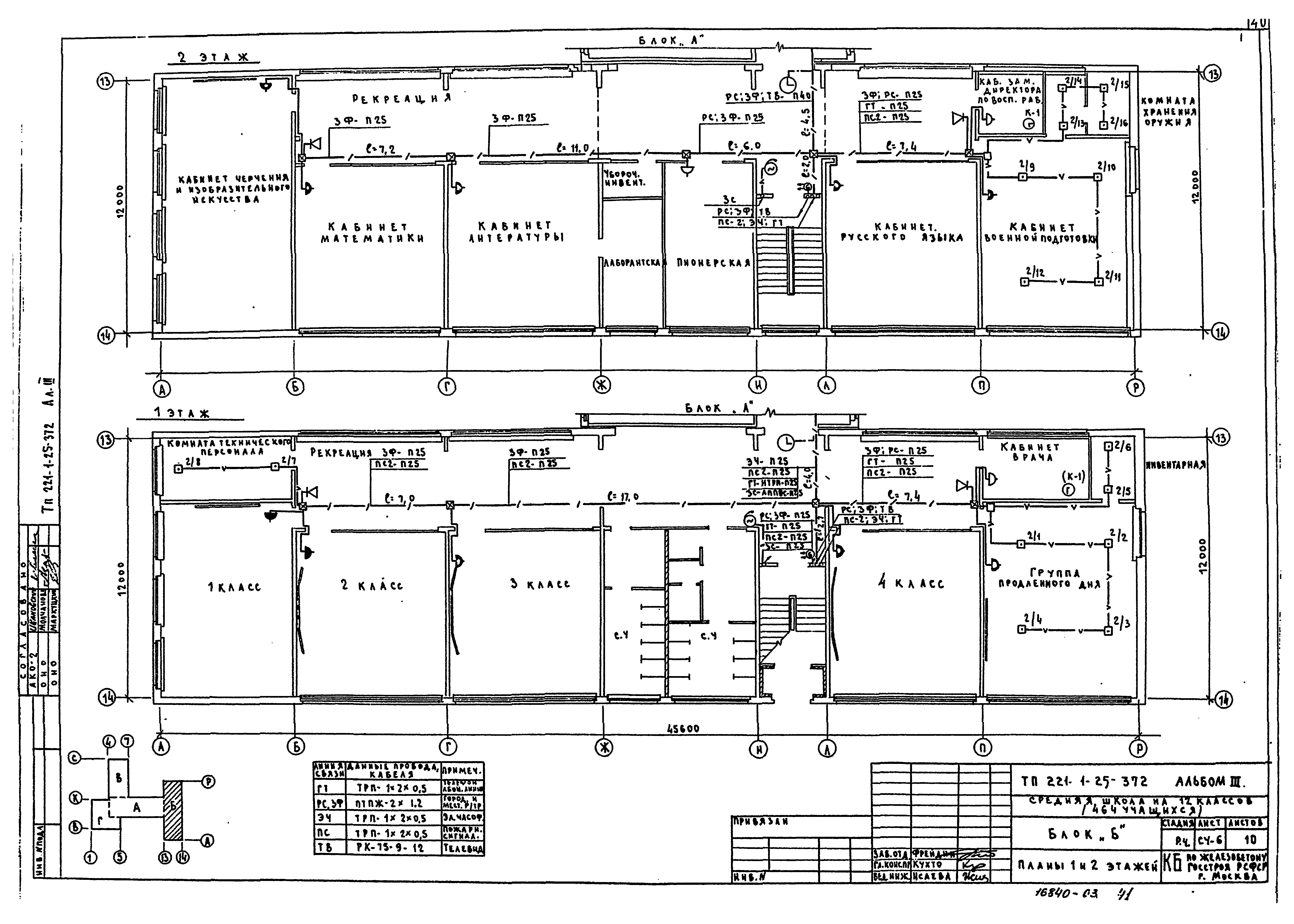
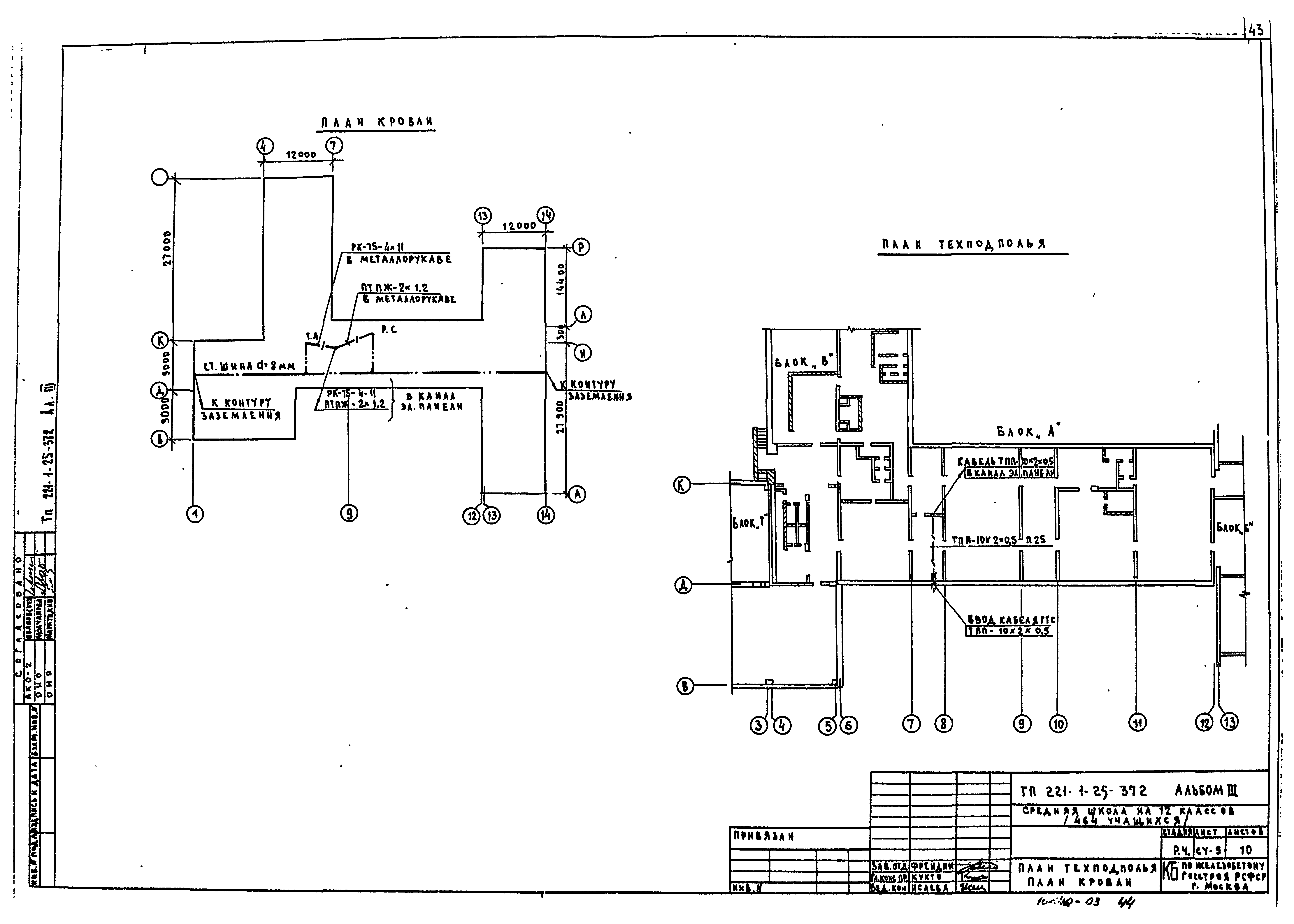
| Оглавление: | Заглавный лист Электрооборудование Заглавный лист Однолинейная расчетная схема. Опросный лист Сводная спецификация. Условные обозначения План электрического освещения техподполья План магистральных сетей Блок "А". План электрического освещения (вариант с люминесцентными лампами) Блок "Б". План электрического освещения (вариант с люминесцентными лампами) Блок "В". План электрического освещения (вариант с люминесцентными лампами) Блок "Г". План электрического освещения (вариант с люминесцентными лампами) Блок "А". План электрического освещения (вариант с лампами накаливания) Блок "Б". План электрического освещения (вариант с лампами накаливания) Блок "В". План электрического освещения (вариант с лампами накаливания) Блок "Г". План электрического освещения (вариант с лампами накаливания) Блок "В". Расчетная схема силовой сети Блоки "А", "В". Расчетная схема силовой сети Блоки "А", "Б". Расчетная схема силовой сети. Выкопировка из планов Блоки "А", "Г". Силовое электрооборудование. План технического подполья Блок "В". Силовое электрооборудование. План технического подполья Блок "А". Силовое электрооборудование. План 1 и 2 этажей Блок "В". Силовое электрооборудование. План 1 этажа Блок "В". Силовое электрооборудование. План 2 этажа Блок "В". Силовое электрооборудование. План 1 этажа в осях Блоки "А", "Б", "В", "Г". Силовое электрооборудование. План кровли Блок "А". Размещение вводно-распределительного устройства. Разрезы I-I, II-II Автоматика Заглавный лист Приточные установки П1…П6. Воздушно-тепловая завеса. Схемы функциональные Приточные установки П1…П6. Воздушно-тепловая завеса. Схема электрическая принципиальная управления Приточные установки П1…П6. Воздушно-тепловая завеса. Схема электрическая принципиальная регулирования Приточные установки П1…П6. Воздушно-тепловая завеса. Схемы подключения Приточные установки П1…П6. Воздушно-тепловая завеса. План расположения Приточные установки П1…П6. План расположения. Схема подключения Приточные установки П1…П6. Воздушно-тепловая завеса. Сводная спецификация Слаботочные устройства Заглавный лист Спецификация. Условные обозначения Схемы расположения сетей слаботочных устройств Схемы соединений установок связи и сигнализации Блок "А". Планы 1 и 2 этажей Блок "Б". Планы 1 и 2 этажей Блок "В". Планы 1 и 2 этажей Блок "Г". Планы 1 и 2 этажей План техподполья. План кровли Подпольная коробка |
| Разработан: | КБ по железобетону Госстроя РСФСР |
| Утверждён: | 31.01.1980 Госстрой РСФСР (Russian Federation Gosstroy 7) |












































