Скачать Типовой проект 124-87-151.87 Альбом II. Общие архитектурно-строительные решения. Архитектурно-строительные решения выше отм. 0.000. Отопление и вентиляция выше отм. 0.000. Внутренние водопровод и канализация выше отм. 0.000. Электрооборудование ниже и выше отм. 0.000. Устройства связи и сигнализации ниже и выше отм. 0.000

Дата актуализации: 01.01.2021

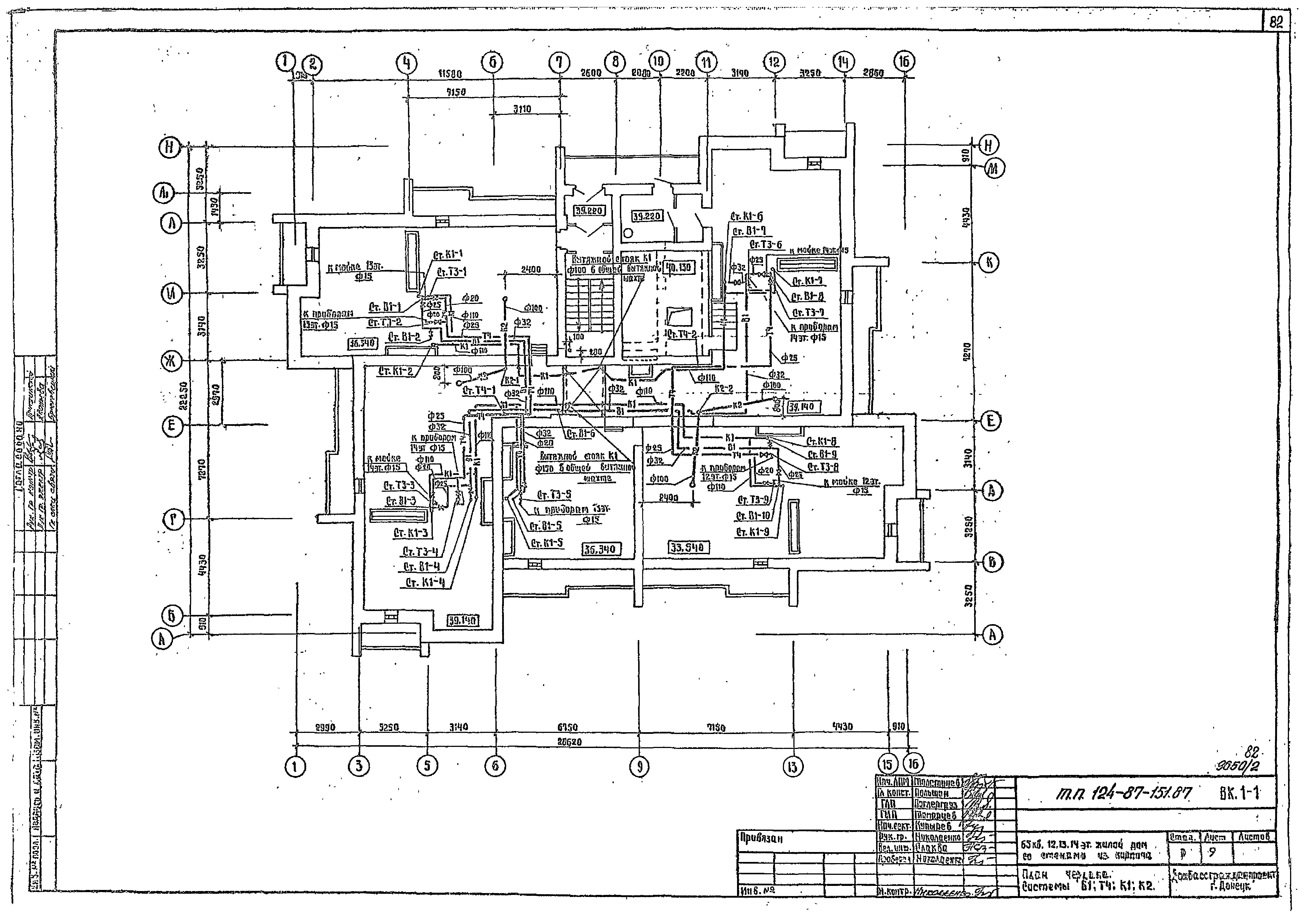
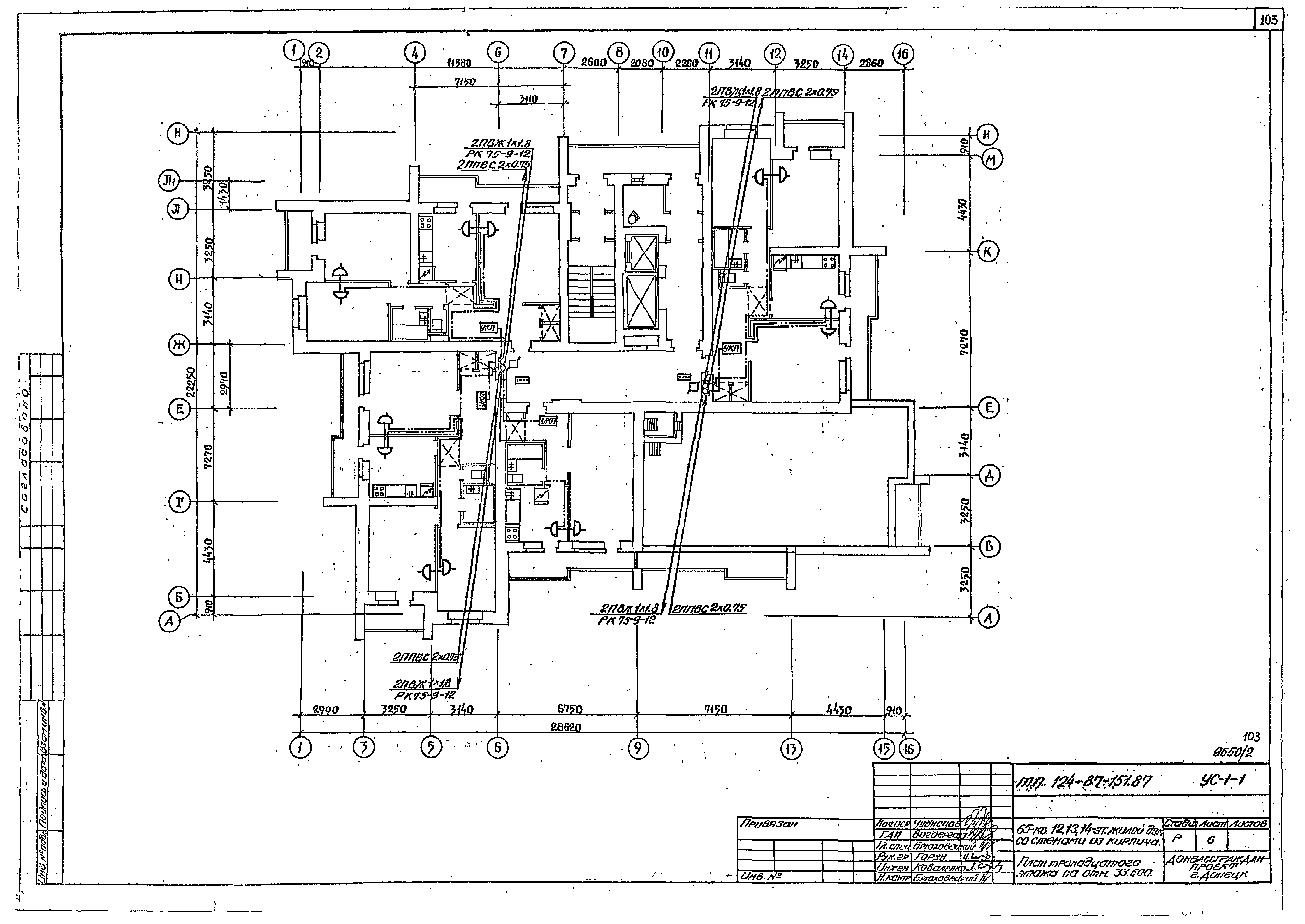
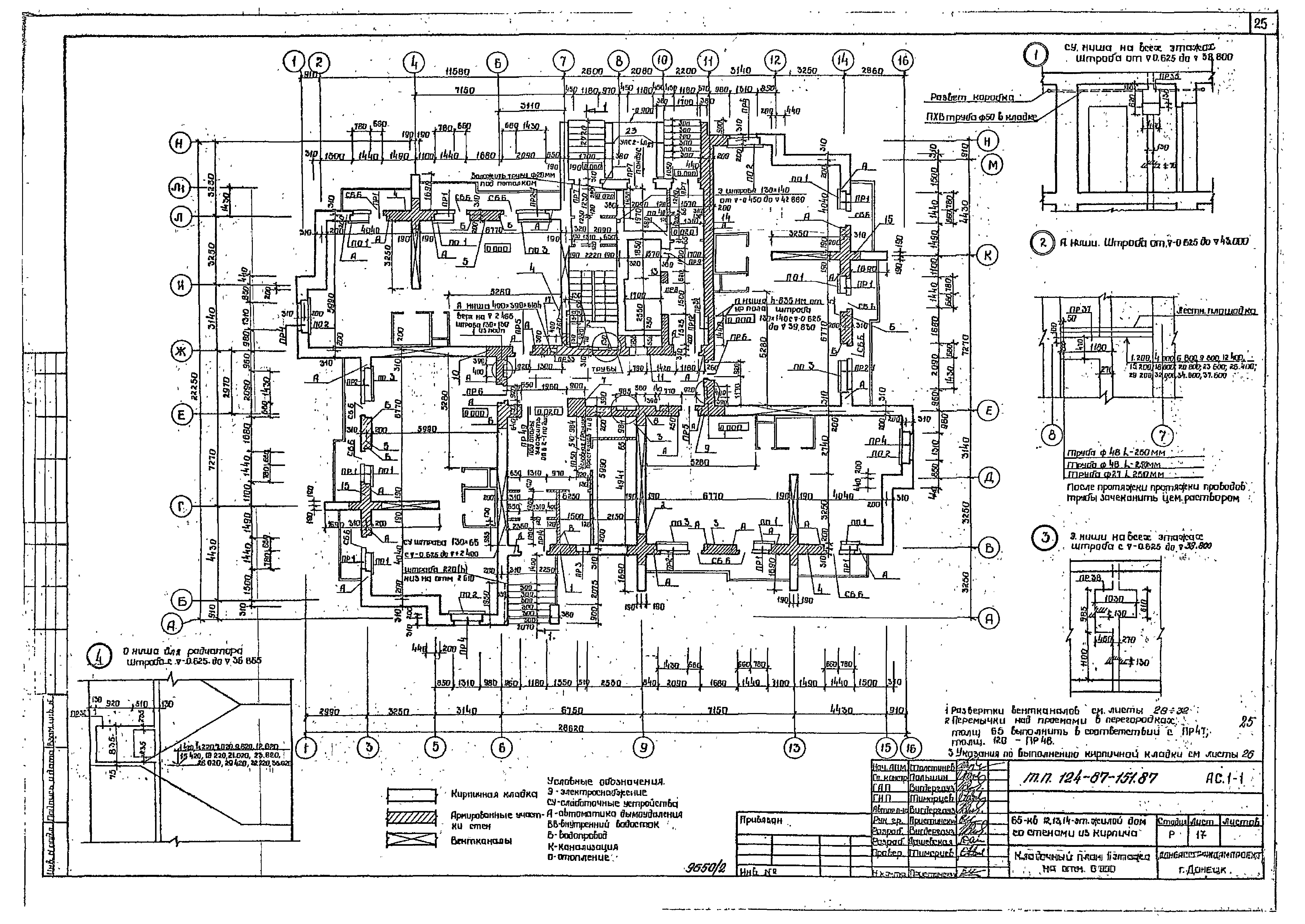
Типовой проект 124-87-151.87

Альбом II. Общие архитектурно-строительные решения. Архитектурно-строительные решения выше отм. 0.000. Отопление и вентиляция выше отм. 0.000. Внутренние водопровод и канализация выше отм. 0.000. Электрооборудование ниже и выше отм. 0.000. Устройства связи и сигнализации ниже и выше отм. 0.000

Обозначение: Типовой проект 124-87-151.87
Обозначение англ: 124-87-151.87
Статус:действует
Название рус.:Альбом II. Общие архитектурно-строительные решения. Архитектурно-строительные решения выше отм. 0.000. Отопление и вентиляция выше отм. 0.000. Внутренние водопровод и канализация выше отм. 0.000. Электрооборудование ниже и выше отм. 0.000. Устройства связи и сигнализации ниже и выше отм. 0.000
Дата добавления в базу:01.10.2014
Дата актуализации:01.01.2021
Дата введения:26.02.1987
Разработан: Донбассгражданпроект Госстроя УССР
Утверждён:26.02.1987 Донбассгражданпроект (7)
Издан: ЦИТП Госстроя СССР (CITP, Gosstroy (USSR) 1988 г. )
Типовой проект 124-87-151.87Типовой проект 124-87-151.87Типовой проект 124-87-151.87Типовой проект 124-87-151.87Типовой проект 124-87-151.87Типовой проект 124-87-151.87Типовой проект 124-87-151.87Типовой проект 124-87-151.87Типовой проект 124-87-151.87Типовой проект 124-87-151.87Типовой проект 124-87-151.87Типовой проект 124-87-151.87Типовой проект 124-87-151.87Типовой проект 124-87-151.87Типовой проект 124-87-151.87Типовой проект 124-87-151.87Типовой проект 124-87-151.87Типовой проект 124-87-151.87Типовой проект 124-87-151.87Типовой проект 124-87-151.87Типовой проект 124-87-151.87Типовой проект 124-87-151.87Типовой проект 124-87-151.87Типовой проект 124-87-151.87Типовой проект 124-87-151.87Типовой проект 124-87-151.87Типовой проект 124-87-151.87Типовой проект 124-87-151.87Типовой проект 124-87-151.87Типовой проект 124-87-151.87Типовой проект 124-87-151.87Типовой проект 124-87-151.87Типовой проект 124-87-151.87Типовой проект 124-87-151.87Типовой проект 124-87-151.87Типовой проект 124-87-151.87Типовой проект 124-87-151.87Типовой проект 124-87-151.87Типовой проект 124-87-151.87Типовой проект 124-87-151.87Типовой проект 124-87-151.87Типовой проект 124-87-151.87Типовой проект 124-87-151.87Типовой проект 124-87-151.87Типовой проект 124-87-151.87Типовой проект 124-87-151.87Типовой проект 124-87-151.87Типовой проект 124-87-151.87Типовой проект 124-87-151.87Типовой проект 124-87-151.87Типовой проект 124-87-151.87Типовой проект 124-87-151.87Типовой проект 124-87-151.87Типовой проект 124-87-151.87Типовой проект 124-87-151.87Типовой проект 124-87-151.87Типовой проект 124-87-151.87Типовой проект 124-87-151.87Типовой проект 124-87-151.87Типовой проект 124-87-151.87Типовой проект 124-87-151.87Типовой проект 124-87-151.87Типовой проект 124-87-151.87Типовой проект 124-87-151.87Типовой проект 124-87-151.87Типовой проект 124-87-151.87Типовой проект 124-87-151.87Типовой проект 124-87-151.87Типовой проект 124-87-151.87Типовой проект 124-87-151.87Типовой проект 124-87-151.87Типовой проект 124-87-151.87Типовой проект 124-87-151.87Типовой проект 124-87-151.87Типовой проект 124-87-151.87Типовой проект 124-87-151.87Типовой проект 124-87-151.87Типовой проект 124-87-151.87Типовой проект 124-87-151.87Типовой проект 124-87-151.87Типовой проект 124-87-151.87Типовой проект 124-87-151.87Типовой проект 124-87-151.87Типовой проект 124-87-151.87Типовой проект 124-87-151.87Типовой проект 124-87-151.87Типовой проект 124-87-151.87Типовой проект 124-87-151.87Типовой проект 124-87-151.87Типовой проект 124-87-151.87Типовой проект 124-87-151.87Типовой проект 124-87-151.87Типовой проект 124-87-151.87Типовой проект 124-87-151.87Типовой проект 124-87-151.87Типовой проект 124-87-151.87Типовой проект 124-87-151.87Типовой проект 124-87-151.87Типовой проект 124-87-151.87Типовой проект 124-87-151.87Типовой проект 124-87-151.87Типовой проект 124-87-151.87Типовой проект 124-87-151.87