Скачать Типовой проект 224-1-426.84 Альбом 0. Архитектурно-строительные чертежи нулевого цикла работДата актуализации: 01.01.2021
|
| Обозначение: | Типовой проект 224-1-426.84 |
| Обозначение англ: | 224-1-426.84 |
| Статус: | не определен законодательством |
| Название рус.: | Альбом 0. Архитектурно-строительные чертежи нулевого цикла работ |
| Дата добавления в базу: | 01.10.2014 |
| Дата актуализации: | 01.01.2021 |
| Дата введения: | 10.05.1984 |
| Дата окончания срока действия: | 30.06.2003 |
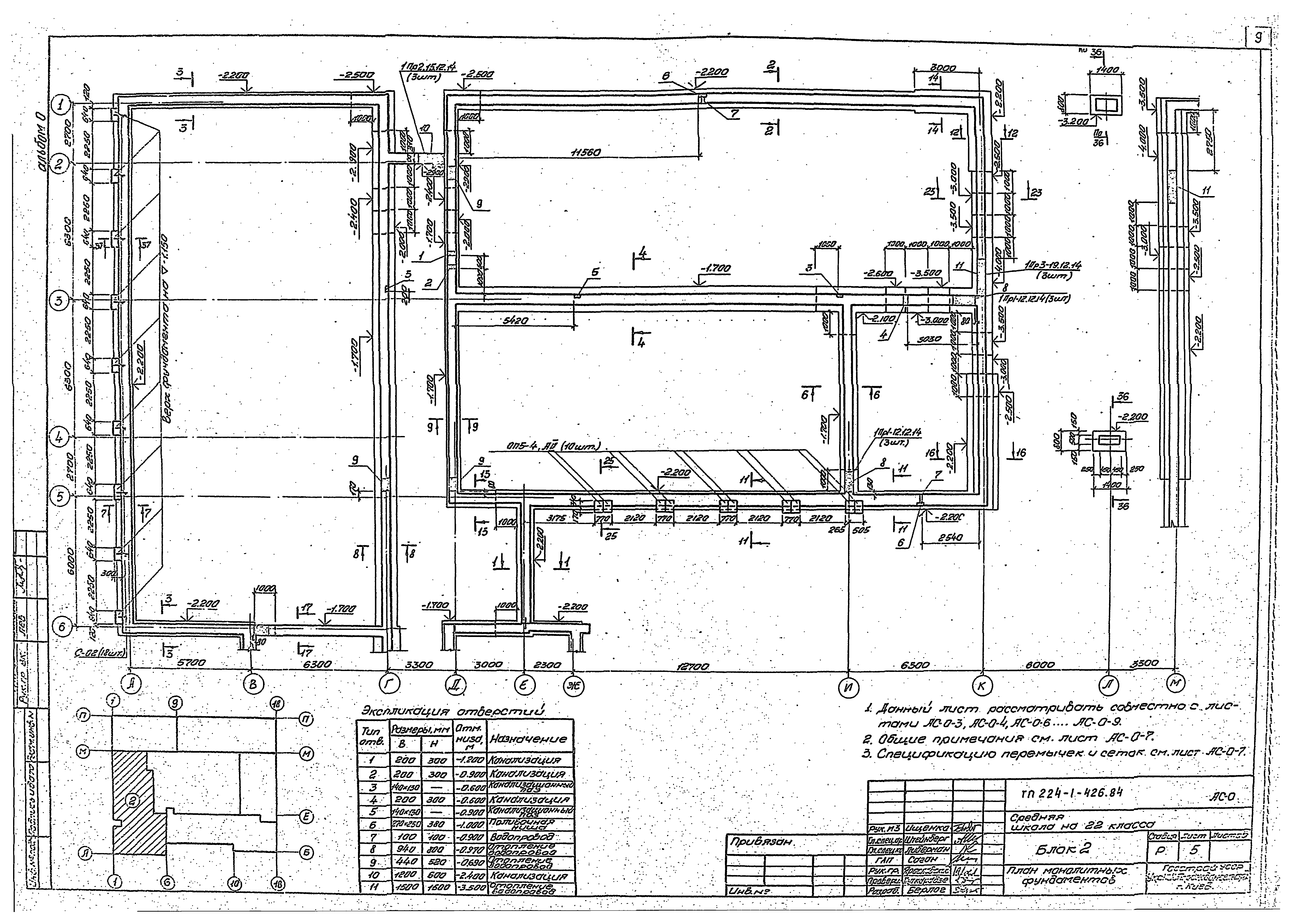
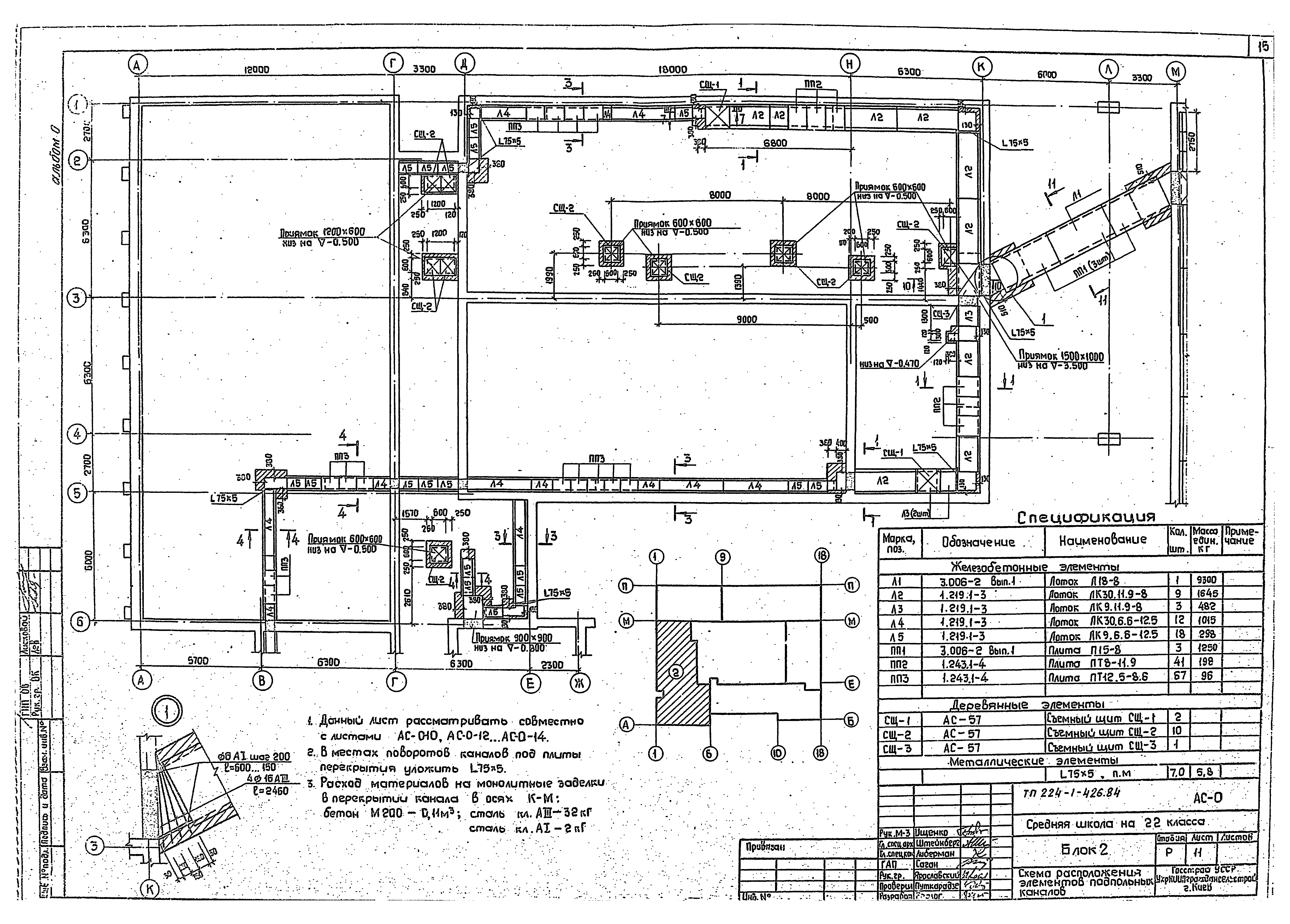
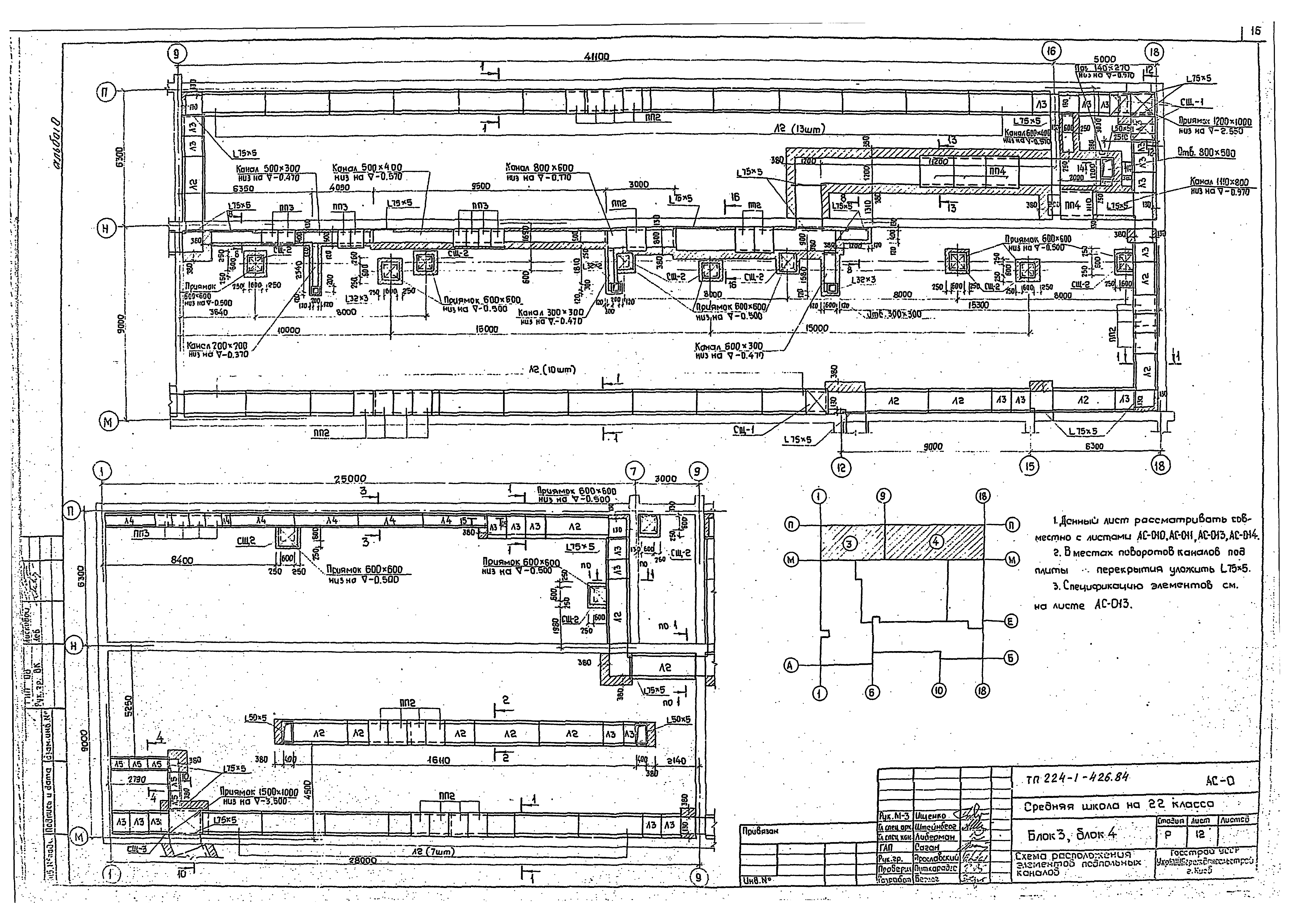
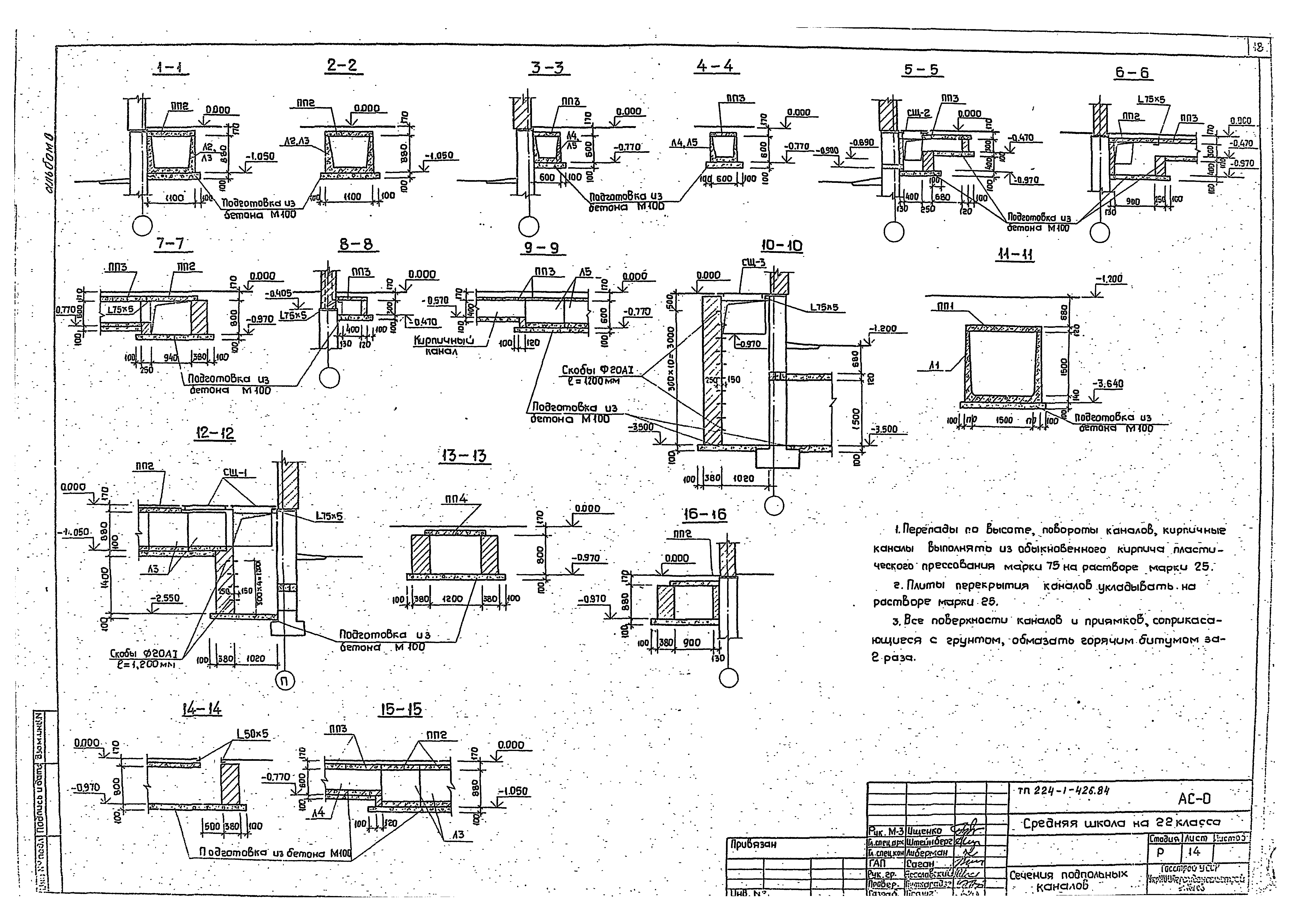
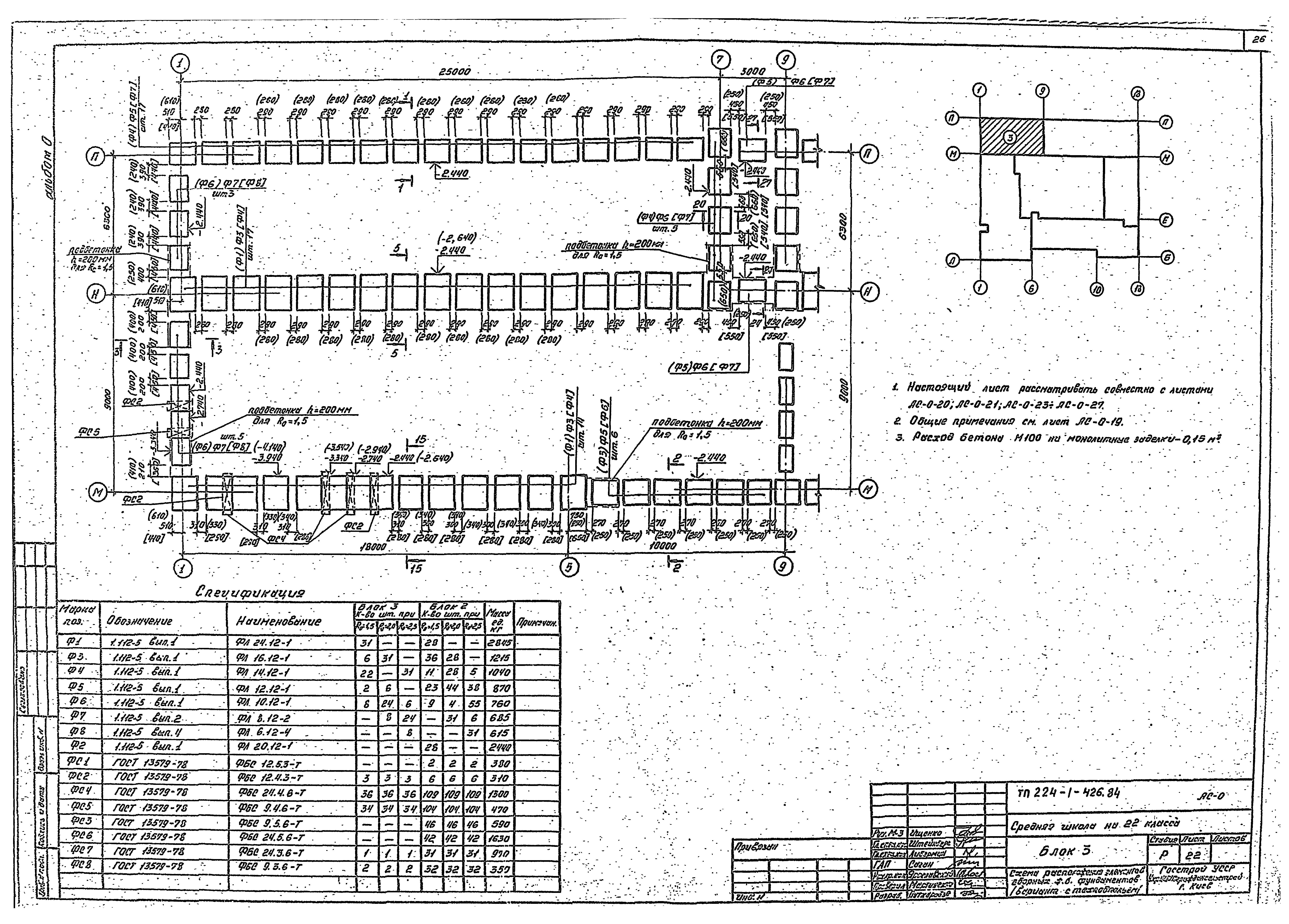
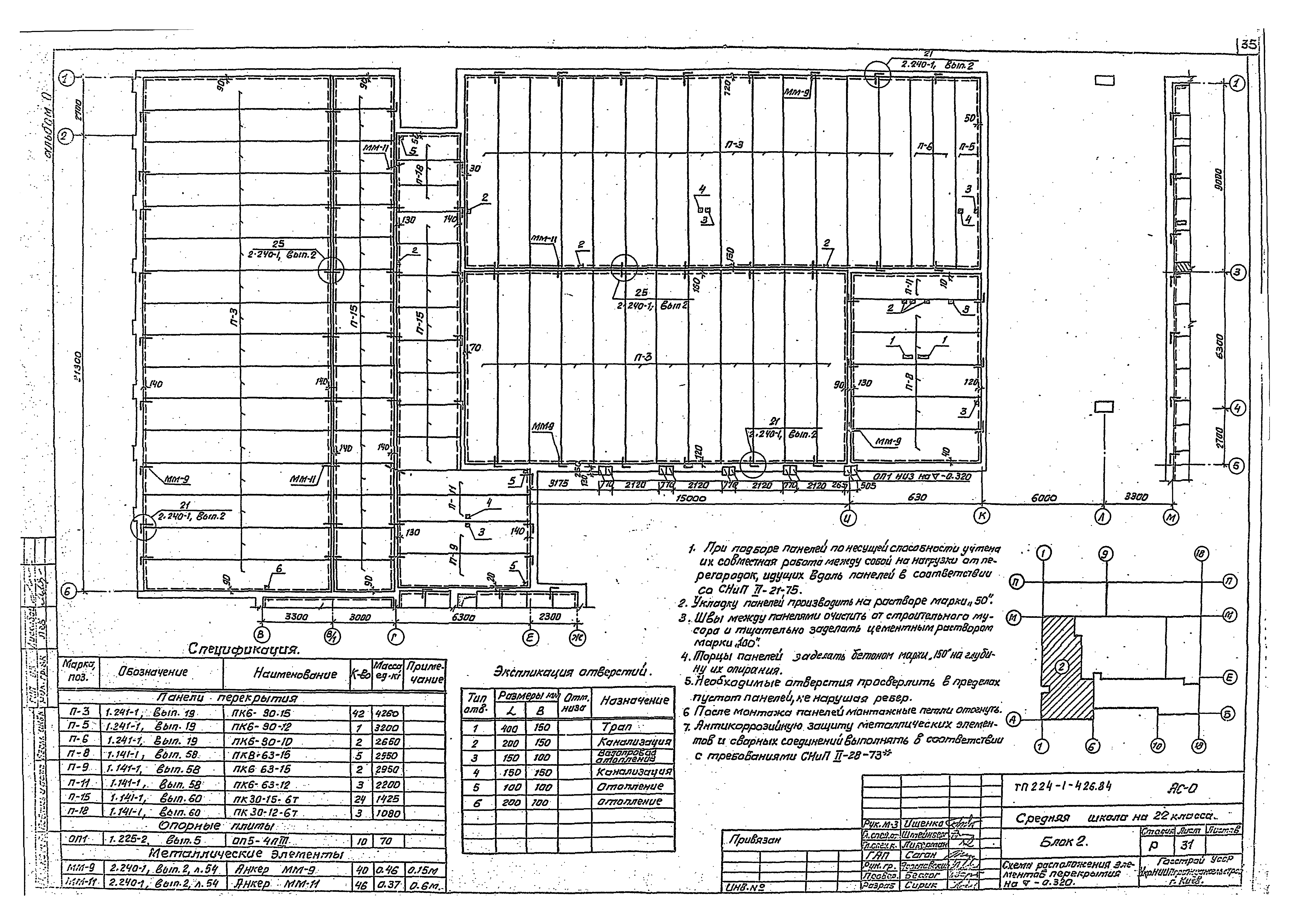
| Оглавление: | Содержание альбома Пояснительная записка Архитектурно-строительные чертежи Общие данные по марке АС-0 Схема фундаментов Блок 1. План монолитных фундаментов Блок 2. План монолитных фундаментов Блок 3, блок 4. План монолитных фундаментов Блок 5. План монолитных фундаментов Сечения фундаментов 1-1…19-19, 22-22, 23-23, 25-25…31-31 Сечения фундаментов 32-32…39-39, 21-21, 24-24, 20-20. Фундамент ФО-1 Блок 1. Схема расположения элементов подпольных каналов Блок 2. Схема расположения элементов подпольных каналов Блок 3, блок 4. Схема расположения элементов подпольных каналов Блок 5. Схема расположения элементов подпольных каналов Сечения подпольных каналов Блок 1. План техподполья Блок 2. План техподполья Блок 3, блок 4. План техподполья Блок 5. План техподполья Схема фундаментов (вариант с техподпольем) Блок 1. Схема расположения элементов сборных ж/б фундаментов (вариант с техподпольем) Блок 2. Схема расположения элементов сборных ж/б фундаментов (вариант с техподпольем) Блок 3. Схема расположения элементов сборных ж/б фундаментов (вариант с техподпольем) Блок 4. Схема расположения элементов сборных ж/б фундаментов (вариант с техподпольем) Блок 5. Схема расположения элементов сборных ж/б фундаментов (вариант с техподпольем) Сечения сборных ж/б фундаментов 1-1…21-21 (вариант с техподпольем) Сечения сборных ж/б фундаментов 22-22…42-42 (вариант с техподпольем) Схемы расположения элементов подпольных каналов, стен техподполья по осям Г, Л, А, К, 18 Схема расположения элементов перемычек техподполья Ведомость и спецификация перемычек техподполья Блок 1. Схема расположения элементов перекрытия на отм. - 0.320 Блок 2. Схема расположения элементов перекрытия на отм. - 0.320 Блок 3, блок 4. Схема расположения элементов перекрытия на отм. - 0.320 Блок 5. Схема расположения элементов перекрытия на отм. - 0.320 Крыльца №1…№8 Монолитный участок УМ-01 |
| Разработан: | УкрНИИПграждансельстроя |
| Утверждён: | 24.06.1983 Госстрой УССР (UkrSSR Gosstroy 56) |






































