Скачать Типовой проект 224-1-426.84 Альбом II. Санитарно-технические чертежиДата актуализации: 01.01.2021
|
| Обозначение: | Типовой проект 224-1-426.84 |
| Обозначение англ: | 224-1-426.84 |
| Статус: | не определен законодательством |
| Название рус.: | Альбом II. Санитарно-технические чертежи |
| Дата добавления в базу: | 01.10.2014 |
| Дата актуализации: | 01.01.2021 |
| Дата введения: | 10.05.1984 |
| Дата окончания срока действия: | 30.06.2003 |
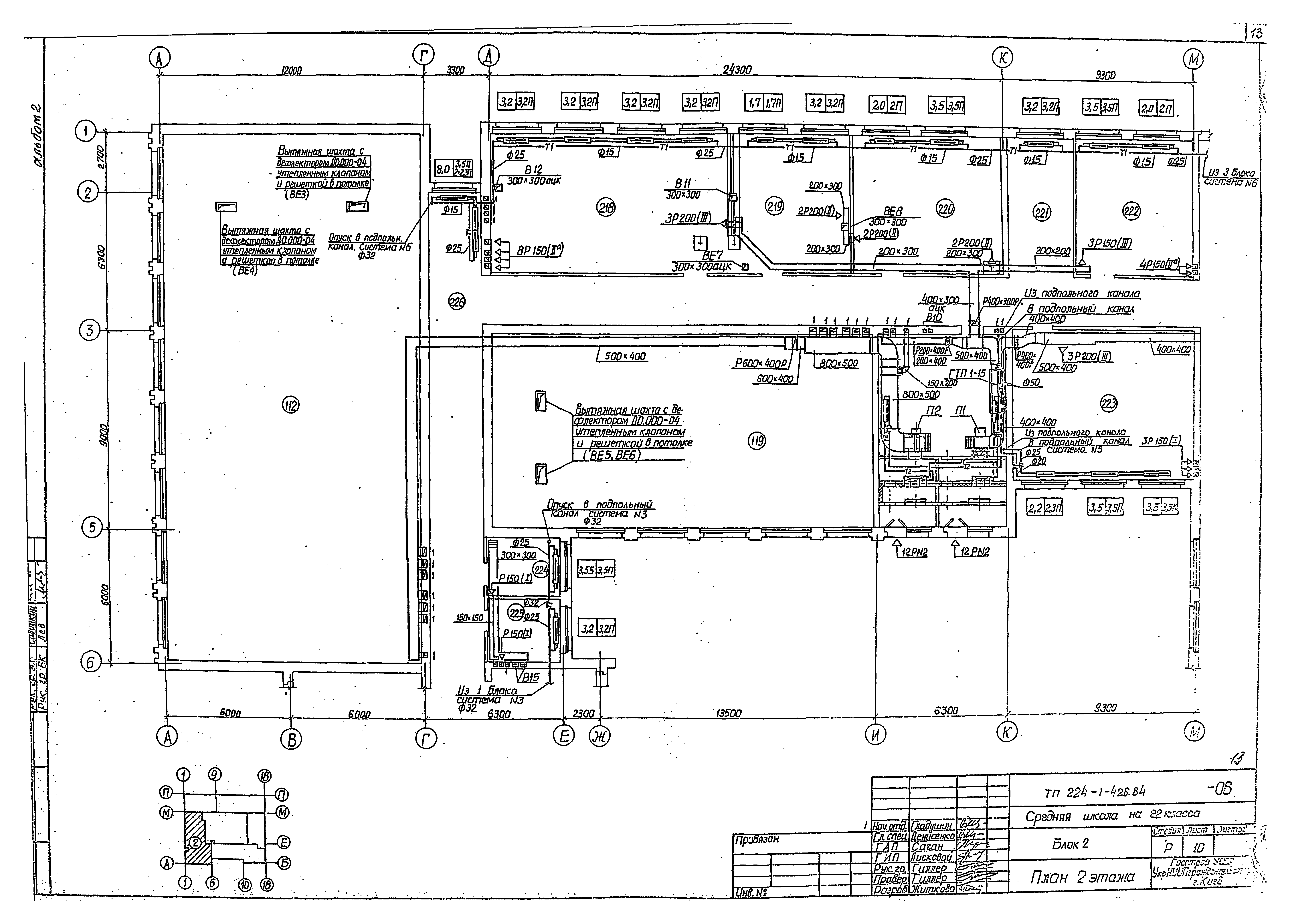
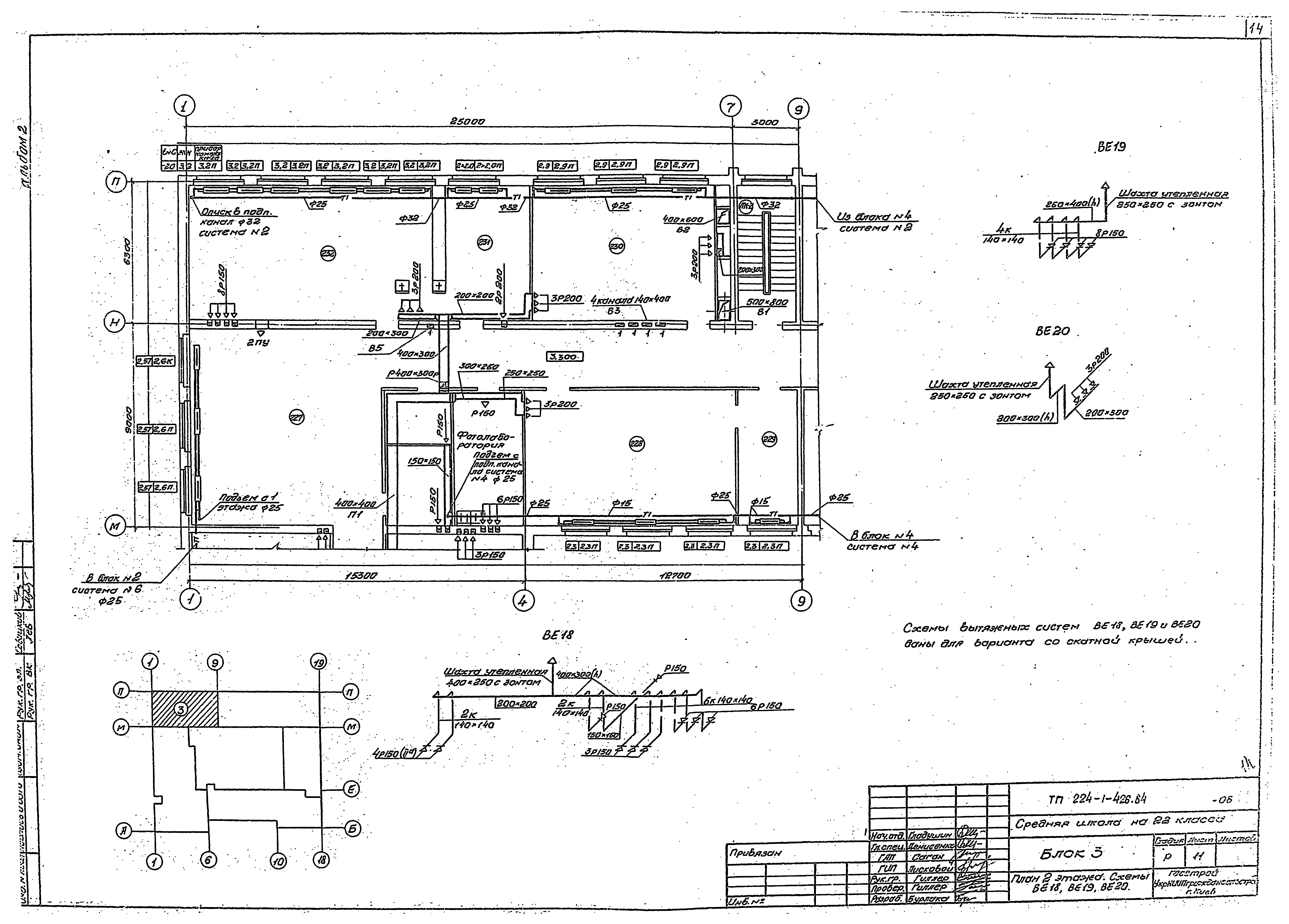
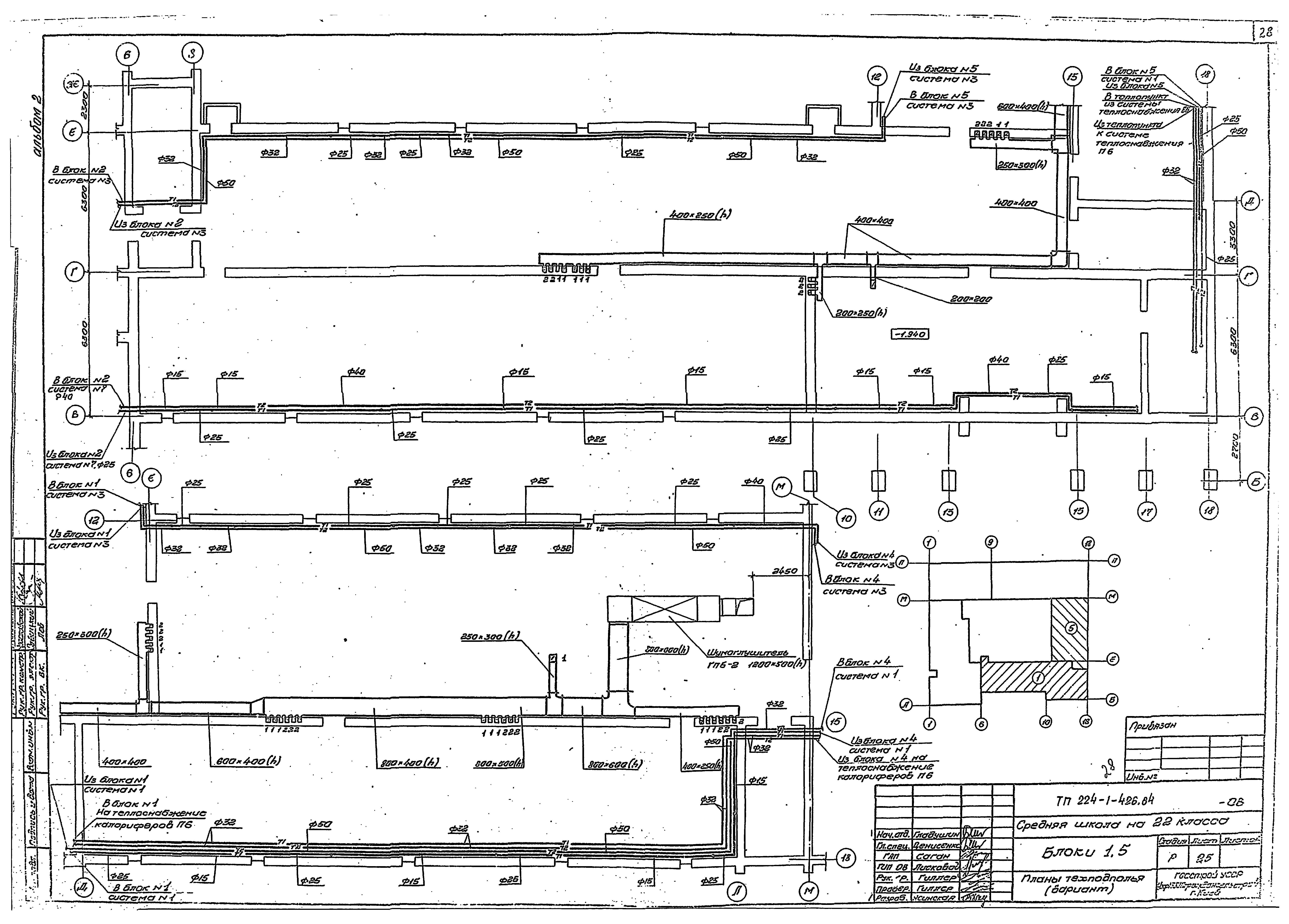
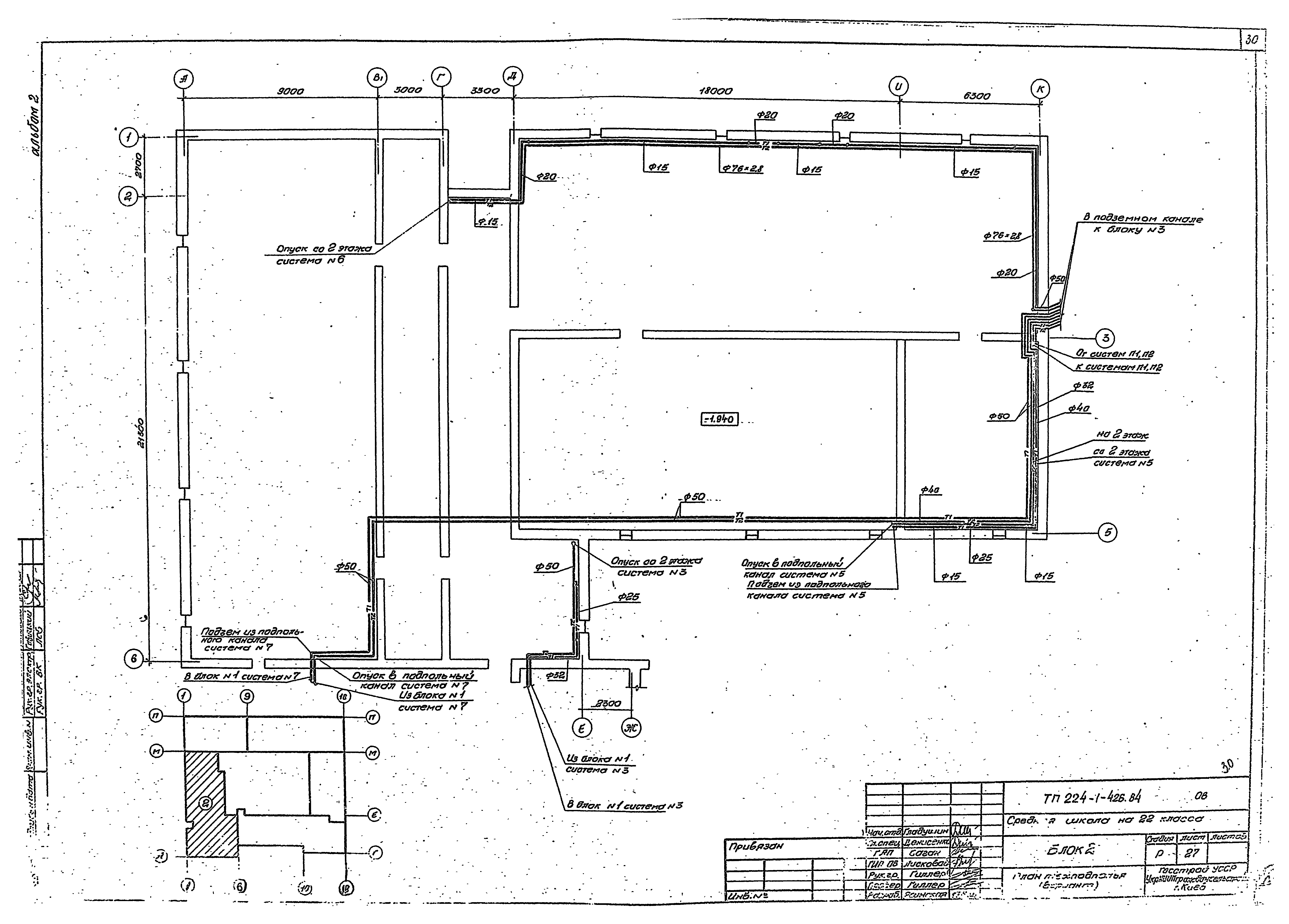
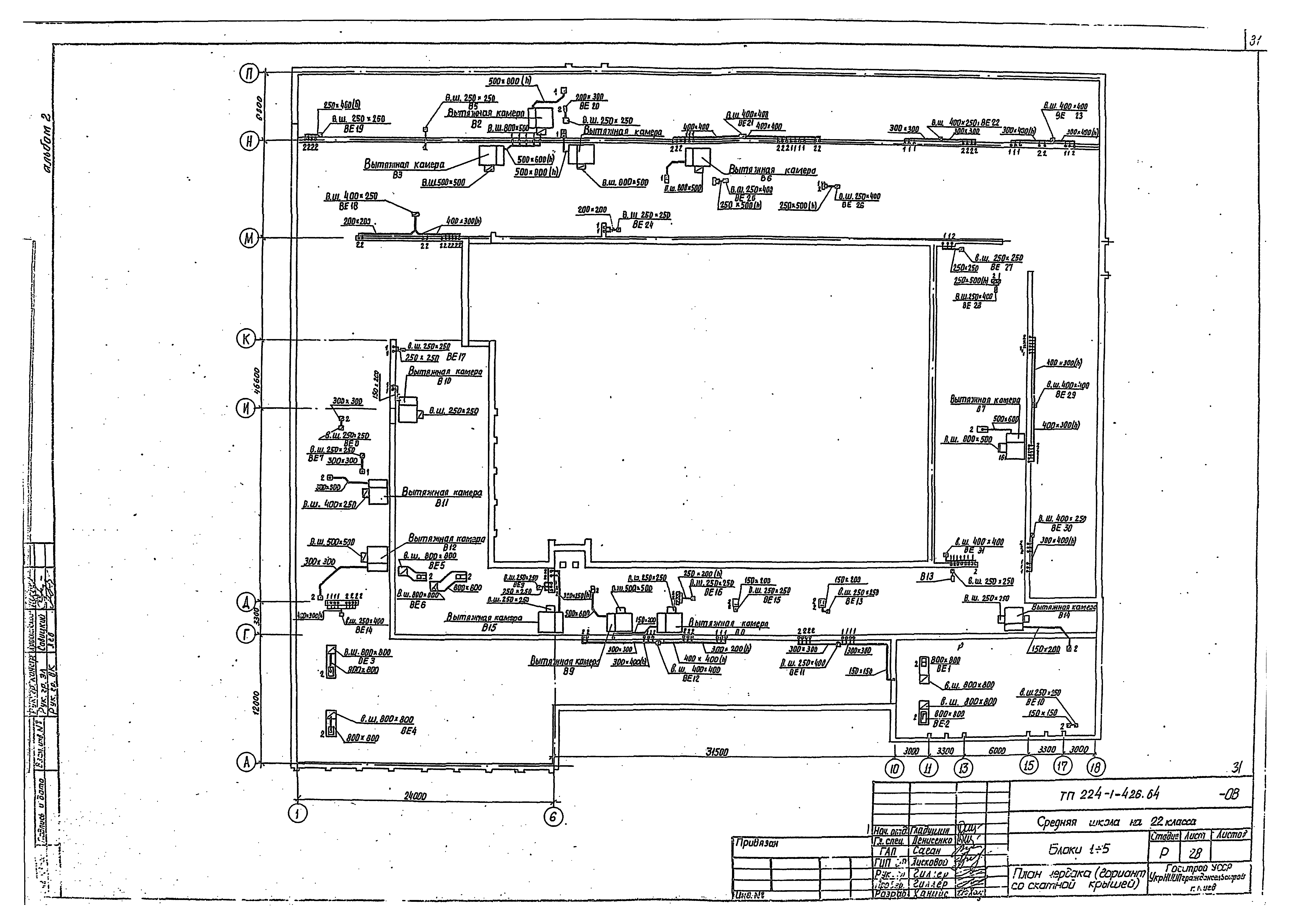
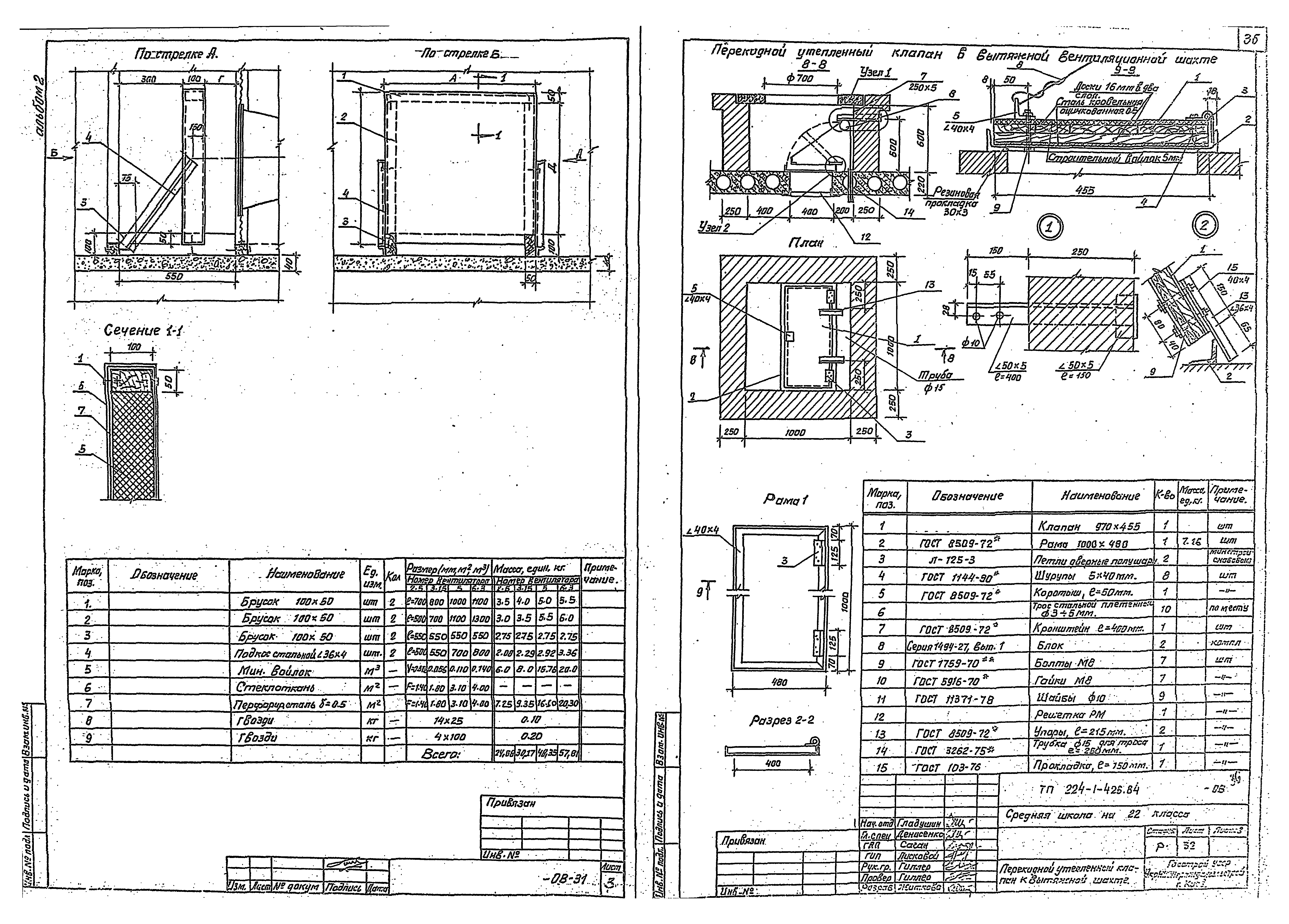
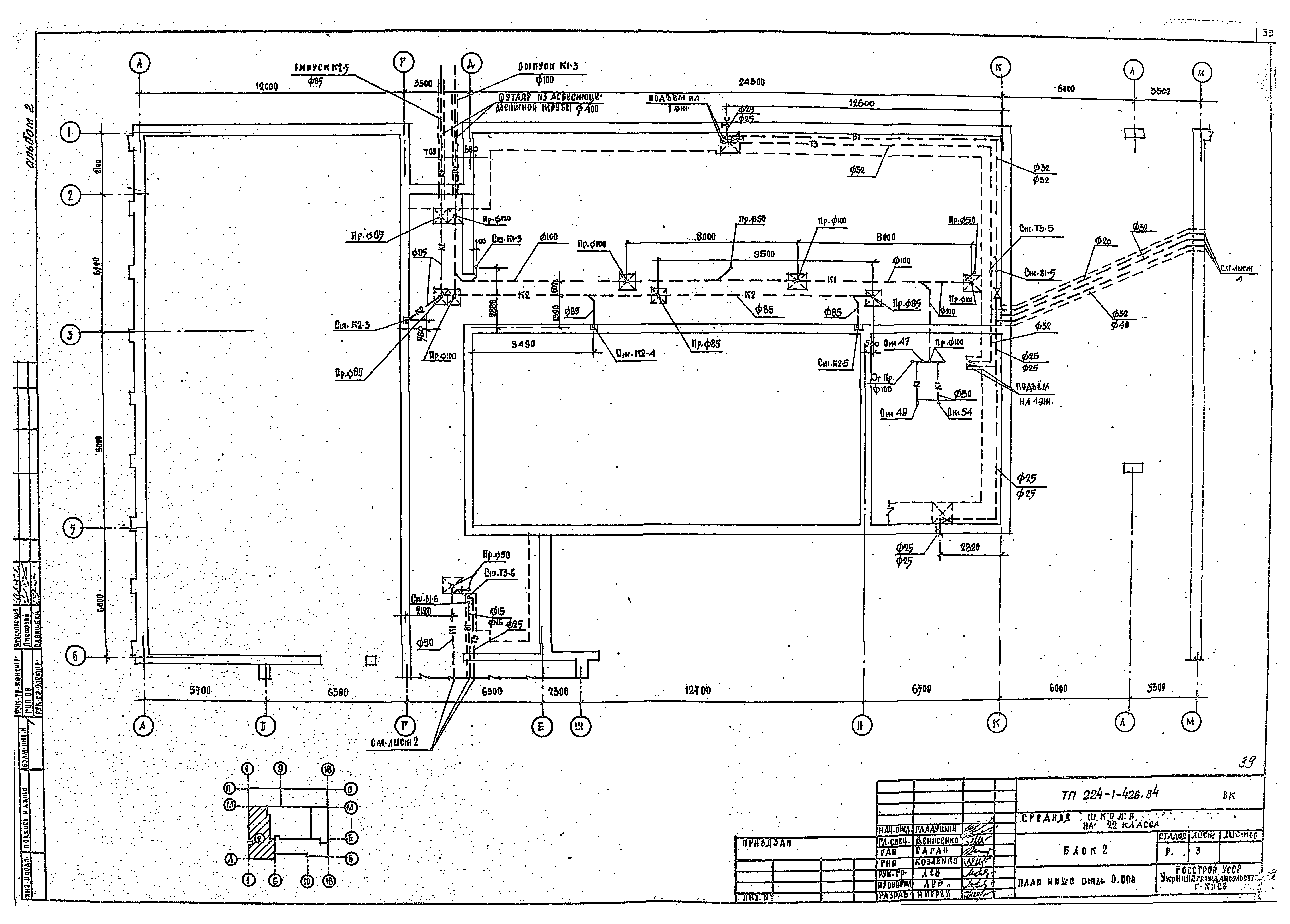
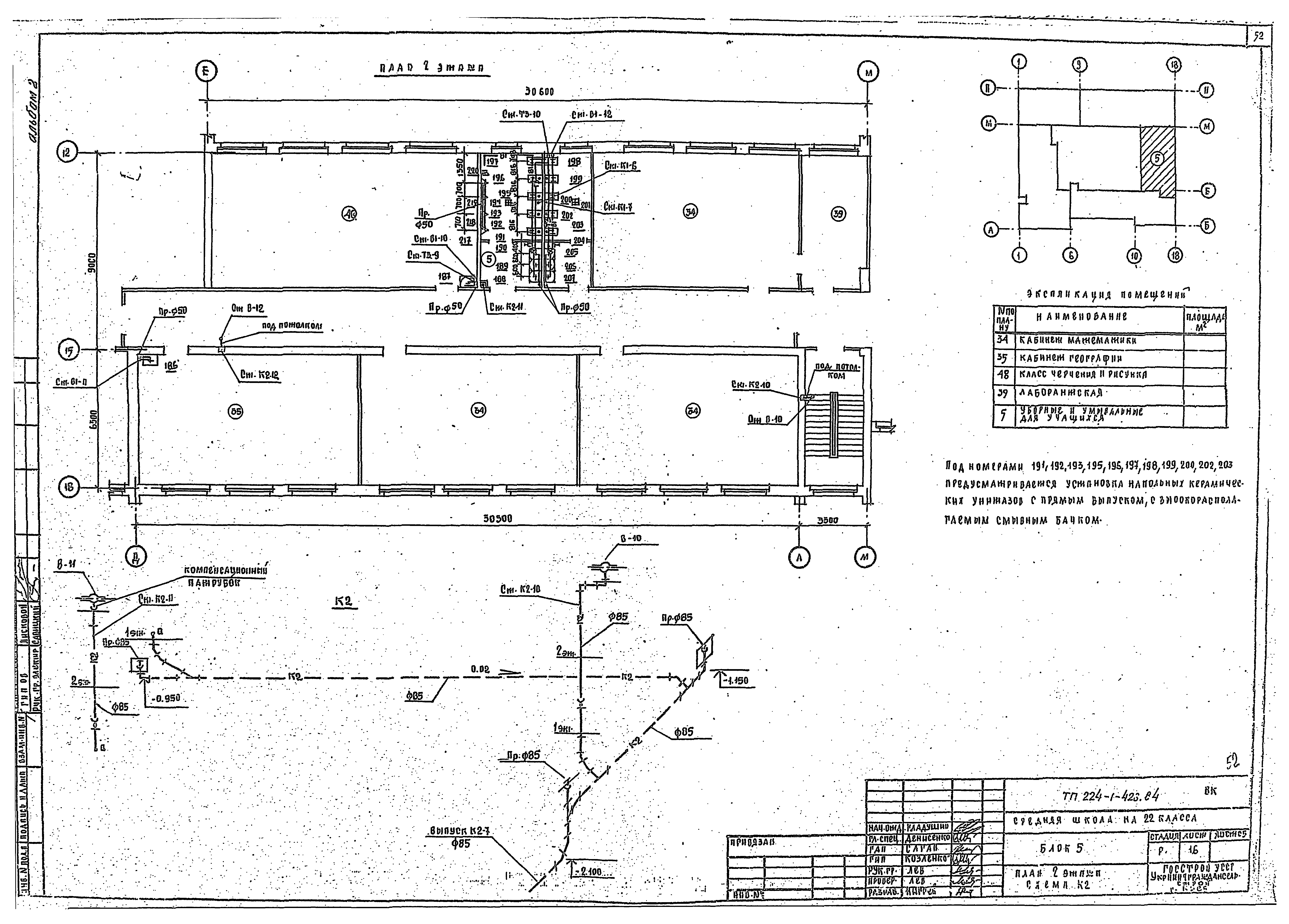
| Оглавление: | Содержание альбома Отопление и вентиляция Общие данные Блок 1. План 1 этажа. Схемы ВЕ11, ВЕ16 Блок 2. План 1 этажа Блок 3. План 1 этажа Блок 4. План 1 этажа Блок 5. План 1 этажа Блок 1. План 2 этажа. Схемы ВЕ1, ВЕ2, ВЕ10, ВЕ12, ВЕ13, ВЕ15 Блок 2. План 2 этажа Блок 3. План 2 этажа. Схемы ВЕ18, ВЕ19, ВЕ20 Блок 4. План 2 этажа Блок 5. План 2 этажа Блоки 1, 2. Схемы систем отопления Блоки 3, 5. Схемы систем отопления Блок 4. Схемы систем отопления Блок 2. Приточные установки П1, П2. План. Разрезы 1-1, 2-2 Блок 3. Приточная установка П3 и теплопункт. План. Разрезы 1-1, 2-2, 3-3 Блок 4. Приточная установка П4. План. Разрез 1-1. Теплопункт. План. Разрезы 2-2, 3-3 Блоки 1, 5. Приточные установки П5, П6. План. Разрезы 1-1, 2-2, 3-3 Схемы теплоснабжения калориферов Схемы приточных систем П1, П2, П3 Схемы приточных систем П4, П5, П6 Схемы вытяжных систем В1 - В3, В5 - В15 Блоки 1, 5. Планы техподполья (вариант) Блоки 3, 4. Планы техподполья (вариант) Блок 2. План техподполья (вариант) Блоки 1 - 5. План чердака (вариант со скатной крышей) Схемы вытяжных систем В1 - В3, В6 - В12, В14, В15 (вариант со скатной крышей) Схемы вытяжных систем В3 - ВЕ9, ВЕ14, ВЕ17, ВЕ21 - ВЕ31 Вытяжные камеры (вариант со скатной крышей) Перекидной утепленный клапан к вытяжной вентшахте Водоснабжение и канализация Общие данные Блок 1. План ниже отм. 0.000. Схема К2 Блок 2. План ниже отм. 0.000 Блок 3. План ниже отм. 0.000. Схемы В1, Т3, Т4, К2 Блок 4. План ниже отм. 0.000. Схема К1 Блок 5. План ниже отм. 0.000. Схемы В1, Т3, Т4 Блок 1. План 1 этажа Блок 2. План 1 этажа Блок 3. План 1 этажа. Схемы К2, К3 Блок 4. План 1 этажа. Схема К1 Блок 5. План 1 этажа. Схема К1 Блок 1. План 2 этажа. Схема К2 Блок 2. План 2 этажа Блок 3. План 2 этажа. Схема К1 Блок 4. План 2 этажа. Схема К2 Блок 5. План 2 этажа. Схема К2 План покрытия Блок 1, 2. Схемы В1, Т3, Т4, К1 Блок 2. Схемы В1, Т3, Т4, К1, К2 Блок 4. Схемы В1, Т3, Т4 Блок 1. План техподполья (вариант). Схемы В1, Т3, Т4 Блок 2. План техподполья (вариант) Блок 3, 4. План техподполья (вариант) Блок 5. План техподполья (вариант). Схемы В1, Т3, Т4 Блок 1, 5. Схемы К1, К2 (вариант) Блок 2. Схемы В1, Т3, Т4, К1, К2 (вариант) Блок 4. Схемы В1, Т3, Т4, К1, К2 (вариант) |
| Разработан: | УкрНИИПграждансельстроя |
| Утверждён: | 24.06.1983 Госстрой УССР (UkrSSR Gosstroy 56) |






























































