Скачать Типовой проект 262-12-151 Альбом II. Часть 1. Санитарно-технические чертежи, автоматизация сантехустройствДата актуализации: 01.01.2021
|
| Обозначение: | Типовой проект 262-12-151 |
| Обозначение англ: | 262-12-151 |
| Статус: | действует |
| Название рус.: | Альбом II. Часть 1. Санитарно-технические чертежи, автоматизация сантехустройств |
| Дата добавления в базу: | 01.10.2014 |
| Дата актуализации: | 01.01.2021 |
| Дата введения: | 30.11.1976 |
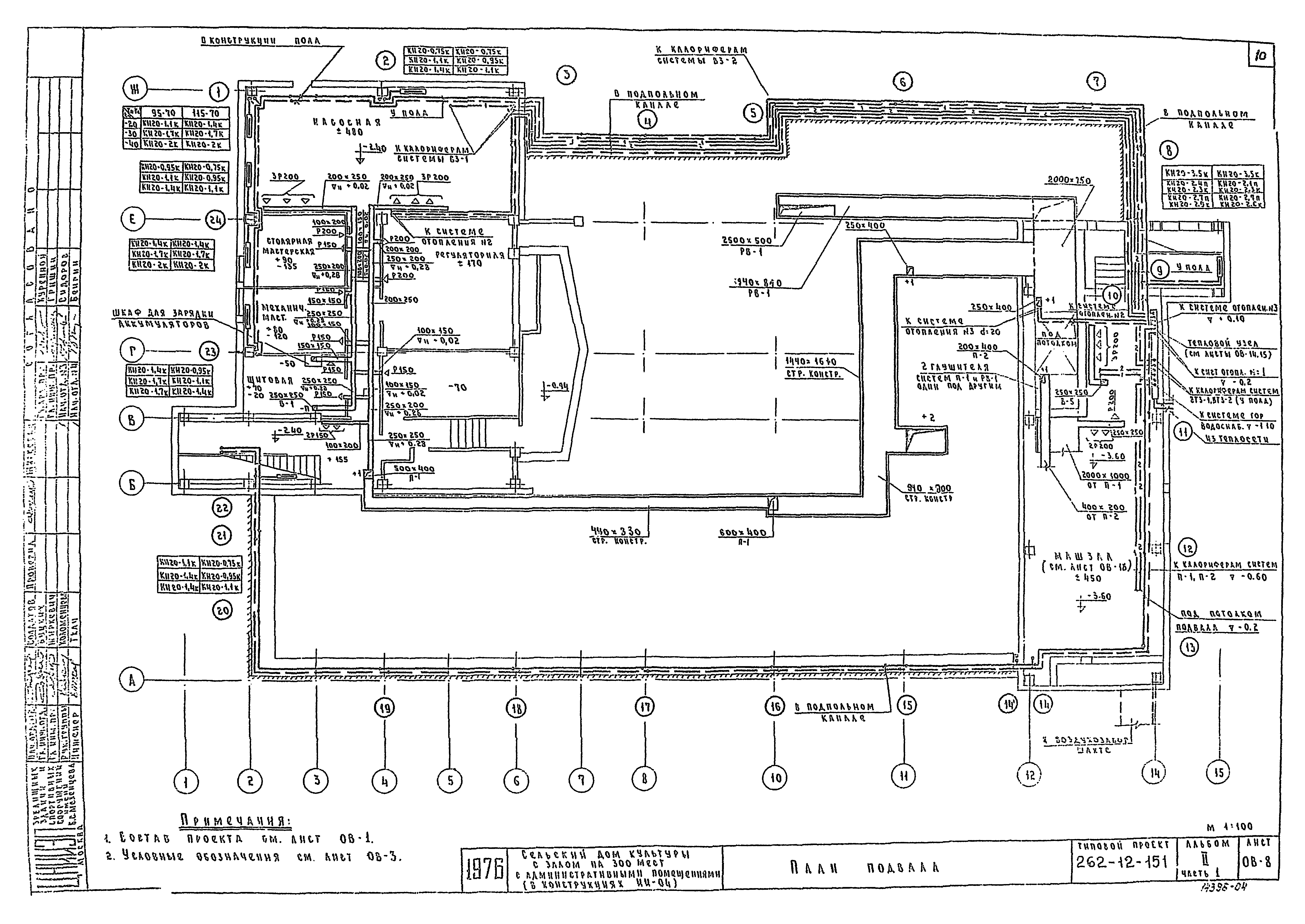
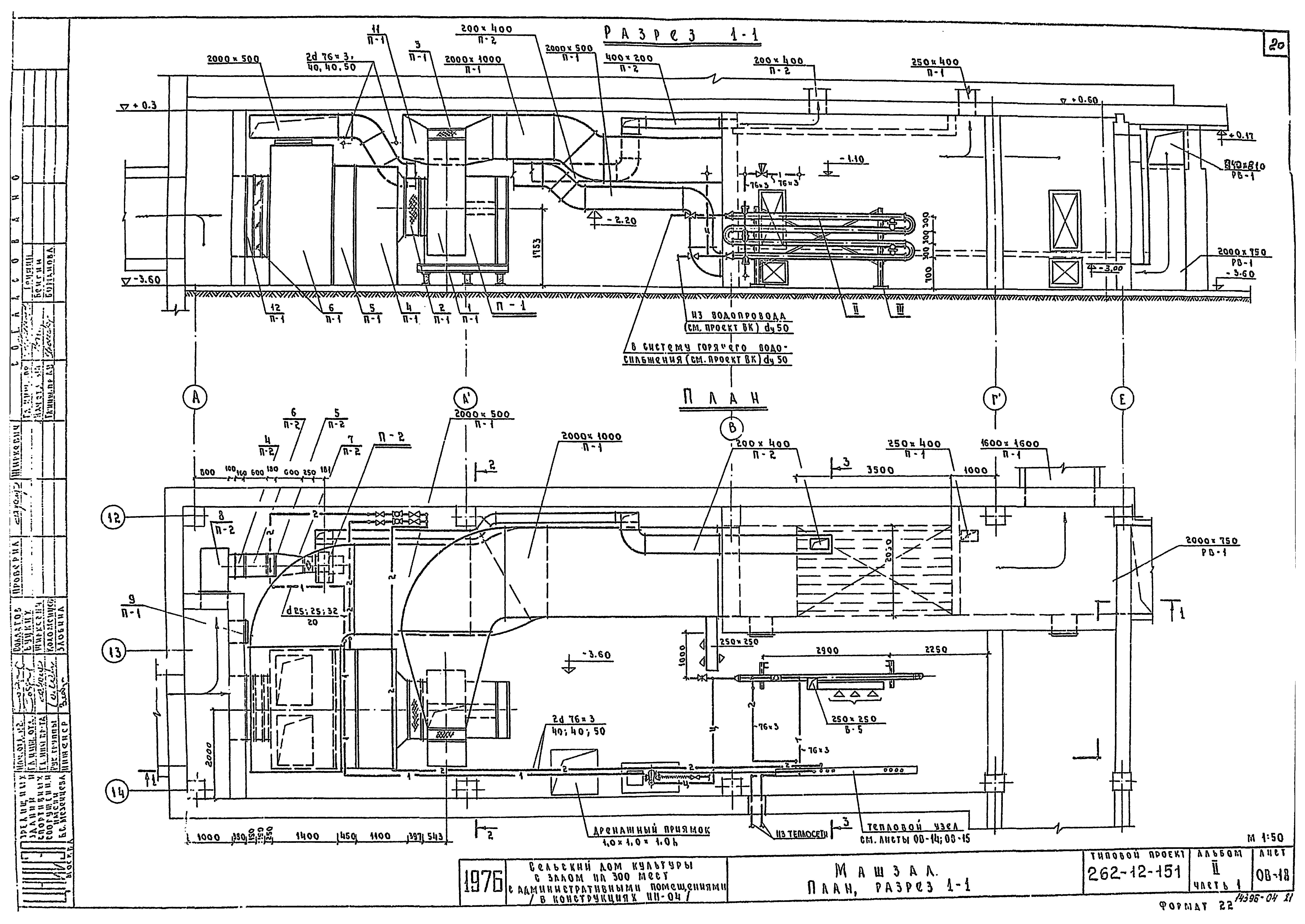
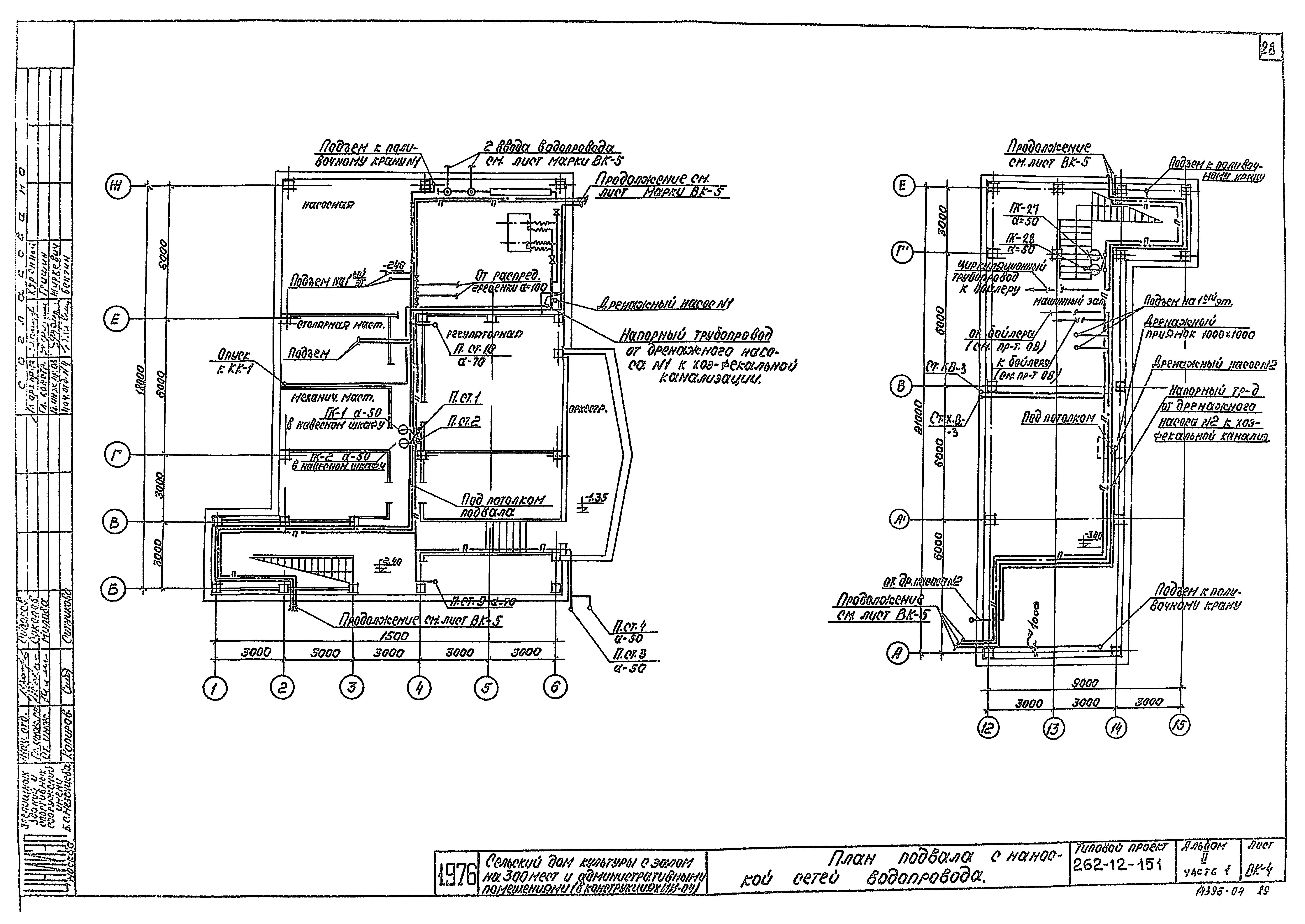
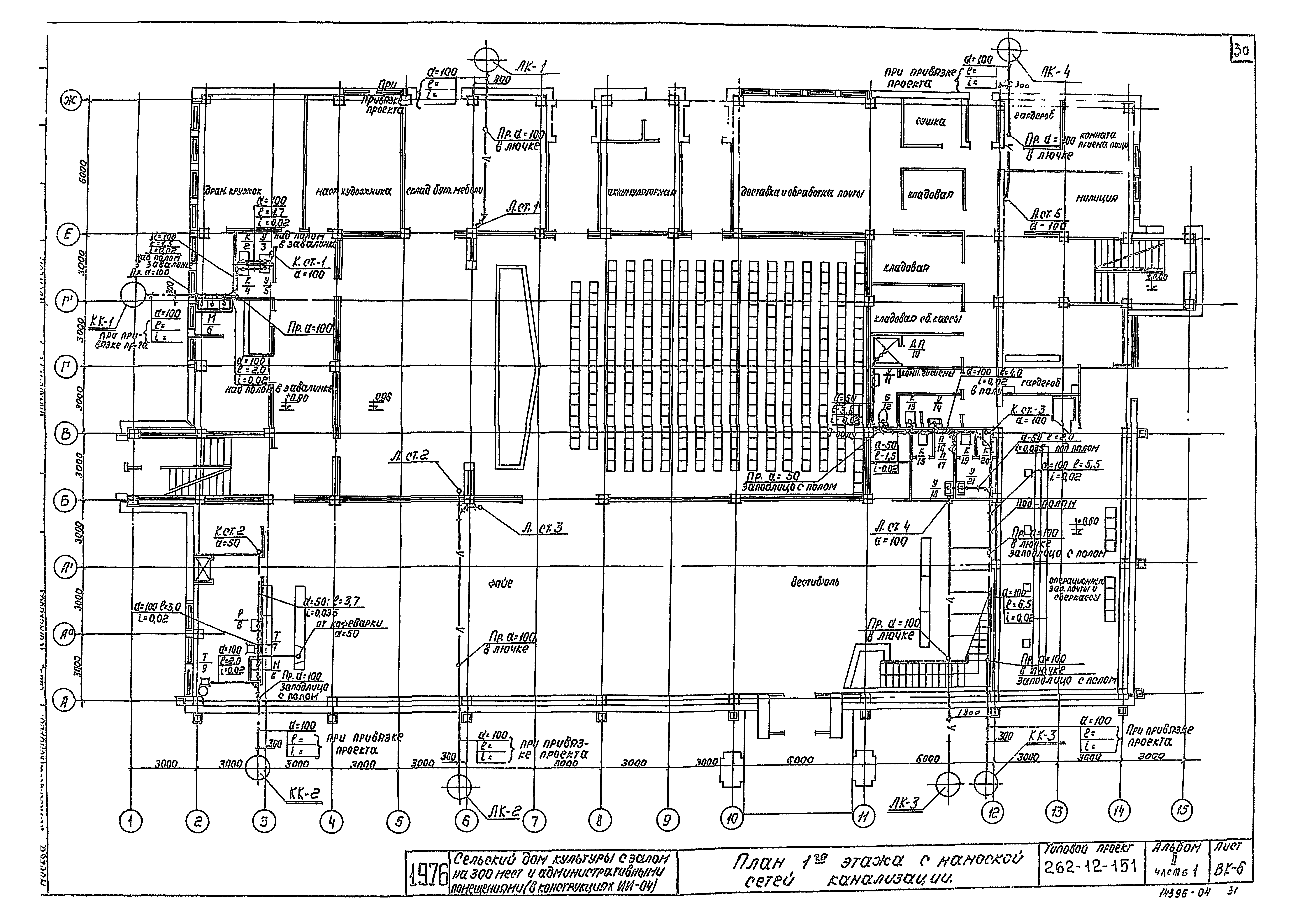
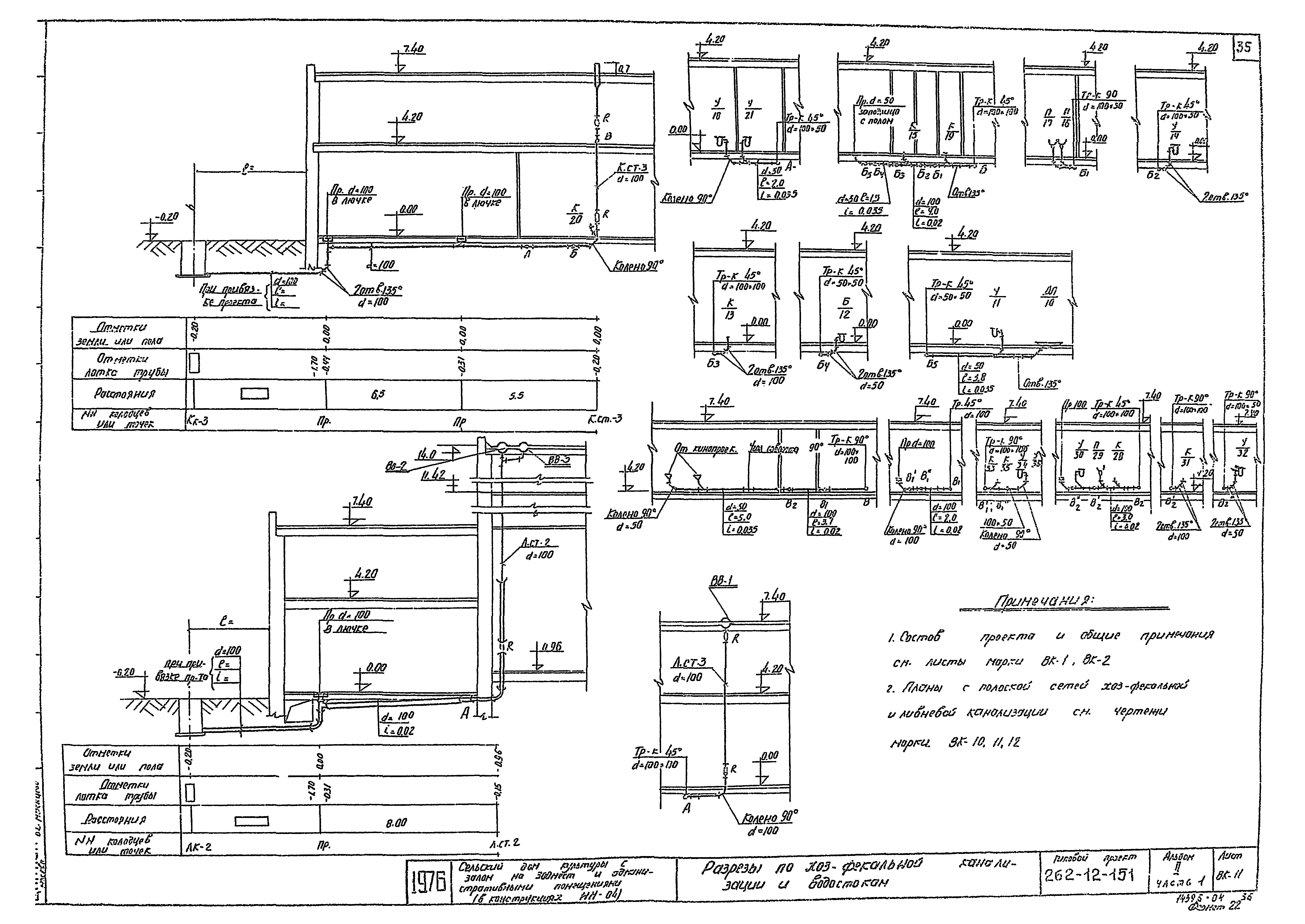
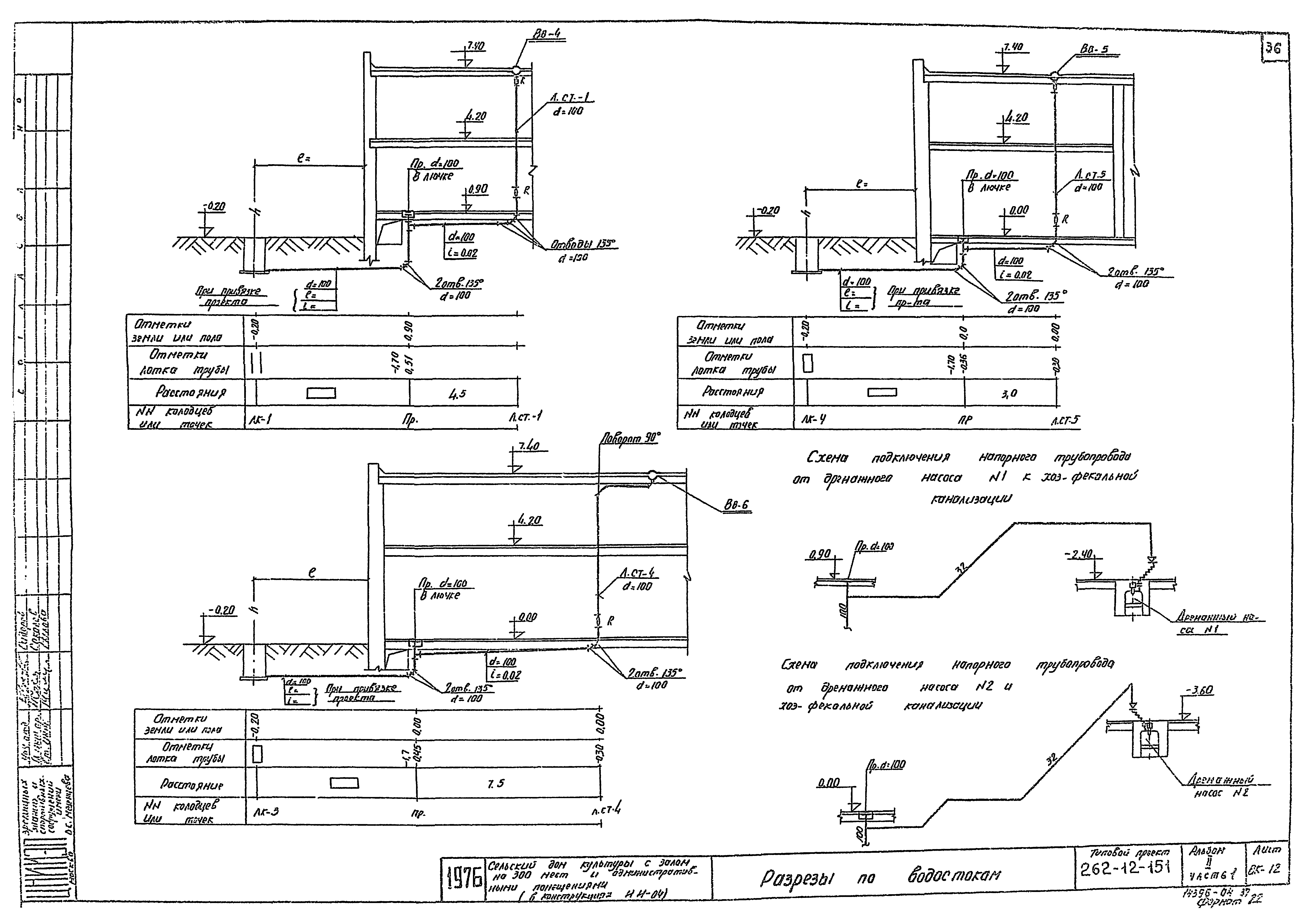
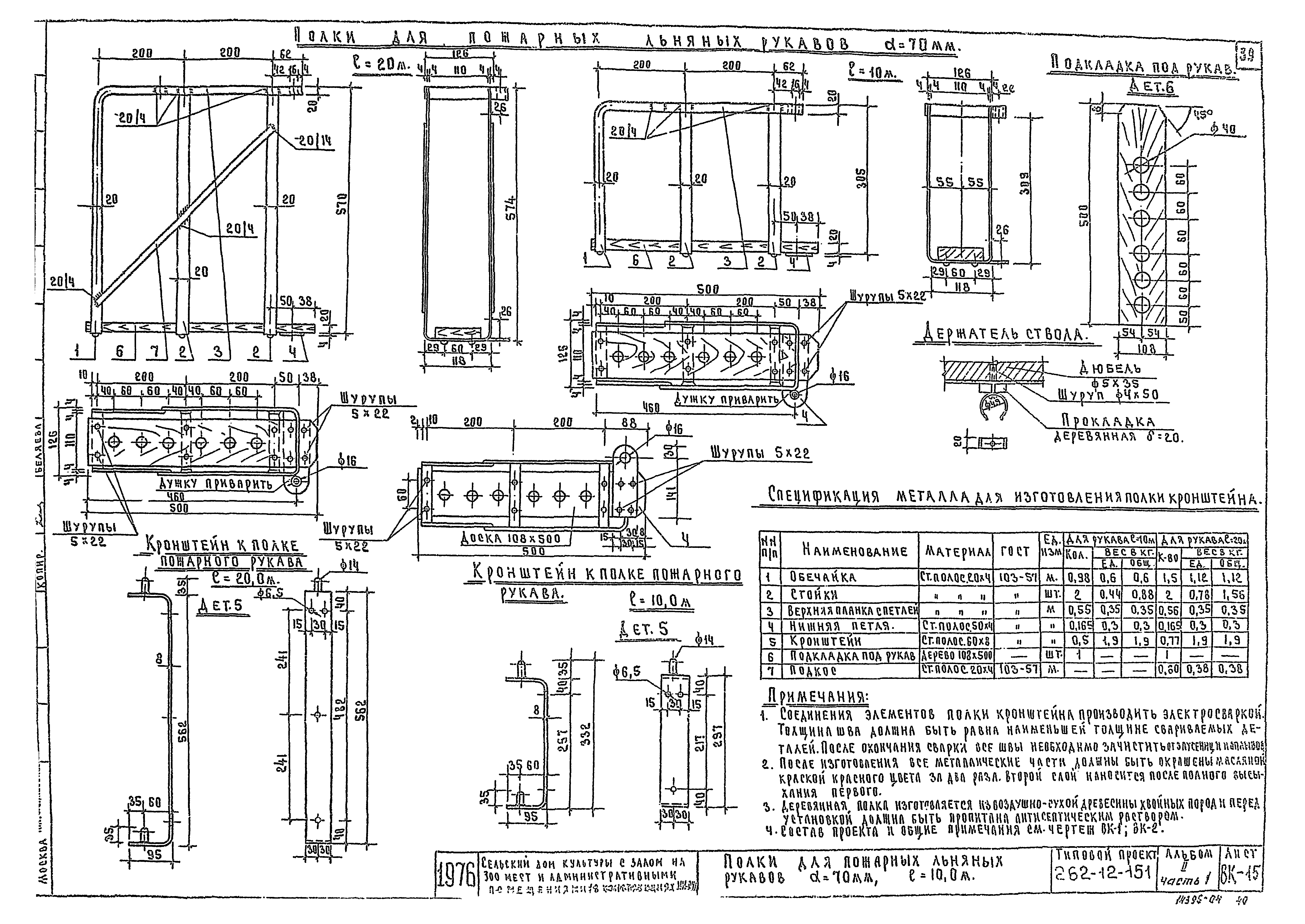
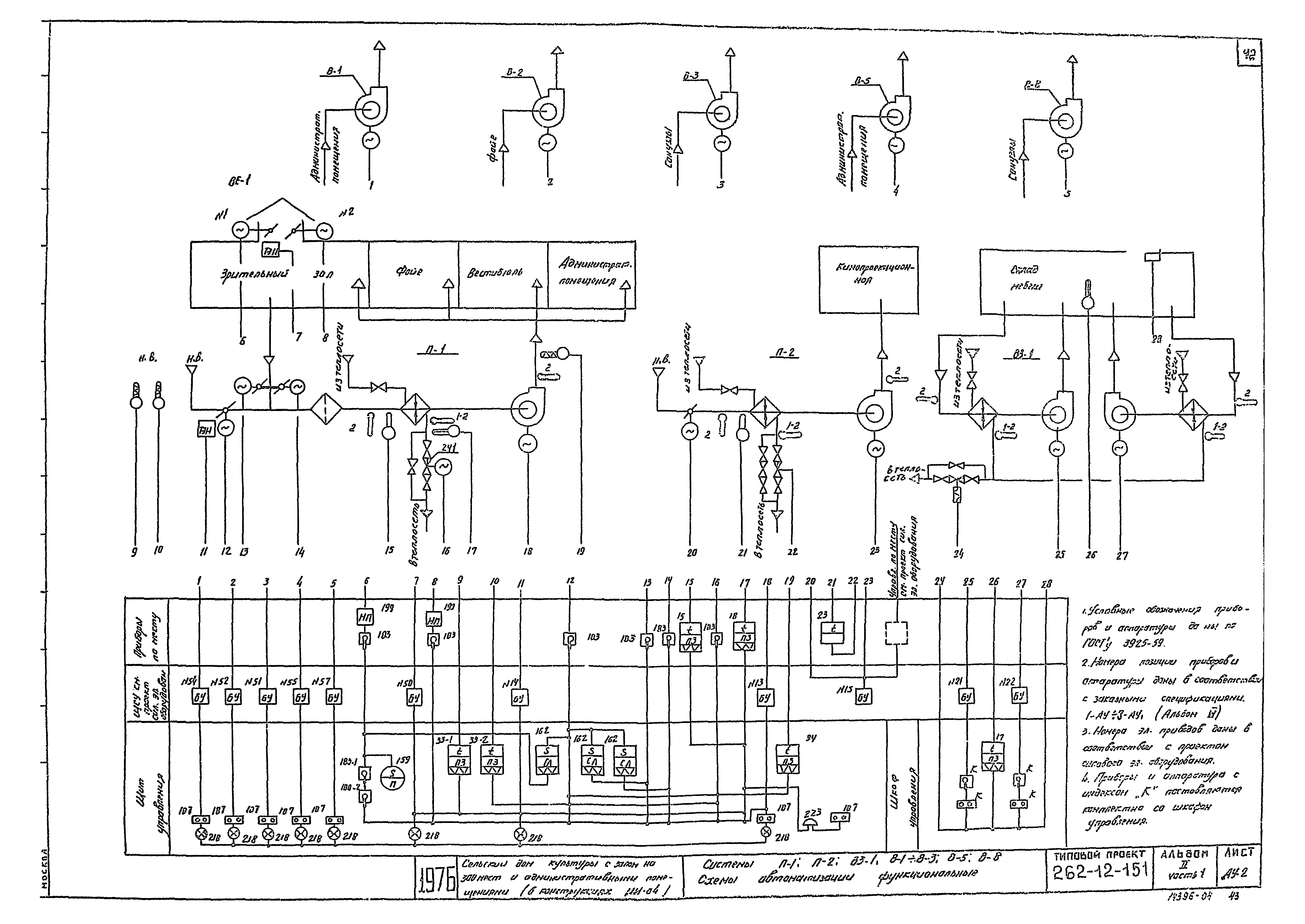
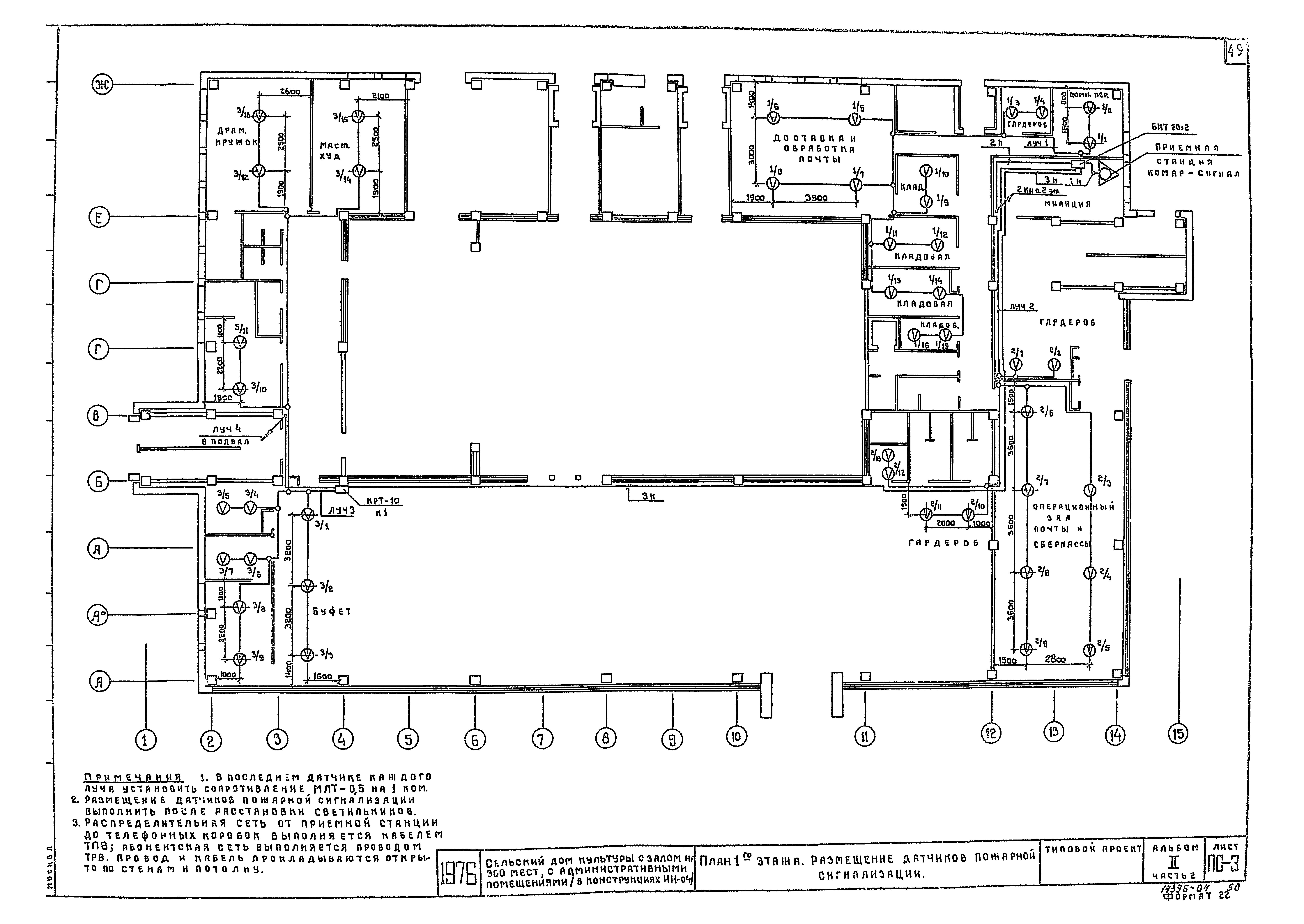
| Оглавление: | Чертежи основного комплекта марки ОВ Заглавный лист Пояснения к проекту Условные обозначения Характеристики отопительно-вентиляционных систем. Основные показатели проекта Сводная спецификация материалов и оборудования План подвала План 1 этажа План 2 этажа Схема системы отопления №1 Схемы систем отопления №2 и №3. Схема обвязки бойлера Схема теплоснабжения секций подогрева систем П-1, П-2, ВЗ-1, ВЗ-2. Установка регулирующего клапана на трубопроводе Тепловой узел для теплоносителя 150 - 70 градусов Цельсия. Спецификация Тепловой узел для теплоносителя 95 - 70 градусов Цельсия. Спецификация Схемы систем вентиляции П-1, П-2, ВЗ-1, ВЗ-2, ВЕ-1 Схемы систем вентиляции В-1, В-2, В-3, В-4, В-5, В-6, В-7, В-8, В-9 Машзал. План. Разрез 1-1 Машзал. Разрезы 2-2, 3-3. Спецификация Венткамеры №1 и №2. Планы и разрезы Венткамеры №1 и №2. Спецификация Звено прямого участка асбестоцементного воздуховода Чертежи основного комплекта марки ВК Состав проекта. Основные показатели. Генплан участка Пояснительная записка. Примечания к монтажу Спецификация материалов и оборудования План подвала с наноской сетей водопровода План 1 этажа с наноской сетей водопровода План 1 этажа с наноской сетей канализации План 2 этажа с наноской сетей водопровода и канализации План кровли с сетями водопровода и канализации Схема по хозяйственному и противопожарному водопроводу Разрезы по хозяйственно-фекальной канализации Разрезы по хозяйственно-фекальной канализации и водостокам Разрезы по водостокам Ввод водопровода, водомерный узел, план, разрезы, схема Установочный чертеж пожарного крана d - 70 мм во встроенном и навесном шкафчике Полки для пожарных льняных рукавов d - 70 мм, L = 10 м Установочный чертеж спаренного пожарного крана d - 50 Чертежи основного комплекта марки АУ Автоматизация сантехустройств. Перечень чертежей. Пояснения к проекту Системы П-1, П-2, ВЗ-1, В-1 - В-3, В-5, В-8. Схемы автоматизации функциональные Схема соединений Машзал. План. Фрагменты поэтажных планов. Расположение электрических проводок Чертежи основного комплекта марки ПС Перечень чертежей. Пояснения к проекту План подвала. Размещение датчиков пожарной сигнализации. Схема распределительной сети План 1-го этажа. Размещение датчиков пожарной сигнализации План 2-го этажа. Размещение датчиков пожарной сигнализации |
| Разработан: | ЦНИИЭП зрелищных зданий и спортивных сооружений им. Б.С. Мезенцева |
| Утверждён: | 09.10.1976 Госгражданстрой (Gosgrazhdanstroy 6) |

















































