Скачать Типовой проект 272-12-73.86 Альбом I. Архитектурно-строительные решения. Витражи. Технология. МеханизацияДата актуализации: 01.01.2021
|
| Обозначение: | Типовой проект 272-12-73.86 |
| Обозначение англ: | 272-12-73.86 |
| Статус: | не определен законодательством |
| Название рус.: | Альбом I. Архитектурно-строительные решения. Витражи. Технология. Механизация |
| Дата добавления в базу: | 01.10.2014 |
| Дата актуализации: | 01.01.2021 |
| Дата введения: | 30.01.1986 |
| Дата окончания срока действия: | 30.06.2003 |
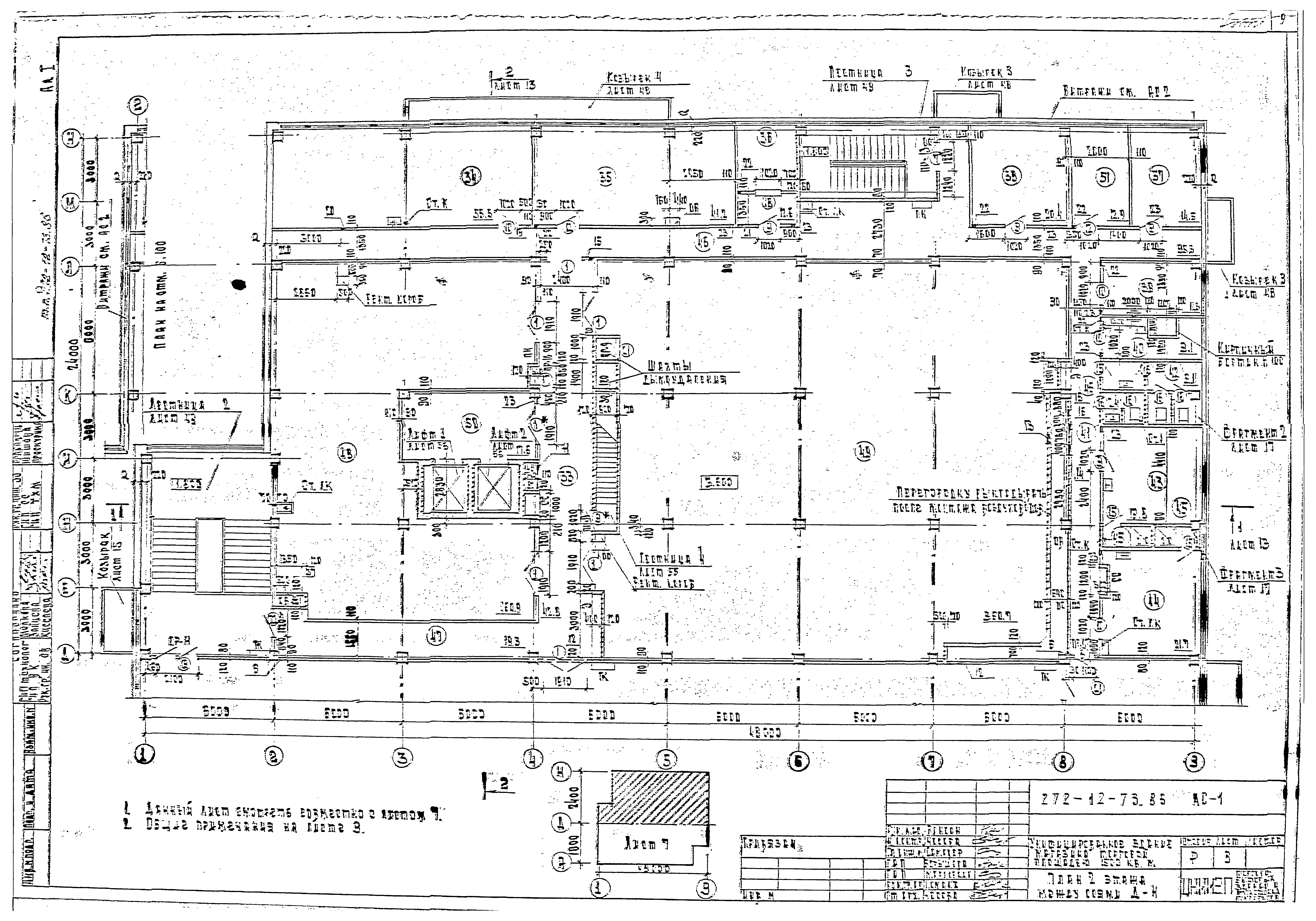
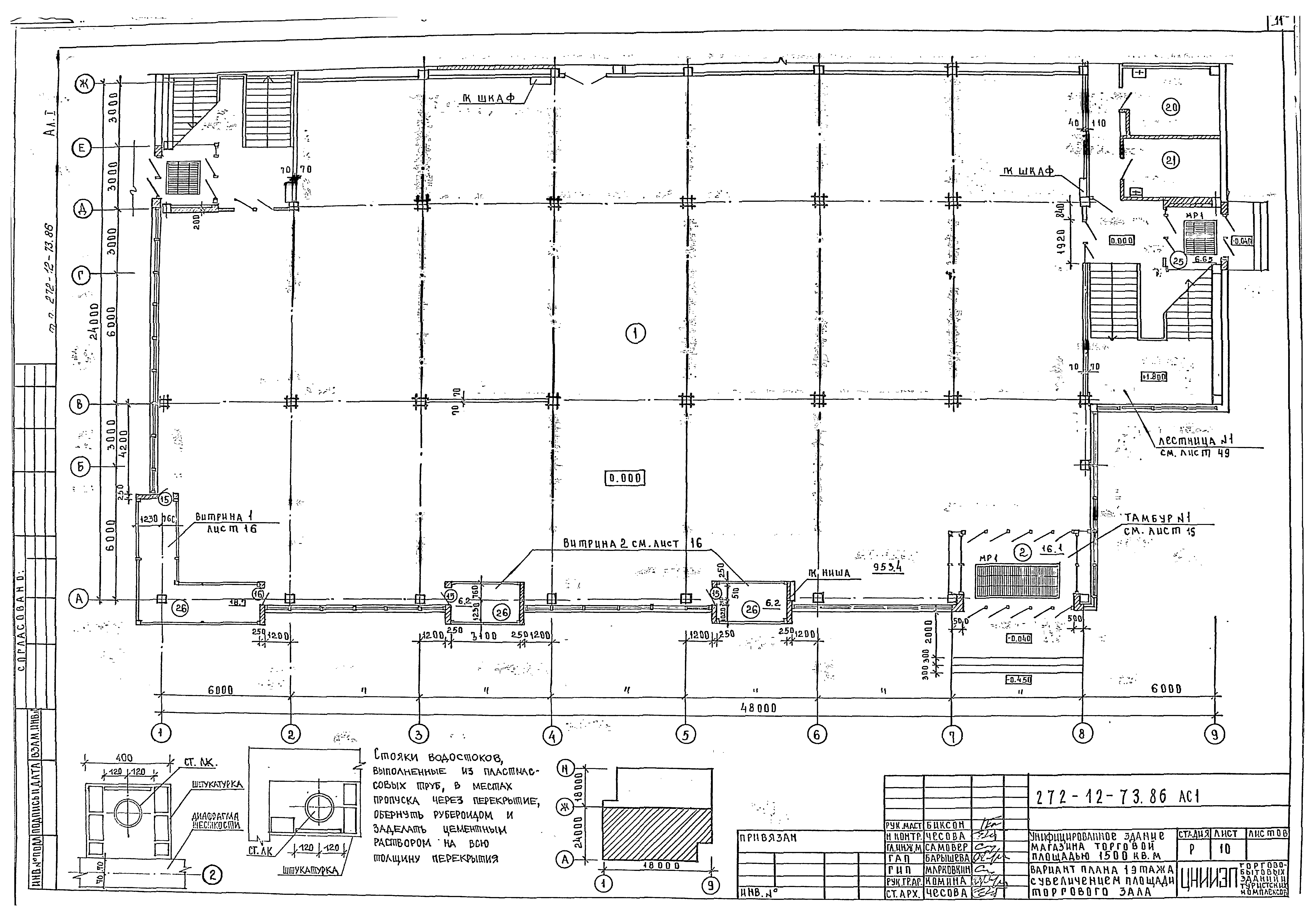
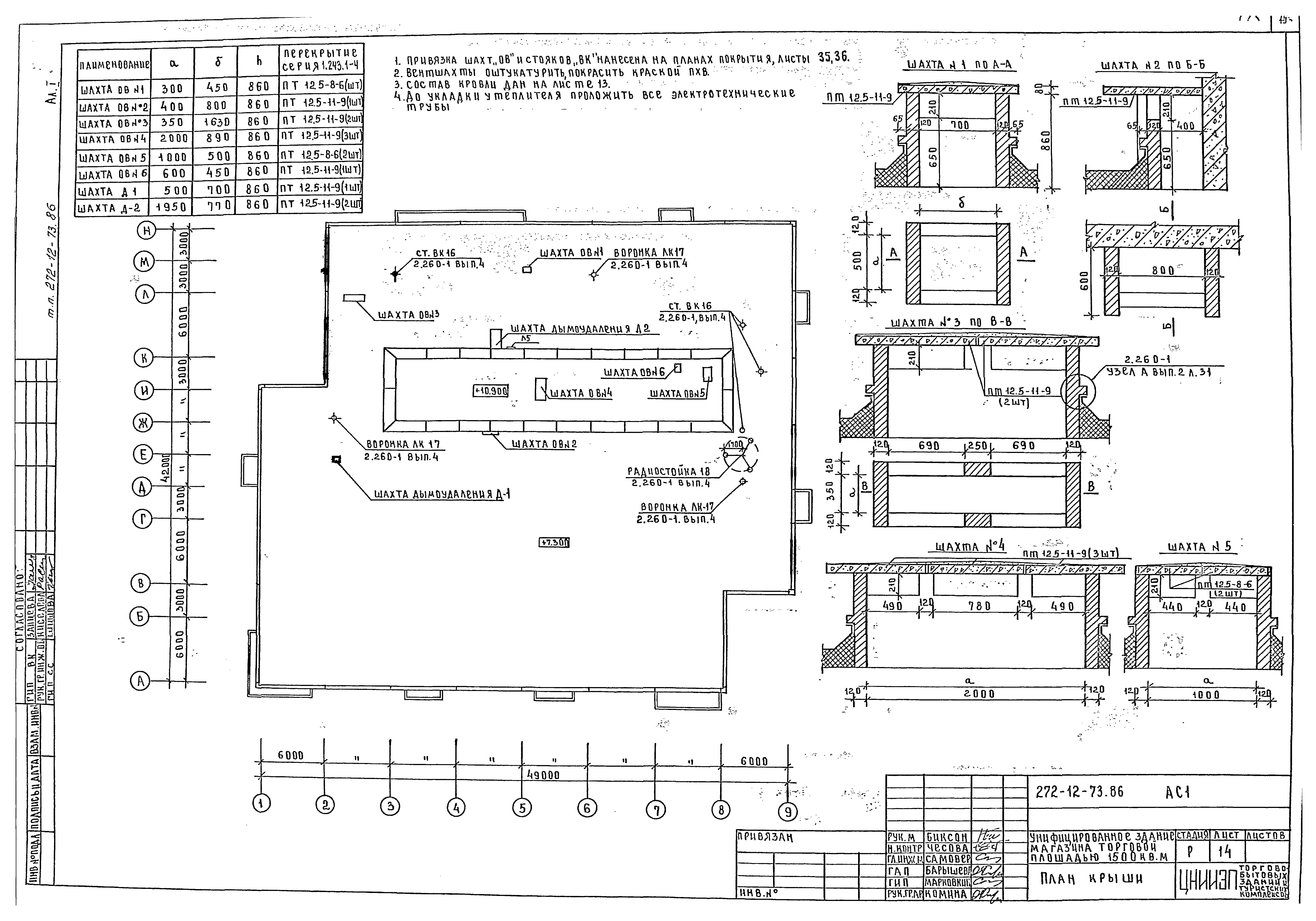
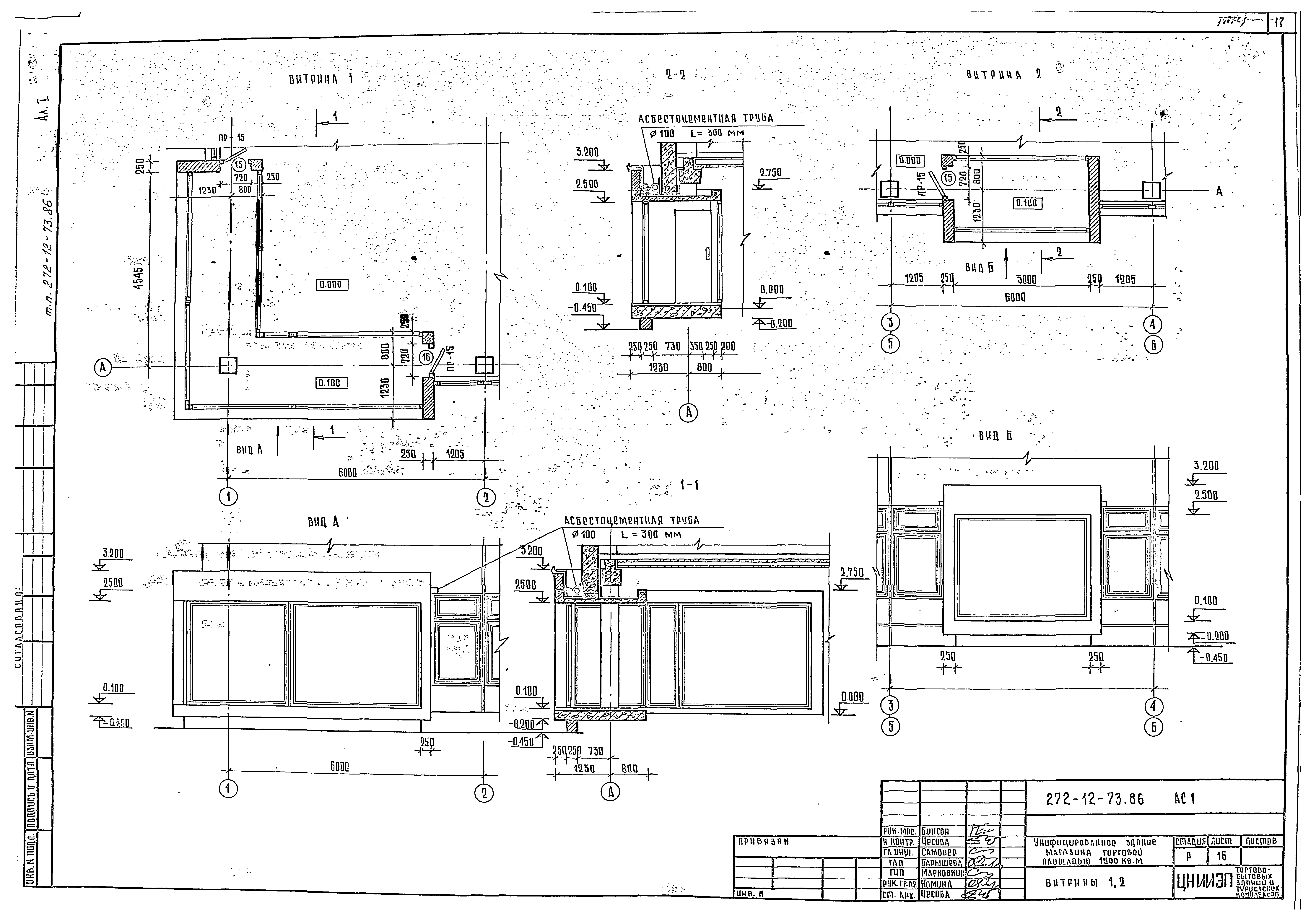
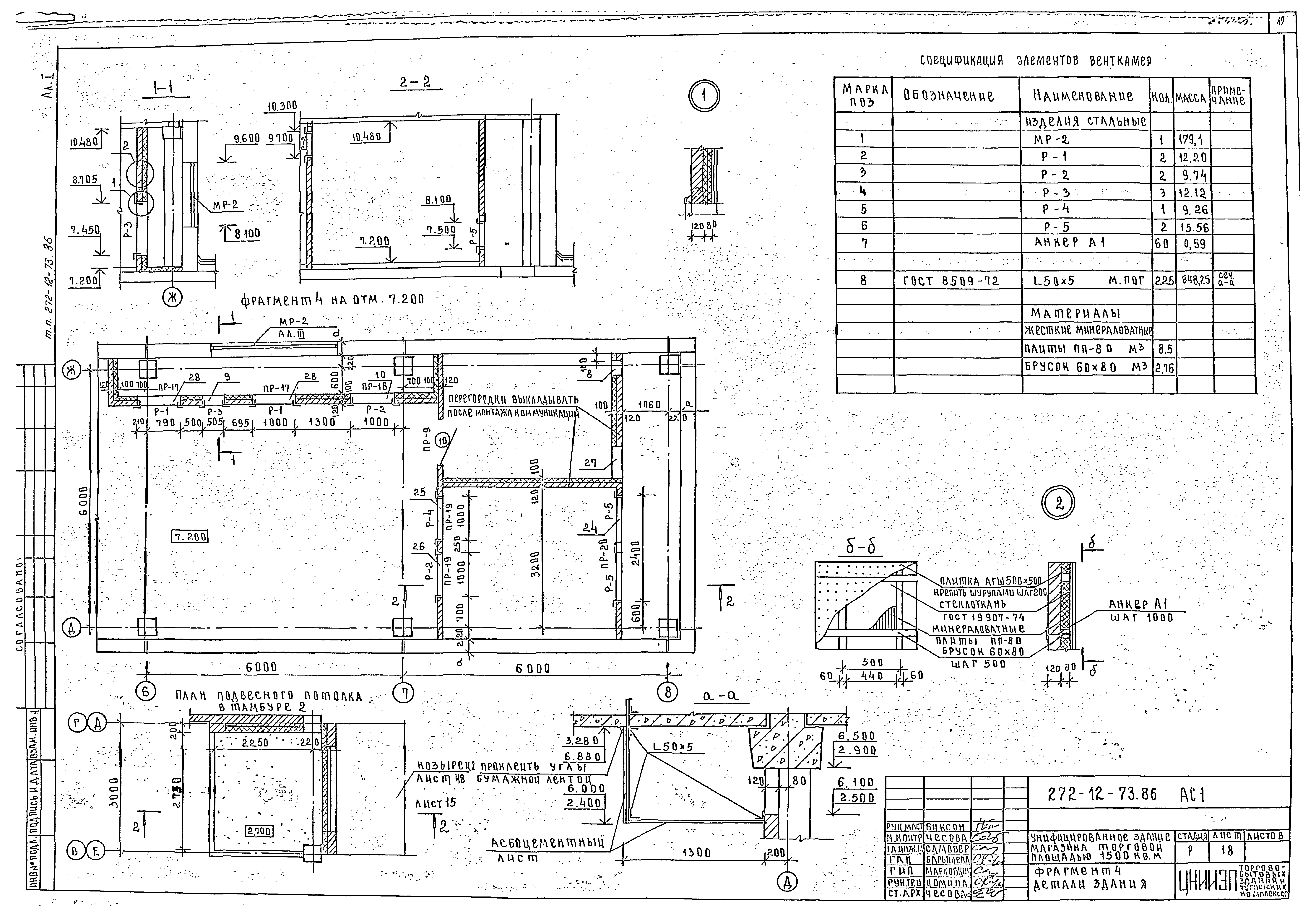
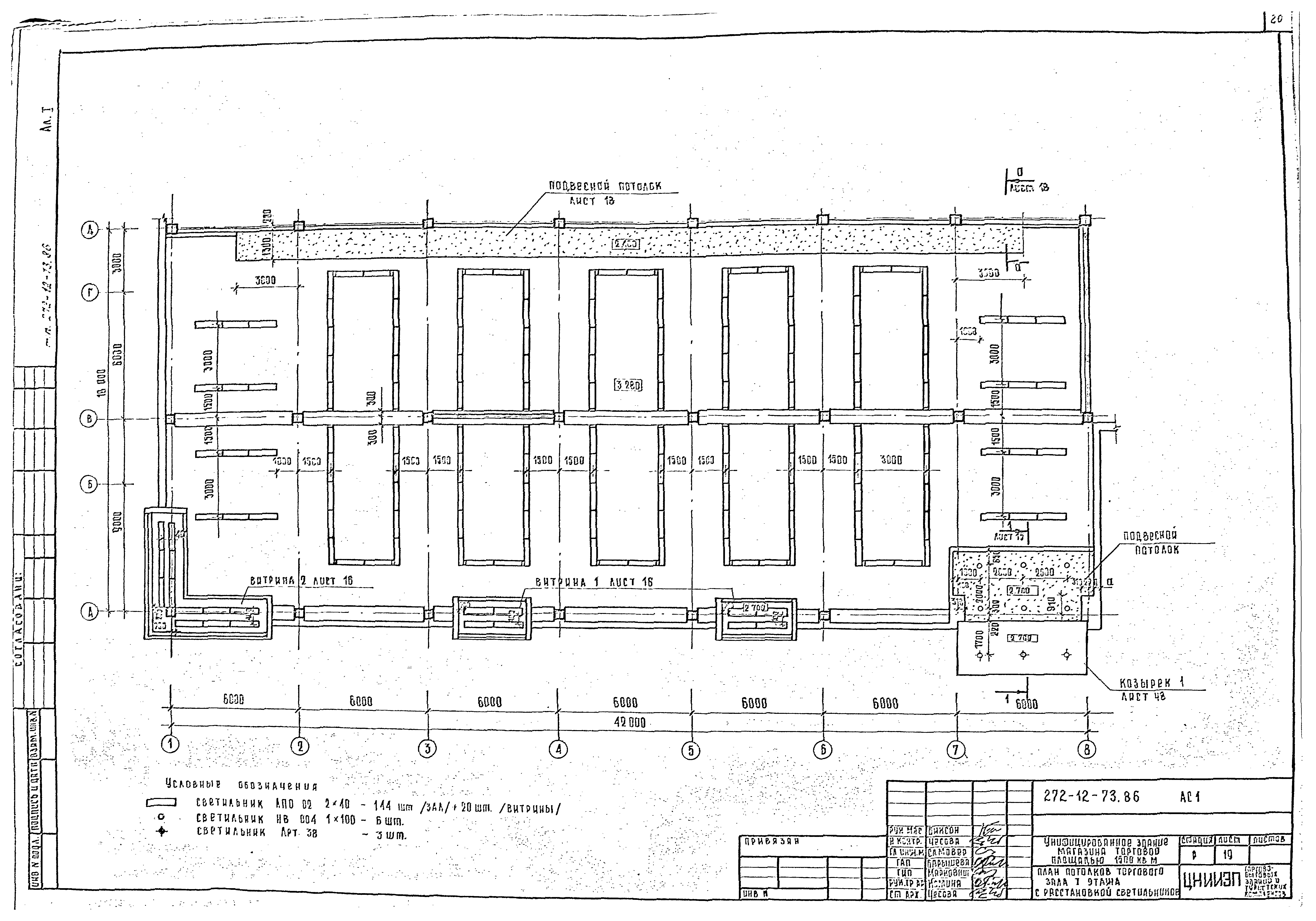
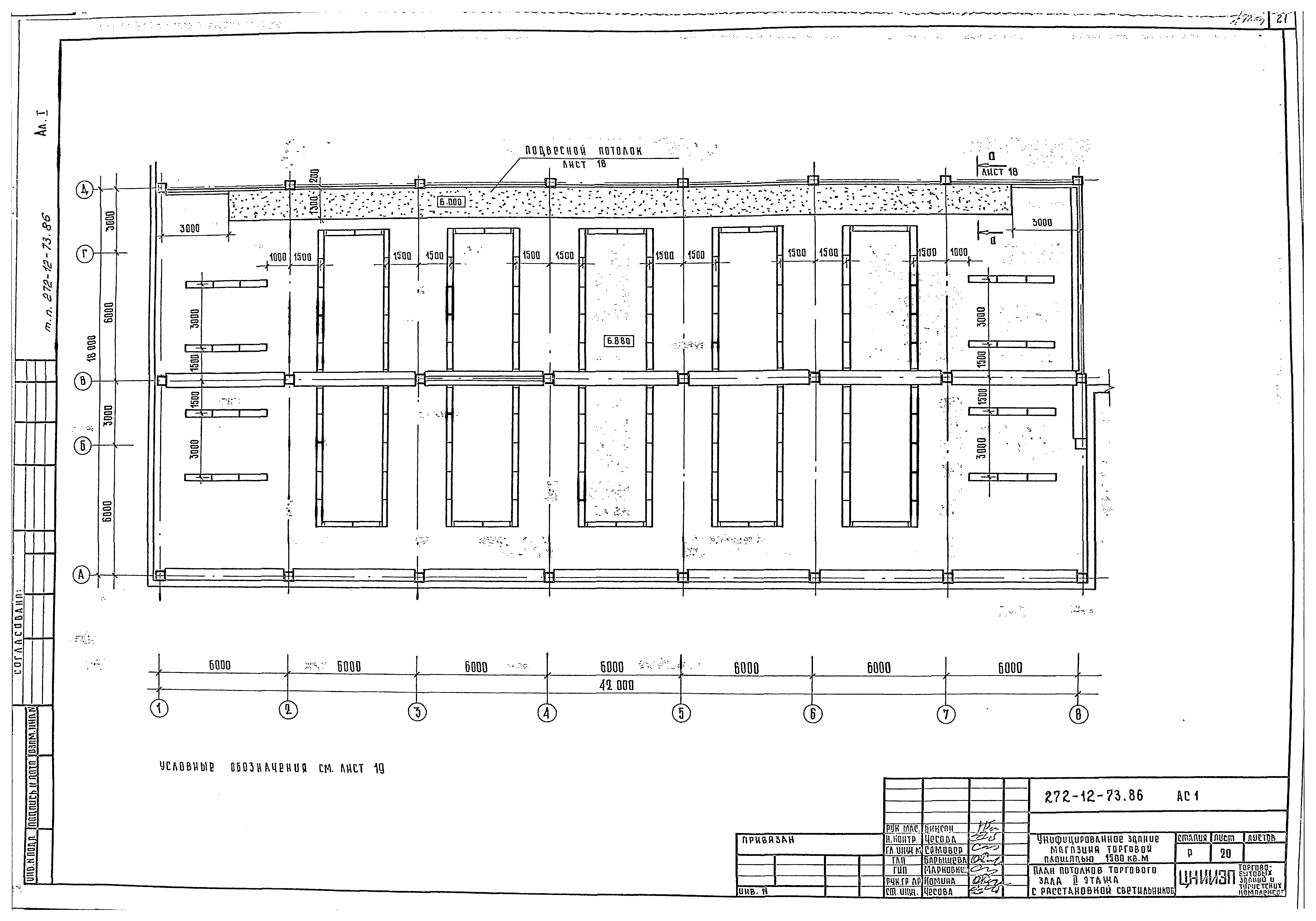
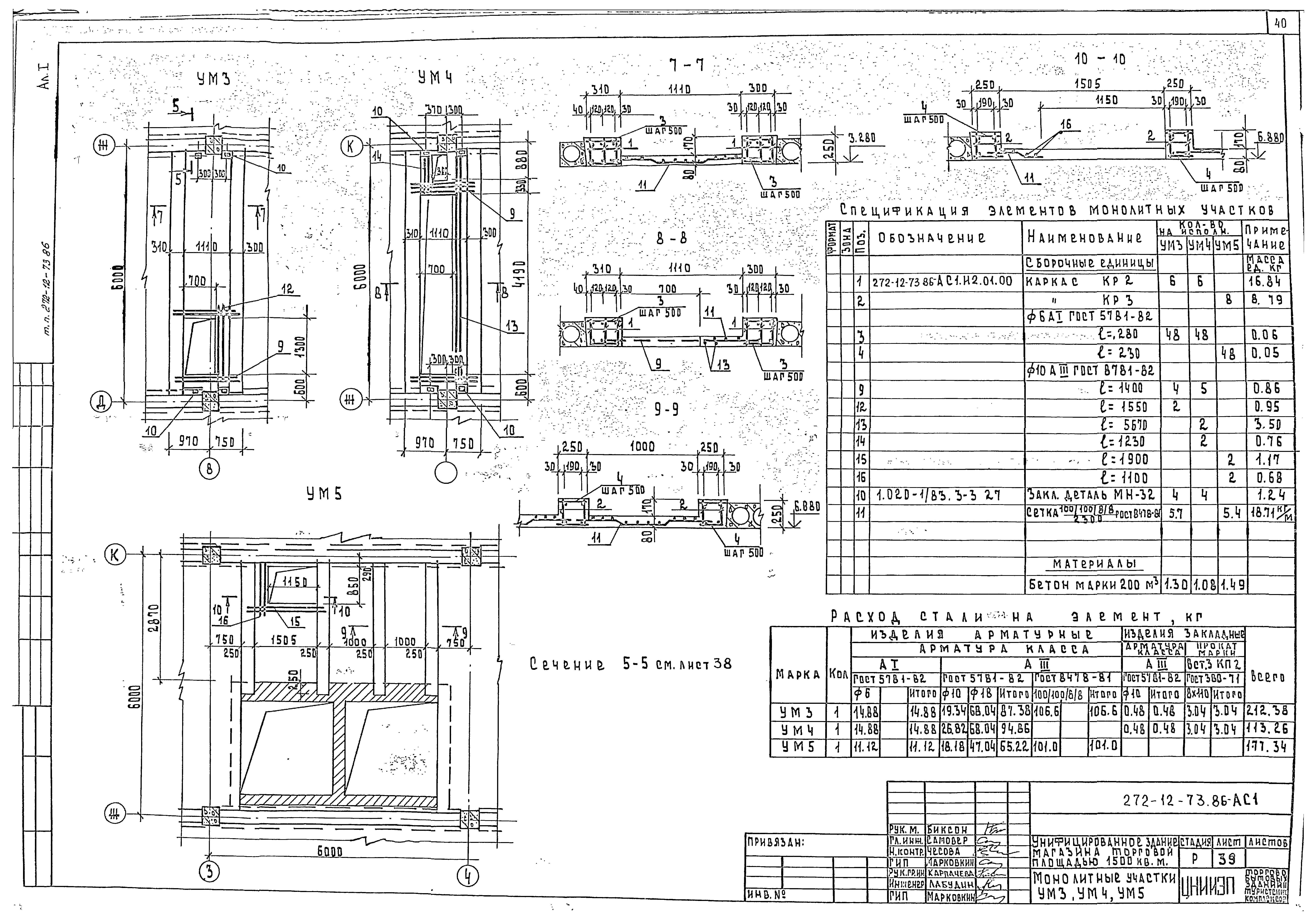
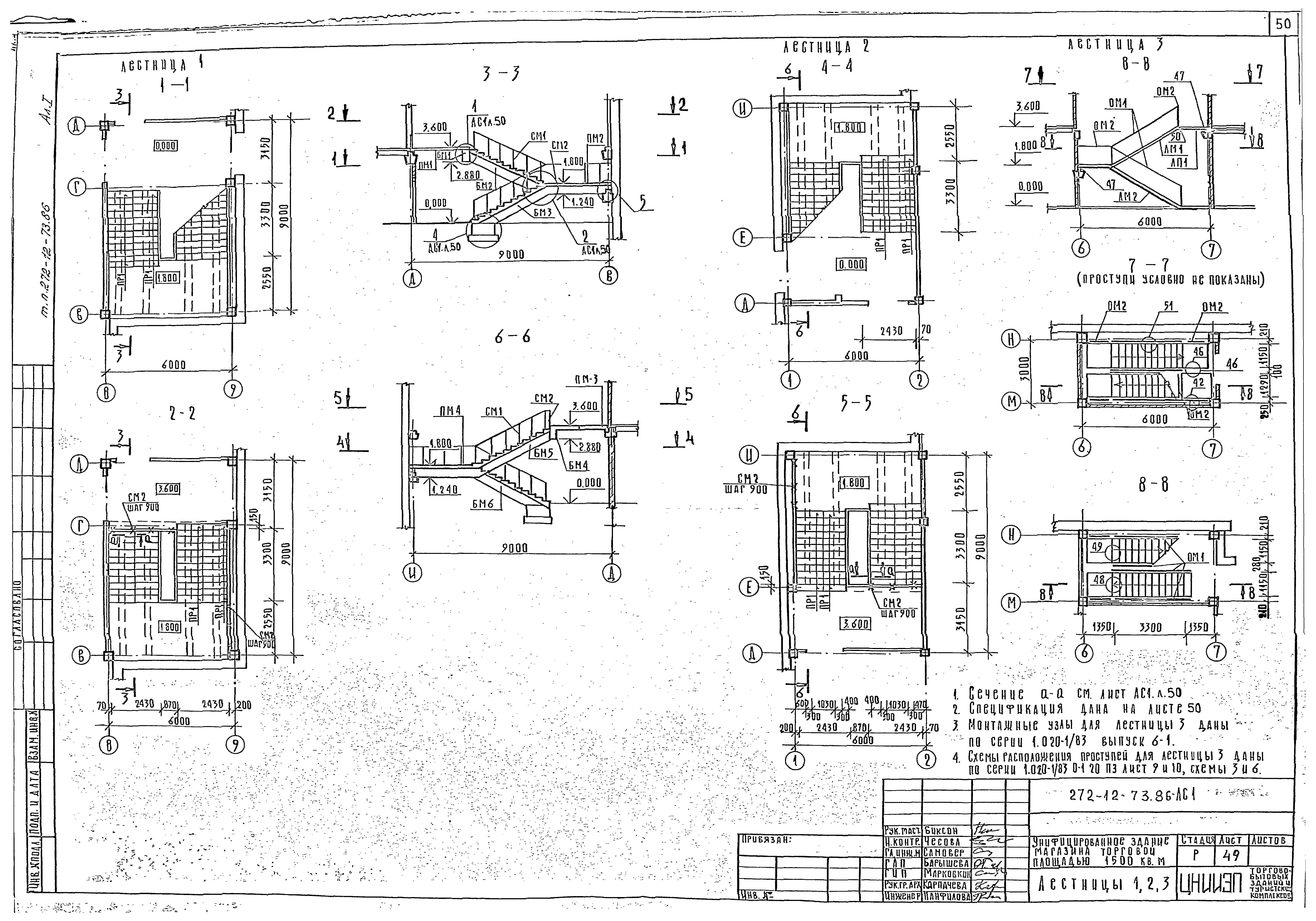
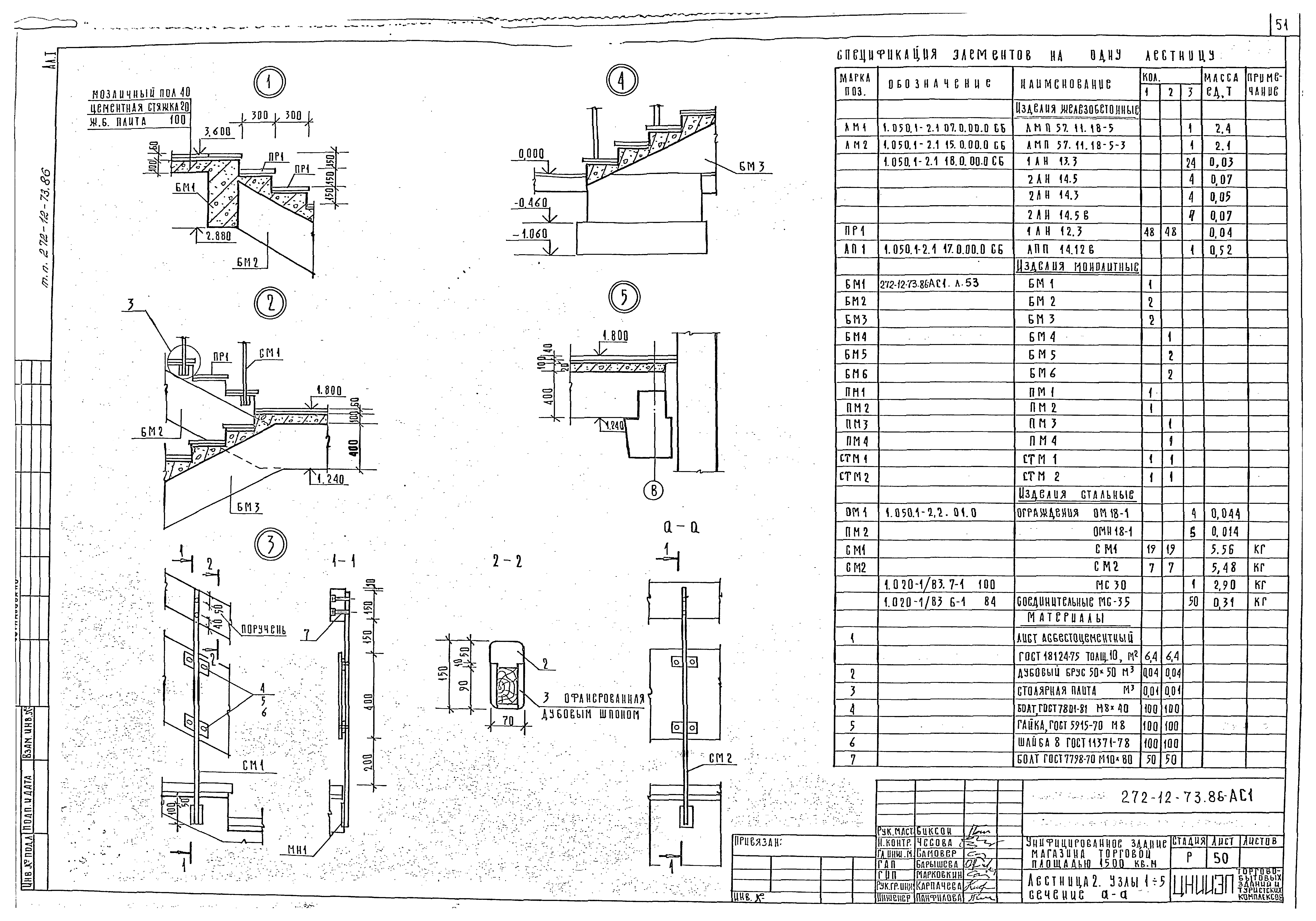
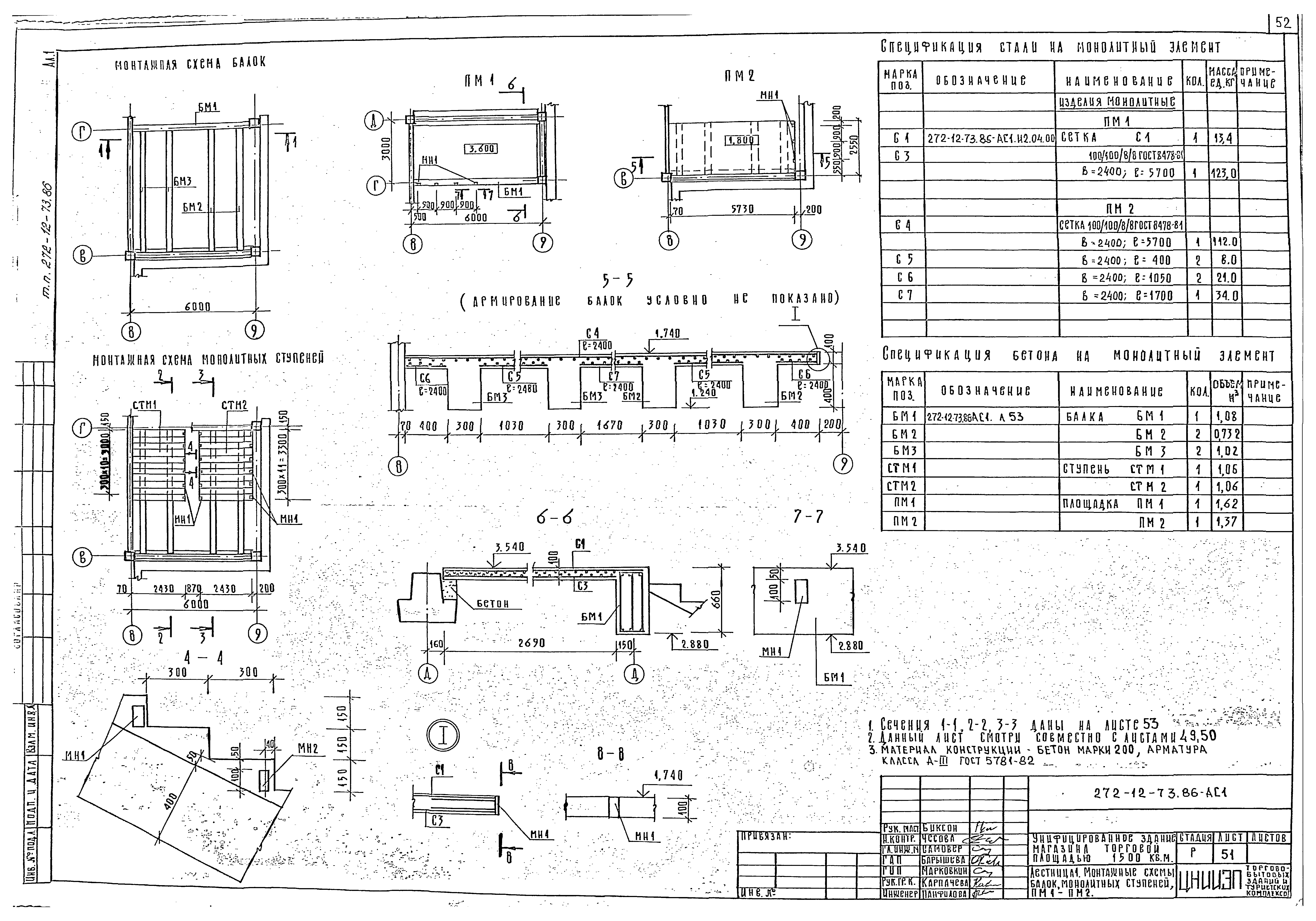
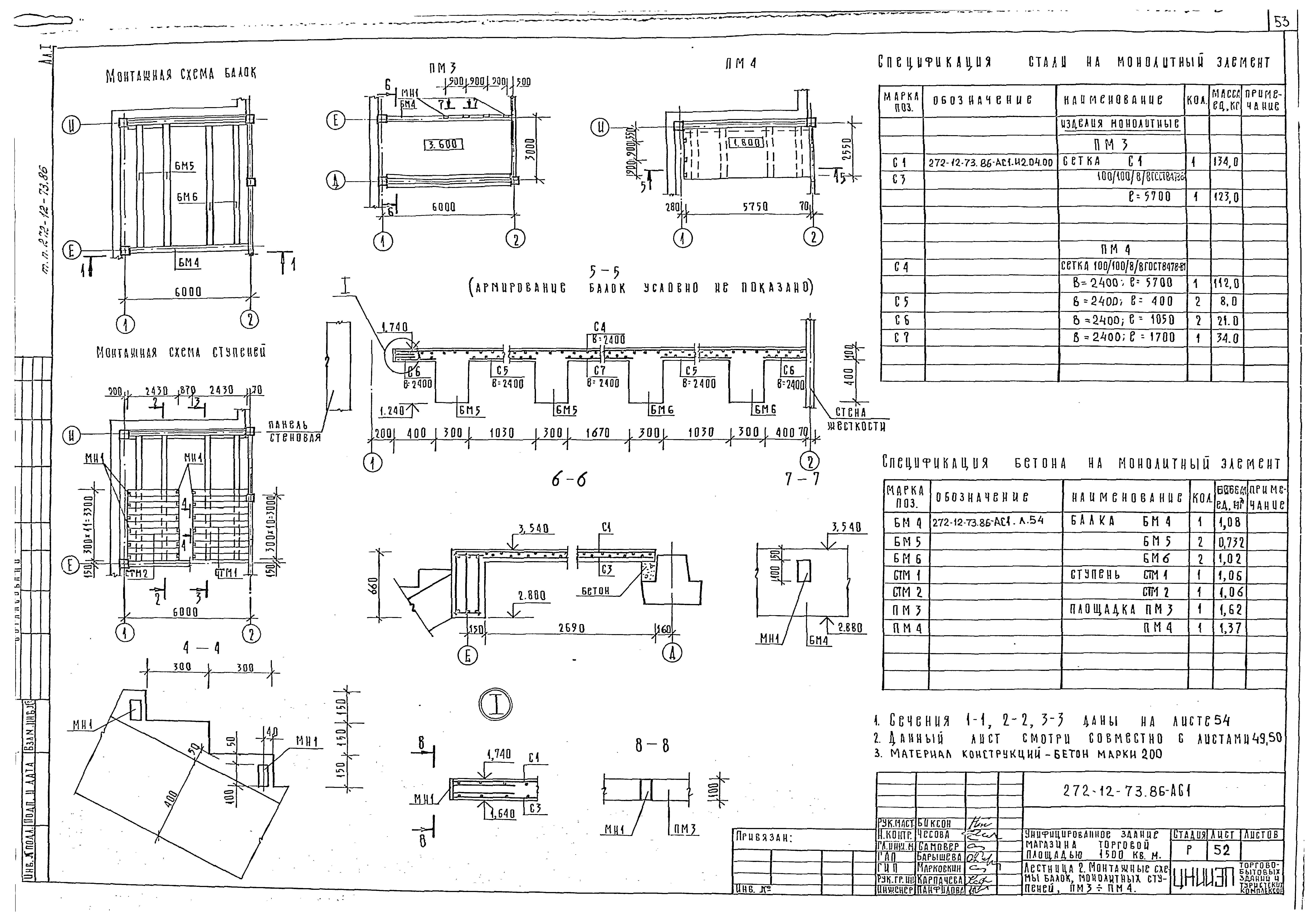
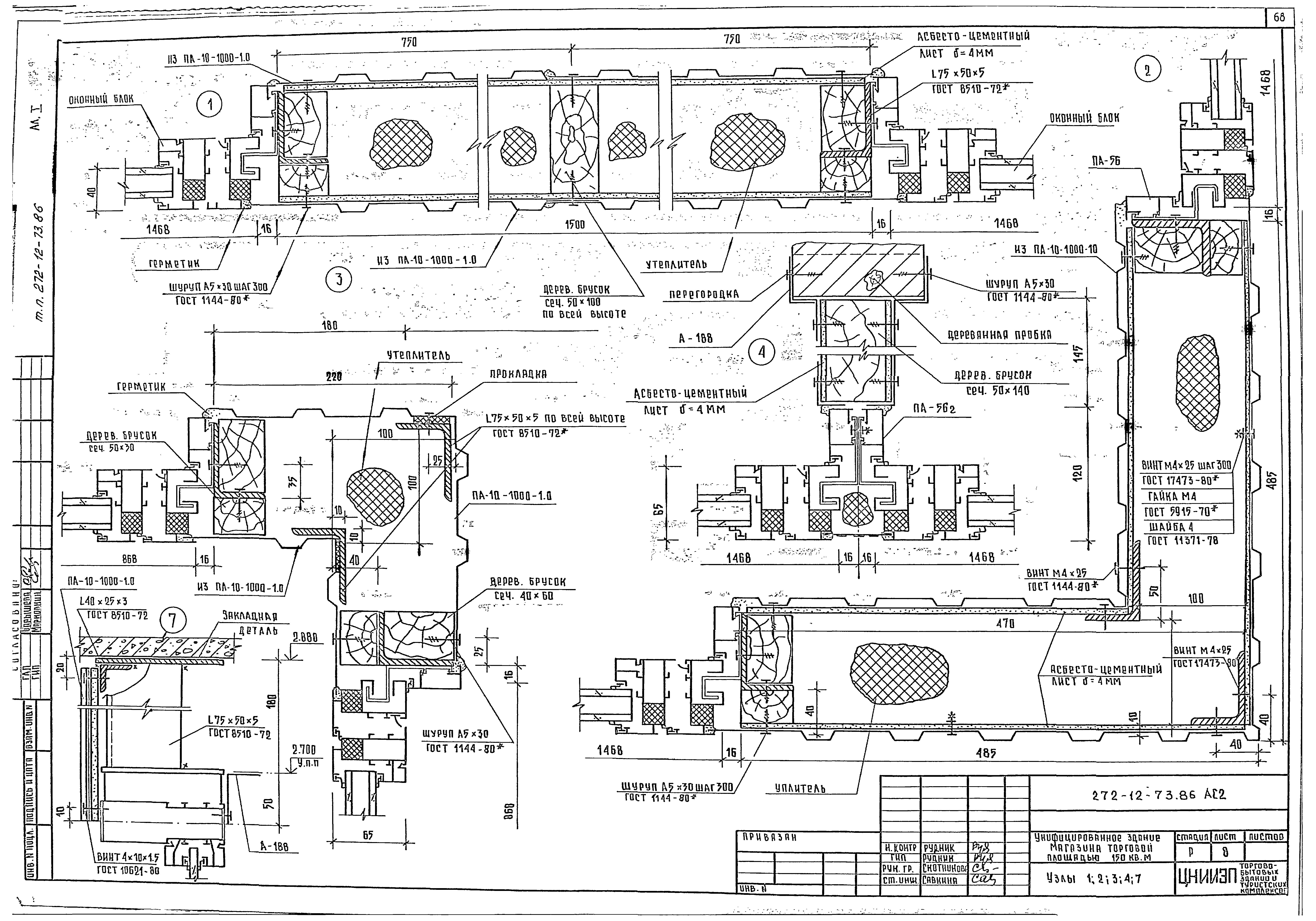
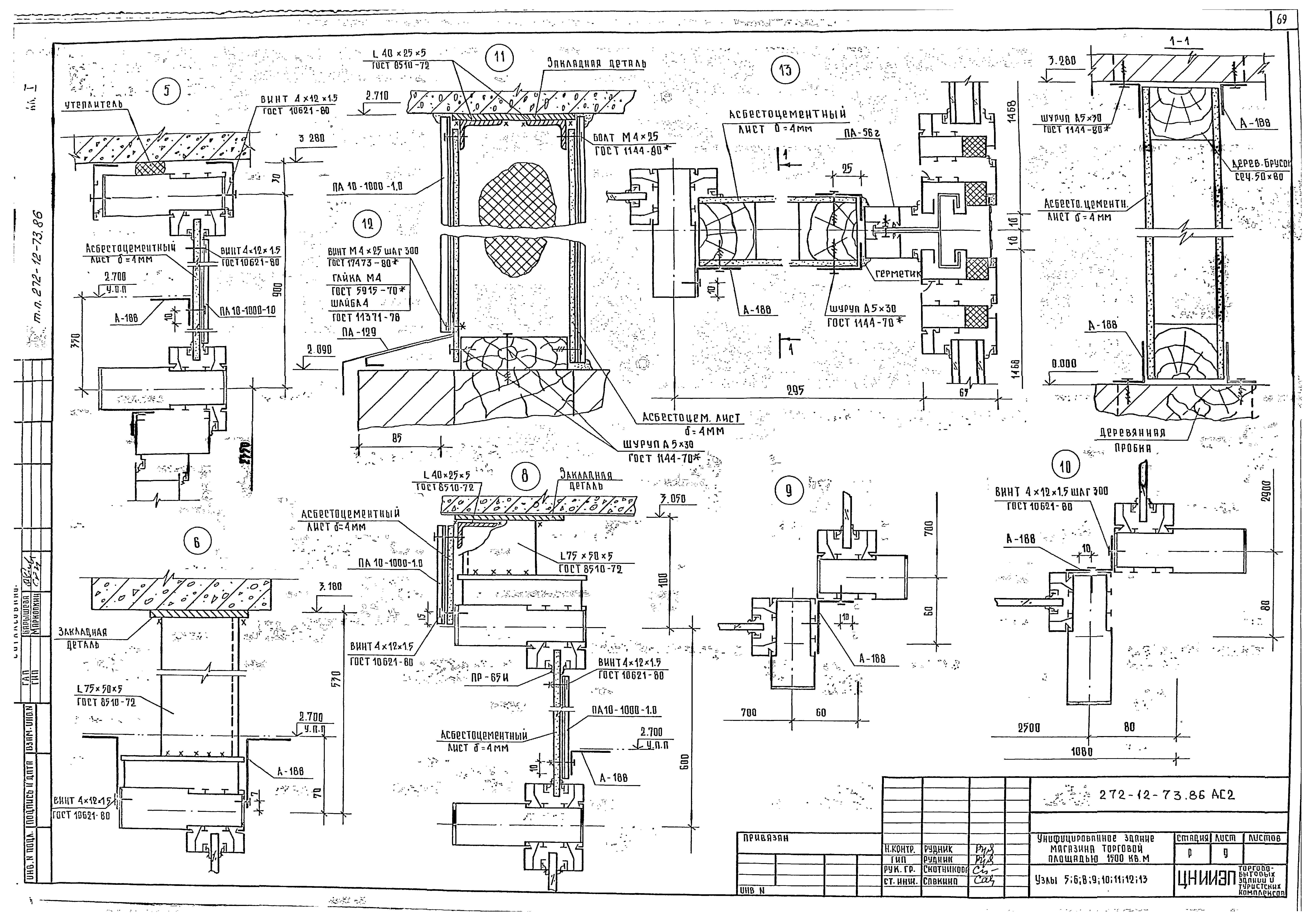
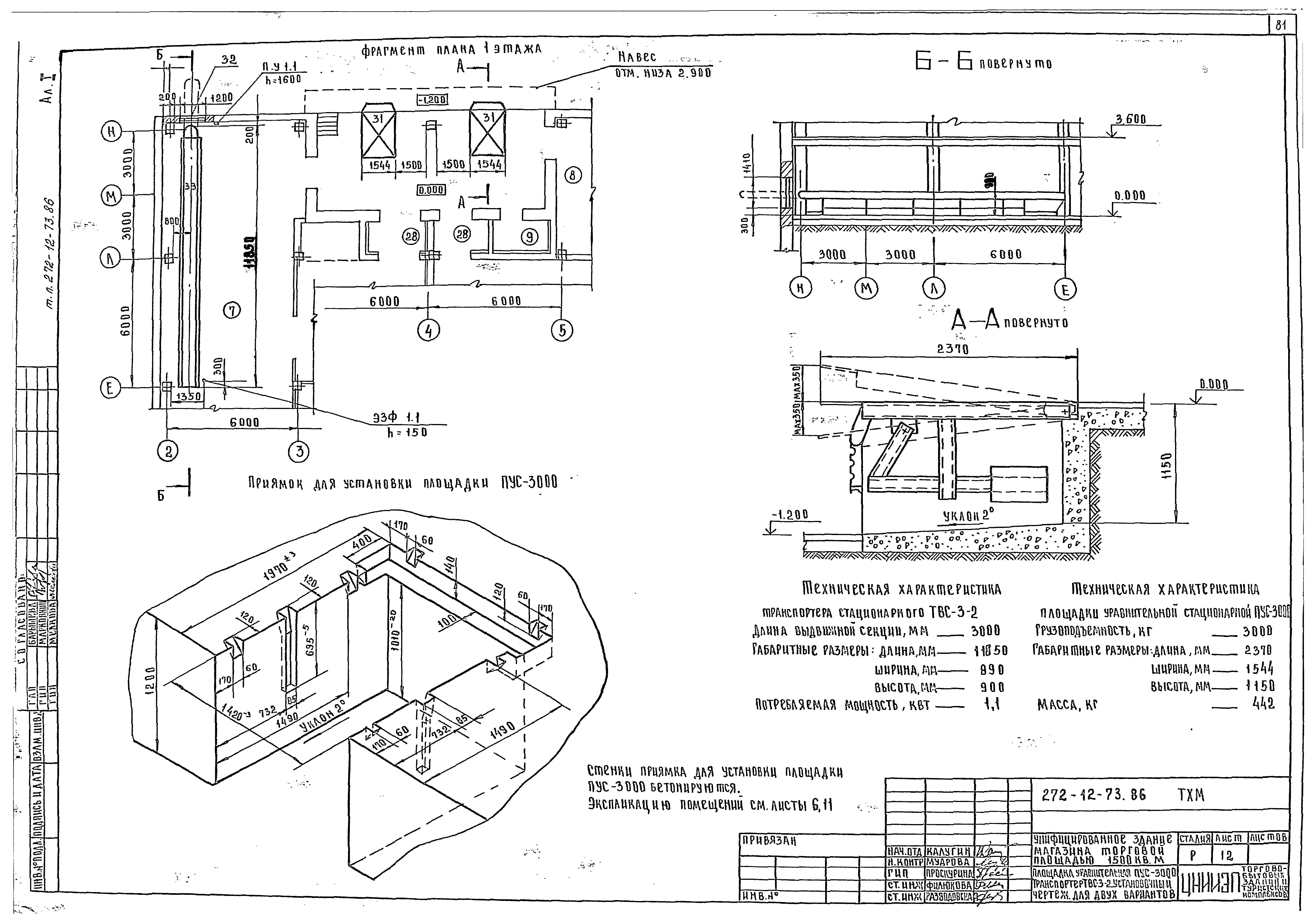
| Оглавление: | Чертежи основного комплекта марки АС1 Общие данные План 1 этажа между осями А - Д План 1 этажа между осями Д - Н План 2 этажа между осями А - Д План 2 этажа между осями Д - Н План технического этажа Вариант плана 1 этажа с увеличением площади торгового зала Фасады 1 - 9; 9 - 1 Фасады А - Л; Л - А Разрезы 1-1, 2-2 План крыши Тамбуры 1, 2 Витрины 1, 2 Фрагменты планов 1, 2, 3 Фрагмент 4, детали здания Планы потолков торгового зала I этажа с расстановкой светильников Планы потолков торгового зала II этажа с расстановкой светильников Схема нагрузок на фундаменты План фундаментов и подпольных каналов в осях А - Д План фундаментов и подпольных каналов в осях Д - Н Сечение фундаментов и подпольных каналов Диафрагмы жесткости ДЖМ-1, ДЖМ-2, ДЖМ-3. Фундаментные плиты ПМ-1, ПМ-2 План наружных площадок, сечения Приямок выжимной площадки Монтажная схема каркаса. Развертка каркаса по оси А Развертка каркаса по осям 1, 2, 6, 7, 8, 9, 11, М, И Развертка каркаса по осям В, Д, Ж, Л, К Схемы нагрузок на элементы перекрытий Схемы элементов перекрытия над 1 этажом в осях А - Д Схемы элементов перекрытия над 1 этажом в осях Д - Н Схемы элементов перекрытия над 2 этажом в осях А - Д Схемы элементов перекрытия над 2 этажом в осях Д - Н Схема элементов покрытия. Сечения Спецификация элементов перекрытий и покрытия Монолитные участки УМ1, УМ2 Монолитные участки УМ3, УМ4, УМ5 Схемы расположения стеновых панелей по осям А, В, И, Ж, Н при t = минус 20; минус 30 градусов Цельсия Схемы расположения стеновых панелей по осям К, 1, 2, 3, 8, 9 при t = минус 20; минус 30 градусов Цельсия Разрезы панельных стен. Спецификация панелей и соединительных элементов при t = минус 20; минус 30 градусов Цельсия Схемы расположения стеновых панелей по осям А, В, И, Ж, Н при t = минус 40 градусов Цельсия Схемы расположения стеновых панелей по осям К, 1, 2, 3, 8, 9 при t = минус 40 градусов Цельсия Разрезы панельных стен. Спецификация панелей и соединительных элементов при t = минус 40 градусов Цельсия Витрина 1. Планы перекрытий на отм. 0.100 и 2.580 Витрина 2. Планы перекрытий на отм. 0.100 и 2.580 Козырьки входов Лестницы 1, 2, 3 Лестницы 1, 2. Узлы 1 - 5. Сечения а-а Лестница 1. Монтажные схемы балок, монолитных ступеней ПМ1, ПМ2 Лестница 2. Монтажные схемы балок, монолитных ступеней ПМ3, ПМ4 Лестница 1. Сечения 1-1 - 3-3. Узлы Лестница 2. Сечения 1-1 - 3-3. Узлы Лестница 4 Монтажная схема лифтов План машинного помещения. Развертка лифтовых шахт Чертеж на заказ лифта грузового общего назначения Q = 1000 кг Схемы разбивки закладных деталей под стойки тамбуров и витражей Чертежи основного комплекта марки АС2 Общие данные Спецификация к схемам расположения оконных блоков, витражей и тамбуров Схема расположения оконных блоков, витражей, тамбура в осях 1 - 8 (1 этаж) Схема расположения оконных блоков, тамбура и витражей в осях Н - А (1 этаж) Схема расположения оконных блоков и тамбуров по осям 8, 9, Н (1 этаж). Входы по осям 8, Д (2 этаж) Схема расположения оконных блоков в осях 1 - 9; 9 - 1. Входы у осей 1, 8, Д (2 этаж) Схема расположения оконных блоков в осях Н - А; А - Н (2 этаж) Узлы 1, 2, 3, 4, 7 Узлы 5, 6, 8, 9, 10, 11, 12, 13 Чертежи основного комплекта марки ТХМ Общие данные План 1 этажа в осях 1 - 9; А - Д "Товары для дома" План 1 этажа в осях 1 - 9; Д - Н "Товары для дома" План 2 этажа в осях 1 - 9; А - Д "Товары для дома" План 2 этажа в осях 1 - 9; Д - Н "Товары для дома" Экспликация помещений "Товары для дома" План 1 этажа в осях 1 - 9; А - Д. Вариант "Товары для спорта и туризма" План 1 этажа в осях 1 - 9; Д - Н. Вариант "Товары для спорта и туризма" План 2 этажа в осях 1 - 9; А - Д. Вариант "Товары для спорта и туризма" План 2 этажа в осях 1 - 9; Д - Н. Вариант "Товары для спорта и туризма" Экспликация помещений. Вариант "Товары для спорта и туризма" Площадка уравнительная ПУС-3000. Транспортер ТВС-3-2. Установочный чертеж для двух вариантов Вешало конвейерное с опуском. Установочный чертеж. Вариант "Товары для спорта и туризма" |
| Разработан: | ЦНИИЭП торгово-бытовых зданий и туристских комплексов |
| Утверждён: | 26.11.1974 Госгражданстрой (Gosgrazhdanstroy 263) |


















































































