Скачать Типовой проект 272-12-73.86 Альбом II. Отопление и вентиляция. Водопровод и канализация. Электроосвещение и силовое электрооборудование. Автоматизация устройств инженерного оборудования. Связь и сигнализацияДата актуализации: 01.01.2021
|
| Обозначение: | Типовой проект 272-12-73.86 |
| Обозначение англ: | 272-12-73.86 |
| Статус: | не определен законодательством |
| Название рус.: | Альбом II. Отопление и вентиляция. Водопровод и канализация. Электроосвещение и силовое электрооборудование. Автоматизация устройств инженерного оборудования. Связь и сигнализация |
| Дата добавления в базу: | 01.10.2014 |
| Дата актуализации: | 01.01.2021 |
| Дата введения: | 30.01.1986 |
| Дата окончания срока действия: | 30.06.2003 |
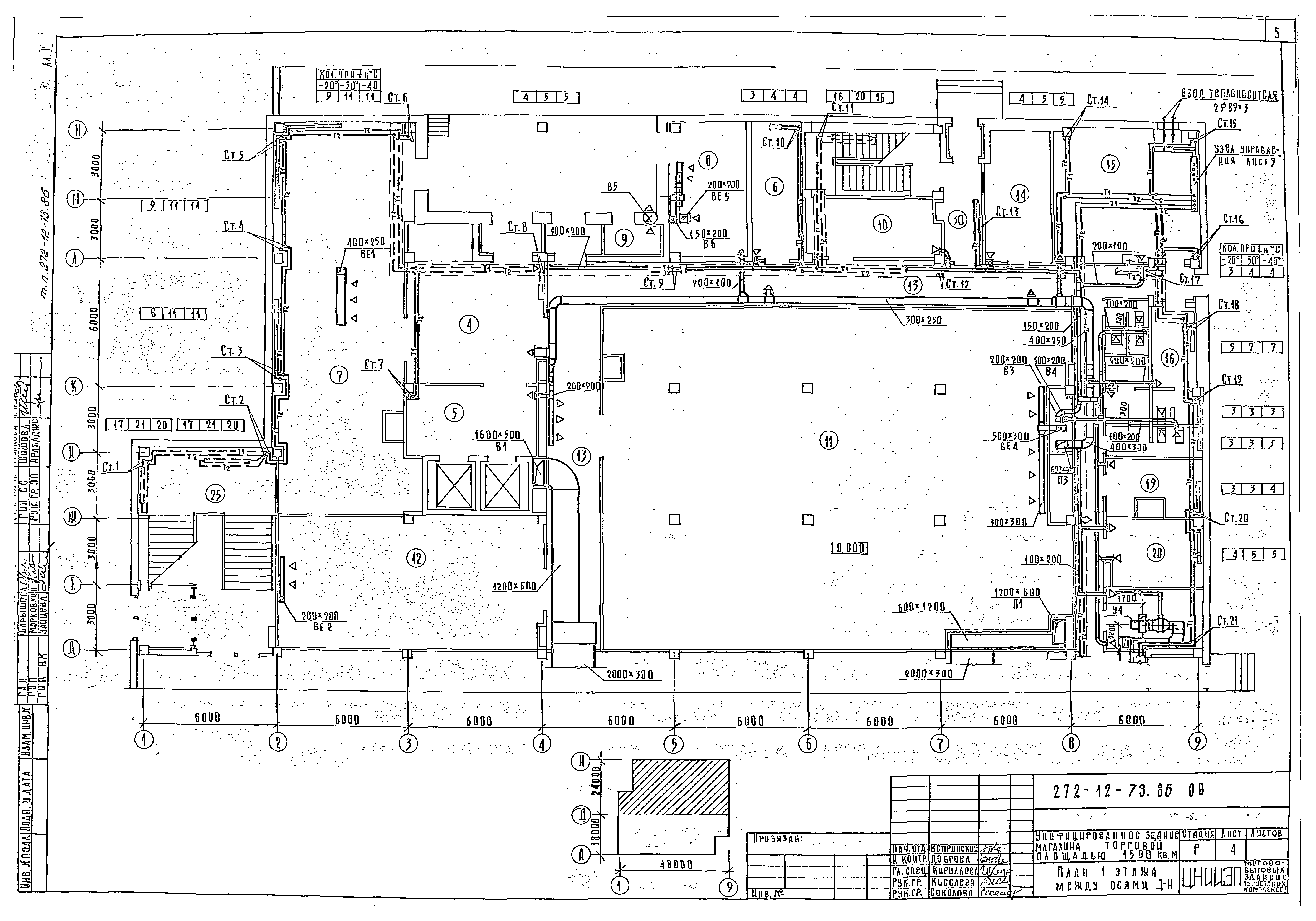
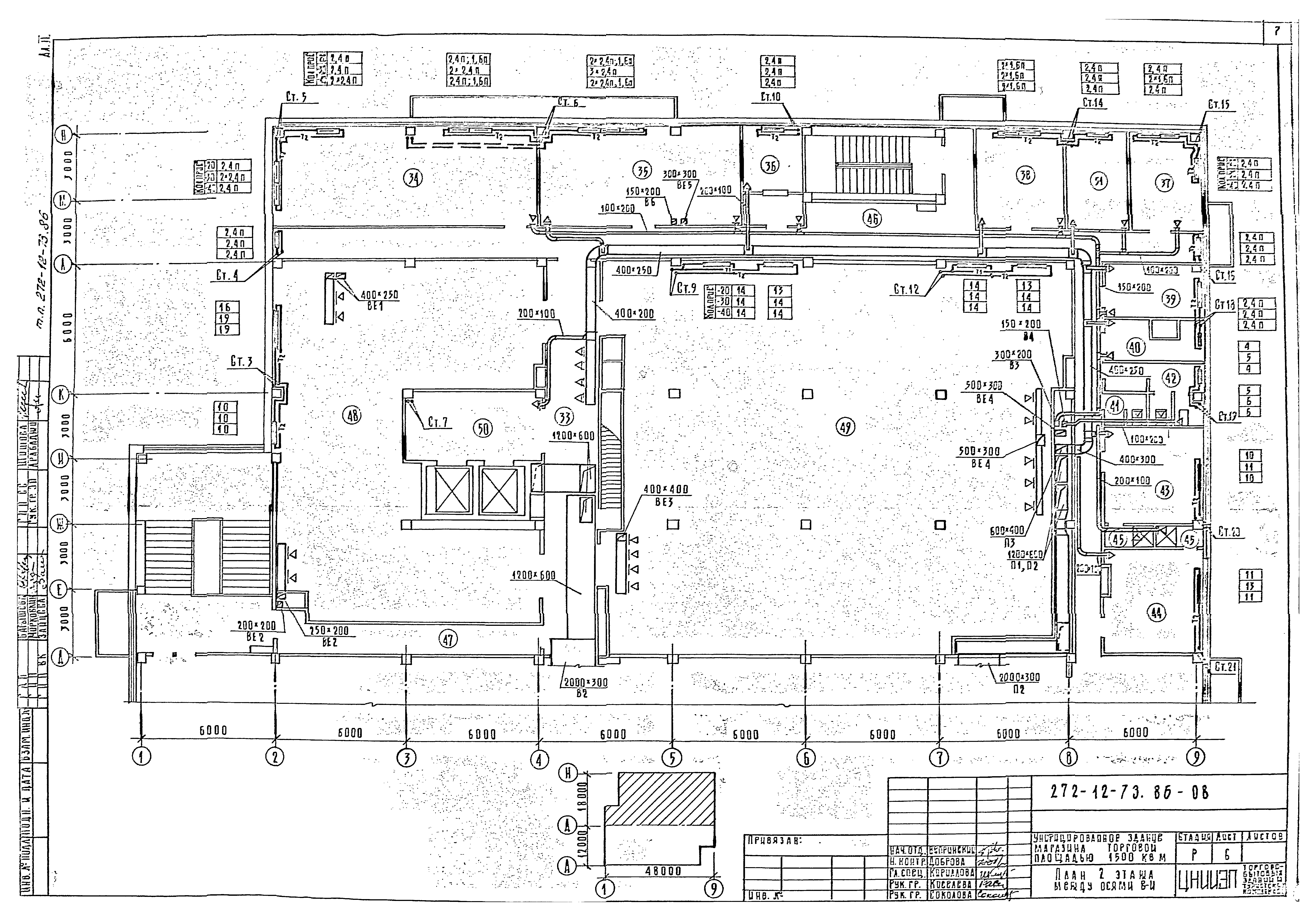
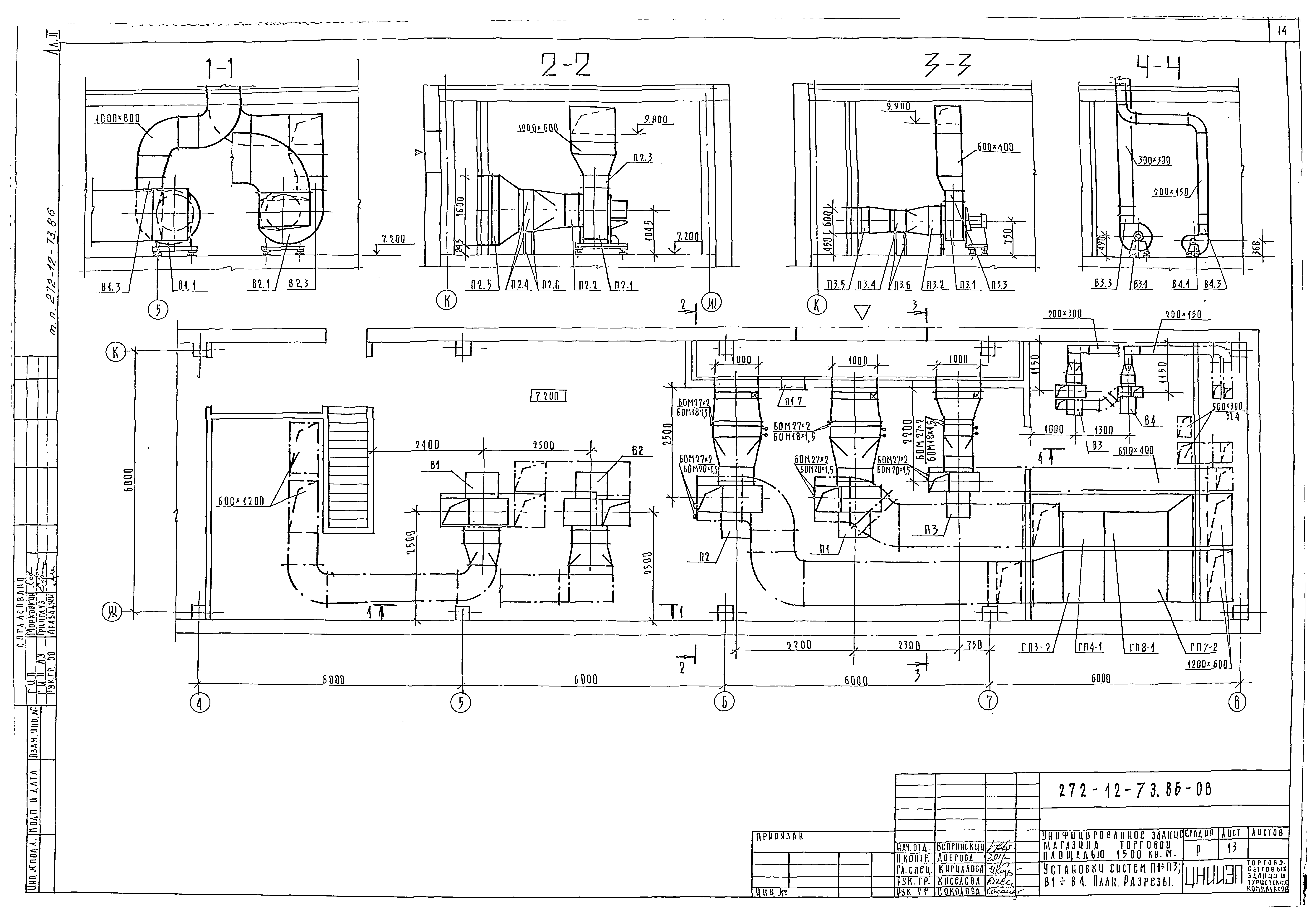
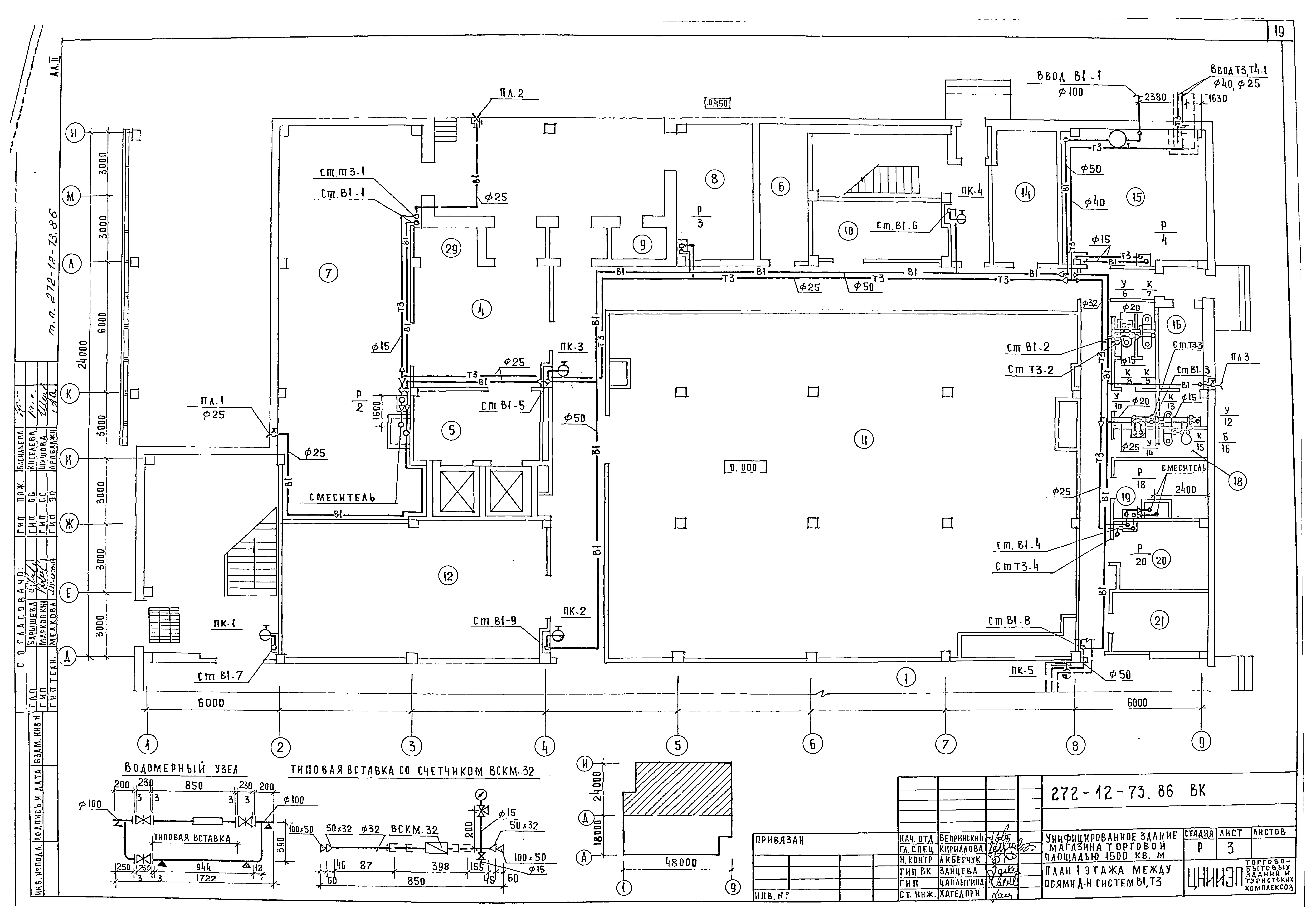
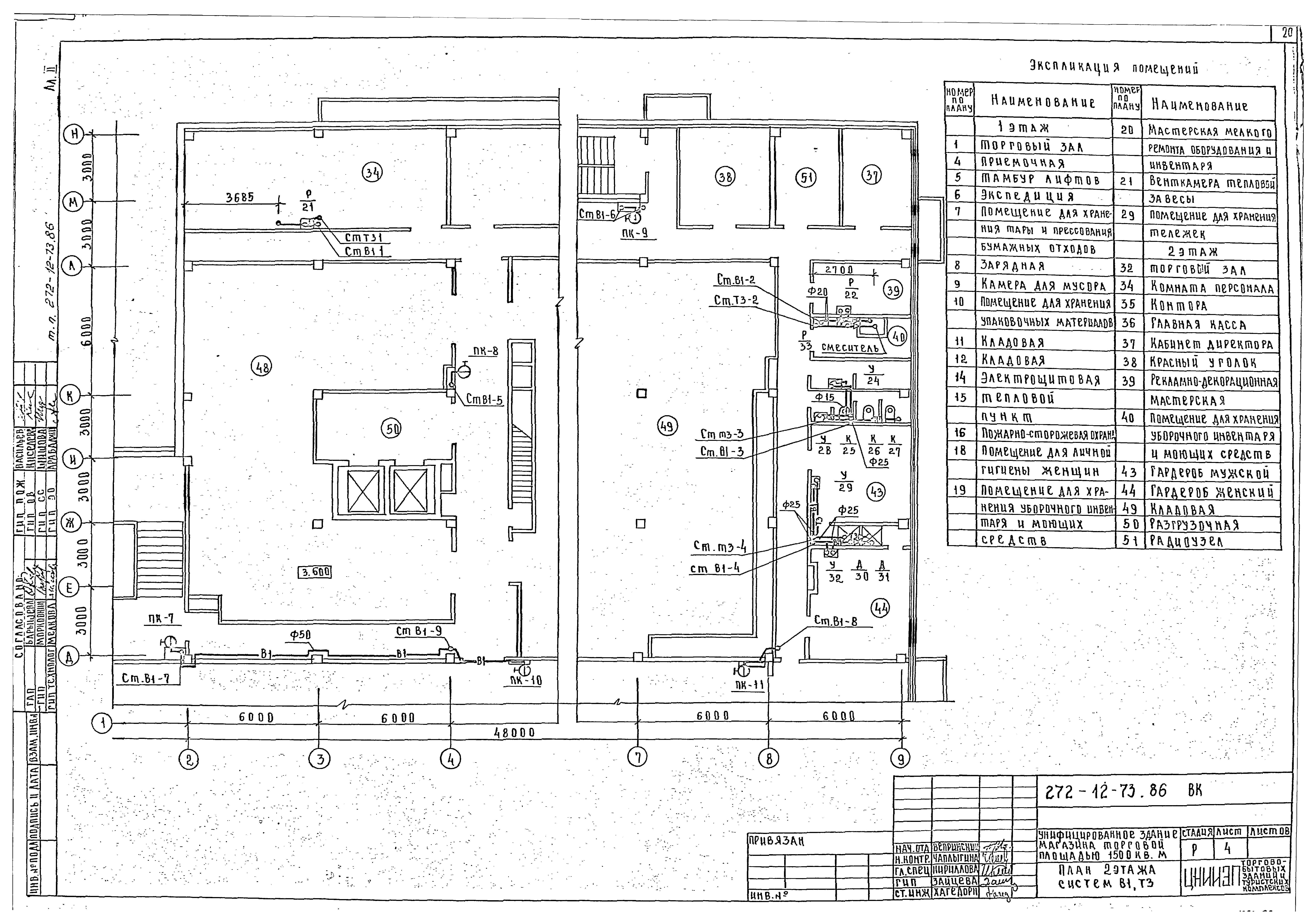
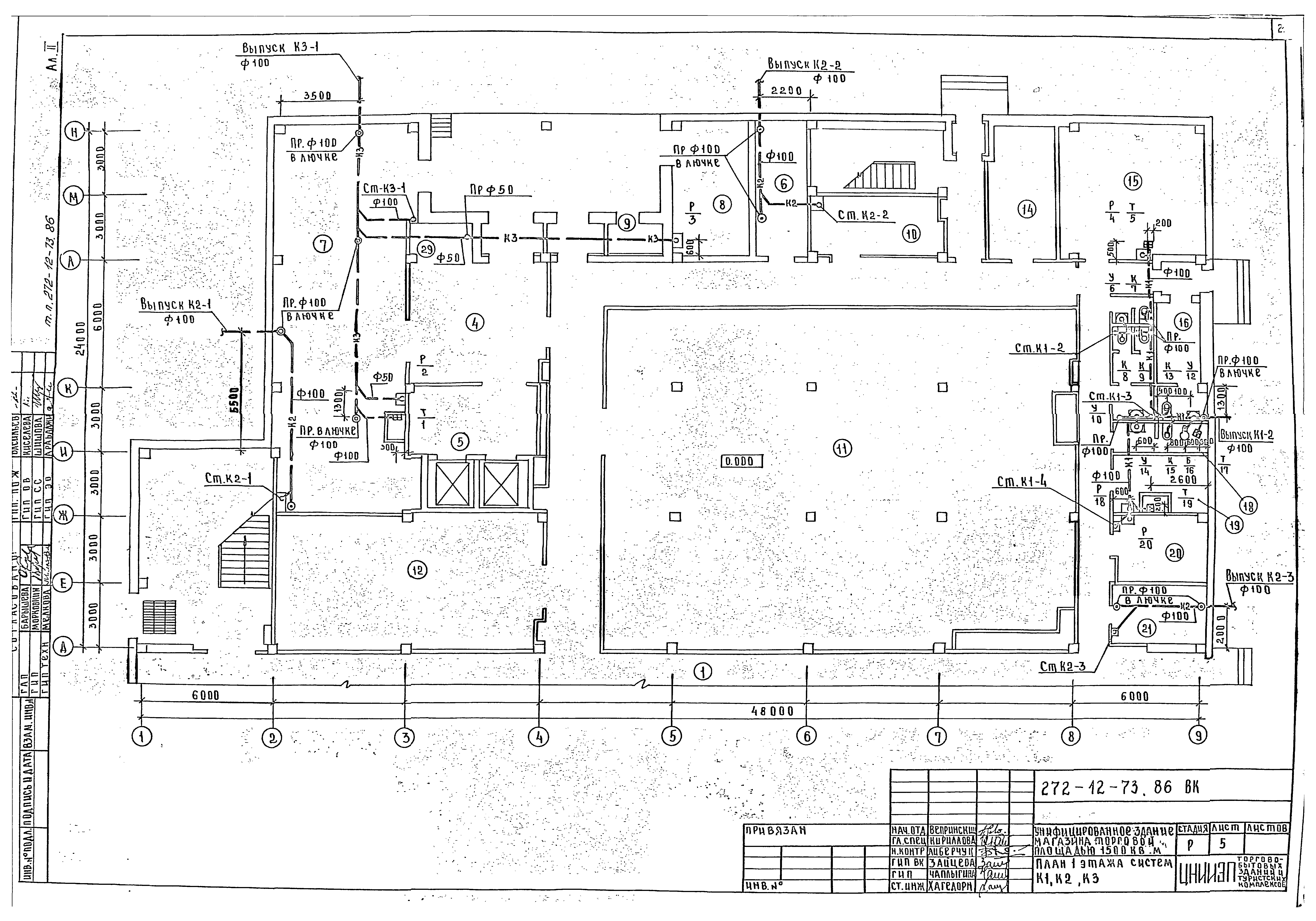
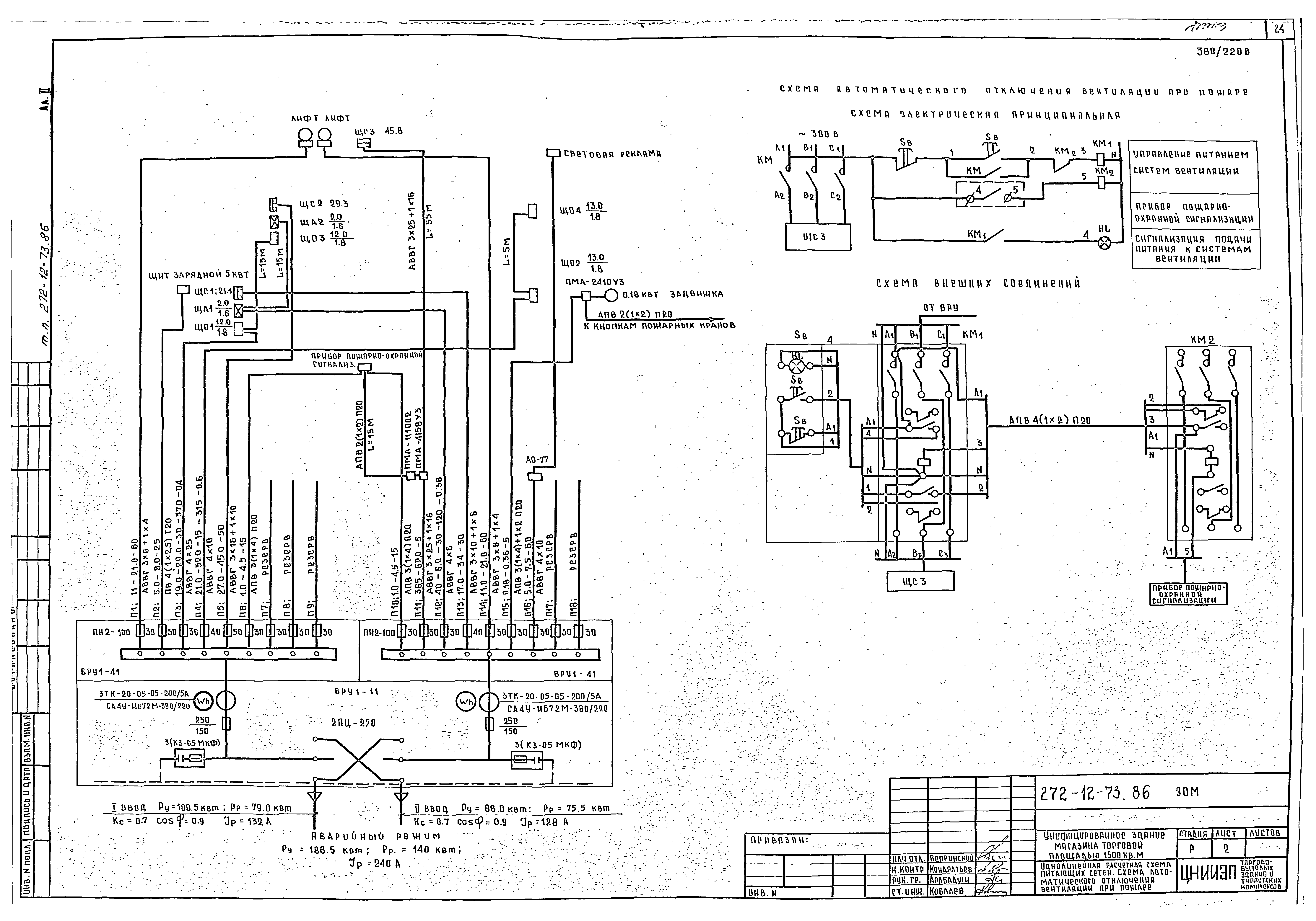
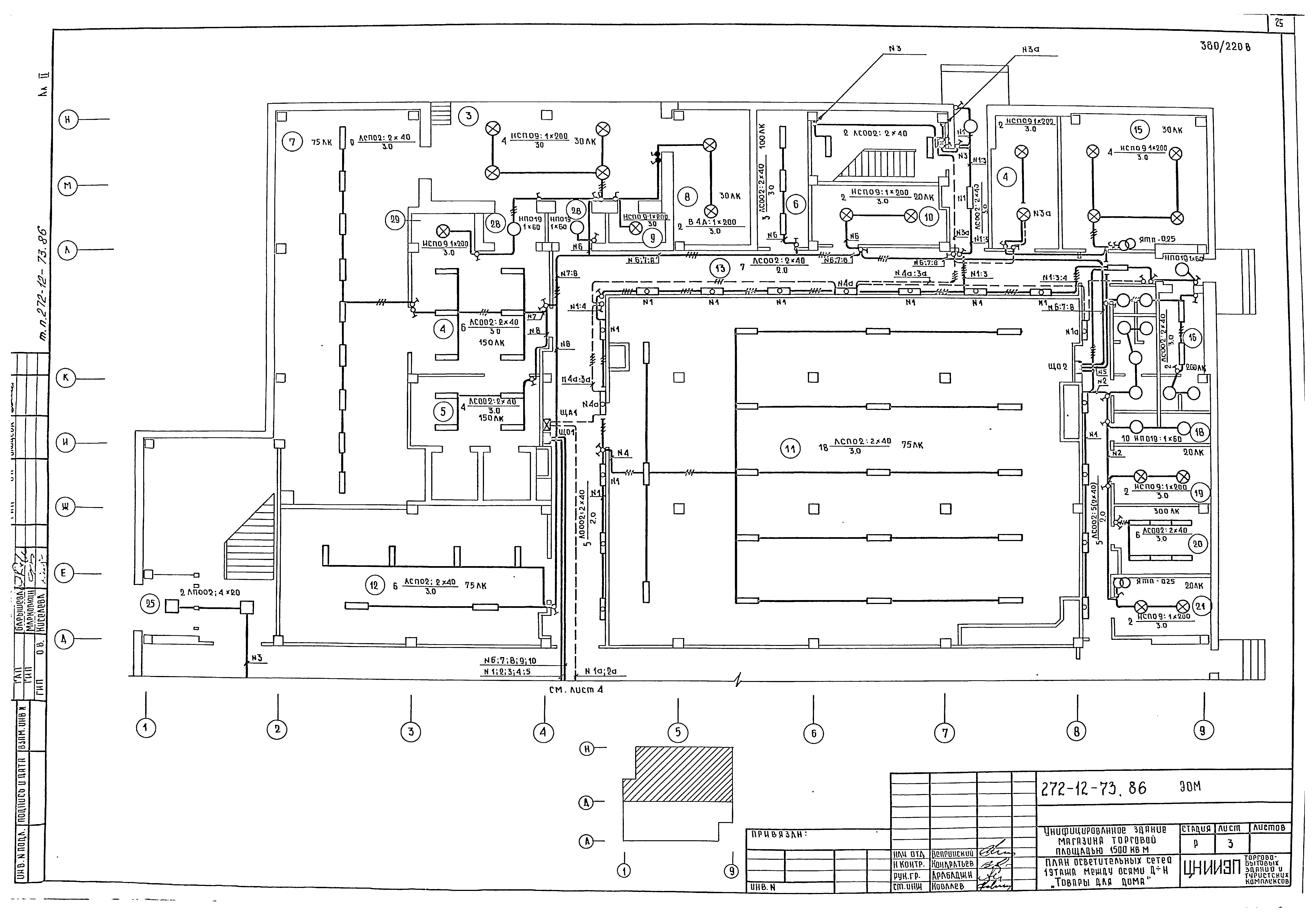
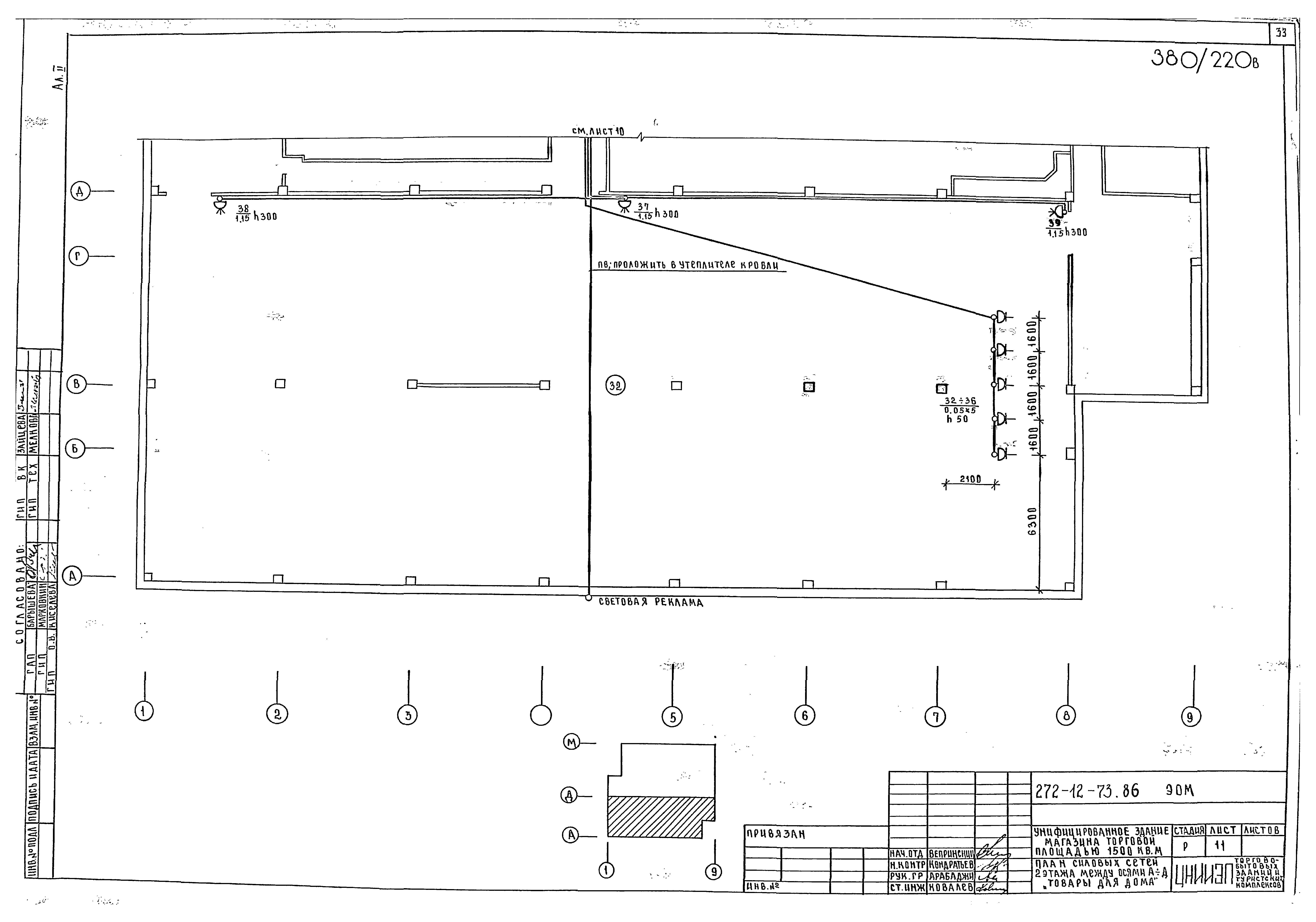
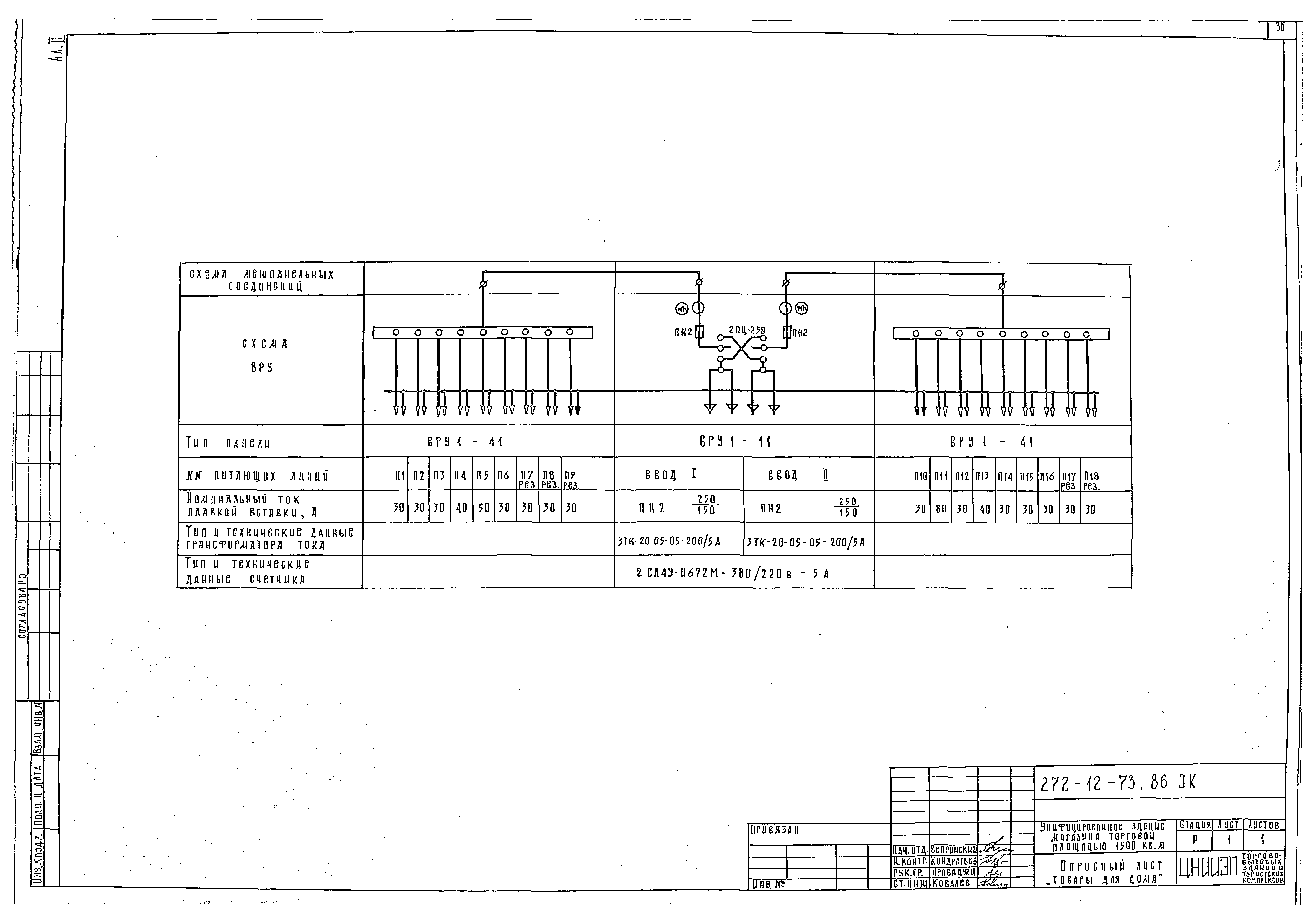
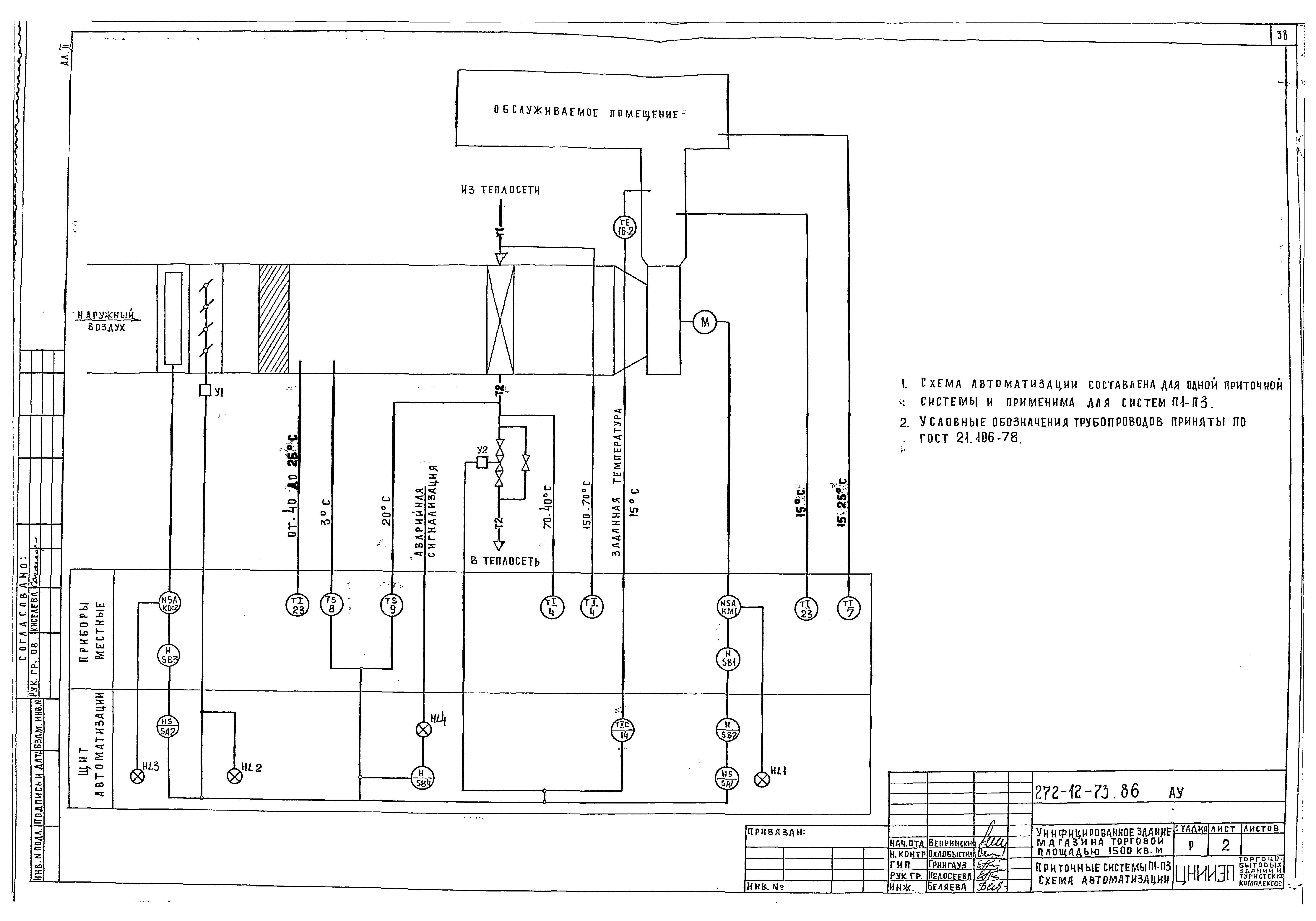
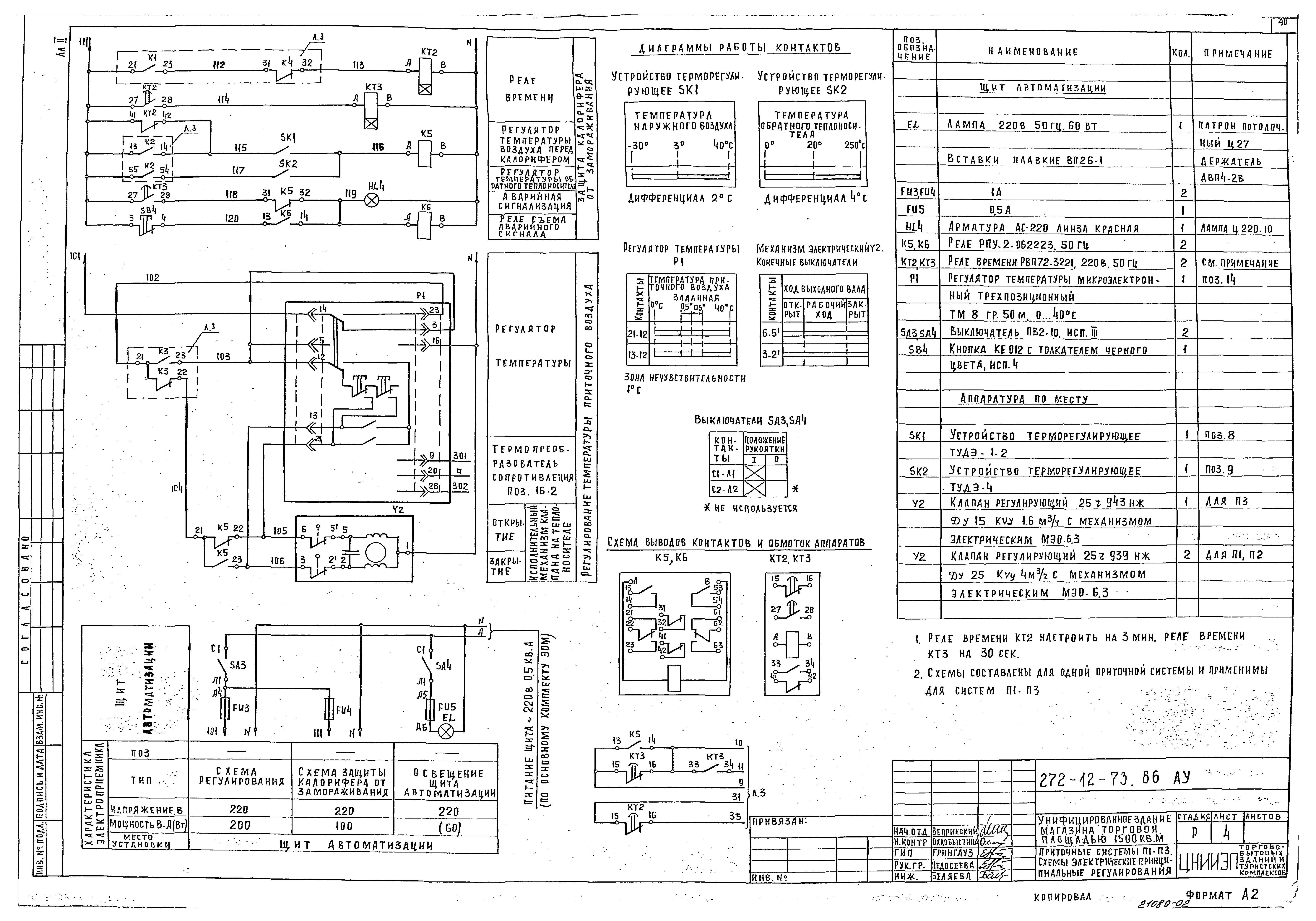
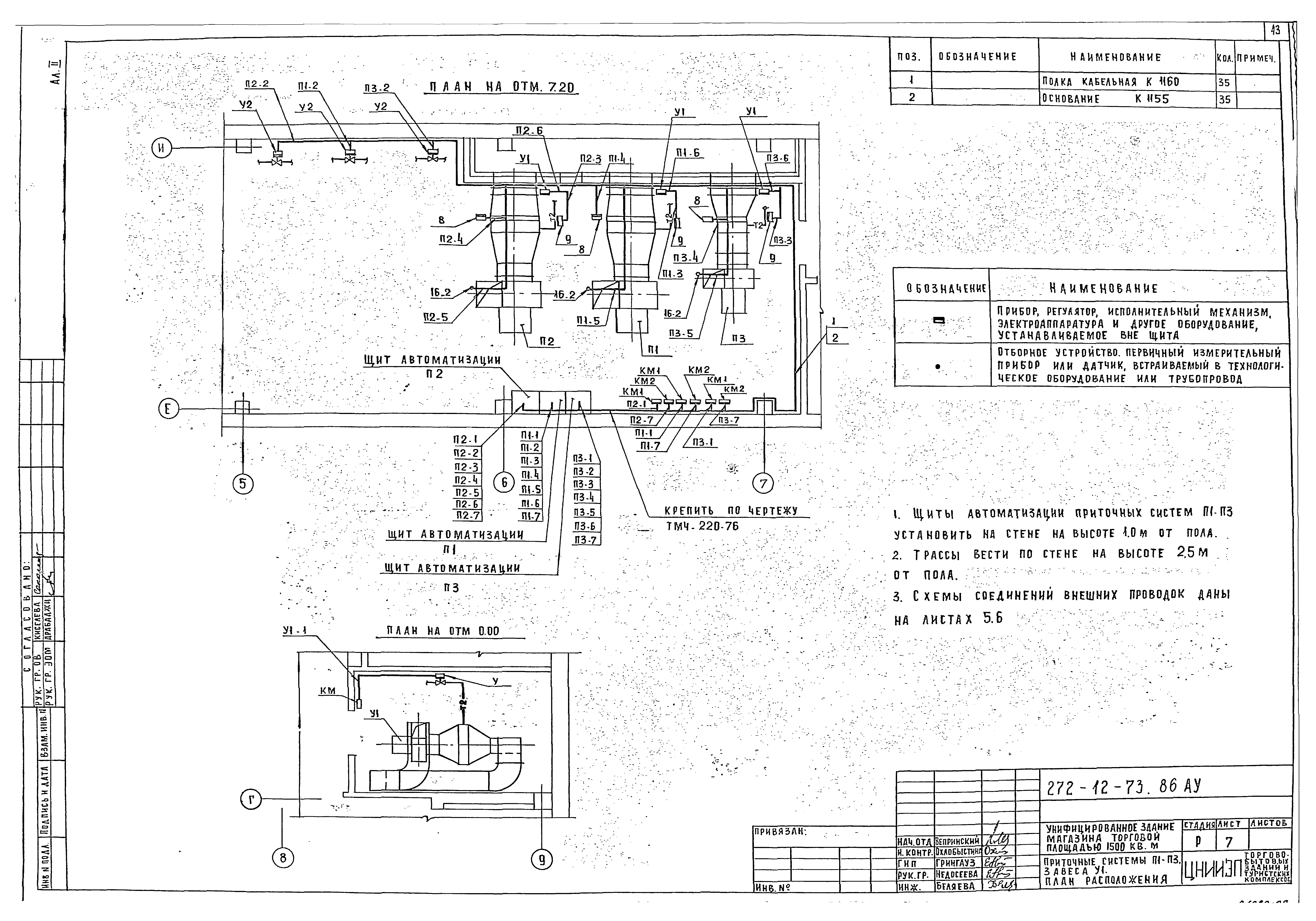
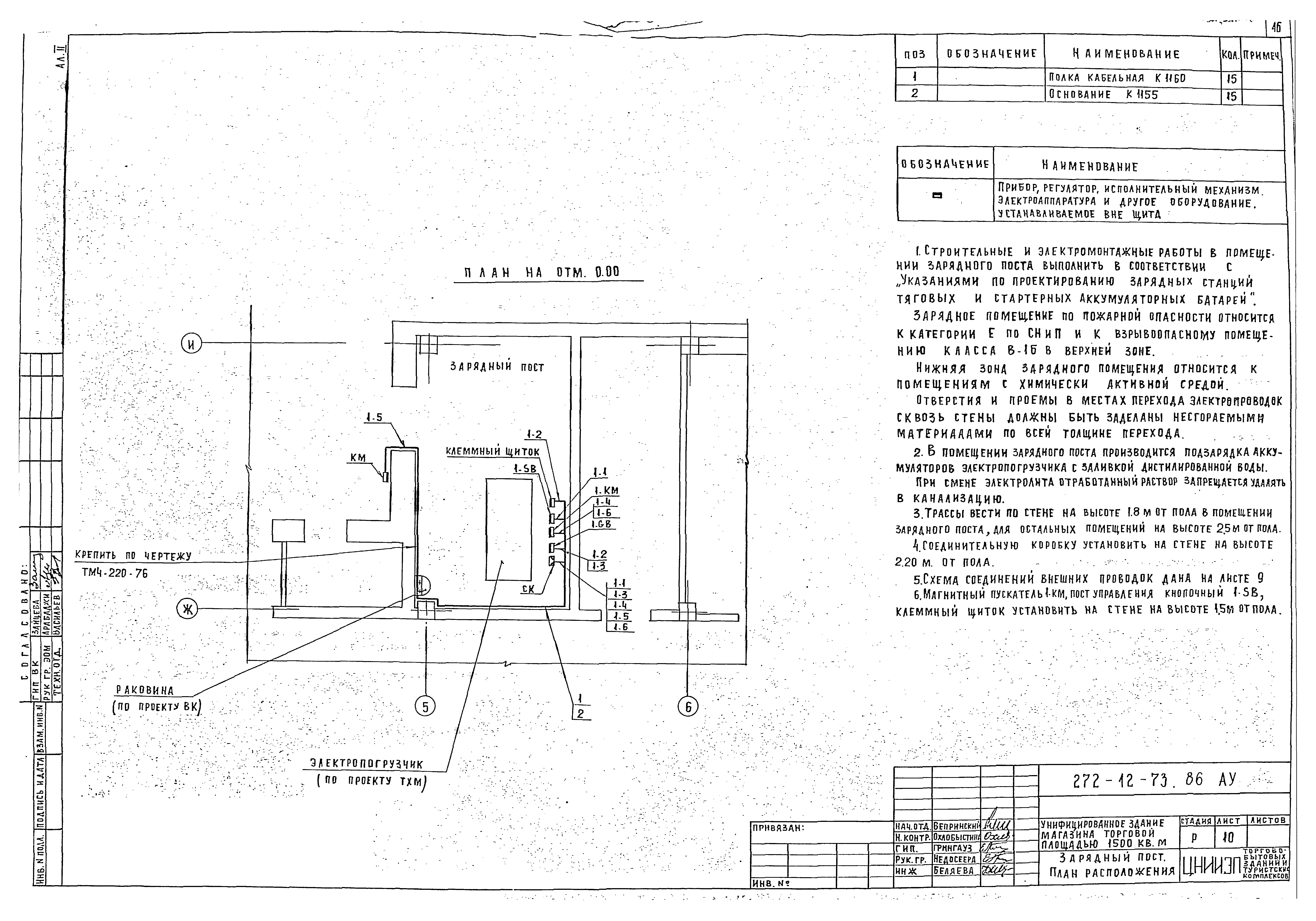
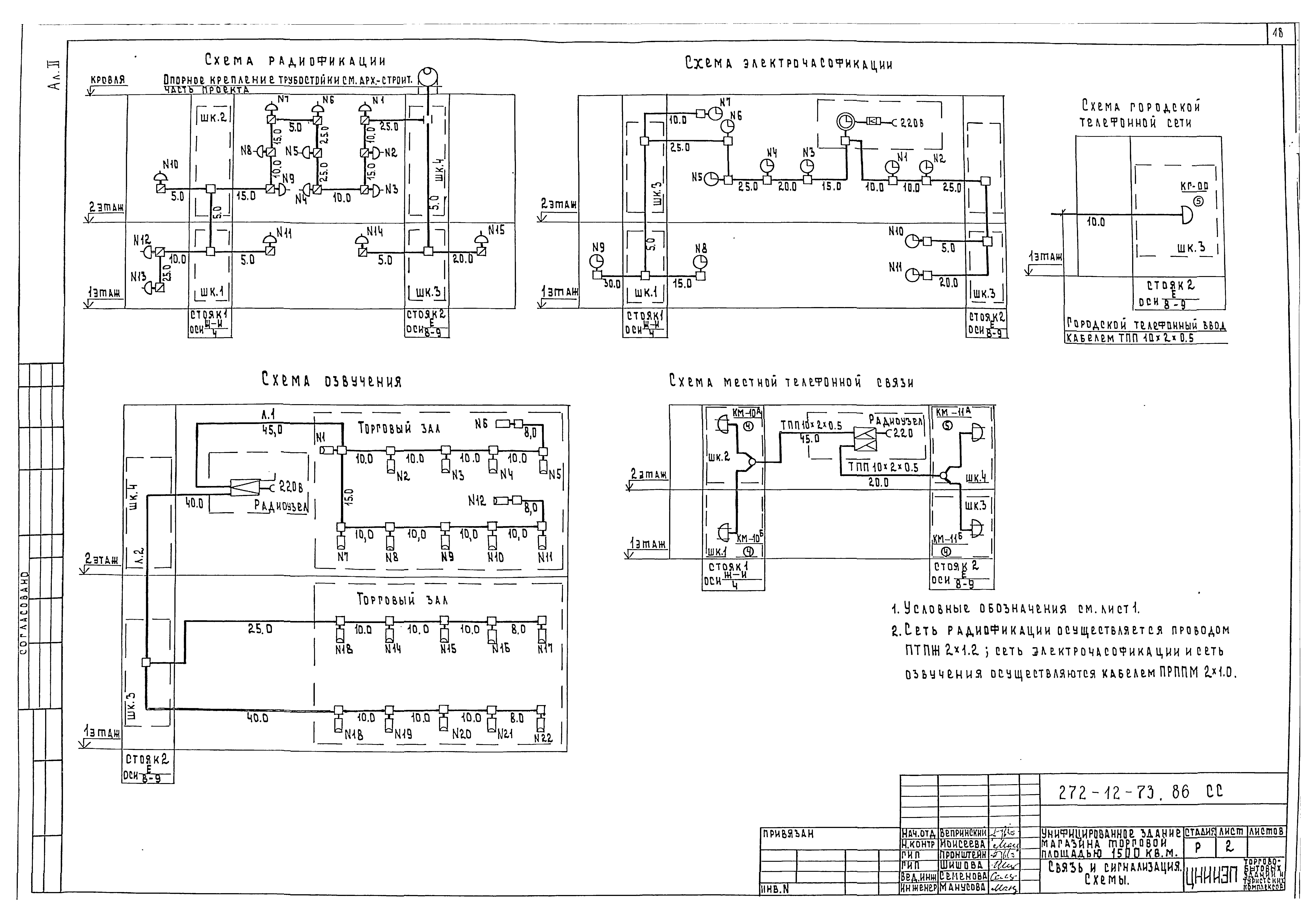
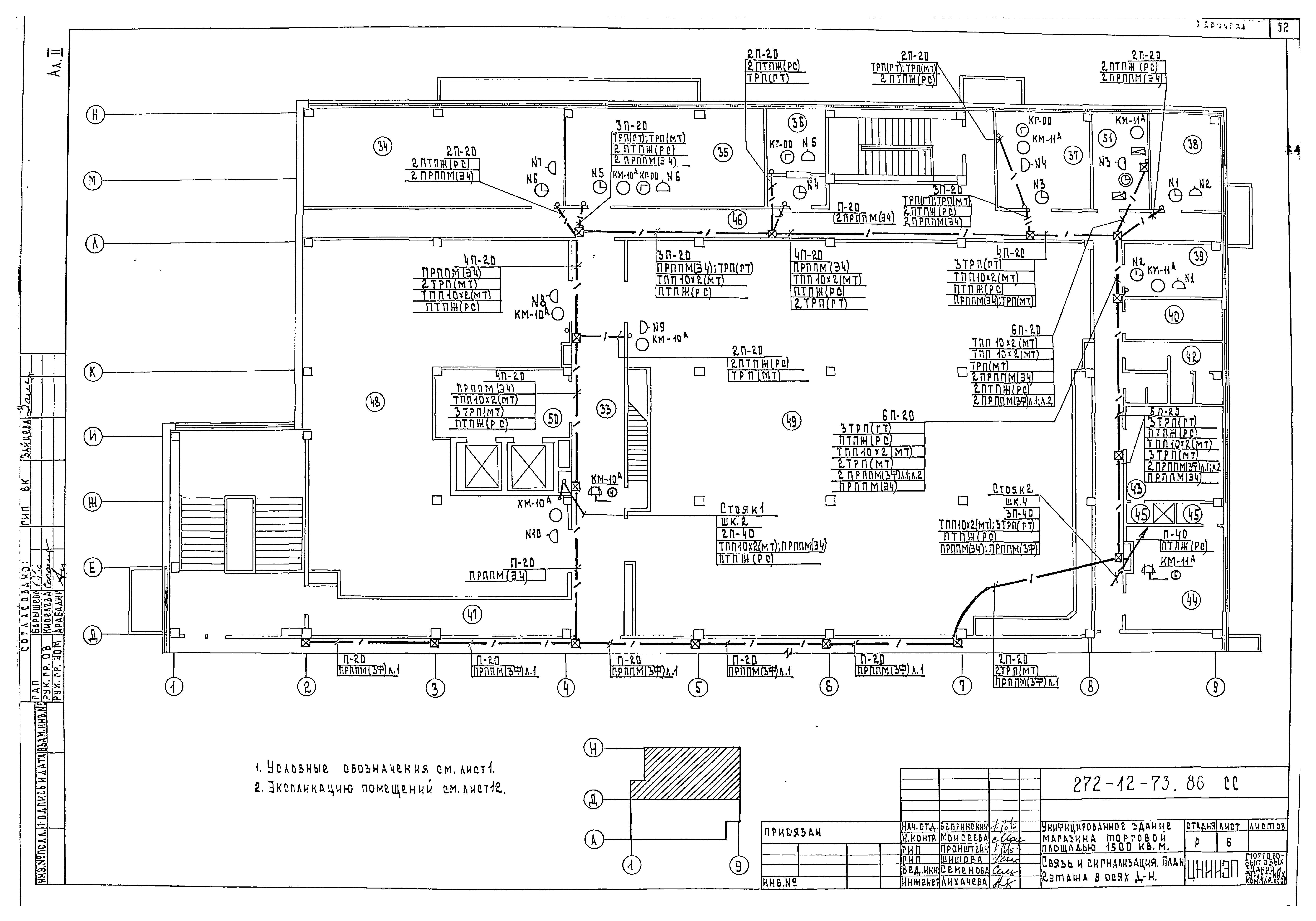
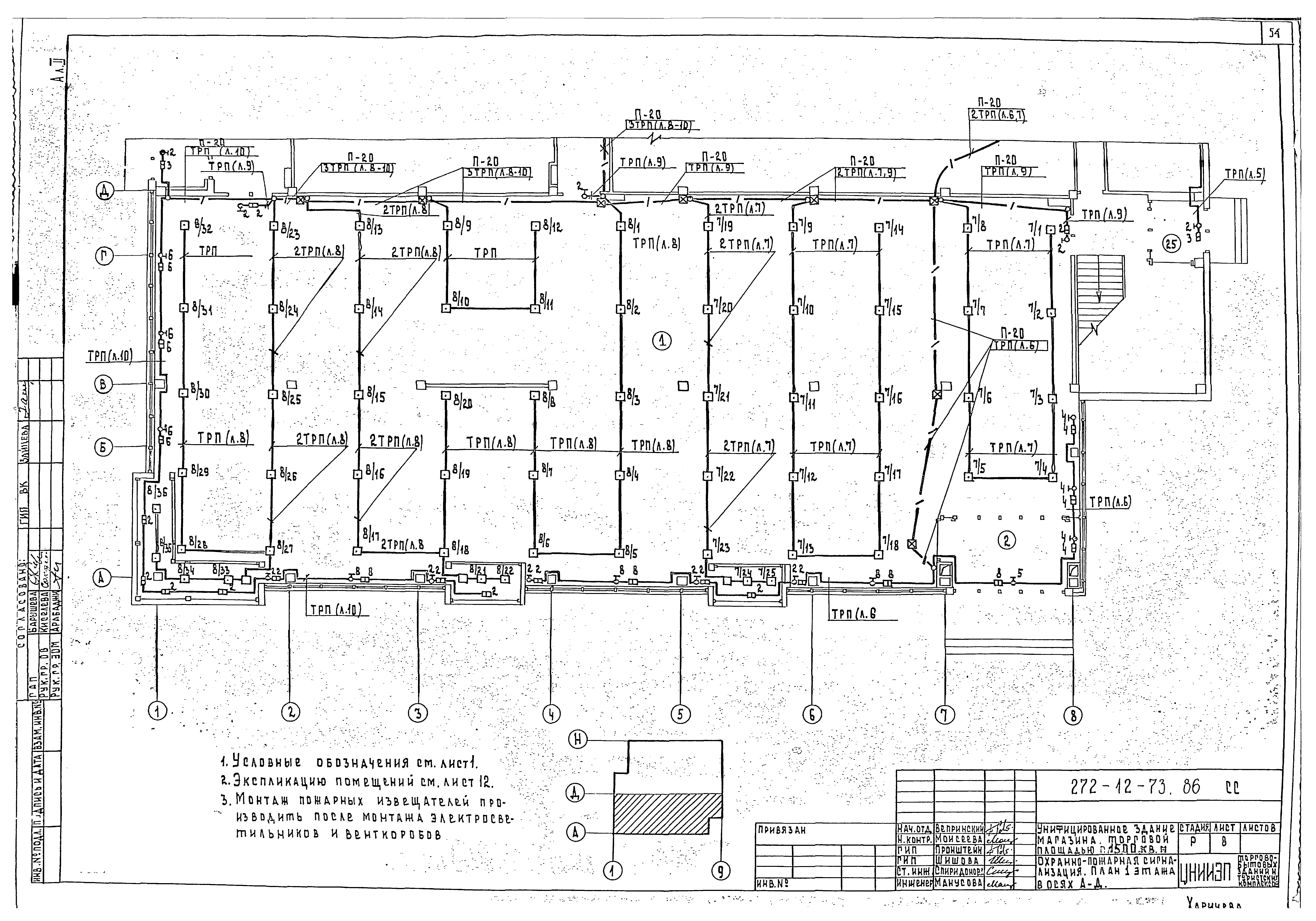
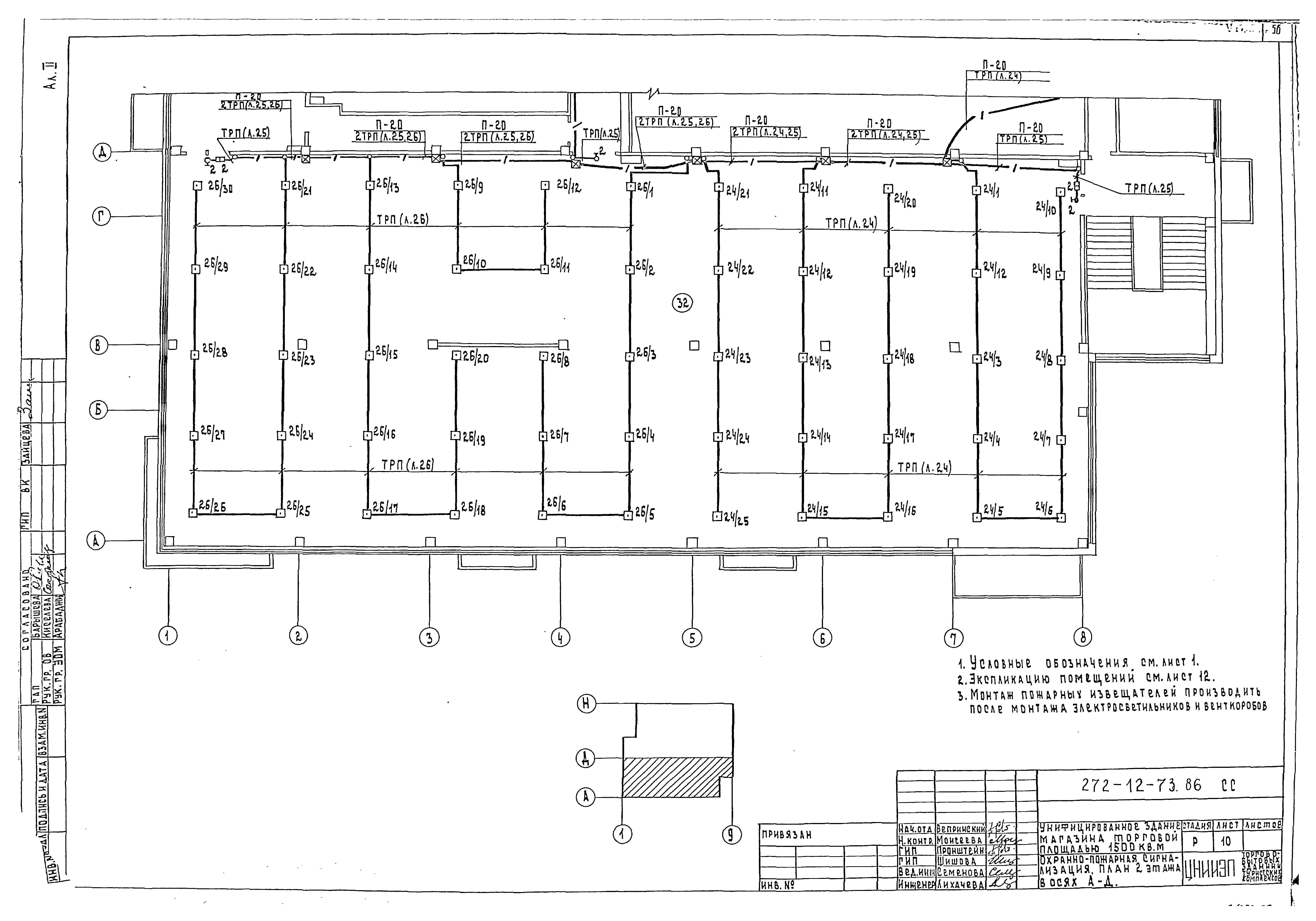
| Оглавление: | Чертежи основного комплекта марки ОВ Общие данные План 1 этажа между осями А - Д План 1 этажа между осями Д - Н План 2 этажа между осями А - Д План 2 этажа между осями Д - Н План технического этажа Схема системы отопления №1 Схема системы отопления №2. Узел управления Схемы систем теплоснабжения установок П1 - П3, У1 Схемы систем П1 - П3, У1 Схемы систем В1 - В6, ВЕ1 - ВЕ5 Установка систем П1 - П3, В1 - В4. План. Разрезы Установка систем П1 - П3, В1 - В4. Спецификация. Установка системы У1 Теплоизоляционная конструкция трубопроводов Чертежи основного комплекта марки ОВ Общие данные План 1 этажа в осях А - Д систем В1, Т3. План 2 этажа систем К1, К2, К3 План 1 этажа в осях Д - Н систем В1, Т3 План 2 этажа систем В1, Т3 План 1 этажа систем К1, К2, К3 Схемы систем В1, Т3, К1, К2, К3 Вариант применения пластмассовых труб для систем К1, К3, В1 (подводка к унитазу) Чертежи основного комплекта марки ЭОМ Общие данные. "Товары для дома" Однолинейная расчетная схема питающих сетей. Схема автоматического отключения вентиляции при пожаре План осветительных сетей 1 этажа между осями Д - Н. "Товары для дома" План осветительных сетей 1 этажа между осями А - Д. "Товары для дома" План осветительных сетей 2 этажа между осями Д - Н. "Товары для дома" План осветительных сетей 2 этажа между осями А - Д. "Товары для дома" План осветительных, силовых и питающих сетей технического этажа. Экспликация помещений. "Товары для дома" План силовых и питающих сетей 1 этажа между осями Д - Н. "Товары для дома" План силовых сетей 1 этажа между осями А - Д. "Товары для дома" План силовых и питающих сетей 2 этажа между осями Д - Н. "Товары для дома" План силовых сетей 2 этажа между осями А - Д. "Товары для дома" Расчетная схема ЩС1; 2. "Товары для дома" Расчетная схема ЩС3. "Товары для дома" Опросный лист. "Товары для дома" Чертежи основного комплекта марки АУ Общие данные Приточные системы П1 - П3. Схема автоматизации Приточные системы П1 - П3. Схемы электрические принципиальные управления Приточные системы П1 - П3. Схемы электрические принципиальные регулирования Приточные системы П1 - П3. Схема соединений внешних проводок Завеса У1. Схемы автоматизации, электрическая принципиальная, соединений внешних проводок Приточные системы П1 - П3. Завеса У1. План расположения Узел присоединения калориферов. Схемы автоматизации, соединений внешних проводок, план расположения Зарядный пост. Схемы автоматизации, электрическая принципиальная, соединений внешних проводок Зарядный пост. План расположения Чертежи основного комплекта марки СС Общие данные Связь и сигнализация. Схемы Связь и сигнализация. План 1 этажа в осях А - Д Связь и сигнализация. План 1 этажа в осях Д - Н Связь и сигнализация. План 2 этажа в осях А - Д Связь и сигнализация. План 2 этажа в осях Д - Н Охранно-пожарная сигнализация. Схемы Охранно-пожарная сигнализация. План 1 этажа в осях А - Д Охранно-пожарная сигнализация. План 1 этажа в осях Д - Н Охранно-пожарная сигнализация. План 2 этажа в осях А - Д Охранно-пожарная сигнализация. План 2 этажа в осях Д - Н Охранно-пожарная сигнализация. План технического этажа. Экспликация помещений Узлы скрытой проводки |
| Разработан: | ЦНИИЭП торгово-бытовых зданий и туристских комплексов |
| Утверждён: | 26.11.1974 Госгражданстрой (Gosgrazhdanstroy 263) |





























































