Скачать Типовой проект 704-1-20 Альбом II. Оборудование для светлых нефтепродуктовДата актуализации: 01.01.2021
|
| Обозначение: | Типовой проект 704-1-20 |
| Обозначение англ: | 704-1-20 |
| Статус: | действует |
| Название рус.: | Альбом II. Оборудование для светлых нефтепродуктов |
| Дата добавления в базу: | 01.10.2014 |
| Дата актуализации: | 01.01.2021 |
| Дата введения: | 26.12.1966 |
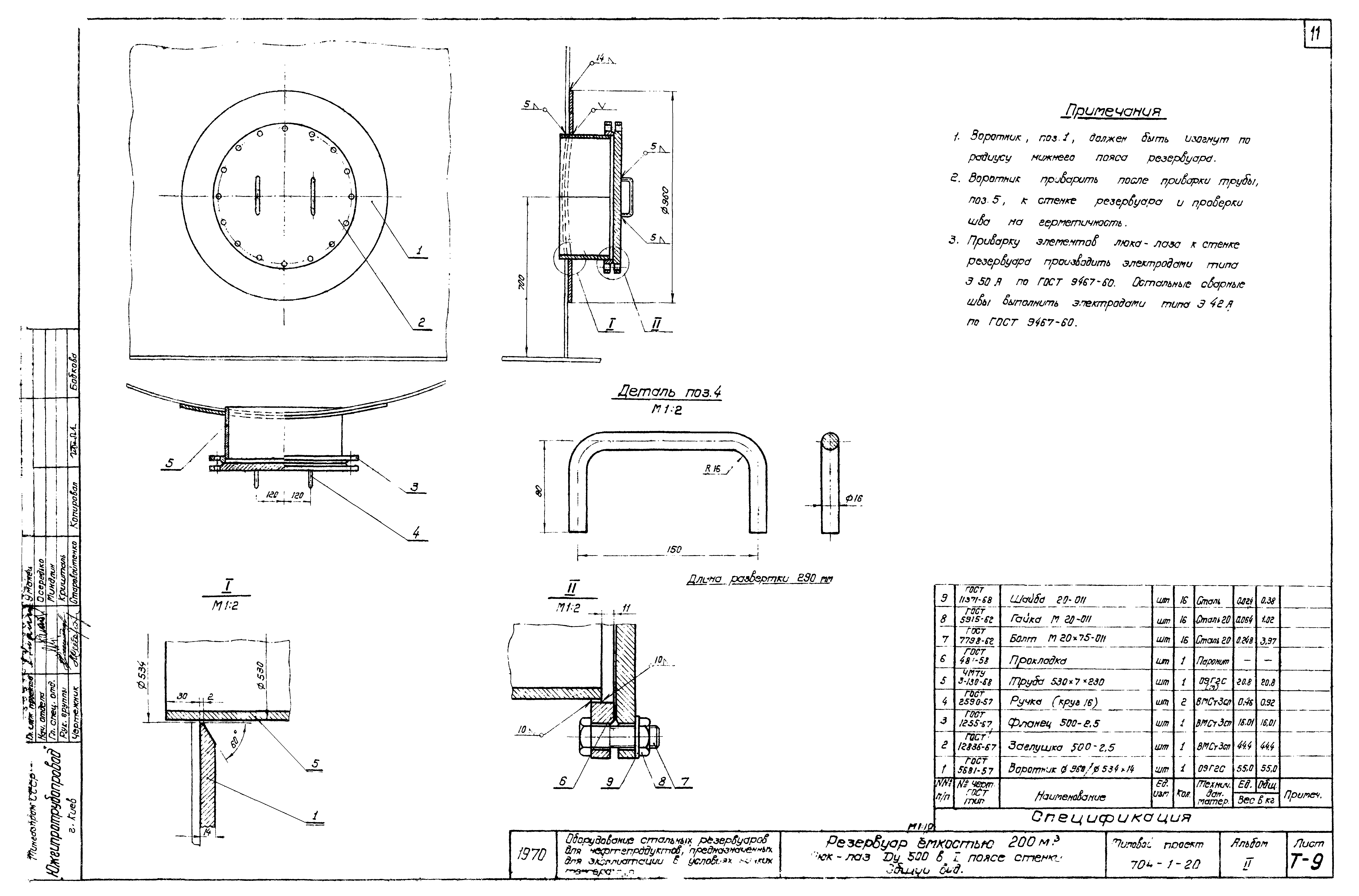
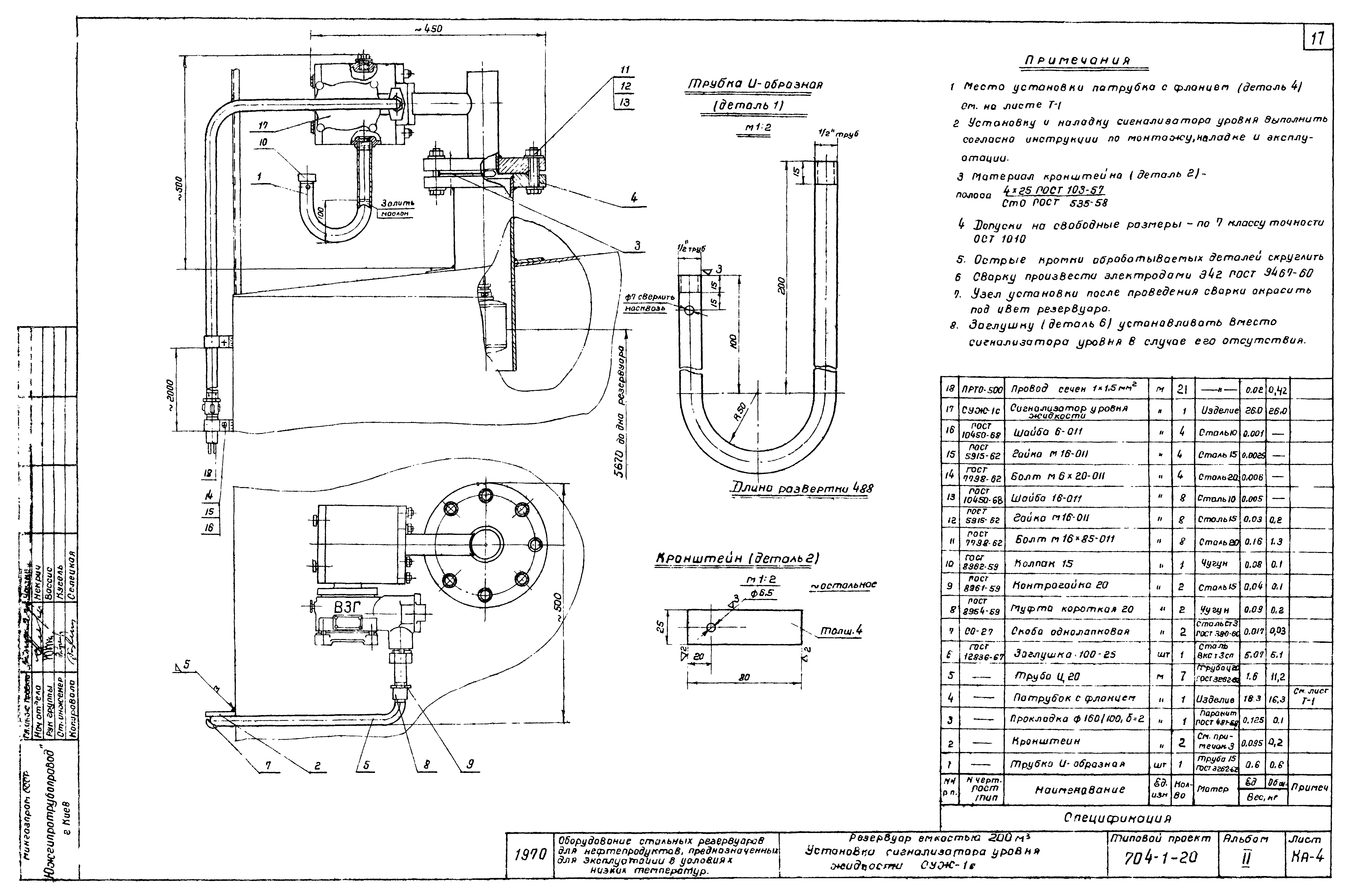
| Оглавление: | Содержание альбома. Пояснительная записка Технологическая часть Общий вид Спецификация Патрубок приемо-раздаточный ППР-100; ППР-150. Общий вид Патрубок для зачистки Dy100. Общий вид Монтажный патрубок замерного люка Dy150. Общий вид Монтажный патрубок Dy200 для установки дыхательной арматуры. Общий вид Крепление КПГ и НДКМ на крыше резервуара. Общий вид. Узлы. Детали Монтажный патрубок сигнализатора уровня Dy100. Общий вид Люк-лаз Dy500 в I поясе стенки. Общий вид. Узлы. Детали Электротехническая часть Грозозащита резервуара. Молниеприемник. Общий вид Грозозащита резервуара. Клемма типа К3-3. Общий вид КИП и автоматика Спецификации Принципиальная схема автоматизации Установка указателя уровня УДУ-5П Установка сигнализатора уровня жидкости СУЖ-1с Установка пробоотборника сниженного ПСР-4 Установка термометра ртутного технического углового. Общий вид Установка термометра ртутного технического углового. Детали |
| Разработан: | ЮжГипротрубопровод Мингазпрома |
| Утверждён: | 26.12.1966 Союзметаллостройниипроект (Soyuzmetallostroyniiproject 21) |



















