Скачать Типовой проект 704-1-21 Альбом V. Проект производства монтажных работДата актуализации: 01.01.2021
|
| Обозначение: | Типовой проект 704-1-21 |
| Обозначение англ: | 704-1-21 |
| Статус: | действует |
| Название рус.: | Альбом V. Проект производства монтажных работ |
| Дата добавления в базу: | 01.10.2014 |
| Дата актуализации: | 01.01.2021 |
| Дата введения: | 26.12.1966 |
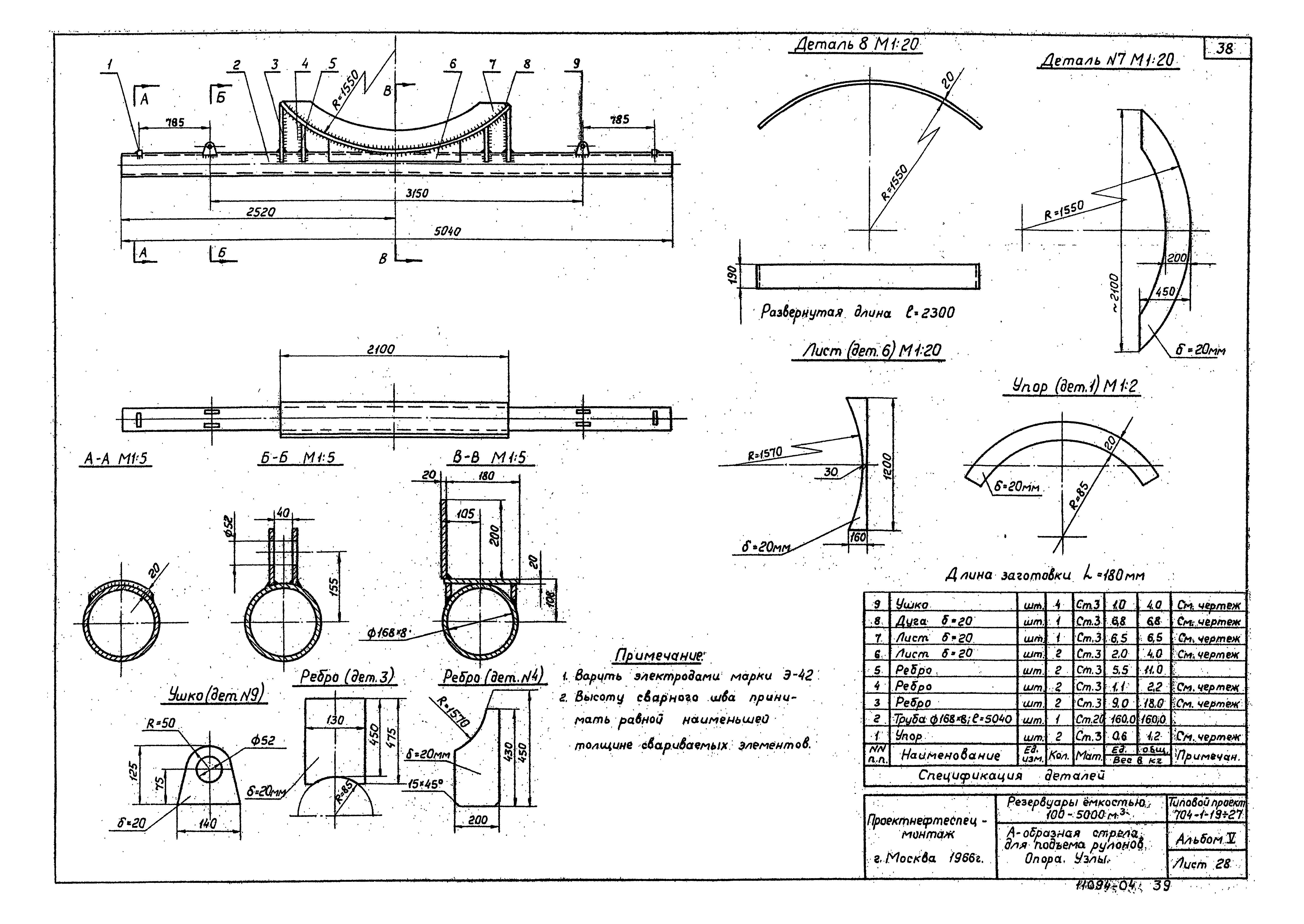
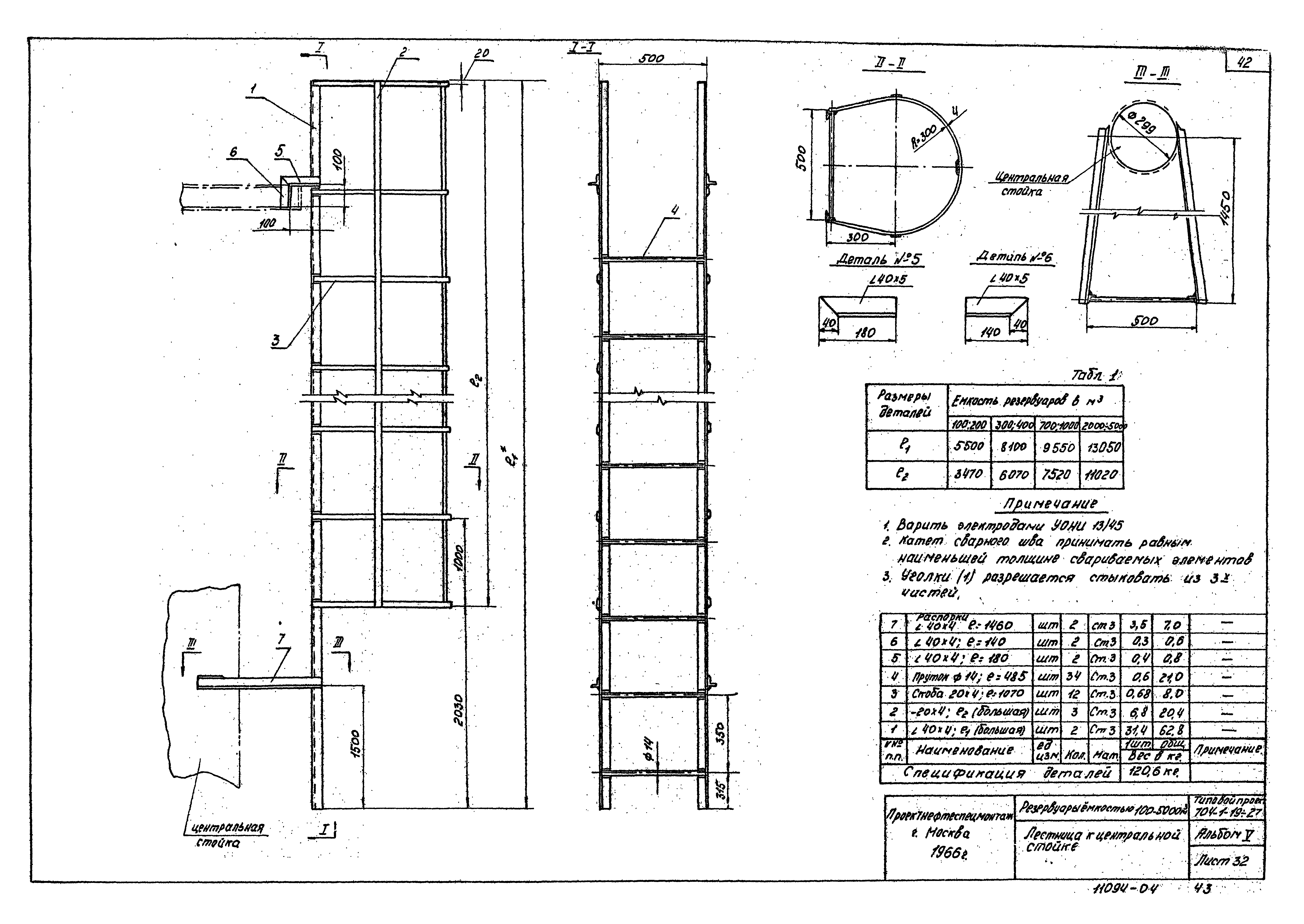
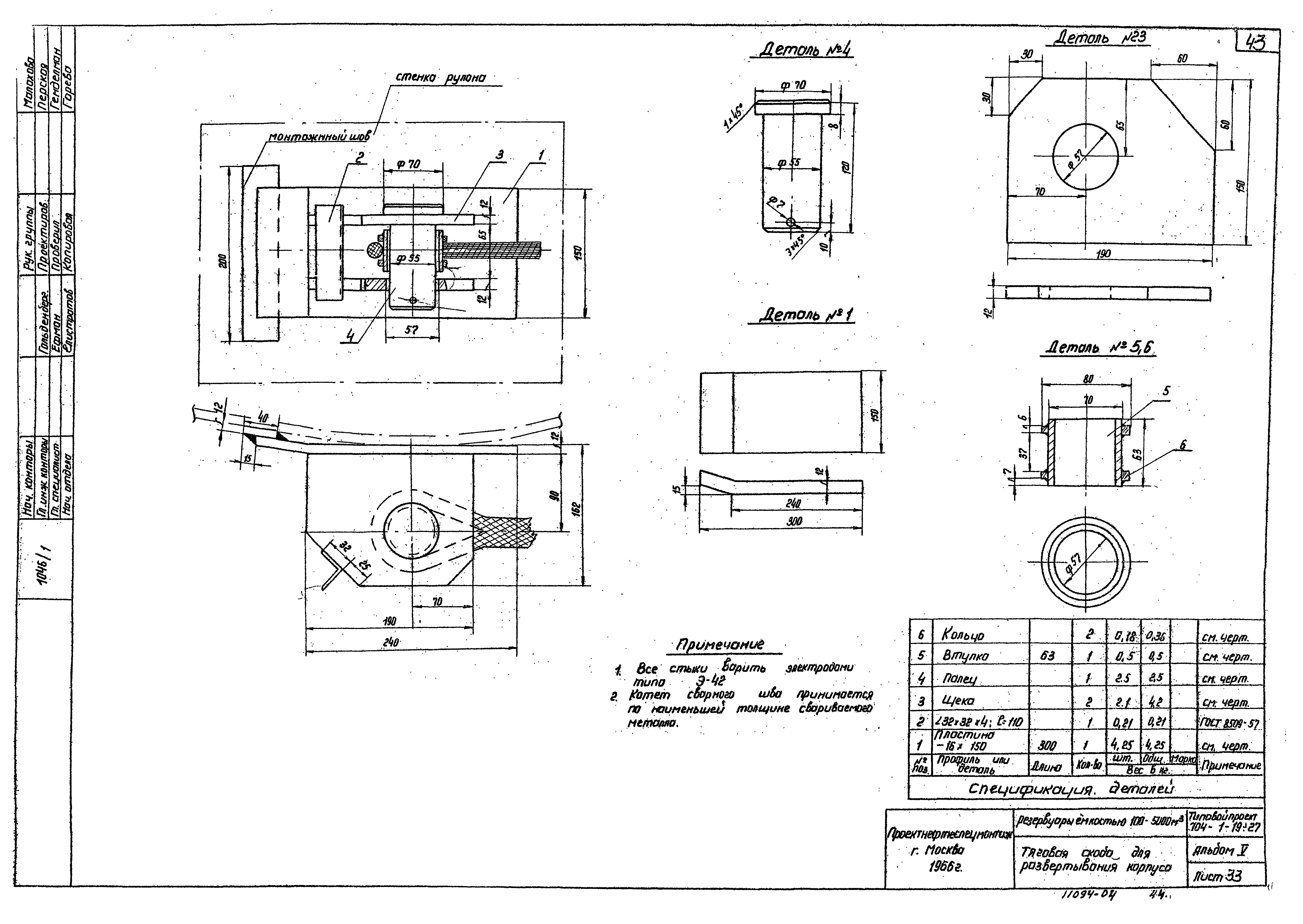
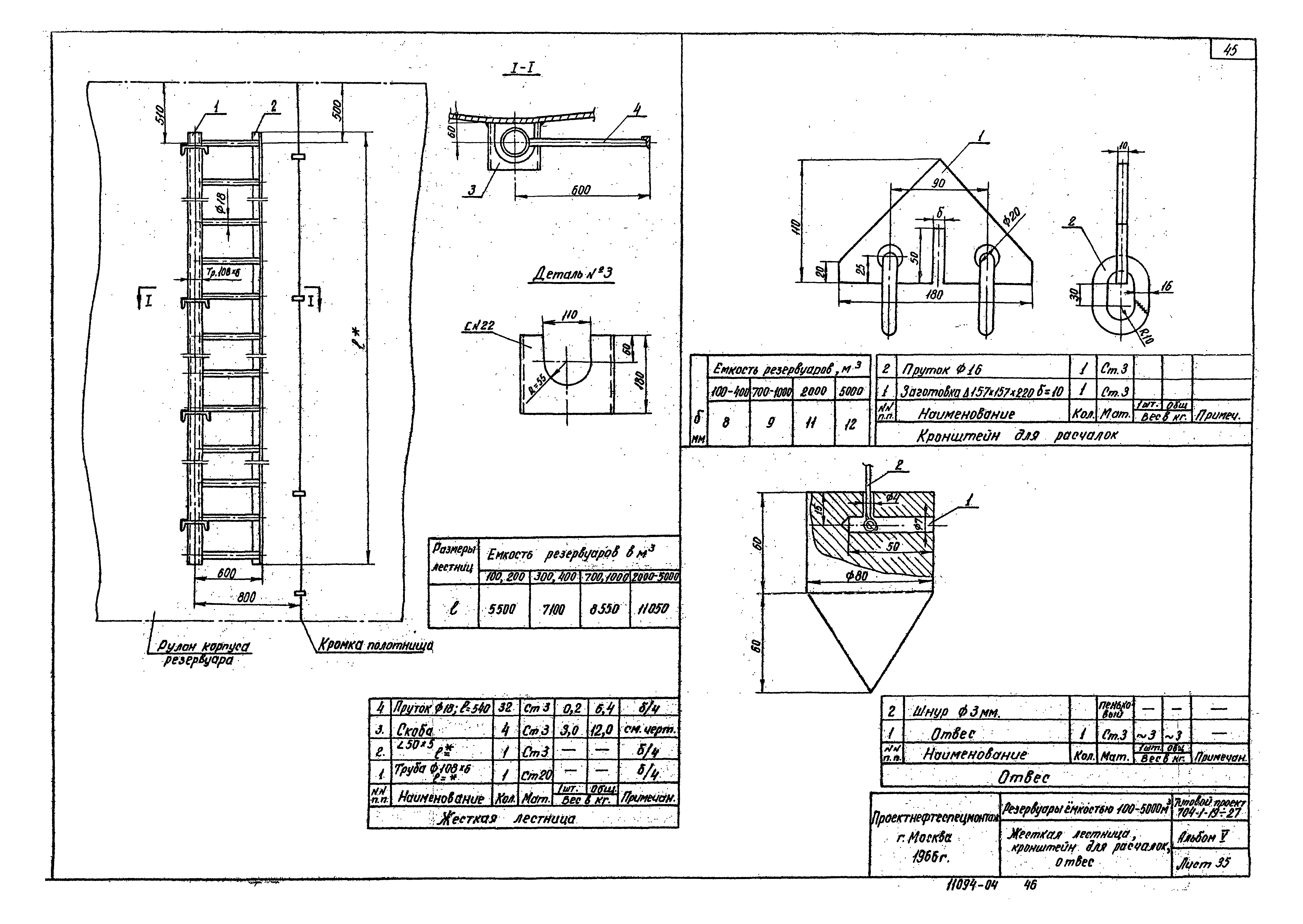
| Оглавление: | Оглавление Пояснительная записка Ситуационный план (условный) Разгрузка рулонов с железнодорожной платформы Развертывание рулонов днищ резервуаров емкостью 100 - 1000 куб. м Разметка основания резервуаров емкостью 100 - 5000 куб. м и развертывание рулонов днищ резервуаров емкостью 2000 - 5000 куб. м Технологическая карта сварки днища резервуаров емкостью 100 - 5000 куб. м Разметка днища резервуаров 100 - 500 куб. м Подъем рулонов корпусов резервуаров емкостью 100 - 1000 куб. м Подъем рулонов корпусов резервуаров емкостью 2000 - 5000 куб. м Установка центральной стойки резервуаров емкостью 1000 - 5000 куб. м Развертывание рулона корпуса и установка щитов покрытия Технологическая карта приварки корпуса к днищу Строповка щитов покрытия Технологическая карта сварки щитов покрытия и ребер жесткости Замыкание и сварка вертикального монтажного стыка корпуса. Сварка встык Установка шахтной лестницы. Технологическая карта приварки лестницы и переходной площадки Установка ребер жесткости пеносливных камер 100 - 200 куб. м График работ по монтажу резервуаров емкостью 100 - 200 куб. м График работ по монтажу резервуаров емкостью 300, 400 и 700 куб. м График работ по монтажу резервуаров емкостью 1000, 2000, 3000 и 5000 куб. м Балка разгрузочная Приспособление для развертывания рулонов Приспособление для разметки днища Струбцина для укладки днища Приспособление для прижима кромок листов при сварке Штуцер для строповки рулонов. Поддон А-образная стрела для подъема рулона корпуса. Общий вид А-образная стрела для подъема рулона корпуса. Основание А-образная стрела для подъема рулона корпуса. Опора. Узлы А-образная стрела для подъема рулона корпуса. Опора-шарнир А-образная стрела для подъема рулона корпуса. Стрела А-образная стрела для подъема рулона корпуса. Стяжка винтовая Лестница к центральной стойке Тяговая скоба для развертывания корпуса Монтажная стойка для резервуаров емкостью 300, 400 и 700 куб. м Жесткая лестница кронштейна для расчалок, отвес Люлька для приварки ребер жесткости пеносливных камер. Общий вид Люлька для приварки ребер жесткости пеносливных камер. Детали Стяжка винтовая Навесные леса для замыкания вертикальных монтажных стыков корпуса резервуара |
| Разработан: | Проектнефтеспецмонтаж |
| Утверждён: | 26.12.1966 Союзметаллостройниипроект (Soyuzmetallostroyniiproject 21) |


















































