Скачать Типовой проект 901-3-120 Альбом II. Технологическая часть. Вариант обеззараживания питьевых водДата актуализации: 01.01.2021
|
| Обозначение: | Типовой проект 901-3-120 |
| Обозначение англ: | 901-3-120 |
| Статус: | заменен |
| Название рус.: | Альбом II. Технологическая часть. Вариант обеззараживания питьевых вод |
| Дата добавления в базу: | 01.10.2014 |
| Дата актуализации: | 01.01.2021 |
| Дата введения: | 30.05.1979 |
| Дата окончания срока действия: | 01.06.1985 |
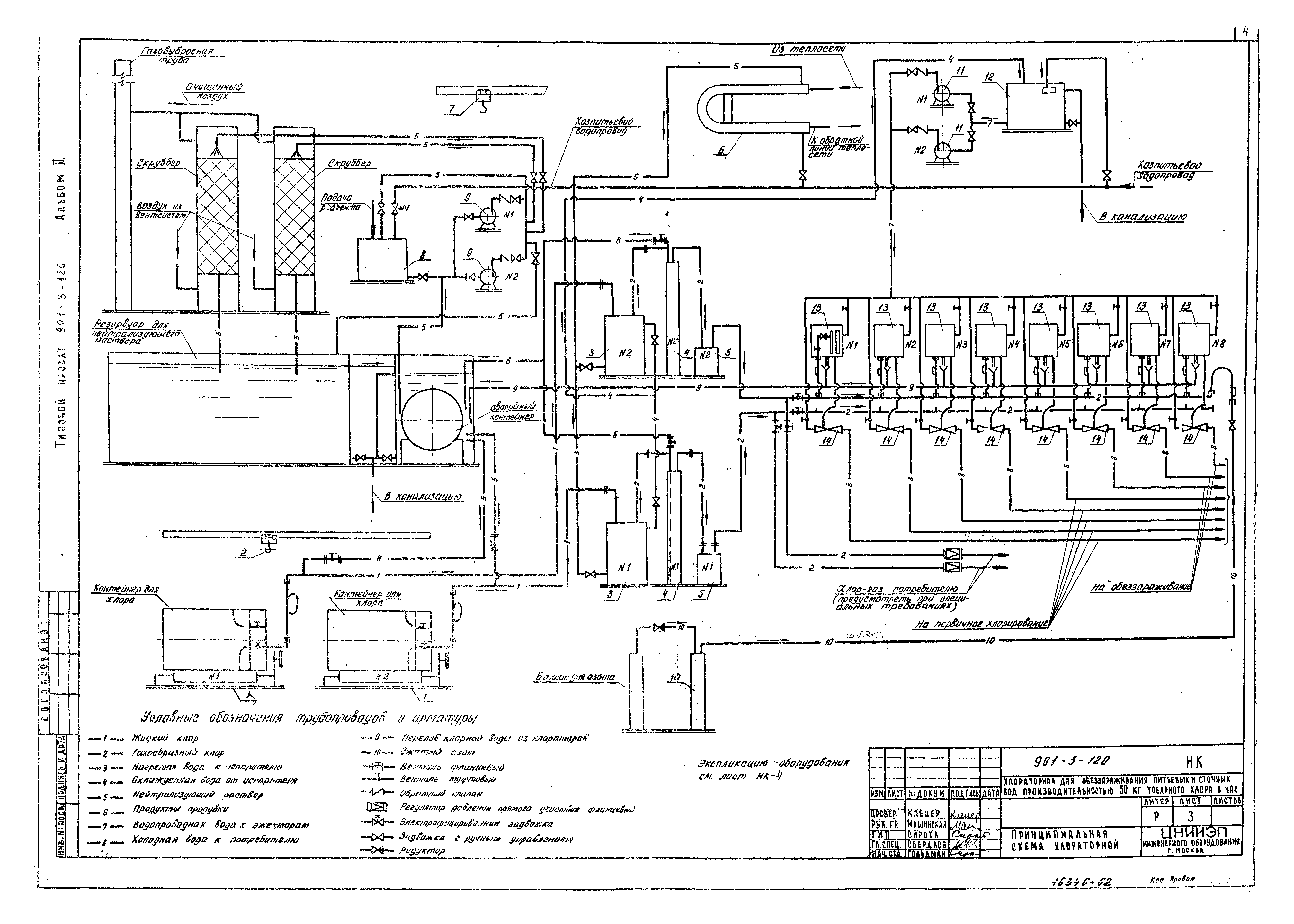
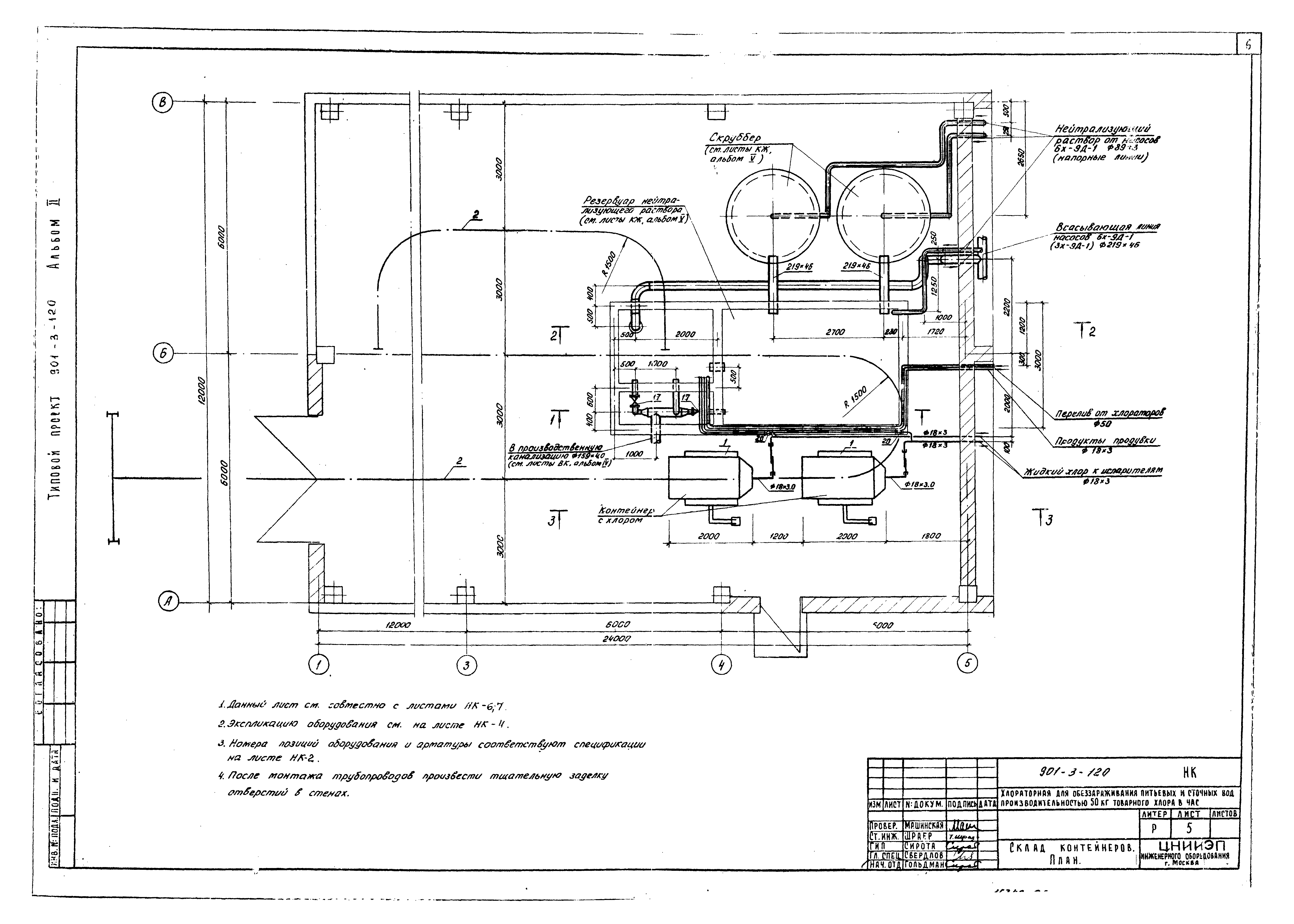
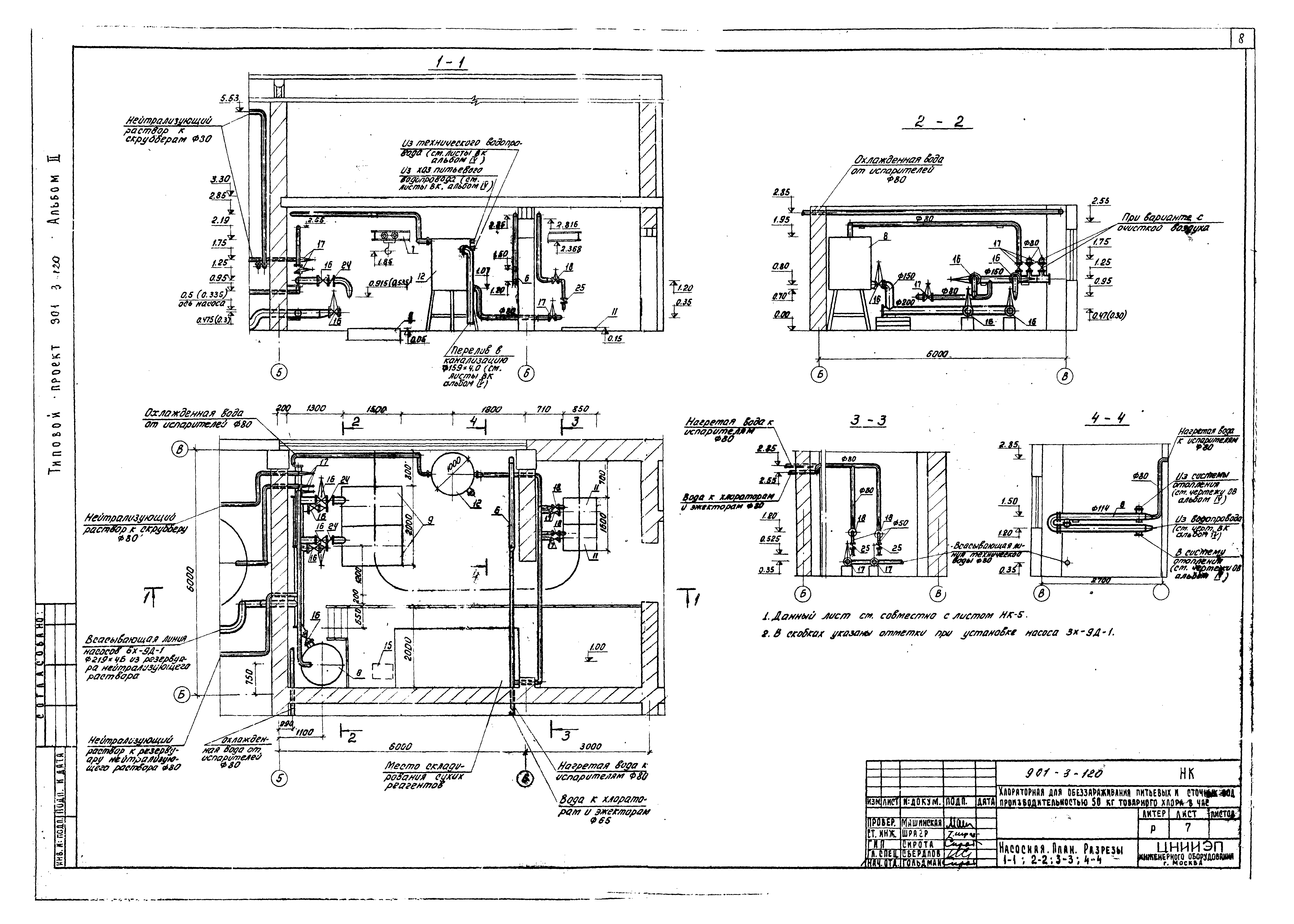
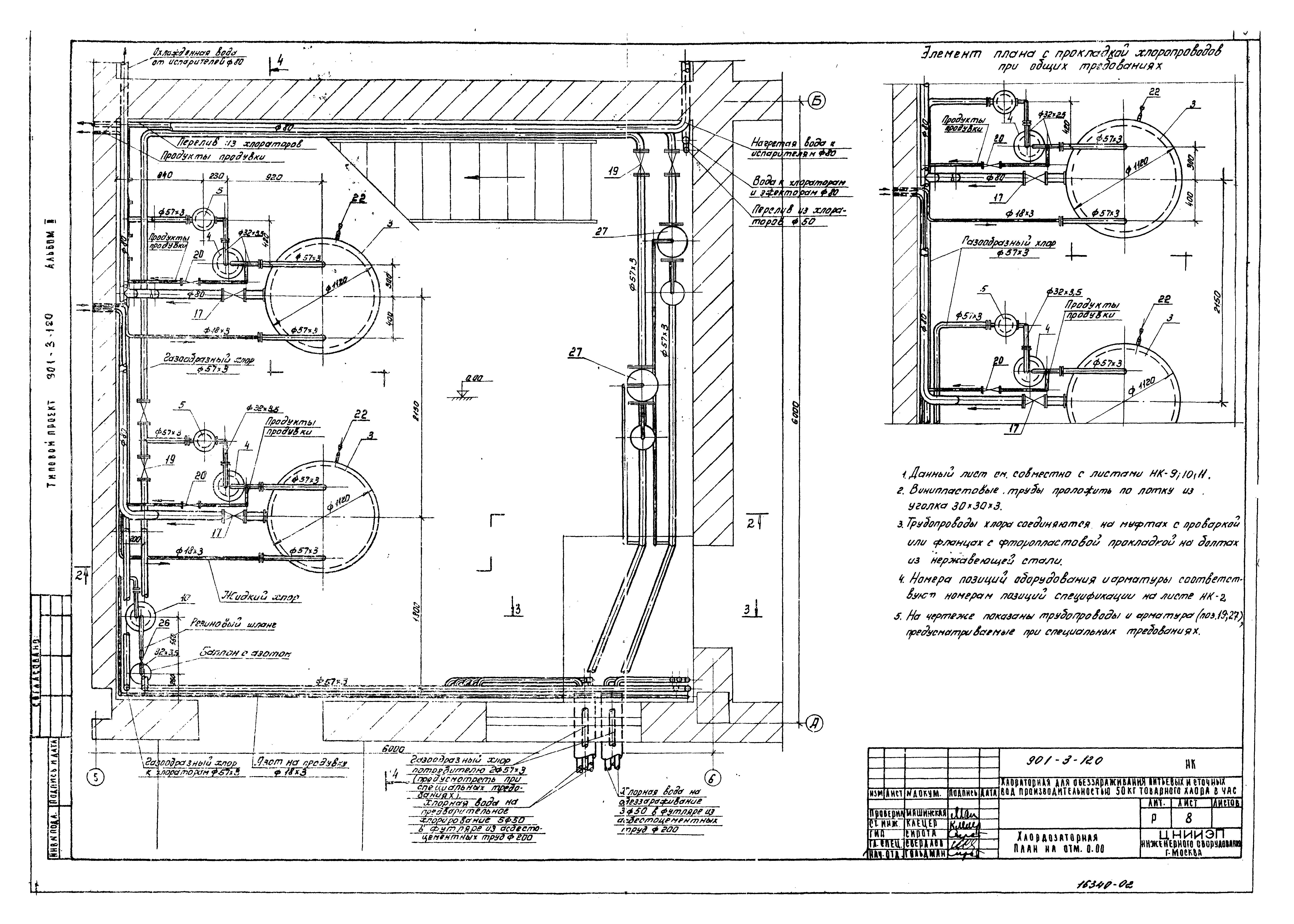
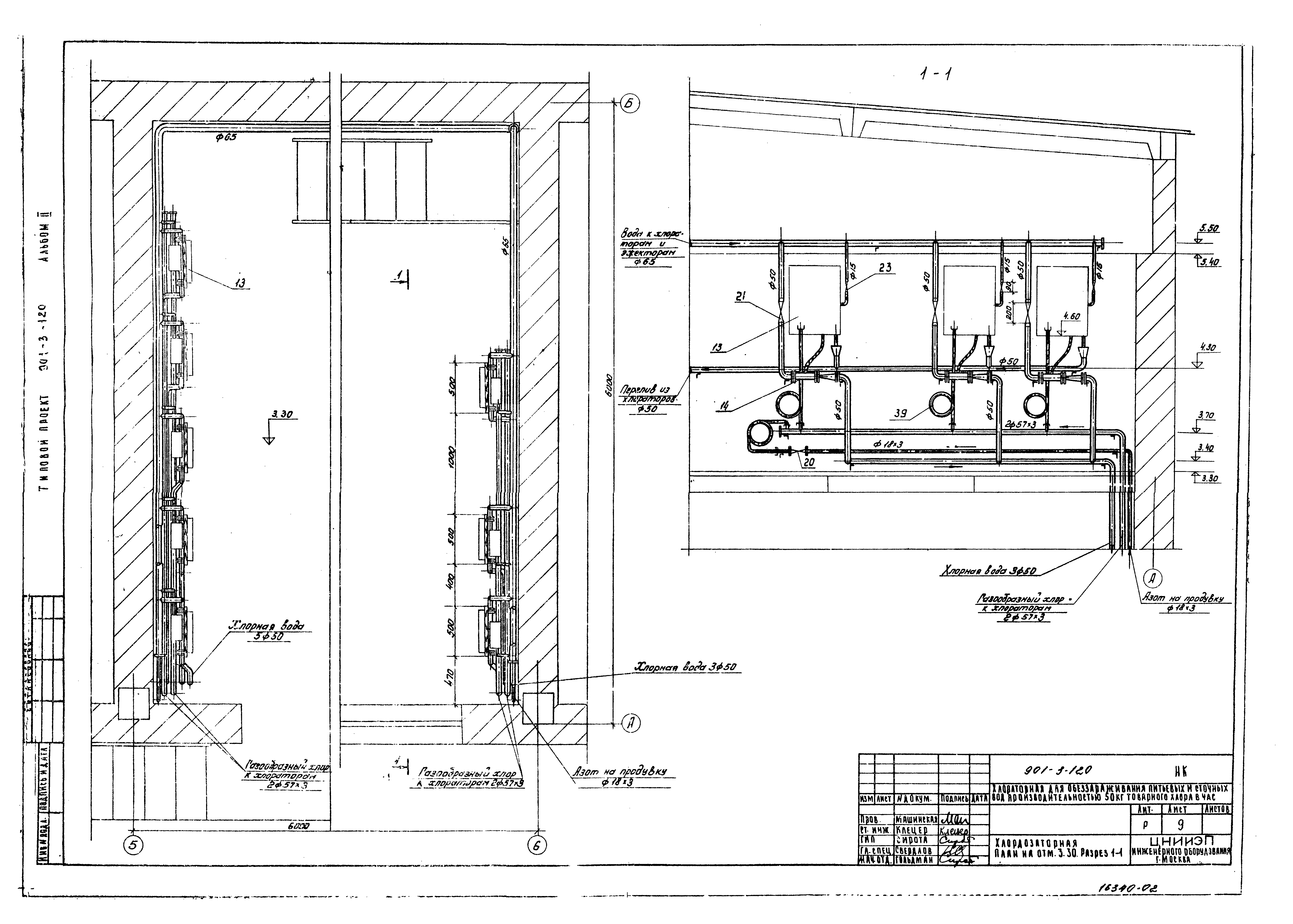
| Оглавление: | Общие данные Принципиальная схема хлораторной Варианты размещения оборудования. Планы. Разрезы 1-1, 2-2. Экспликация оборудования Склад контейнеров. План Склад контейнеров. Разрезы 1-1, 2-2, 3-3 Насосная. План. Разрезы 1-1, 2-2, 3-3, 4-4 Хлордозаторная. План на отм. 0.000 Хлордозаторная. План на отм. 3.300. Разрез 1-1 Хлордозаторная. Разрезы 2-2, 3-3 Хлордозаторная. Разрез 4-4 Схемы подачи хлора Схемы подачи азота и отвода продуктов продувки. Схема производственного водопровода Схемы подачи нейтрализующего раствора. Схема отвода хлорной воды и перелива из хлораторов Детали |
| Разработан: | ЦНИИЭП |
| Утверждён: | 12.03.1979 Госгражданстрой (Gosgrazhdanstroy 56) |
| Заменяет собой: |
|
| Чем заменён: |
















