Скачать Типовой проект 901-3-120 Альбом IV. Санитарно-техническая и электротехническая частиДата актуализации: 01.01.2021
|
| Обозначение: | Типовой проект 901-3-120 |
| Обозначение англ: | 901-3-120 |
| Статус: | заменен |
| Название рус.: | Альбом IV. Санитарно-техническая и электротехническая части |
| Дата добавления в базу: | 01.10.2014 |
| Дата актуализации: | 01.01.2021 |
| Дата введения: | 30.05.1979 |
| Дата окончания срока действия: | 01.06.1985 |
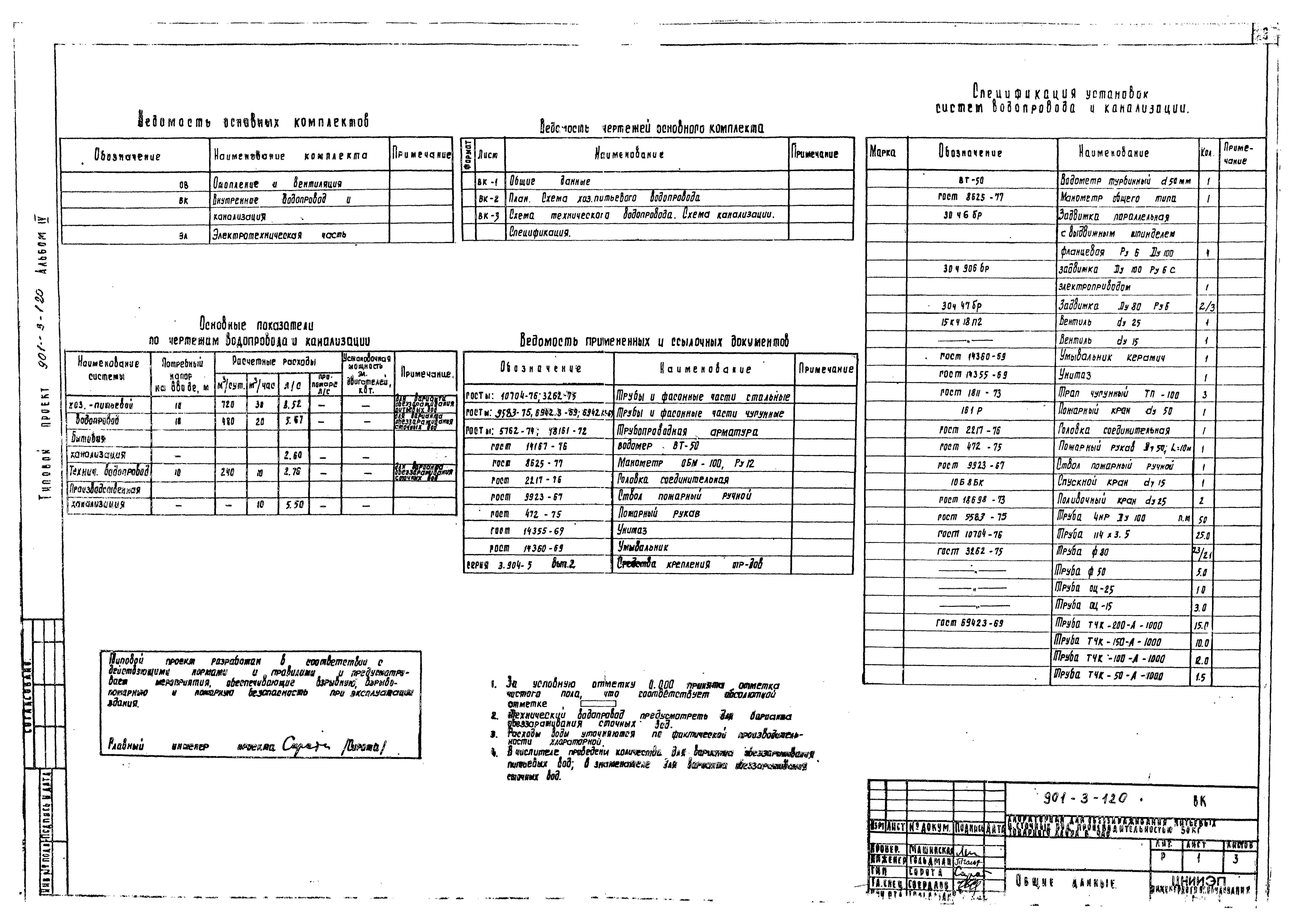
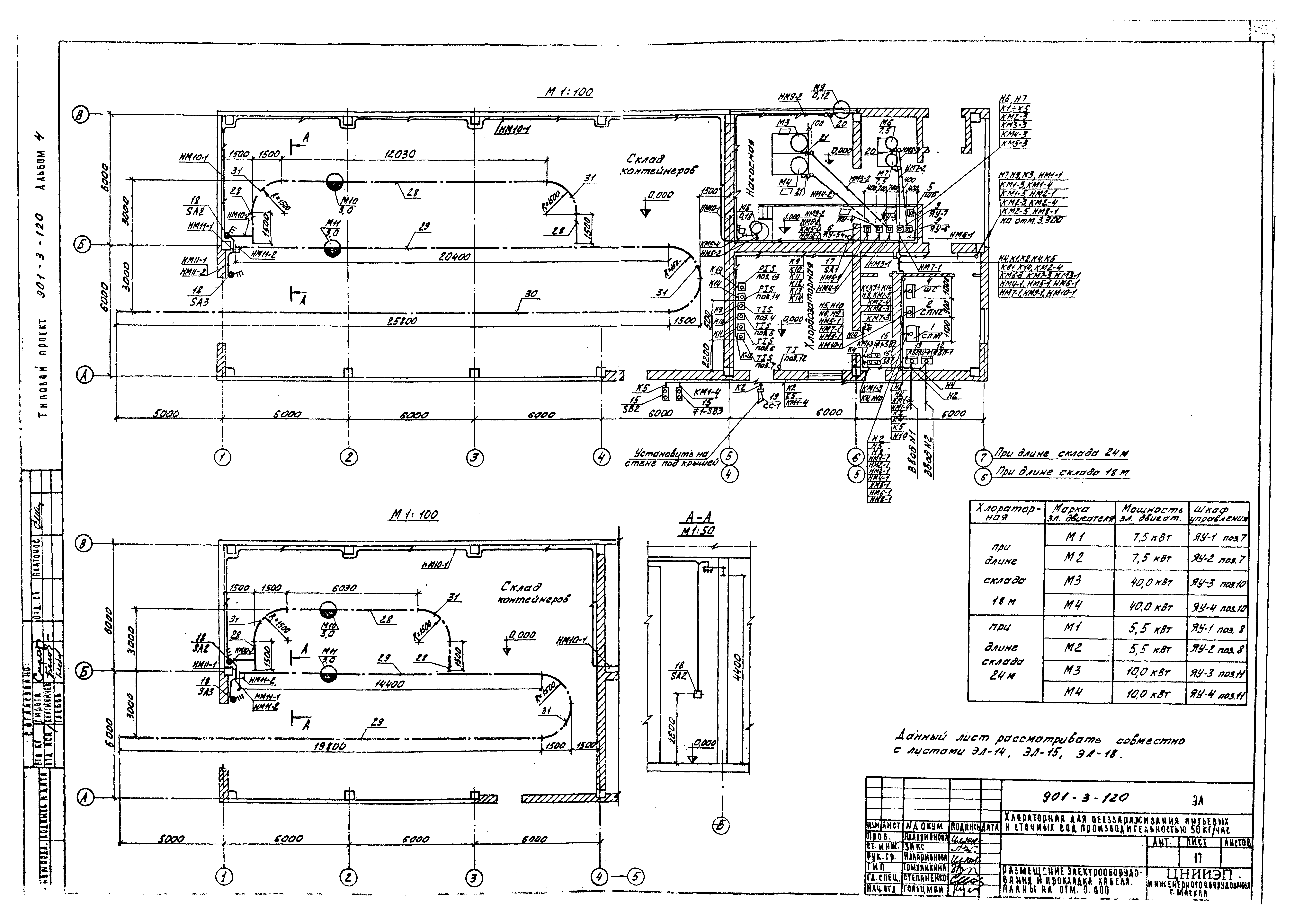
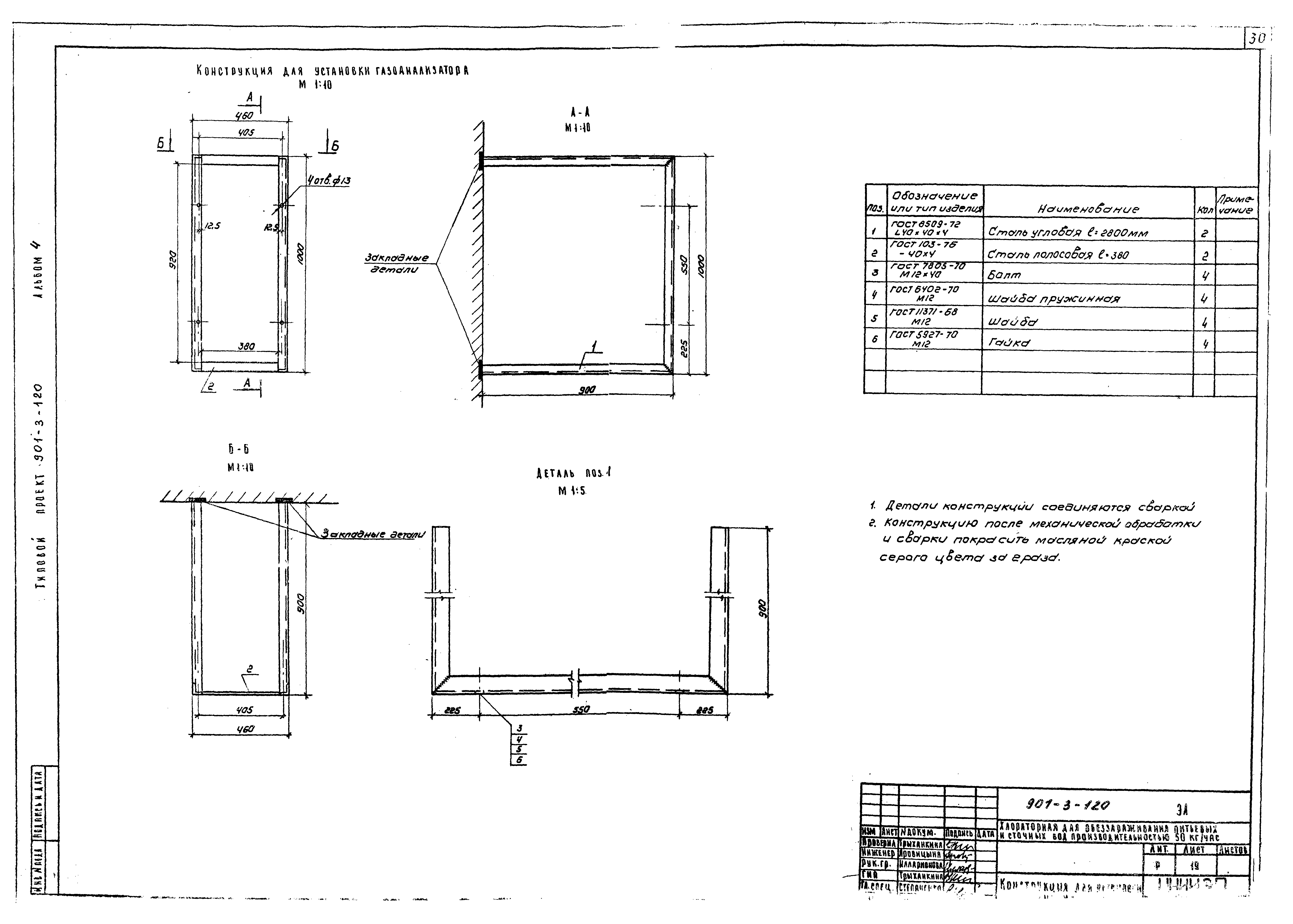
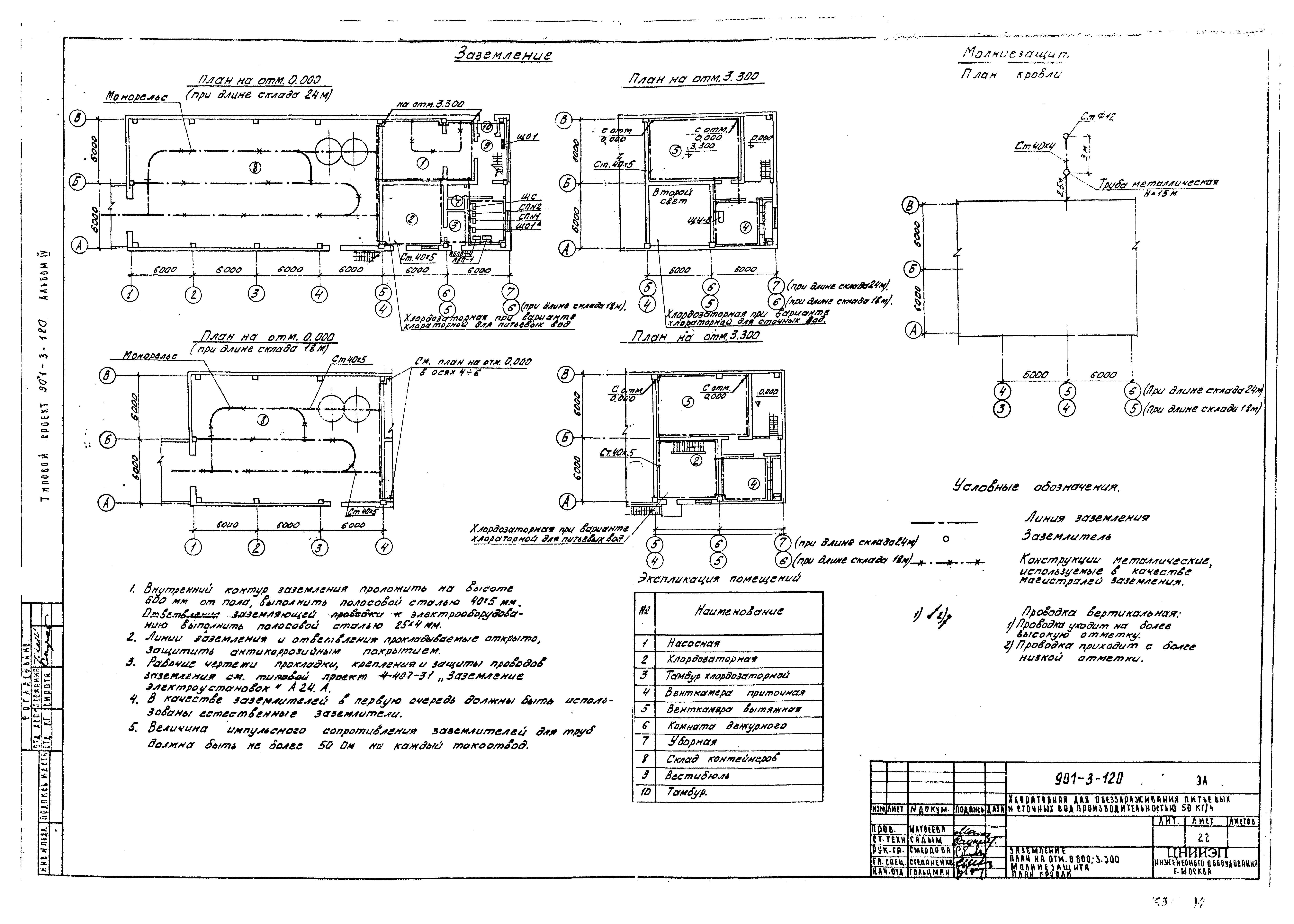
| Оглавление: | Содержание Чертежи основного комплекта марки ОВ Общие данные Планы на отм. 0.000 и 3.300 с нанесением системы отопления и вентиляции Схема трубопроводов системы отопления. Схемы систем вентиляции П-1, В-1, В-2, ВЕ-1 Узел управления. Приточная венткамера. План, разрез, спецификация Узел управления. Вытяжная венткамера. План, разрез, спецификация Чертежи основного комплекта марки ВК Общие данные План. Схема питьевого водопровода Схемы технического водопровода. Схемы канализации. Спецификация Чертежи основного комплекта марки ЭЛ Общие данные Ведомость электрооборудования изделий и материалов Питание электрооборудования. Схема принципиальная электрическая Управление электродвигателями насосов повысителей напора электродвигателем вентилятора Управление электродвигателем задвижки, аварийного вентилятора, электродвигателями Управление приточным вентилятором. Схема принципиальная электрическая Аварийная сигнализация. Схема принципиальная электрическая Схема подключения электрооборудования Схема подключения приборов технологического контроля Кабельный журнал Размещение электрооборудования и прокладка кабеля. План на отм. 0.000 Размещение электрооборудования и прокладка кабеля. План на отм. 3.300. Спецификация электрооборудования Конструкция для установки газоанализатора Электрическое освещение. План на отм. 0.000 Электрическое освещение. План на отм. 3.300 Заземление. План на отм. 0.000 и 3.300. Молниезащита. План кровли |
| Разработан: | ЦНИИЭП |
| Утверждён: | 12.03.1979 Госгражданстрой (Gosgrazhdanstroy 56) |
| Заменяет собой: |
|
| Чем заменён: |

































