Скачать Типовой проект 901-3-120 Альбом V. Строительная частьДата актуализации: 01.01.2021
|
| Обозначение: | Типовой проект 901-3-120 |
| Обозначение англ: | 901-3-120 |
| Статус: | заменен |
| Название рус.: | Альбом V. Строительная часть |
| Дата добавления в базу: | 01.10.2014 |
| Дата актуализации: | 01.01.2021 |
| Дата введения: | 30.05.1979 |
| Дата окончания срока действия: | 01.06.1985 |
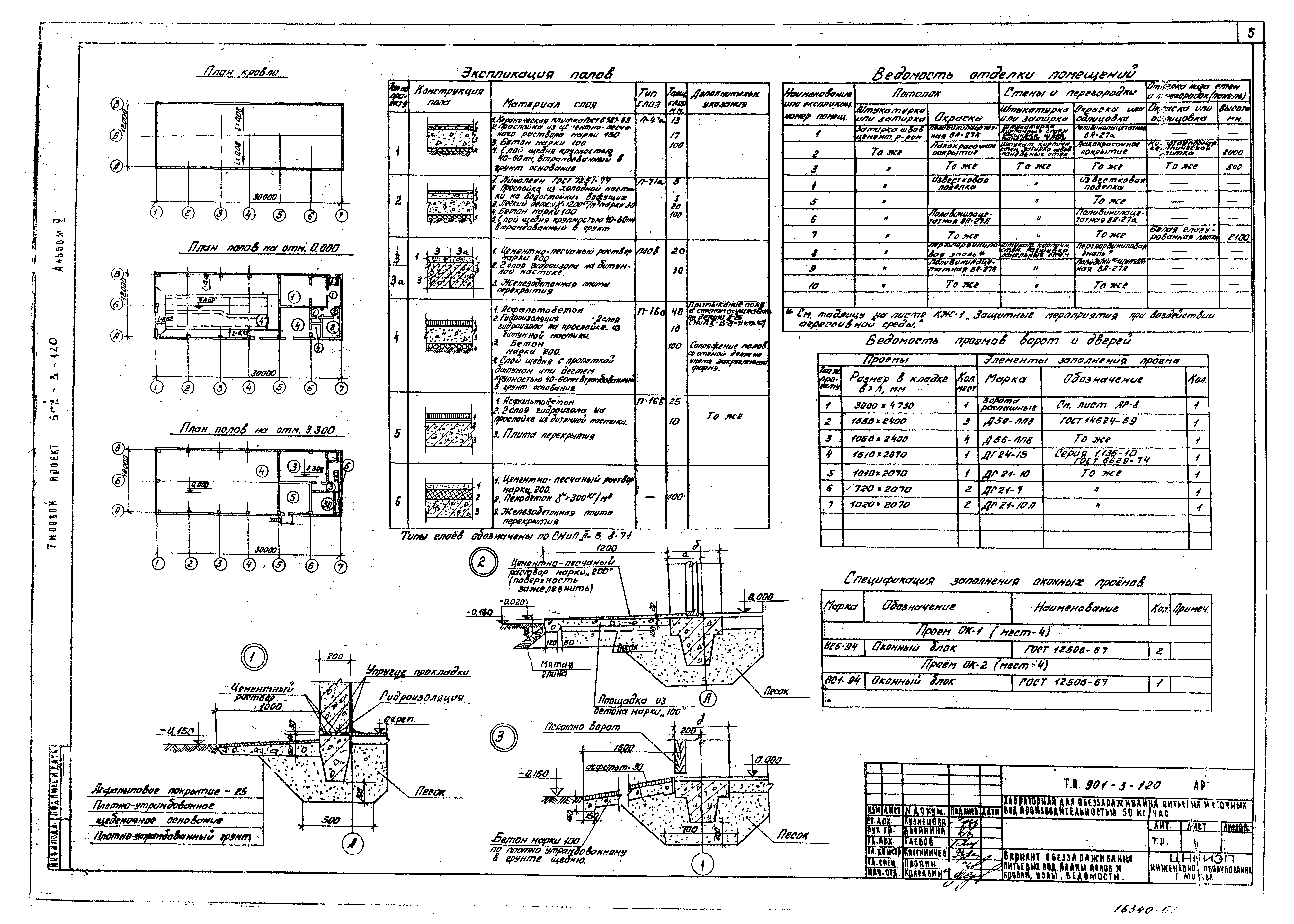
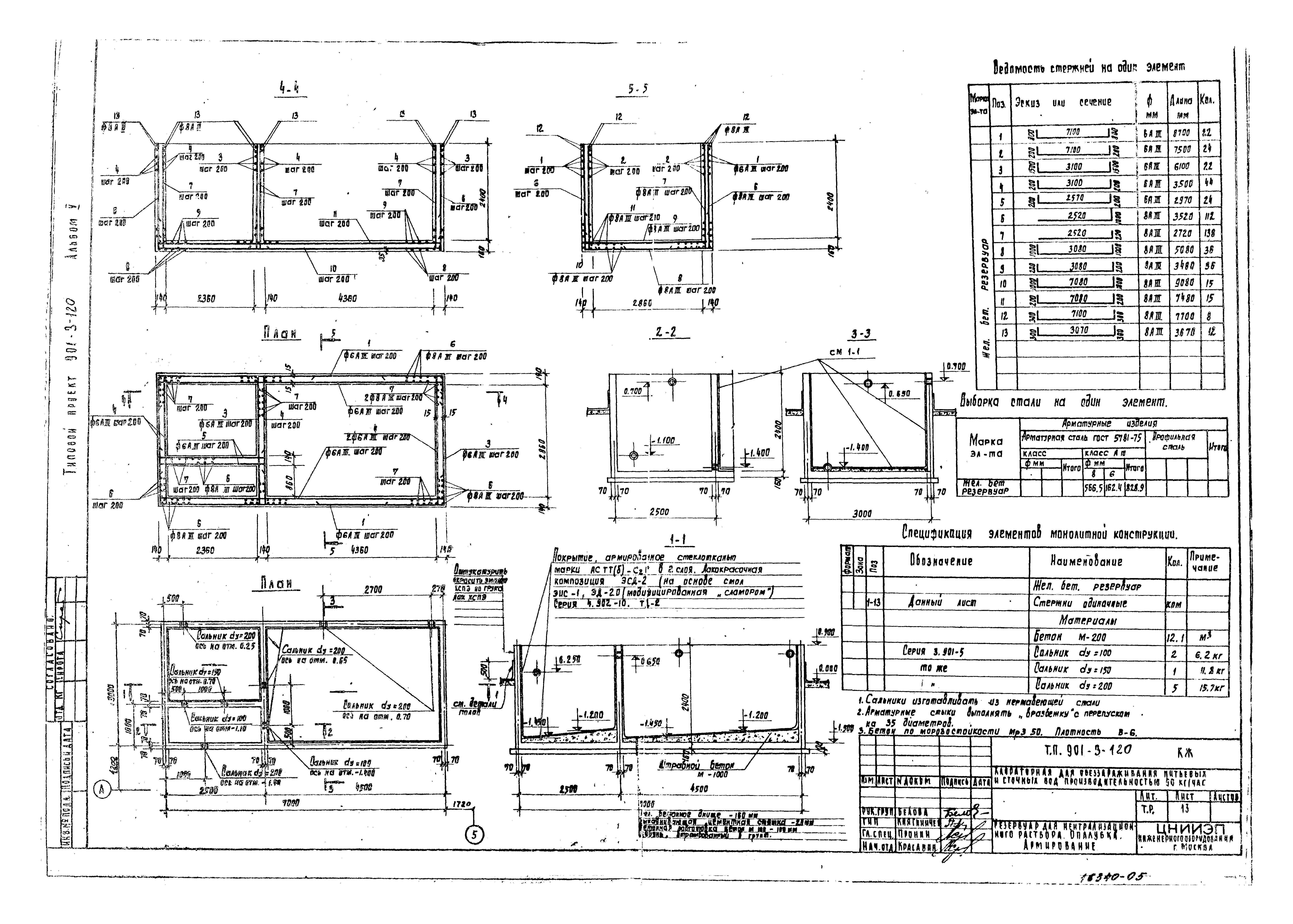
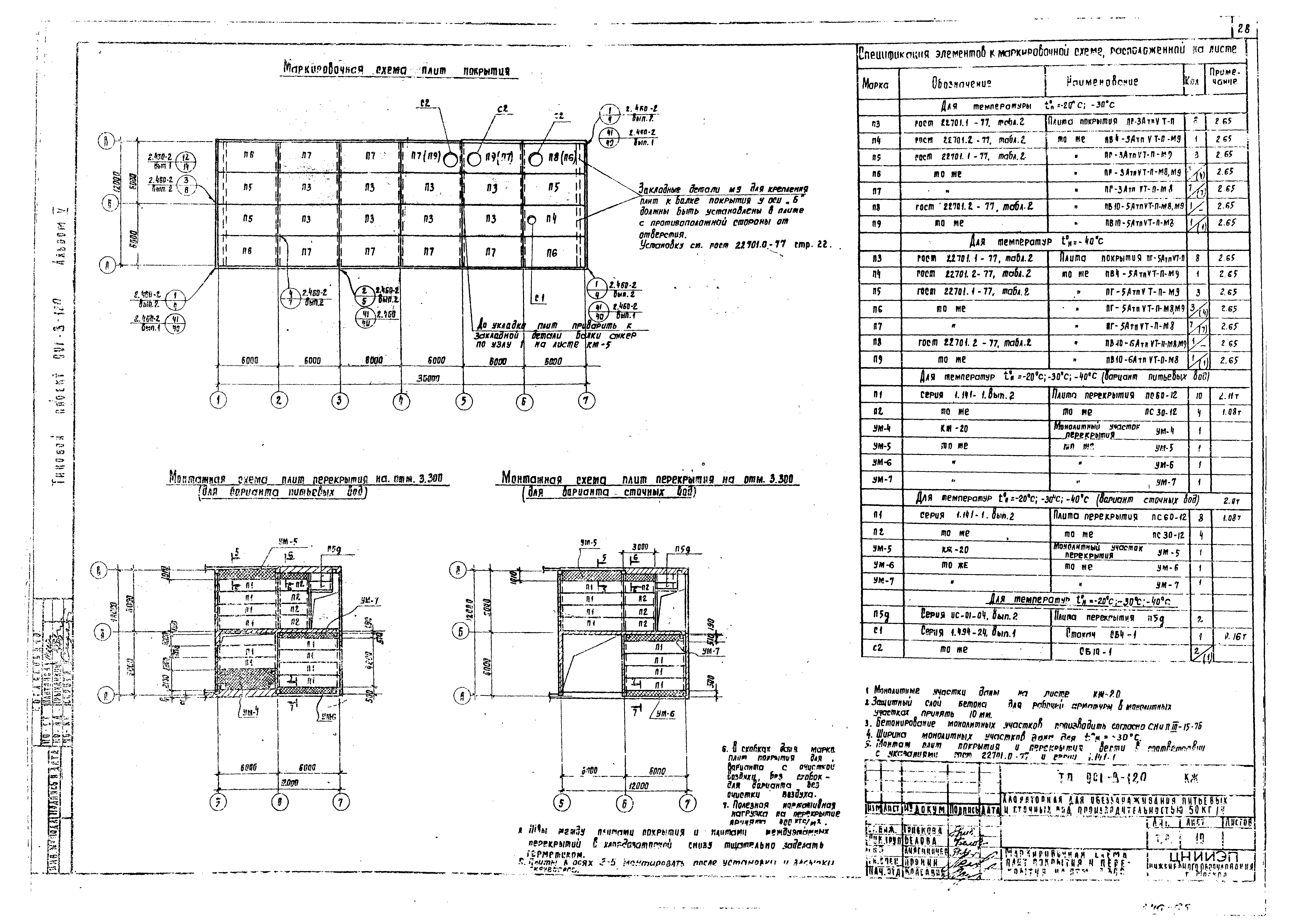
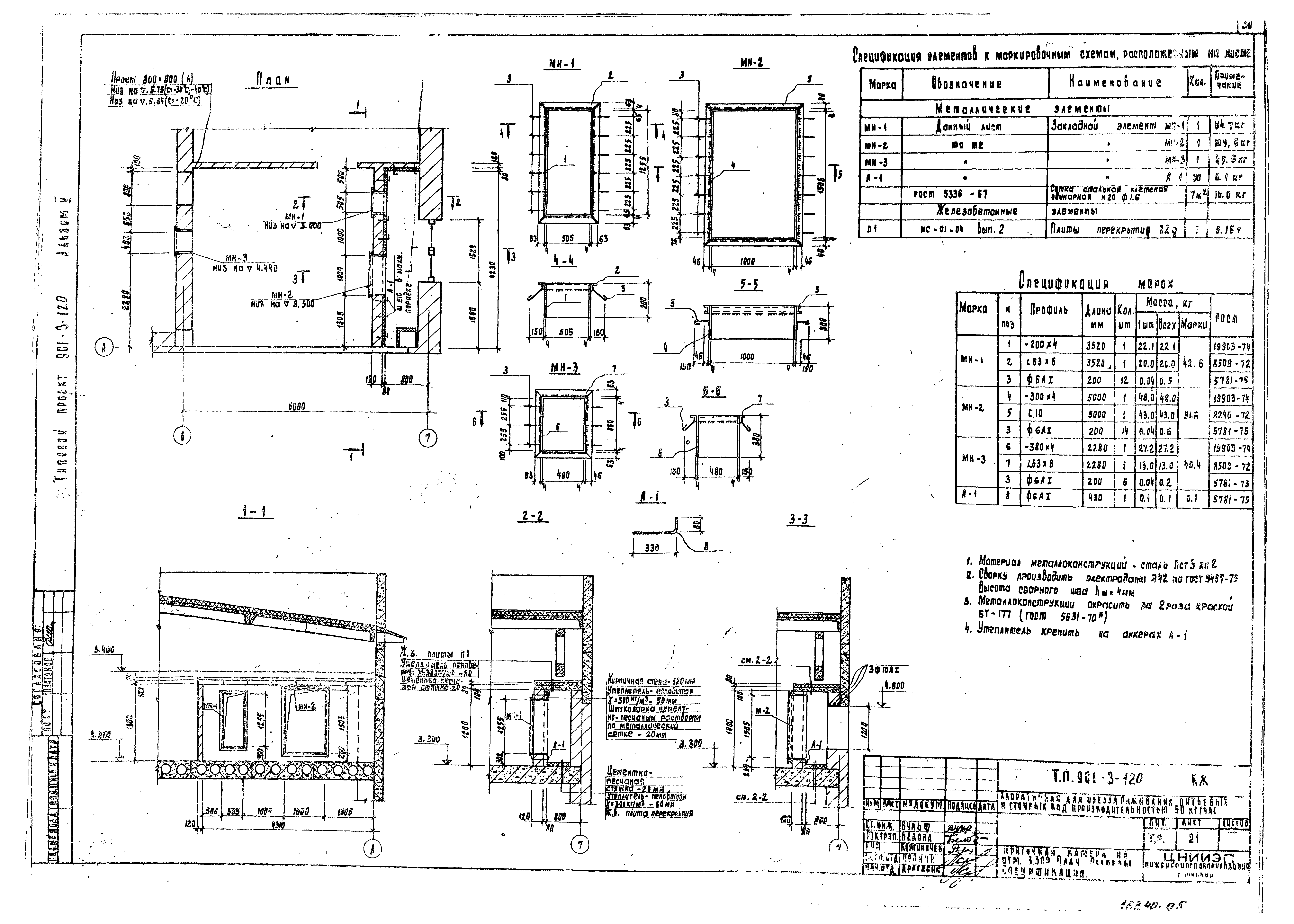
| Оглавление: | Содержание альбома Архитектурно-строительные решения Общие данные Вариант обеззараживания питьевых вод. Планы. Разрезы Вариант обеззараживания питьевых вод. Фасады Вариант обеззараживания питьевых вод. Планы полов и кровли. Узлы. Ведомости Вариант обеззараживания сточных вод. Планы. Разрезы Вариант обеззараживания сточных вод. Фасады Вариант обеззараживания сточных вод. Планы полов и кровли. Узлы. Ведомости Ворота распашные 3.00х4.73 Конструкции железобетонные Общие данные Маркировочная схема фундаментов и фундаментных балок. Узлы 1 - 4 Фундаменты каркаса здания. Узлы 5 - 11 Ленточные фундаменты. Виды 1-1 - 5-5 Фундаменты каркаса здания Фм-1, Фм-2, Фм-3, Фм-7, Фм-10, Фм-11 Фундаменты каркаса здания Фм-4, Фм-8, Фм-9 Фундаменты каркаса здания Фм-5, Фм-6 План фундаментов под оборудование и перекрытия каналов. План каналов План фундаментов под оборудование и план каналов. Разрезы. Спецификации Резервуар для нейтрализационного раствора. Опалубка. Армирование Маркировочная схема колонн и балок покрытия Маркировочная схема стеновых панелей по осям "А", "В", "7", "1" Маркировочная схема стеновых панелей. Фрагменты 1 - 14 Маркировочная схема стеновых панелей. Спецификации (для варианта питьевых вод) Маркировочная схема стеновых панелей. Спецификации (для варианта сточных вод) Маркировочная схема плит покрытия и перекрытия на отм. 3.300 Монолитные участки перекрытий Ум1 - Ум7 Приточная камера на отм. 3.300. План. Разрезы. Спецификации Опалубочные чертежи колонн К1 - К4 и балок покрытия Б-1 - Б-3 Скруббер Закладные детали Конструкции металлические Общие данные Маркировочная схема площадок и лестниц. Узлы. Спецификации Маркировочная схема подвесных путей Маркировочная схема подвесных путей. Узлы 1 - 6 Труба. Узлы. Сечения. Фундаменты под трубу. Спецификации Ворота. Рама проема ворот. Рама полотна ворот. Металлические элементы. Спецификация металла Ворота. Металлические элементы. Спецификация металла |
| Разработан: | ЦНИИЭП |
| Утверждён: | 12.03.1979 Госгражданстрой (Gosgrazhdanstroy 56) |
| Заменяет собой: |
|
| Чем заменён: |








































