Скачать Типовой проект 704-1-57 Альбом IV. Оборудование резервуара с понтоном для нефти и бензинаДата актуализации: 01.01.2021
|
| Обозначение: | Типовой проект 704-1-57 |
| Обозначение англ: | 704-1-57 |
| Статус: | действует |
| Название рус.: | Альбом IV. Оборудование резервуара с понтоном для нефти и бензина |
| Дата добавления в базу: | 01.10.2014 |
| Дата актуализации: | 01.01.2021 |
| Дата введения: | 29.12.1969 |
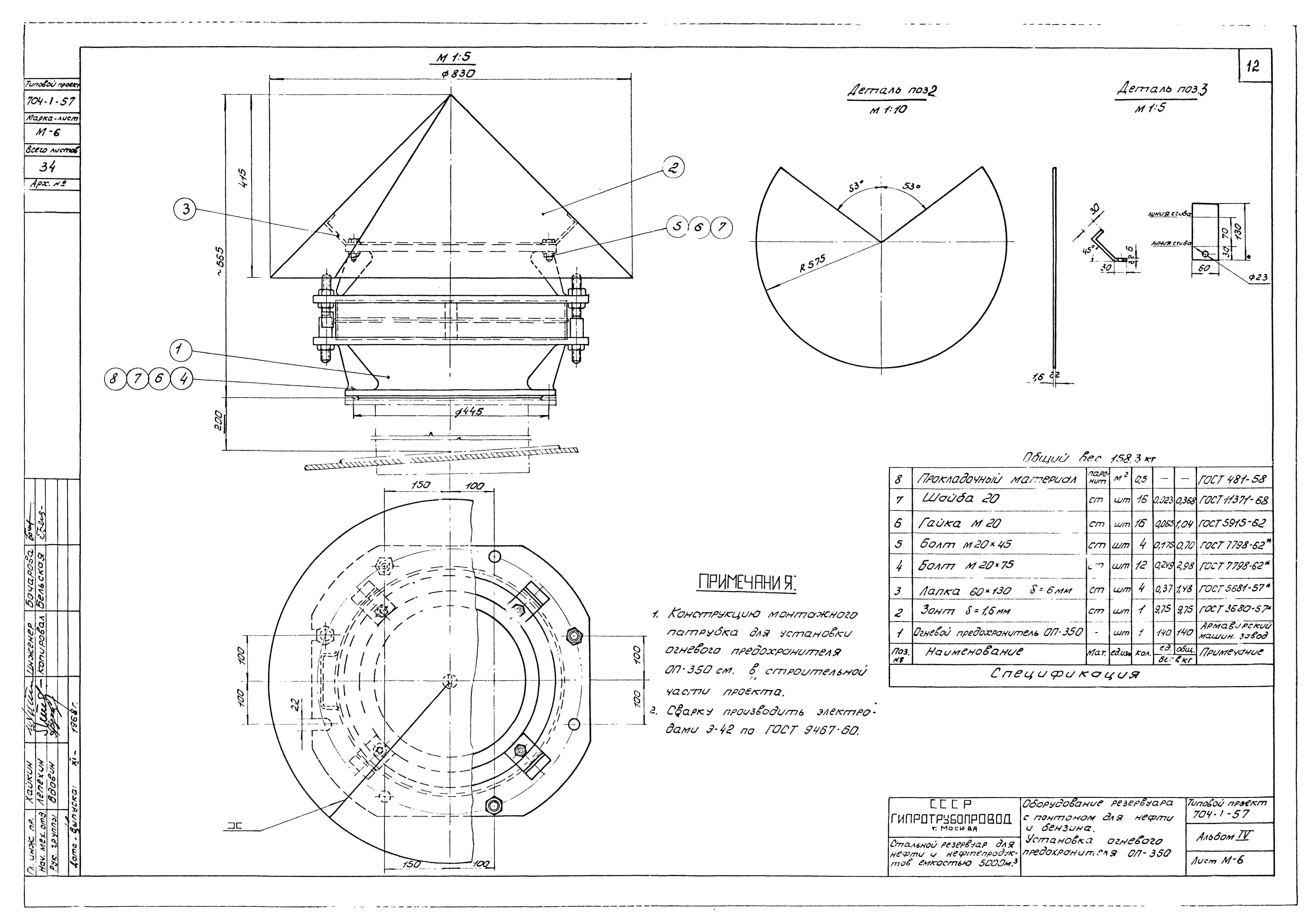
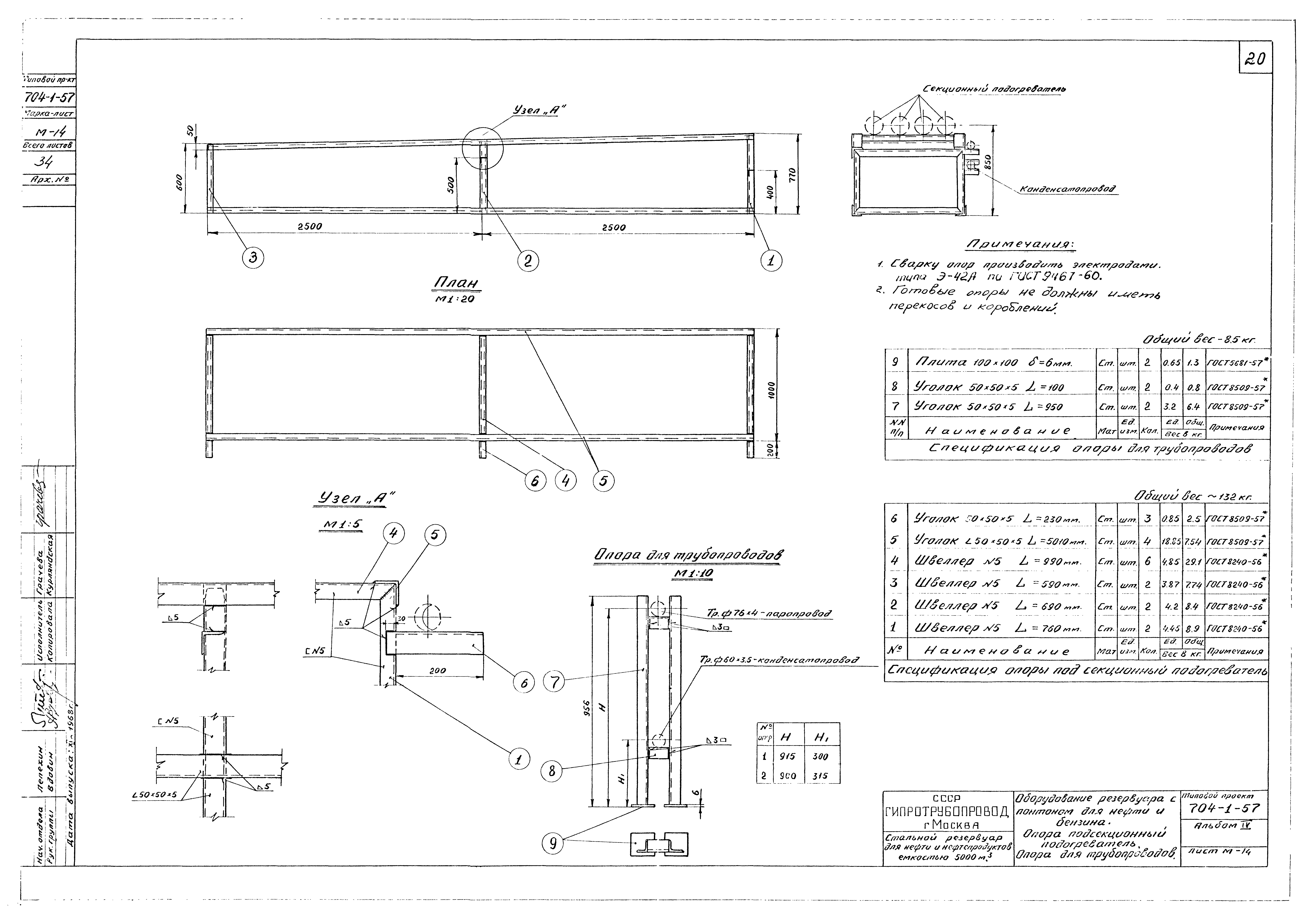
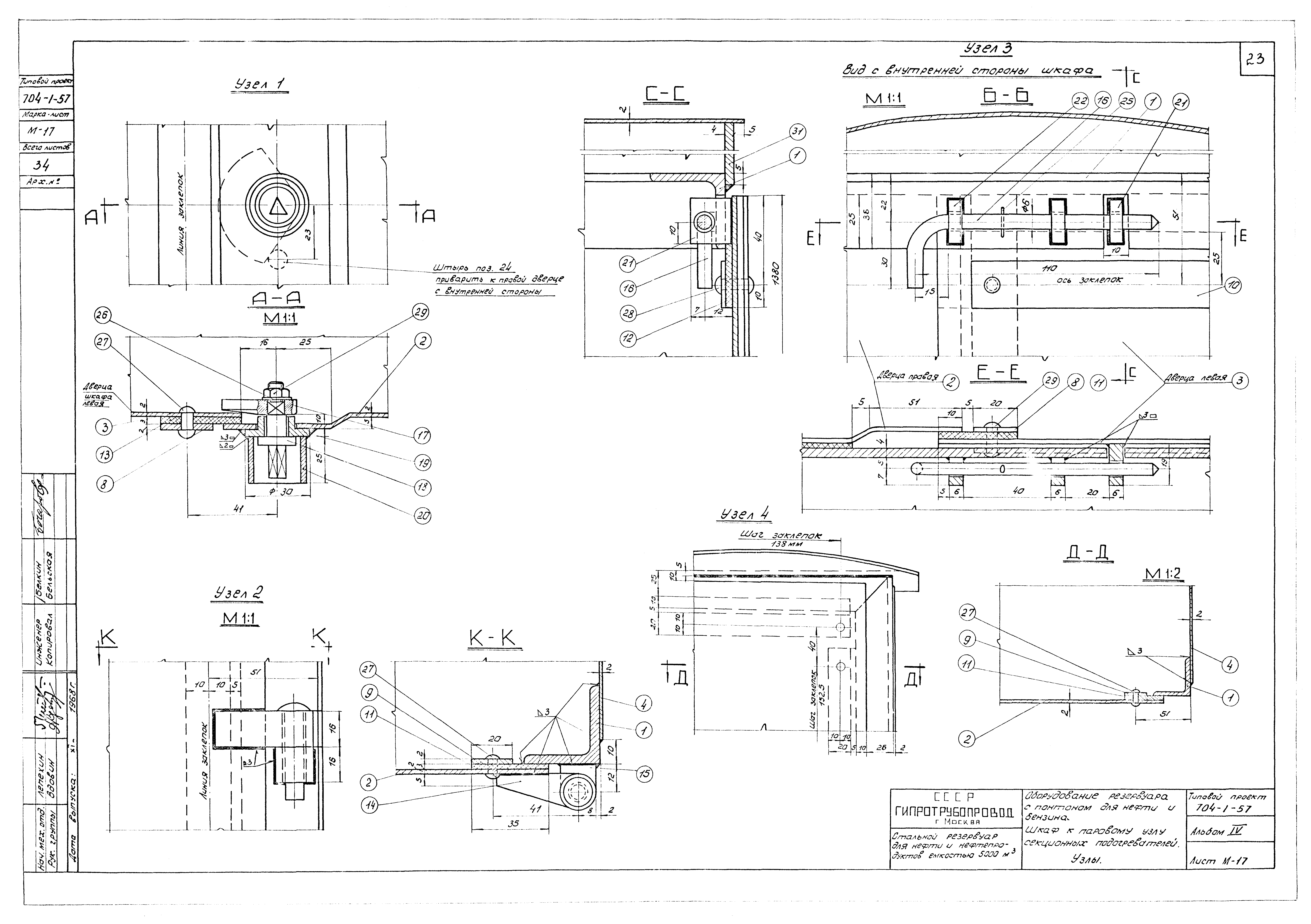
| Оглавление: | Содержание альбома Пояснительная записка Общий вид оборудования резервуара Спецификация Установка приемо-раздаточного патрубка Ду350. Узел "А" Установка приемо-раздаточного патрубка Ду400. Узел "А" Установка приемо-раздаточного патрубка Ду500. Узел "А" Установка огневого предохранителя ОП-350 Установка огневого предохранителя ОП-400 Установка огневого предохранителя ОП-500 Установка винтовых мешалок Подогревательная система и система предотвращения выпадения осадков Общий вид "размывающей головки" Опора скользящая под трубу Ду300 Подогреватель секционный Опора под секционный подогреватель. Опора для трубопроводов Узел ввода теплоносителя Шкаф к паровому узлу секционных подогревателей. Общий вид Шкаф к паровому узлу секционных подогревателей. Узлы Шкаф к паровому узлу секционных подогревателей. Детали Принципиальная схема стационарной установки пеногенераторов типа ГВП Принципиальная схема автоматизации для резервуара с подогревом Принципиальная схема автоматизации для резервуара без подогрева Установка указателя уровня УДУ-5 Установка пробоотборника ПСР-7 Грозозащита и защита от статического электричества. Общий вид Грозозащита и защита от статического электричества. Детали Принципиальная схема управления электродвигателем хлопушки |
| Разработан: | ЦНИИпроектстальконструкция |
| Утверждён: | 29.12.1969 ЦНИИпроектстальконструкция (TsNIIprojectstalkonstruktsiya 221) ЦНИИпроектстальконструкция им.Н.П.Мельникова |


































