Скачать Типовой проект 704-1-58 Альбом I. Рабочие чертежи КМ резервуараДата актуализации: 01.01.2021
|
| Обозначение: | Типовой проект 704-1-58 |
| Обозначение англ: | 704-1-58 |
| Статус: | действует |
| Название рус.: | Альбом I. Рабочие чертежи КМ резервуара |
| Дата добавления в базу: | 01.10.2014 |
| Дата актуализации: | 01.01.2021 |
| Дата введения: | 19.10.1970 |
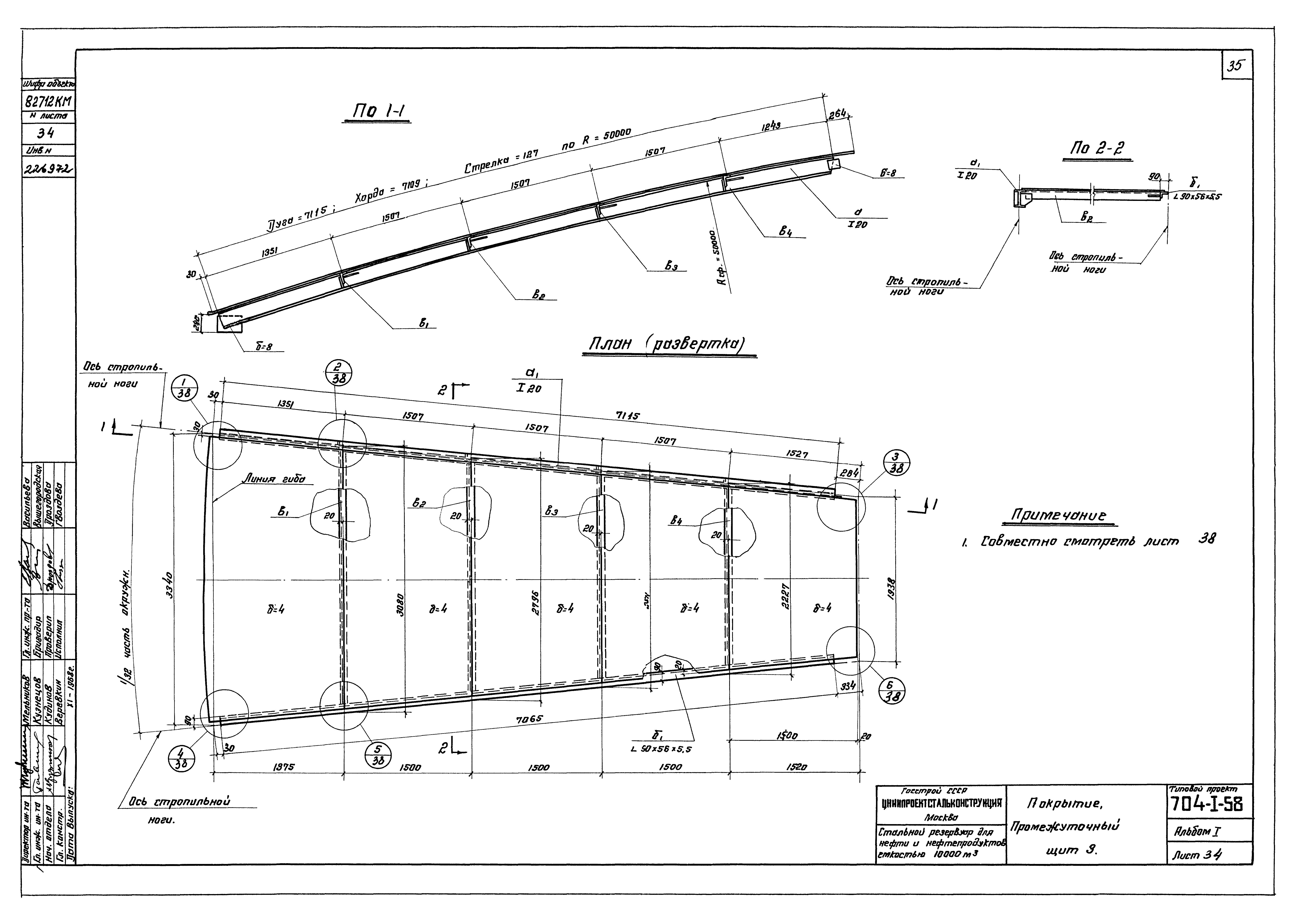
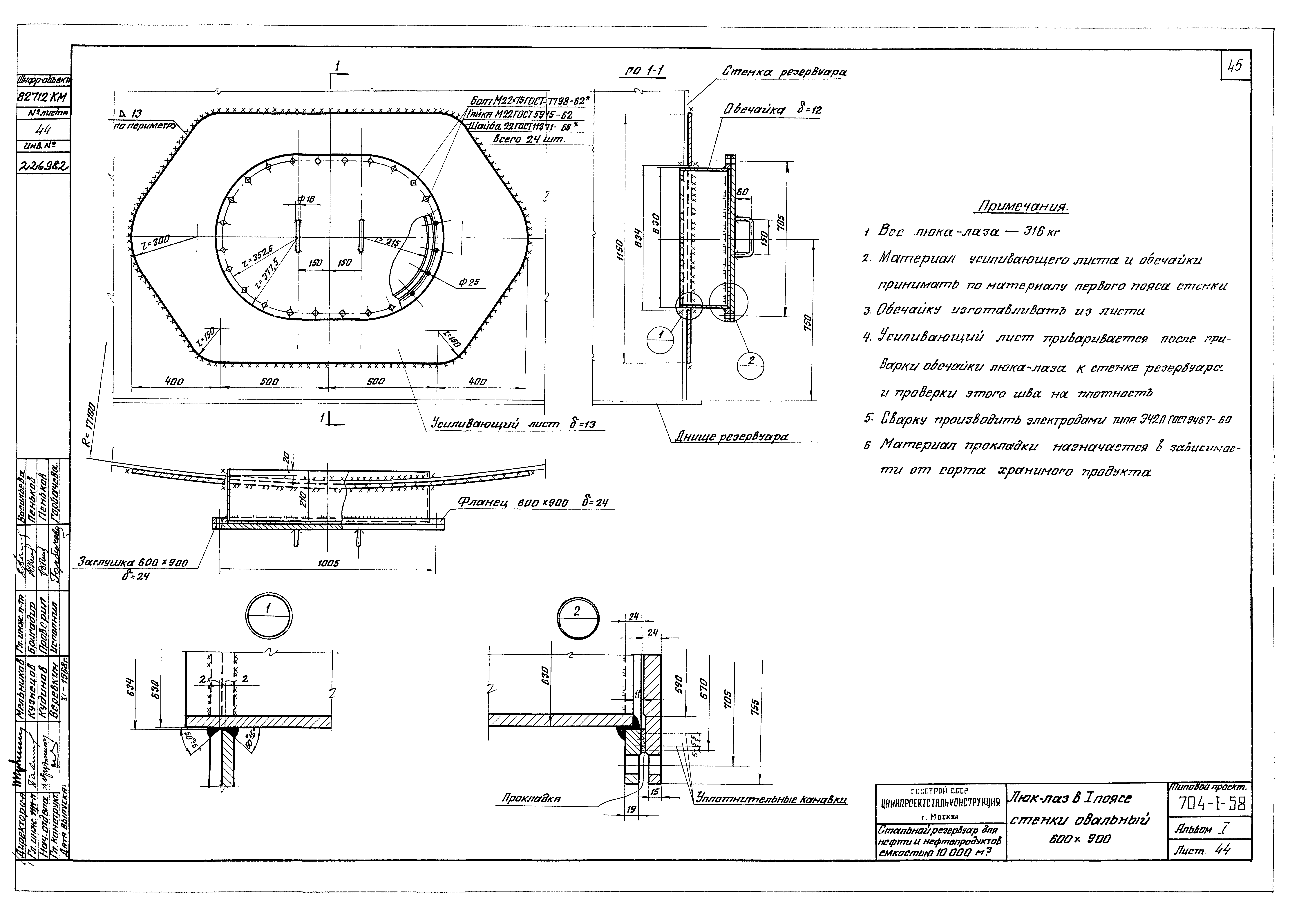
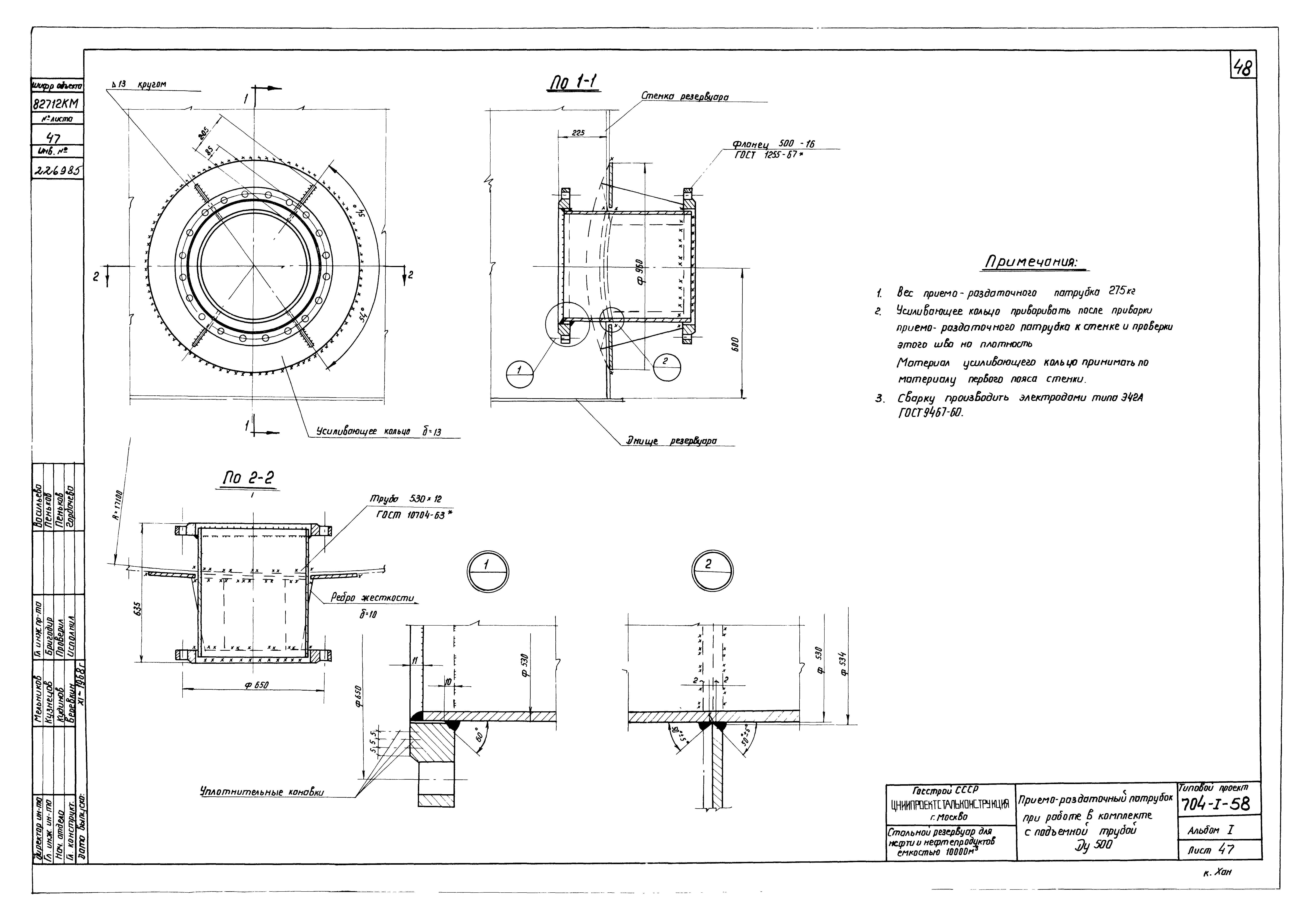
| Оглавление: | Содержание альбома Пояснительная записка Техническая спецификация стали для районов со снеговой нагрузкой до 100 кг/кв. м и ветровой нагрузкой до 45 кг/кв. м Техническая спецификация стали для районов со снеговой нагрузкой до 100 кг/кв. м и ветровой нагрузкой свыше 45 кг/кв. м до 55 кг/кв. м Техническая спецификация стали для районов со снеговой нагрузкой до 100 кг/кв. м и ветровой нагрузкой свыше 55 кг/кв. м до 70 кг/кв. м Техническая спецификация стали для районов со снеговой нагрузкой до 100 кг/кв. м и ветровой нагрузкой свыше 70 кг/кв. м до 100 кг/кв. м Техническая спецификация стали для районов: а) со снеговой нагрузкой свыше 100 кг/кв. м до 150 кг/кв. м и ветровой до 45 кг/кв. м; б) со снеговой нагрузкой свыше 150 кг/кв. м до 200 кг/кв. м и ветровой до 35 кг/кв. м Техническая спецификация стали для районов: а) со снеговой нагрузкой свыше 100 кг/кв. м до 150 кг/кв. м и ветровой свыше 45 кг/кв. м до 55 кг/кв. м; б) со снеговой нагрузкой свыше 150 кг/кв. м до 200 кг/кв. м и ветровой свыше 35 кг/кв. м до 55 кг/кв. м Техническая спецификация стали для районов: а) со снеговой нагрузкой свыше 100 кг/кв. м до 150 кг/кв. м и ветровой свыше 55 кг/кв. м до 85 кг/кв. м; б) со снеговой нагрузкой свыше 150 кг/кв. м до 200 кг/кв. м и ветровой свыше 55 кг/кв. м до 85 кг/кв. м Техническая спецификация стали для районов со снеговой нагрузкой свыше 100 кг/кв. м до 150 кг/кв. м и ветровой нагрузкой свыше 85 кг/кв. м до 100 кг/кв. м Техническая спецификация стали для районов со снеговой нагрузкой свыше 150 кг/кв. м до 200 кг/кв. м и ветровой нагрузкой свыше 85 кг/кв. м до 100 кг/кв. м Техническая спецификация на шахтную лестницу, площадки и оборудования Общий вид. Фасад и план Общий вид. Разрез и таблица весовых показателей Днище. План и разрезы Днище. Раскрой листов Стенка Стенка. Вариант с применением низколегированной стали в нижних поясах Опорное кольцо, тип I Опорное кольцо, тип II Опорное кольцо, тип III Опорное кольцо, тип IV Покрытие. Монтажная схема Покрытие. Монтажные узлы Покрытие. Укрупненный щит Покрытие. Центральное кольцо Покрытие. Геометрическая схема щитов Покрытие. Геометрическая схема щитов. Узлы Покрытие. Таблица сечений и расчетных усилий элементов щитов Покрытие. Начальный щит 1 Покрытие. Начальный щит 2 Покрытие. Промежуточный щит 3 Покрытие. Промежуточный щит 4 Покрытие. Замыкающий щит 5 Покрытие. Замыкающий щит 6 Покрытие. Узлы щитов Ограждение и обслуживающие площадки на крыше Площадки на крыше Анкерное устройство резервуаров, работающих под давлением 200 мм водяного столба Люк-лаз в I поясе стенки Dy500 Люк-лаз в I поясе стенки овальный 600х900 Приемо-раздаточный патрубок при работе в комплексе с подъемной трубой Dy400 Приемо-раздаточный патрубок при работе в комплексе с хлопушкой Dy400 Приемо-раздаточный патрубок при работе в комплексе с подъемной трубой Dy500 Приемо-раздаточный патрубок при работе в комплексе с хлопушкой Dy500 Люк монтажный на покрытии Dy1000 Патрубок для установки клапана Dy350 Патрубок замерного люка Dy150 и патрубок сигнализатора уровня СУЖ Dy100 Патрубок для вентиляционного патрубка Dy400, Dy500 |
| Разработан: | ЦНИИпроектстальконструкция |
| Утверждён: | 19.10.1970 ЦНИИпроектстальконструкция (TsNIIprojectstalkonstruktsiya 185) |





















































