Скачать Типовой проект 704-1-58 Альбом II. Рабочие чертежи КМ понтонаДата актуализации: 01.01.2021
|
| Обозначение: | Типовой проект 704-1-58 |
| Обозначение англ: | 704-1-58 |
| Статус: | действует |
| Название рус.: | Альбом II. Рабочие чертежи КМ понтона |
| Дата добавления в базу: | 01.10.2014 |
| Дата актуализации: | 01.01.2021 |
| Дата введения: | 19.10.1970 |
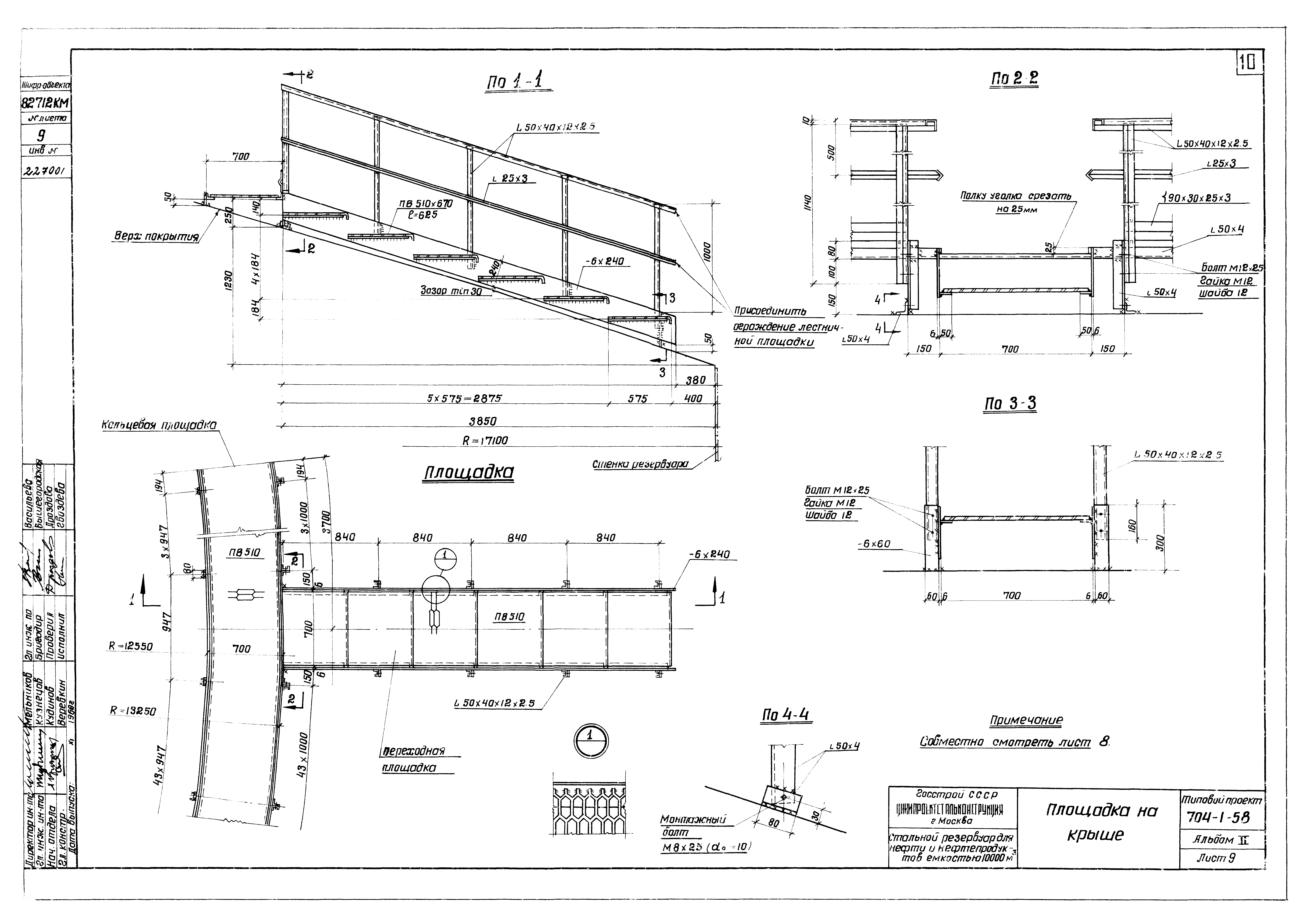
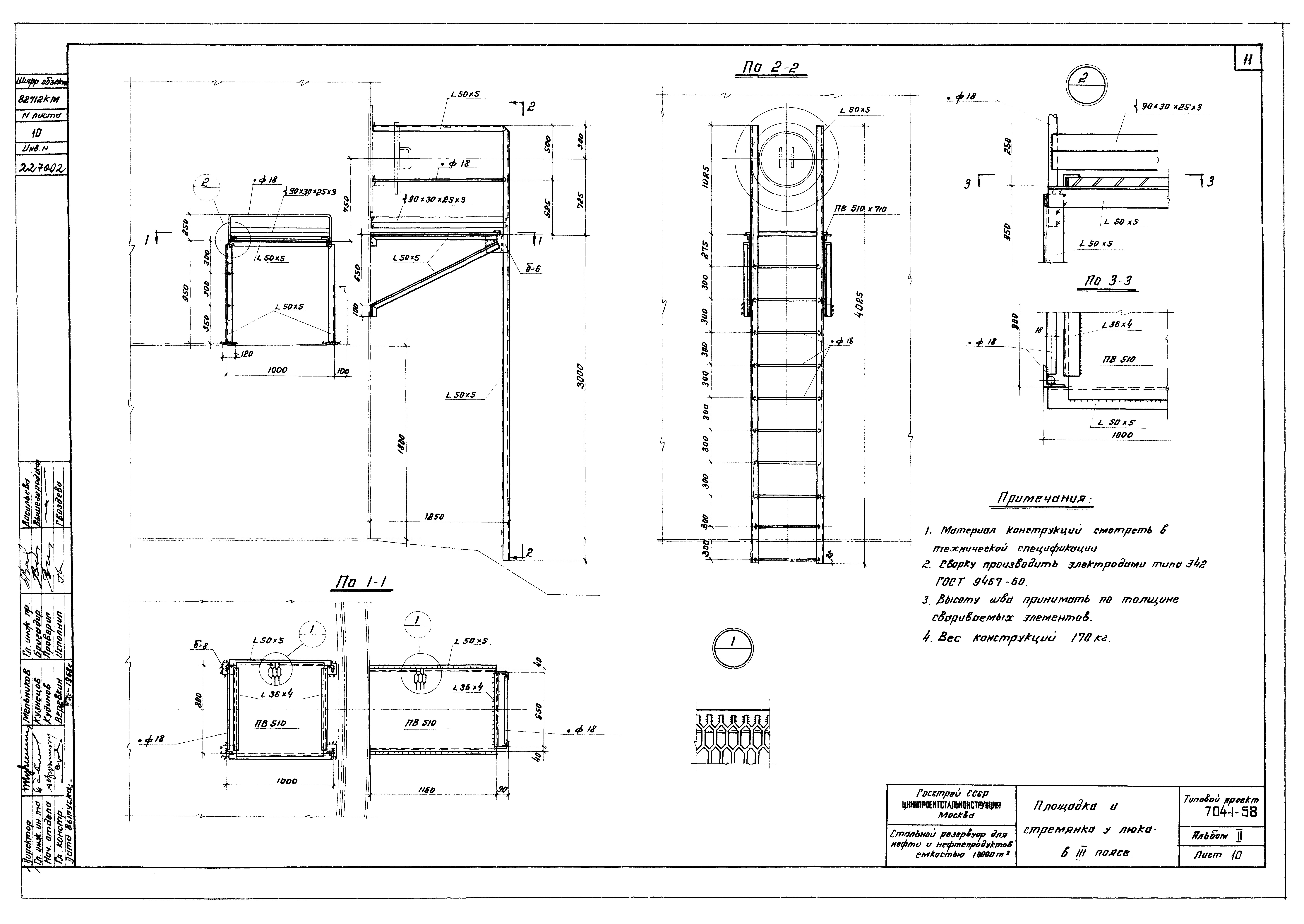
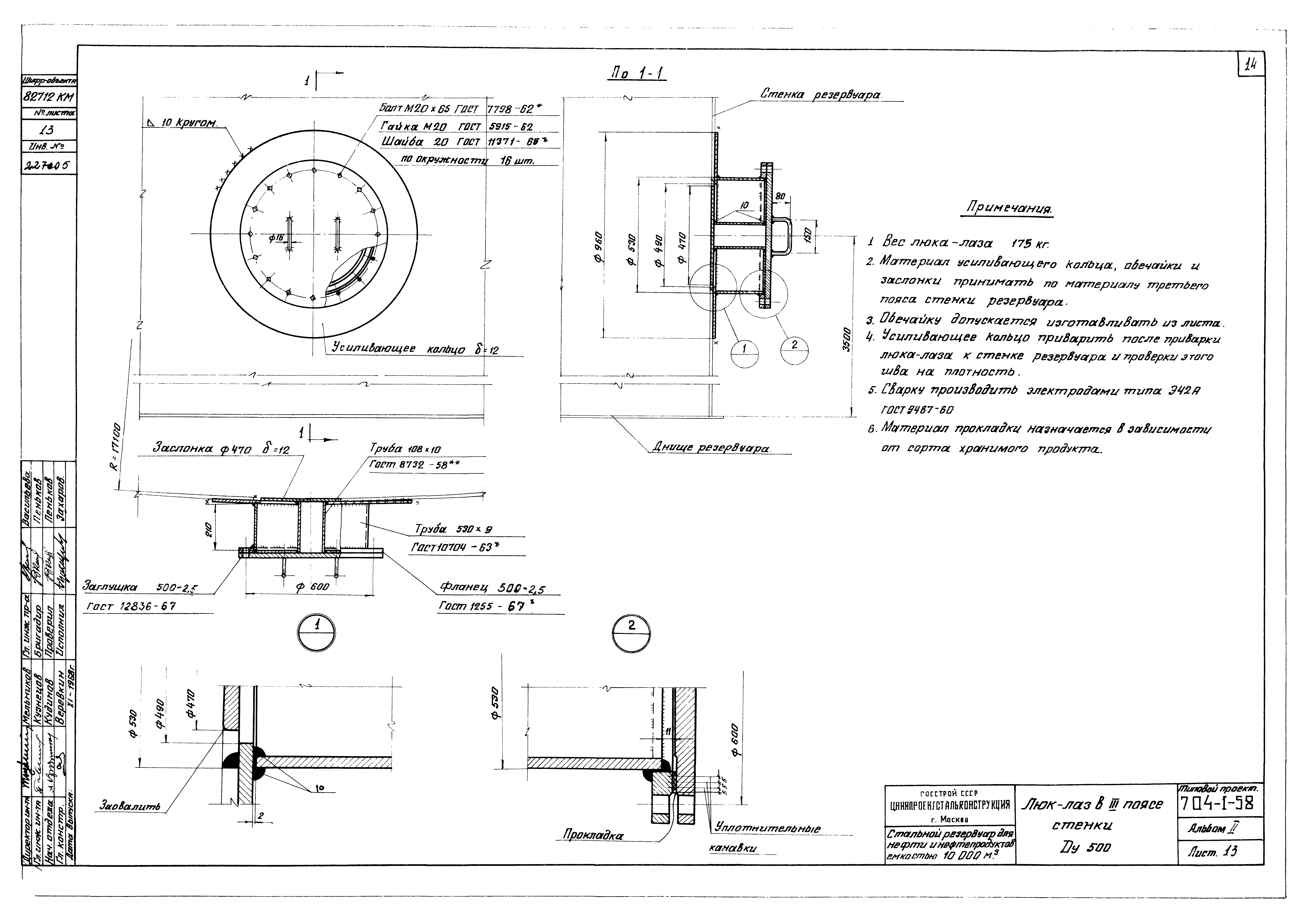
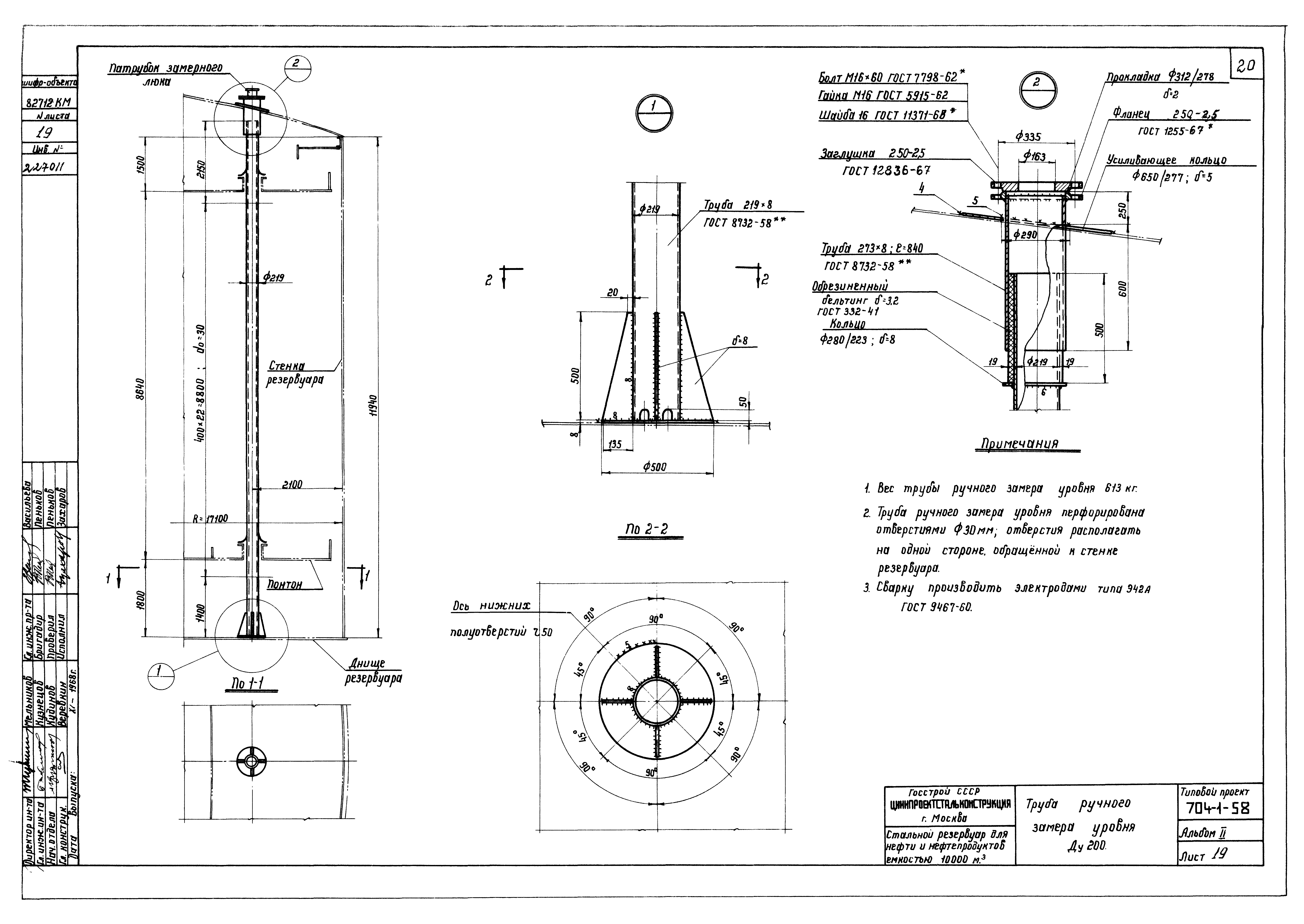
| Оглавление: | Содержание альбома Пояснительная записка Техническая спецификация стали и материалов на понтон Понтон. План и разрез Понтон. Монтажный стык и подкладки под стойки Понтон. Днище Понтон. Детали и узлы Ограждения и обслуживающие площадки на крыше Площадка на крыше Площадка и стремянка у люка в III поясе Площадка и стремянка для обслуживания пеногенератора Люк пробоотборника в I поясе стенки Dy250 Люк-лаз в III поясе стенки Dy500 Патрубок в понтоне для УДУ Dy600 Патрубок в понтоне для кожуха пробоотборника и труба ручного замера Dy350 Люк монтажный на понтоне Dy1000 Патрубок огневого предохранителя Dy500 Кожух пробоотборника Dy200 Труба ручного замера Dy200 Усиление стенки в месте прохода трубы пеногенератора и бортик для удержания гасительной пены Петлевой затвор Техническая спецификация стали на оборудование резервуара с понтоном |
| Разработан: | ЦНИИпроектстальконструкция |
| Утверждён: | 19.10.1970 ЦНИИпроектстальконструкция (TsNIIprojectstalkonstruktsiya 185) |























