Скачать Типовой проект 704-1-58 Альбом V. Оборудование резервуара для светлых нефтепродуктовДата актуализации: 01.01.2021
|
| Обозначение: | Типовой проект 704-1-58 |
| Обозначение англ: | 704-1-58 |
| Статус: | действует |
| Название рус.: | Альбом V. Оборудование резервуара для светлых нефтепродуктов |
| Дата добавления в базу: | 01.10.2014 |
| Дата актуализации: | 01.01.2021 |
| Дата введения: | 19.10.1970 |
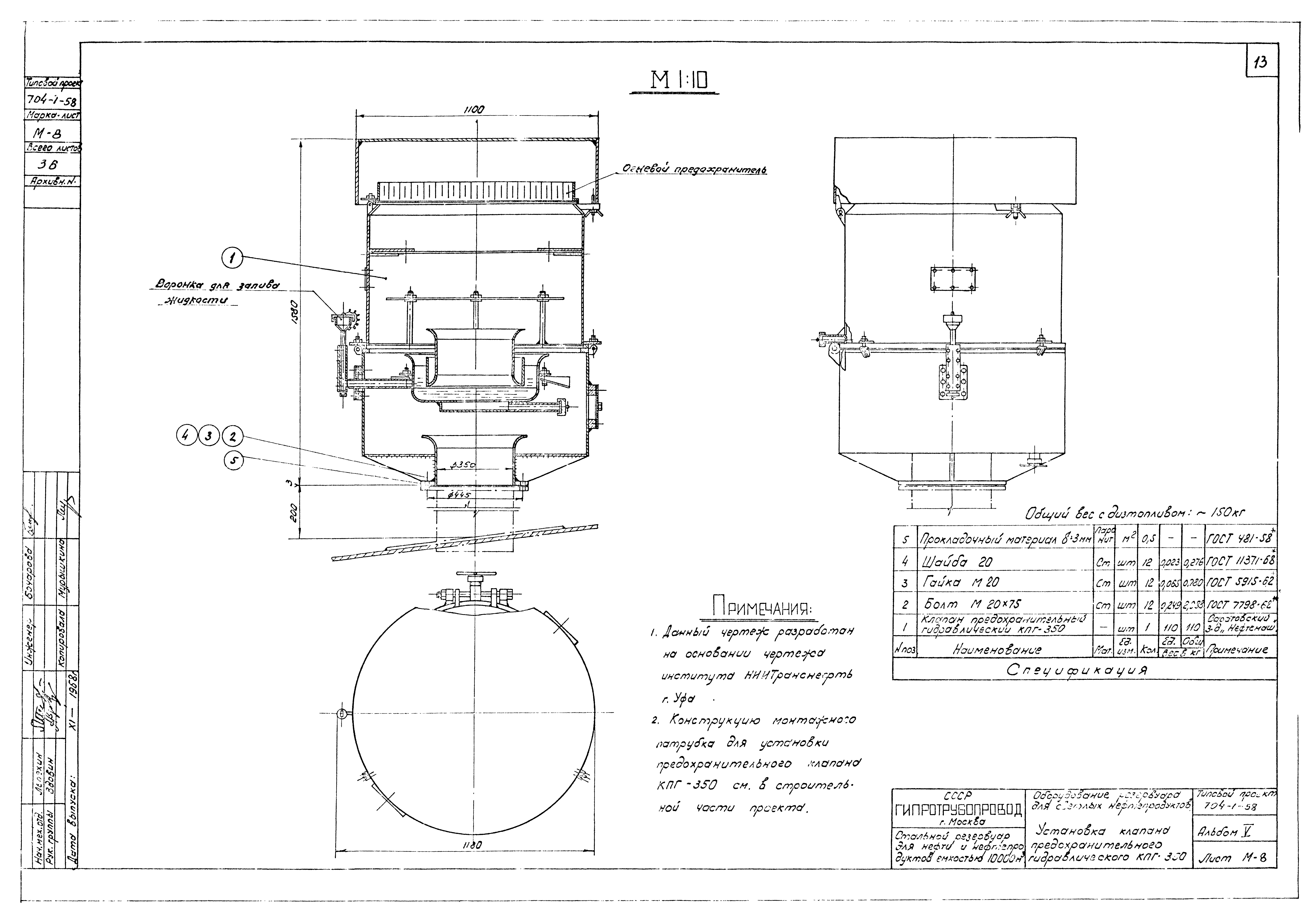
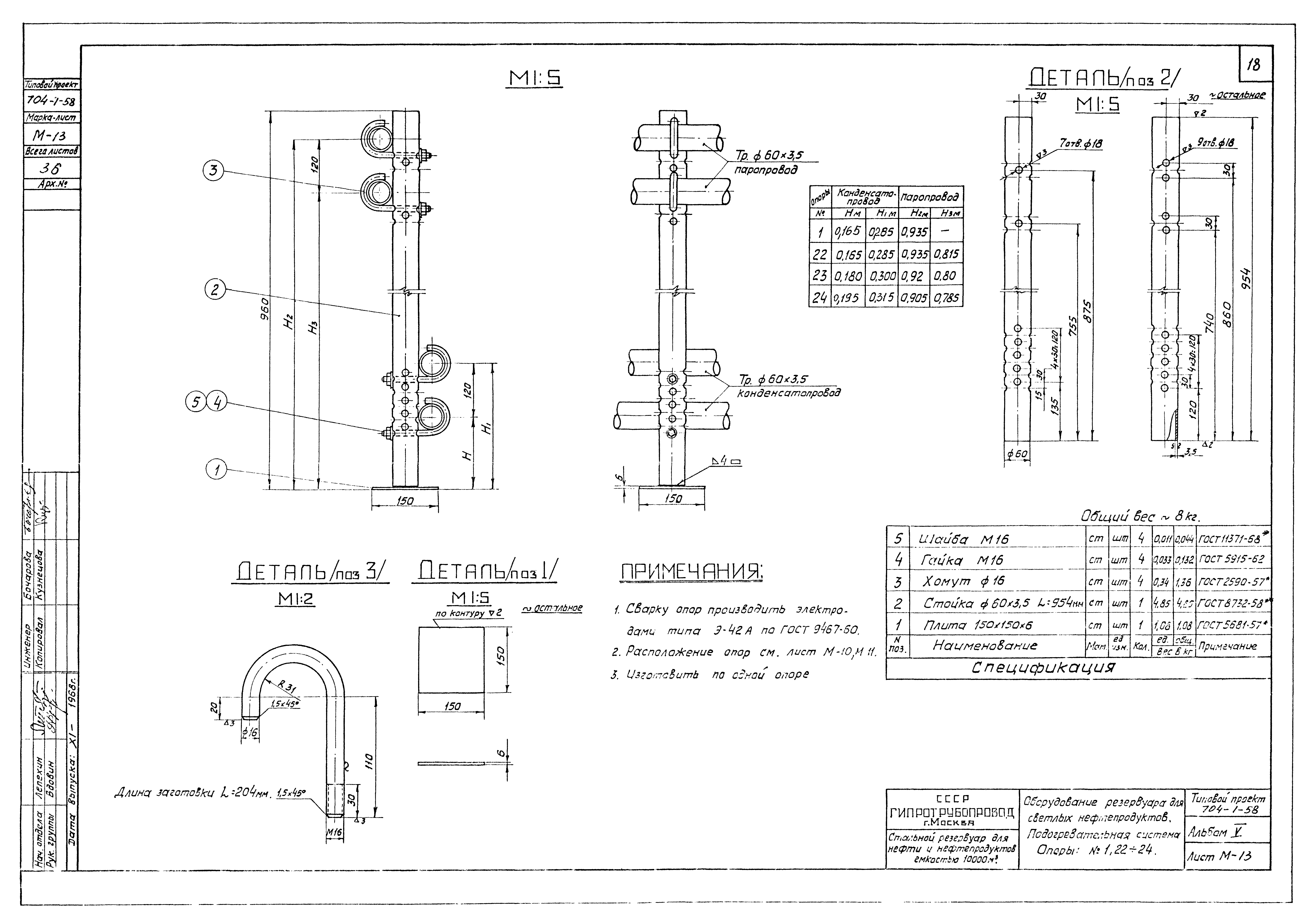
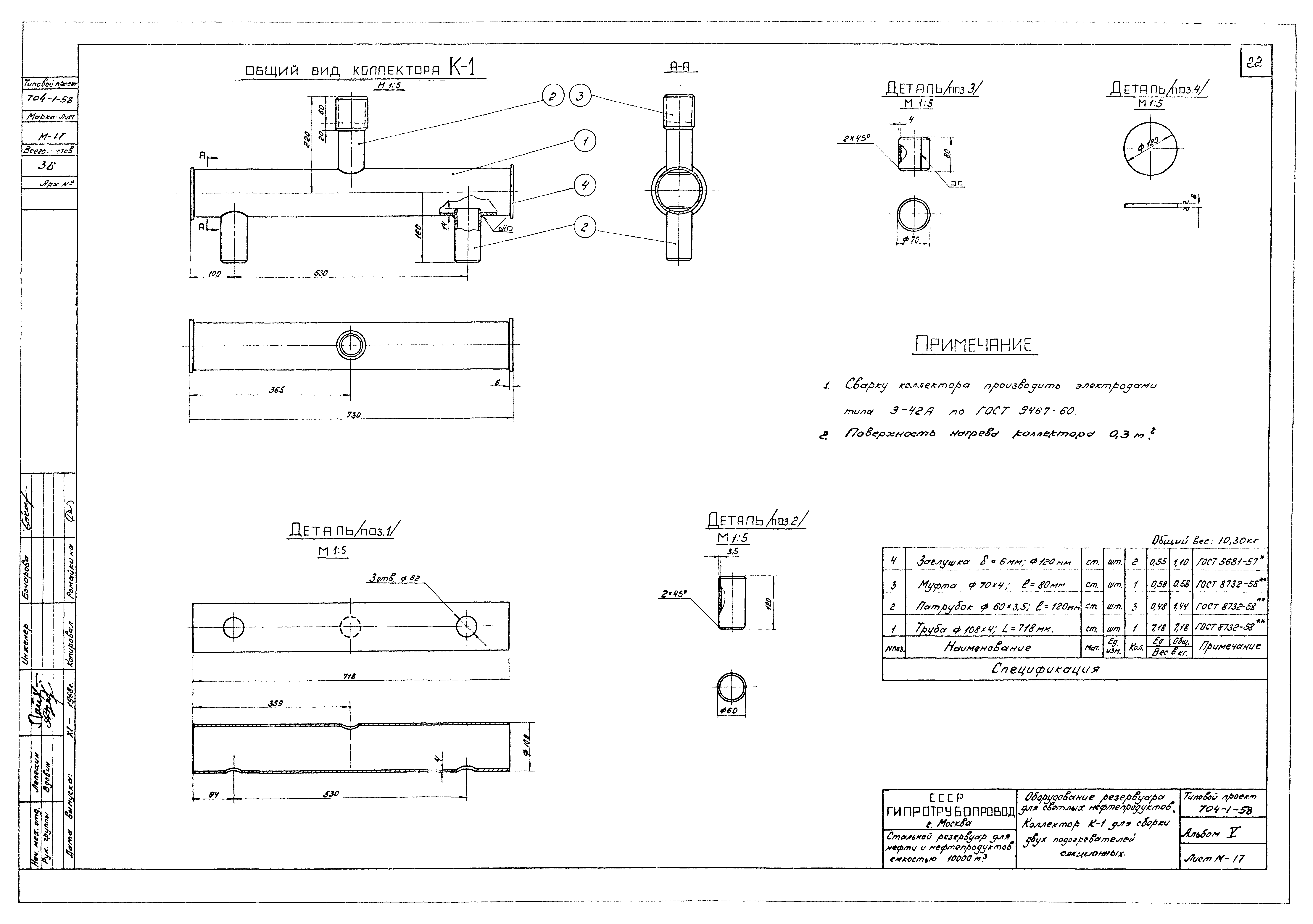
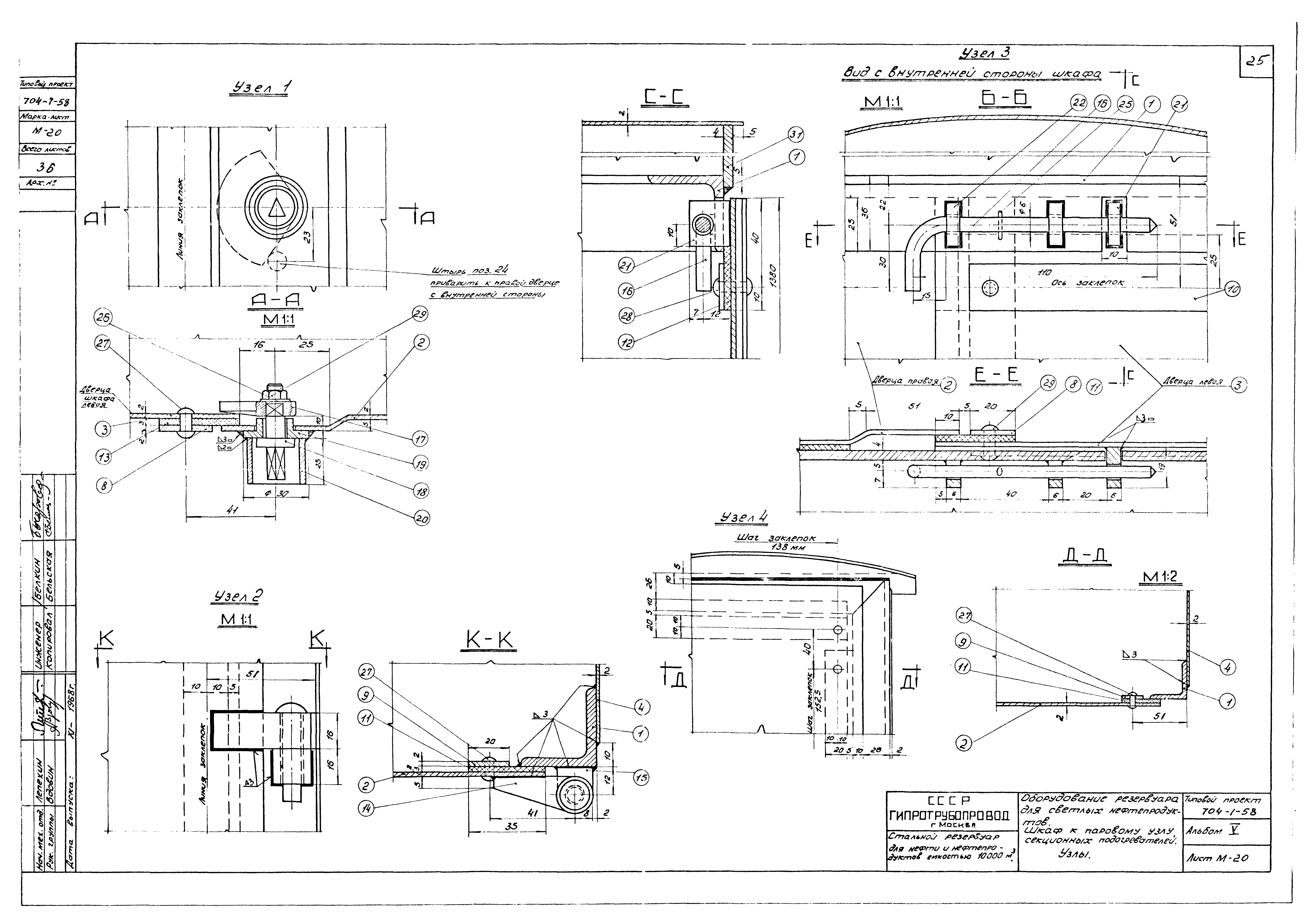
| Оглавление: | Содержание альбома Пояснительная записка Общий вид оборудования резервуара для хранения светлых нефтепродуктов (кроме дизтоплива) Общий вид оборудования резервуара для хранения светлых нефтепродуктов (кроме дизтоплива). Спецификация Общий вид оборудования резервуара для хранения дизтоплива Общий вид оборудования резервуара для хранения дизтоплива. Спецификация Установка приемо-раздаточного патрубка Dy400. Узел "А" Установка приемо-раздаточного патрубка Dy500. Узел "А" Установка клапана непримерзающего двухмембранного НДКМ-350 Установка клапана предохранительного гидравлического КПГ-350 Установка огневого предохранителя ОП-500 с вентиляционным патрубком ВП-500 Подогревательная система поверхностью нагрева F = 93 кв. м Подогревательная система поверхностью нагрева F = 138 кв. м Подогреватель секционный ПС-6 Подогревательная система. Опоры №1; 22 - 24 Подогревательная система. Опоры №2 - 15; 25 - 38 Подогревательная система. Опоры №16 - 21; 39 - 44 Подогревательная система. Опоры №45 - 47 Коллектор К-1 для сборки двух подогревателей секционных Узел ввода теплоносителя Шкаф к паровому узлу секционных подогревателей. Общий вид Шкаф к паровому узлу секционных подогревателей. Узлы Шкаф к паровому узлу секционных подогревателей. Детали Установка кольца орошения Принципиальная схема автоматизации для резервуара с подогревом Принципиальная схема автоматизации для резервуара без подогрева Установка указателя уровня УДУ-5 Установка пробоотборника ПСР-4 Грозозащита и защита от статического электричества. Общий вид Грозозащита. Крепление молниеотвода к корпусу резервуара Принципиальная схема управления электродвигателя хлопушки |
| Разработан: | ЦНИИпроектстальконструкция |
| Утверждён: | 19.10.1970 ЦНИИпроектстальконструкция (TsNIIprojectstalkonstruktsiya 185) |




































