Скачать Шифр М27.26/12 Конструктивные решения наружных стен, перегородок и облицовок, скатных крыш, перекрытий, полов, покрытий, подвесных потолков и фундаментов мелкого заложения с применением минеральных тепло- и звукоизоляционных материалов на основе стекловолокна URSA GEO, PureOne, TERRA и теплоизоляционных материалов из экструдированного пенополистирола URSA XPS. Материалы для проектирования и чертежи узловДата актуализации: 01.01.2021
|
| Обозначение: | Шифр М27.26/12 |
| Обозначение англ: | М27.26/12 |
| Статус: | не определен законодательством |
| Название рус.: | Конструктивные решения наружных стен, перегородок и облицовок, скатных крыш, перекрытий, полов, покрытий, подвесных потолков и фундаментов мелкого заложения с применением минеральных тепло- и звукоизоляционных материалов на основе стекловолокна URSA GEO, PureOne, TERRA и теплоизоляционных материалов из экструдированного пенополистирола URSA XPS. Материалы для проектирования и чертежи узлов |
| Дата добавления в базу: | 01.10.2014 |
| Дата актуализации: | 01.01.2021 |
| Дата введения: | 01.01.2013 |
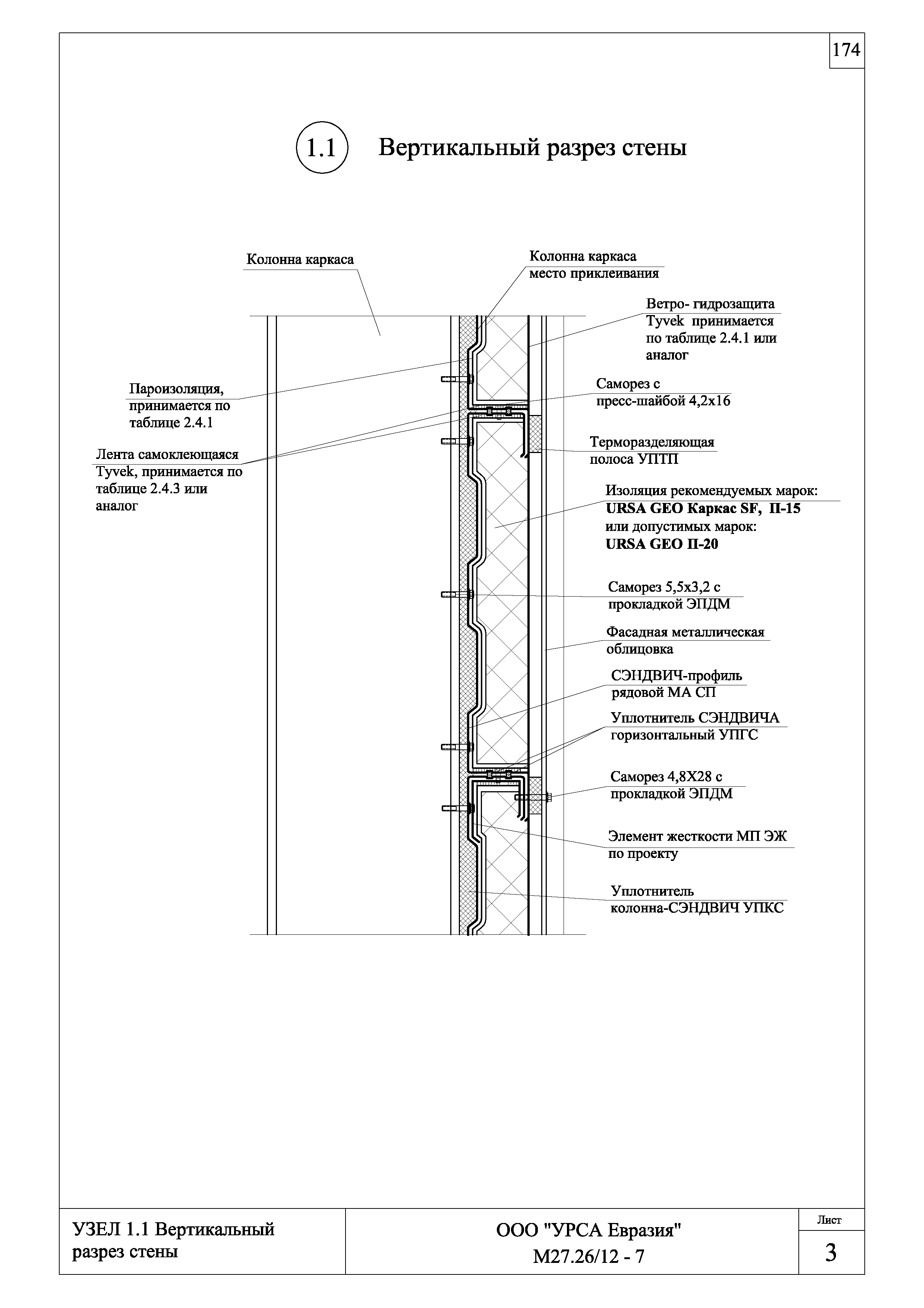
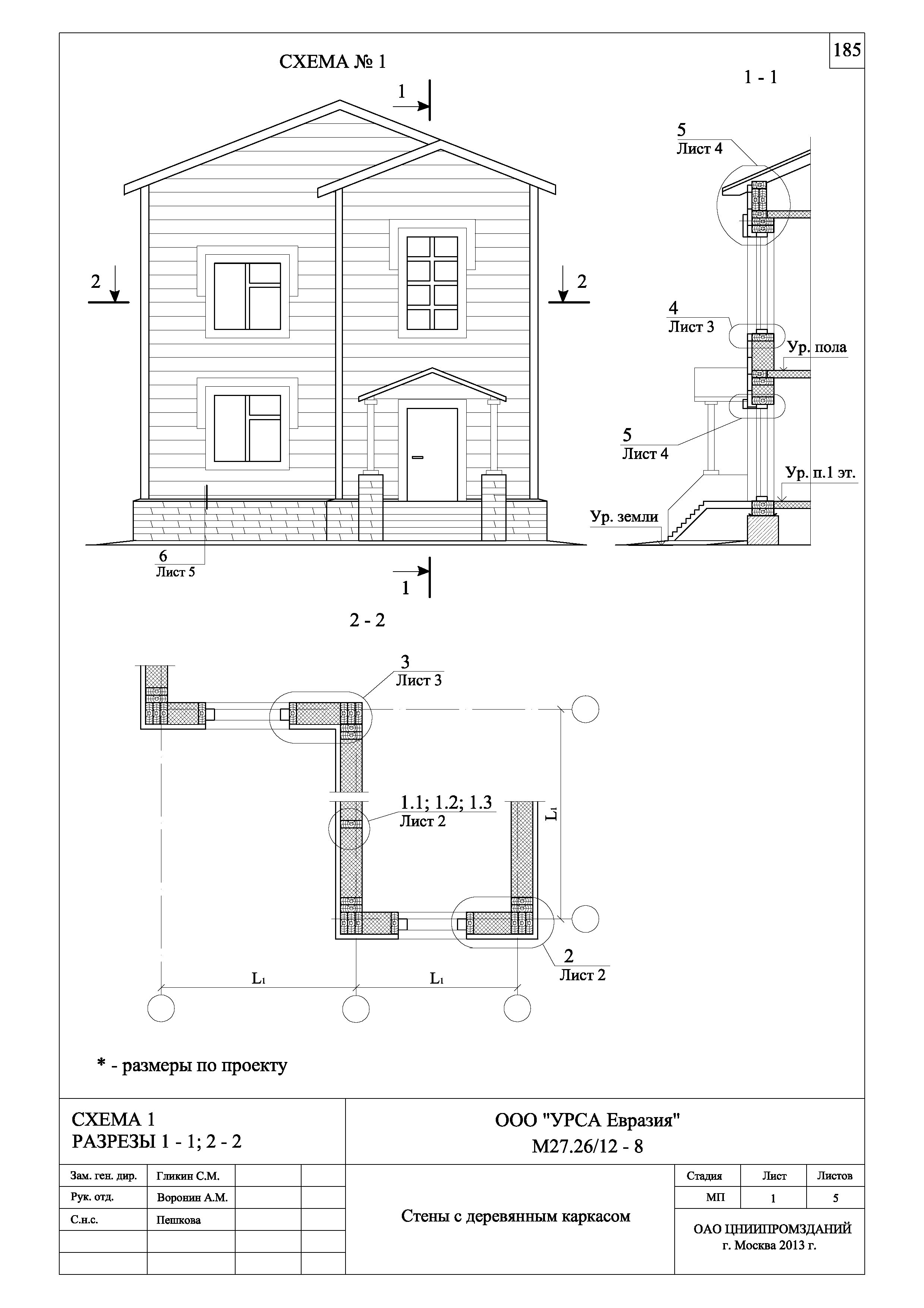
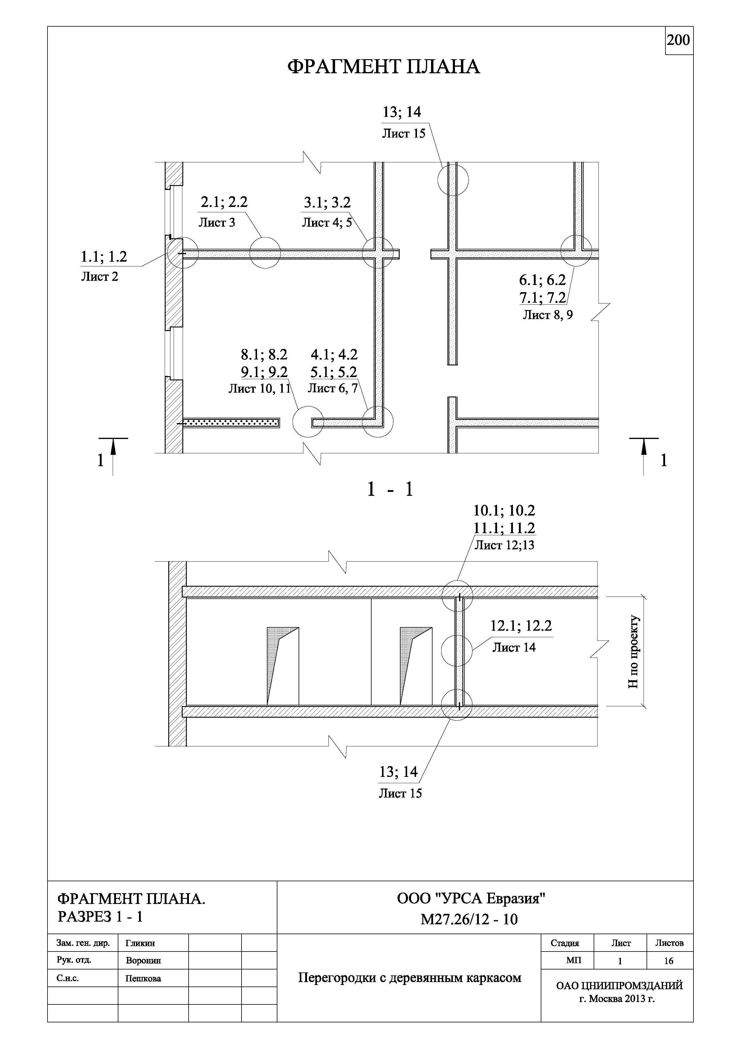
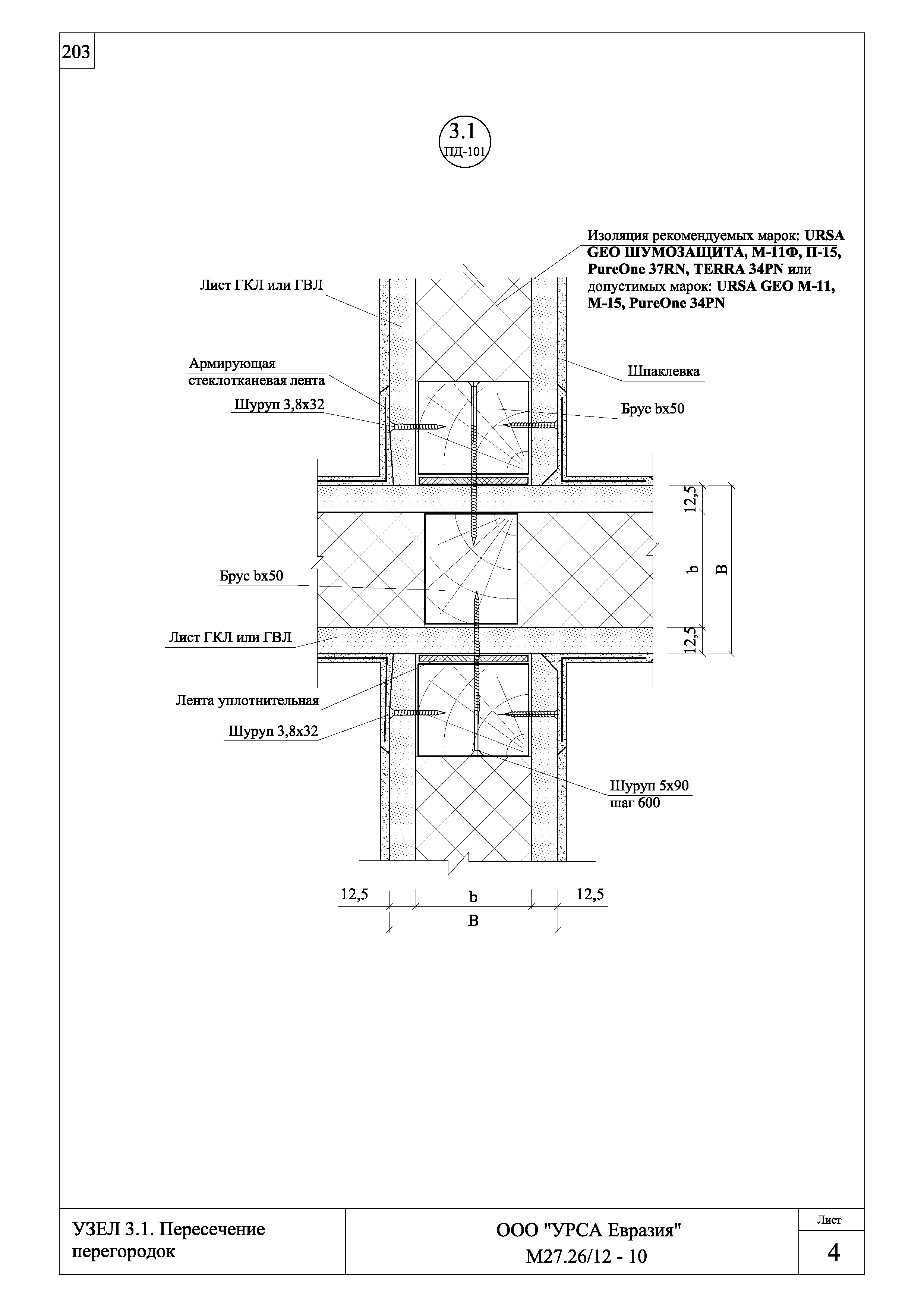
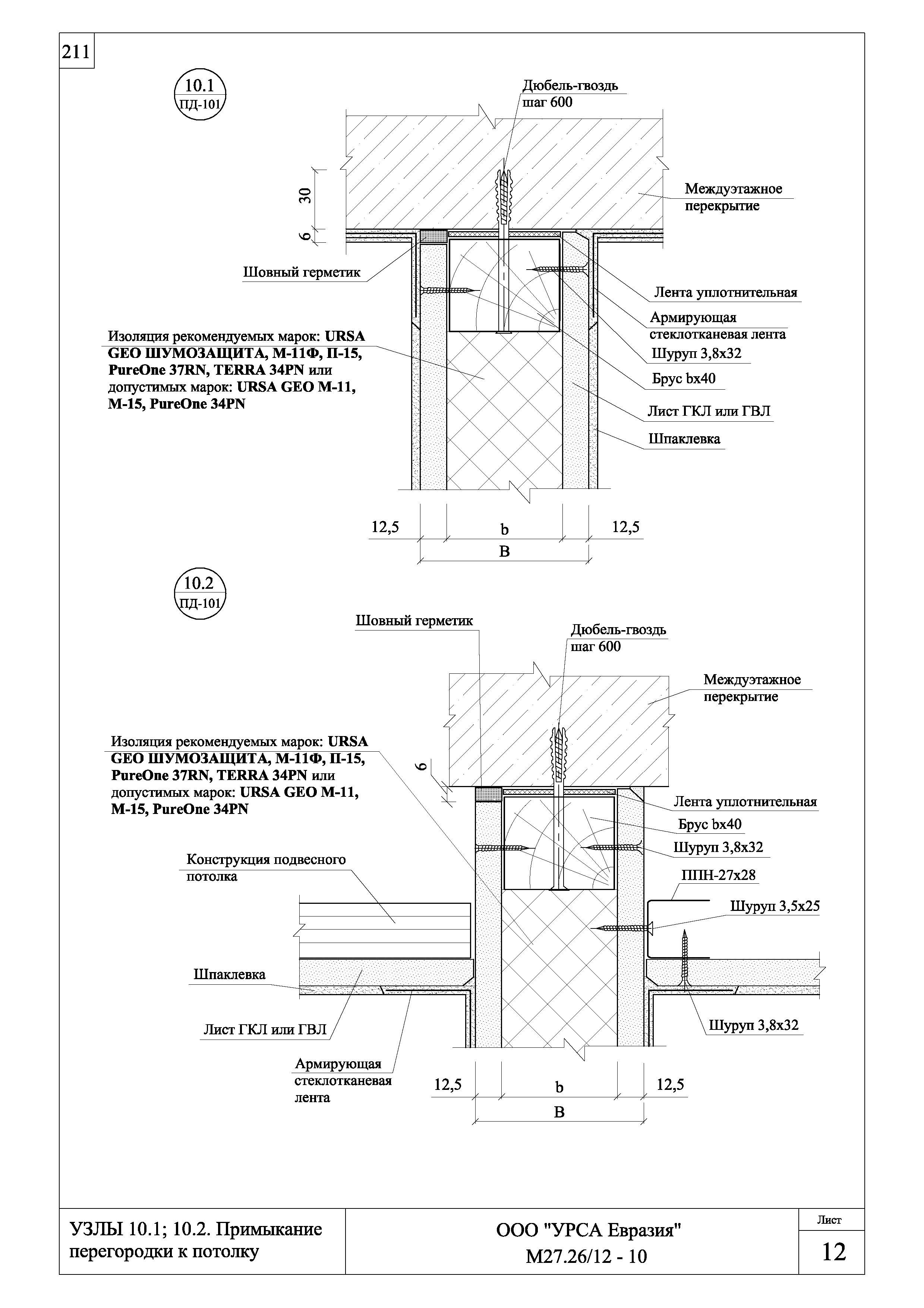
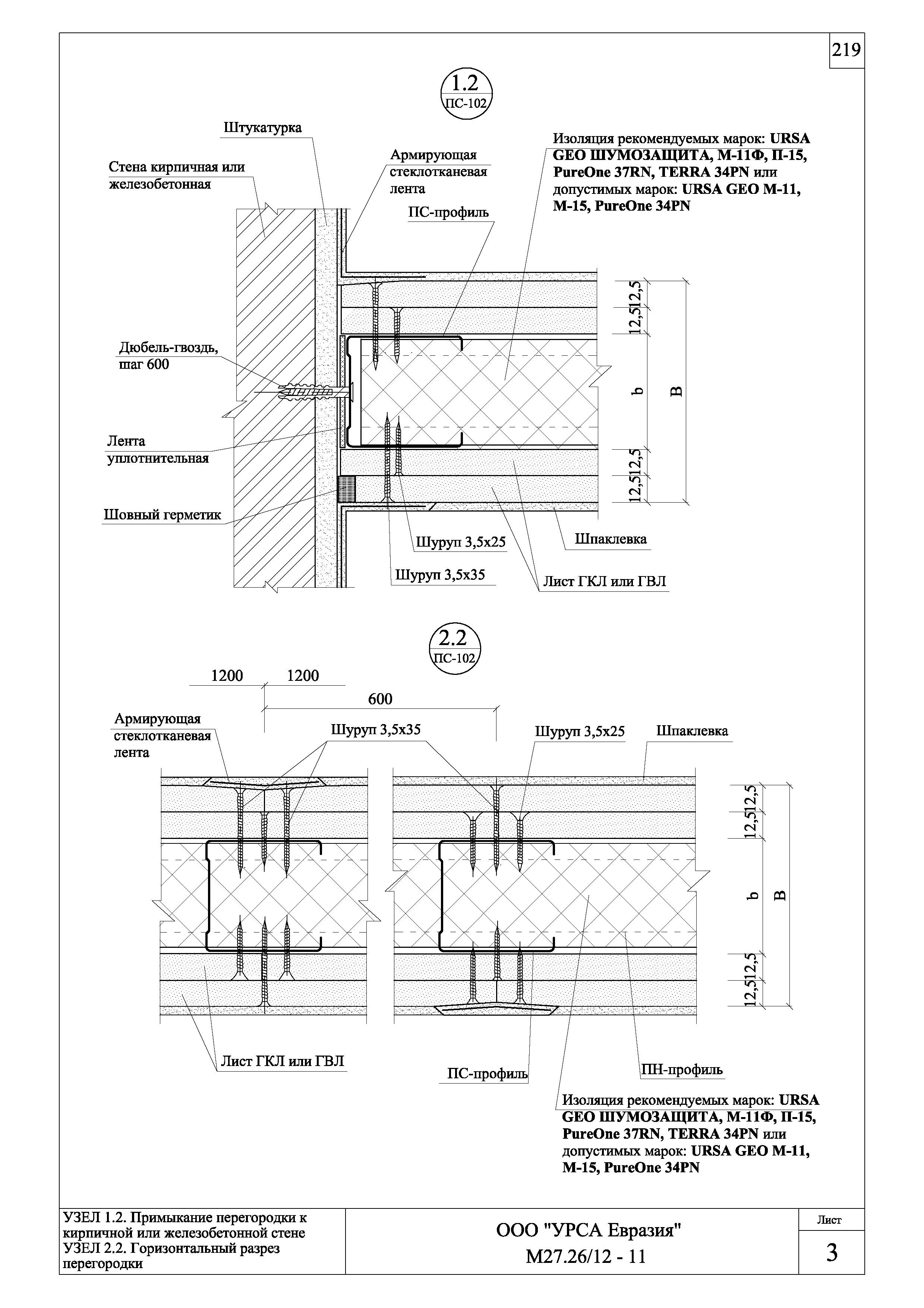
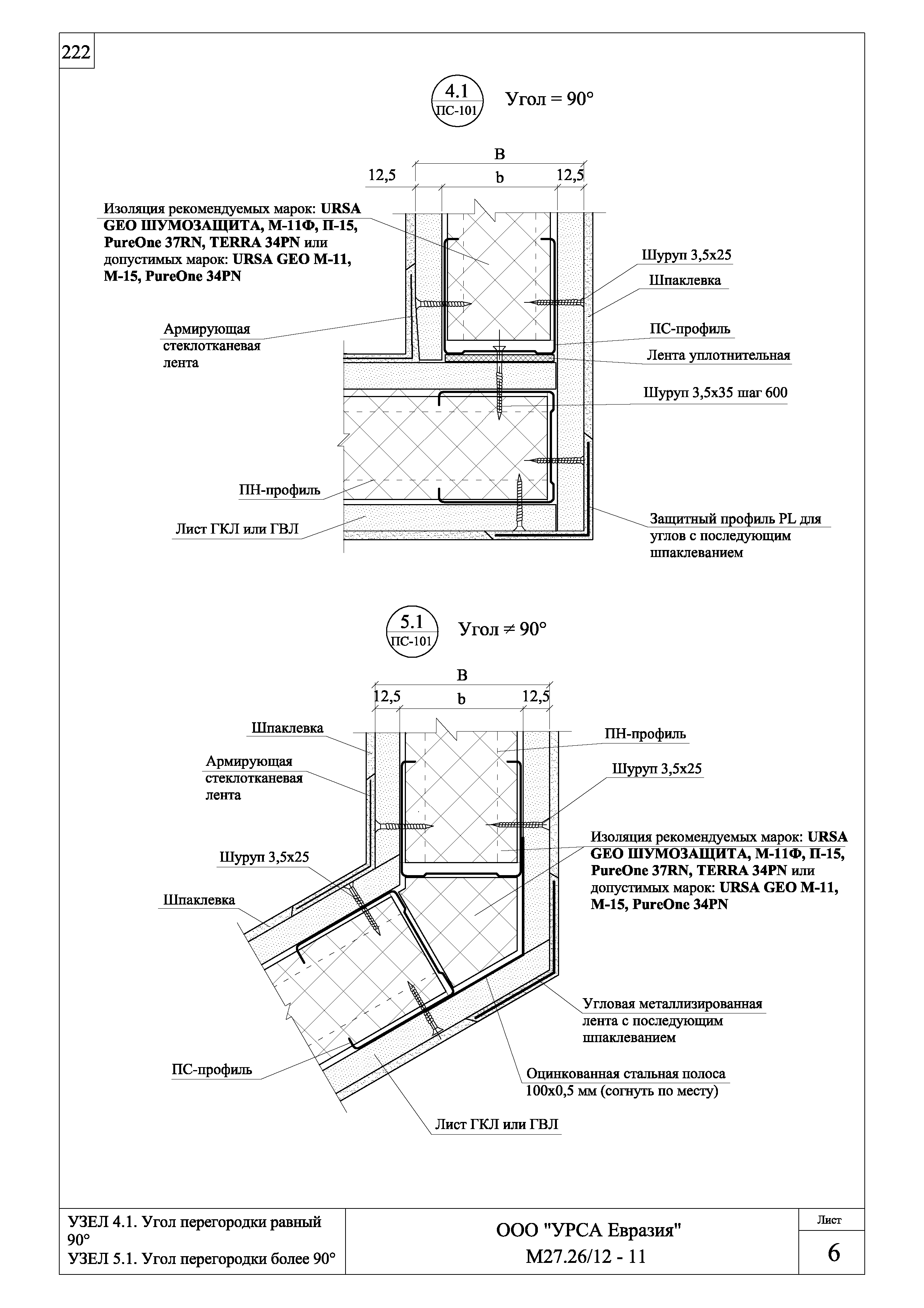
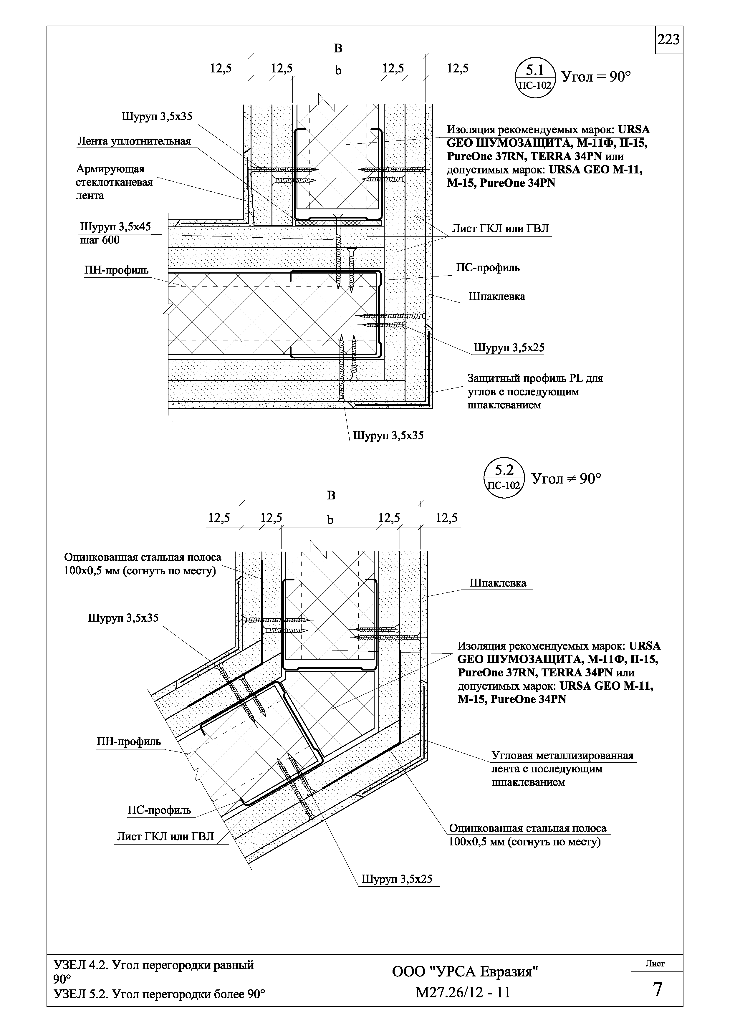
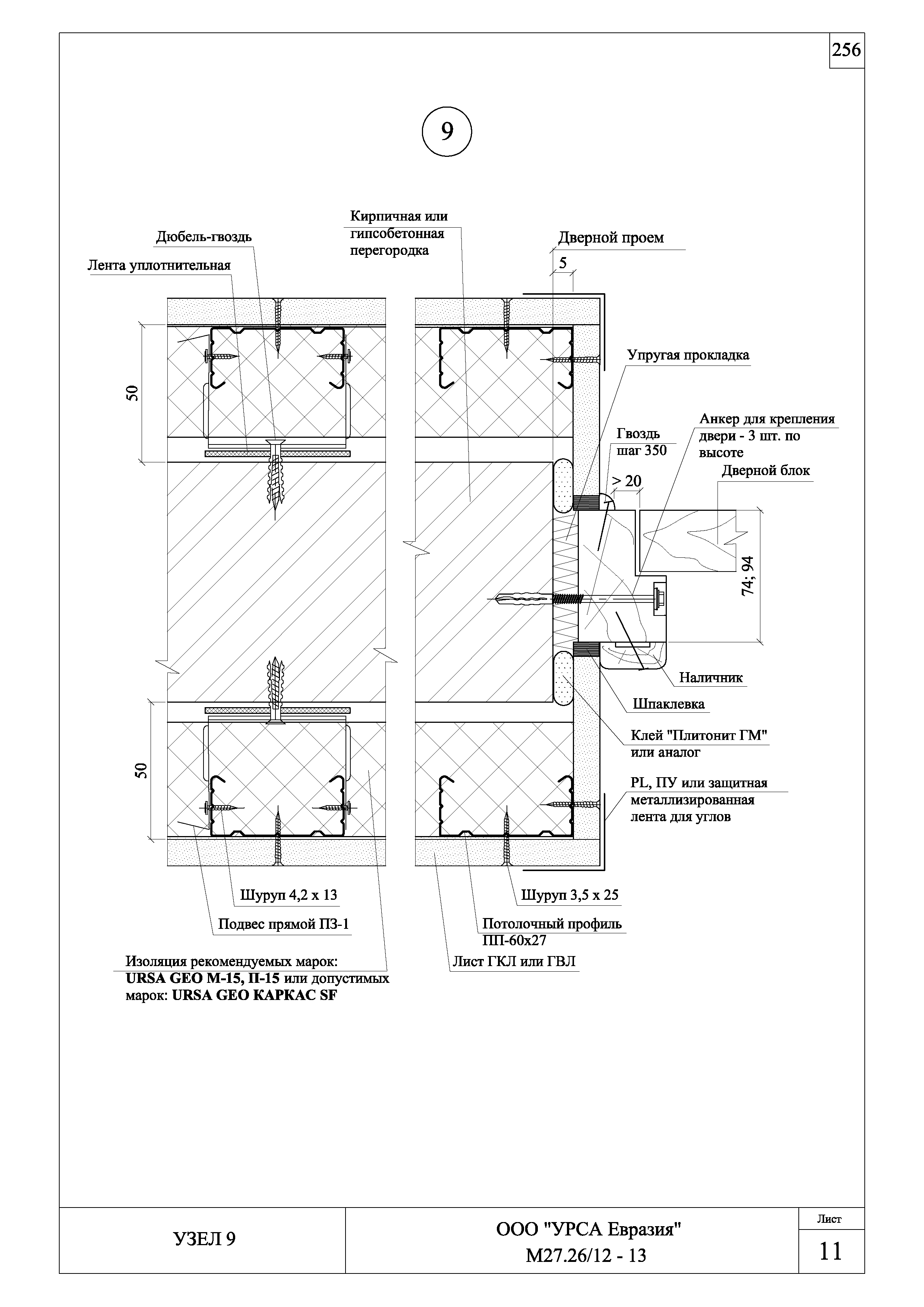
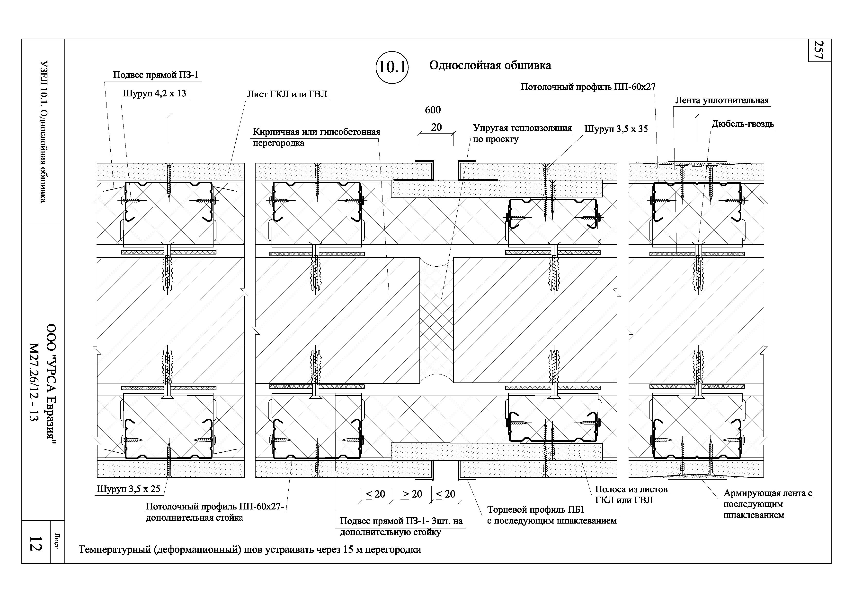
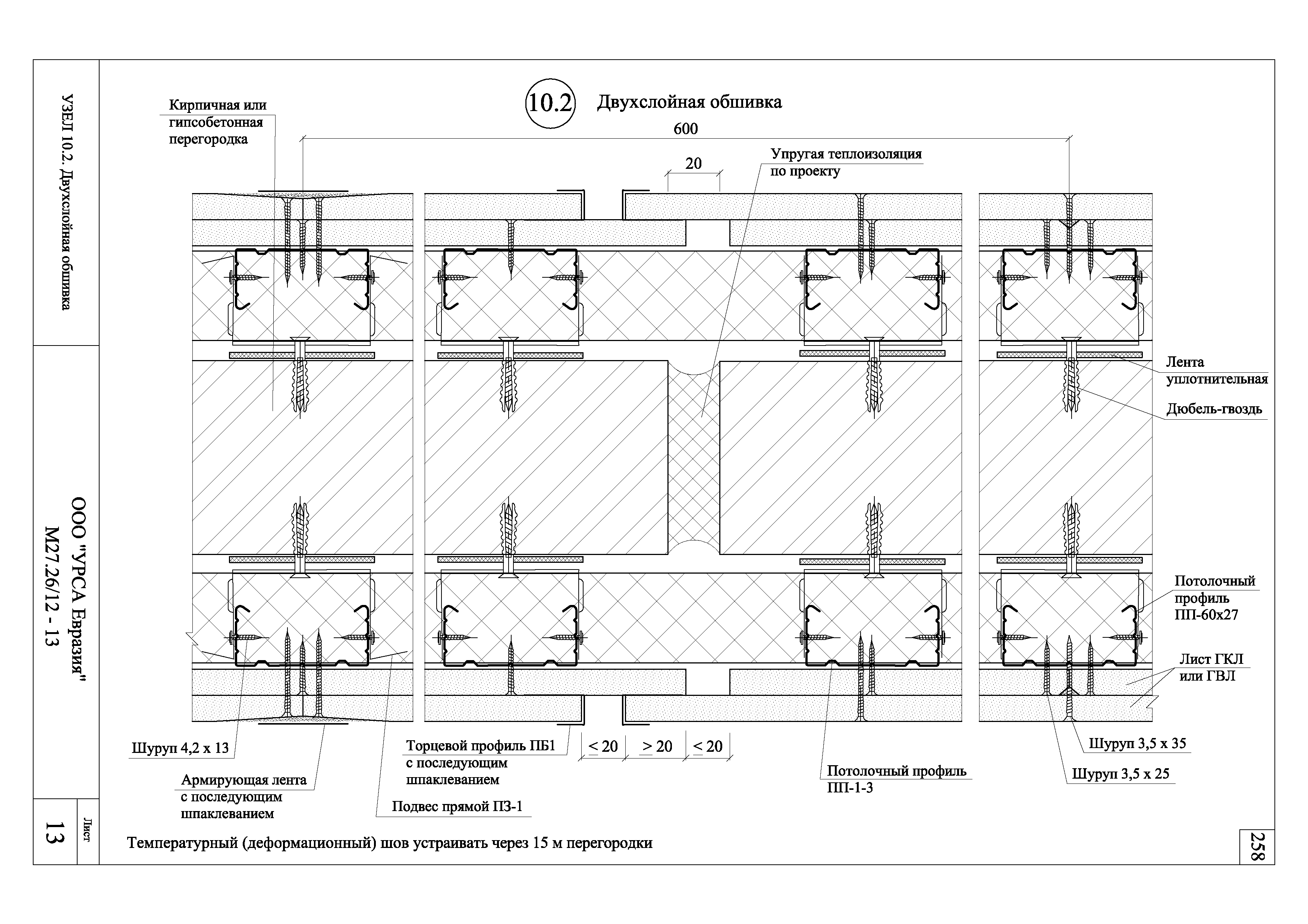
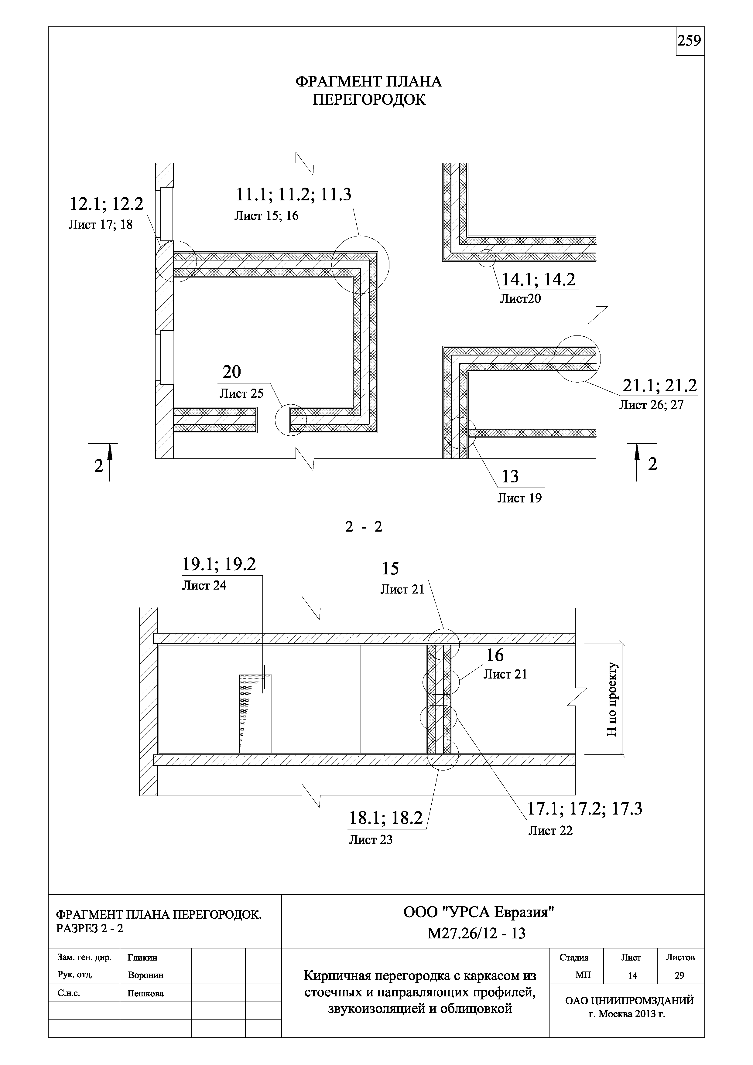
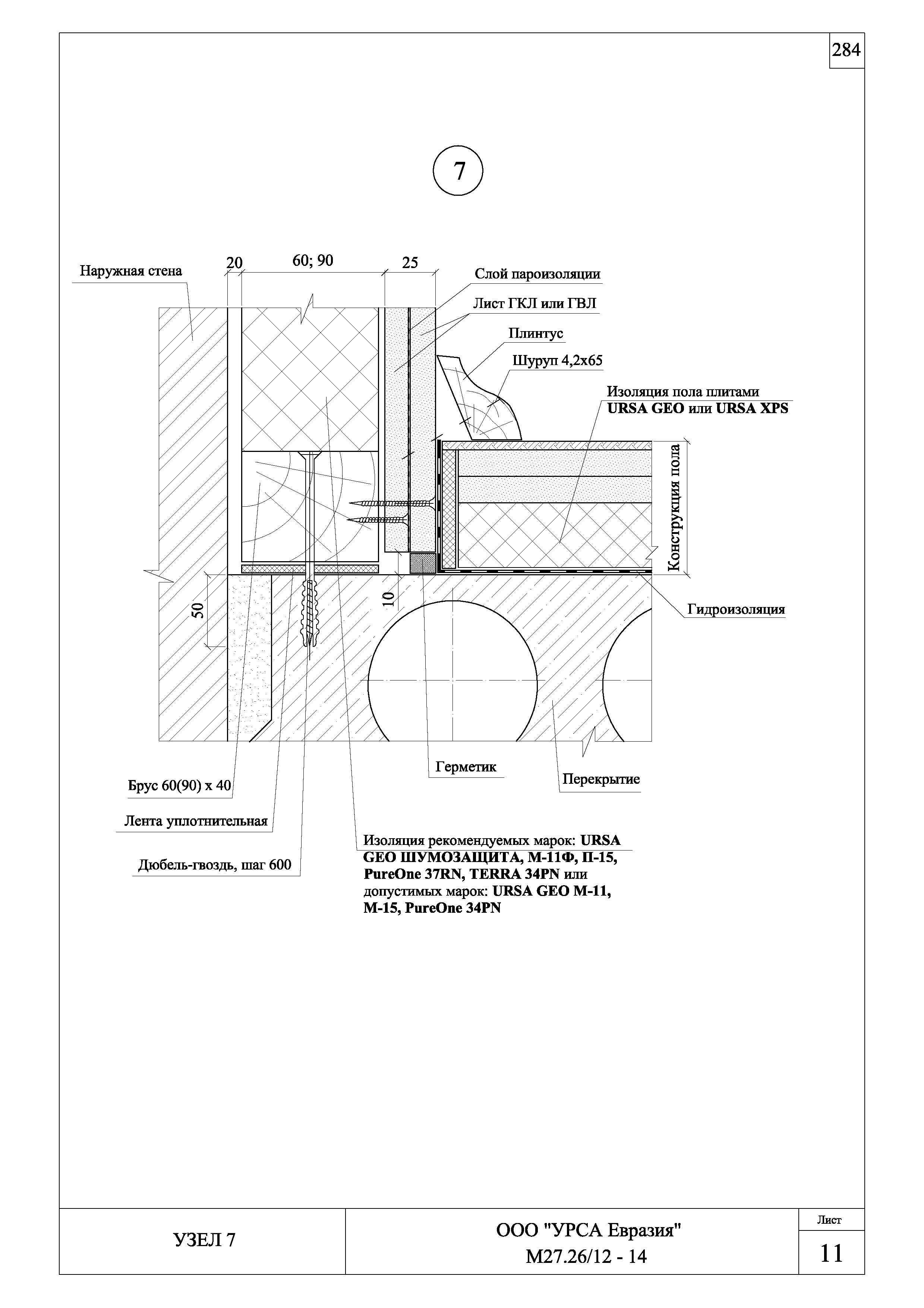
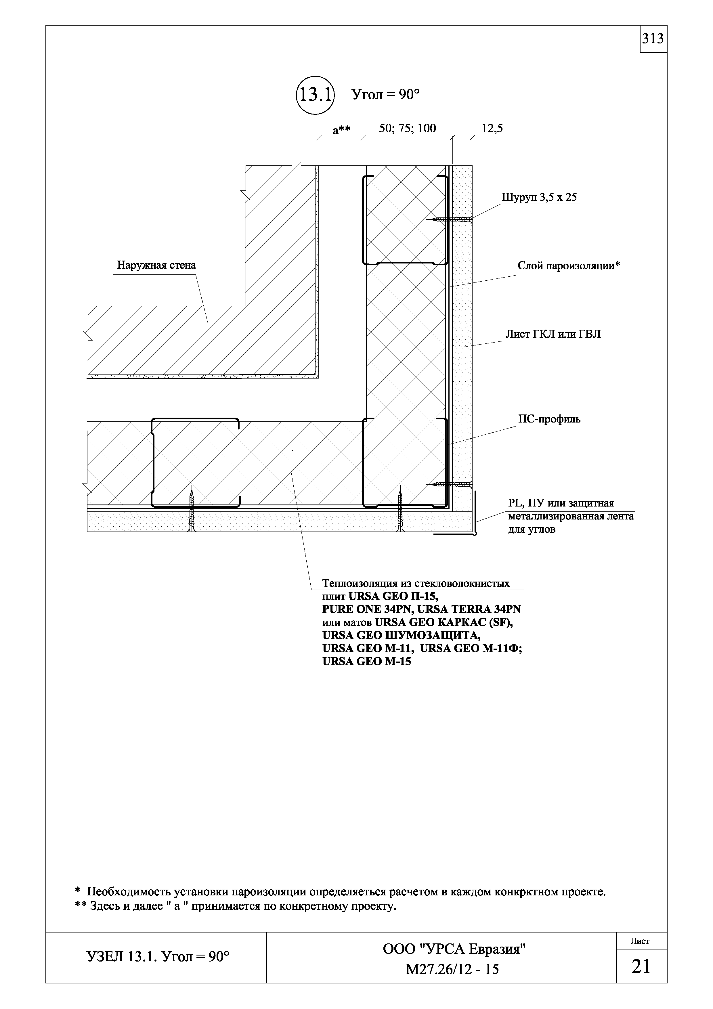
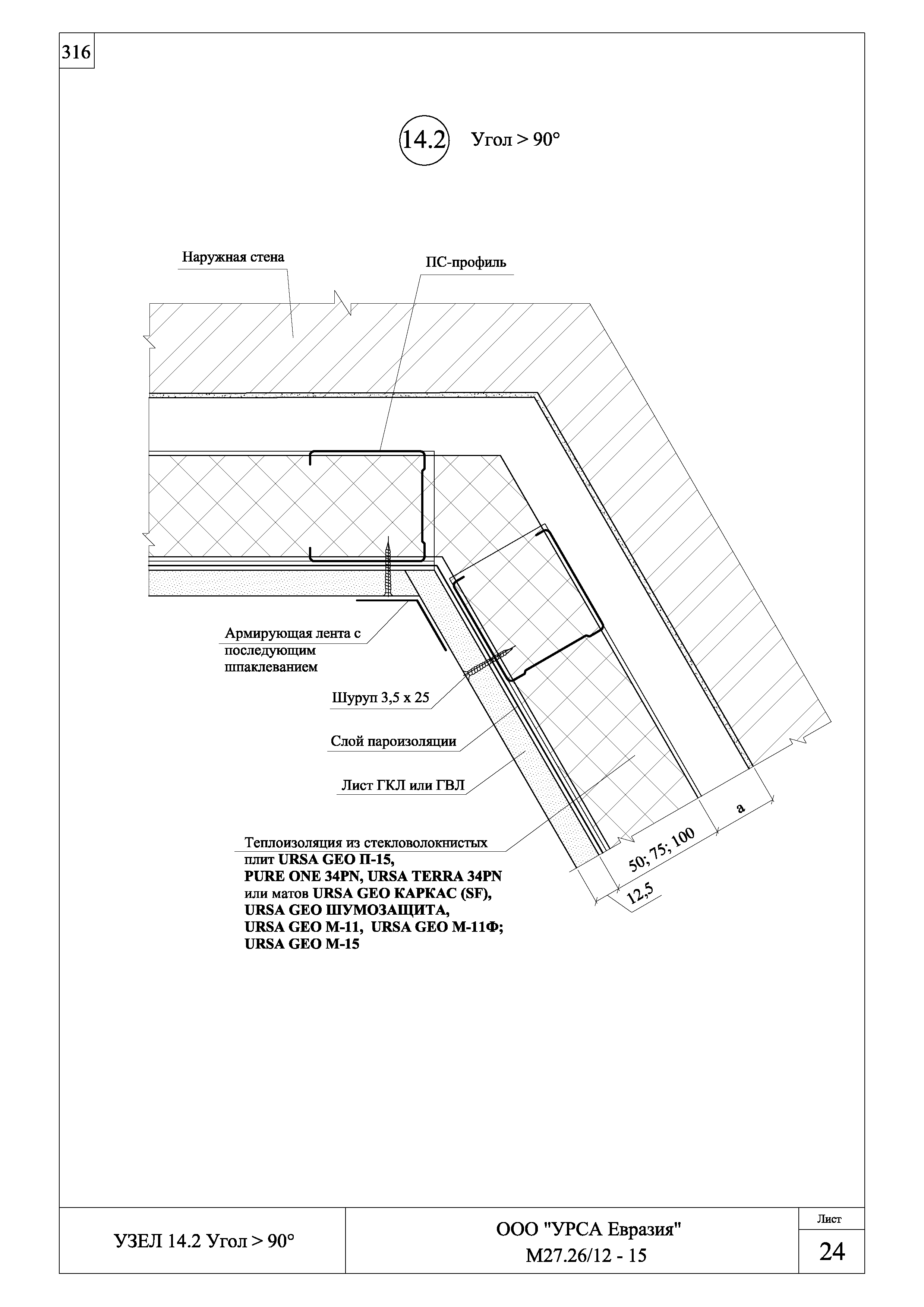
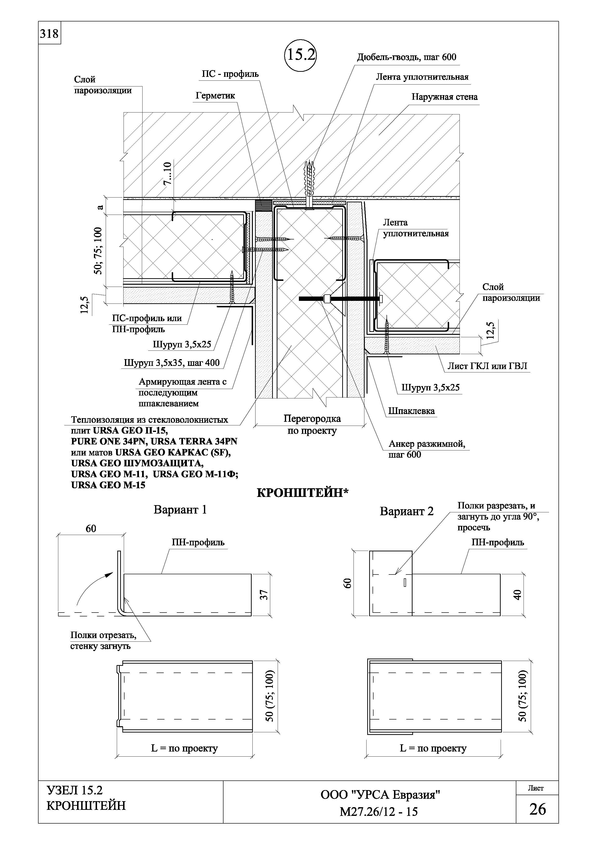
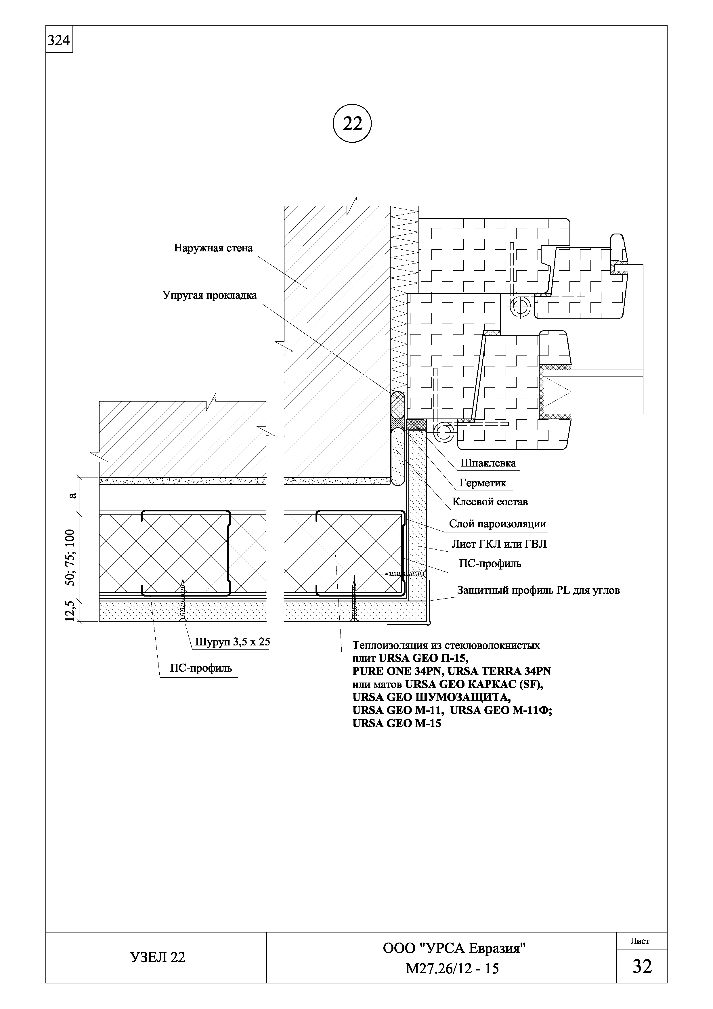
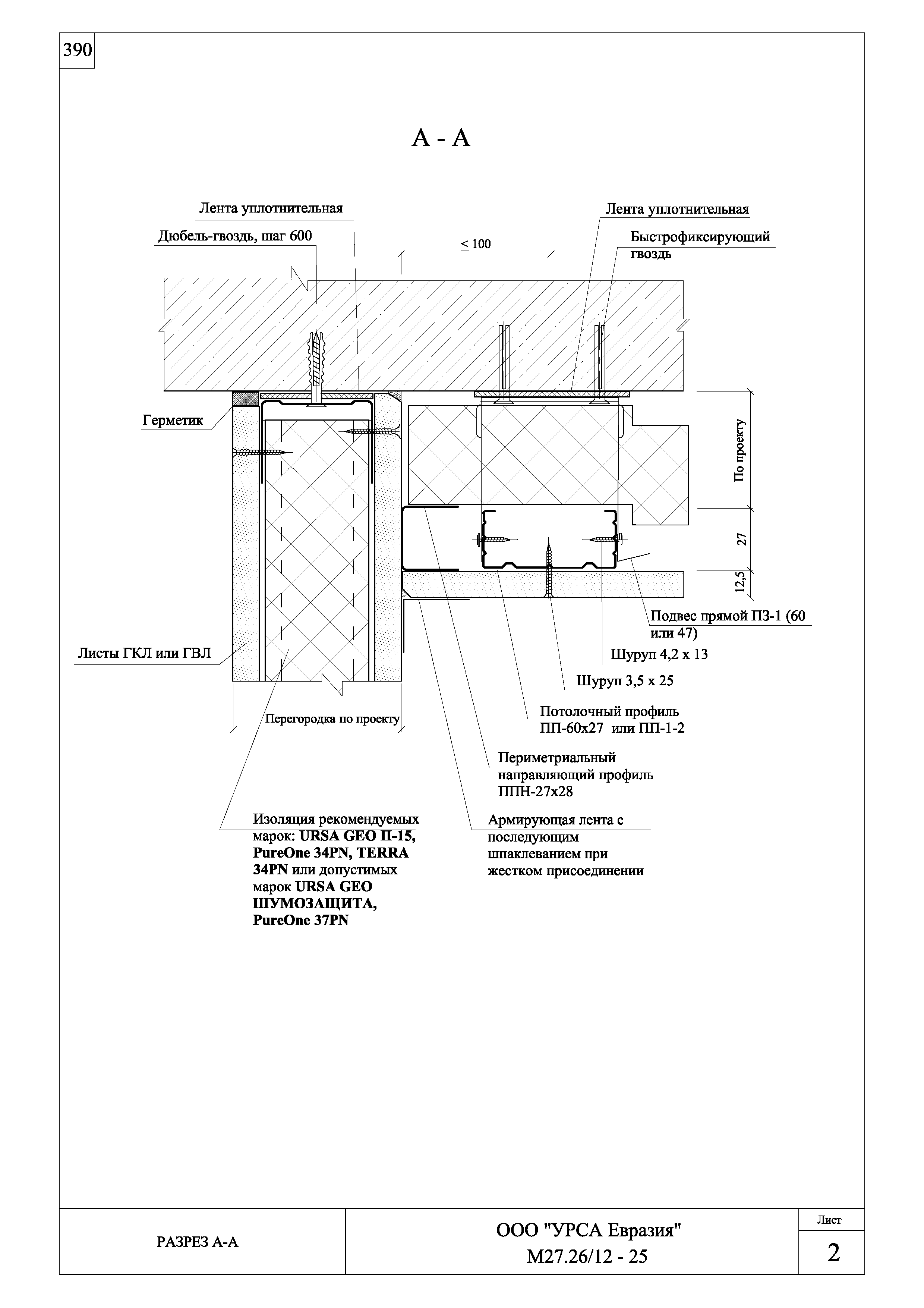
| Оглавление: | Пояснительная записка 1. Общие положение 2. Применяемые материалы 3. Конструктивные решения стен 4. Конструктивные решения перегородок 5. Ограждающие конструкции мансард 6. Покрытия с теплоизоляцией из экструдированного пенополистирола 7. Чердачные перекрытия 8. Каркасные междуэтажные перекрытия по балкам 9. Полы холодильников и ледовых арен с теплоизоляцией из плит USRA XPS 10. Полы с тепло-звукоизоляцией из стекловолокнистых плит USRA GEO, PureOne, TERRA или плит из экструдированного пенополистирола USRA XPS 11. Подвесные потолки 12. Фундаменты мелкого заложения Раздел 1. С отделочным слоем из штукатурки с теплоизоляцией USRA XPS Раздел 2. Многослойные стены с защитно-декоративным слоем из кирпича и теплоизоляцией USRA XPS Раздел 3. Стены подвала и цоколь, утепленные теплоизоляцией USRA XPS Раздел 4. Утепление стен и подвала с внутренней стороны теплоизоляцией USRA XPS Раздел 5. Многослойные стены с защитно-декоративным слоем из кирпича и теплоизоляцией USRA GEO, PureOne и TERRA Раздел 6. Стены с вентилируемой воздушной прослойкой Раздел 7. Стены из сэндвич-панелей поэлементной сборки Раздел 8. Стены с деревянным каркасом Раздел 9. Стены со стальным каркасом и облицовкой сайдингом Раздел 10. Перегородки с деревянным каркасом Раздел 11. Перегородки с металлическим каркасом Раздел 12. Перегородки с облицовкой из пазогребневых листов Раздел 13. Кирпичная перегородка с каркасом, звукоизоляцией и облицовкой Раздел 14. Облицовка стен с деревянным каркасом Раздел 15. Облицовка стен с металлическим каркасом Раздел 16. Ограждающие конструкции мансард Раздел 17. Покрытия с несущим профилированным покрытием Раздел 18. Инверсионные покрытия неэксплуатируемые и эксплуатируемые Раздел 19. Чердачные перекрытия Раздел 20. Полы холодильников Раздел 21. Полы ледовой арены Раздел 22. Полы с теплоизоляцией USRA XPS Раздел 23. Полы с теплоизоляцией USRA GEO, PureOne, TERRA Раздел 24. Подвесные потолки с деревянным каркасом Раздел 25. Подвесные потолки с металлическим каркасом Раздел 26. Фундаменты мелкого заложения Приложения |
| Разработан: | ЦНИИпромзданий |
| Утверждён: | 01.01.2013 ЦНИИпромзданий (TsNIIpromzdaniy ) |















































































































































































































































































































































































































































