Скачать Типовой проект 901-2-62 Альбом II. Электрооборудование, автоматика и технологический контроль. Чертежи монтажной зоныДата актуализации: 01.01.2021
|
| Обозначение: | Типовой проект 901-2-62 |
| Обозначение англ: | 901-2-62 |
| Статус: | не действует |
| Название рус.: | Альбом II. Электрооборудование, автоматика и технологический контроль. Чертежи монтажной зоны |
| Дата добавления в базу: | 01.10.2014 |
| Дата актуализации: | 01.01.2021 |
| Дата введения: | 01.09.1975 |
| Дата окончания срока действия: | 01.02.1982 |
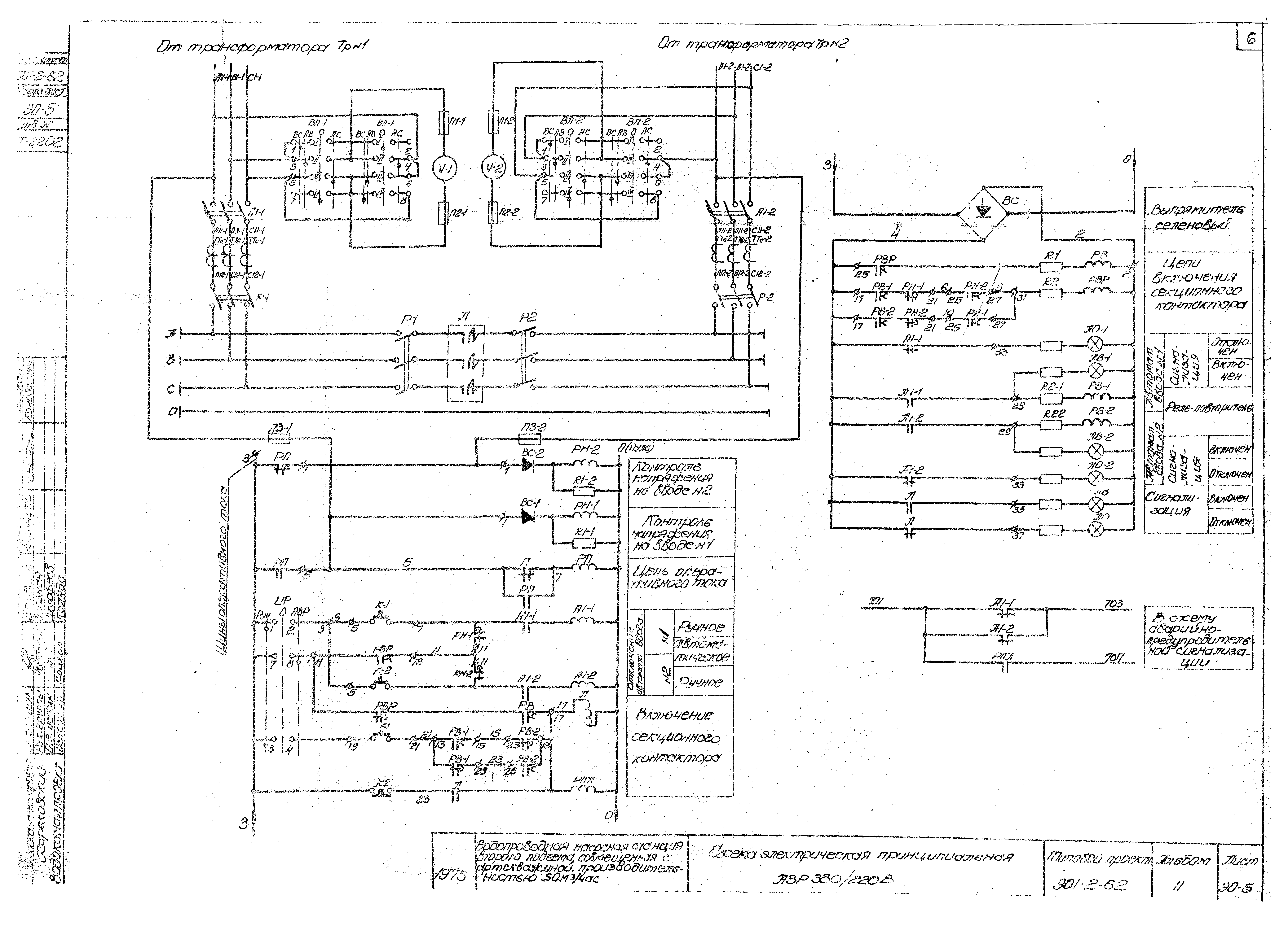
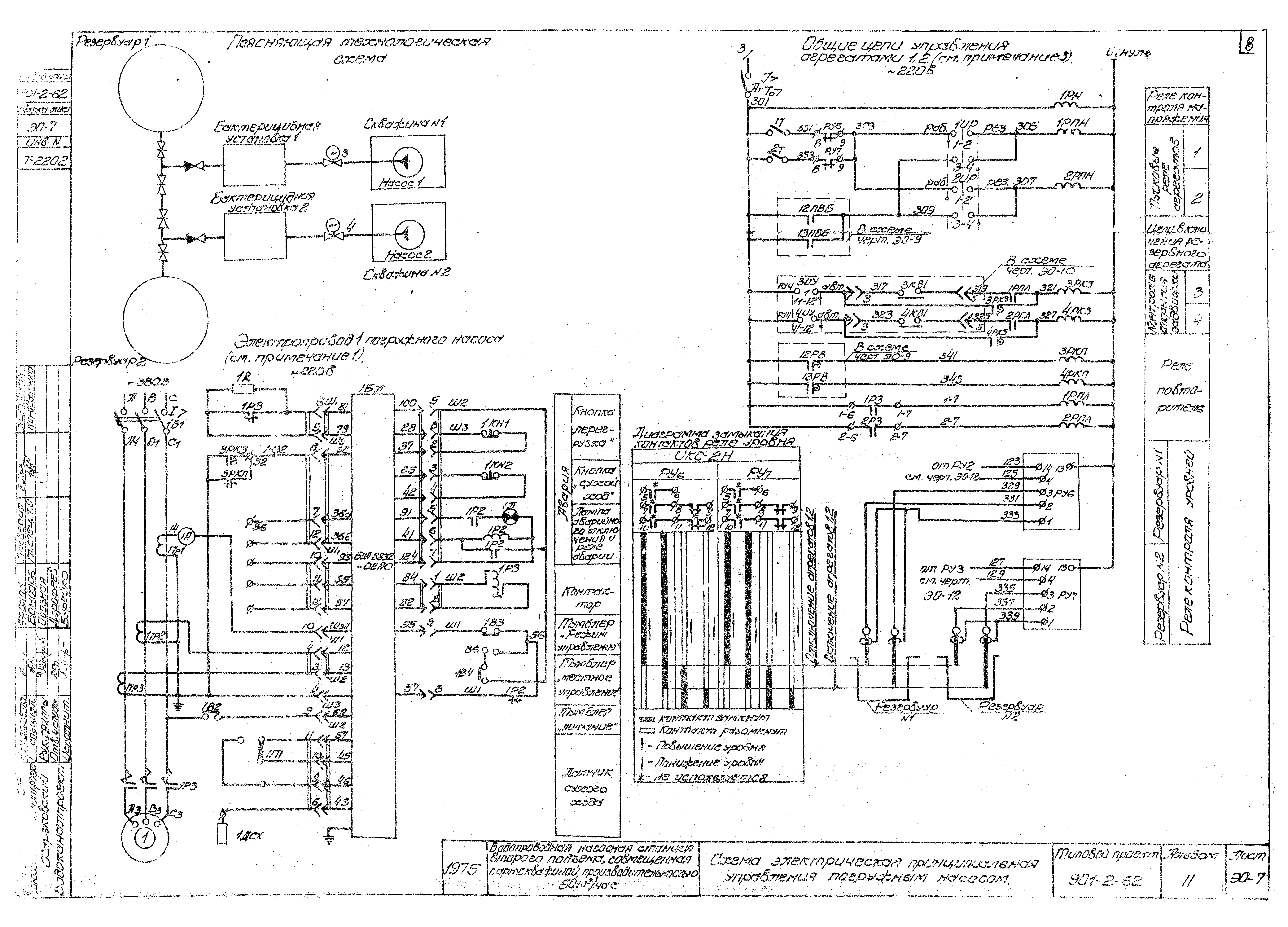
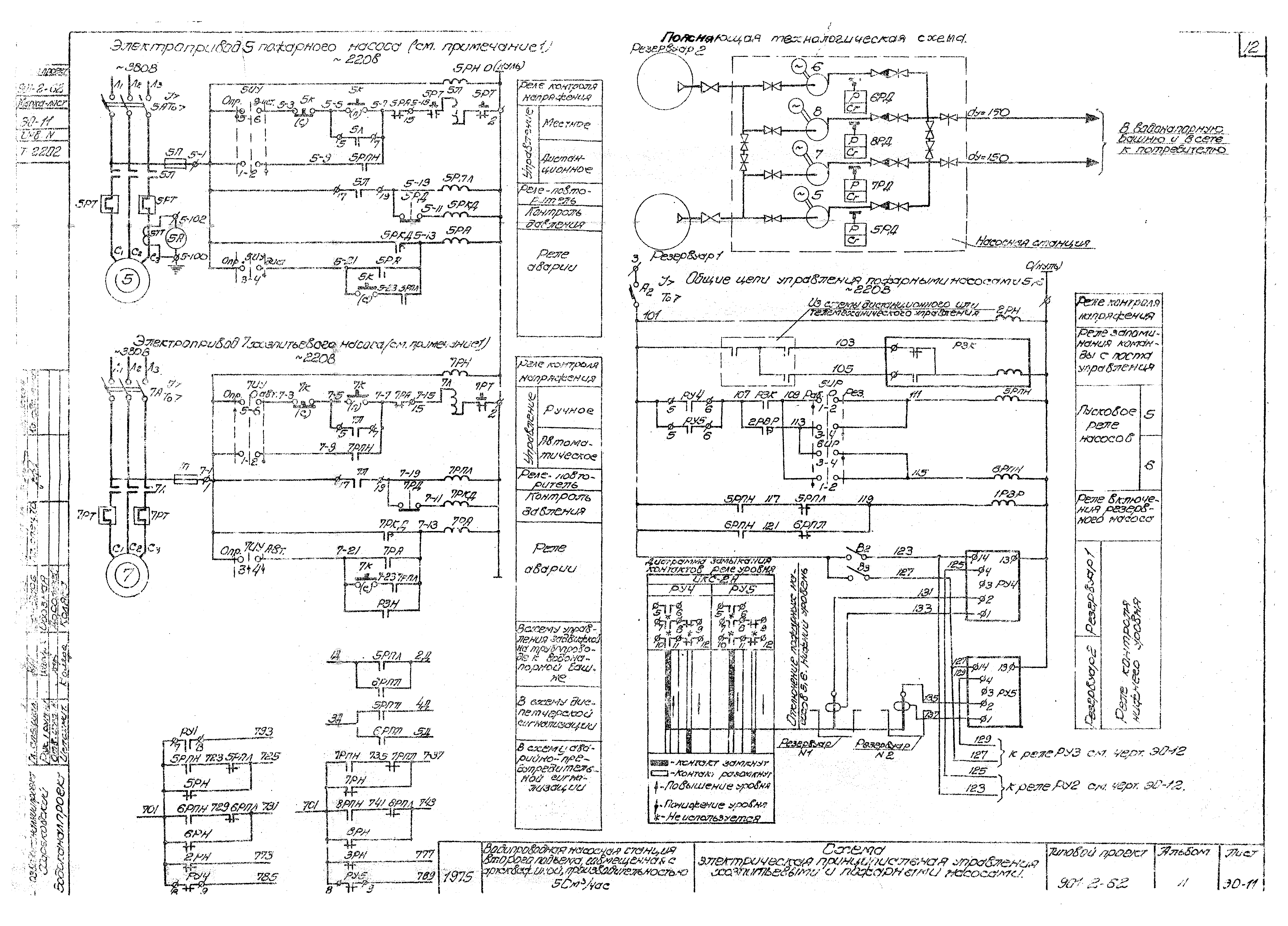
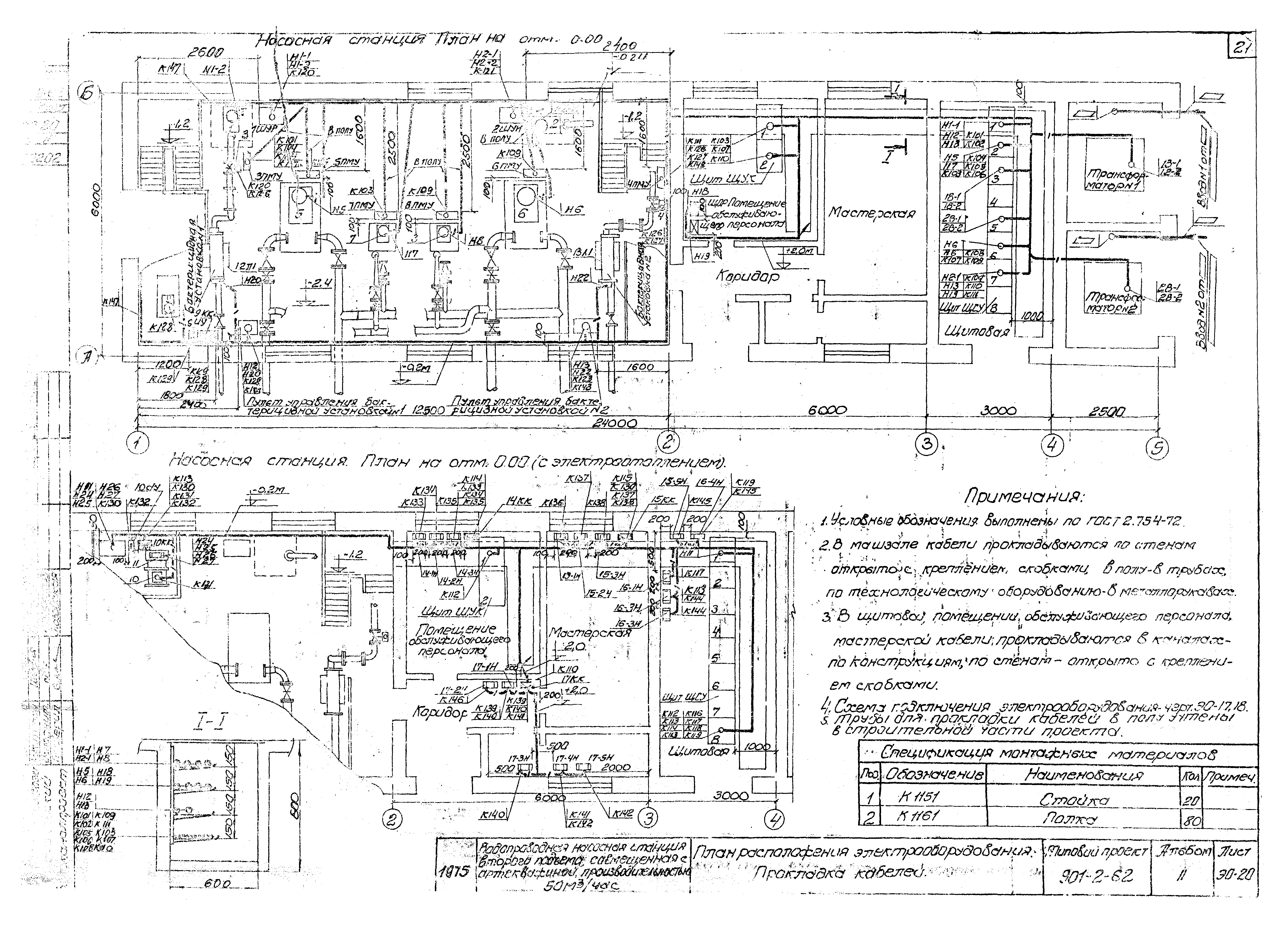
| Оглавление: | Раздел I. Силовое электрооборудование и автоматизация Заглавный лист. Содержание раздела I Пояснительная записка Схема электрическая принципиальная однолинейная подстанции 10,4 кВ и распределительной сети 380/220 В Схема электрическая принципиальная АВР 380/220 В Схема электрическая принципиальная управления погружным насосом Схема электрическая принципиальная управления бактерицидной установкой Схема электрическая принципиальная управления напорной задвижкой с электроприводом Схема электрическая принципиальная управления хозпитьевыми пожарными насосами Схема электрическая принципиальная управления дренажным насосом Схема электрическая принципиальная управления калорифером и приточным вентилятором Схема электрическая принципиальная управления электроотоплением Схема электрическая принципиальная аварийно-предупредительной сигнализации Схема подключения электрооборудования Схема подключения электрооборудования (для варианта с электроотоплением) План расположения электрооборудования. Прокладка кабелей Кабельный журнал Пост местного управления насосом 5ПМУ(6ПМУ - 8ПМУ). Общий вид. Схема соединений Пост местного управления задвижкой 3ПМУ(4ПМУ). Общий вид. Схема соединений Электроосвещение Заземление Раздел II. Технологический контроль Содержание раздела II Схема функциональная Схема функциональная (для варианта с электроотоплением). Схема электрическая принципиальная питания приборов Схема электрическая принципиальная измерения давления. Схема электрическая принципиальная измерения расхода Схема подключения электрических и трубных проводок Схема подключения электрических и трубных проводок (вариант с электроотоплением). Схема подключения электрических трубных проводок. Монтажный чертеж (вариант с электроотоплением) Схема подключения электрических и трубных проводок. Монтажный чертеж Установка датчиков уровня в дренажном приямке и машзале. Установка реле давления и манометра |
| Разработан: | Харьковский Водоканалпроект |
| Утверждён: | 26.05.1975 СоюзводоканалНИИпроект (SoyuzvodokanalNIIproject 111) |
| Заменяет собой: |
|


































