Скачать Типовой проект 901-2-62 Альбом III. Электрооборудование, автоматика и технологический контроль. Задание заводу-изготовителюДата актуализации: 01.01.2021
|
| Обозначение: | Типовой проект 901-2-62 |
| Обозначение англ: | 901-2-62 |
| Статус: | не действует |
| Название рус.: | Альбом III. Электрооборудование, автоматика и технологический контроль. Задание заводу-изготовителю |
| Дата добавления в базу: | 01.10.2014 |
| Дата актуализации: | 01.01.2021 |
| Дата введения: | 01.09.1975 |
| Дата окончания срока действия: | 01.02.1982 |
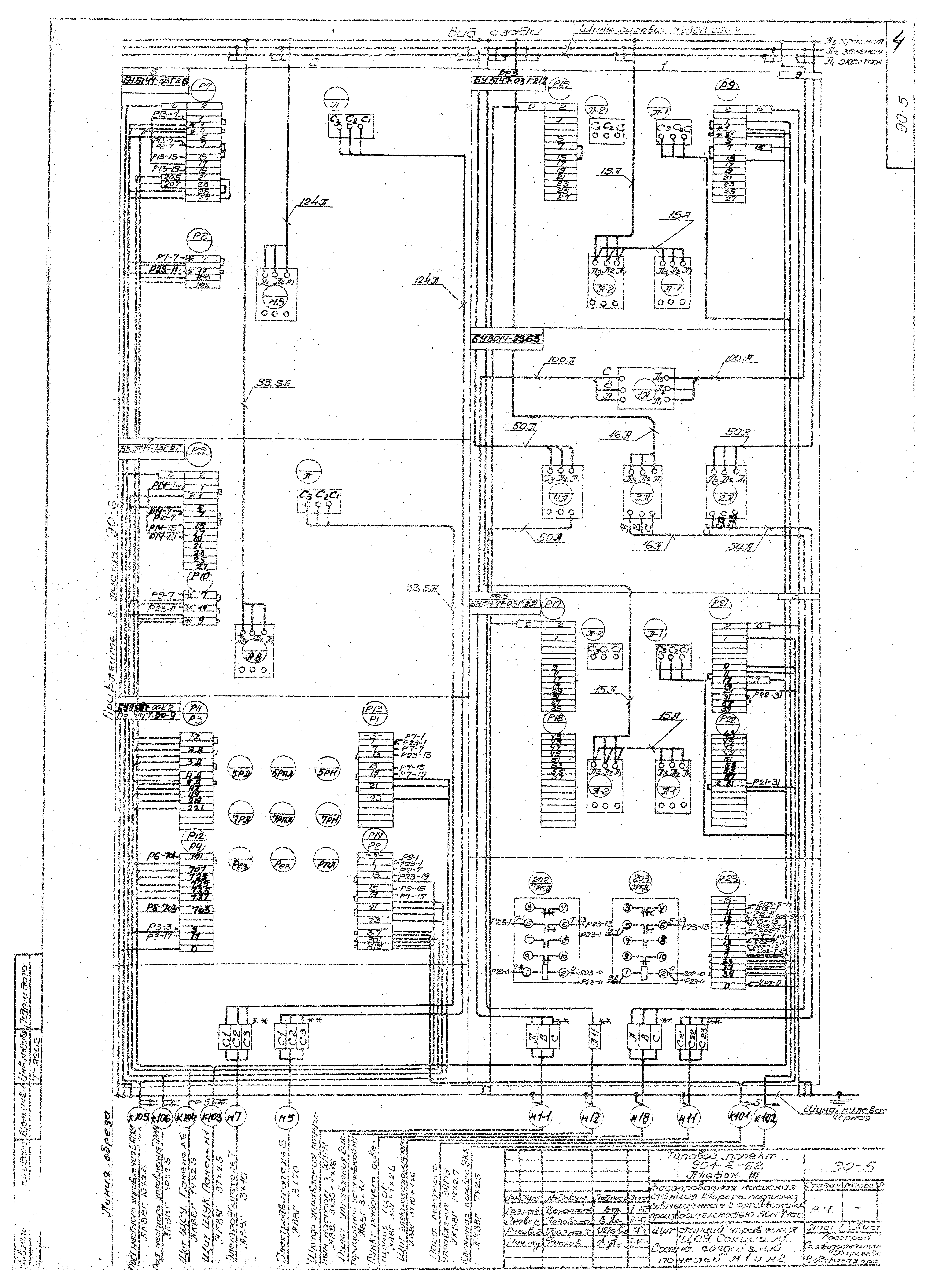
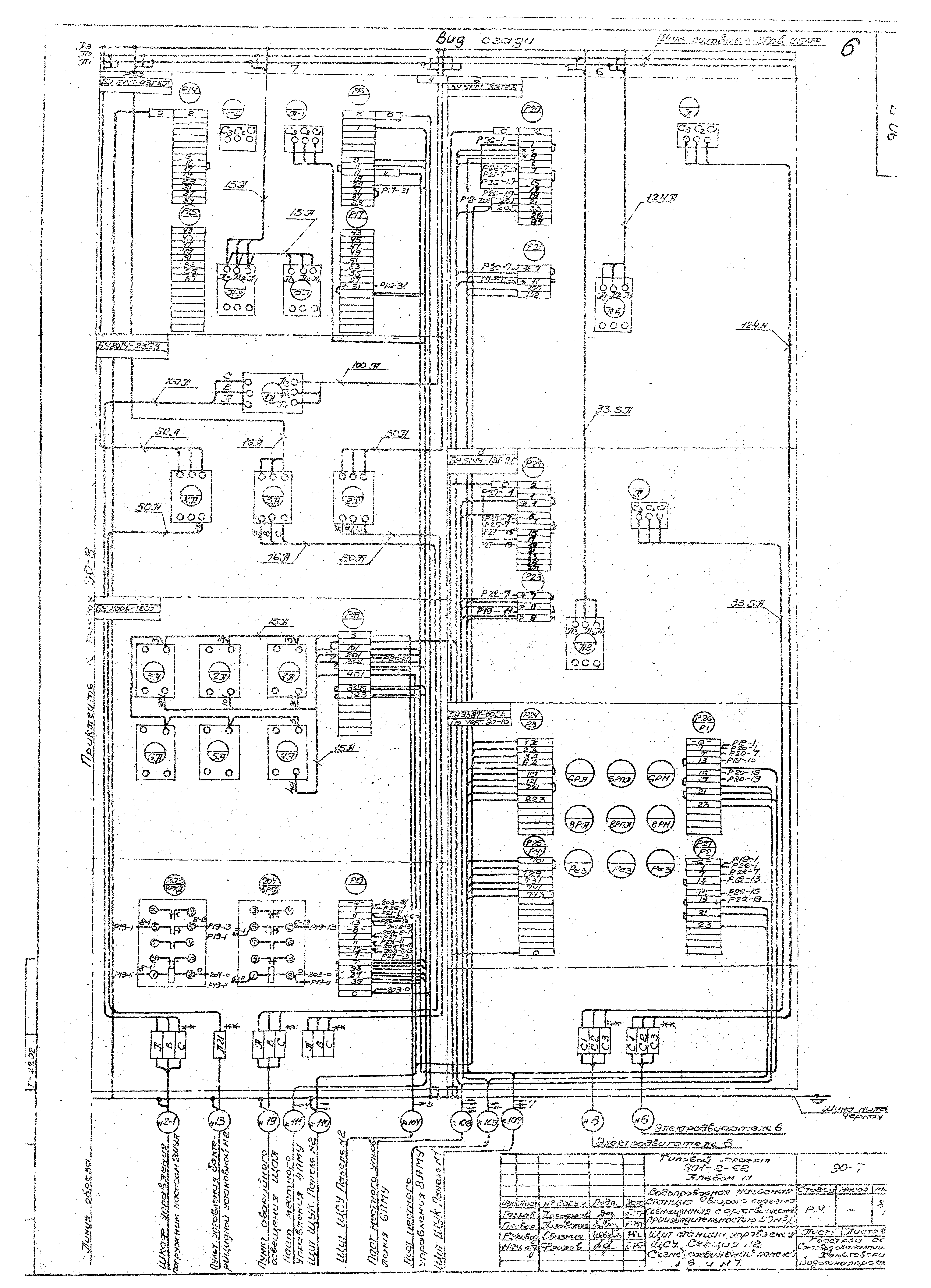
| Оглавление: | Раздел I. Силовое электрооборудование и автоматизация Содержание раздела I Щит станций управления ЩСУ. Общий вид Щит станций управления ЩСУ. Таблица технических данных электрооборудования Щит станций управления ЩСУ. Перечень надписей Щит станций управления ЩСУ. Секция №1. Схема соединений панелей №1 и №2 Щит станций управления ЩСУ. Секция №1. Схема соединений панелей №3, №4 и №5 Щит станций управления ЩСУ. Секция №2. Схема соединений панелей №6 и №7 Щит станций управления ЩСУ. Секция №2. Схема соединений панели №8 Щит станций управления ЩСУ. Вспомогательный блок управления №1. Схема соединений Щит станций управления ЩСУ. Вспомогательный блок управления №2. Схема соединений Раздел II. Технологический контроль Содержание раздела II Заказная спецификация щитов и пультов Щит управления и контроля ЩУК. Общий вид Щит управления и контроля ЩУК. Схема соединений Заказная спецификация электроаппаратуры |
| Разработан: | Харьковский Водоканалпроект |
| Утверждён: | 26.05.1975 СоюзводоканалНИИпроект (SoyuzvodokanalNIIproject 111) |
| Заменяет собой: |
|













