Скачать Типовой проект 501-6-19.86 Альбом II. Технологические решения. Электротехническая часть. Автоматизация санитарно-технических систем. Связь и сигнализацияДата актуализации: 01.01.2021
|
| Обозначение: | Типовой проект 501-6-19.86 |
| Обозначение англ: | 501-6-19.86 |
| Статус: | действует |
| Название рус.: | Альбом II. Технологические решения. Электротехническая часть. Автоматизация санитарно-технических систем. Связь и сигнализация |
| Дата добавления в базу: | 01.10.2014 |
| Дата актуализации: | 01.01.2021 |
| Дата введения: | 21.10.1986 |
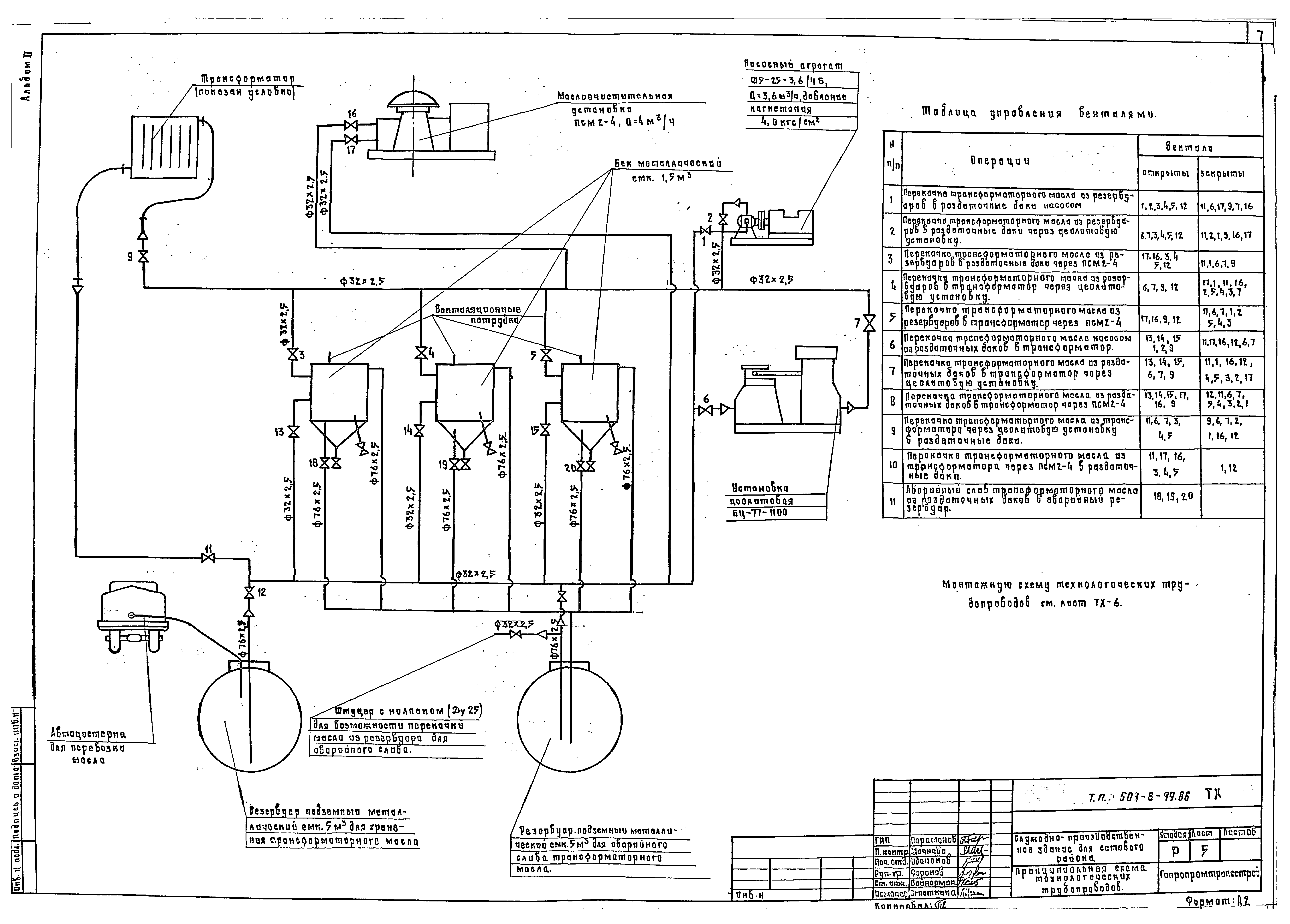
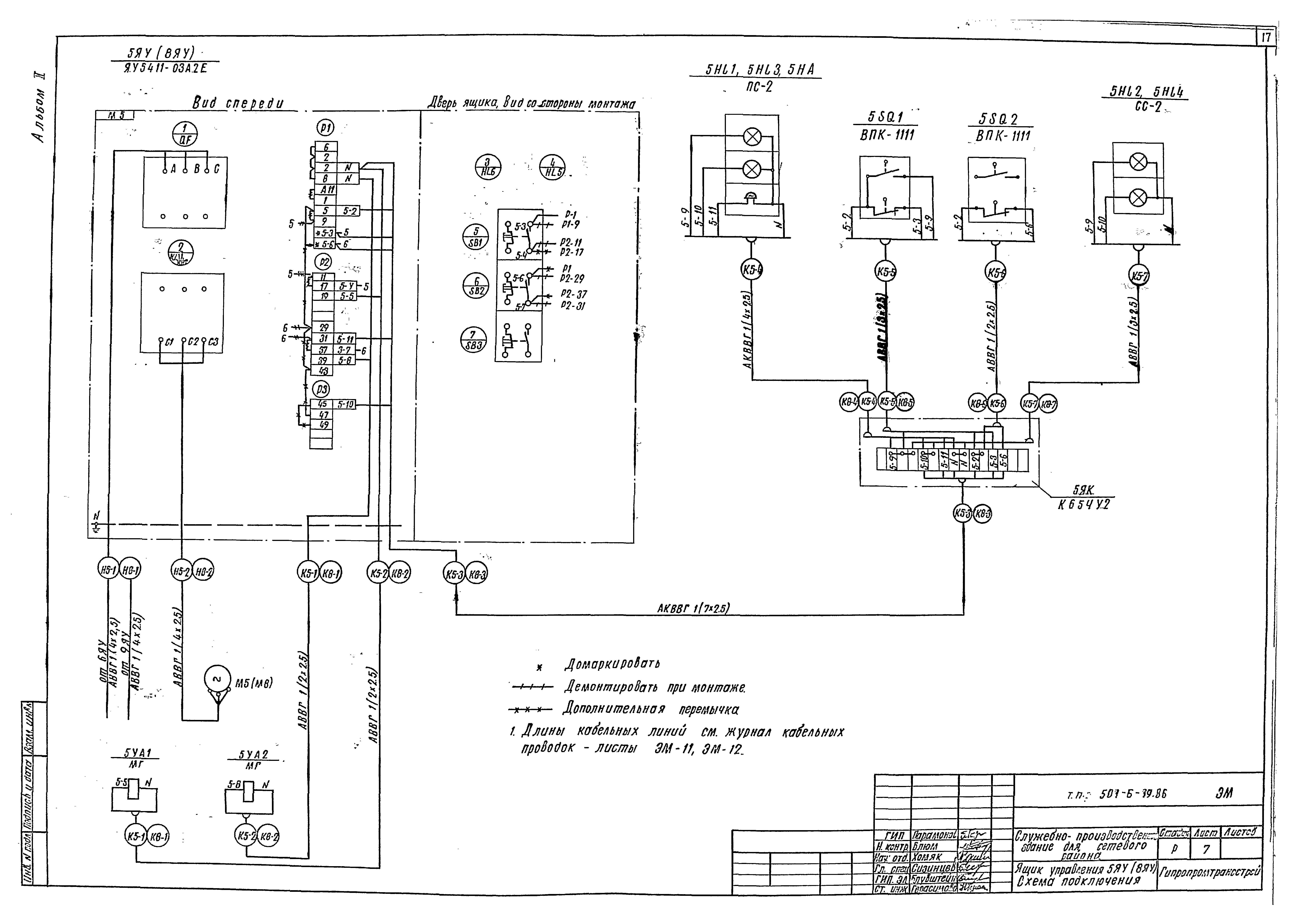
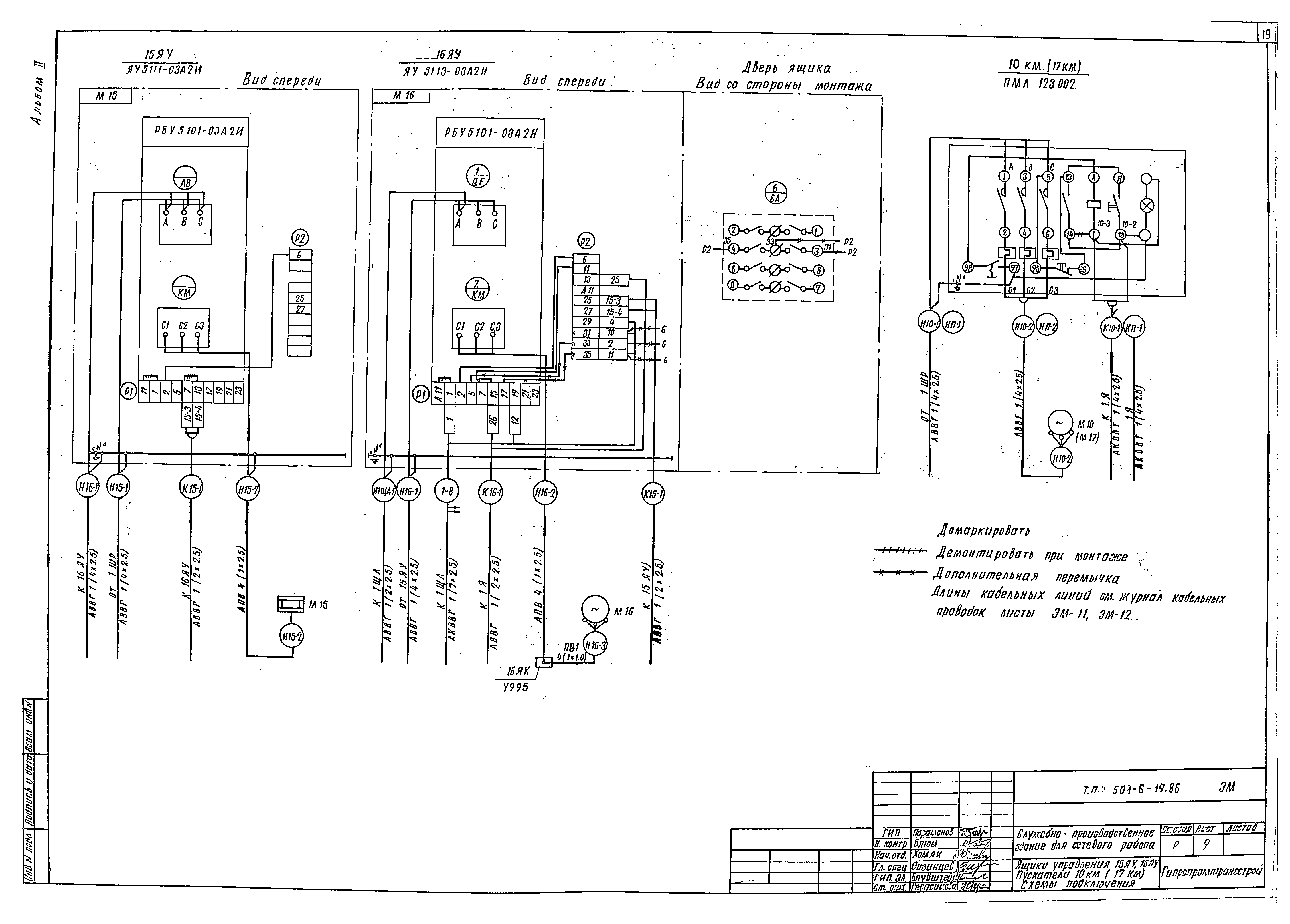
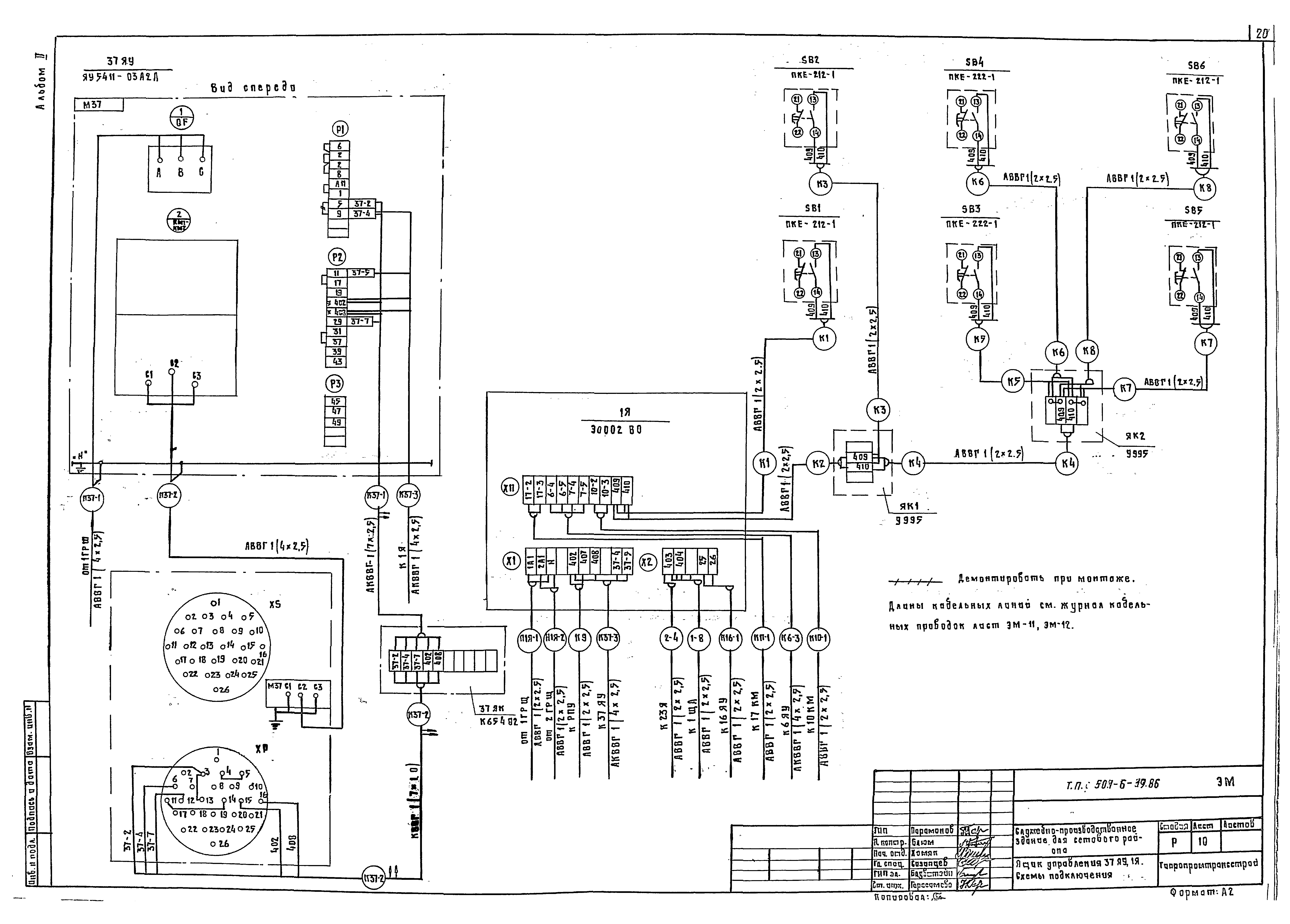
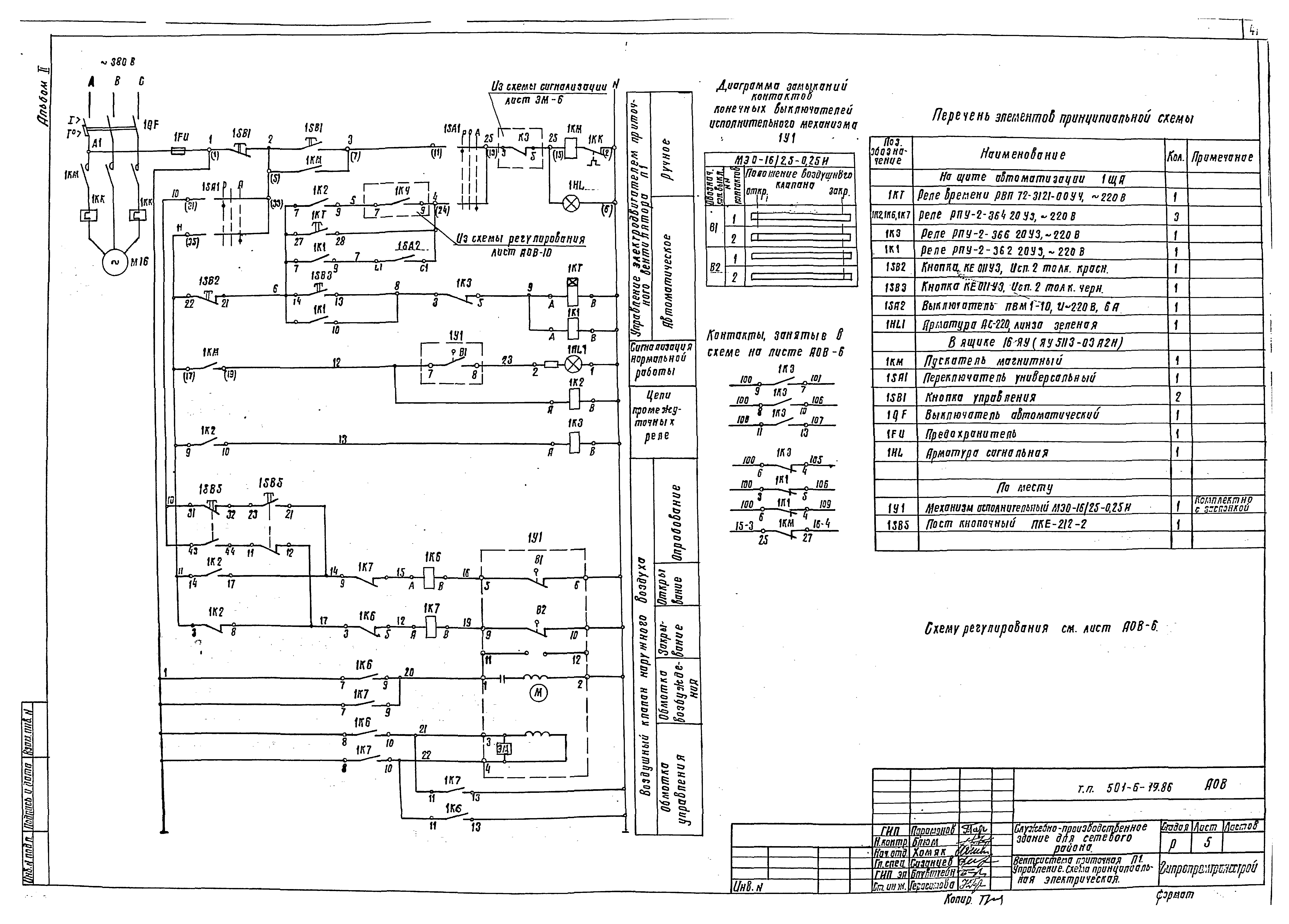
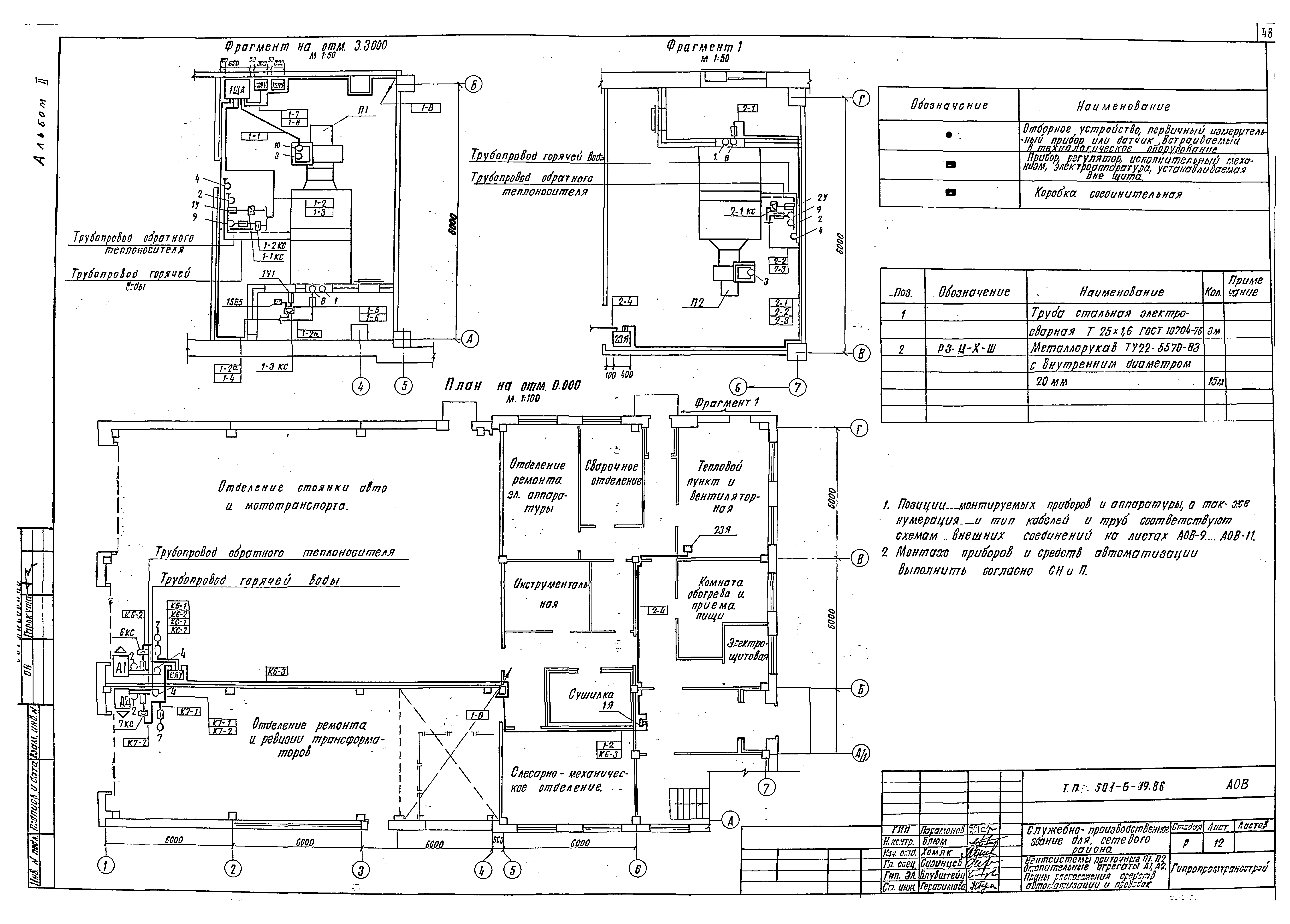
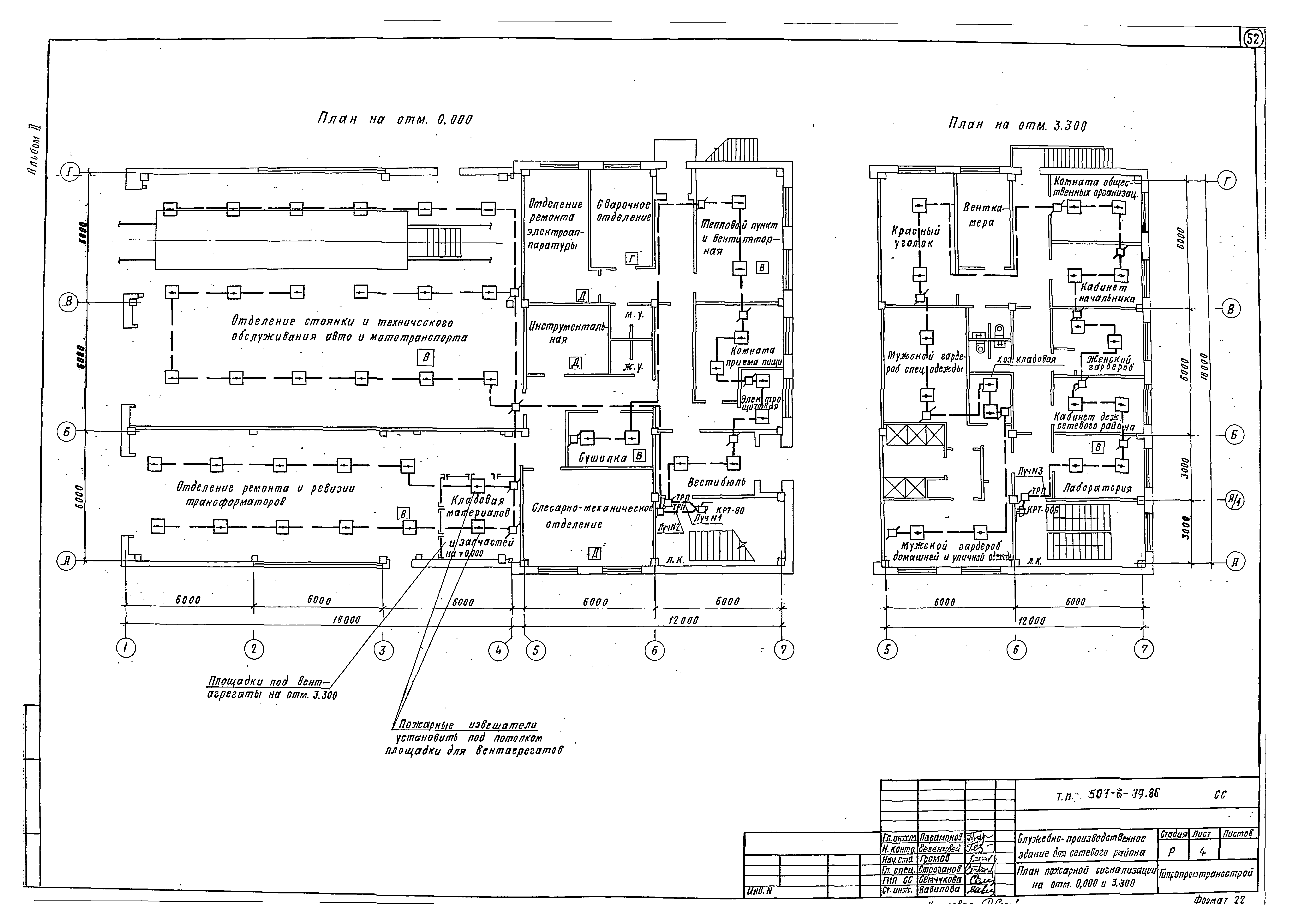
| Оглавление: | Содержание альбома Технологические решения Общие данные Схема генерального плана План на отм. 0.000 с расстановкой технологического оборудования План на отм. 3.300 с расстановкой технологического оборудования. Разрезы 1-1, 2-2 Принципиальная схема технологических трубопроводов Монтажная схема технологических трубопроводов Бак для трансформаторного масла. Общий вид Рама под баки. Общий вид Электротехническая часть Общие данные Схема принципиальная питающей сети Шкаф 1ШР. Схема принципиальная распределительной сети Шкафы 2ШР, 3ШР. Схема принципиальная распределительной сети Ворота №5(№8, №9). Задвижка №37. Вентсистема вытяжная В5(В6). Схемы принципиальные электрические Сигнализация. Схема принципиальная электрическая Ящик управления 5ЯУ(8ЯУ). Схема подключения Ящики управления 9ЯУ(6ЯУ). Схемы подключения Ящики управления 15ЯУ, 16ЯУ. Пускатели 10КМ(17КМ). Схемы подключения Ящики управления 37ЯУ, 1Я. Схемы подключения Журнал кабельных проводок Силовое электрооборудование. План на отм. 0.000 Силовое электрооборудование. План на отм. 3.300 Установка счетчика и трансформаторов тока в протяжном ящике Коробка У995 с зажимами наборными Молниезащита Электроосвещение. План на отм. 0.000 Электроосвещение. План на отм. 3.300 Установка светильника в нише смотровой канавы Ящик 23Я Ящик 1Я Ведомости объемов работ и изделий МЭЗ Ящик 23Я. Схема электрическая соединений Ящик 1Я. Схема электрическая соединений Автоматизация сантехсистем Общие данные Вентсистема приточная П1. Схема автоматизации Вентсистема приточная П2. Схема автоматизации Узел ввода тепловой сети. Отопительный агрегат А1(А2). Схемы автоматизации Вентсистема приточная П1. Управление. Схема принципиальная электрическая Вентсистема приточная П1. Регулирование. Электрообогрев. Схемы принципиальные электрические Вентсистема приточная П2. Отопительный агрегат А1(А2). Управление. Схемы принципиальные электрические Вентсистема приточная П1. Схема внешних соединений Вентсистема приточная П2. Схема внешних соединений Отопительные агрегаты А1, А2. Схема внешних соединений Узел ввода тепловой сети. Схема внешних соединений Вентсистемы приточные П1, П2. Отопительные агрегаты А1, А2. Планы расположения средств автоматизации и проводок Связь и сигнализация Общие данные Схема сетей слаботочных устройств. Схемы кабельных соединений План слаботочных устройств на отм. 0.000 и 3.300 План пожарной сигнализации на отм. 0.000 и 3.300 |
| Разработан: | Гипропромтрансстрой |
| Утверждён: | 27.06.1986 Министерство путей сообщения СССР (USSR Ministry of Railroads Д-19631) |




















































