Скачать Типовой проект 503-1-43.86 Альбом I. Архитектурные решения, конструкции железобетонные, конструкции металлическиеДата актуализации: 01.01.2021
|
| Обозначение: | Типовой проект 503-1-43.86 |
| Обозначение англ: | 503-1-43.86 |
| Статус: | не определен законодательством |
| Название рус.: | Альбом I. Архитектурные решения, конструкции железобетонные, конструкции металлические |
| Дата добавления в базу: | 01.10.2014 |
| Дата актуализации: | 01.01.2021 |
| Дата введения: | 23.09.1985 |
| Дата окончания срока действия: | 30.06.2003 |
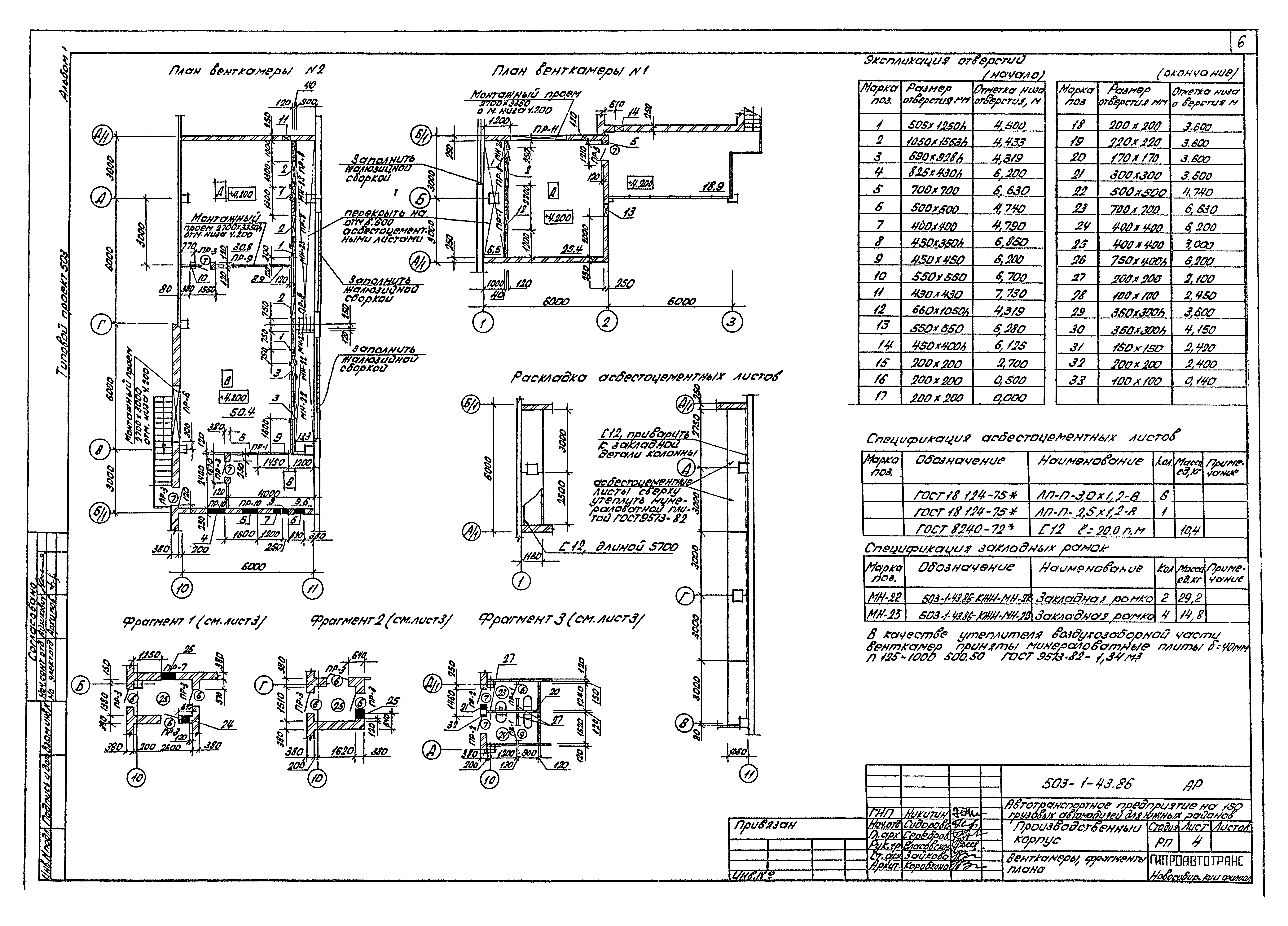
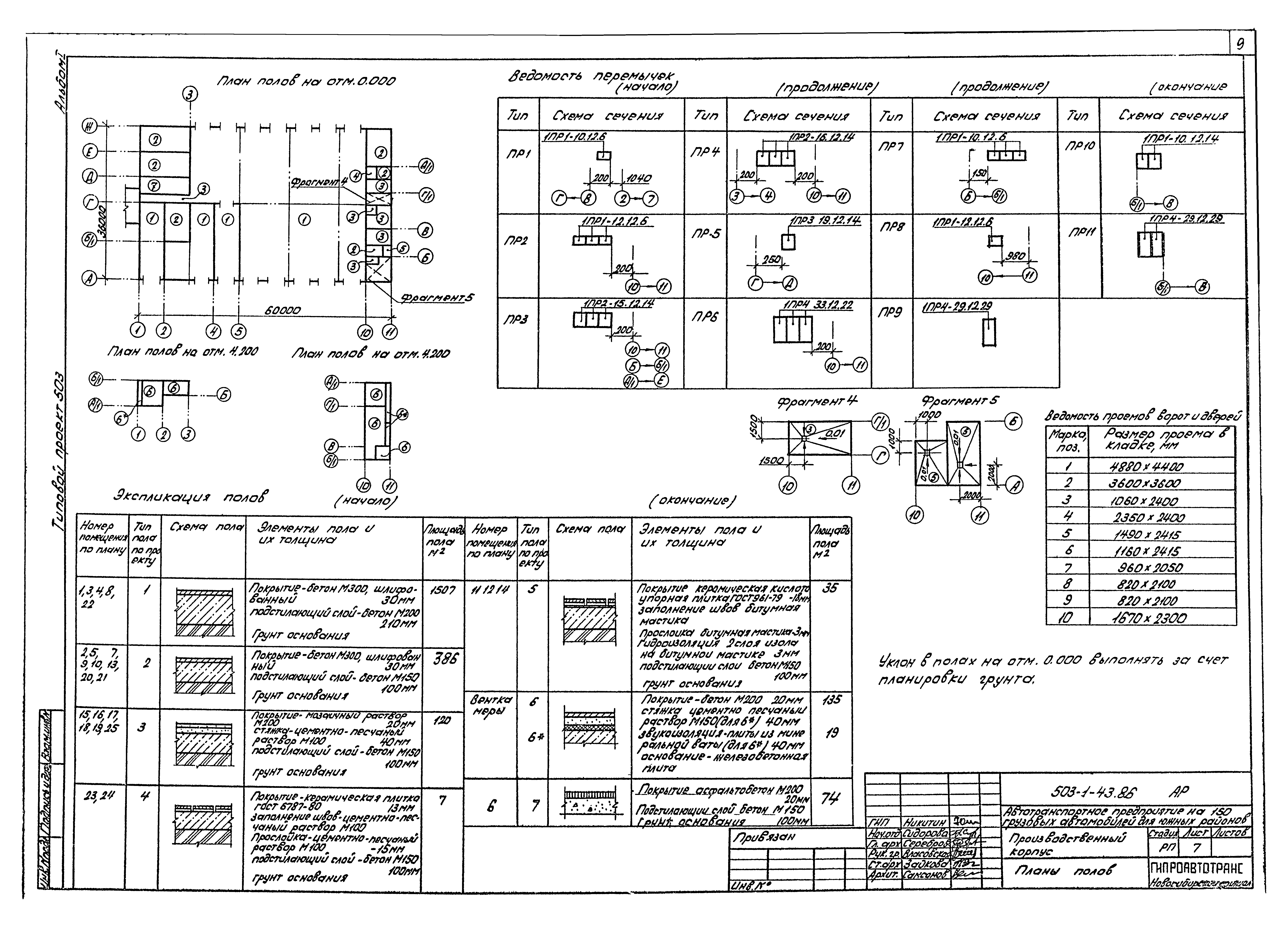
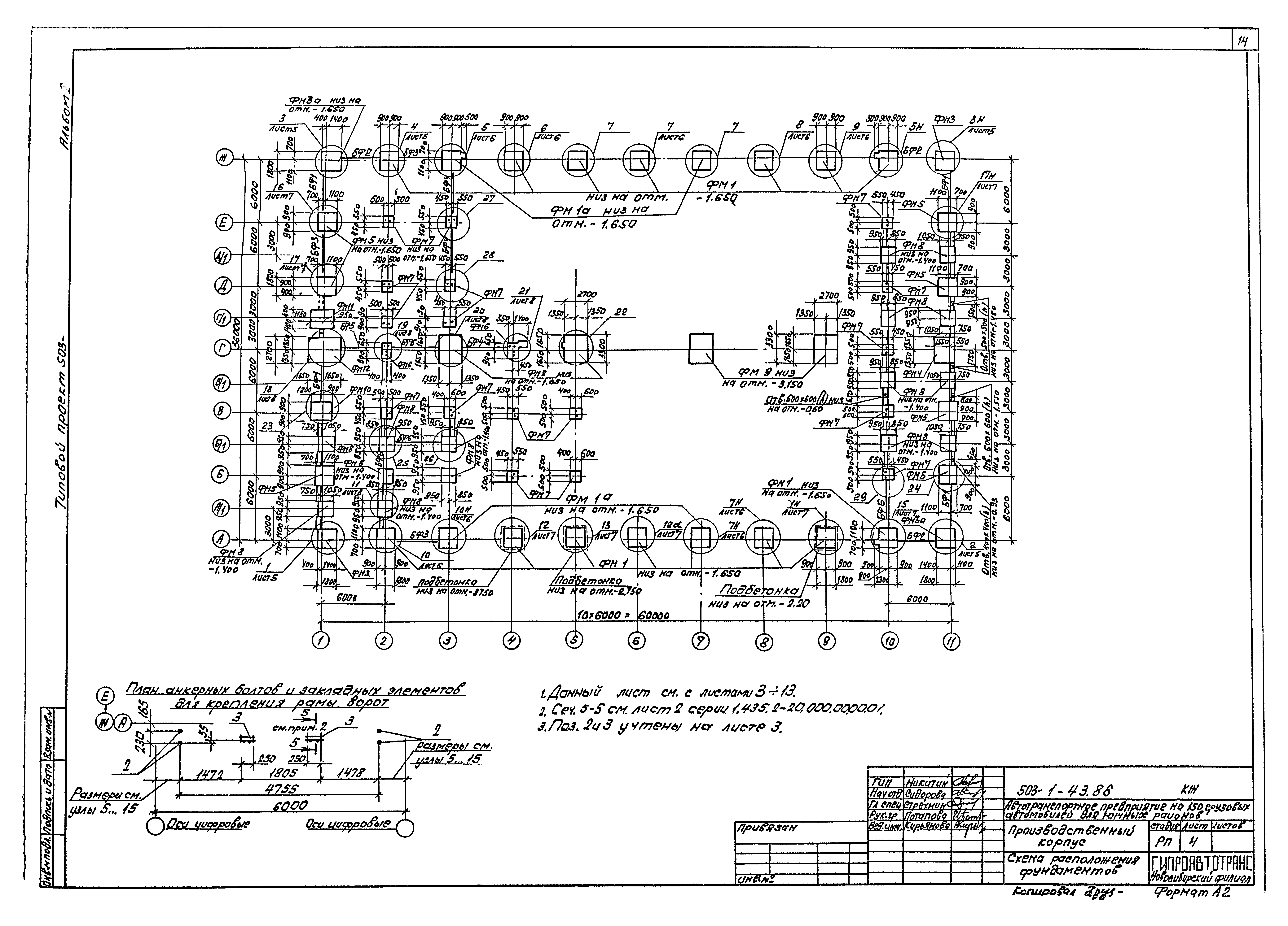
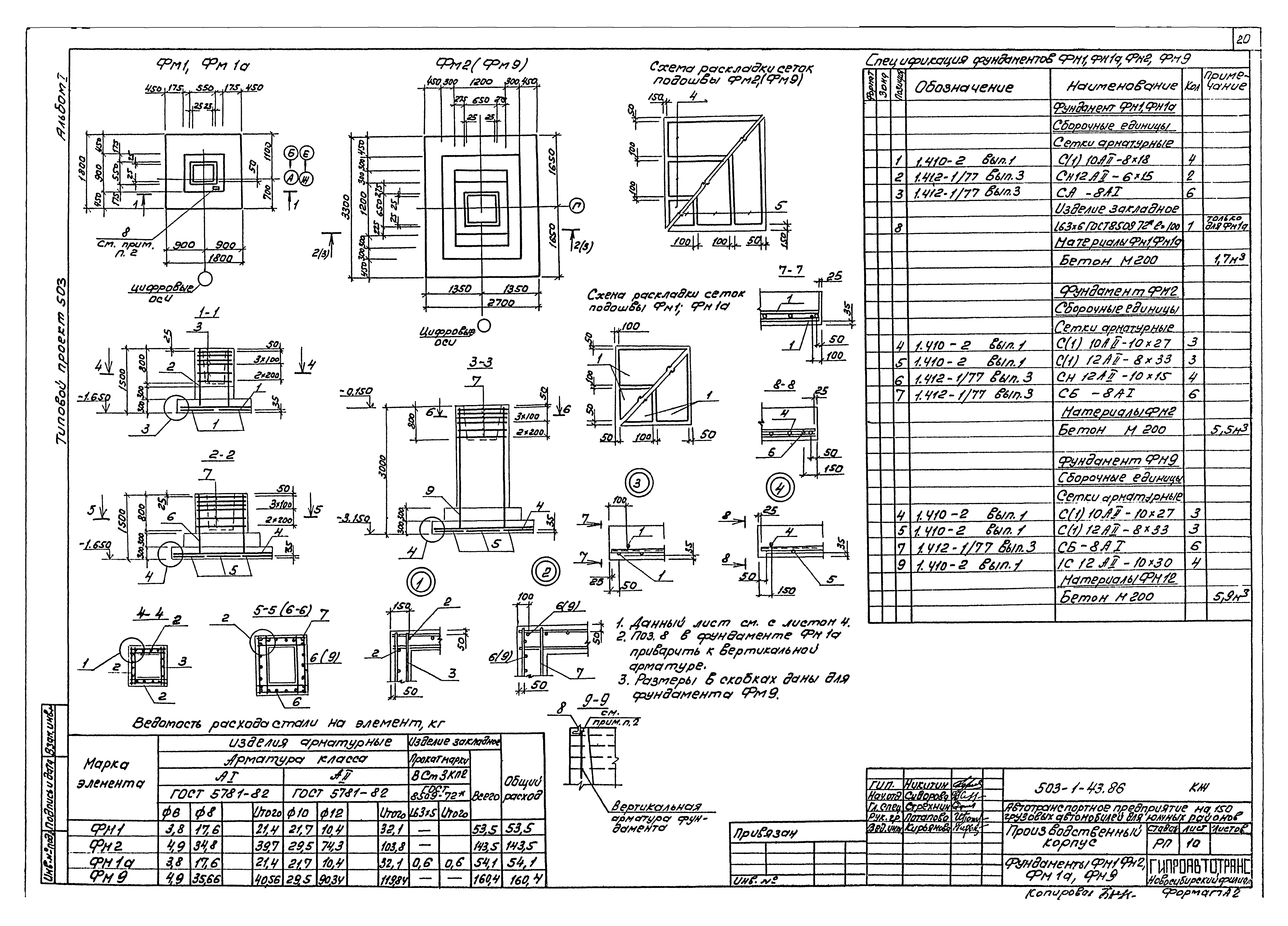
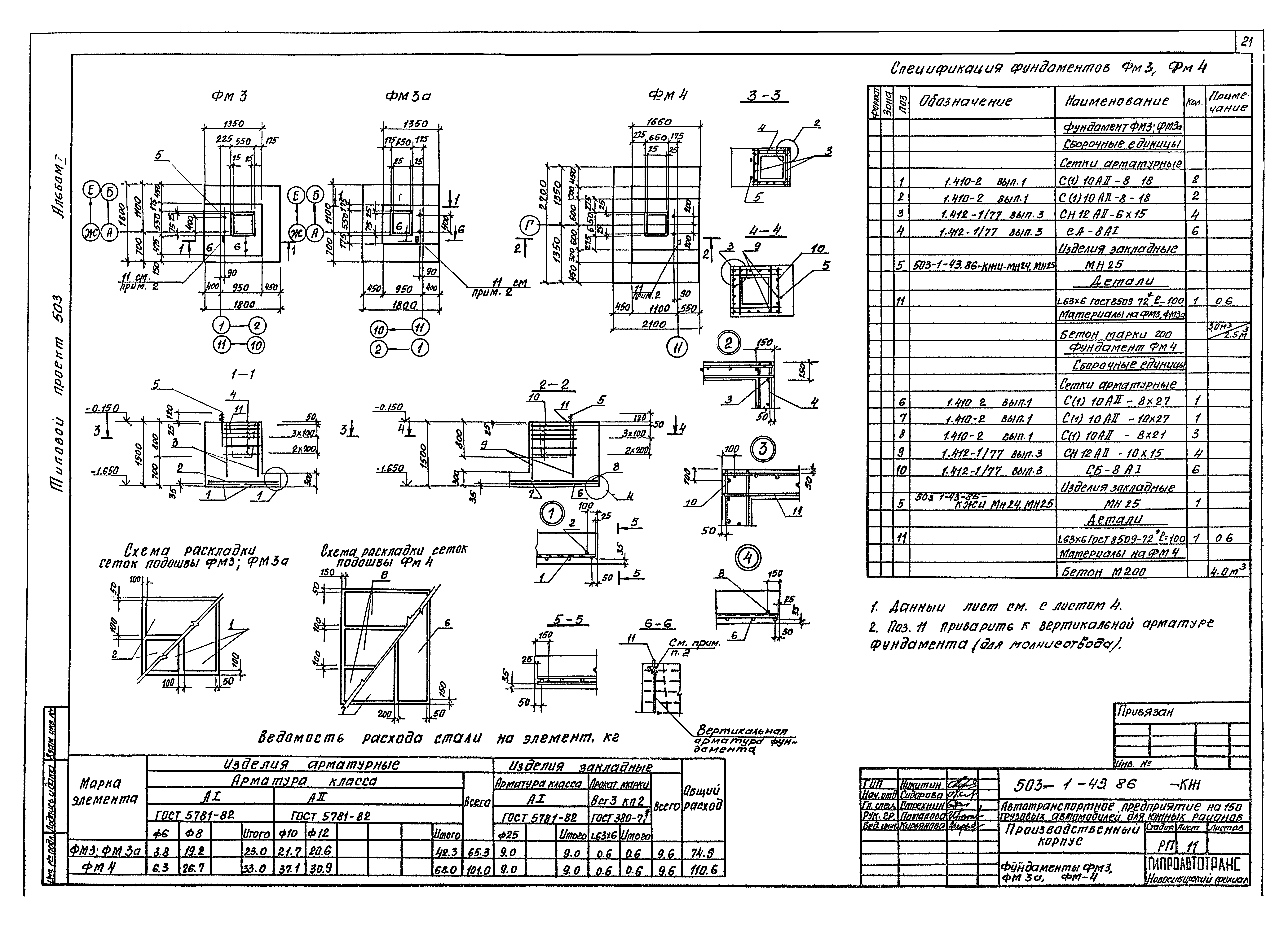
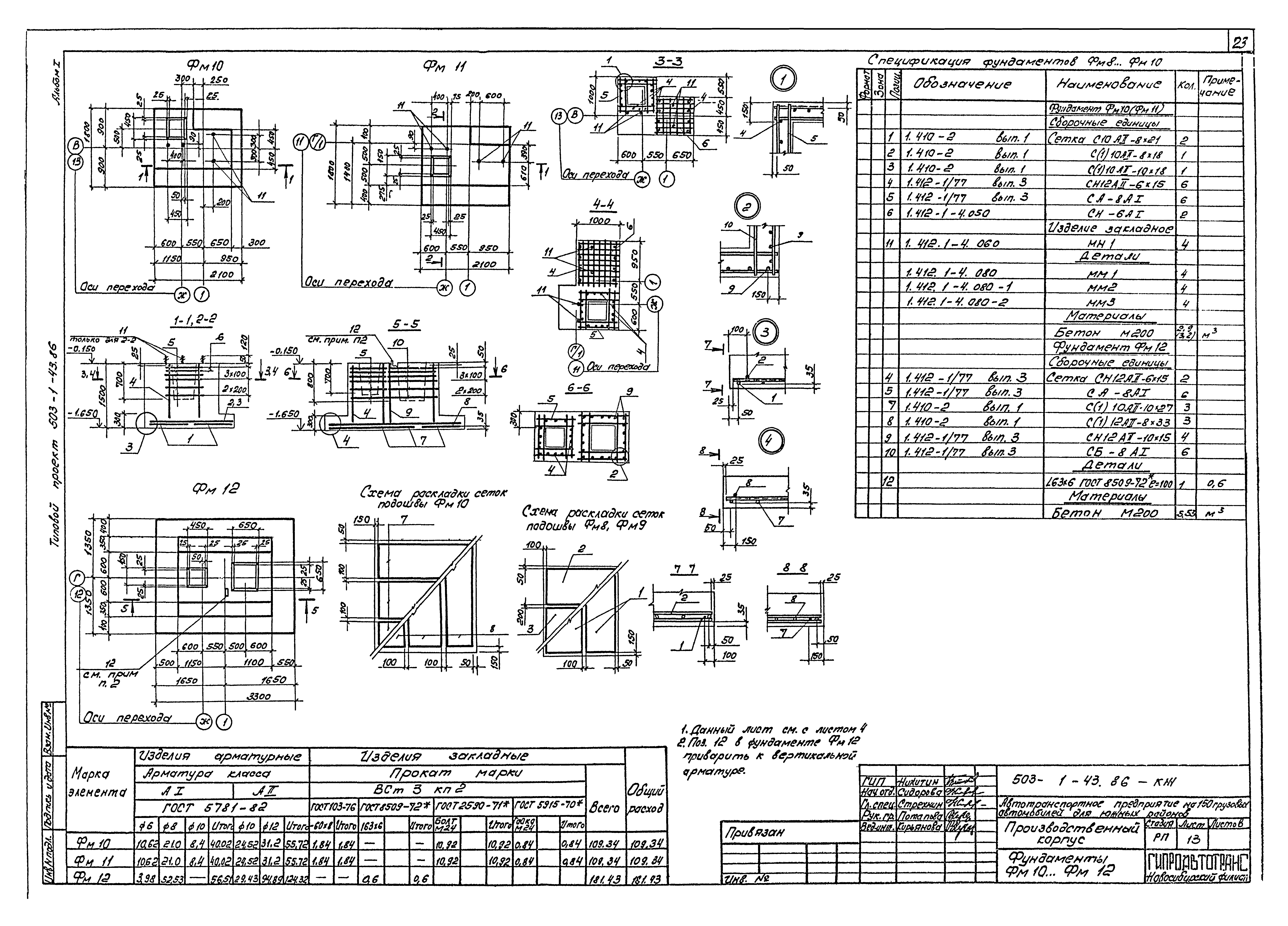
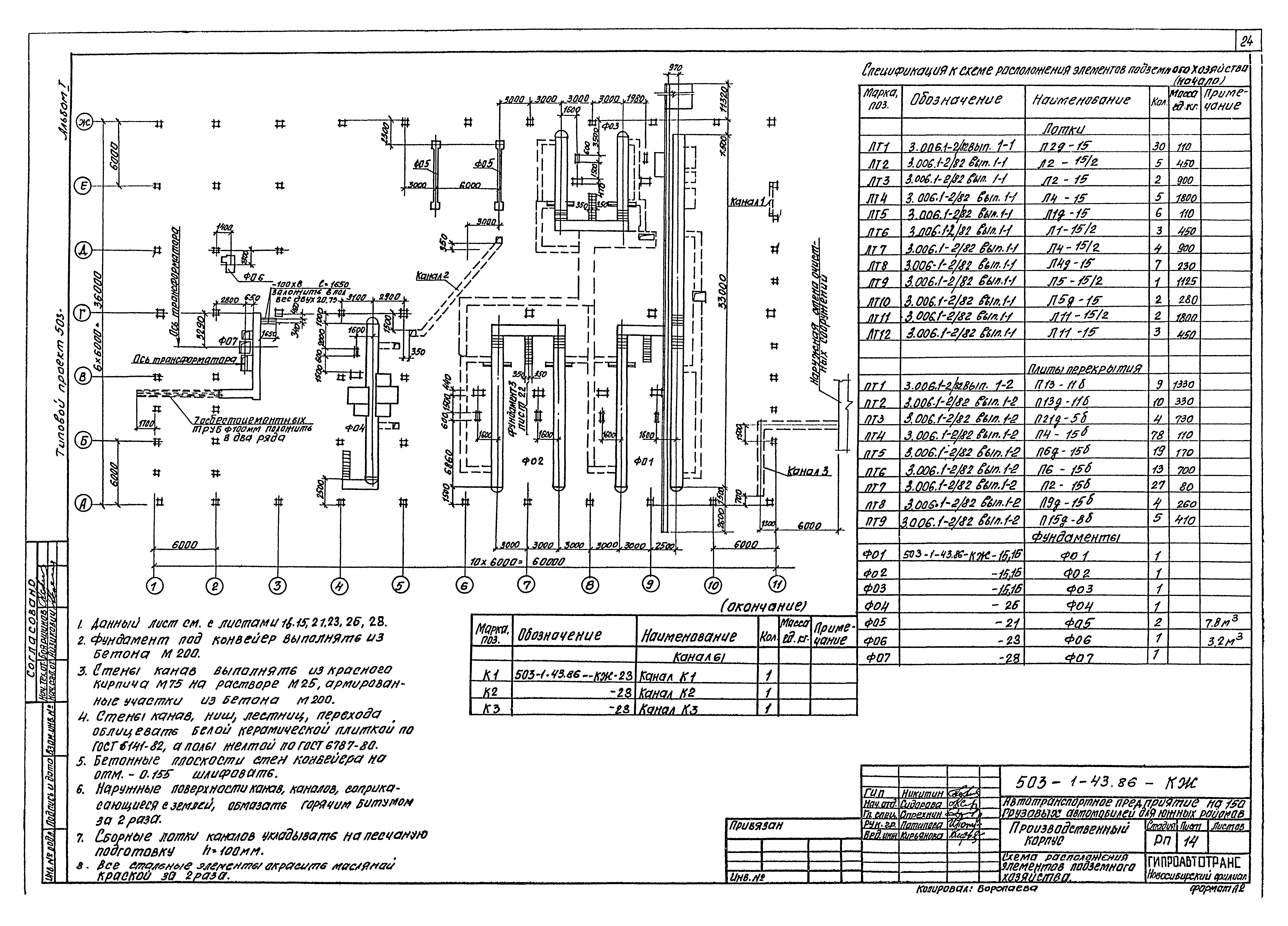
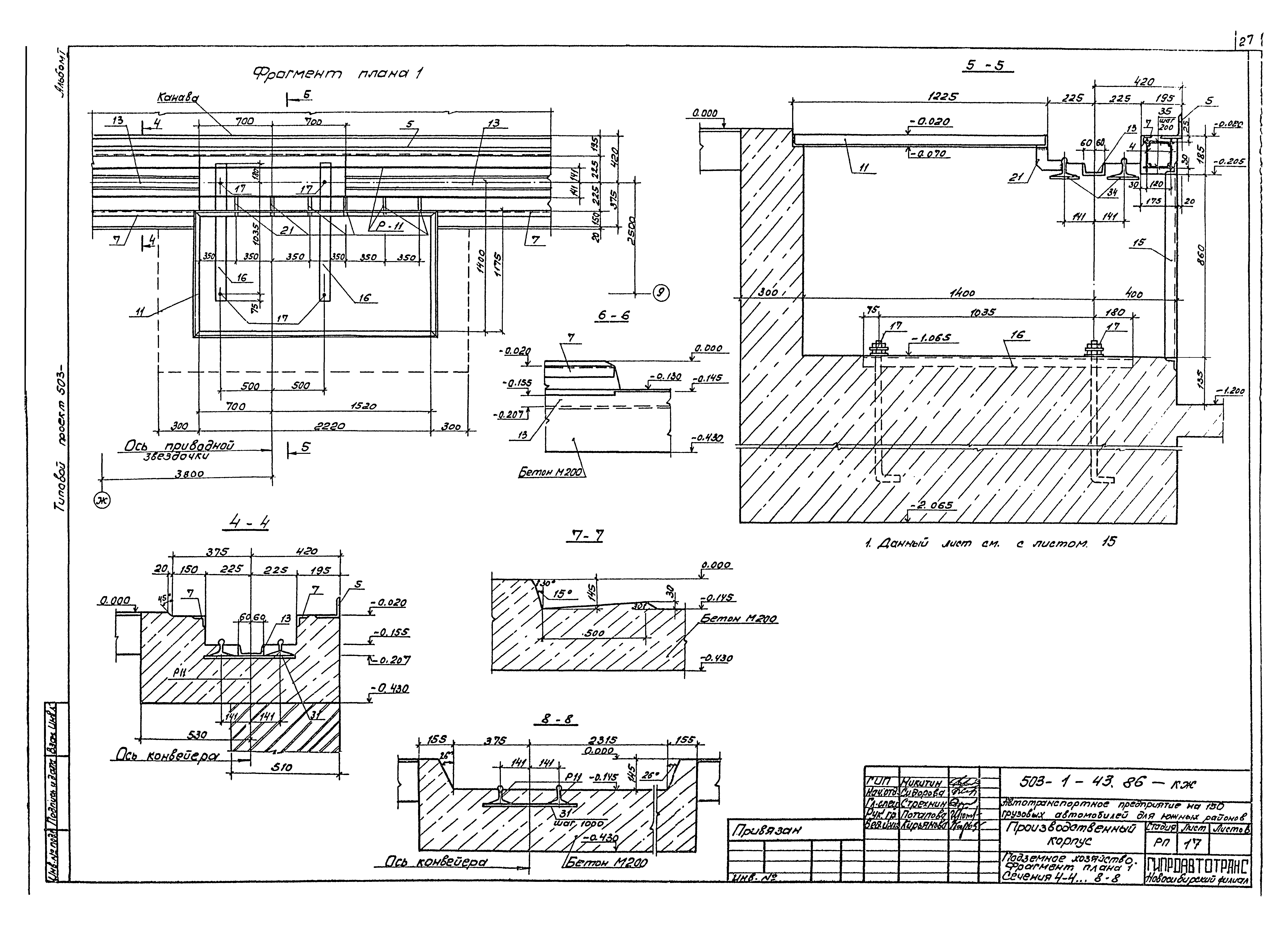
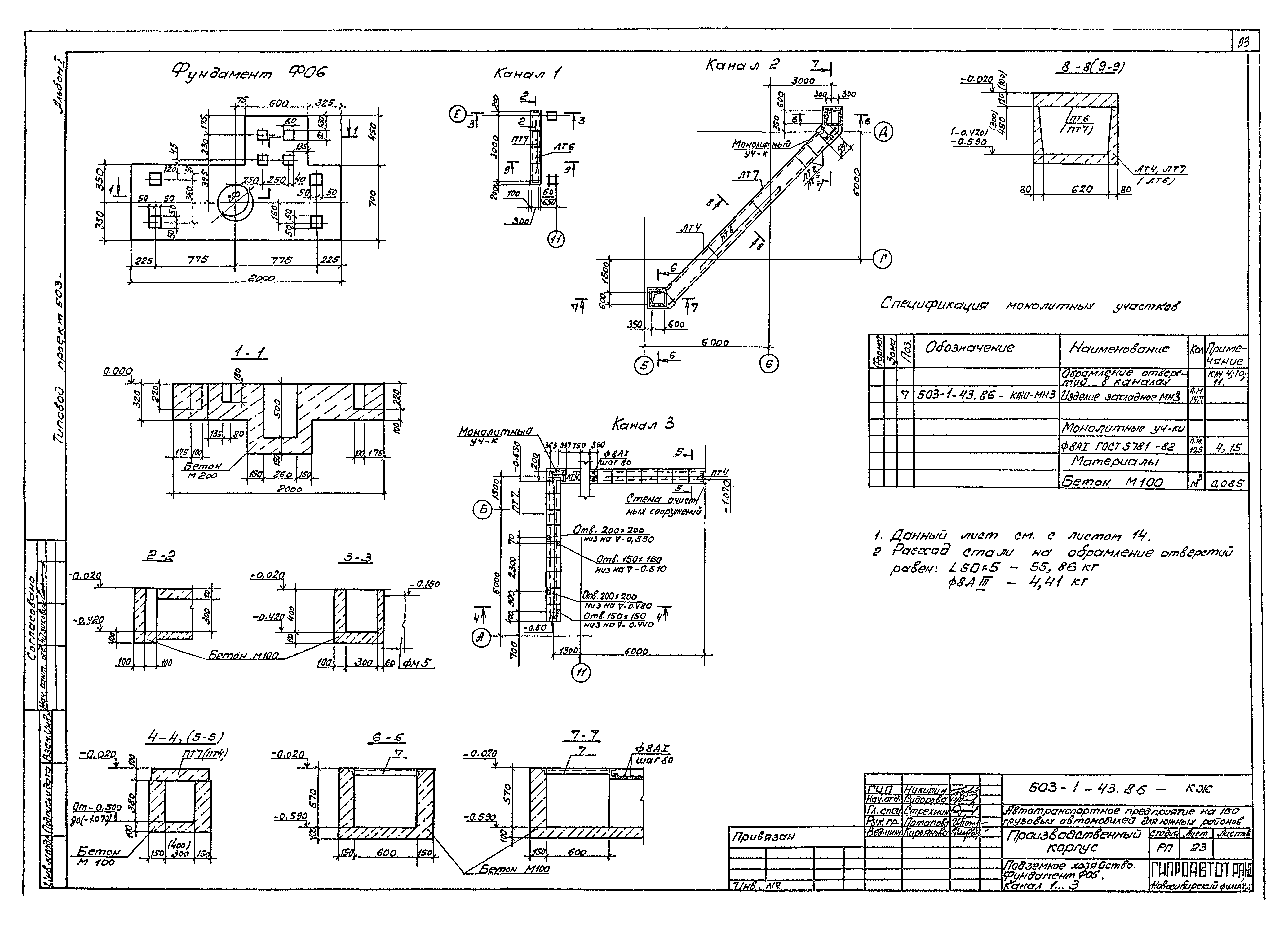
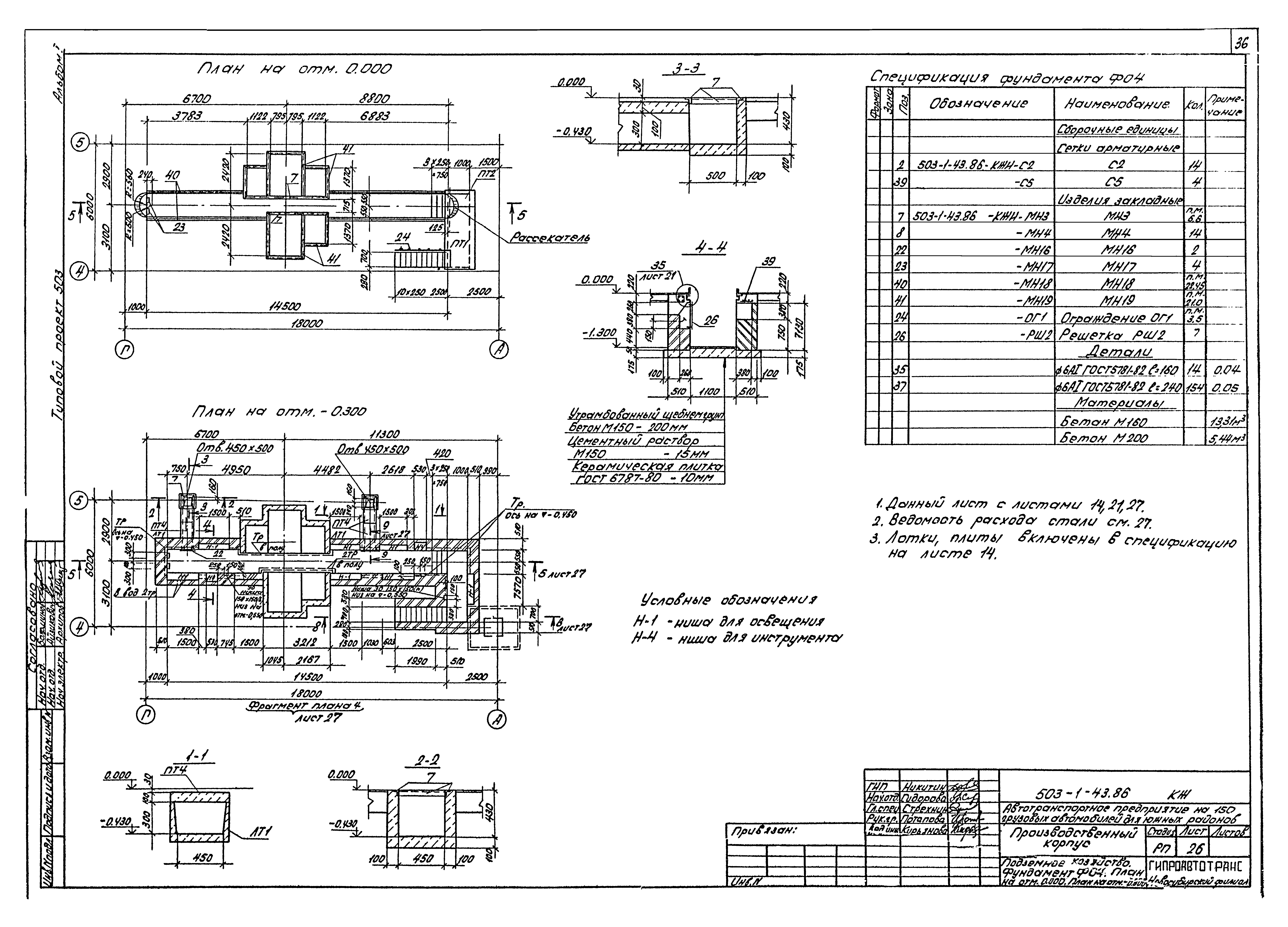
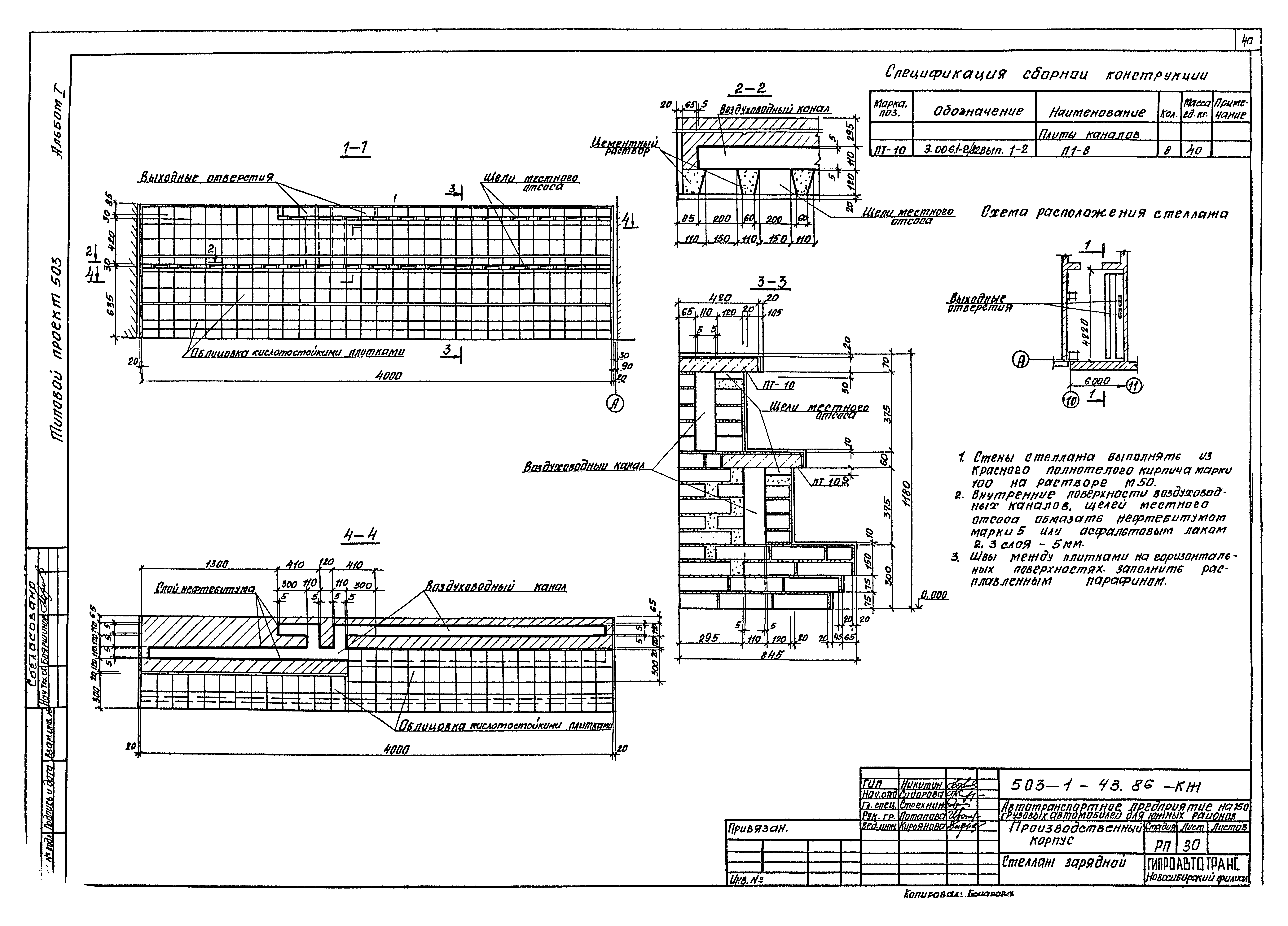
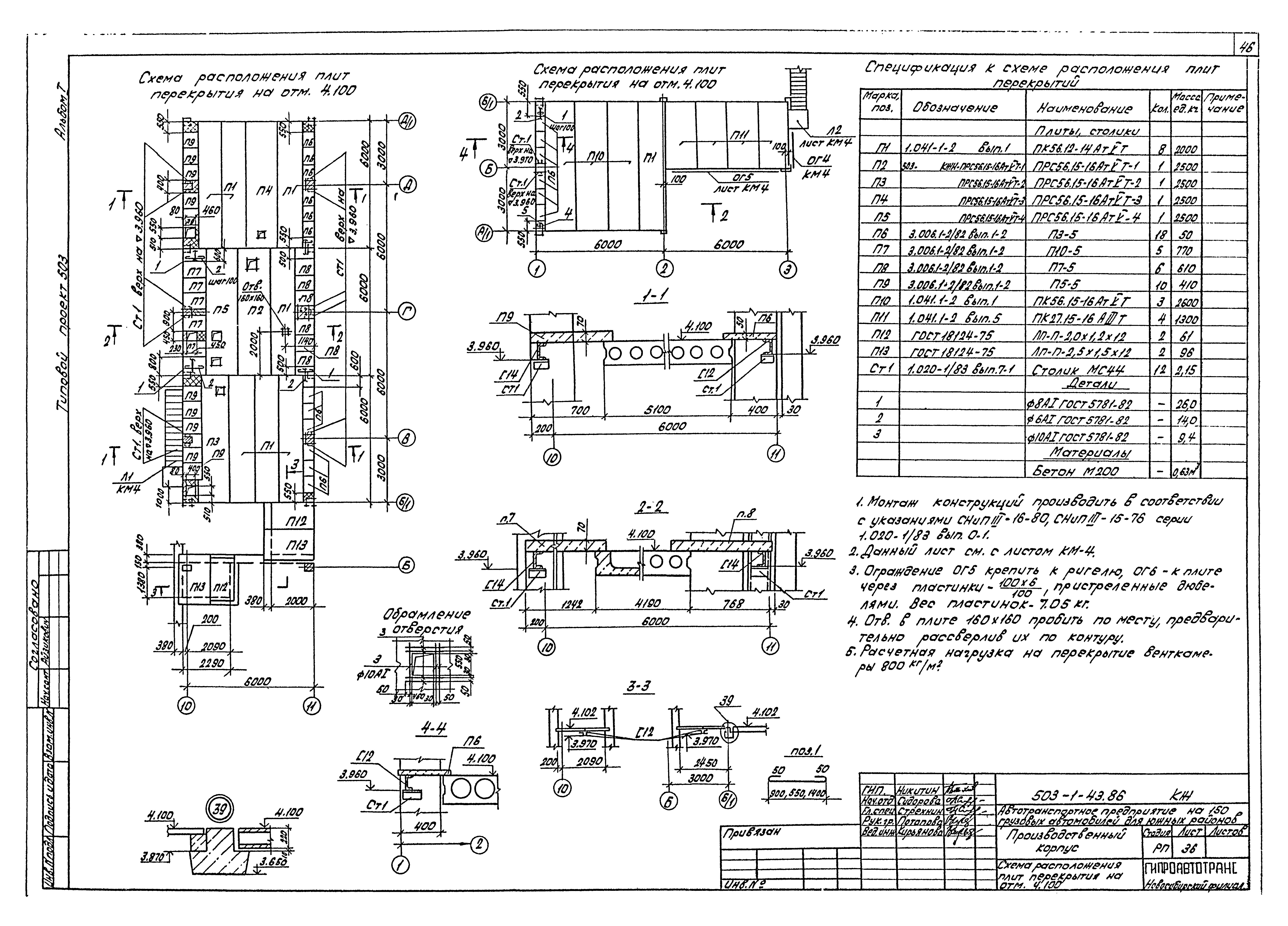
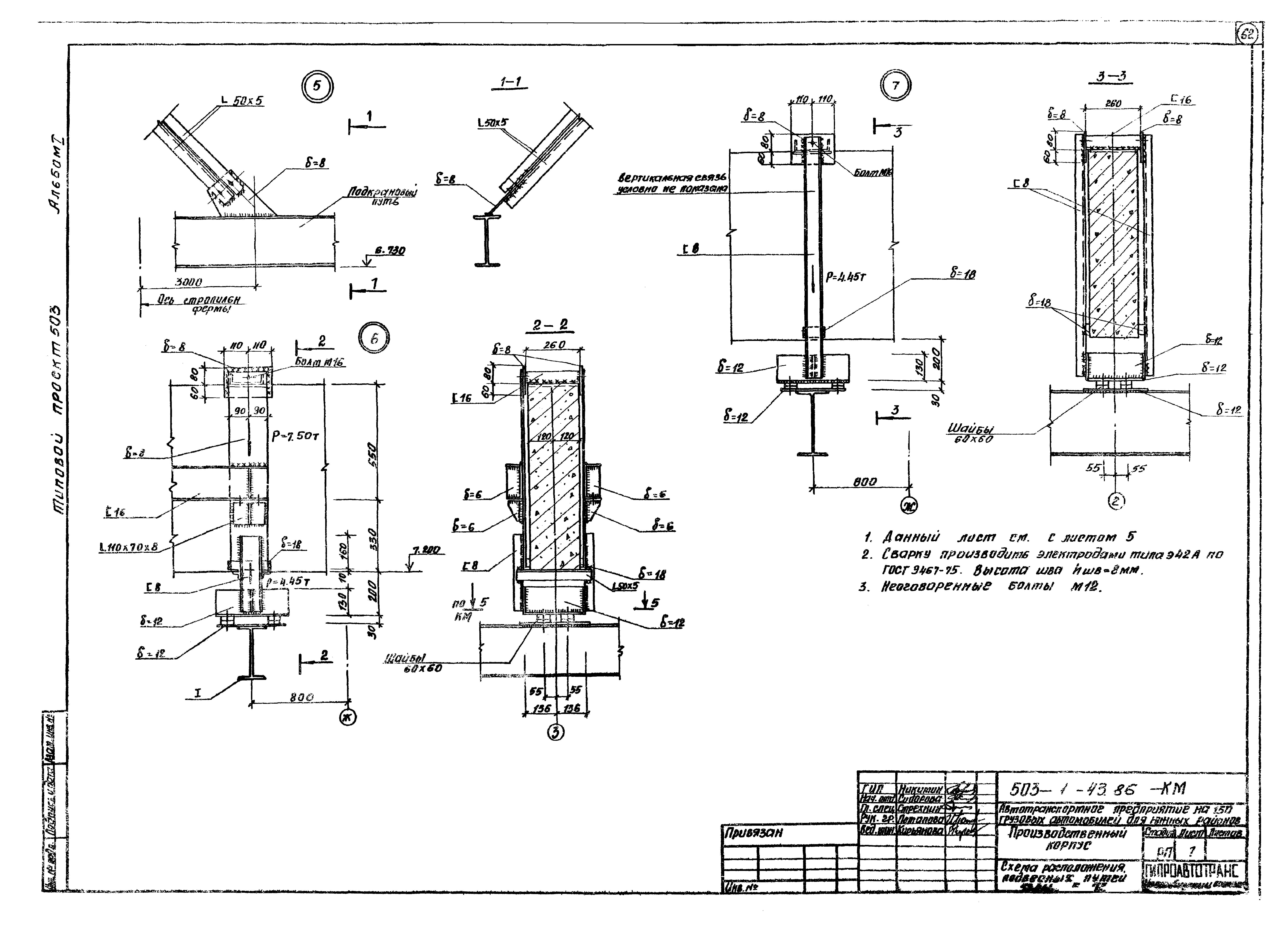
| Оглавление: | Содержание альбома Архитектурные решения Общие данные План на отм. 0.000 Венткамеры, фрагменты планов Разрезы, план кровли, план молниезащиты Фасады. Схемы заполнения оконных проемов Планы полов Схемы щитовой перегородки Конструкции железобетонные Общие данные Фундаменты. Спецификация схемы нагрузок на фундаменты Схема расположения фундаментов Фундаменты. Узлы 1…4 Фундаменты. Узлы 5…11 Фундаменты. Узлы 12…17 Фундаменты. Узлы 18…21 Фундаменты. Узлы 22…29 Фундаменты ФМ1, ФМ2, ФМ1а, ФМ9 Фундаменты ФМ3, ФМ3а, ФМ4 Фундаменты ФМ5…ФМ7 Фундаменты ФМ10…ФМ12 Схема расположения элементов подземного хозяйства Подземное хозяйство. Фундаменты ФО1…ФО3. Сечения 1-1…3-3 Подземное хозяйство. Фундаменты ФО1…ФО3. План на отм. -0.300. Сечения 19-19…23-23 Подземное хозяйство. Фрагмент плана 1. Сечения 4-4…8-8 Подземное хозяйство. Сечение 9-9…16-16 Подземное хозяйство. Фундаменты ФО1…ФО3. Сечения 17-17, 18-18 Подземное хозяйство. Фрагмент плана 2. Сечения 1-1…4-4 Подземное хозяйство. Фундаменты ФО1…ФО5. Узлы 30…35 Подземное хозяйство. Сечения 24-24…34-34 Подземное хозяйство. Фундамент ФО6. Канал 1…3 Подземное хозяйство. Спецификация ФО1 Подземное хозяйство. Спецификация ФО2, ФО3. Ведомость расхода стали ФО2…ФО4 Подземное хозяйство. Фундамент ФО4. План на отм. 0.000. План на отм. 0.300 Подземное хозяйство. Фундамент ФО4. Фрагмент плана 4. Сечения Подземное хозяйство. Фундамент ФО7. План на отм. 0.000 Подземное хозяйство. Фундамент ФО7. Сечения 2-2…5-5 Стеллаж зарядной Схема расположения колонн ригелей Схема расположения ферм. Сечение 1-1. Узел 36 Схема расположения торцового фахверка по оси 1; 11. Сечения. Узлы 37, 38 Схема расположения плит покрытия Схема расположения плит покрытия. Фундаменты ФО8…ФО11 Схема расположения плит перекрытия на отм. 4.100 Схема расположения стеновых панелей по оси 1; 11 Схема расположения стеновых панелей по оси А, Ж Схемы расположения перегородок по осям 4; 5. Спецификация перегородок Схемы расположения перегородок по осям Д, З, Г. Спецификация каркасно-обшивных вкладышей Схемы расположения перегородок по осям Г, Д, Е. Спецификация соединительных элементов насадок Схемы расположения перегородок по осям 2, 3, 10. Спецификация деталей фахверка Камера с фильтром Отстойный колодец с маслоуловителем Колодец нейтрализатор. Колодец с задвижкой Конструкции металлические Общие данные. Техническая спецификация металла Ведомость металлоконструкций по видам профилей Техническая спецификация металла (лестница, площадка ограждения) Схема расположения металлических балок перекрытия. Лестницы ЛМ1, ЛМ2 Схема расположения подвесных путей Схема расположения подвесных путей. Узлы 1…4 Схема расположения подвесных путей. Узлы 5…7 |
| Разработан: | Гипроавтотранс |
| Утверждён: | 23.09.1985 Минавтотранс РСФСР (Russian Federation Minavtotrans 42) |






























































