Скачать Типовой проект 503-1-65.87 Альбом II. Архитектурные решения. Конструкции железобетонные. Конструкции металлическиеДата актуализации: 01.01.2021
|
| Обозначение: | Типовой проект 503-1-65.87 |
| Обозначение англ: | 503-1-65.87 |
| Статус: | действует |
| Название рус.: | Альбом II. Архитектурные решения. Конструкции железобетонные. Конструкции металлические |
| Дата добавления в базу: | 01.10.2014 |
| Дата актуализации: | 01.01.2021 |
| Дата введения: | 29.09.1987 |
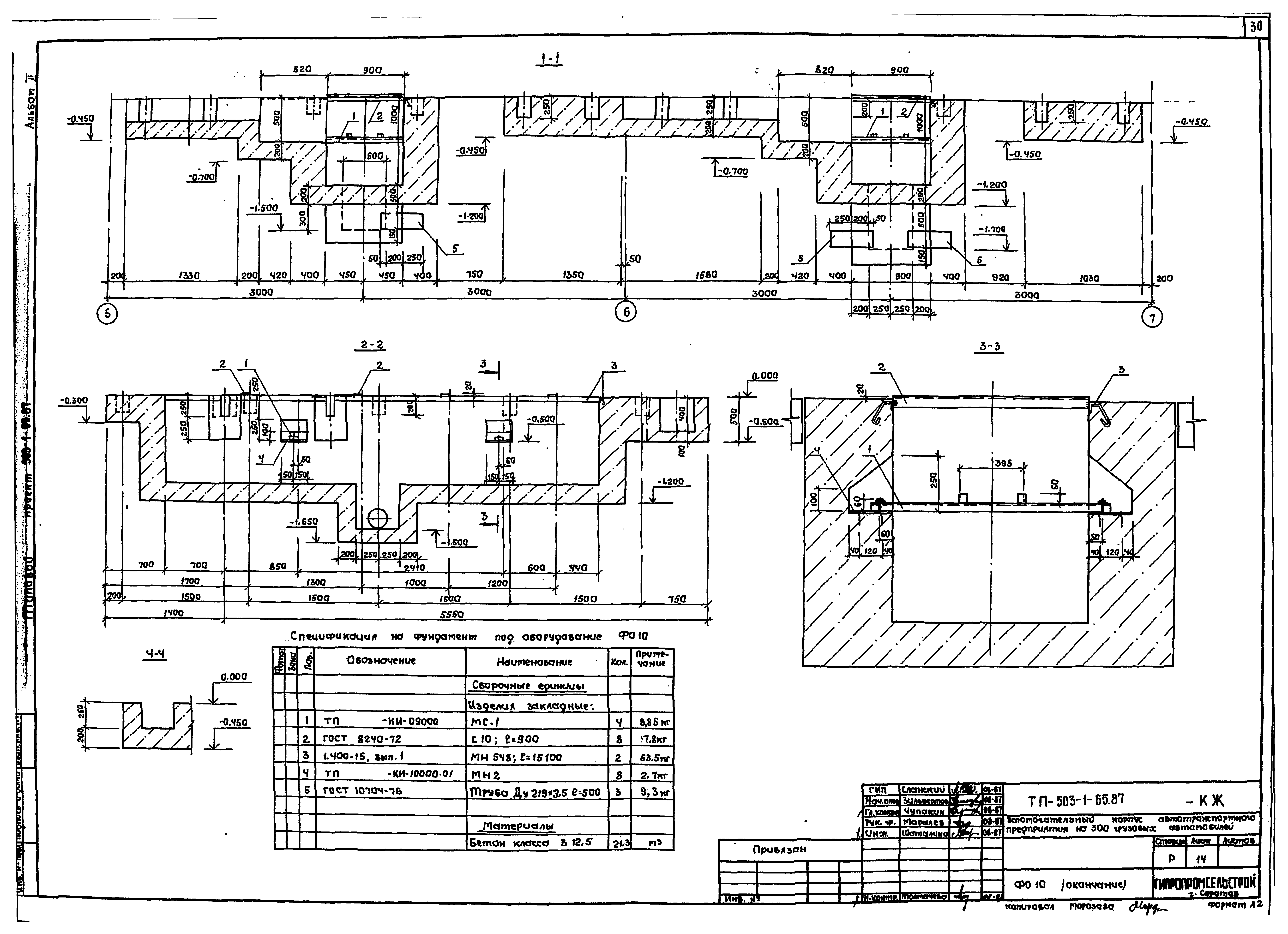
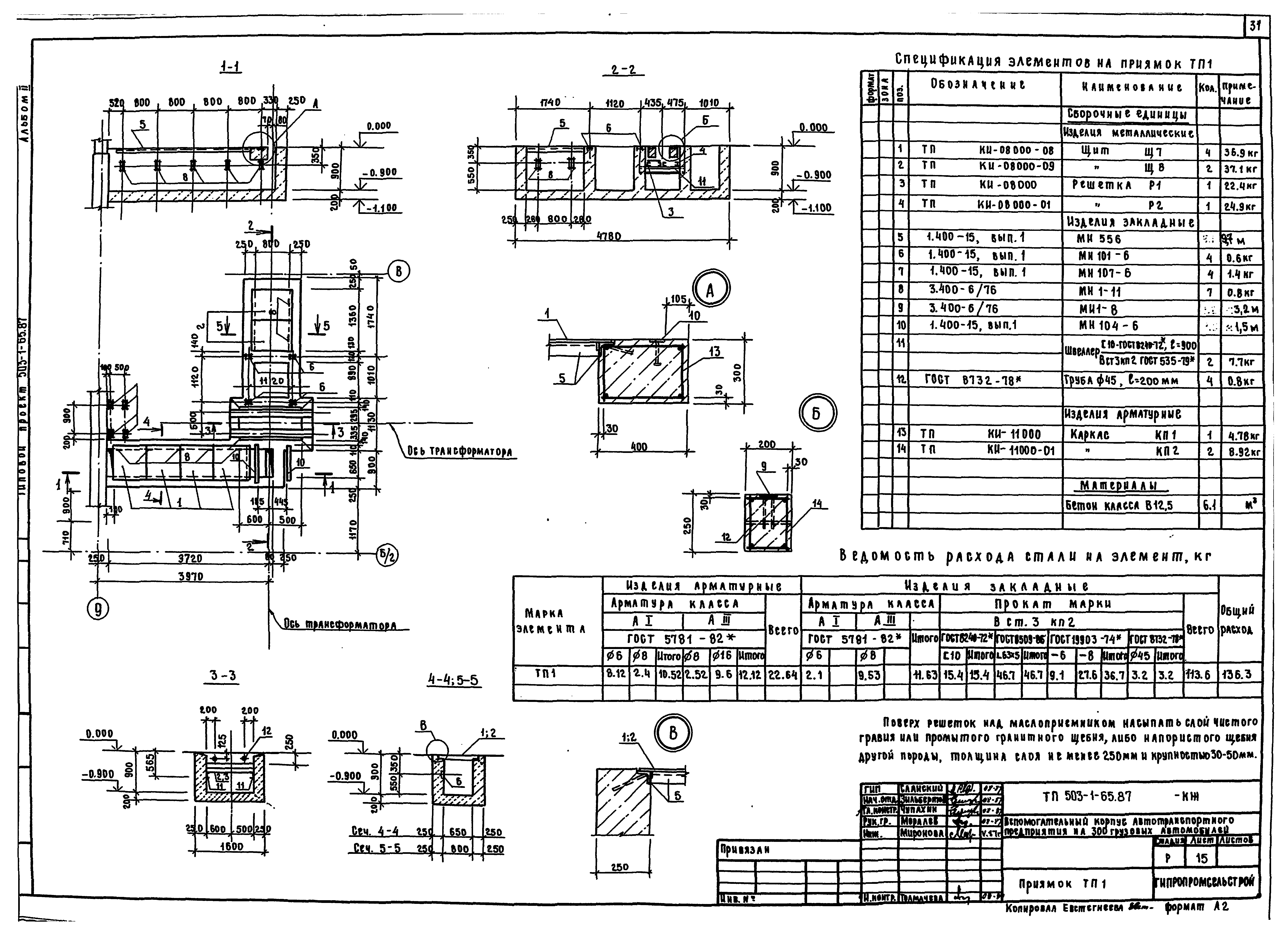
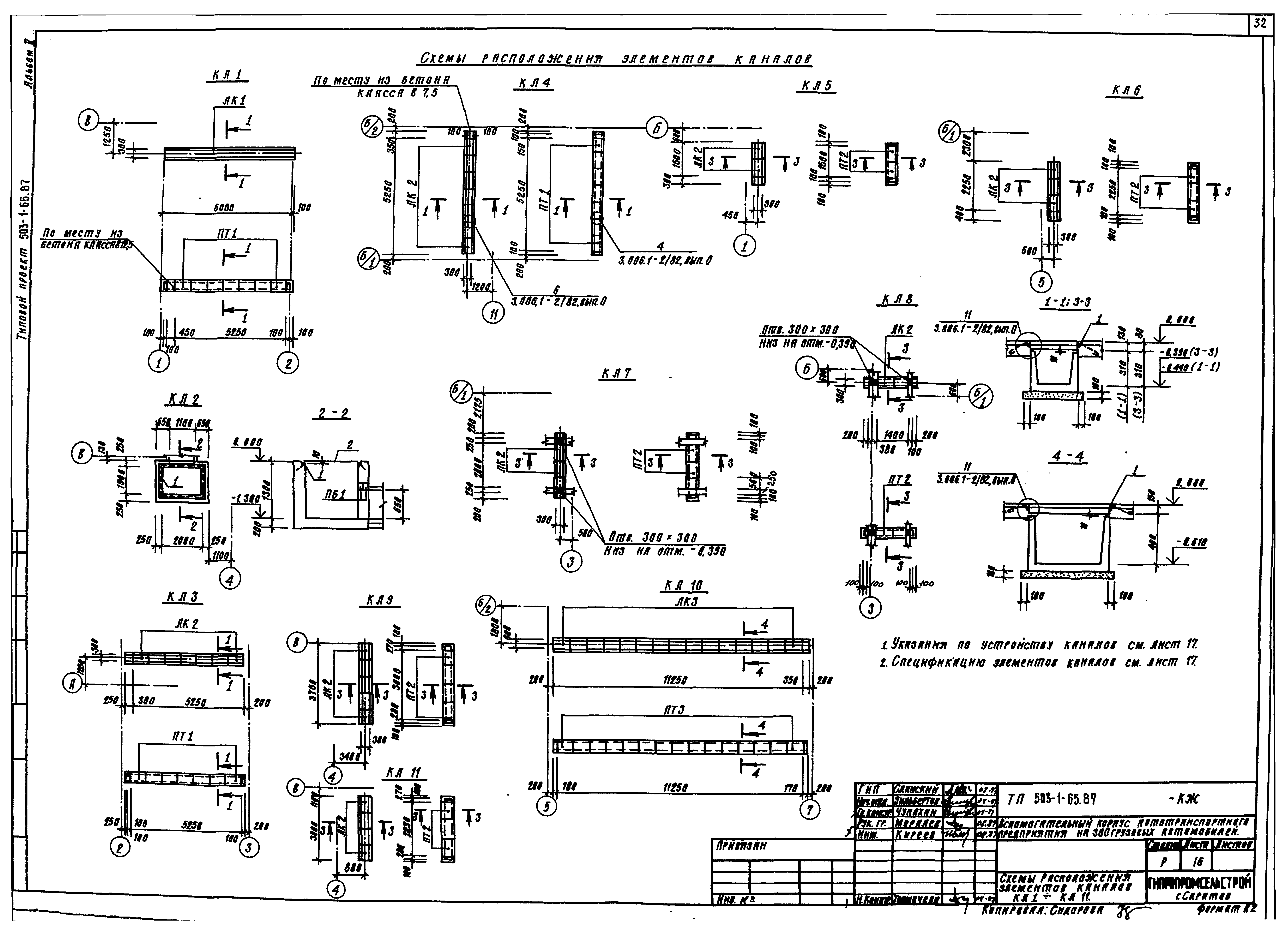
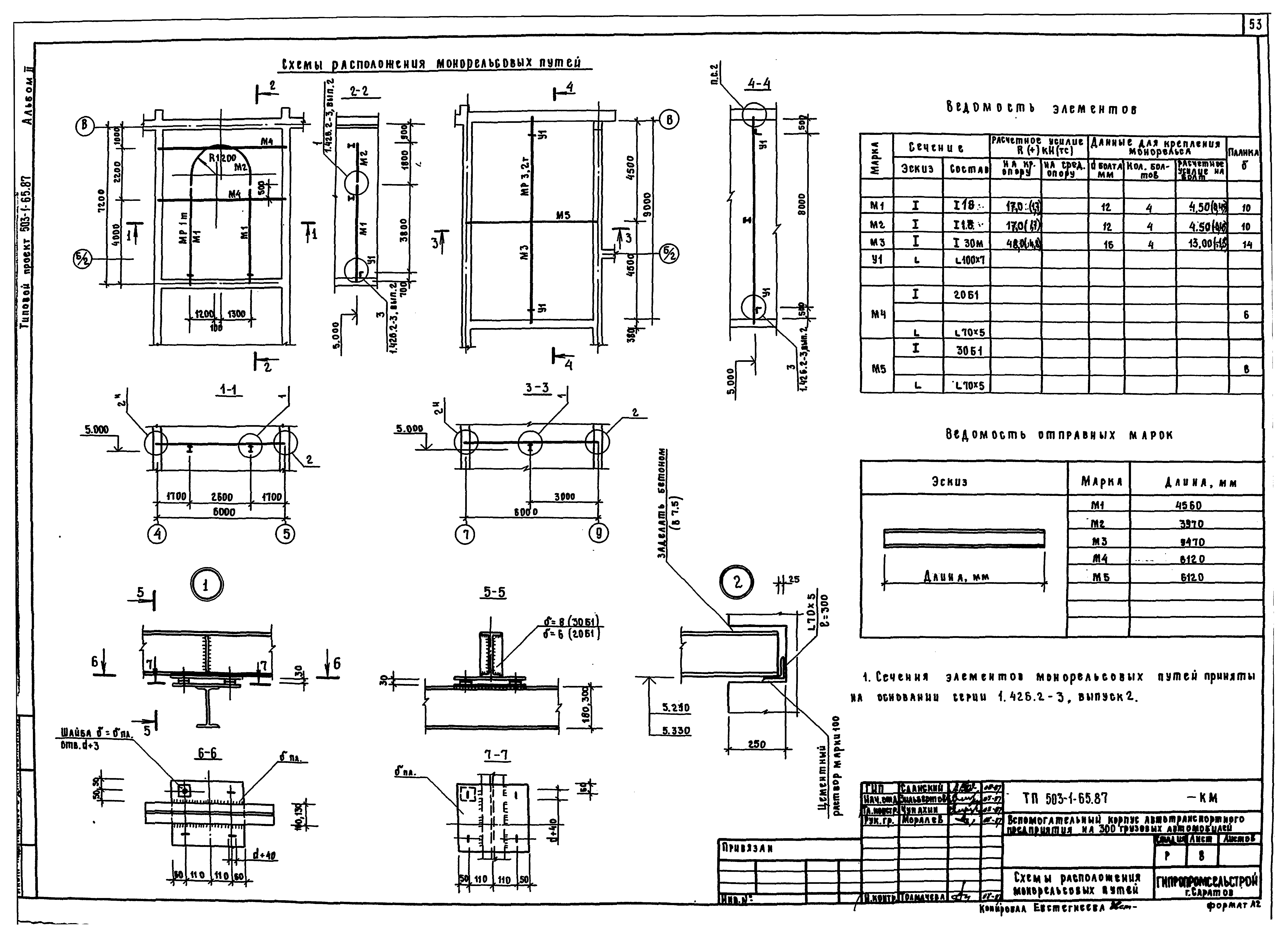
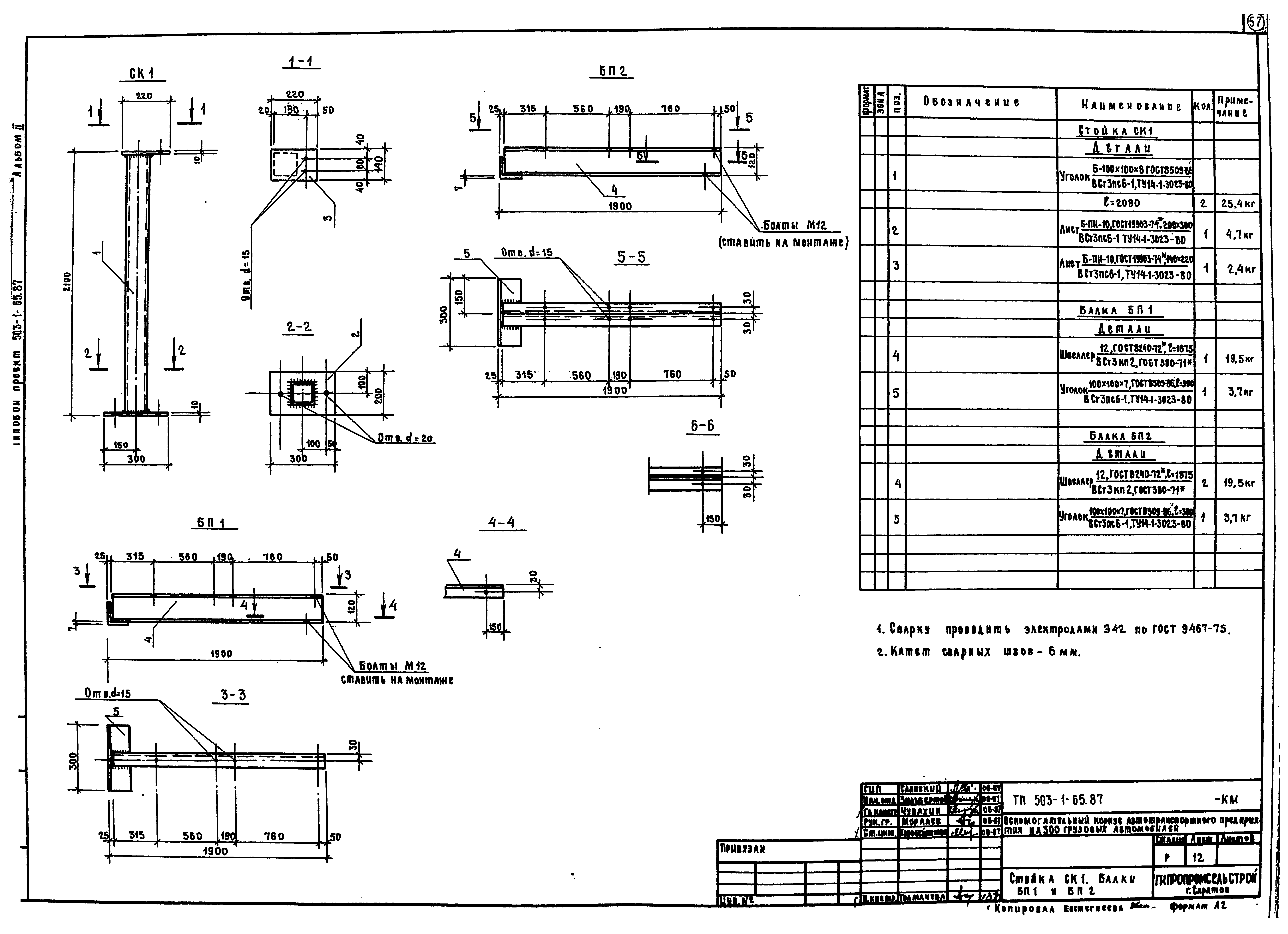
| Оглавление: | Содержание альбома Архитектурные решения Общие данные План на отм. 0.000 между осями А - Б План на отм. 0.000 между осями Б - В План на отм. 2.700 Узлы 1 - 7 Разрезы 1-1, 2-2, 3-3 Фасады 1 - 11; А - В; 11 - 1; В - А Планы кровли и полов. Фрагмент 1 Развертки стен А - И Узлы 10 - 14 Перегородки щитовые стальные. Схема 1 Конструкции железобетонные Общие данные Схема расположения фундаментов и фундаментных балок Сечения фундаментов с 1-1 по 9-9 Узлы с 1 по 6 Узлы с 7 по 11 Схема расположения элементов подземного хозяйства ФО1 - ФО5; КЛ12 ФО6 ФО7, ФО8. Приямок Пм1 ФО9 ФО10 Приямок ТП1 Схемы расположения элементов каналов КЛ1 - КЛ11 Спецификация к схемам расположения элементов каналов Схема расположения элементов каркаса Схема расположения плит покрытия Спецификация элементов к схемам, расположенным на листах 18, 19 Схема расположения плит перекрытия на отм. 2.700 Схемы расположения панелей стен Спецификация к схемам расположения панелей стен Схема расположения сборных перегородок Схема расположения элементов каркаса перегородки Каркасно-обшивные вкладыши КОВ1 - КОВ7 Фм1-1; Фм1-2; Фм2; Фм3; Фм4; Фм5 Нагрузки на фундаменты. Спецификация элементов на один фундамент Балка монолитная Б1 Конструкции металлические Общие данные Техническая спецификация металла Техническая спецификация металла на оконные переплеты Техническая спецификация металла на лестницы Схемы расположения монорельсовых путей Схемы расположения окон по осям В, 1 и 11 Схемы расположения окон по осям 11, А, 5 Схема расположения элементов площадки на отм. 2.400. Лестница ЛС1 Стойка СК1. Балки БП1 и БП2 |
| Разработан: | Гипропромсельстрой |
| Утверждён: | 12.09.1985 Госкомсельхозтехника СССР (43-85) |

























































