Скачать Типовой проект 503-1-65.87 Альбом III. Отопление и вентиляцияДата актуализации: 01.01.2021
|
| Обозначение: | Типовой проект 503-1-65.87 |
| Обозначение англ: | 503-1-65.87 |
| Статус: | действует |
| Название рус.: | Альбом III. Отопление и вентиляция |
| Дата добавления в базу: | 01.10.2014 |
| Дата актуализации: | 01.01.2021 |
| Дата введения: | 29.09.1987 |
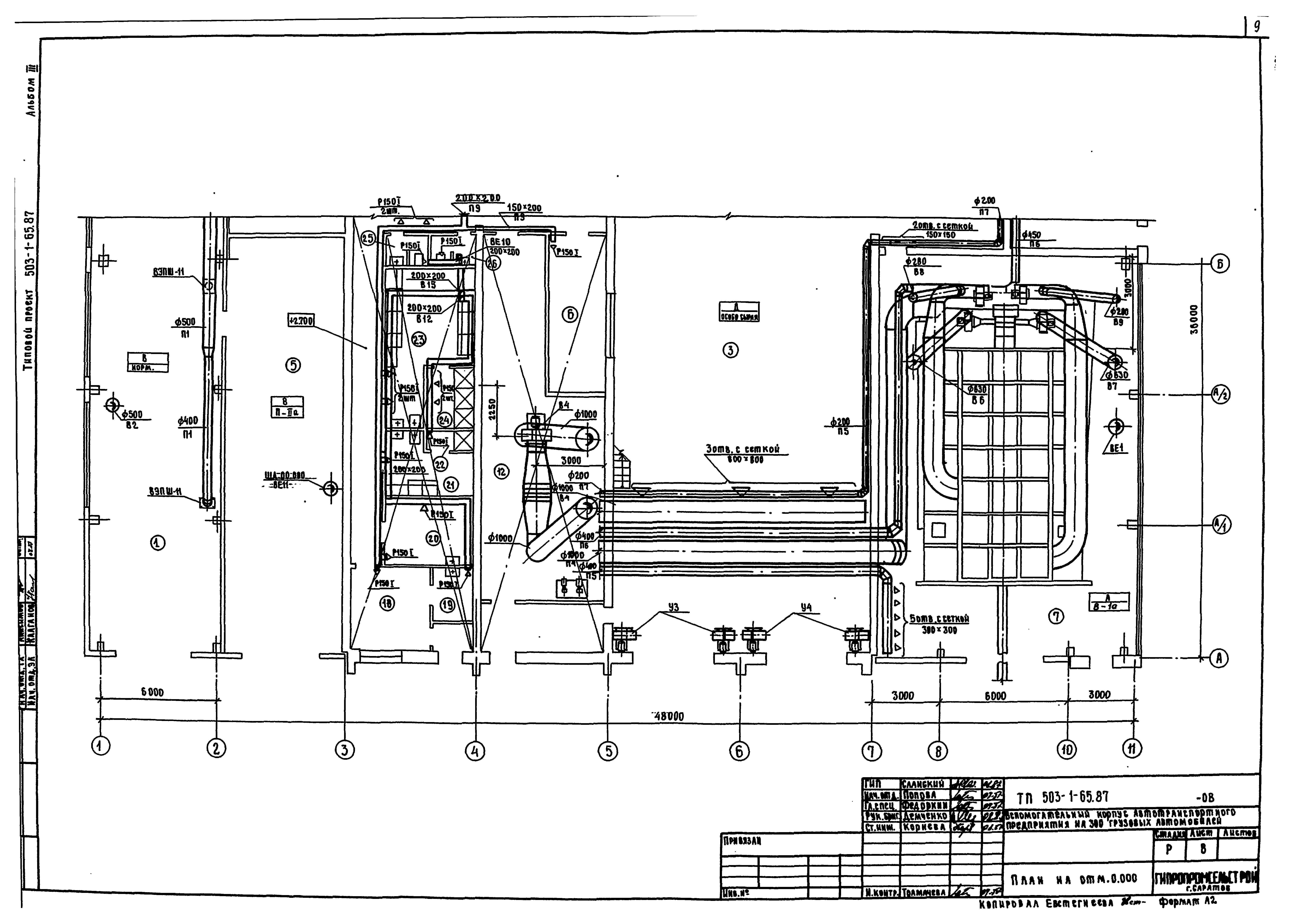
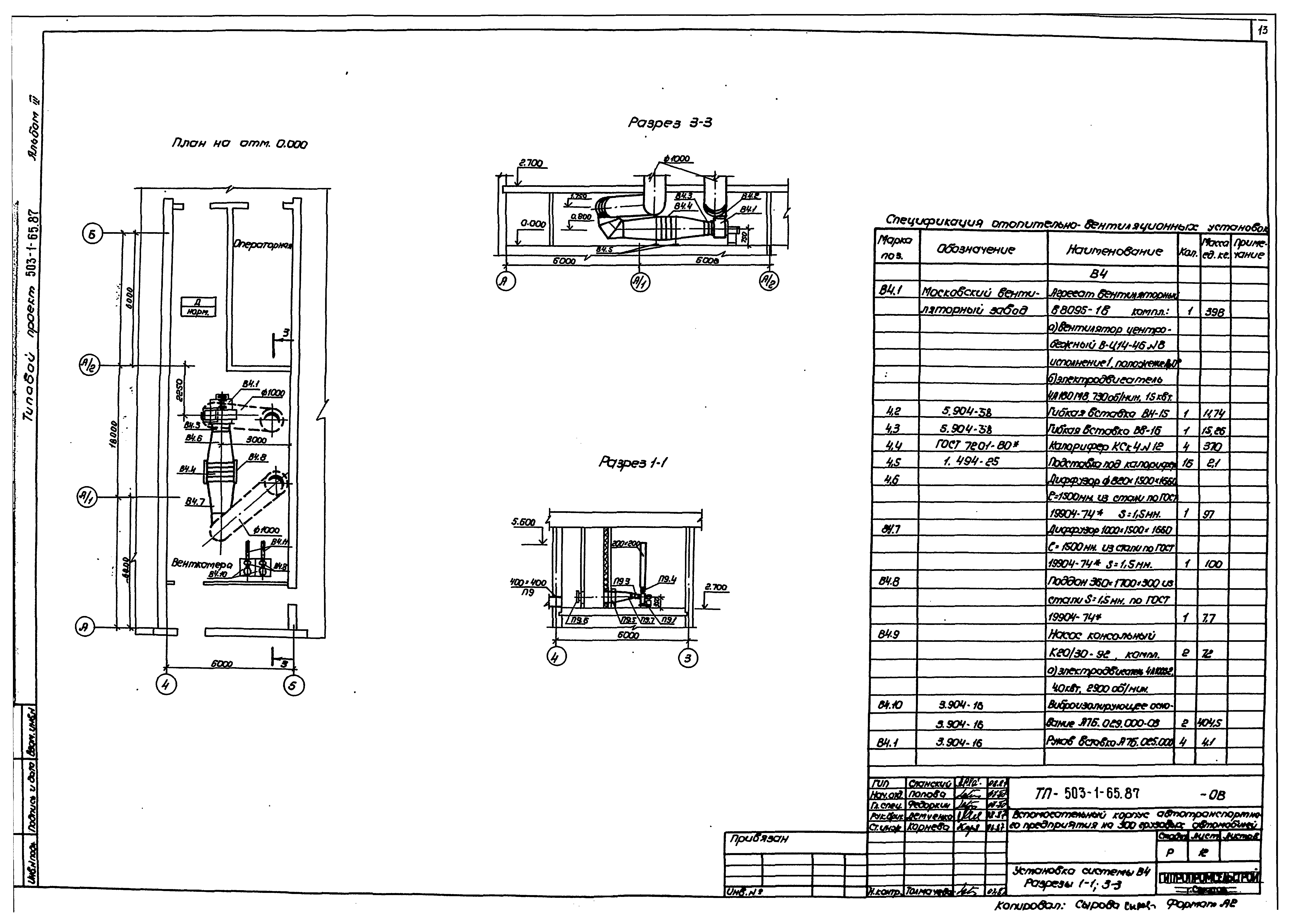
| Оглавление: | Общие данные Местные отсосы от технологического оборудования План на отм. 0.000 Установка систем П1 - П7, П9, В3, В5, В12, В13 Разрез 2-2. Спецификация отопительно-вентиляционных установок Установка системы В4. Разрезы 1-1, 3-3 Схемы систем П1 - П8 Схемы систем В1 - В10, В11, В14 Схемы систем В12, В13, П9, П10, ВЕ1 - ВЕ12 План на отм. 0.000 Схемы систем отопления 1, 2 Фрагмент 1. Схема системы теплоснабжения установок У1, У2, У3, У4, А1 - А2 План на отм. 2.700. Схема системы теплоснабжения установок П1, П2, П3, П4, П5, П6, П7, П9 План на отм. 0.000; 2.700. Схема системы ВЭР, В5 - П2, В4 - П1 Индивидуальный тепловой пункт |
| Разработан: | Гипропромсельстрой |
| Утверждён: | 12.09.1985 Госкомсельхозтехника СССР (43-85) |






















