Скачать Типовой проект 503-1-65.87 Альбом IV. Силовое электрооборудование. Электрическое освещение. Автоматизация производства. Связь и сигнализацияДата актуализации: 01.01.2021
|
| Обозначение: | Типовой проект 503-1-65.87 |
| Обозначение англ: | 503-1-65.87 |
| Статус: | действует |
| Название рус.: | Альбом IV. Силовое электрооборудование. Электрическое освещение. Автоматизация производства. Связь и сигнализация |
| Дата добавления в базу: | 01.10.2014 |
| Дата актуализации: | 01.01.2021 |
| Дата введения: | 29.09.1987 |
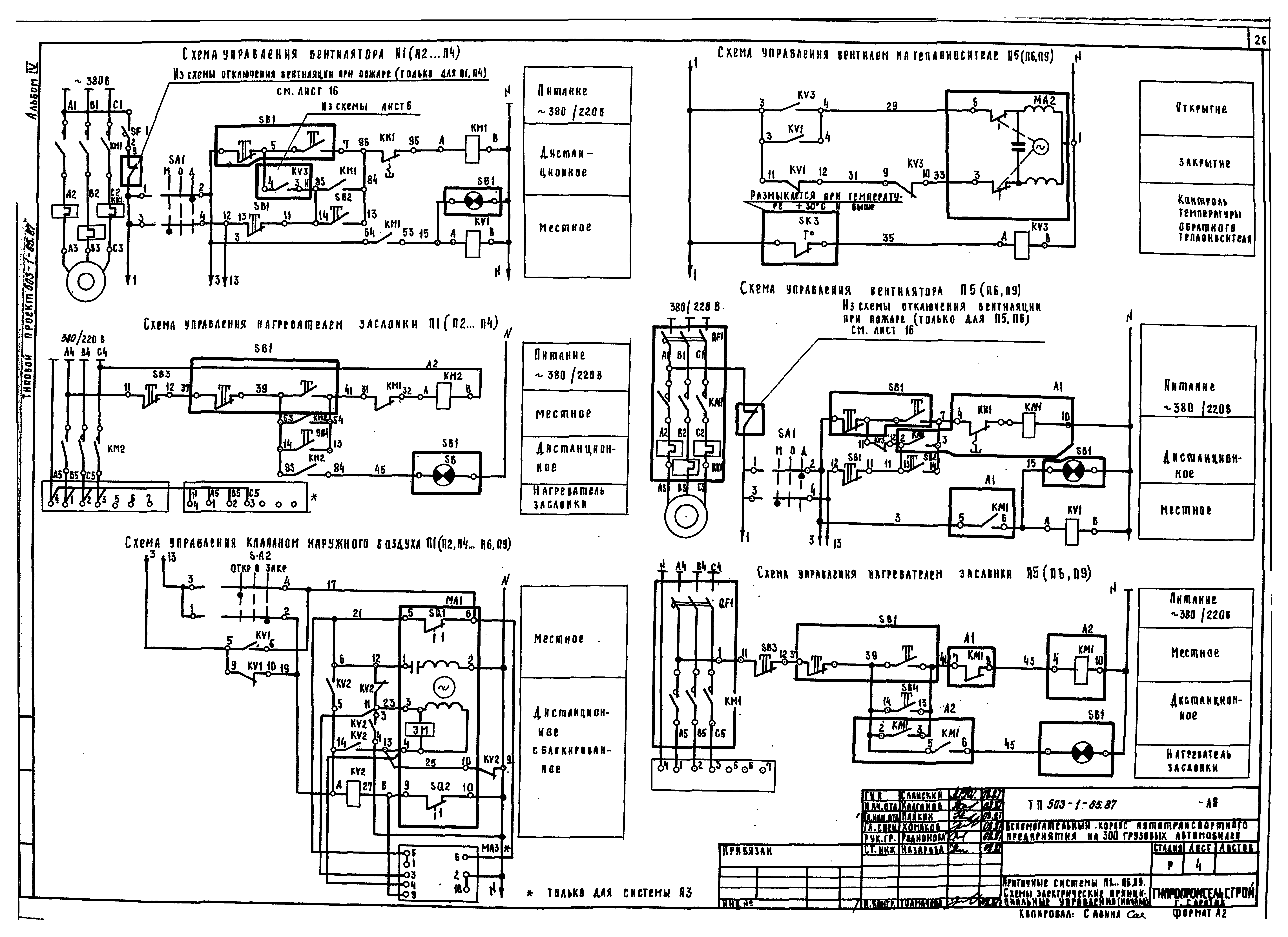
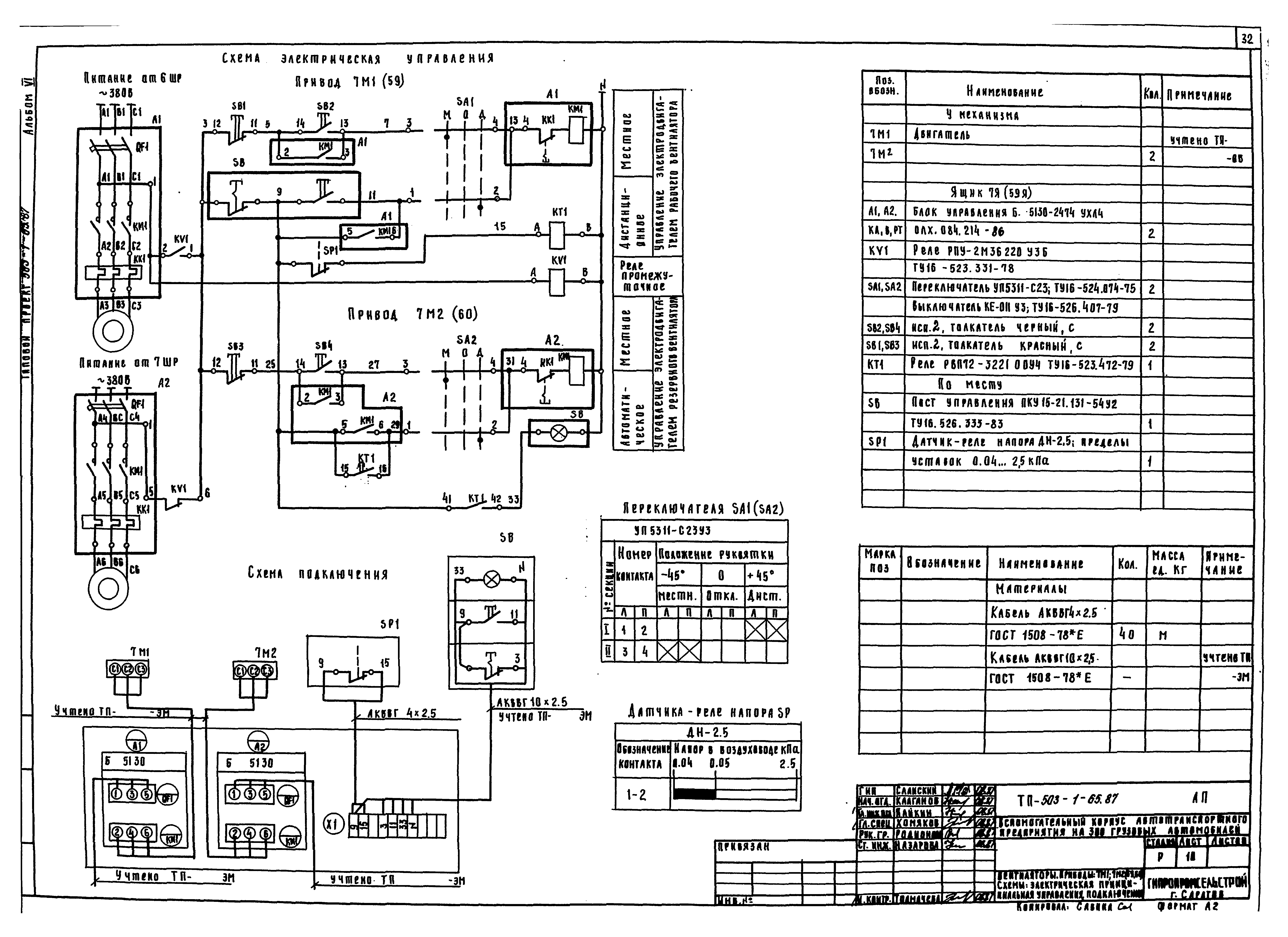
| Оглавление: | Содержание альбома Силовое электрооборудование Общие данные Питающая сеть 380/220 В. Принципиальная схема Распределительная сеть 380/220 В. Принципиальная схема Схемы подключения установки мойки грузовых автомобилей и компрессора Подстанция КТП-250. План ТП, заземления и зануления План расположения электрооборудования и прокладки распределительной сети на отм. 0.000 Планы расположения электрооборудования и прокладки распределительной сети на отм. 2.700 и кровли Планы лотков на отм. 0.000 и 2.700 Планы расположения электрооборудования, прокладки питающей сети и зануления на отм. 0.000 и 2.700. Схема молниезащиты Электроосвещение Общие данные План расположения электрического оборудования и прокладки электрических сетей на отм. 0.000. Принципиальная схема питающей сети План расположения электрического оборудования и прокладки электрических сетей на отм. 2.700. Фрагмент 1 Автоматизация производства Общие данные Приточная система П1(П2). Схема автоматизации Приточные системы П3…П6, П9. Схемы автоматизации Приточные системы П3…П6, П9. Схемы электрические принципиальные управления Приточная система П1(П2). Схема внешних проводок. Узлы "А", "Б" Приточная система П3(П4). Схема внешних проводок. Узлы "А", "Б" Приточная система П5(П6, П9). Схема внешних проводок Вентиляторы. Приводы 7М1, 7М2(59, 60). Схемы электрическая принципиальная управления, подключения Воздушная завеса. Приводы 24(25…27; 43…46). Схемы электрическая принципиальная управления Воздушная завеса. Приводы 24(25…27; 43…46). Схемы автоматизации, внешних проводок Конвейеры ОПТ-5537. Привод 36(37). Схемы электрическая принципиальная управления, подключения Конвейеры ОПТ-5537. Привод 36(37). Схемы расположения Задвижка. Привод 29. Схемы электрическая принципиальная управления, подключения Отключение вентиляции при пожаре. Схема электрическая принципиальная Отключение вентиляции при пожаре. Схема расположения Станция противопожарного водоснабжения. Принципиальная электрическая схема шкафа ШУ1 типа ЯЛИ 3001М-0004А Станция противопожарного водоснабжения. Принципиальная электрическая схема шкафа ШН1 типа ШОИ 5001-4174 Станция противопожарного водоснабжения. Принципиальная электрическая схема шкафа ШУ1 типа ЯЛИ 9001М-0004А Станция противопожарного водоснабжения. Перечень элементов принципиальных схем Станция противопожарного водоснабжения. Кабельный журнал совмещенный с трубозаготовительной ведомостью Станция противопожарного водоснабжения. Схема подключения Станция противопожарного водоснабжения. Схема подключения шкафа ШУ1 типа ЯЛИ 9001М-0004А Связь и сигнализация Общие данные. Схема расположения устройств связи и сигнализации План на отм. 0.000 План на отм. 0.000 (вариант в легких металлических конструкциях) Схемы подключений Опросный лист |
| Разработан: | Гипропромсельстрой |
| Утверждён: | 12.09.1985 Госкомсельхозтехника СССР (43-85) |






















































