Скачать Типовой проект 503-1-65.87 Альбом V. Чертежи индустриальных строительных конструкций и изделийДата актуализации: 01.01.2021
|
| Обозначение: | Типовой проект 503-1-65.87 |
| Обозначение англ: | 503-1-65.87 |
| Статус: | действует |
| Название рус.: | Альбом V. Чертежи индустриальных строительных конструкций и изделий |
| Дата добавления в базу: | 01.10.2014 |
| Дата актуализации: | 01.01.2021 |
| Дата введения: | 29.09.1987 |
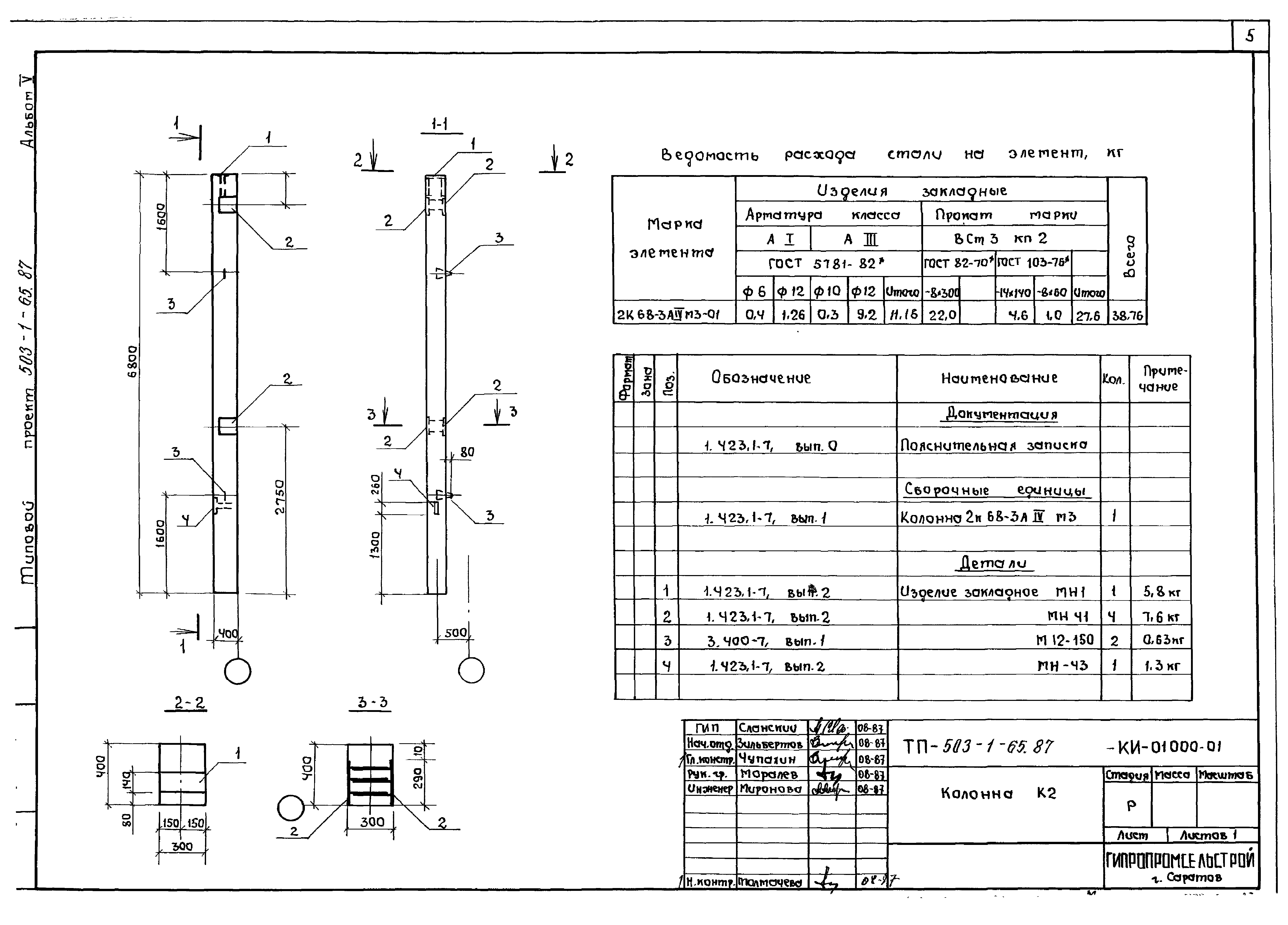
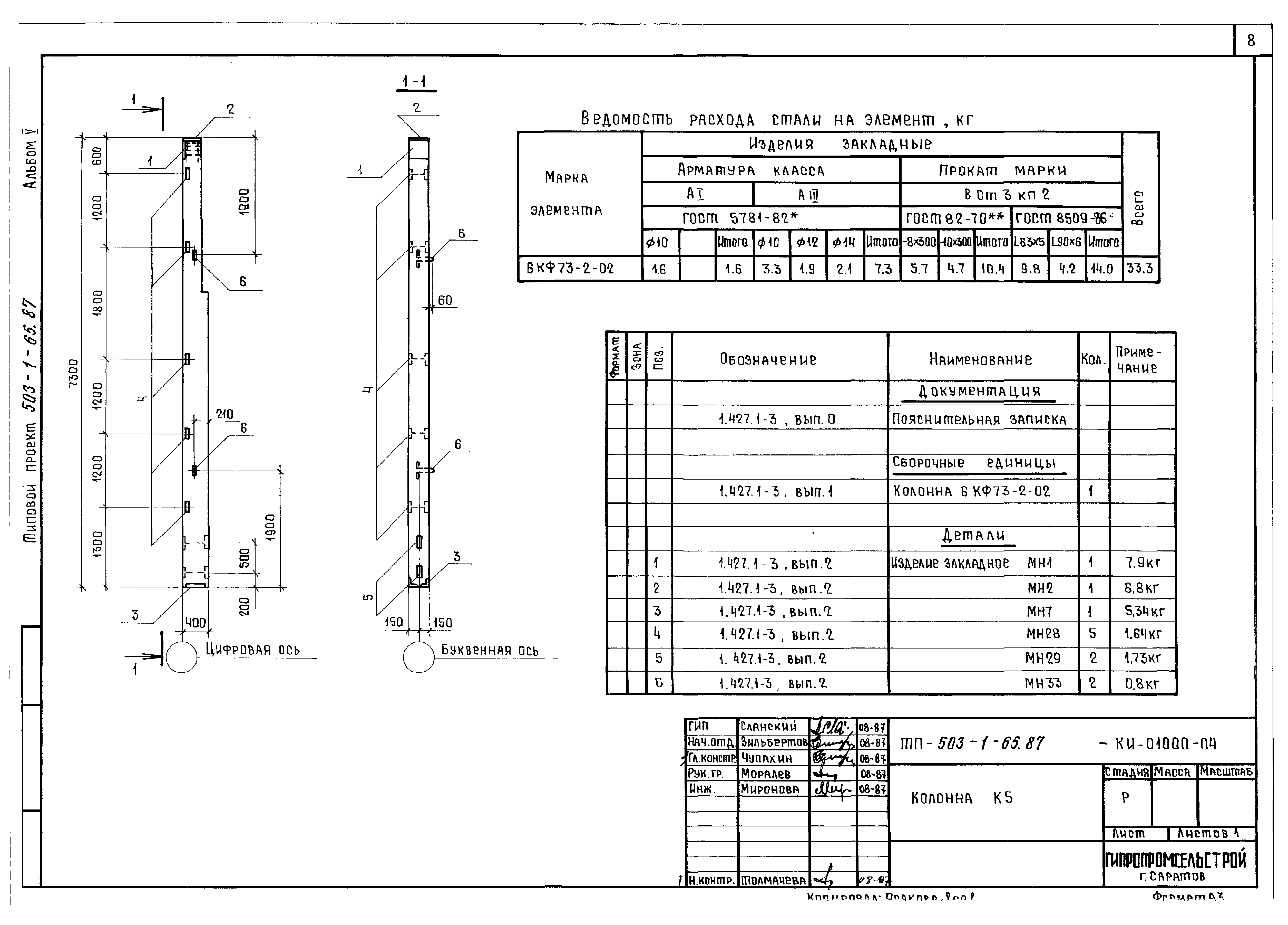
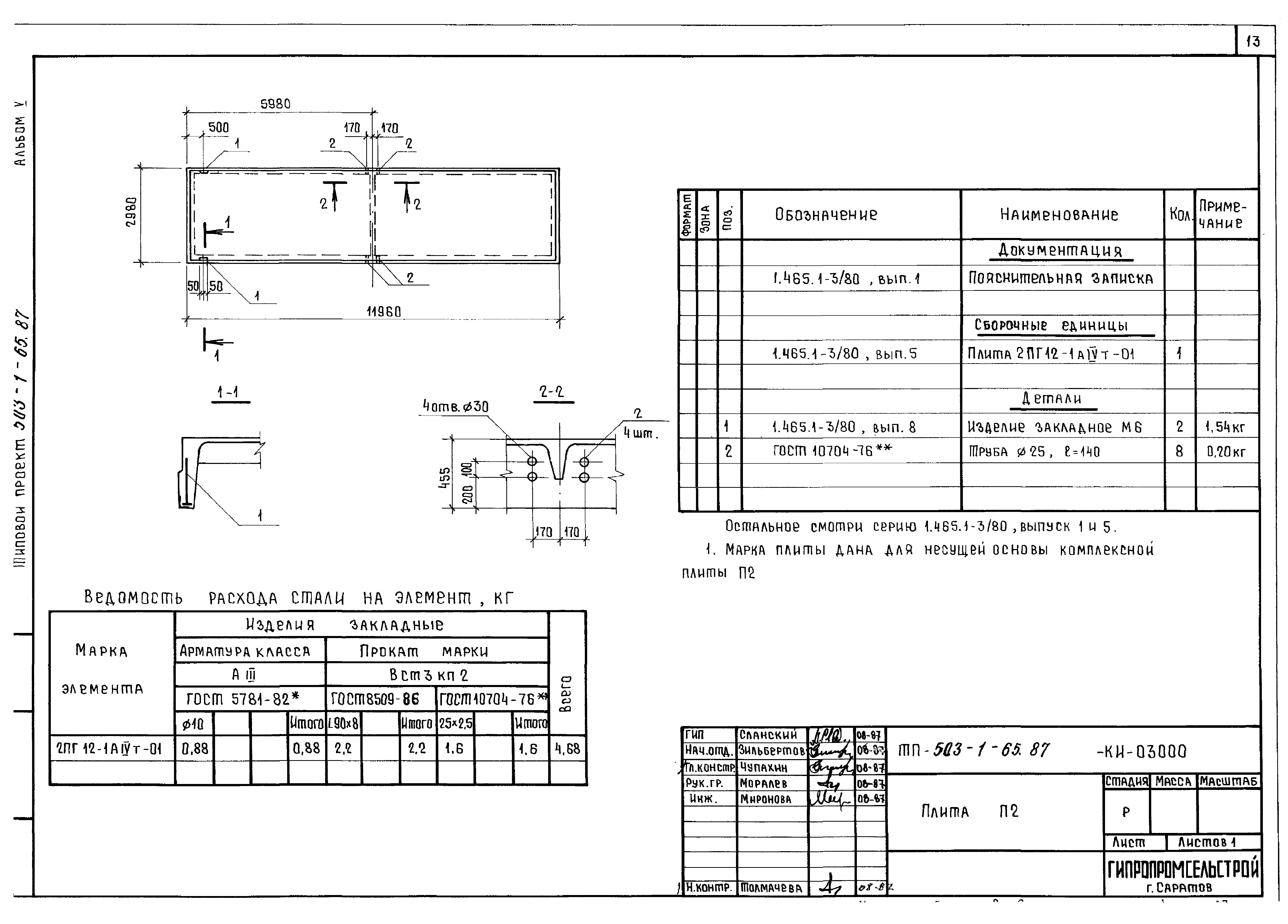
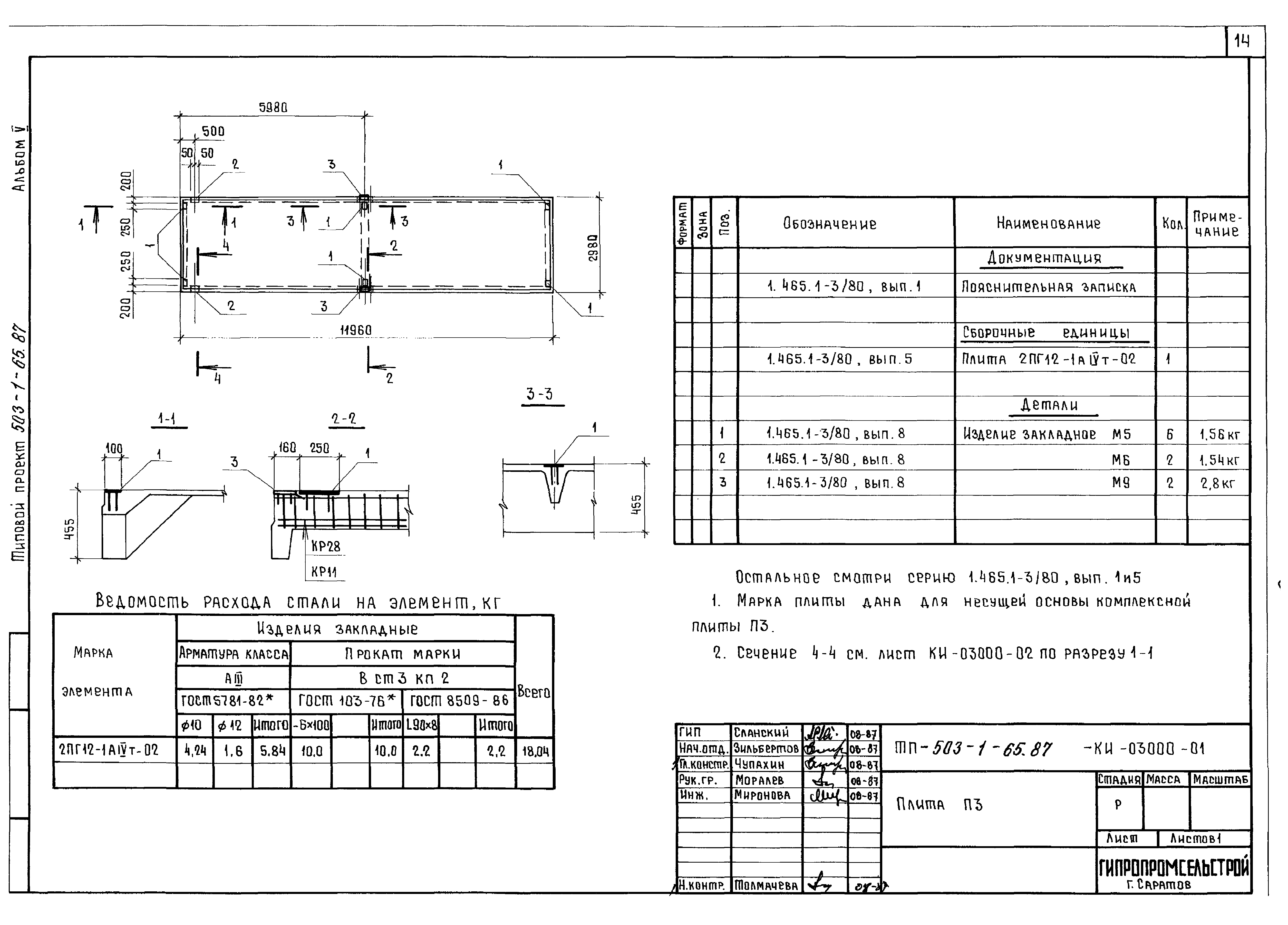
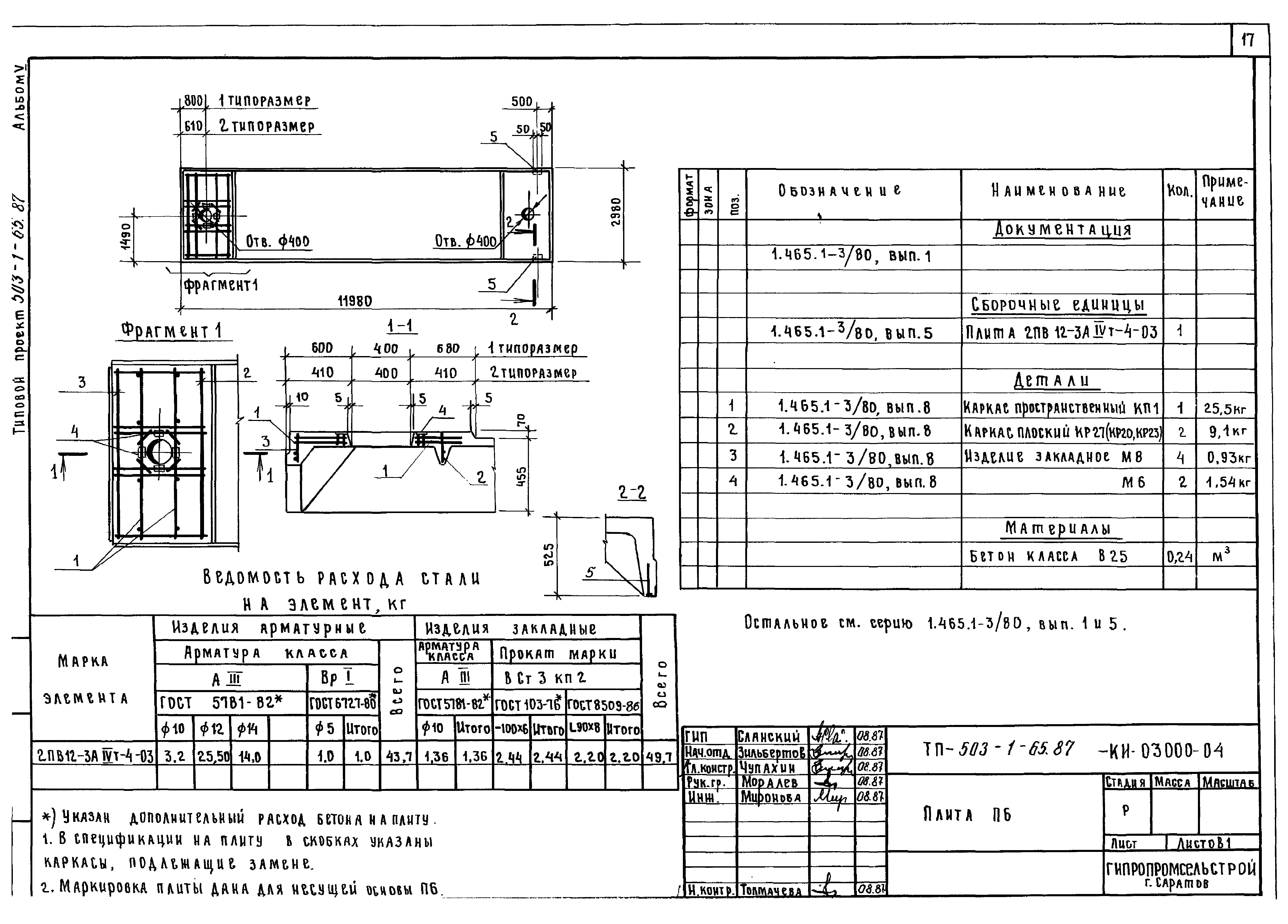
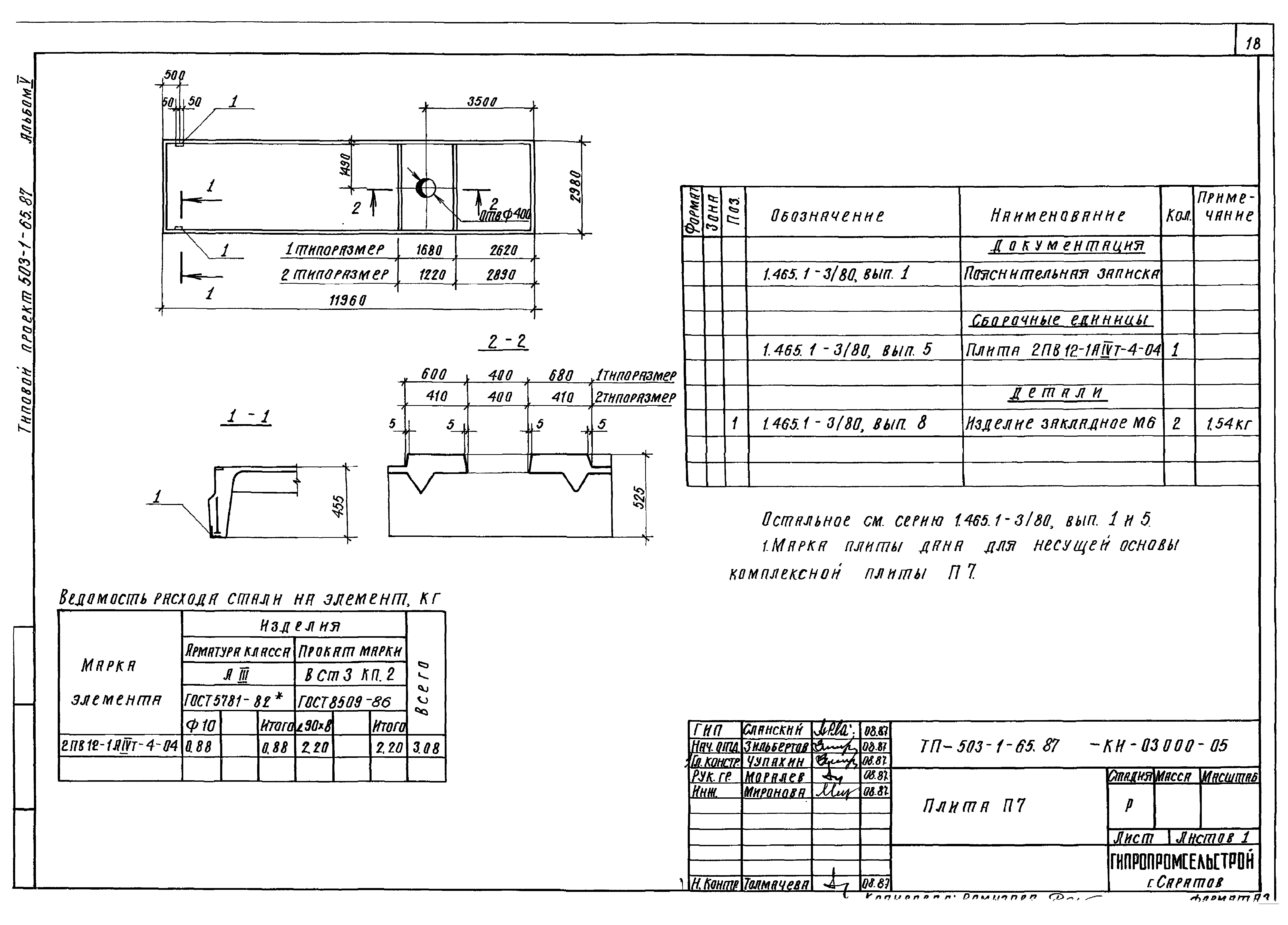
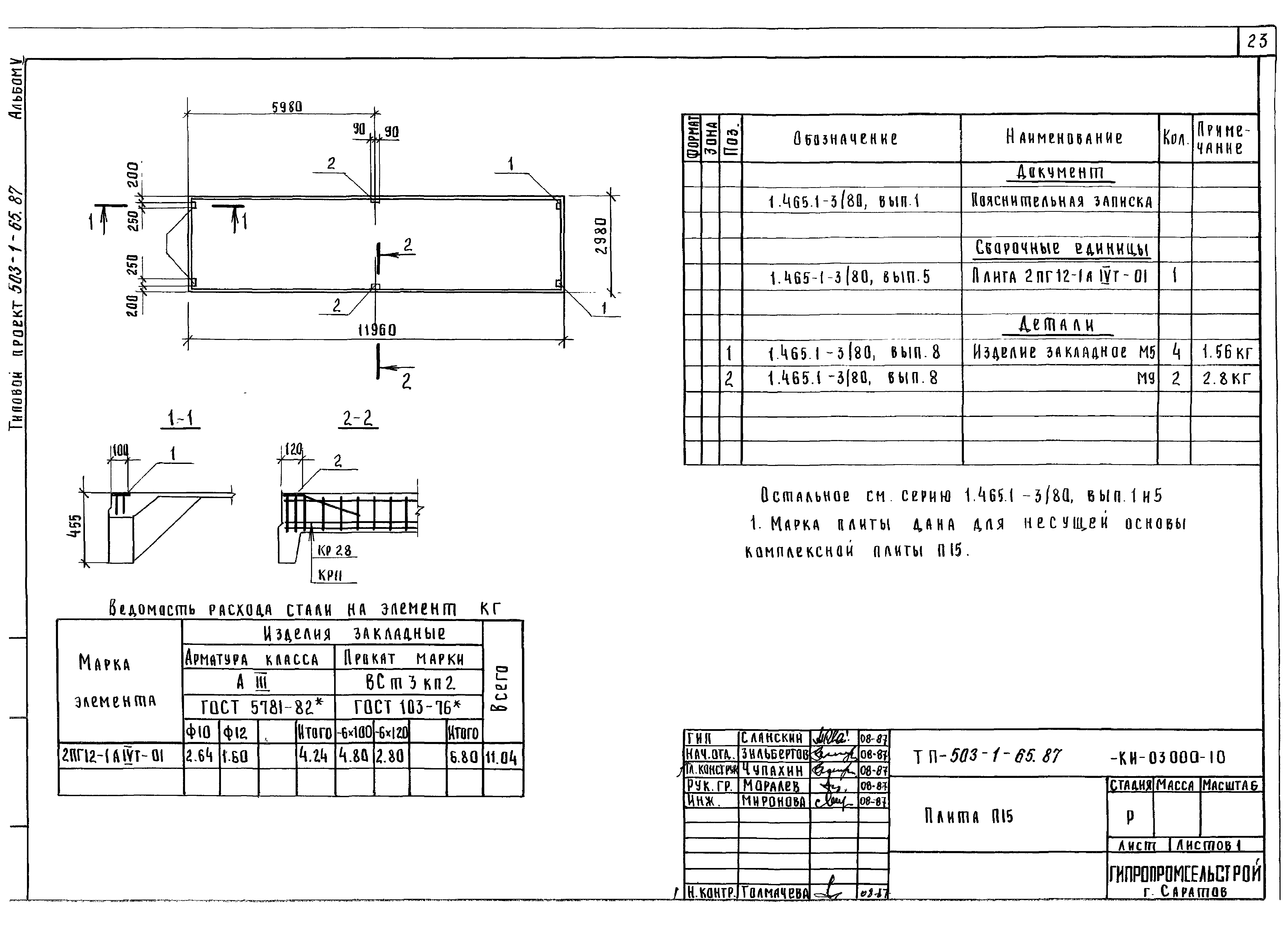
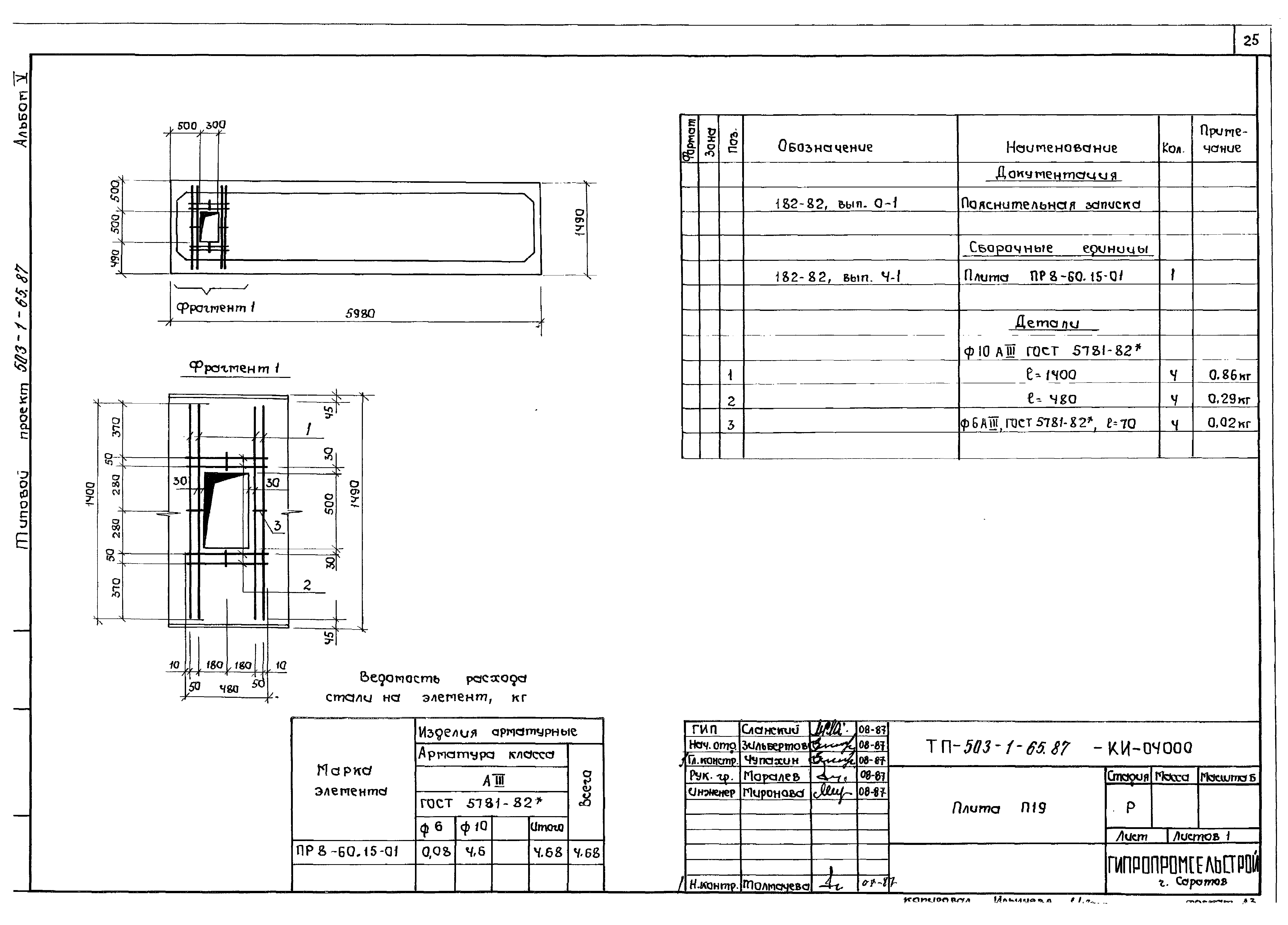
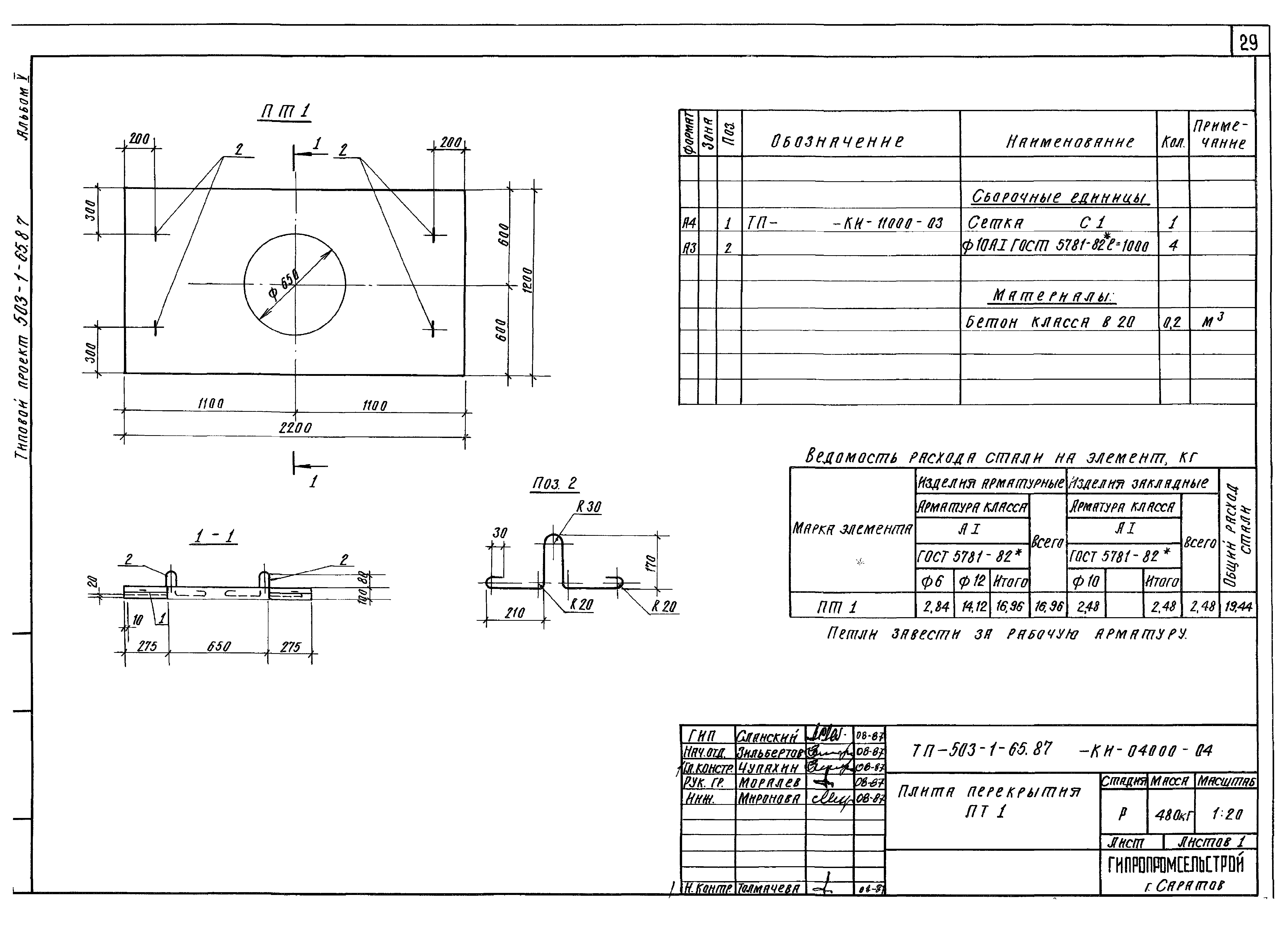
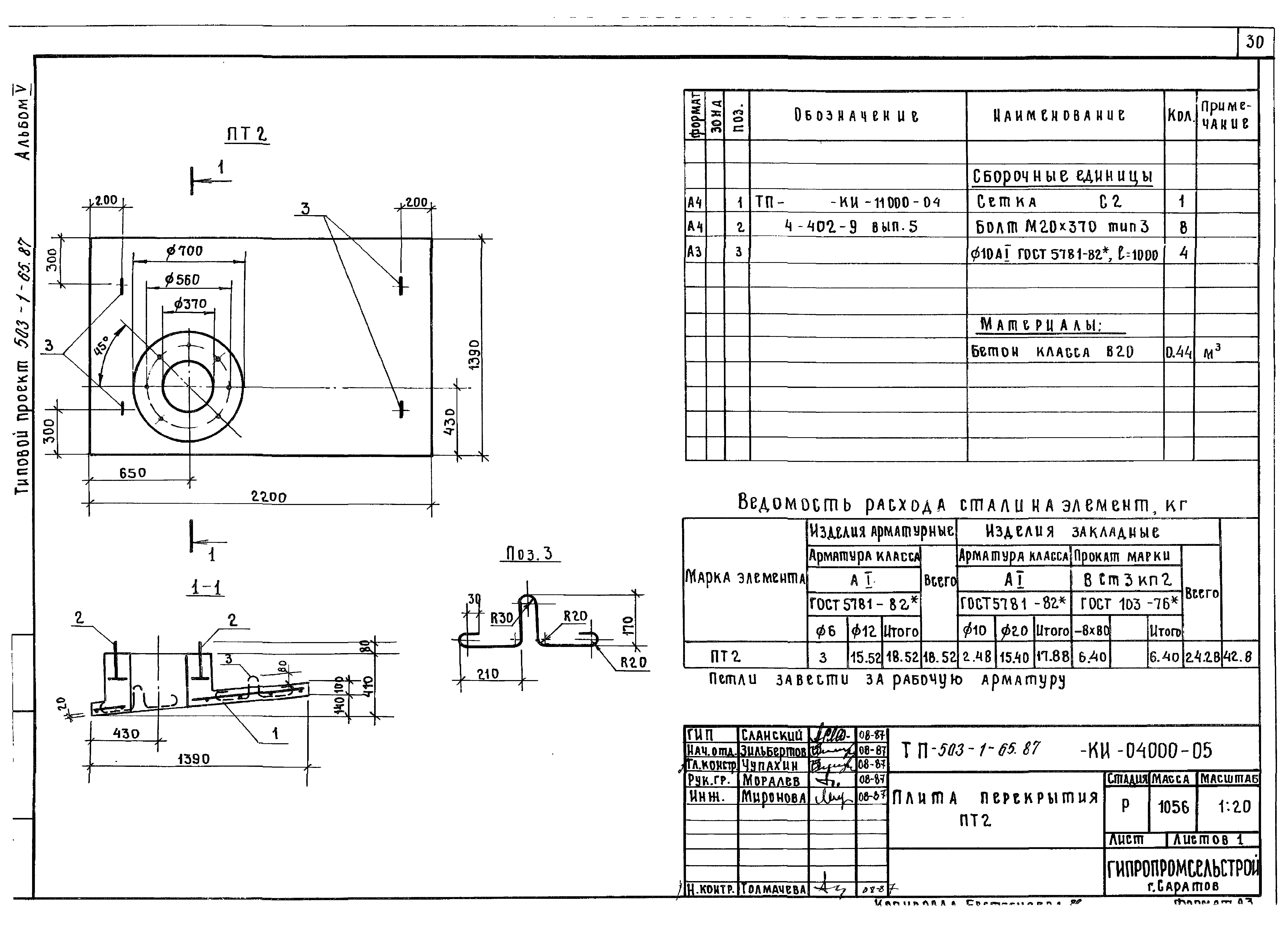
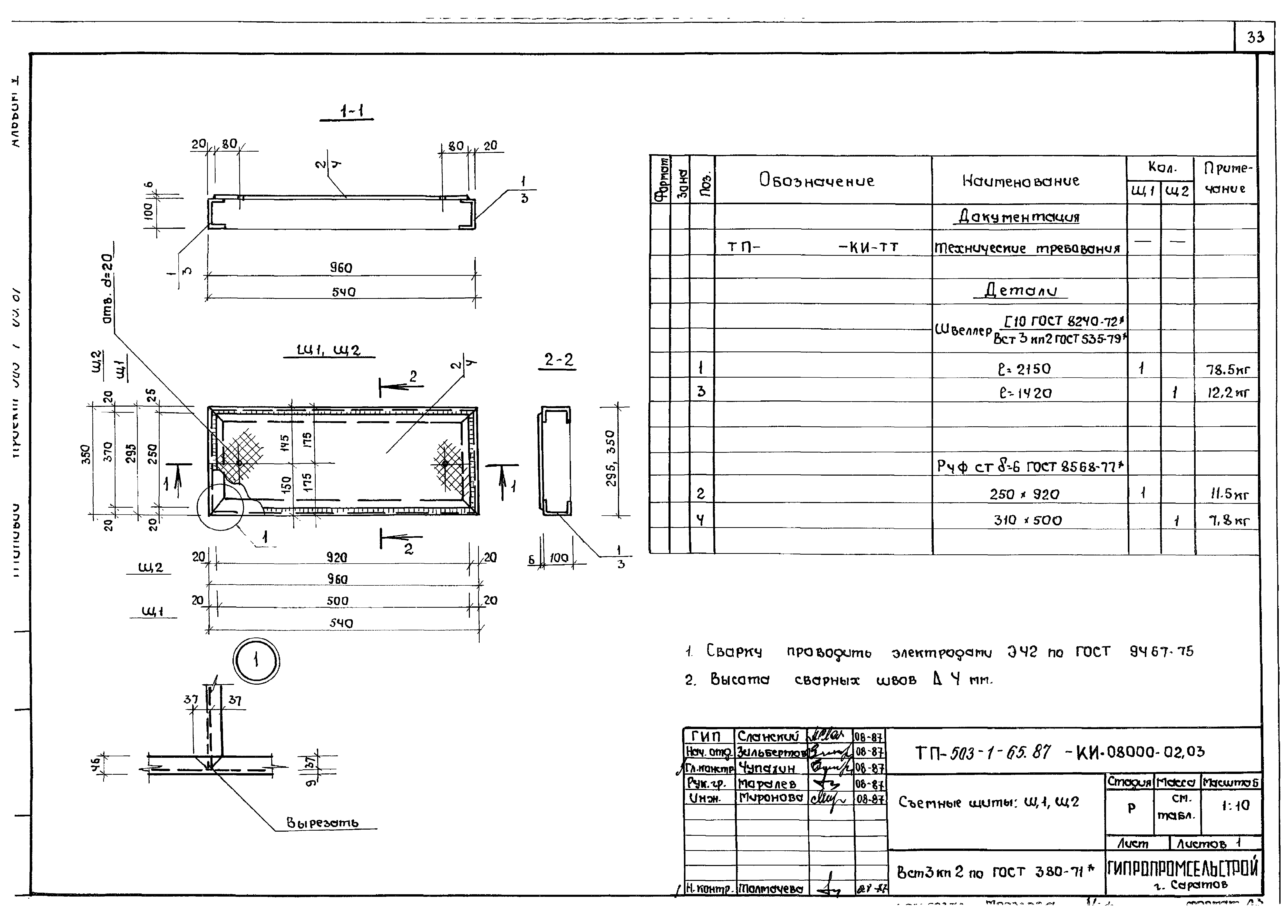
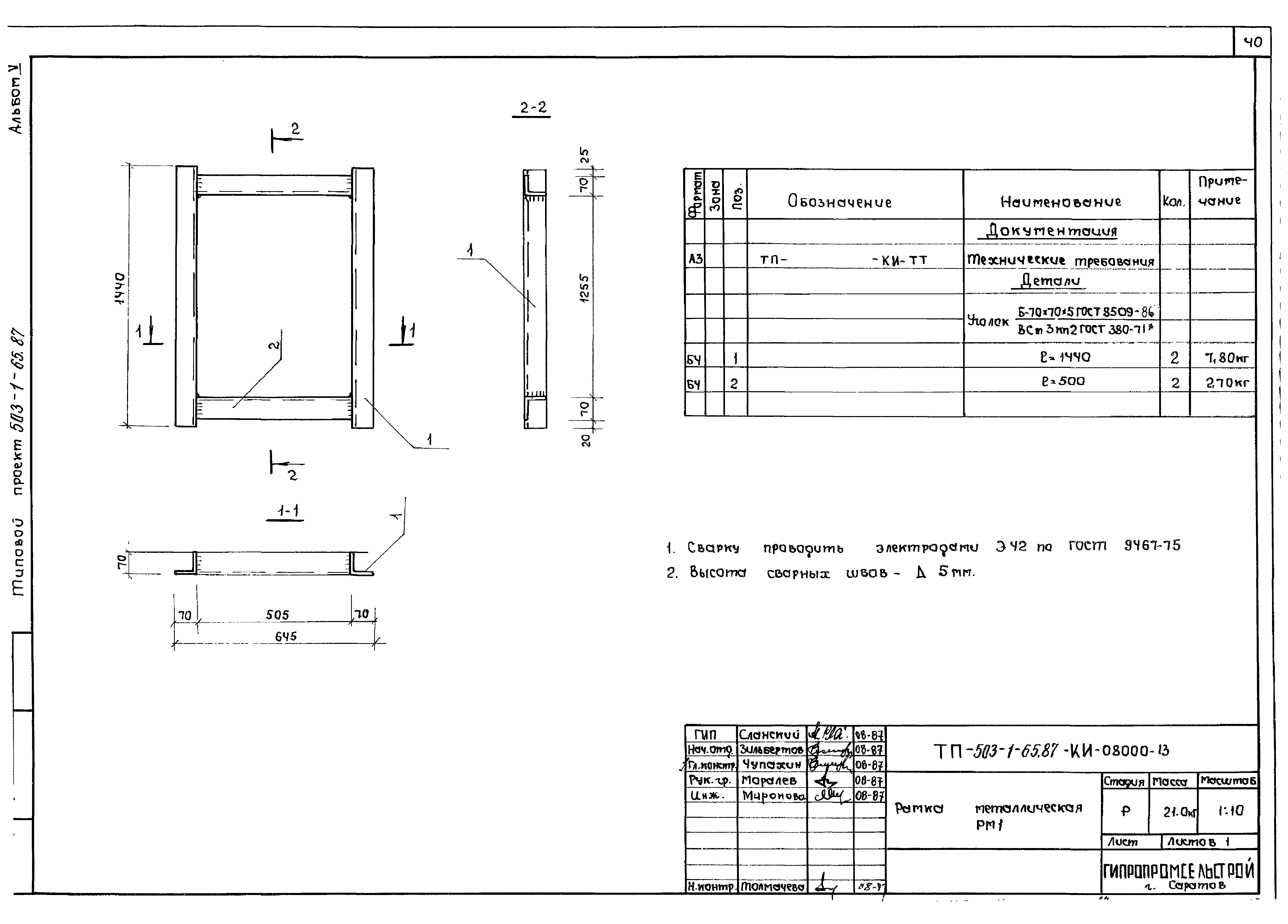
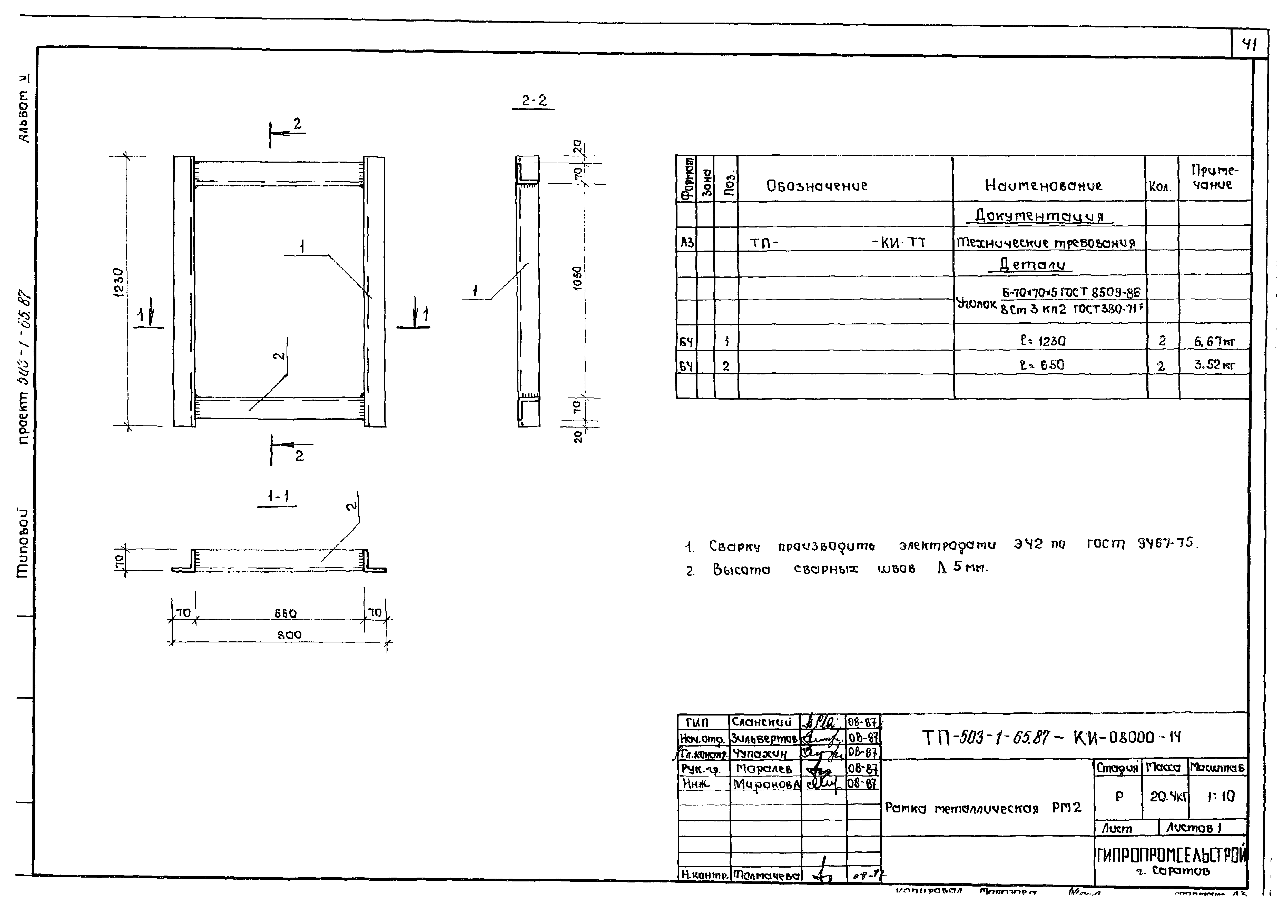
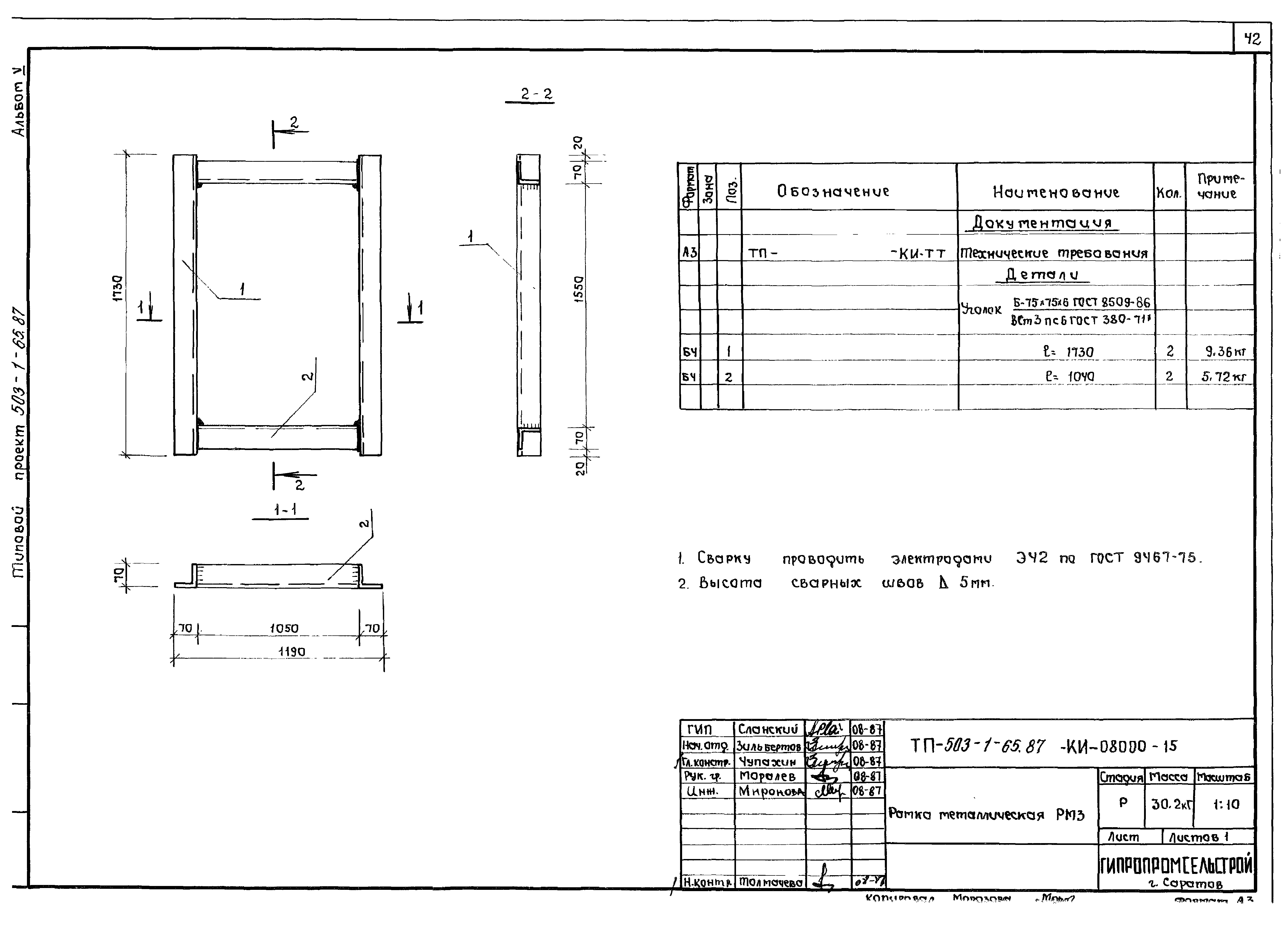
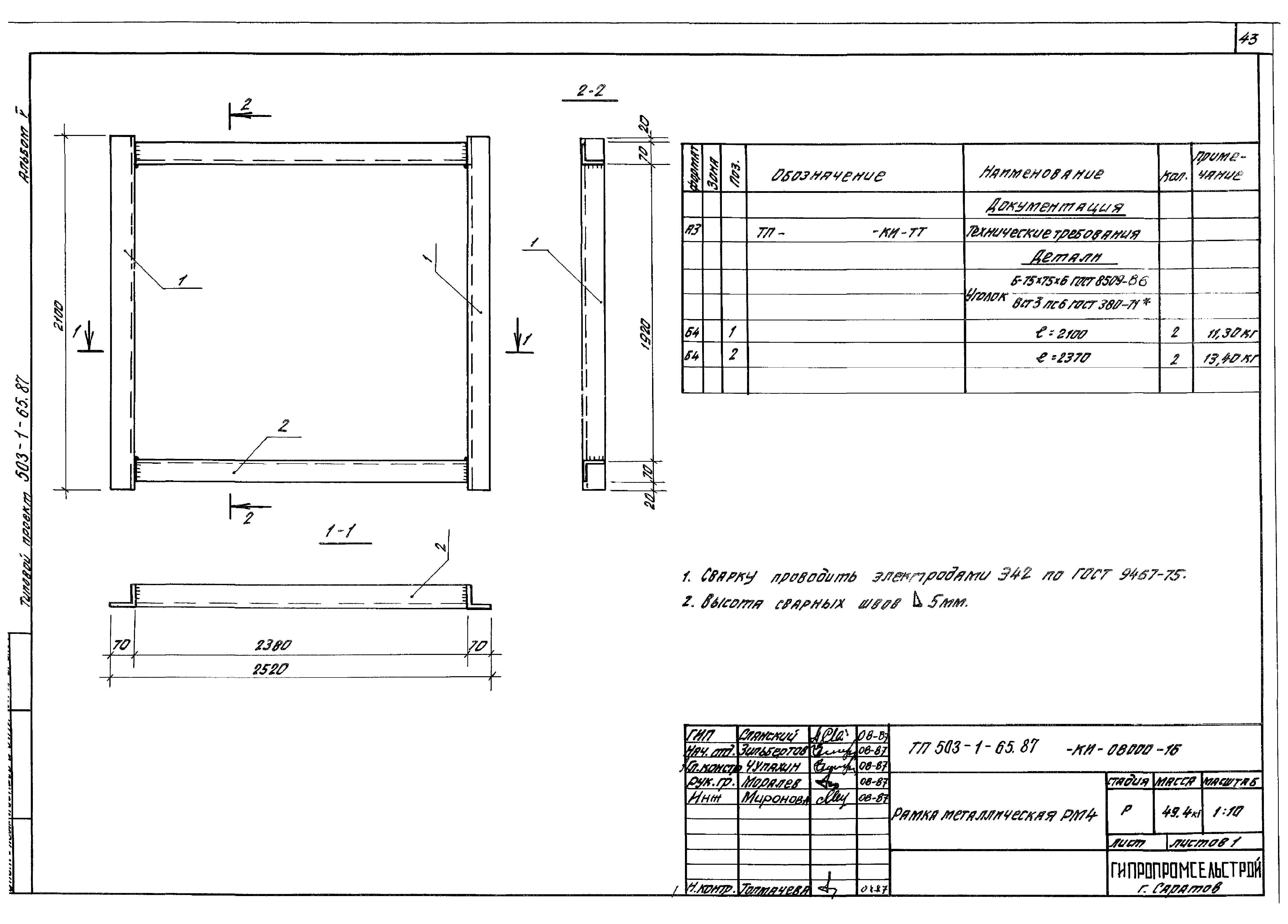
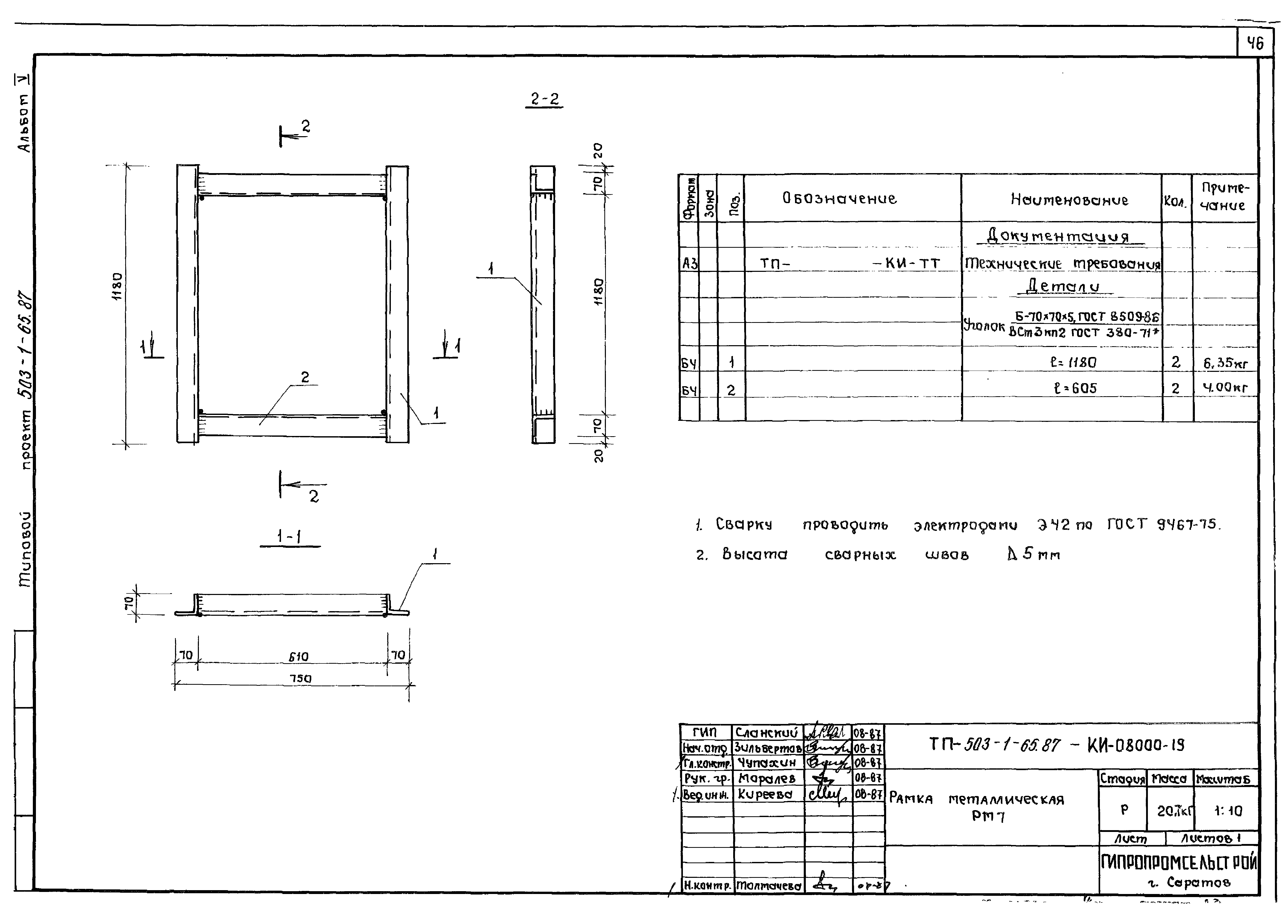
| Оглавление: | Содержание альбома Технические требования Колонна Панель стеновая Плита Плита перекрытия Балка Решетка Съемные щиты Щит Жалюзийная решетка Рамка металлическая Изделие соединительное Изделие закладное Каркас пространственный Сетка арматурная |
| Разработан: | Гипропромсельстрой |
| Утверждён: | 12.09.1985 Госкомсельхозтехника СССР (43-85) |


















































