Скачать Типовой проект 503-1-65.87 Альбом VI. Чертежи заданий заводам-изготовителям на электрооборудование КИП и автоматикуДата актуализации: 01.01.2021
|
| Обозначение: | Типовой проект 503-1-65.87 |
| Обозначение англ: | 503-1-65.87 |
| Статус: | действует |
| Название рус.: | Альбом VI. Чертежи заданий заводам-изготовителям на электрооборудование КИП и автоматику |
| Дата добавления в базу: | 01.10.2014 |
| Дата актуализации: | 01.01.2021 |
| Дата введения: | 29.09.1987 |
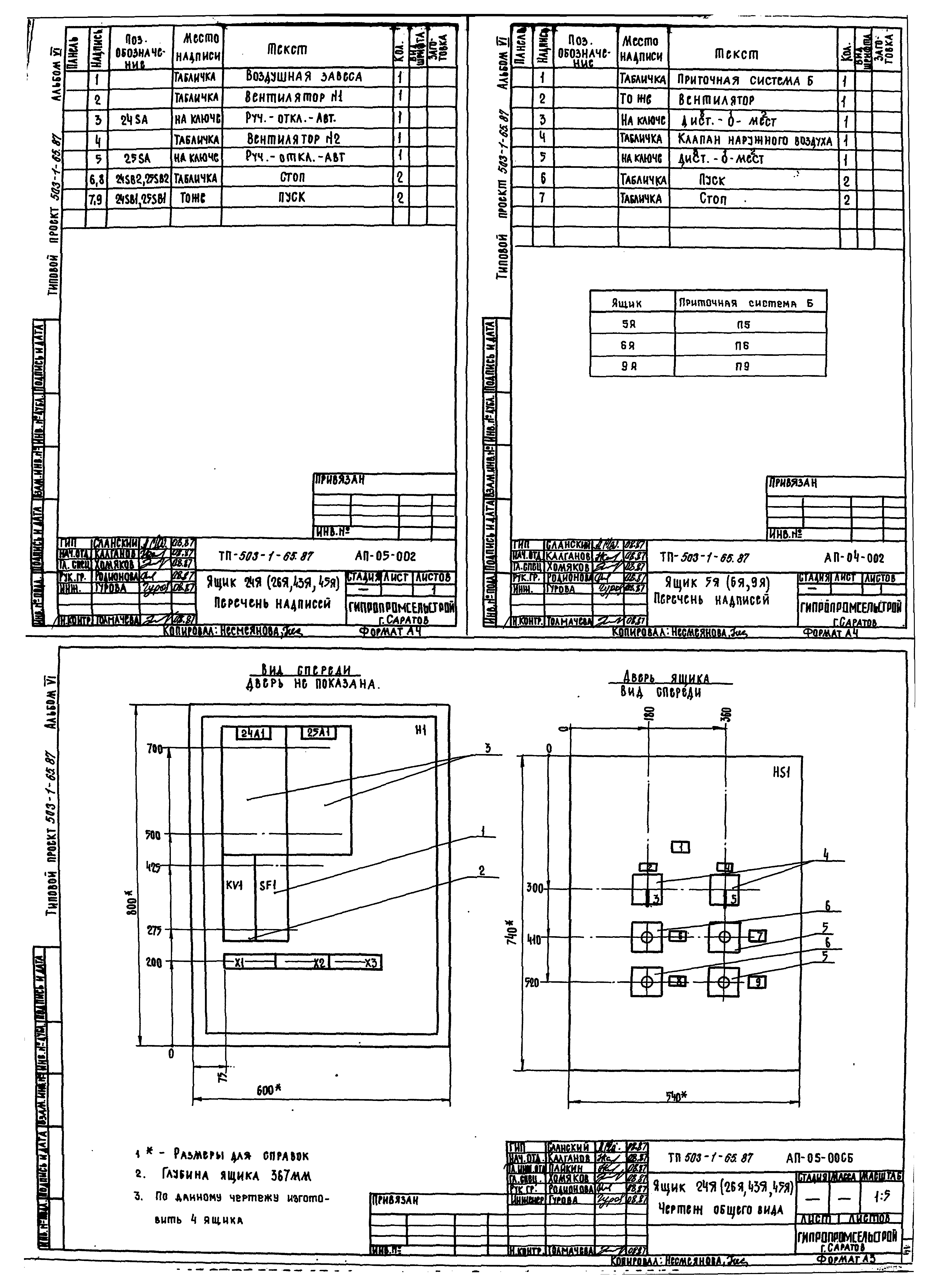
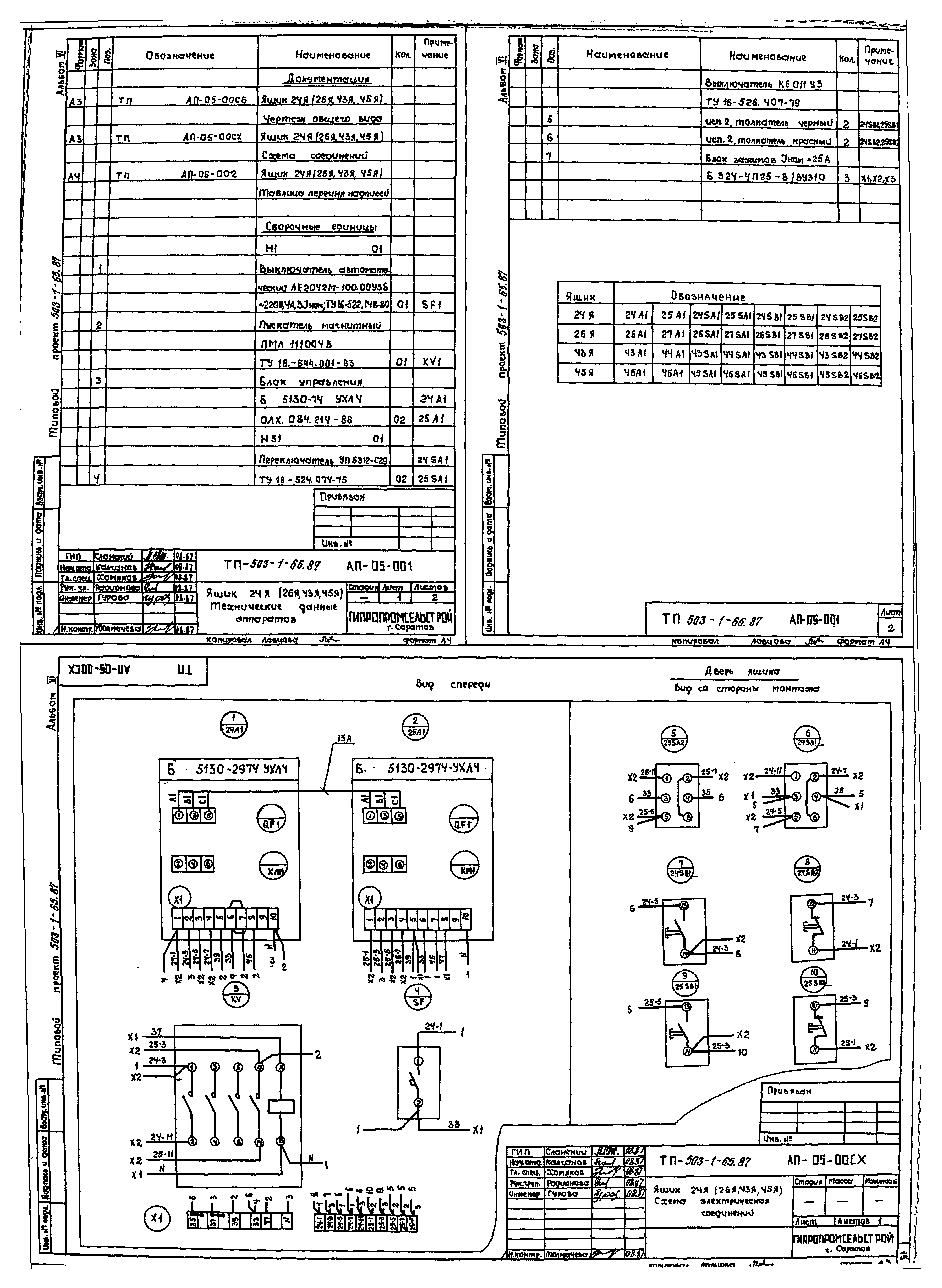
| Оглавление: | Содержание альбома Щит автоматизации 1Щ(2Щ). Чертеж общего вида Щит автоматизации 1Щ(2Щ). Таблица соединений Щит автоматизации 1Щ(2Щ). Таблица подключения Щит автоматизации 3Щ(4Щ). Чертеж общего вида Щит автоматизации 3Щ(4Щ). Таблица соединений Щит автоматизации 3Щ(4Щ). Таблица подключения Ящик 7Я(59Я). Чертеж общего вида Ящик 7Я(59Я). Технические данные аппаратов Ящик 7Я(59Я). Перечень надписей Ящик 7Я(59Я). Схема электрическая соединений Ящик 5Я(6Я, 9Я). Чертеж общего вида Ящик 5Я(6Я, 9Я). Технические данные аппаратов Ящик 5Я(6Я, 9Я). Перечень надписей Ящик 5Я(6Я, 9Я). Схема электрическая соединений Ящик 24Я(25Я, 43Я, 45Я). Чертеж общего вида Ящик 24Я(25Я, 43Я, 45Я). Технические данные аппаратов Ящик 24Я(25Я, 43Я, 45Я). Перечень надписей Ящик 24Я(25Я, 43Я, 45Я). Схема электрическая соединений Ящик 29Я. Чертеж общего вида Ящик 29Я. Технические данные аппаратов Ящик 29Я. Перечень надписей Ящик 29Я. Схема электрическая соединений Перечень комплектных устройств |
| Разработан: | Гипропромсельстрой |
| Утверждён: | 12.09.1985 Госкомсельхозтехника СССР (43-85) |

















