Скачать Типовой проект 704-1-54 Альбом V. Оборудование резервуара для светлых нефтепродуктовДата актуализации: 01.01.2021
|
| Обозначение: | Типовой проект 704-1-54 |
| Обозначение англ: | 704-1-54 |
| Статус: | действует |
| Название рус.: | Альбом V. Оборудование резервуара для светлых нефтепродуктов |
| Дата добавления в базу: | 01.10.2014 |
| Дата актуализации: | 01.01.2021 |
| Дата введения: | 25.12.1969 |
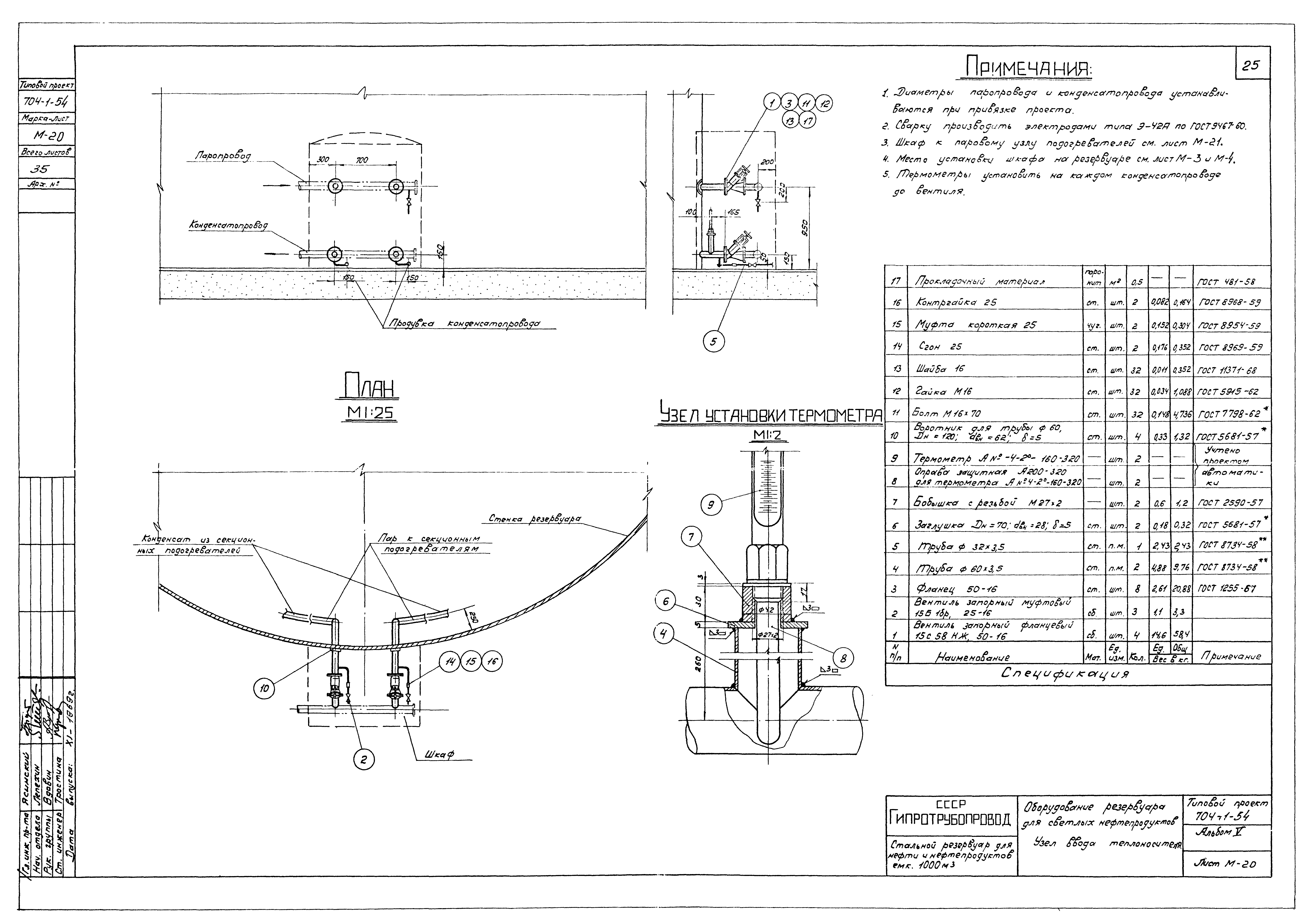
| Оглавление: | Содержание альбома Пояснительная записка Общий вид оборудования резервуара для хранения светлых нефтепродуктов (кроме дизтоплива) Общий вид оборудования резервуара для хранения светлых нефтепродуктов (кроме дизтоплива). Спецификация Общий вид оборудования резервуара для хранения дизельного топлива Общий вид оборудования резервуара для хранения дизельного топлива. Спецификация Установка приемо-раздаточного патрубка Ду200. Узел "А" Установка приемо-раздаточного патрубка Ду250. Узел "А" Установка приемо-раздаточного патрубка Ду300. Узел "А" Установка клапана непримерзающего двухмембранного типа НДКМ-200 Установка клапана предохранительного гидравлического типа КПГ-200 Установка огневого предохранителя ОП-200 с вентиляционным патрубком ВП-200 Установка огневого предохранителя ОП-250 с вентиляционным патрубком ВП-250 Расположение секционных подогревателей общей поверхностью нагрева 12,0 кв. м Расположение секционных подогревателей общей поверхностью нагрева 23,9 кв. м Подогревательный элемент ПЭ-1, ПЭ-3 Подогревательная система. Стойка С-1 Подогревательная система. Стойка С-3 Подогревательная система. Стойка С-4 Подогревательная система. Стойка С-5 Коллектор К-2 для сборки трех подогревательных элементов Узел ввода теплоносителя Шкаф к узлу ввода теплоносителя. Общий вид Шкаф к узлу ввода теплоносителя. Узлы Шкаф к узлу ввода теплоносителя. Детали Установка термометра технического ртутного. Общий вид. Узлы. Детали Принципиальная схема автоматизации (без подогрева) Принципиальная схема автоматизации (с подогревом) Установка указателя уровня УДУ-5 Грозозащита и заземление |
| Разработан: | ЦНИИпроектстальконструкция |
| Утверждён: | 25.12.1969 ЦНИИпроектстальконструкция (TsNIIprojectstalkonstruktsiya 221) |



































