Скачать Типовой проект 704-1-54 Альбом VI. Оборудование резервуара для темных нефтепродуктовДата актуализации: 01.01.2021
|
| Обозначение: | Типовой проект 704-1-54 |
| Обозначение англ: | 704-1-54 |
| Статус: | действует |
| Название рус.: | Альбом VI. Оборудование резервуара для темных нефтепродуктов |
| Дата добавления в базу: | 01.10.2014 |
| Дата актуализации: | 01.01.2021 |
| Дата введения: | 25.12.1969 |
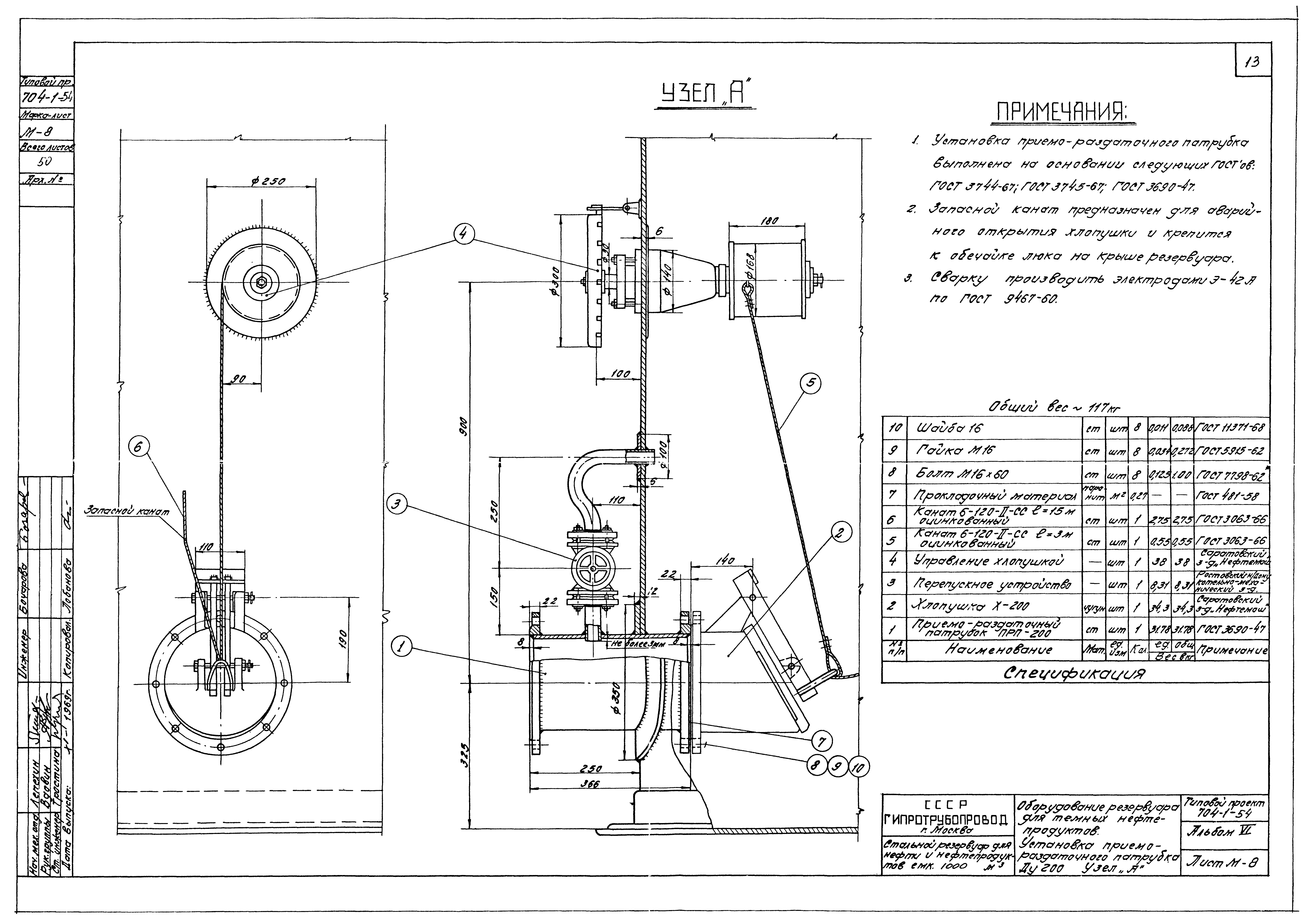
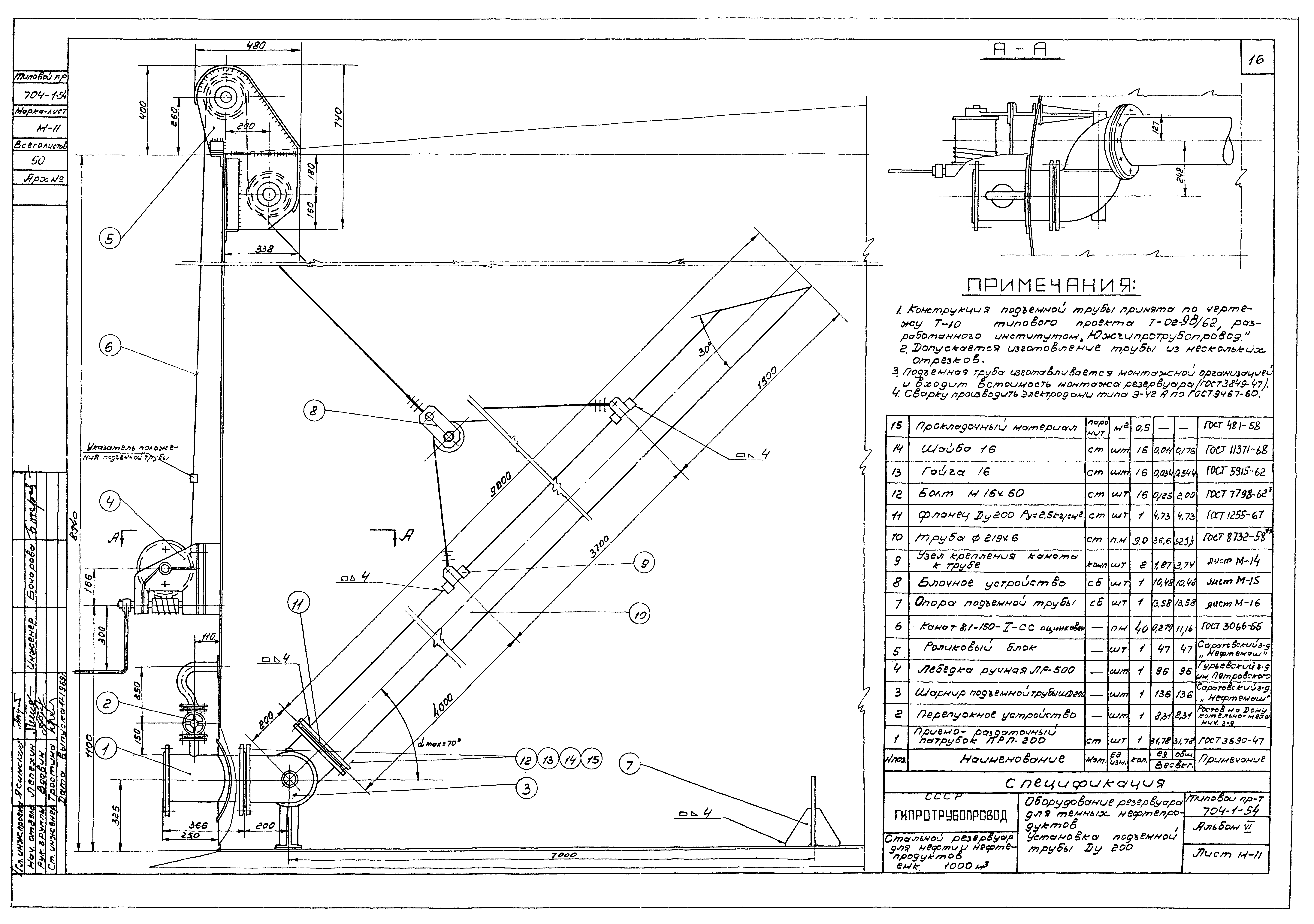
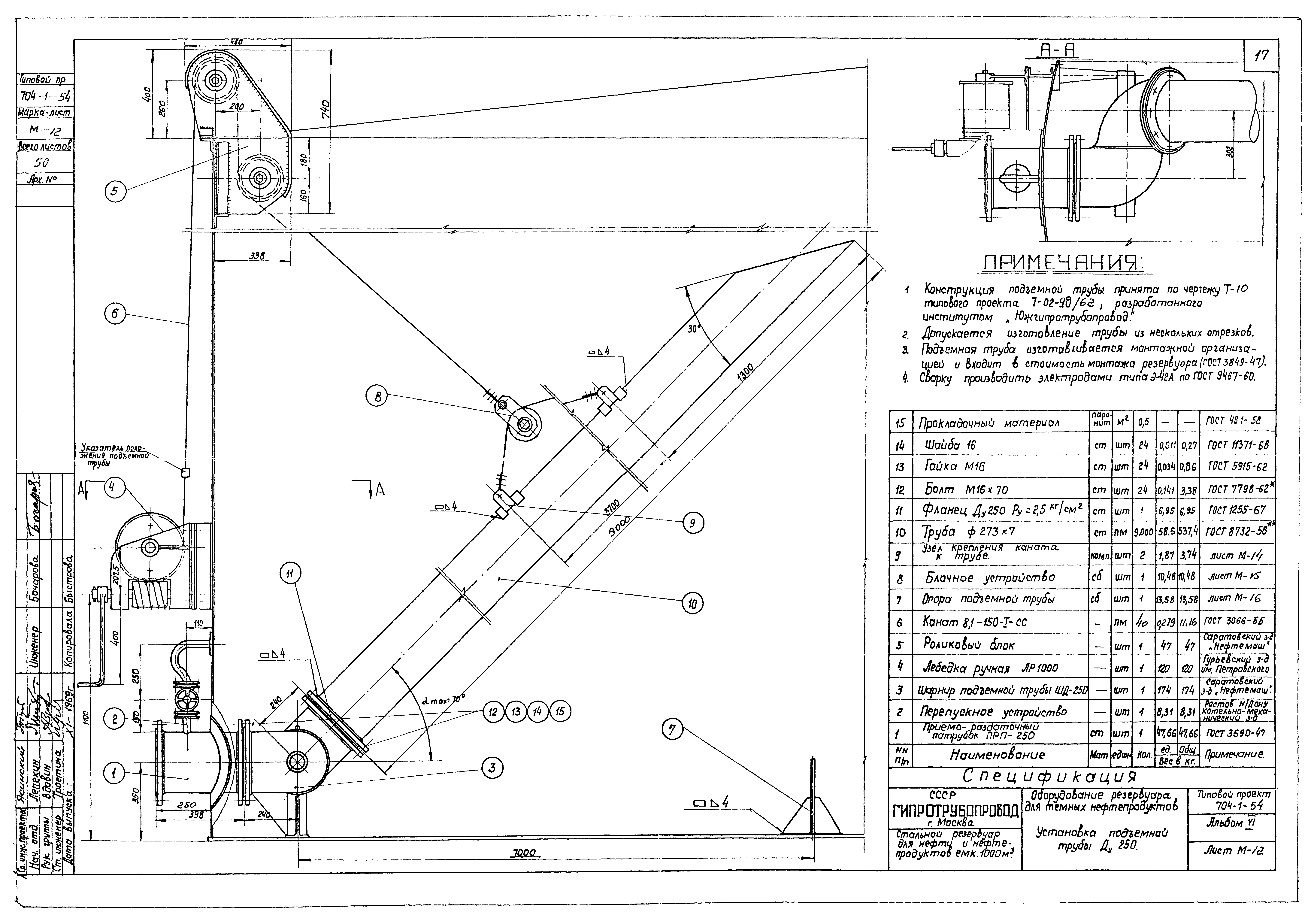
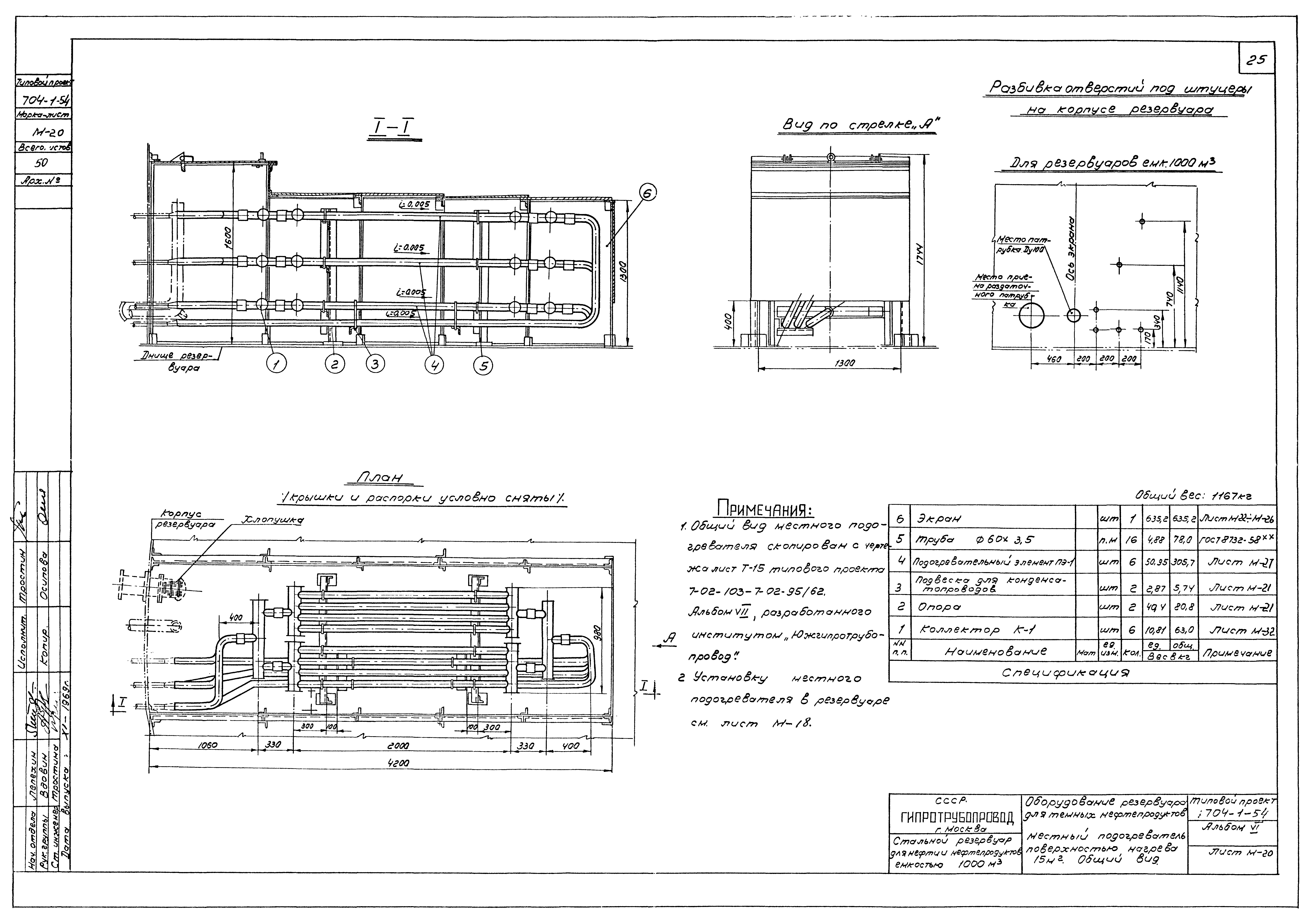
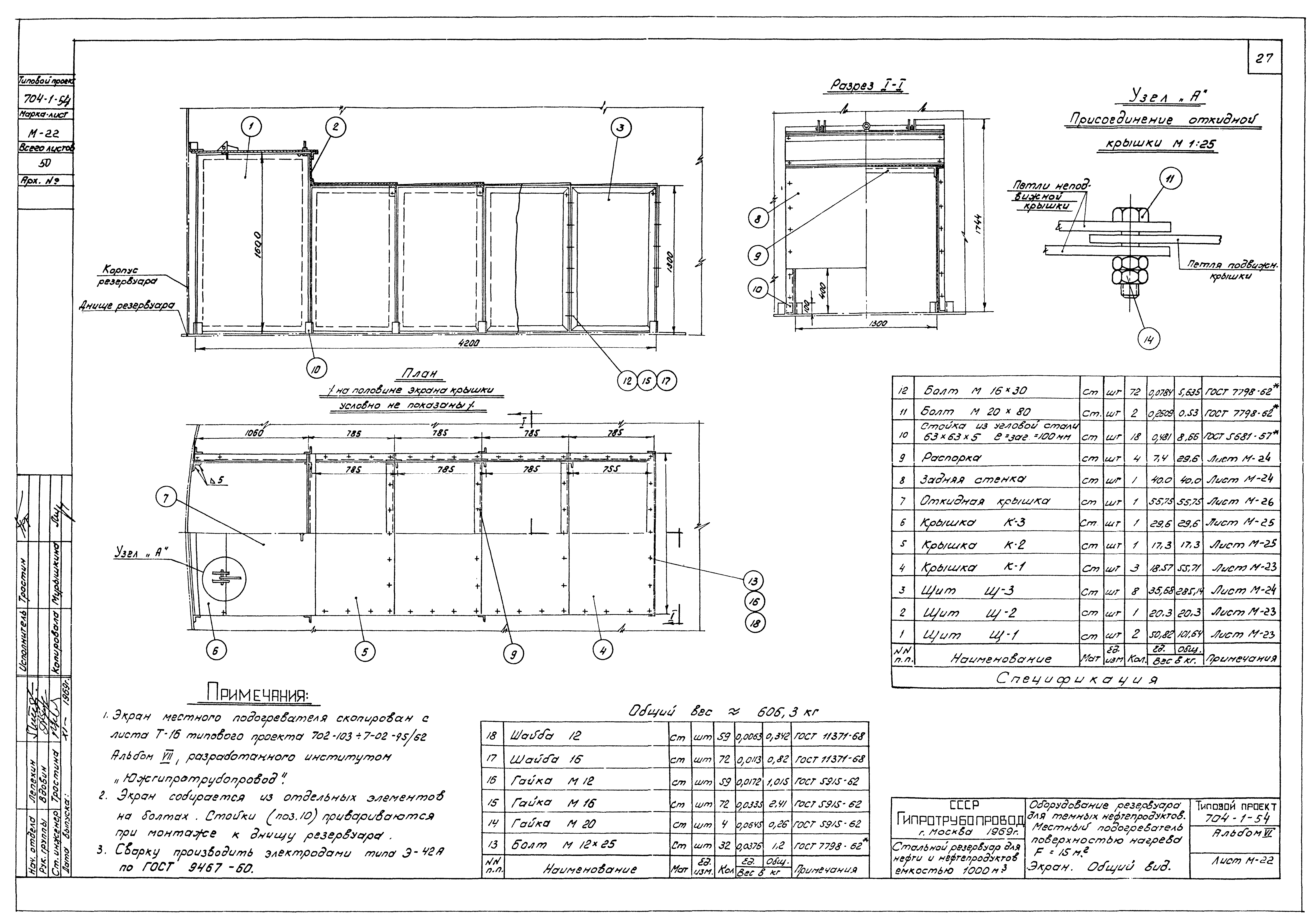
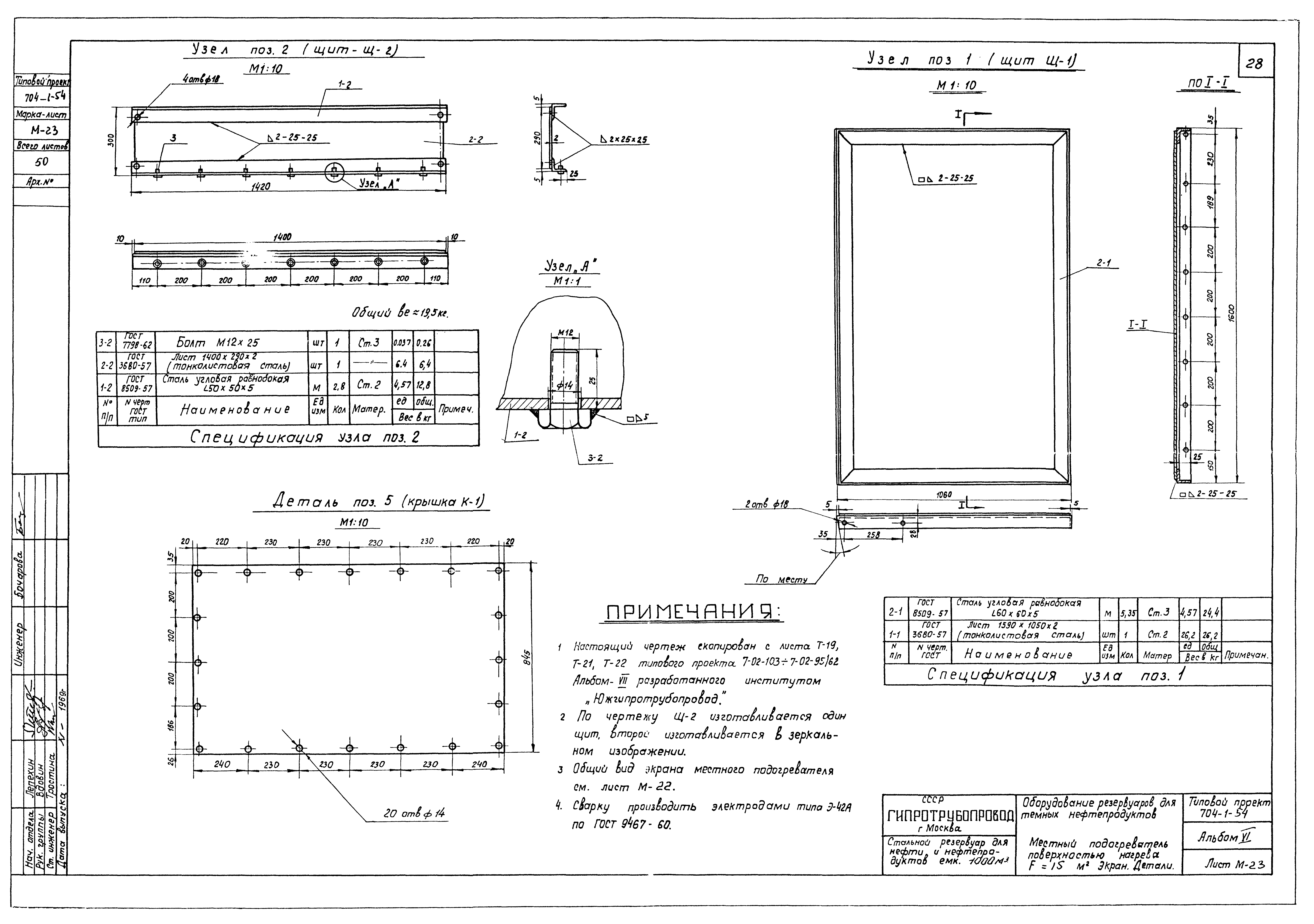
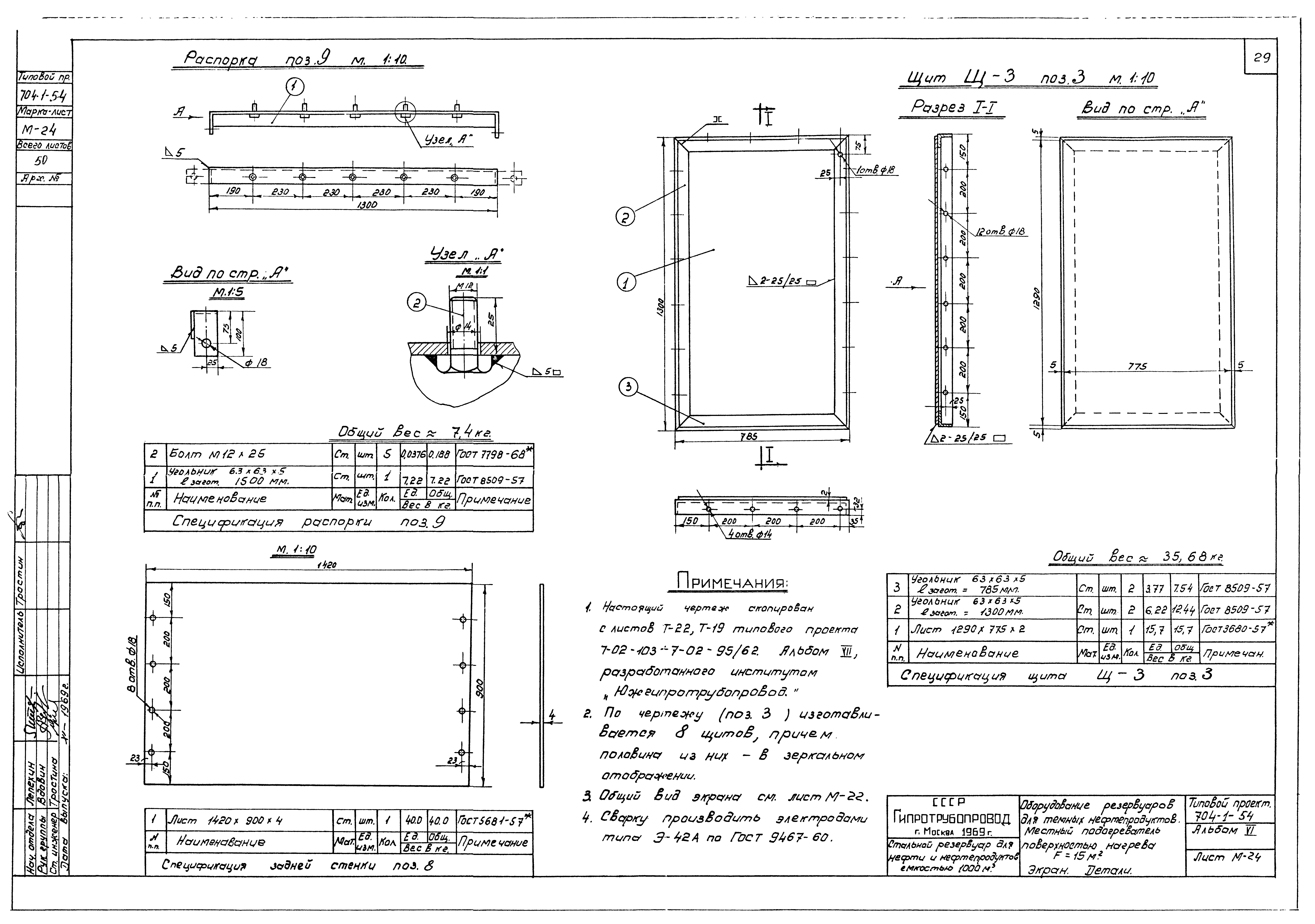
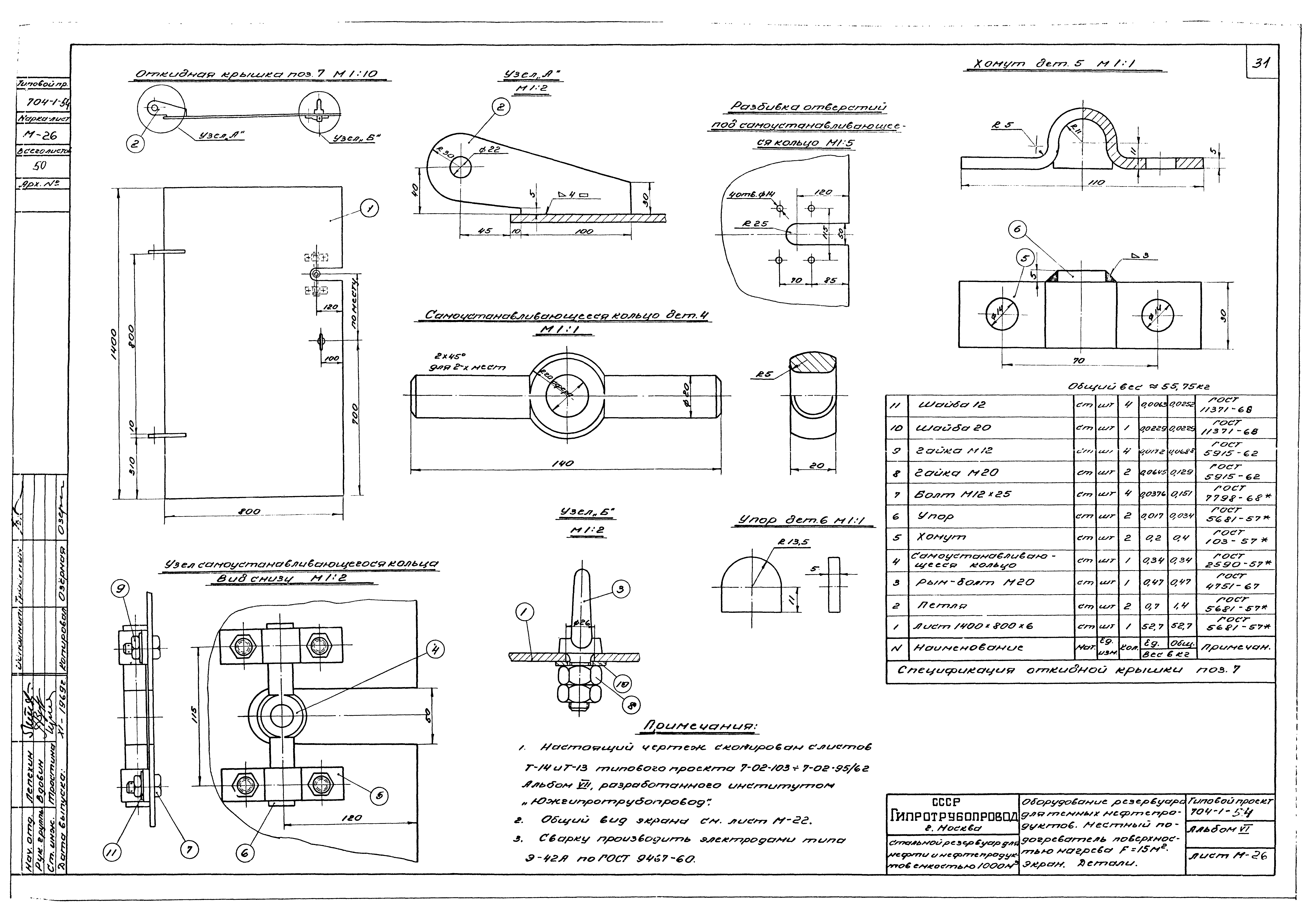
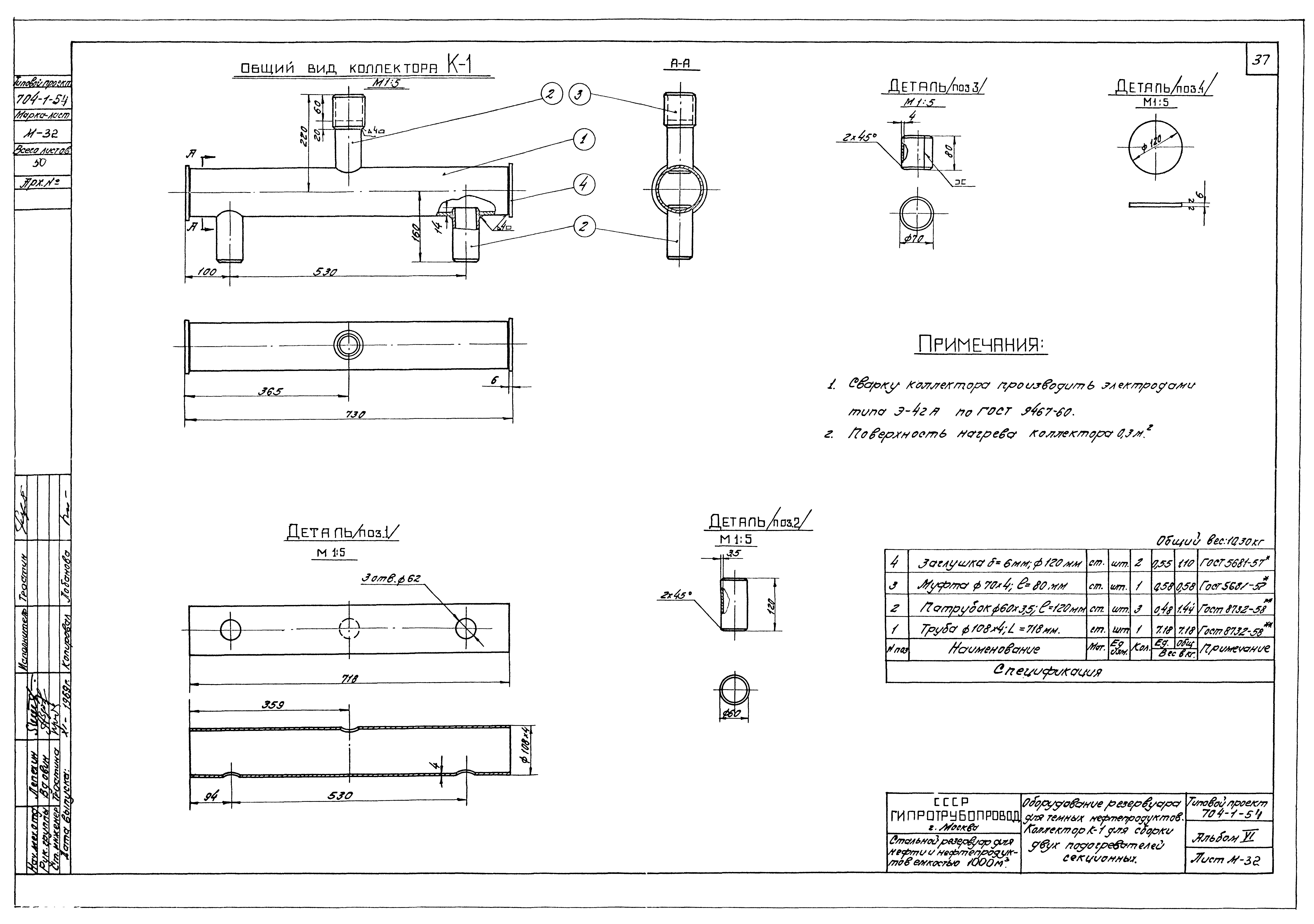
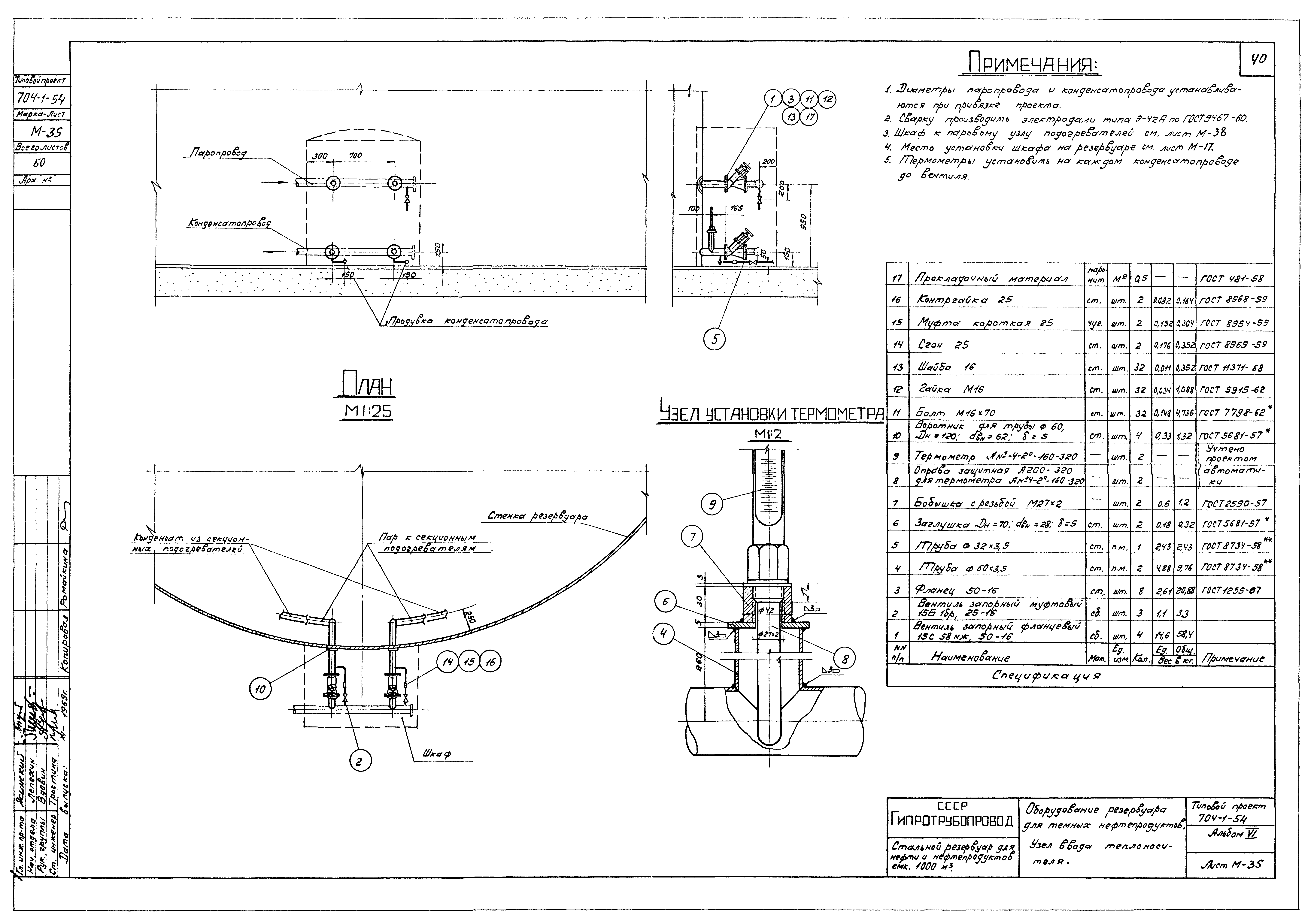
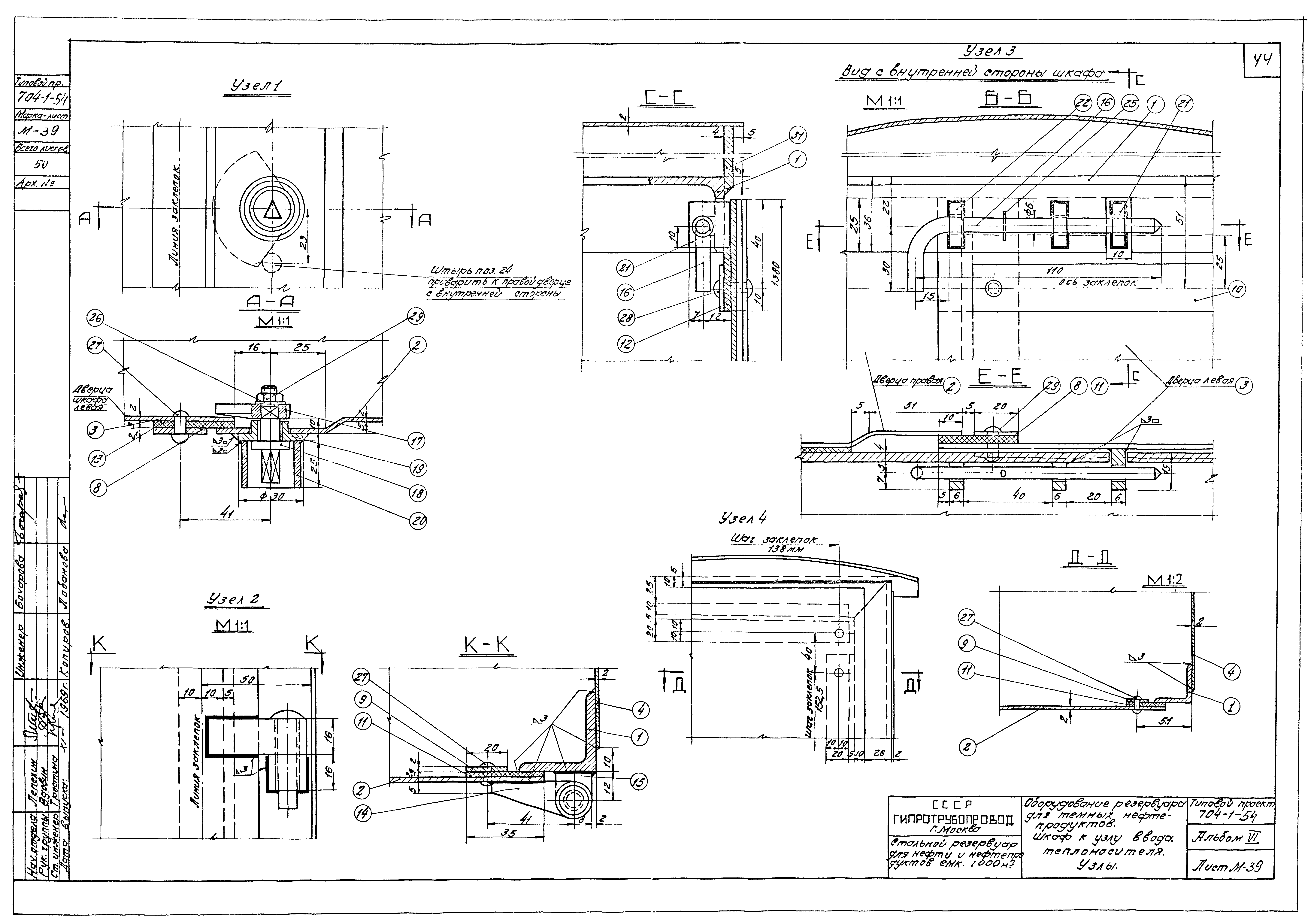
| Оглавление: | Содержание альбома Пояснительная записка Общий вид оборудования резервуара для хранения темных нефтепродуктов Общий вид оборудования резервуара для хранения темных нефтепродуктов. Спецификация Общий вид оборудования резервуара для хранения темных нефтепродуктов (без подъемной труды) Общий вид оборудования резервуара для хранения темных нефтепродуктов (без подъемной труды). Спецификация Установка вентиляционного патрубка ВП-150 Установка вентиляционного патрубка ВП-200 Установка вентиляционного патрубка ВП-250 Установка приемо-раздаточного патрубка Ду200. Узел "А" Установка приемо-раздаточного патрубка Ду250. Узел "А" Установка приемо-раздаточного патрубка Ду300. Узел "А" Установка подъемной трубы Ду200 Установка подъемной трубы Ду250 Установка подъемной трубы Ду300 Узел крепления каната к подъемной трубе. Общий вид. Детали. Спецификация Блочное устройство. Общий вид. Детали. Спецификация Опора подъемной трубы. Общий вид. Детали. Спецификация Расположение секционных подогревателей общей поверхностью нагрева 42,9 кв. м Расположение секционных и местного подогревателей общей поверхностью нагрева 27,9 кв. м Расположение секционных подогревателей общей поверхностью нагрева 54,0 кв. м Местный подогреватель поверхностью нагрева F = 15 кв. м. Общий вид Местный подогреватель поверхностью нагрева F = 15 кв. м. Опора и подвеска для конденсатопроводов Местный подогреватель поверхностью нагрева F = 15 кв. м. Экран. Общий вид Местный подогреватель поверхностью нагрева F = 15 кв. м. Экран. Детали Подогревательный элемент ПЭ-1, ПЭ-4, ПЭ-5 Подогревательная система. Стойка С-2 Подогревательная система. Стойка С-3 Подогревательная система. Стойка С-4 Подогревательная система. Стойка С-5 Коллектор К-1 для сборки двух подогревательных элементов Коллектор К-2 для сборки трех подогревательных элементов Коллектор К-3 для сборки четырех подогревательных элементов Узел ввода теплоносителя Шкаф к узлу ввода теплоносителя. Общий вид Шкаф к узлу ввода теплоносителя. Узлы Шкаф к узлу ввода теплоносителя. Детали Установка термометра технического ртутного. Общий вид. Узлы. Детали Принципиальная схема автоматизации Грозозащита и заземление |
| Разработан: | ЦНИИпроектстальконструкция |
| Утверждён: | 25.12.1969 ЦНИИпроектстальконструкция (TsNIIprojectstalkonstruktsiya 221) |


















































