Скачать Типовой проект 416-7-315.89 Альбом 1. Пояснительная записка. Технология производства. Архитектурные решения. Конструкции железобетонные. Конструкции металлическиеДата актуализации: 01.01.2021
|
| Обозначение: | Типовой проект 416-7-315.89 |
| Обозначение англ: | 416-7-315.89 |
| Статус: | не определен законодательством |
| Название рус.: | Альбом 1. Пояснительная записка. Технология производства. Архитектурные решения. Конструкции железобетонные. Конструкции металлические |
| Дата добавления в базу: | 01.10.2014 |
| Дата актуализации: | 01.01.2021 |
| Дата введения: | 12.12.1989 |
| Дата окончания срока действия: | 30.06.2003 |
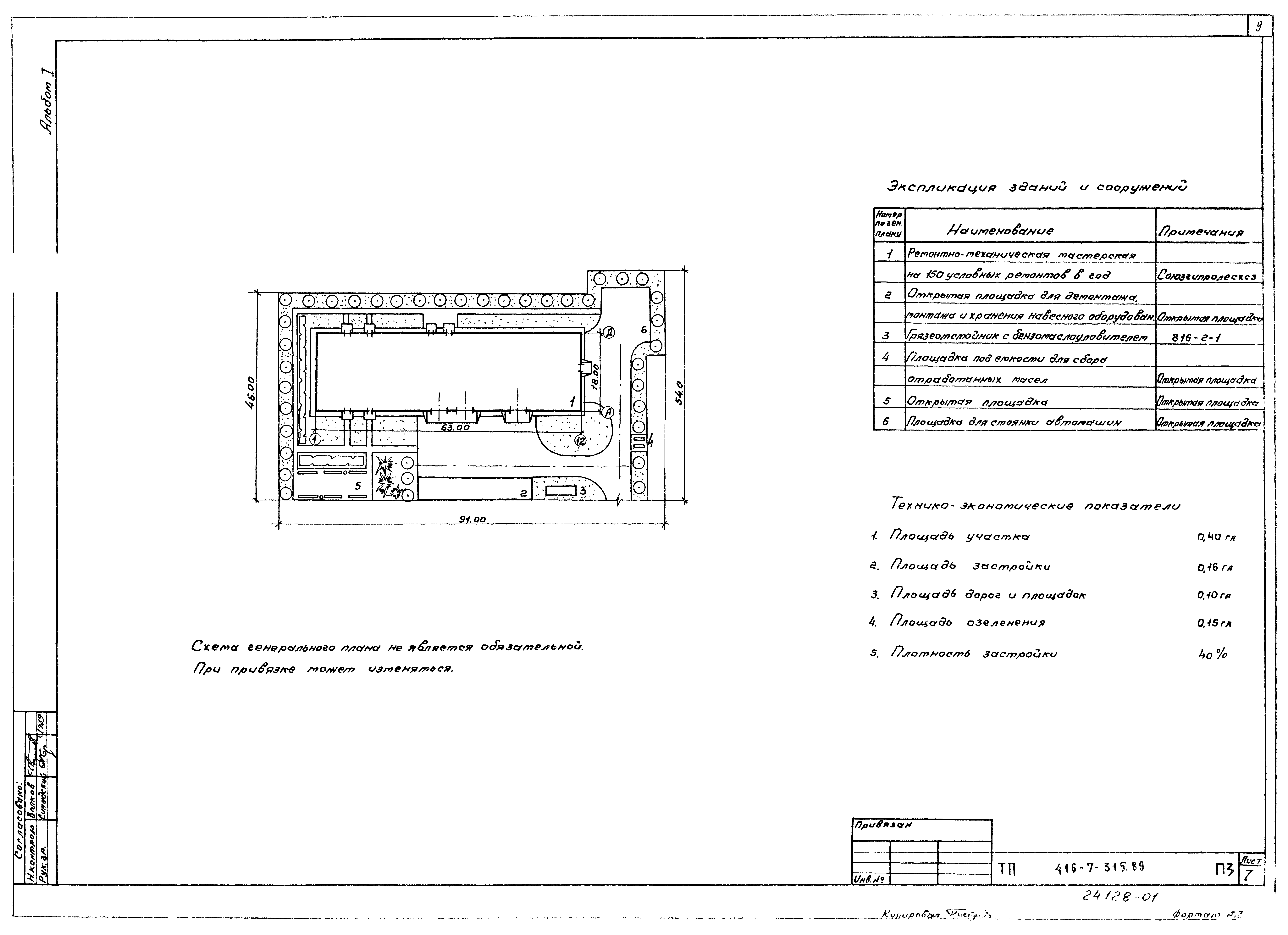
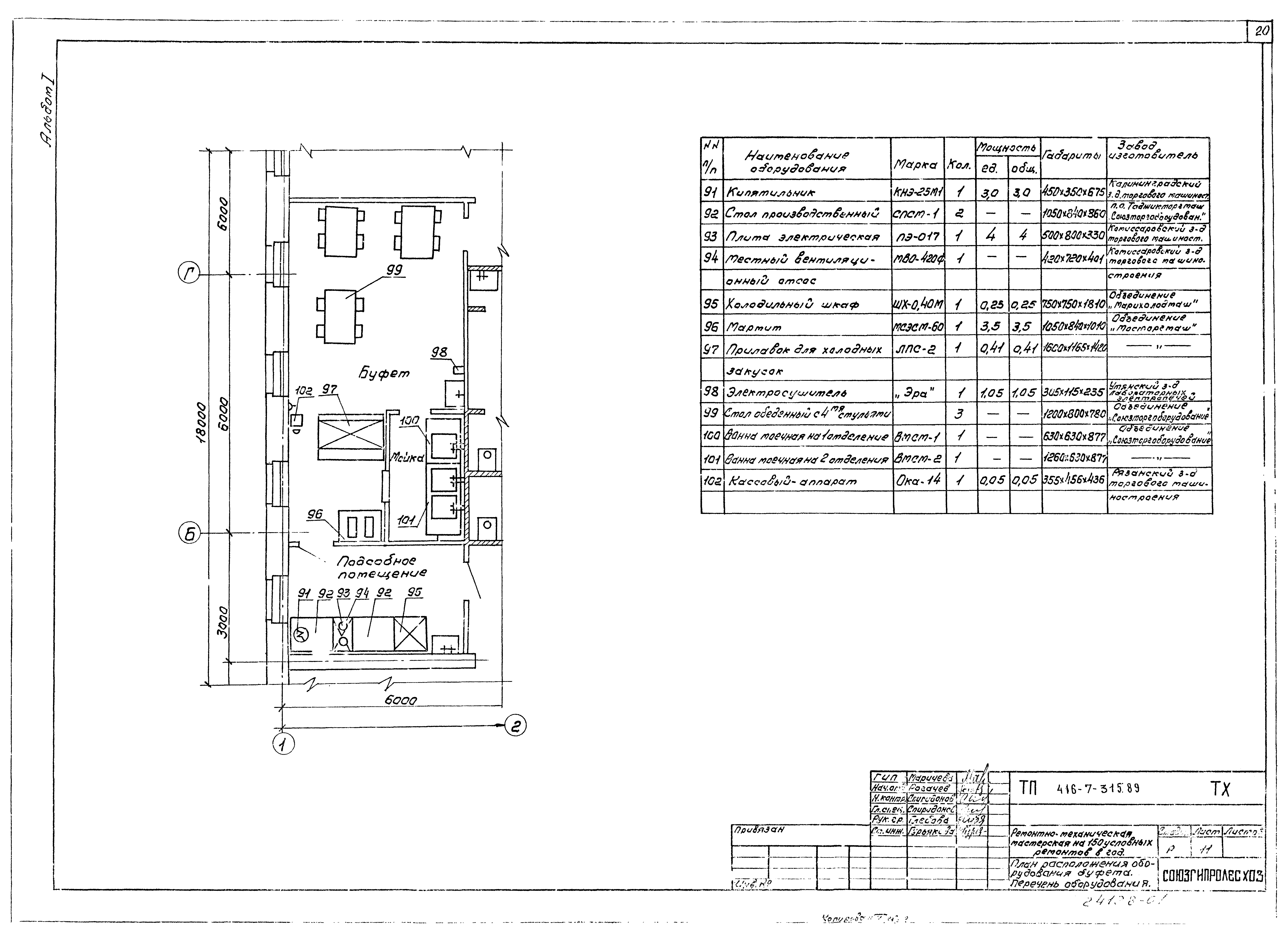
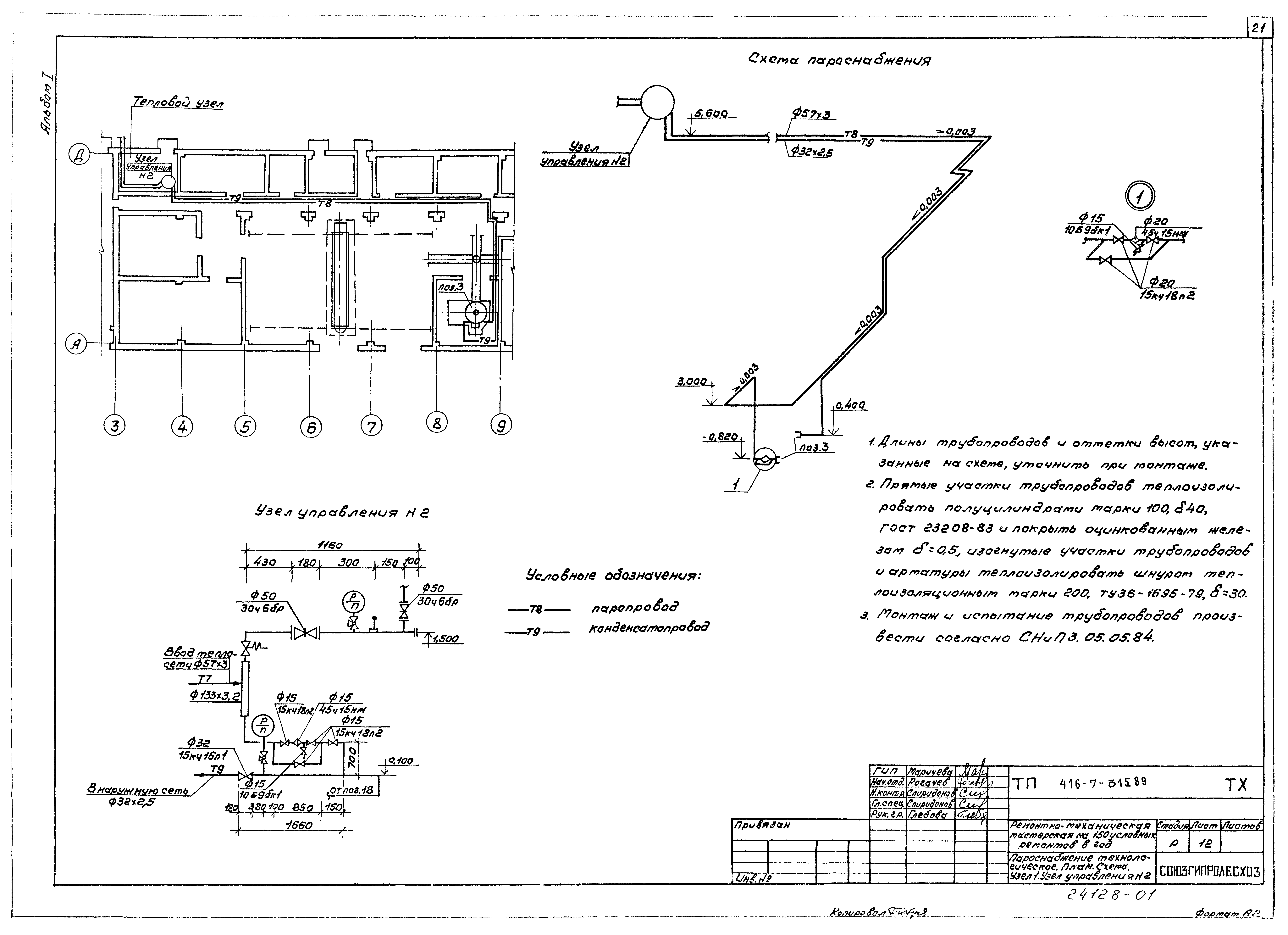
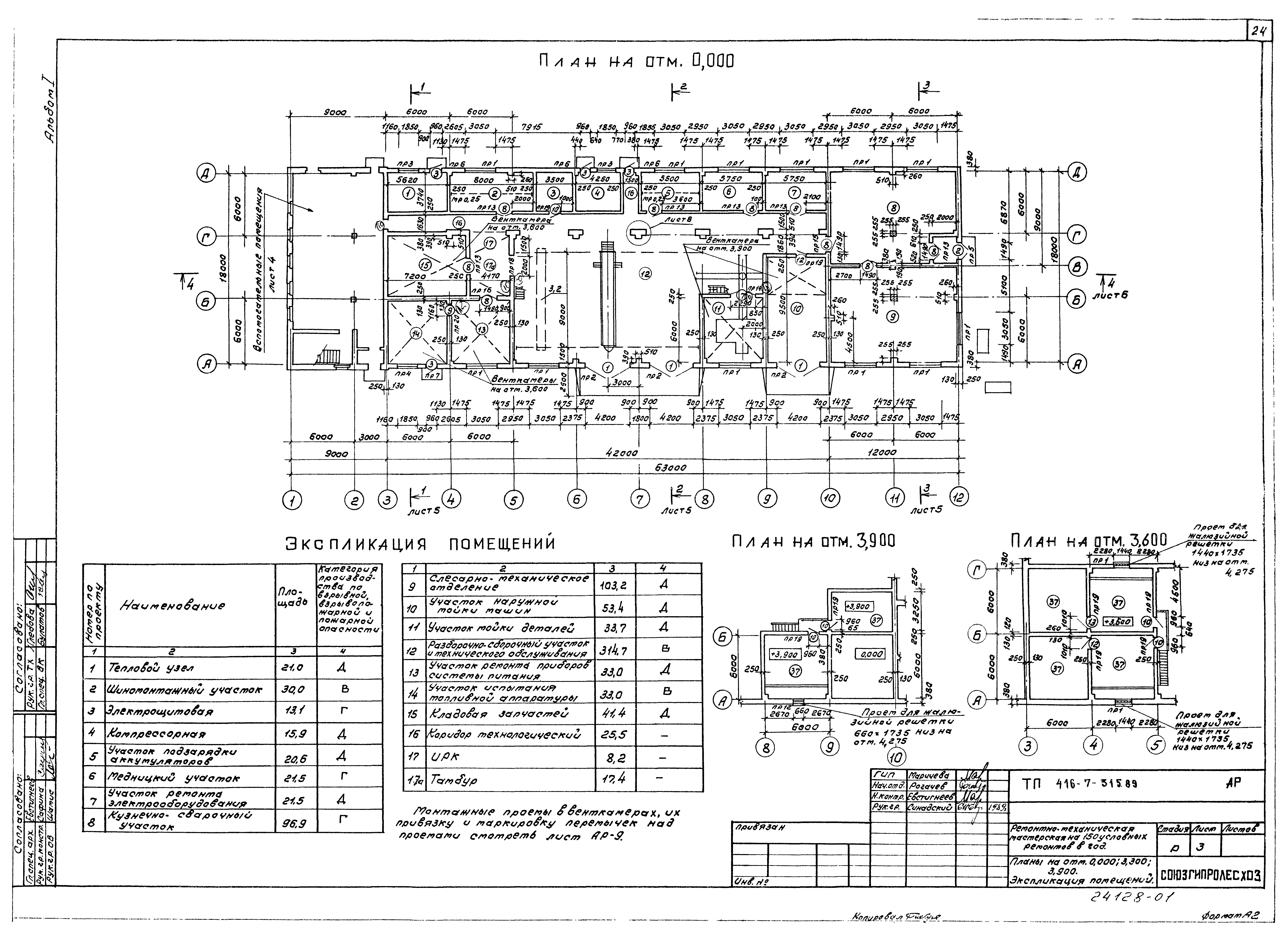
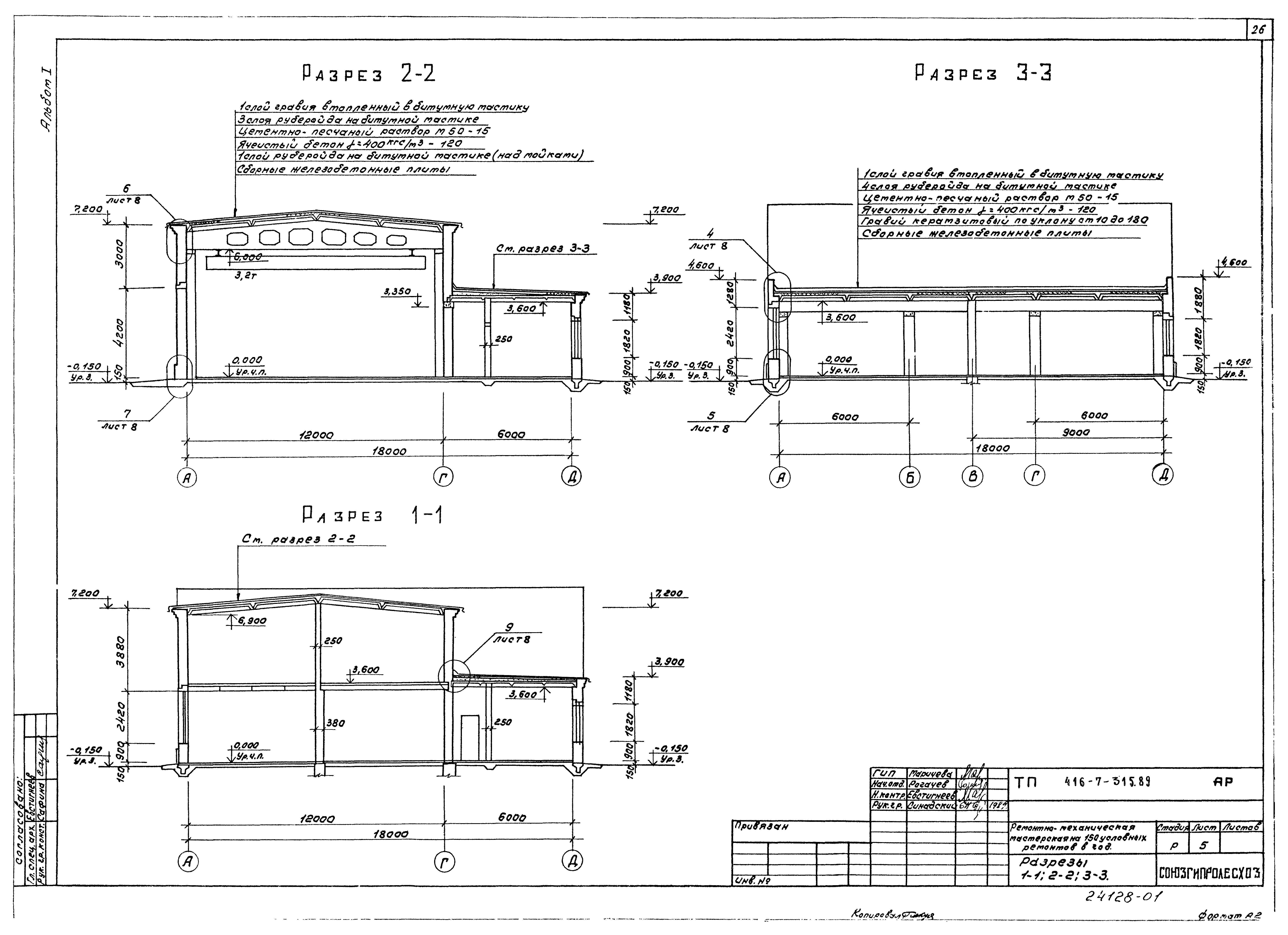
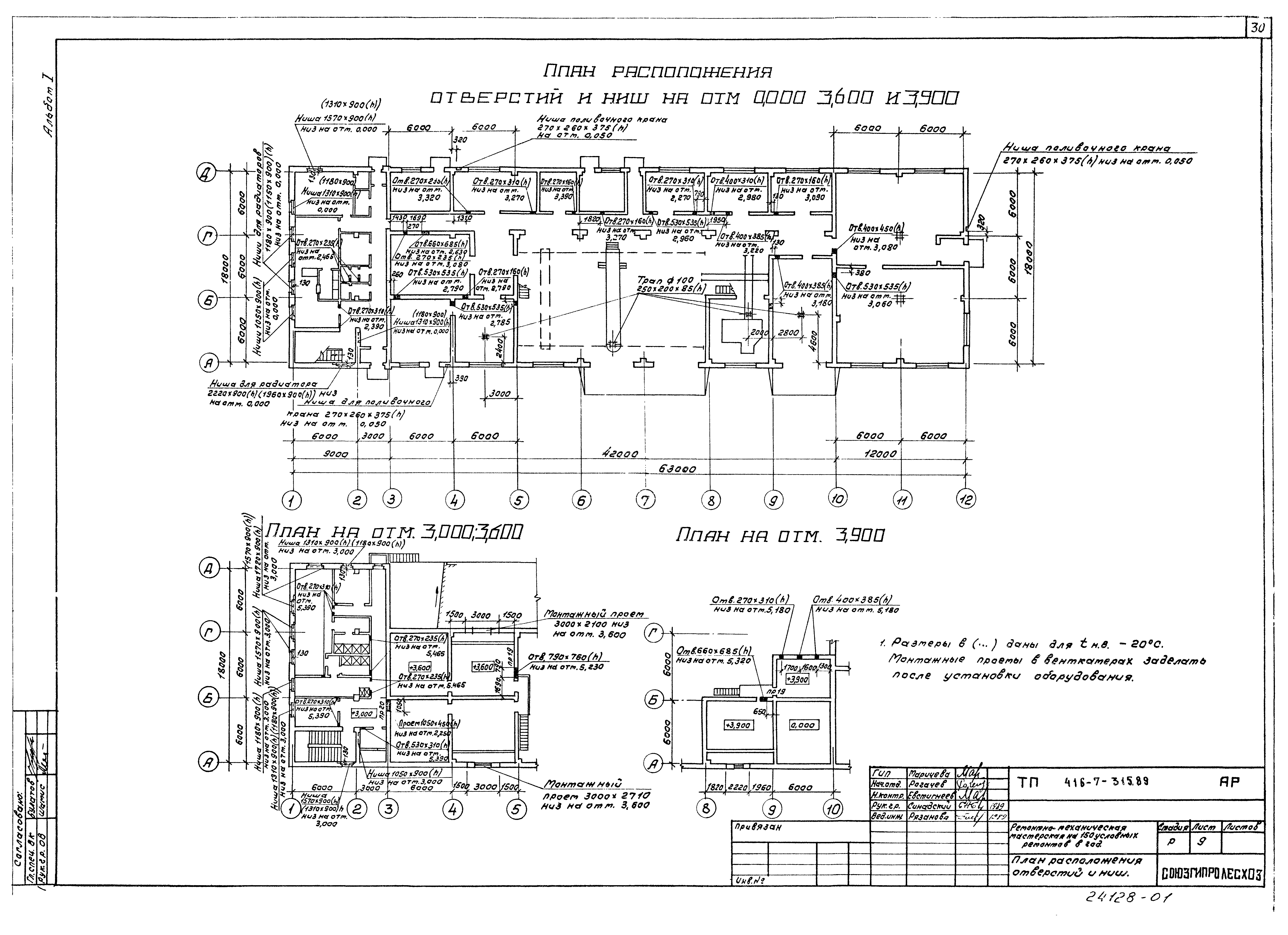
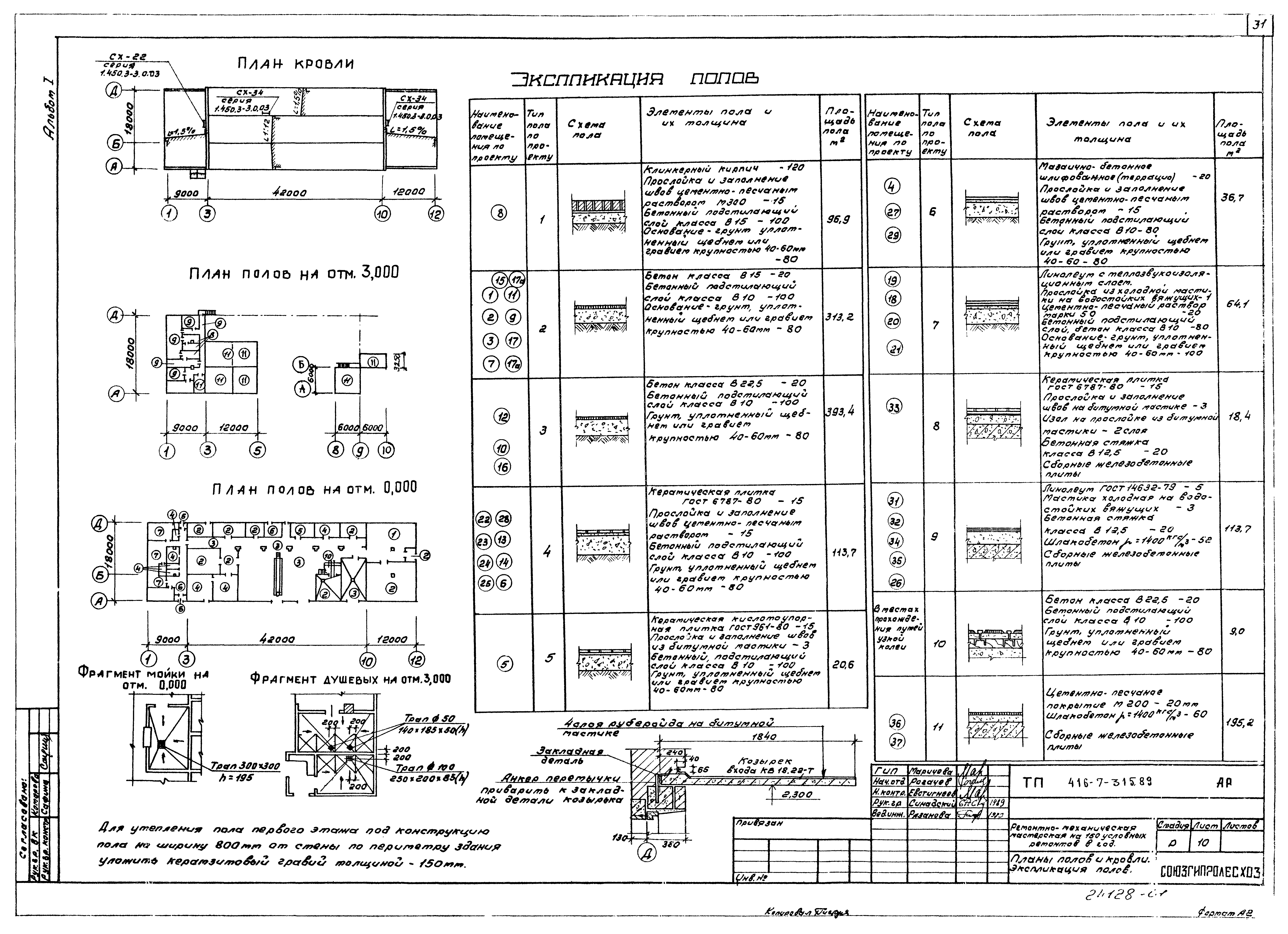
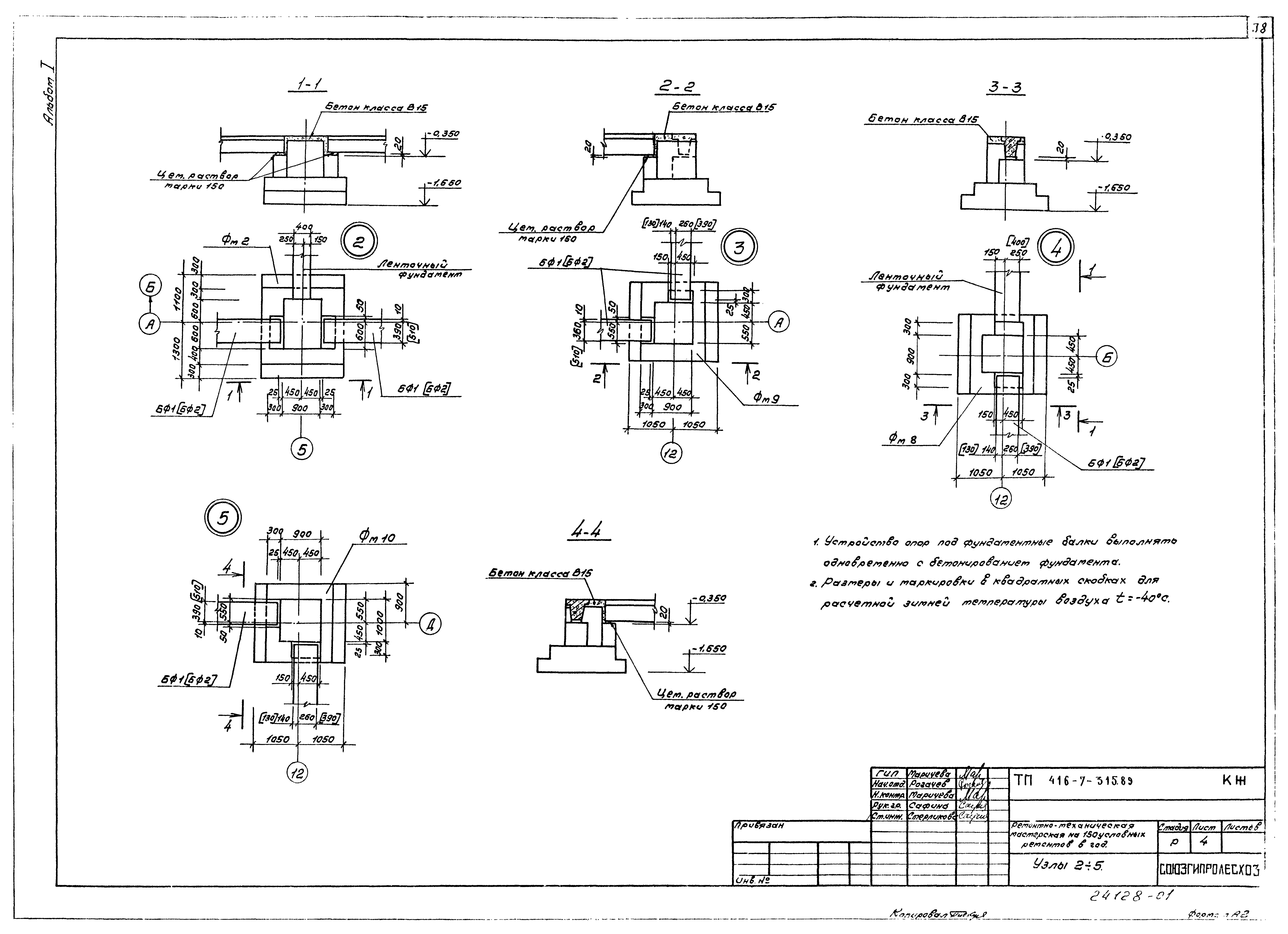
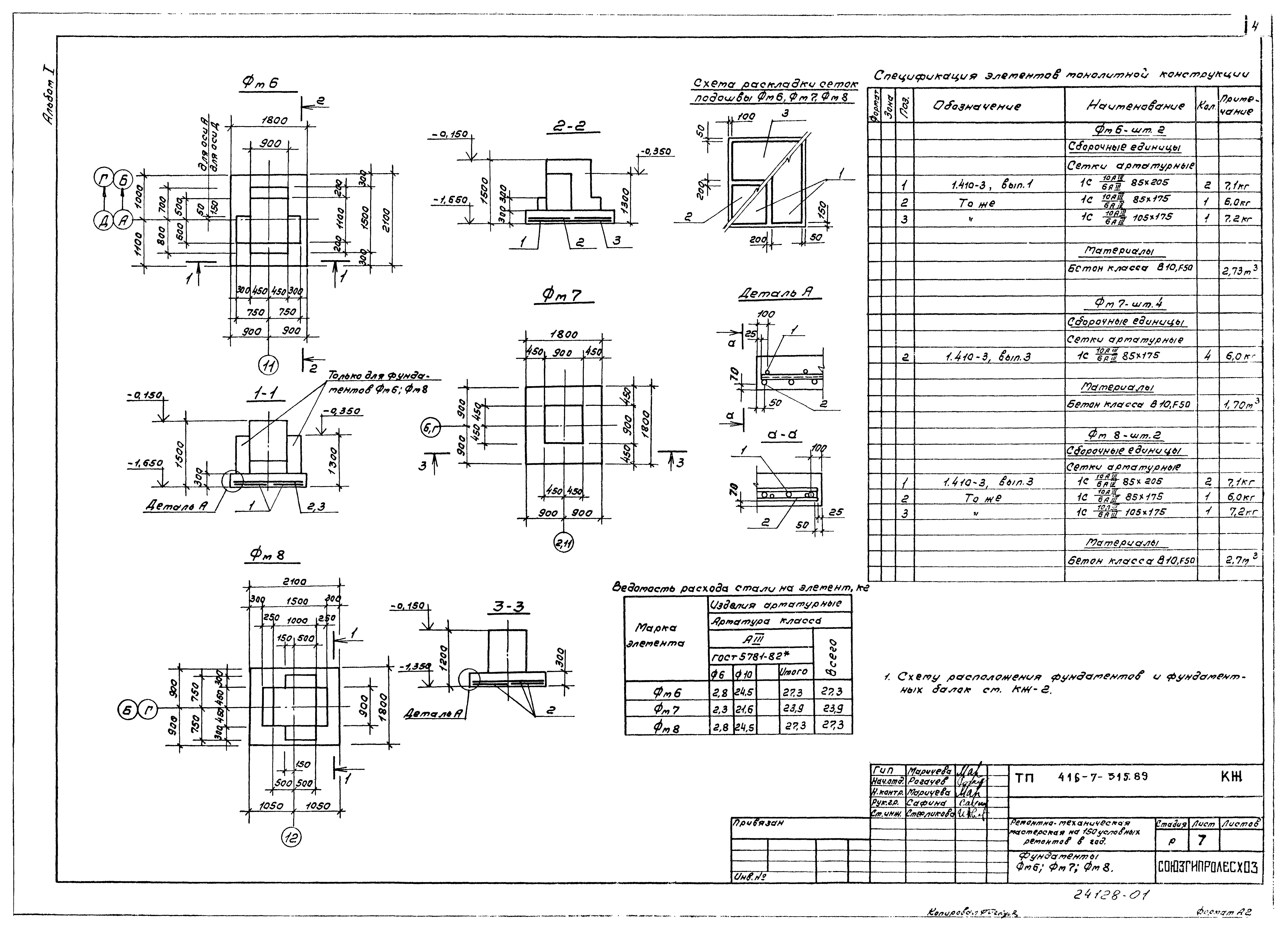
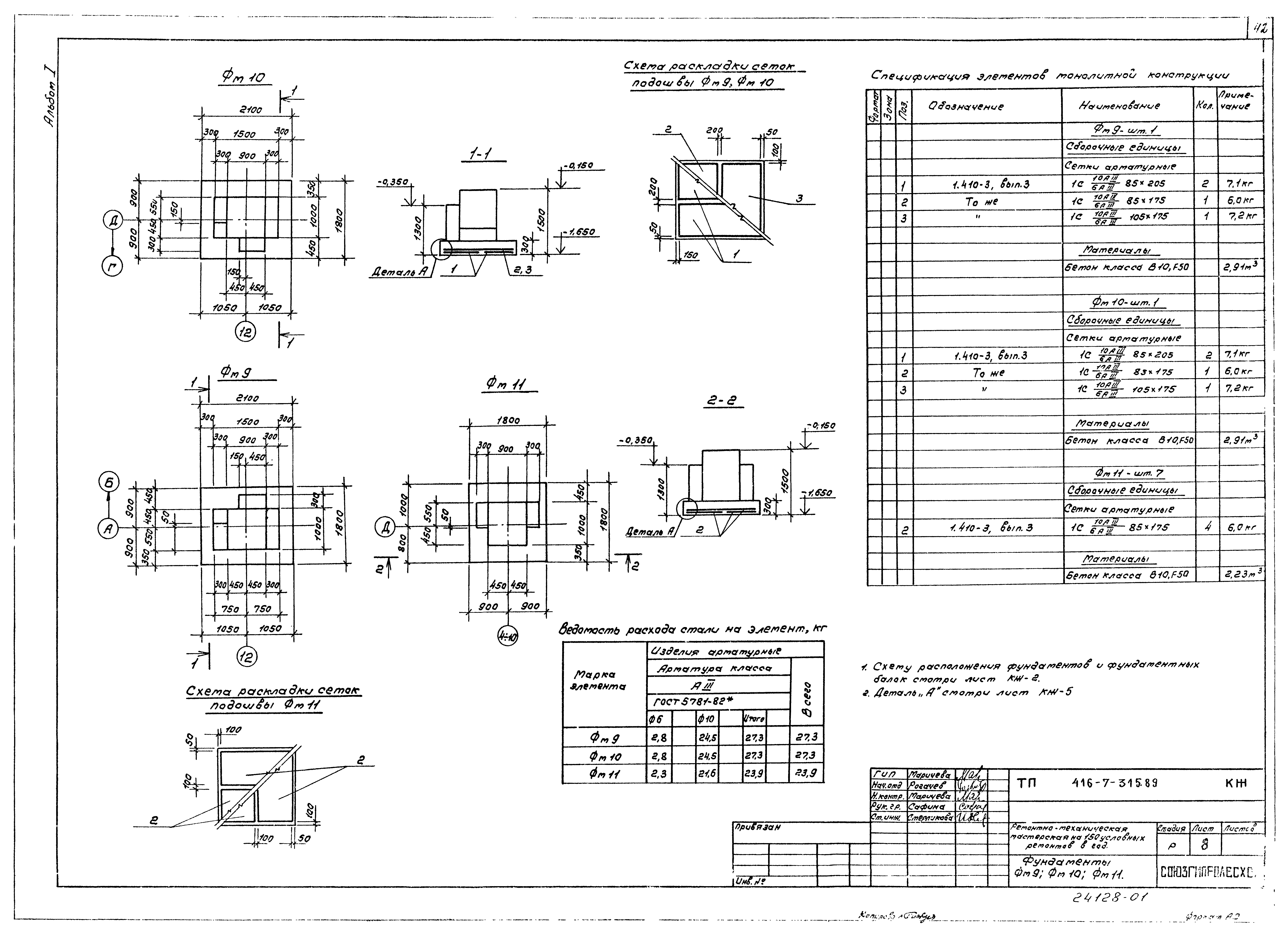
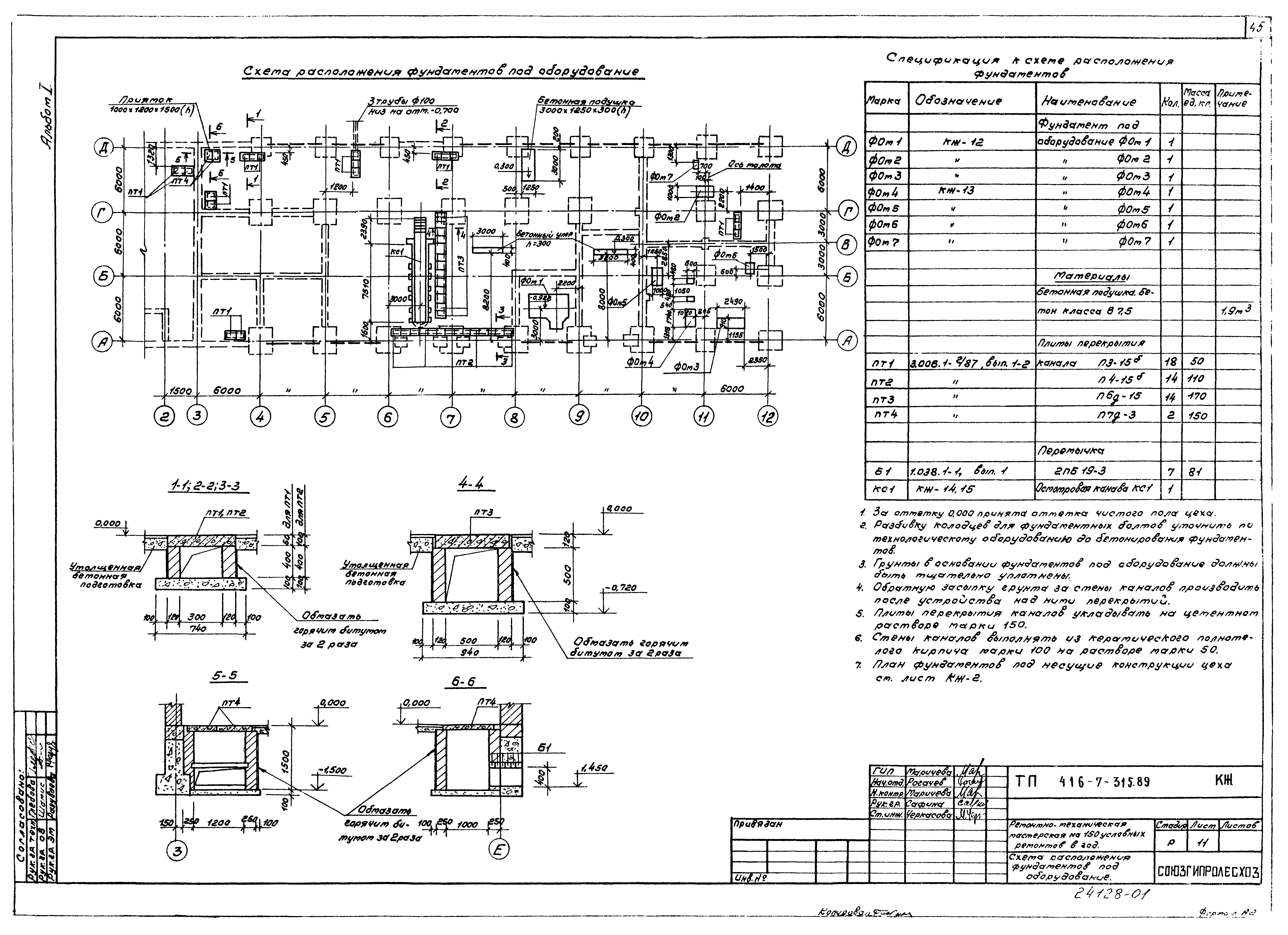
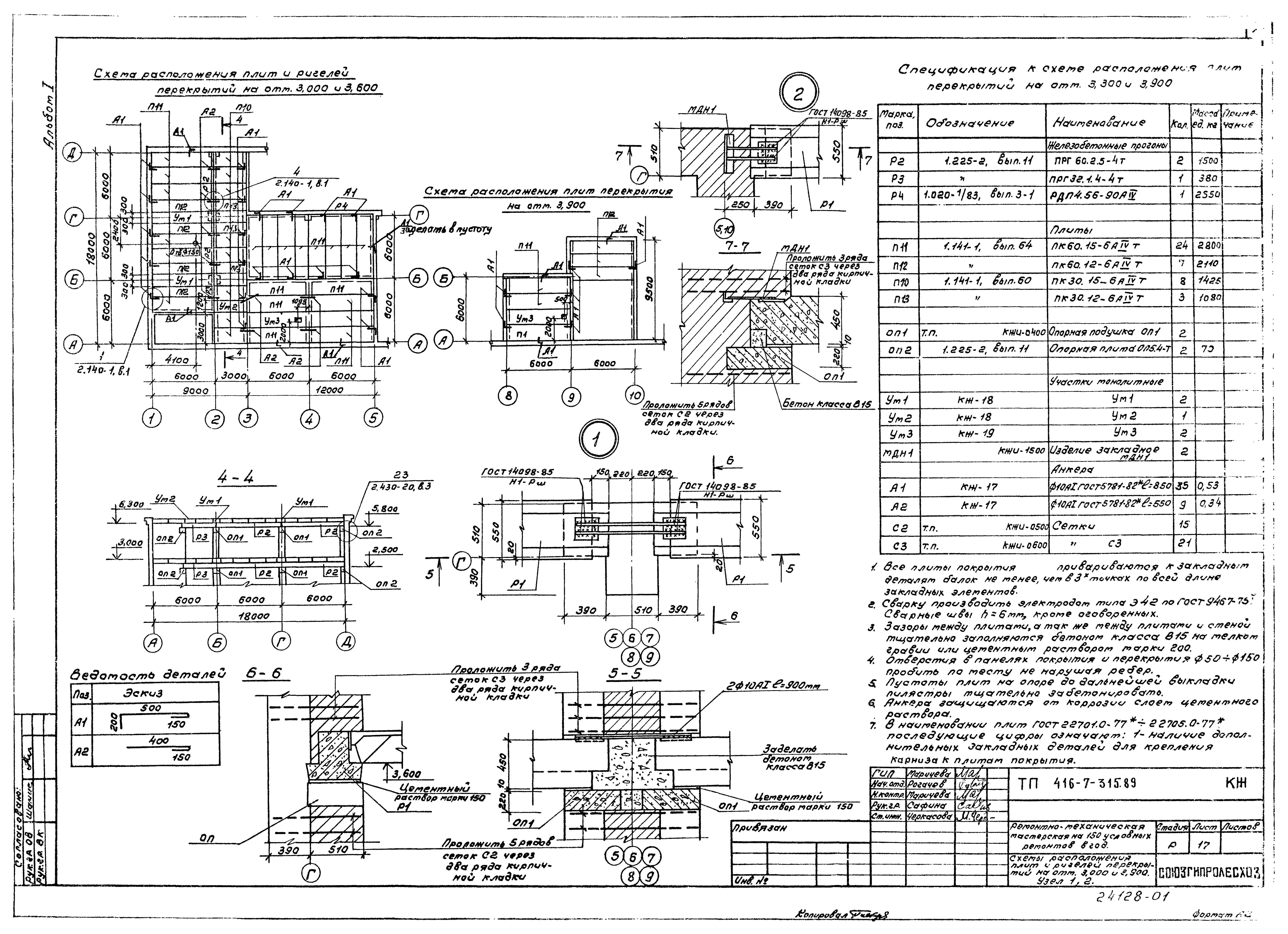
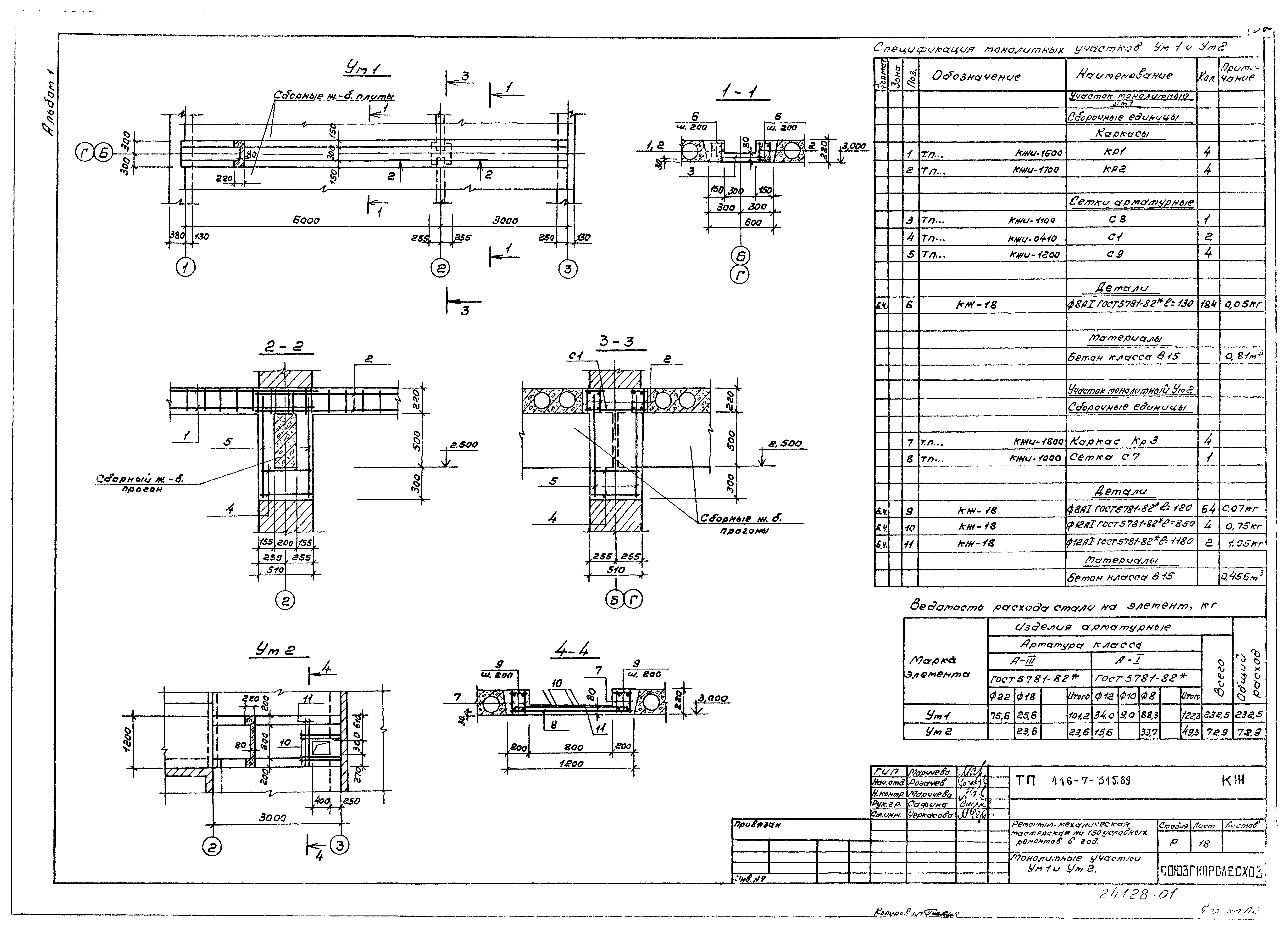
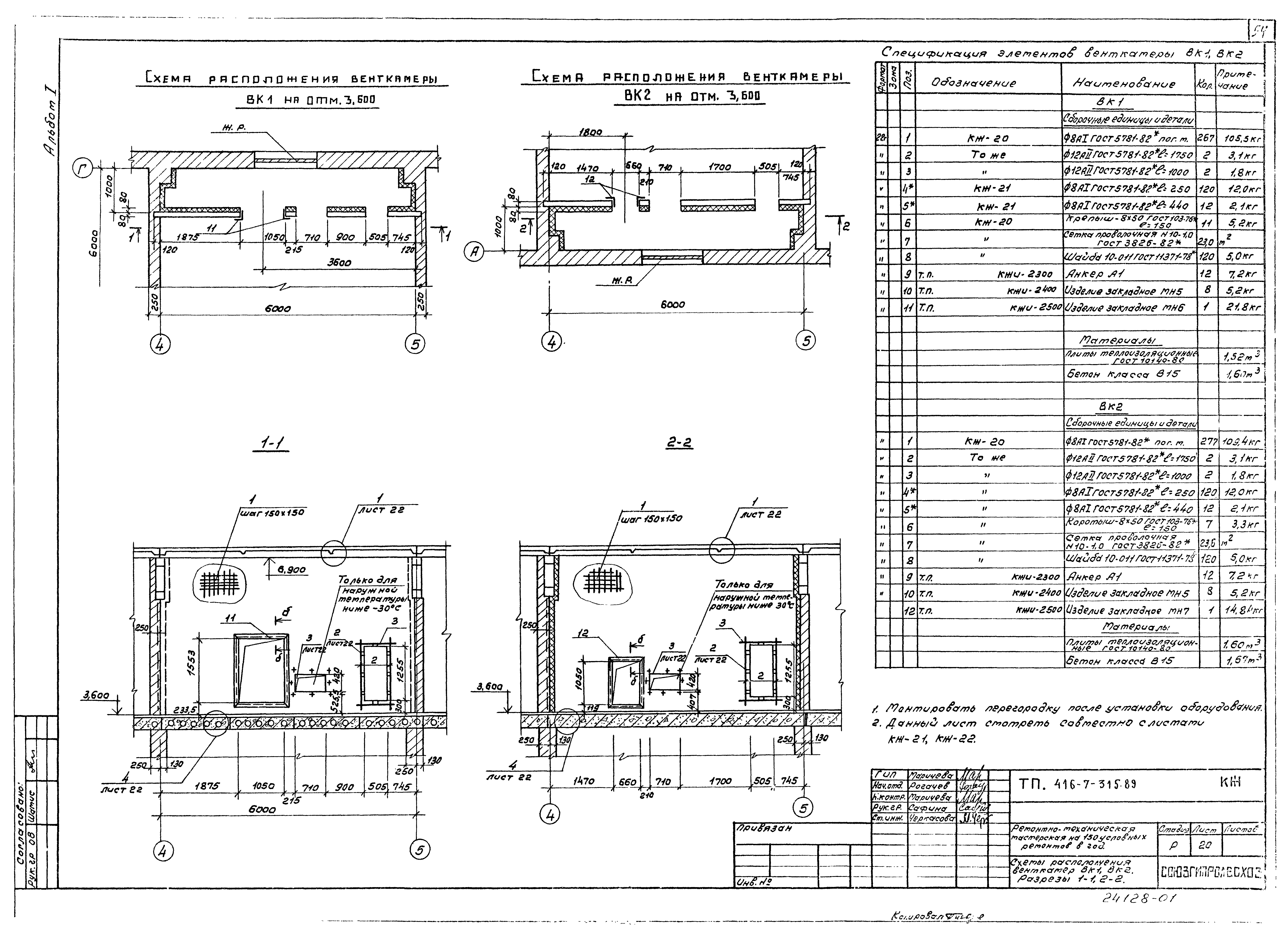
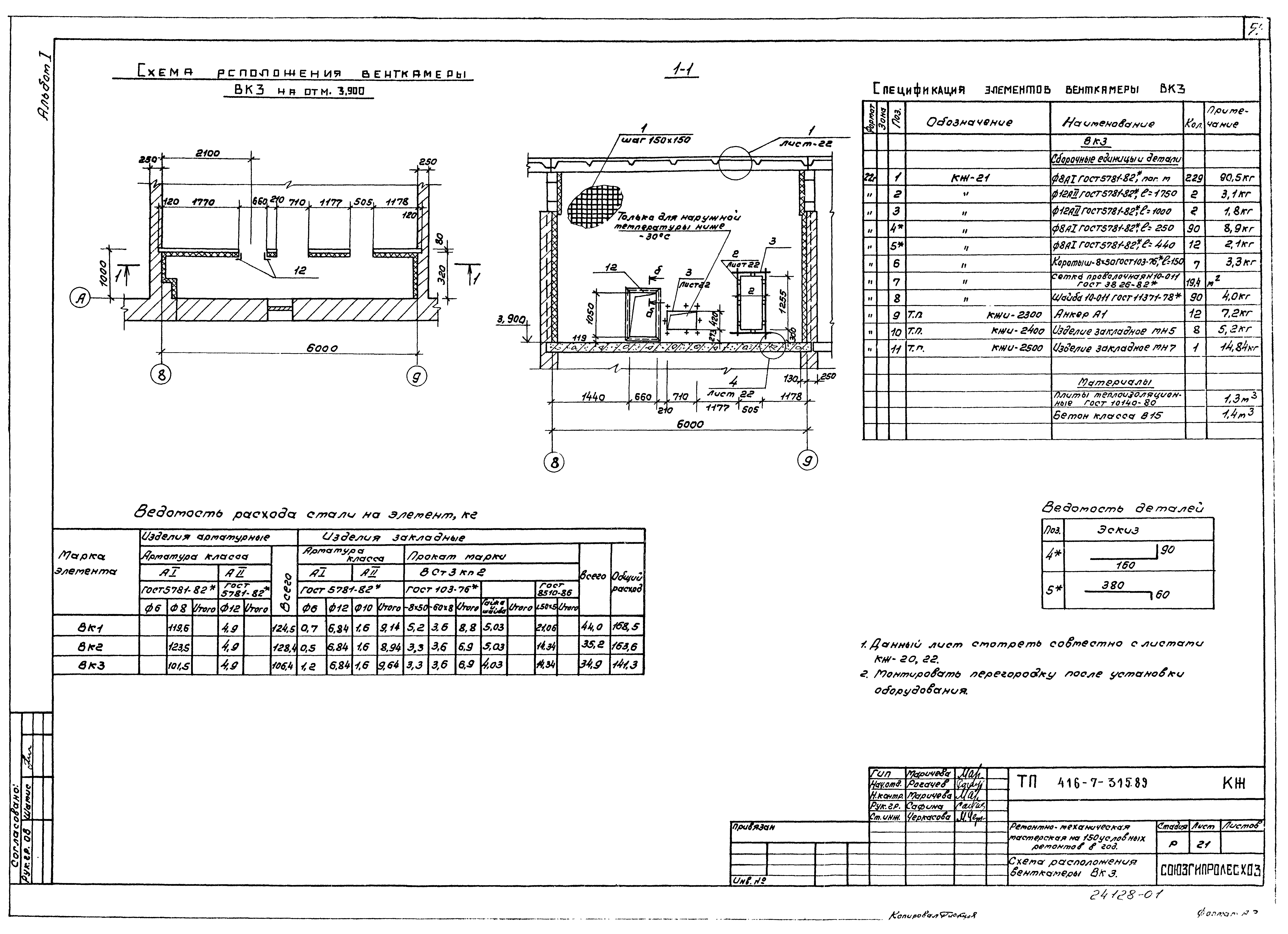
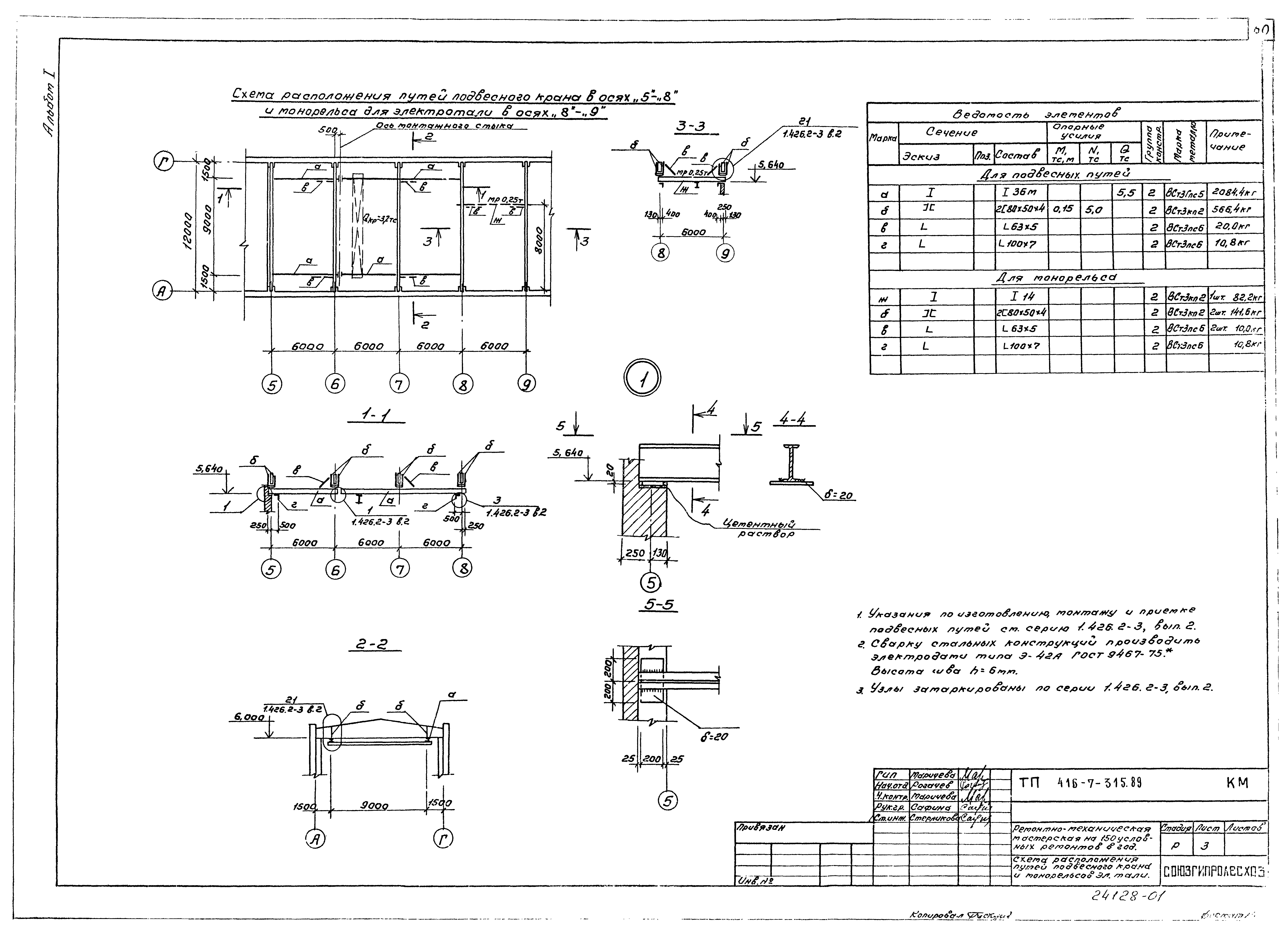
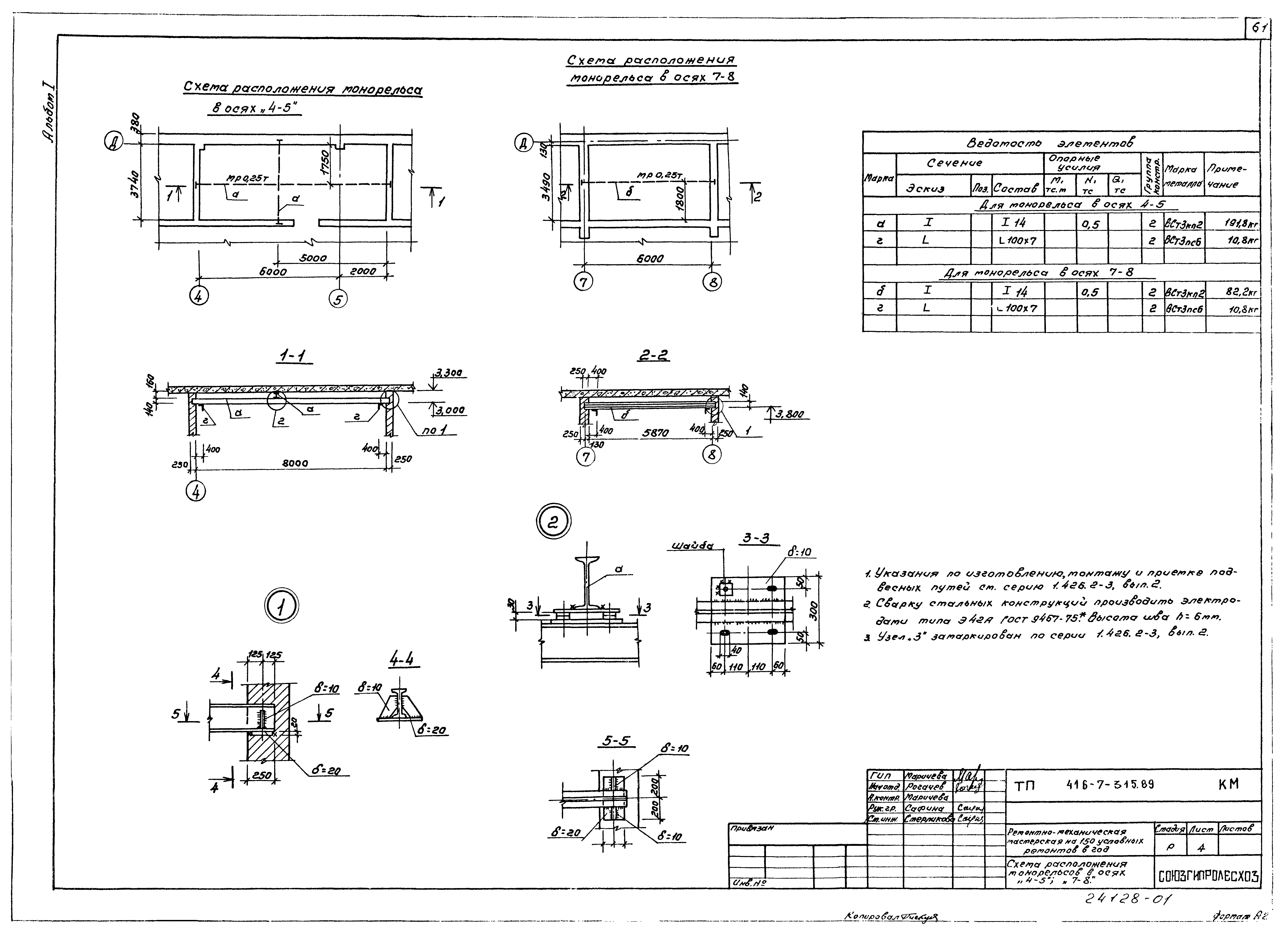
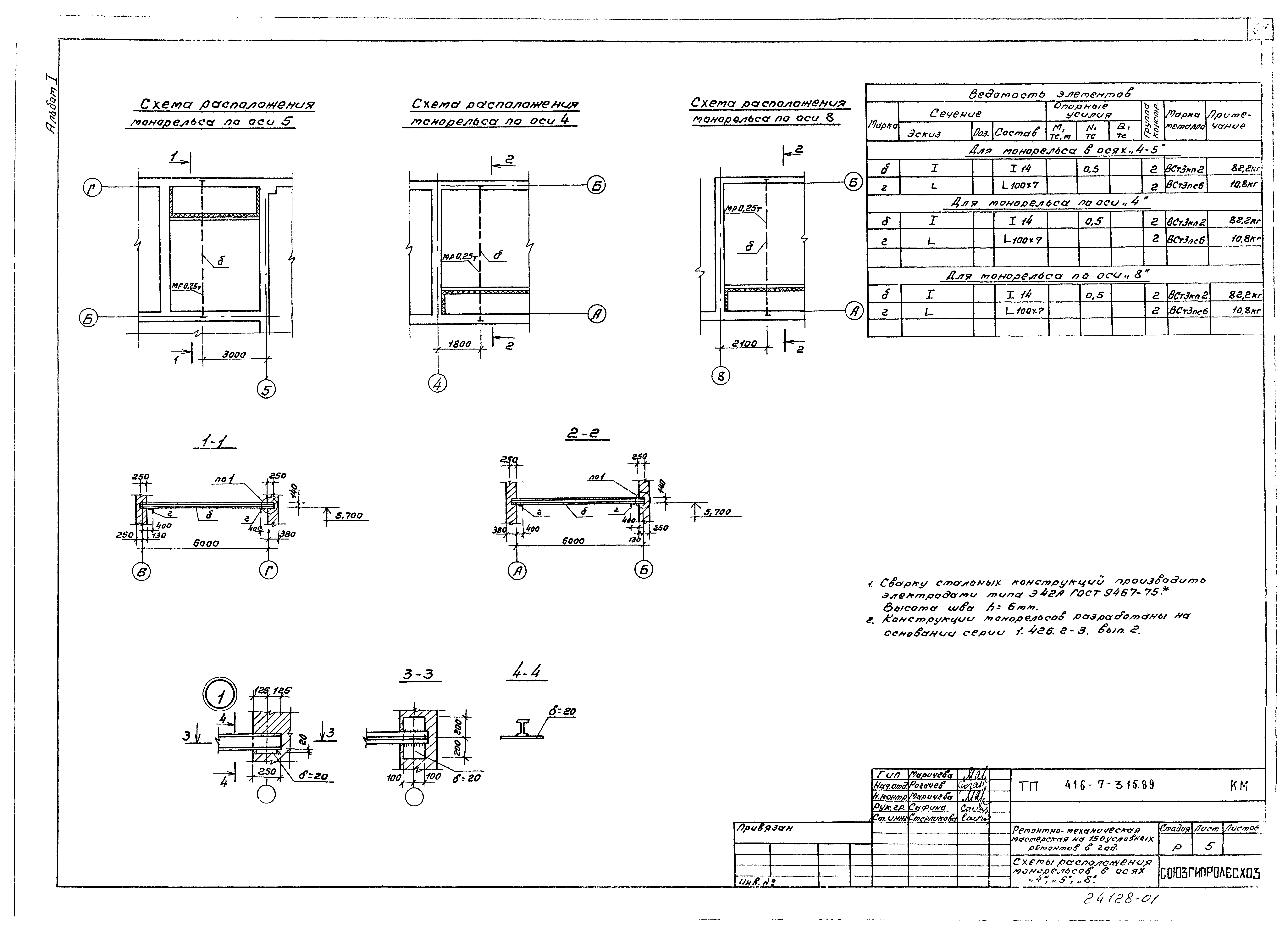
| Оглавление: | Содержание альбома Пояснительная записка Технология производства Общие данные План расположения технологического оборудования в осях 1 - 8 План расположения технологического оборудования в осях 8 - 12 Перечень технологического оборудования Разводка сжатого воздуха. План. Перечень потребителей Разводка сжатого воздуха. Узел присоединения ответвления План расположения оборудования буфета. Перечень оборудования Пароснабжение технологическое. План. Схема. Узел 1. Узел управления № 2 Архитектурные решения Общие данные Планы на отм. 0.000; 3.300; 3.900. Экспликация помещений Вспомогательные помещения. Экспликация помещений Разрезы 1-1, 2-2, 3-3 Разрезы 4-4 и 5-5. Детали разрезов Фасады Детали разрезов и фасадов. Деталь плана План расположения отверстий и ниш Планы полов и кровли. Экспликация полов Спецификация элементов заполнения. Ведомость проемов ворот и дверей. Схемы Ведомость перемычек. Спецификация перемычек для tн.в. минус 20 и минус 40 градусов Цельсия Ведомость перемычек. Спецификация перемычек для tн.в. минус 30 градусов Цельсия Конструкции железобетонные Общие данные Схема расположения фундаментов и фундаментных балок Сечение 1-1 - 7-7. Узел 1 Узлы 2 - 5 Фундаменты Фм1, Фм2 Фундаменты Фм3, Фм4, Фм5 Фундаменты Фм6, Фм7, Фм8 Фундаменты Фм9, Фм10, Фм11 Схема расположения элементов фундаментов. Сечения 1-1 - 5-5 (вариант) Раскладка блоков по осям "1", "2", "3", "А", "Д" и А/Б (вариант) Схема расположения фундаментов под оборудование Фундаменты под оборудование ФОм1 - ФОм3 Фундаменты под оборудование ФОм4, ФОм5, ФОм6, ФОм7 Схема расположения ремонтно-осмотровой канавы КС1. Разрезы 1-1 и 2-2 Ремонтно-осмотровая канава КС1. Разрезы 3-3 - 5-5. Узлы 1 - 5 Схема расположения балок и плит покрытия. Разрезы 1-1 - 3-3 Схемы расположения плит и ригелей перекрытий на отм. 3.000 и 3.900. Узел 1, 2 Монолитные участки Ум1 и Ум2 Участки монолитные Ум3 Схемы расположения венткамер ВК1, ВК2. Разрезы 1-1, 2-2 Схема расположения венткамеры ВК3 Узлы 1 - 4 Схема расположения элементов лестницы между осями 1 - 2. Узлы 1 - 3 Конструкции металлические Общие данные Схема расположения балок подвесного крана и монорельсов электротали Схема расположения монорельсов в осях "4 - 5", "7 - 8" Схема расположения монорельсов в осях "4", "5", "8" Схемы расположения элементов лестниц Лм1, Лм2, Лм3 |
| Разработан: | Союзгипролесхоз |
| Утверждён: | 08.12.1989 Госкомлес СССР (USSR Goskomles 23) |
































































