Скачать Типовой проект 416-7-315.89 Альбом 2. Внутренние водопровод и канализация. Отопление, вентиляция и кондиционирование воздуха. Силовое электрооборудование. Электрическое освещение. Связь и сигнализация. Автоматизация санитарно-технических систем. Чертежи заданий заводам-изготовителямДата актуализации: 01.01.2021
|
| Обозначение: | Типовой проект 416-7-315.89 |
| Обозначение англ: | 416-7-315.89 |
| Статус: | не определен законодательством |
| Название рус.: | Альбом 2. Внутренние водопровод и канализация. Отопление, вентиляция и кондиционирование воздуха. Силовое электрооборудование. Электрическое освещение. Связь и сигнализация. Автоматизация санитарно-технических систем. Чертежи заданий заводам-изготовителям |
| Дата добавления в базу: | 01.10.2014 |
| Дата актуализации: | 01.01.2021 |
| Дата введения: | 12.12.1989 |
| Дата окончания срока действия: | 30.06.2003 |
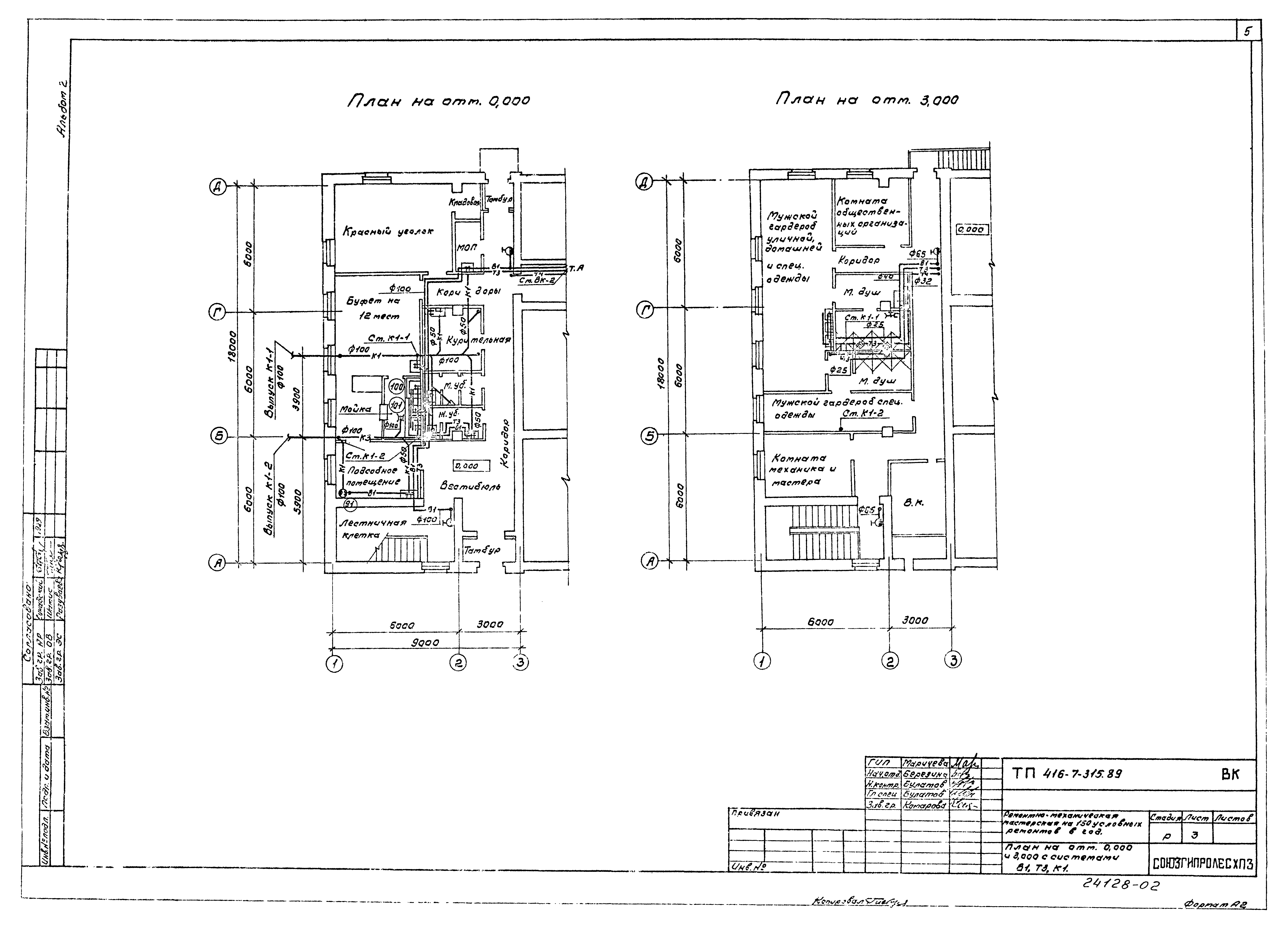
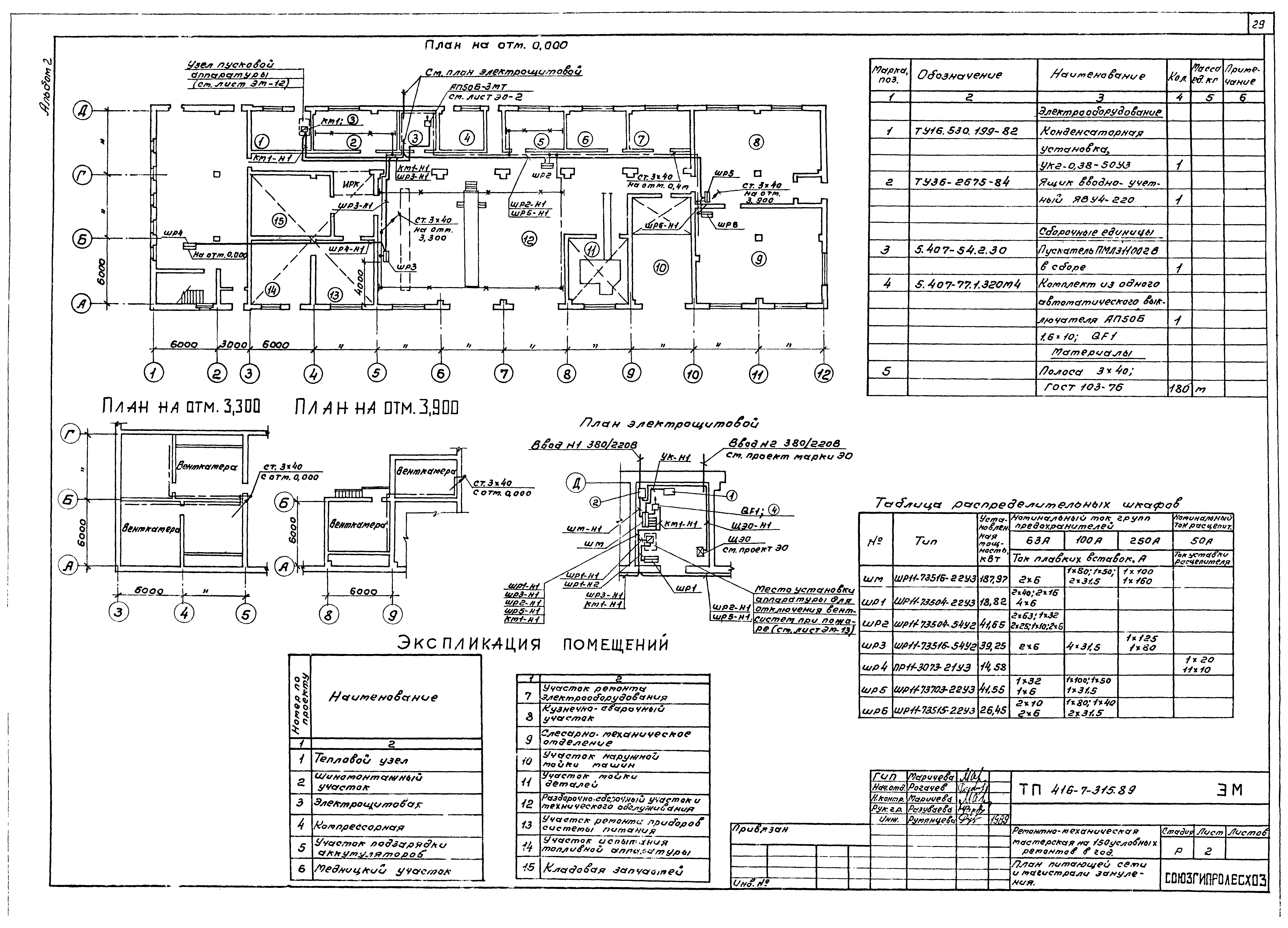
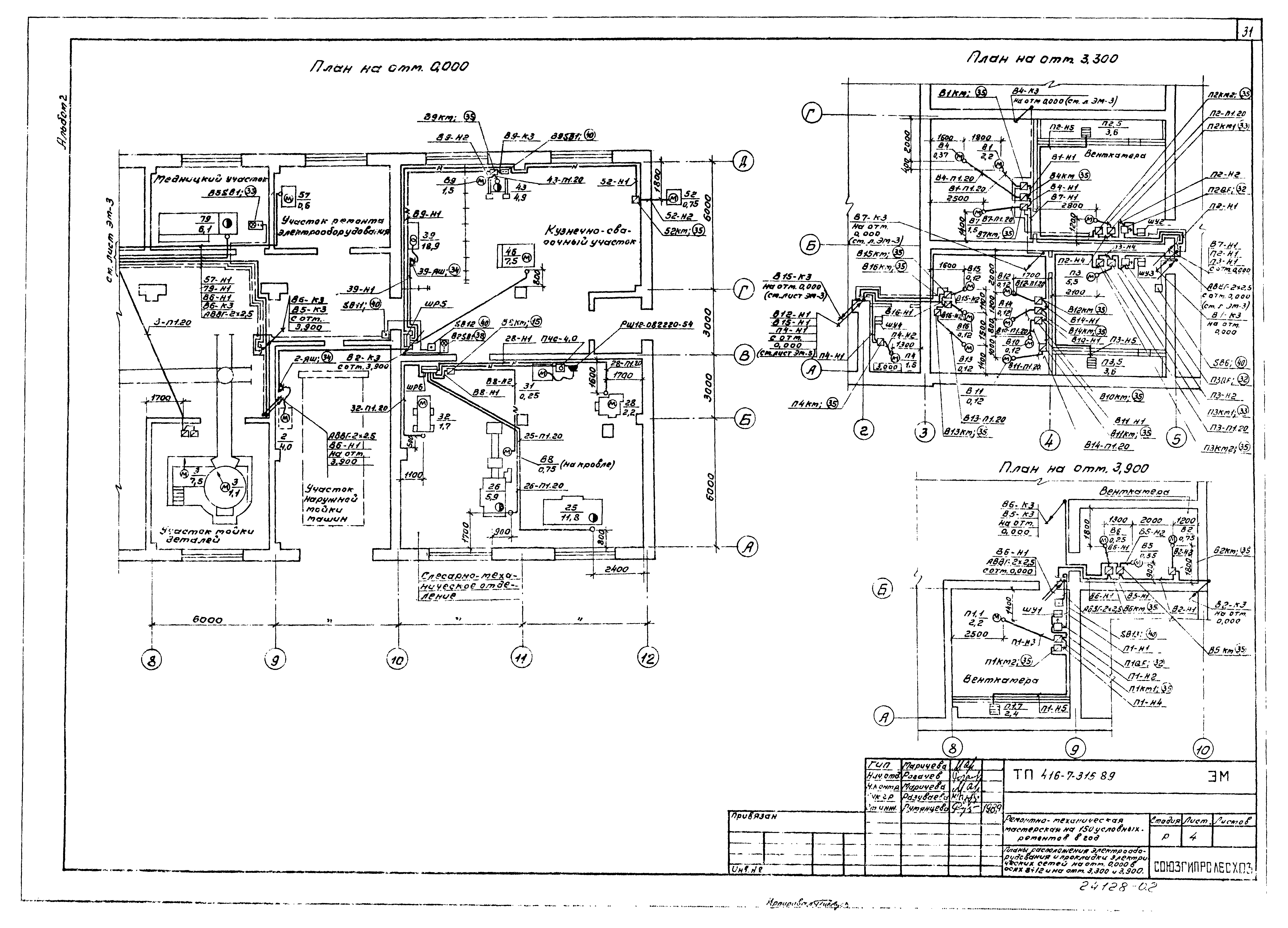
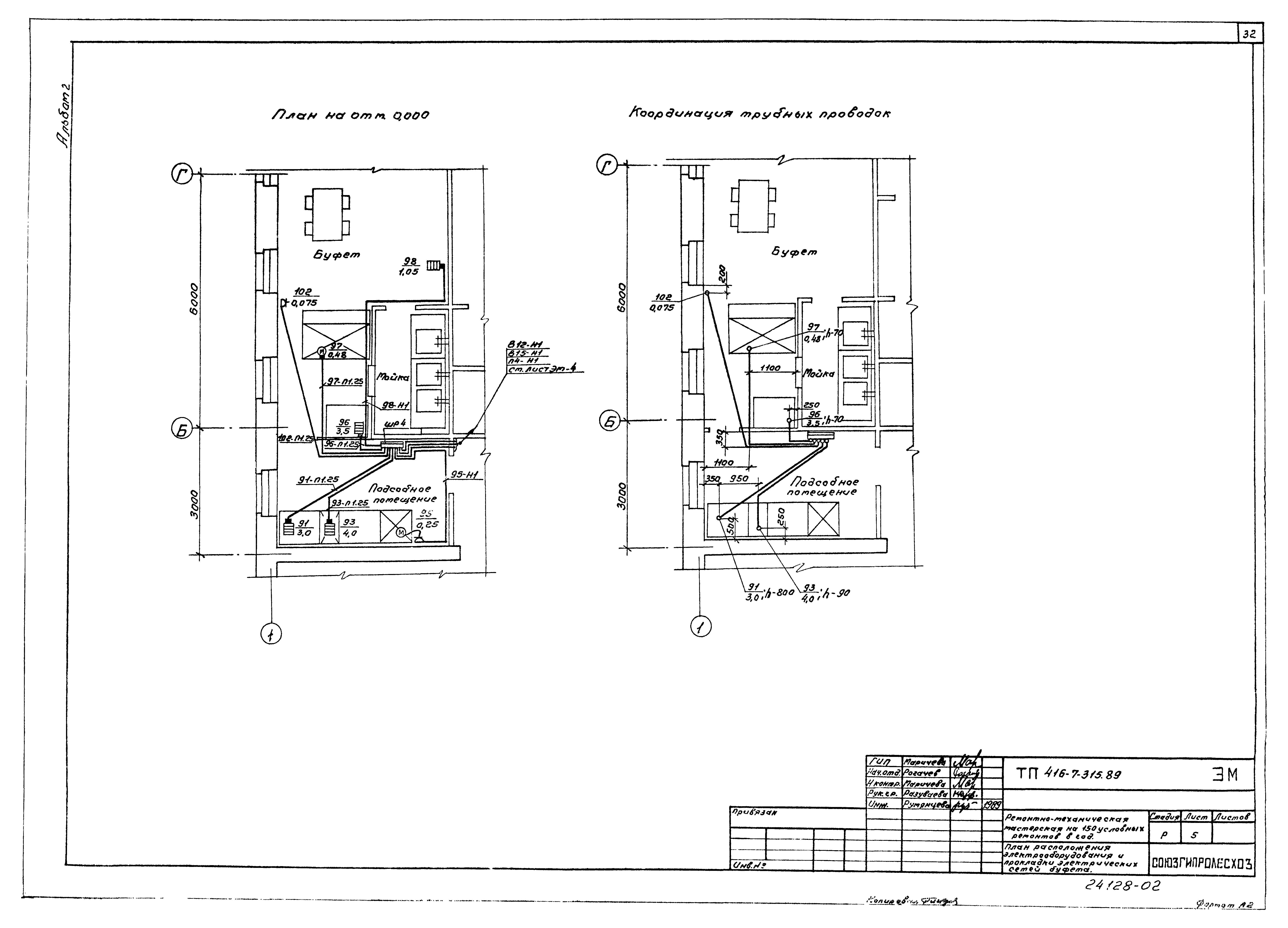
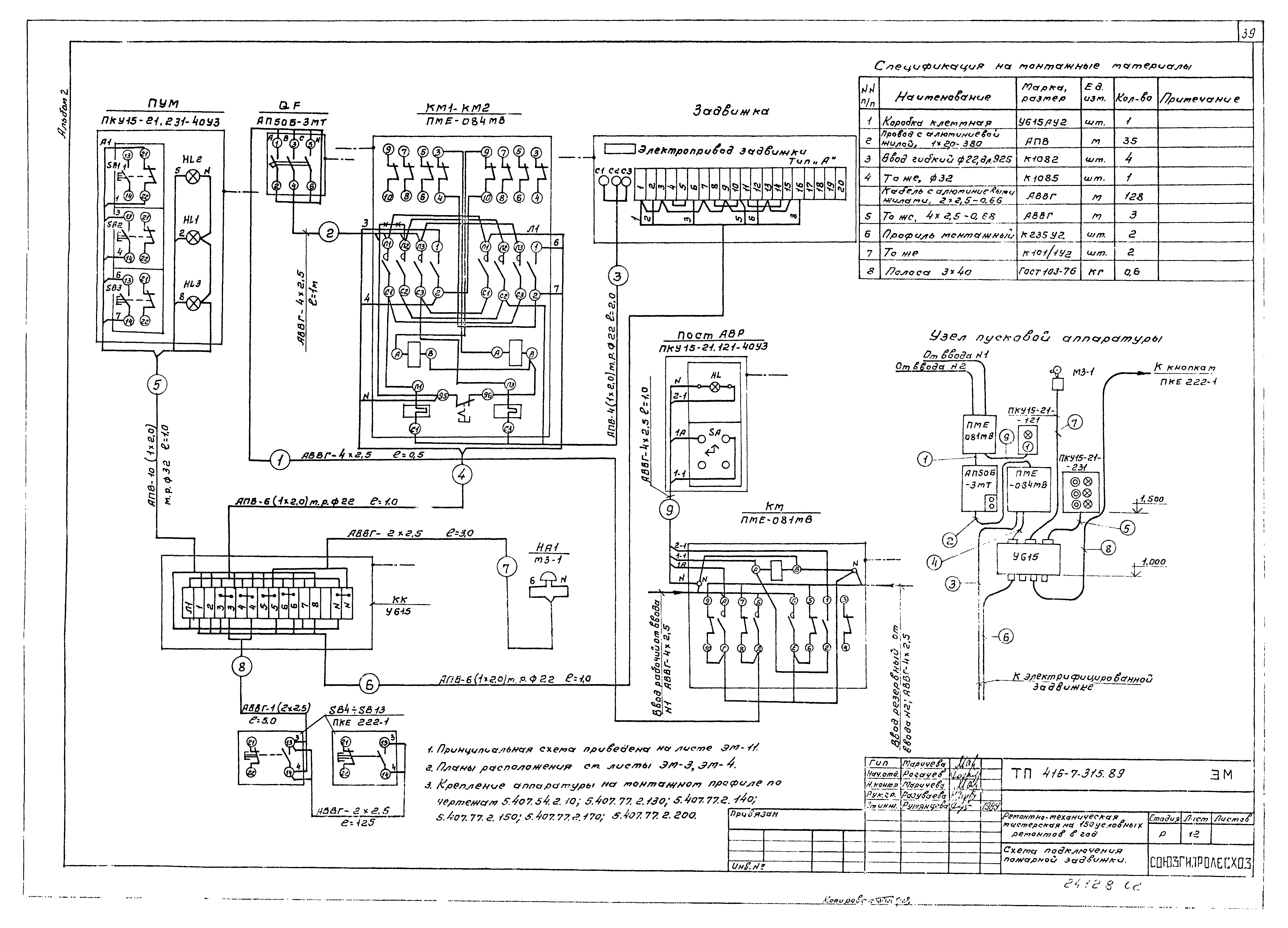
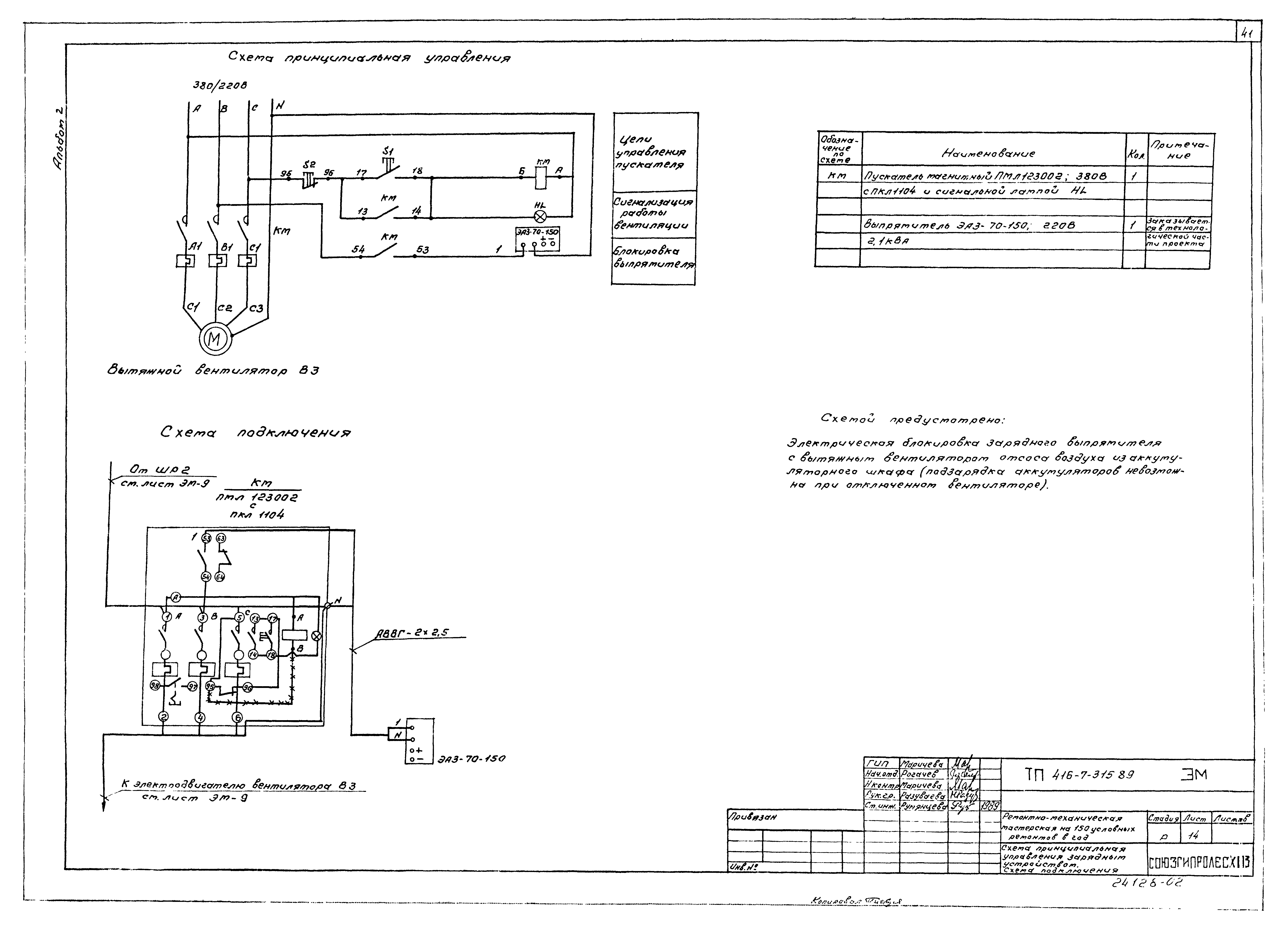
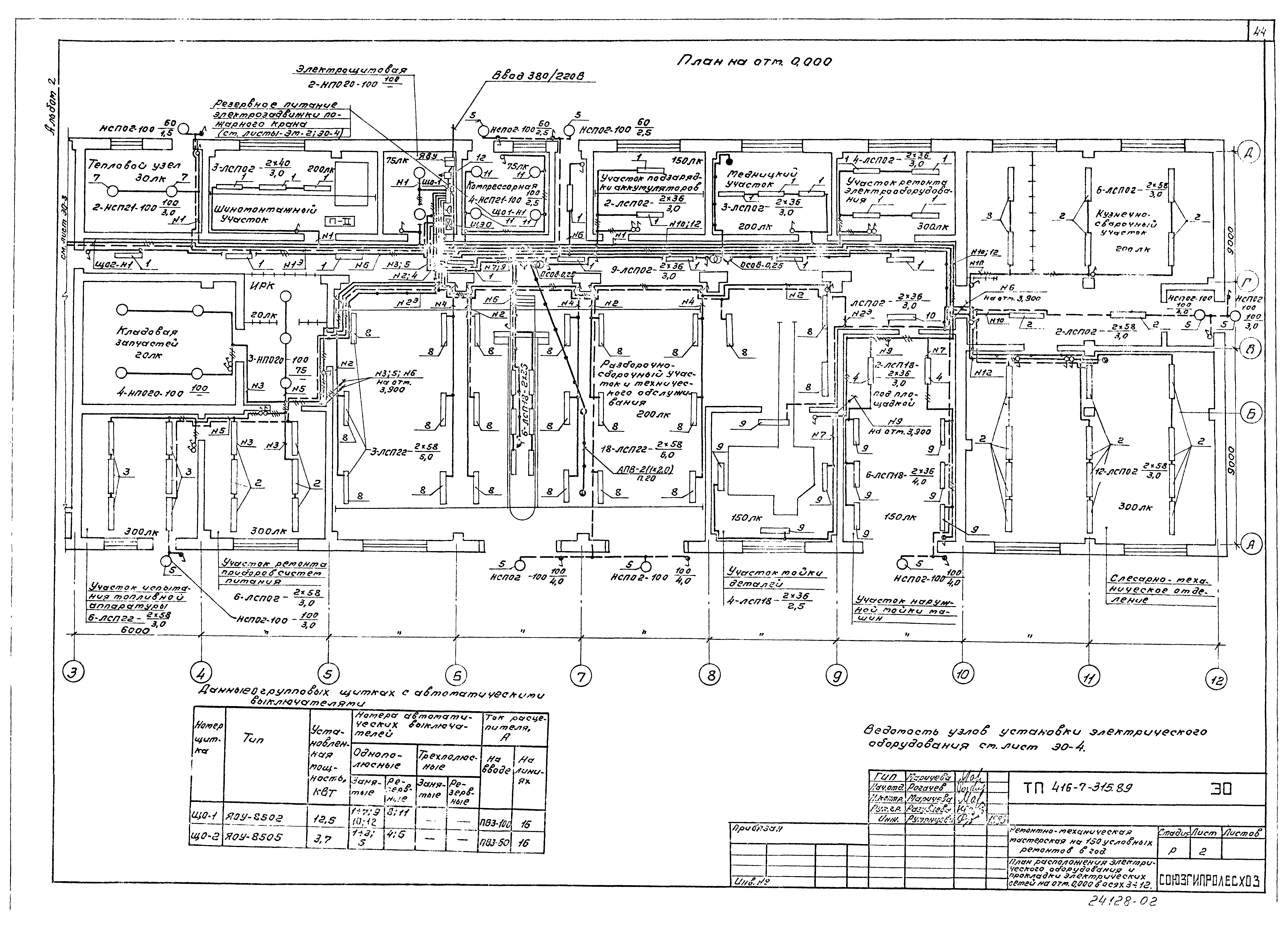
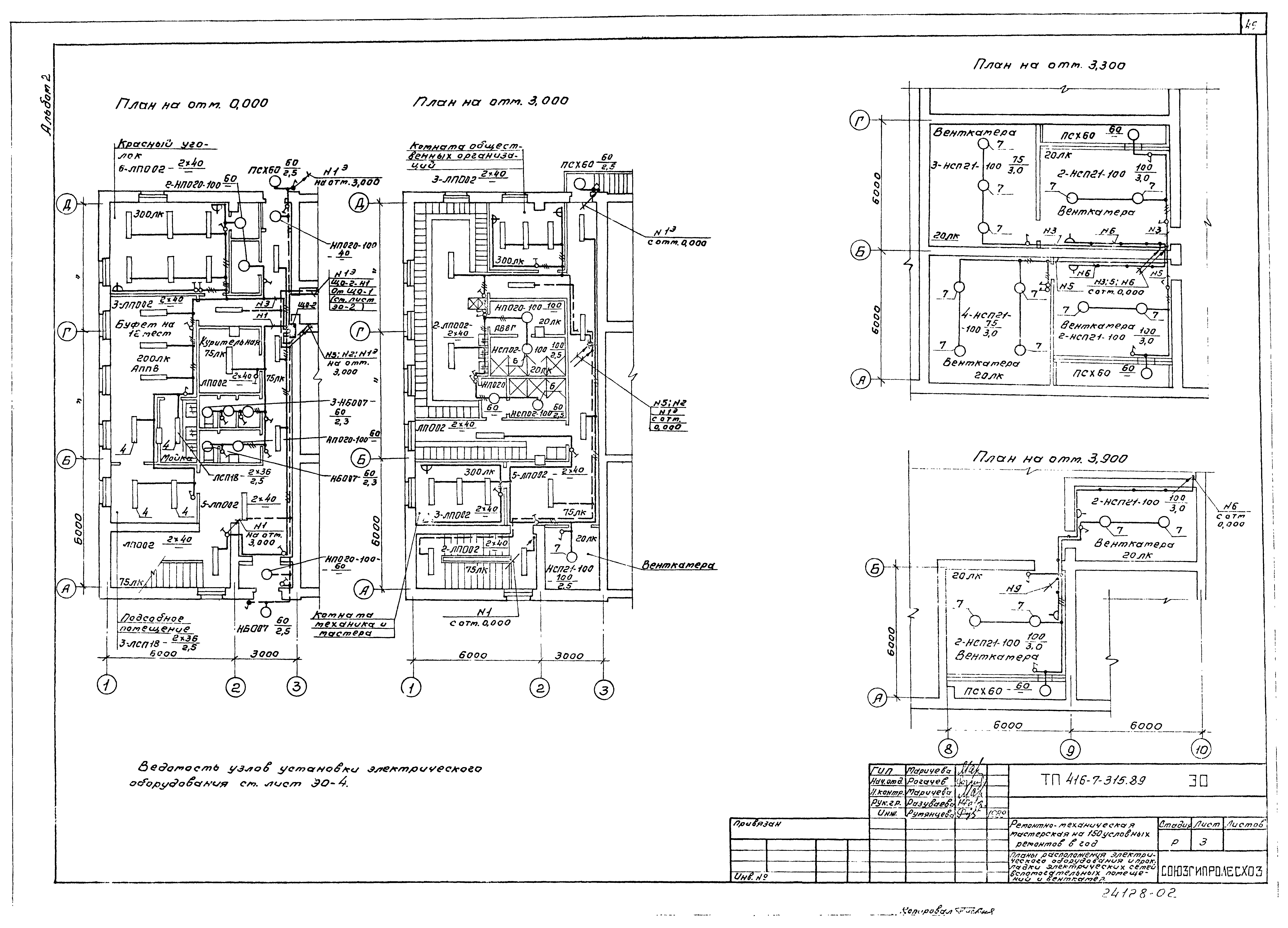
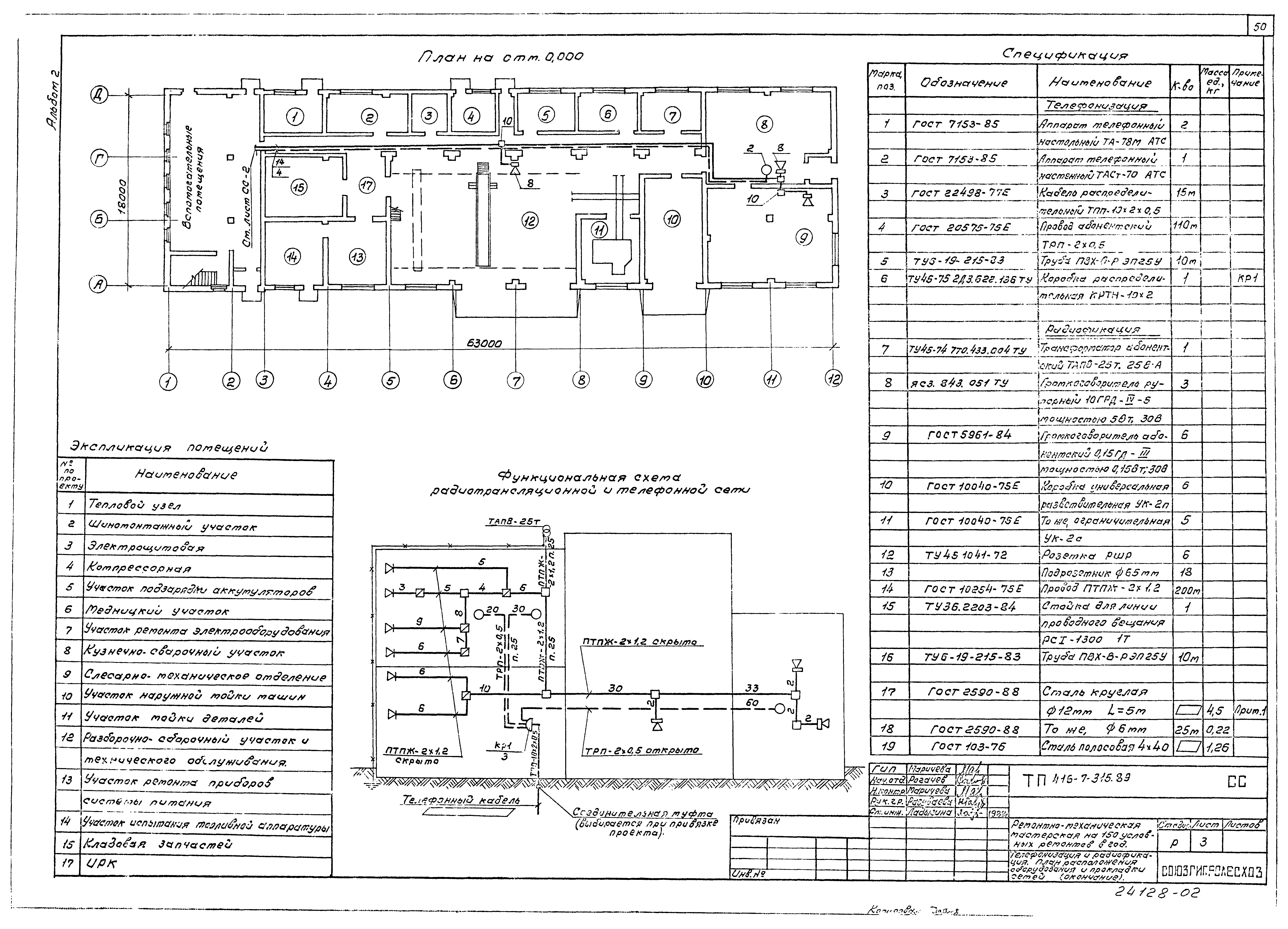
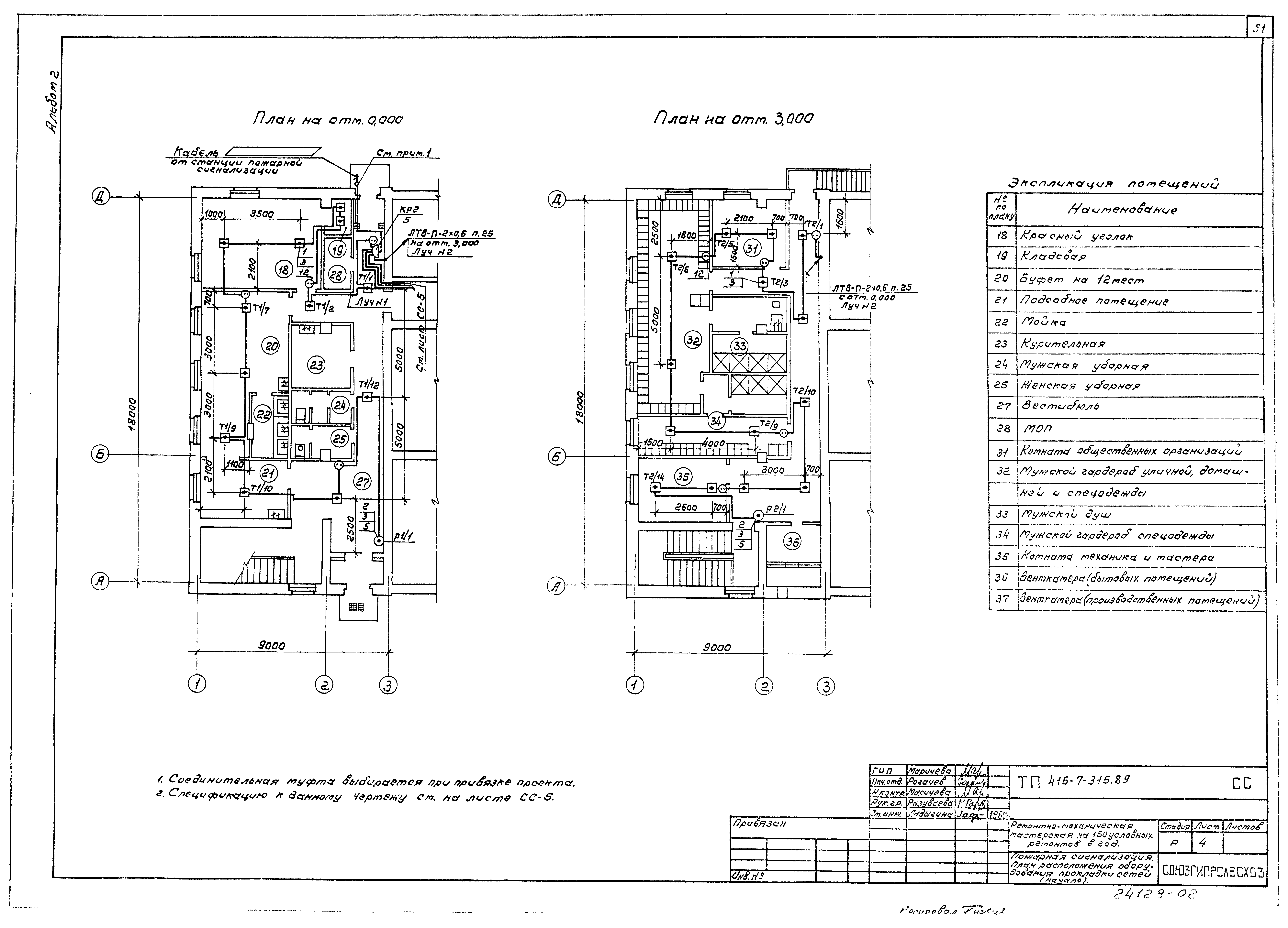
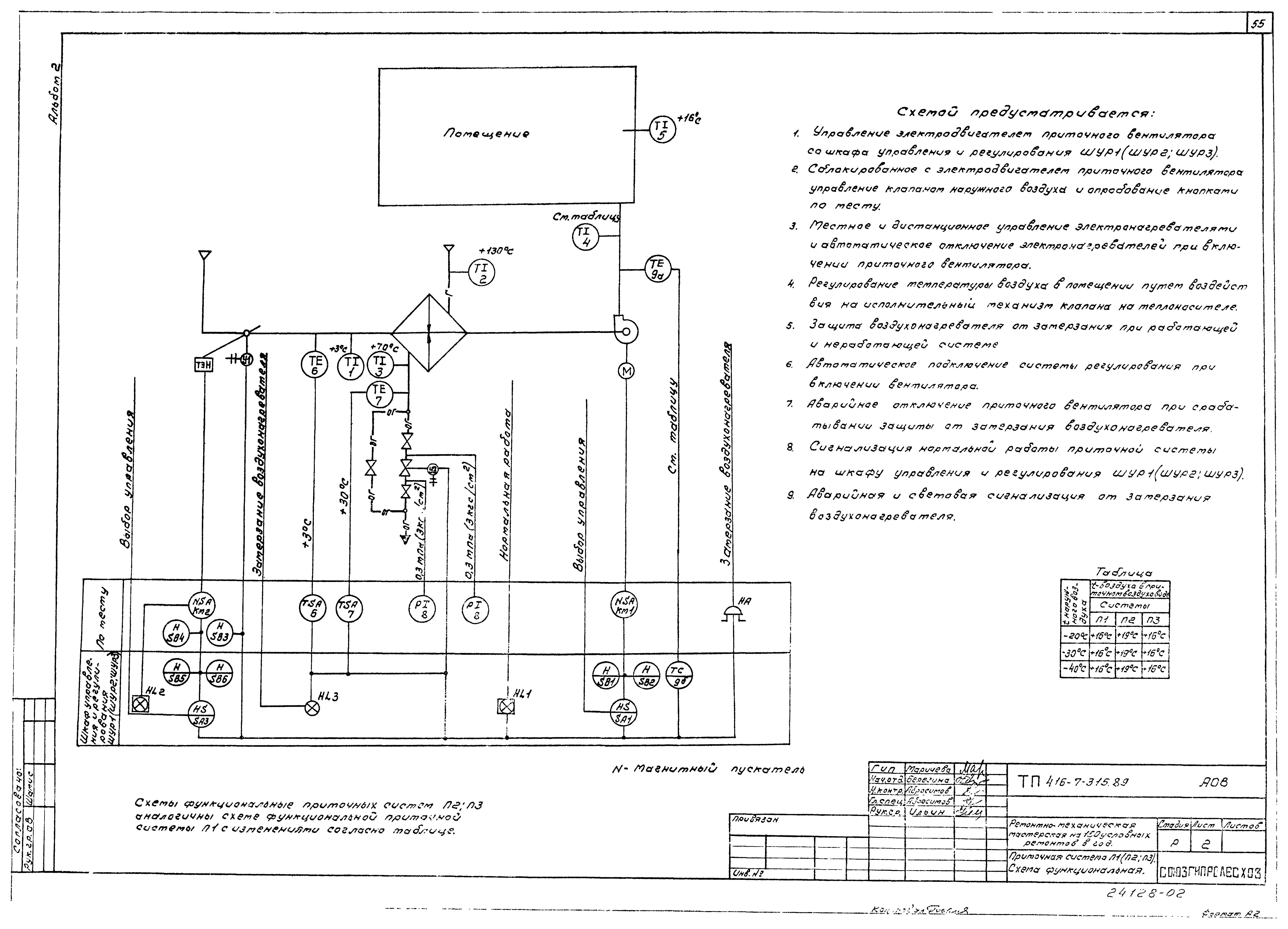
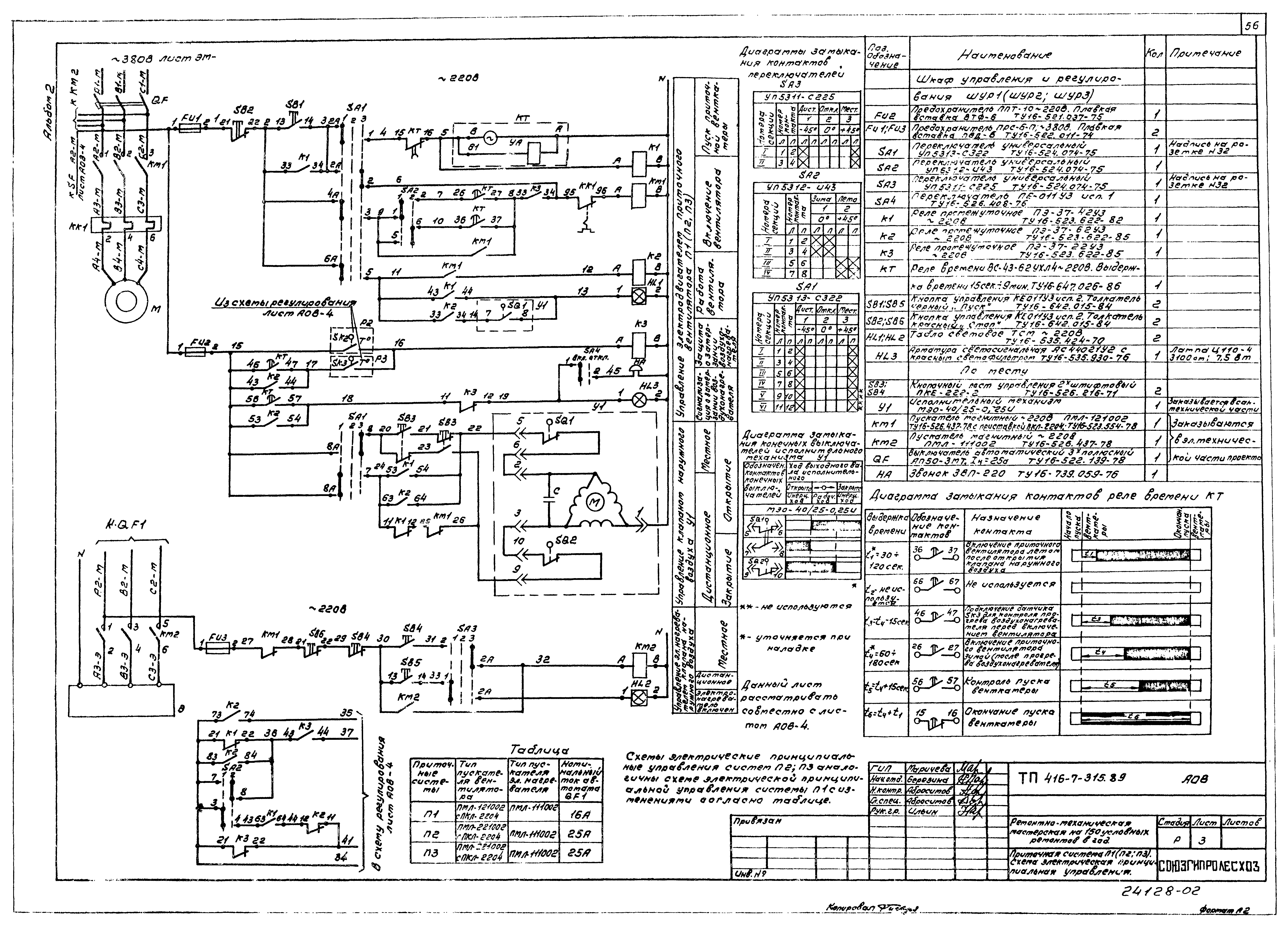
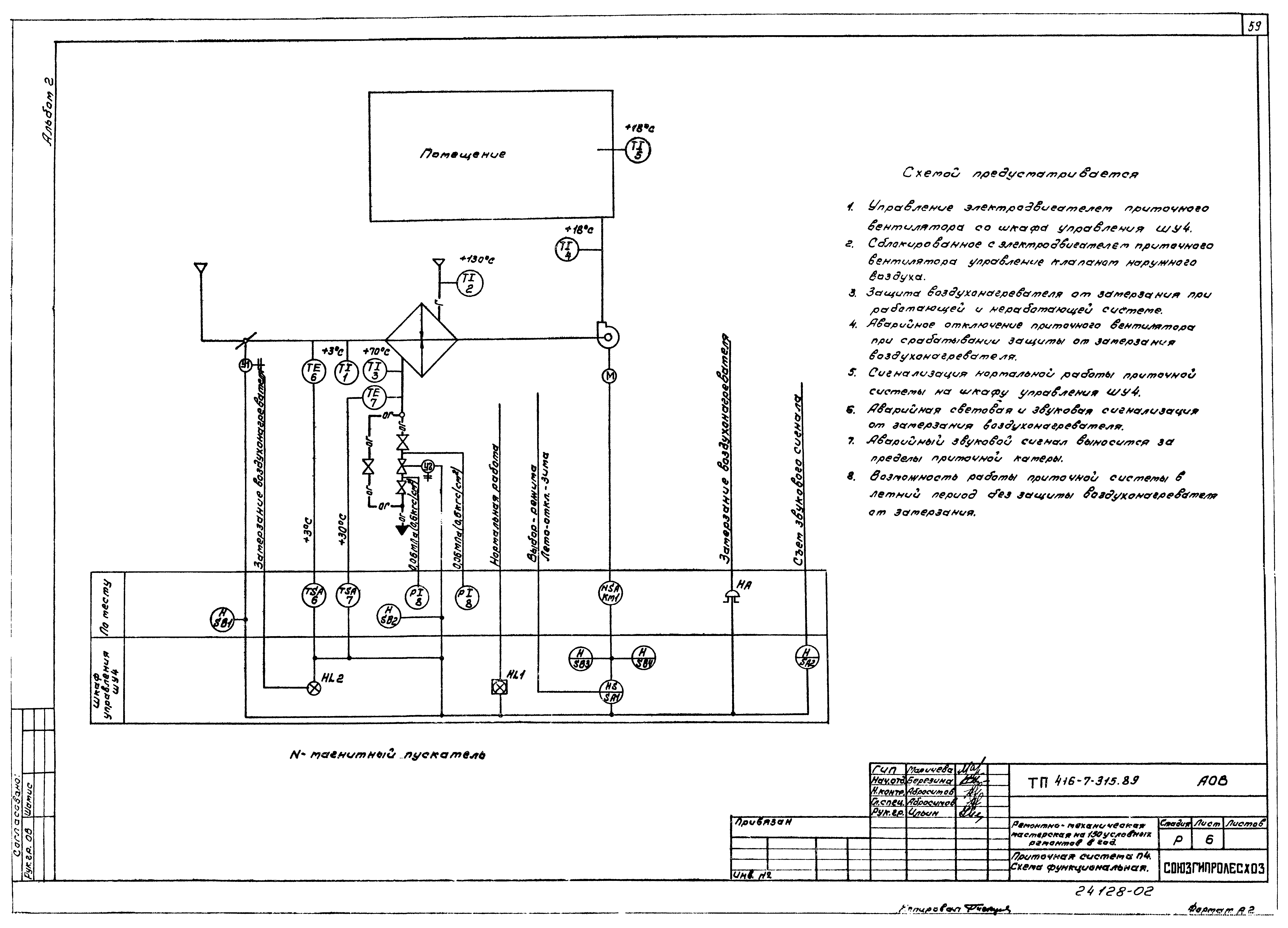
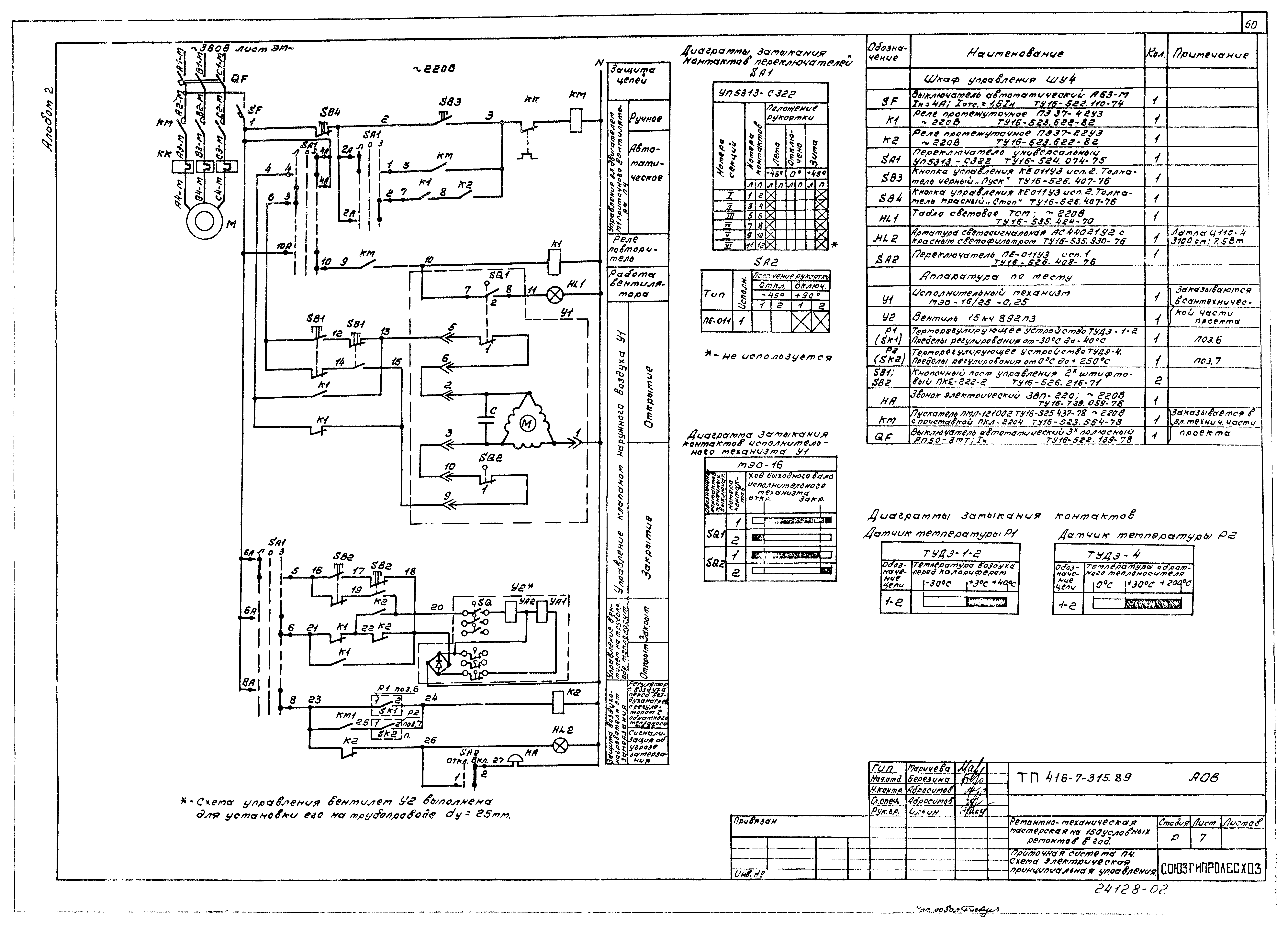
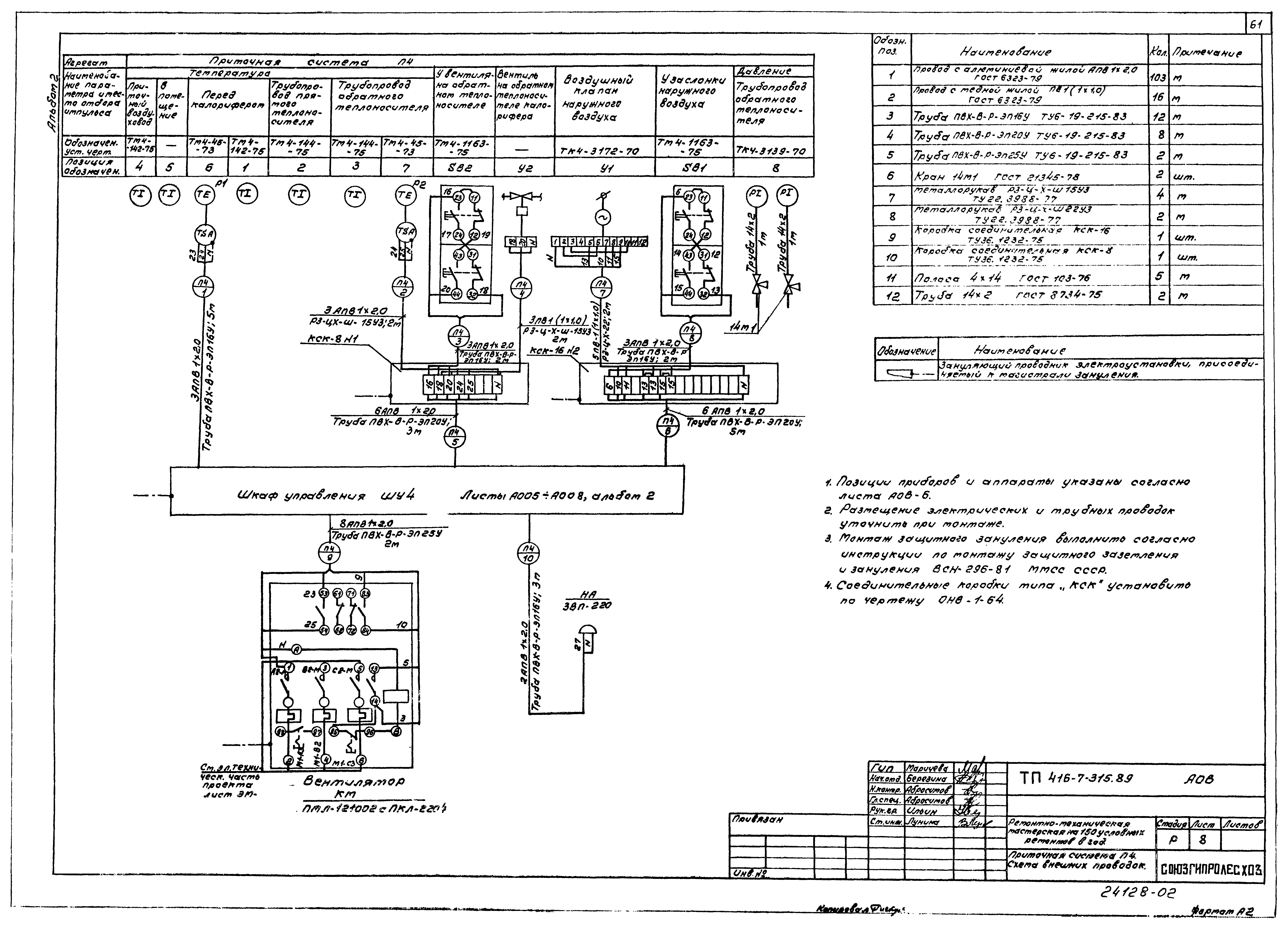
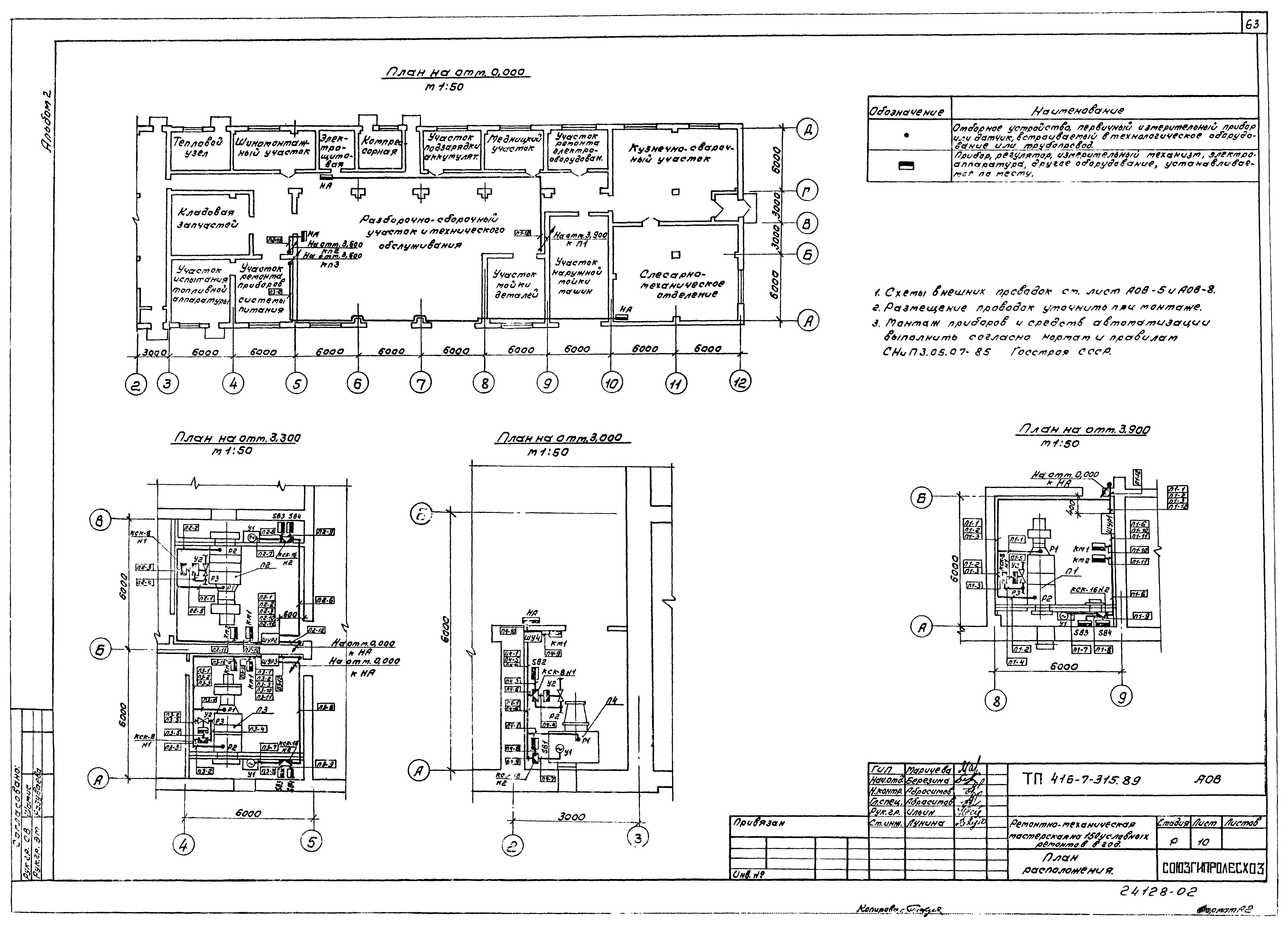
| Оглавление: | Содержание альбома Внутренние водопровод и канализация Общие данные План на отм. 0.000 систем В1, Т3, К1 План на отм. 0.000 и 3.000 с системами В1, Т3, К1 Схемы систем В1, Т3 Схемы систем К1, К3 Отопление, вентиляция и кондиционирование воздуха Общие данные Отопление. План на отм. 0.000. План на отм. 3.600 между осями А - Г и 3 - 5. План на отм. 3.900 между осями А - Г и 8 - 10 Теплоснабжение и вентиляция. План на отм. 0.000. План на отм. 3.600 между осями А - Г и 3 - 5. План на отм. 3.900 между осями А - Г и 8 - 10 Местные отсосы от технологического оборудования Схема системы отопления 1. Узел управления Схемы систем П1, П2, П3 Схемы систем В1 - В7, В9, ВЕ1 - ВЕ6, ВЕ8 - ВЕ11 Схема системы теплоснабжения установок П1 - П4. Узлы 1 - 4 Установки систем П1, В2, В5, В6 Установки систем П2, П3, В1, В4, В7 Отопление, вентиляция. План на отм. 0.000 и 3.000 между осями 1 - 3 и А - Д Схема системы отопления 2. Схемы систем П4, В10 - В16 Установки систем П4, В10 - В16 Установки систем В11 - В16 Шланговый отсос для удаления выхлопных газов двигателей Воздуховод асбестоцементный Силовое электрооборудование Общие данные План питающей сети и магистрали зануления План расположения электрооборудования и прокладки электрических сетей на отм. 0.000 в осях 1 - 8 Планы расположения электрооборудования и прокладки электрических сетей на отм. 0.000 в осях 8 - 12 и на отм. 3.300 и 3.900 Планы расположения электрооборудования и прокладки электрических сетей буфета Спецификация к листам ЭМ-3, ЭМ-4 Схема электрическая принципиальная питающей и распределительной сети. Потребность кабелей, проводов и труб Схема электрическая принципиальная управления пожарной задвижкой Схема подключения пожарной задвижки Отключение вентсистем при пожаре. Схема электрическая принципиальная управления. Схема подключения Схема принципиальная управления зарядным устройством. Схема подключения Ведомости Электрическое освещение Общие данные План расположения электрического оборудования и прокладки электрических сетей на отм. 0.000 в осях 3 - 12 План расположения электрического оборудования и прокладки электрических сетей вспомогательных помещений и венткамер Принципиальная схема питающей сети Ведомости Связь и сигнализация Общие данные Телефонизация и радиофикация. План расположения оборудования и прокладки сетей Пожарная сигнализация. План расположения оборудования и прокладки сетей Пожарная сигнализация. Схемы подключения и функциональная Автоматизация санитарно-технических систем Общие данные Приточная система П1 - П3. Схема функциональная Приточная система П1(П2, П3). Схема электрическая принципиальная управления Приточная система П1(П2, П3). Схема электрическая принципиальная регулирования Приточная система П1(П2, П3). Схема внешних проводок Приточная система П4. Схема функциональная Приточная система П4. Схема электрическая принципиальная управления Приточная система П4. Схема внешних проводок Узел управления теплового пункта. Схема функциональная. Схема трубных проводок План расположения Чертежи заданий заводам-изготовителям Спецификация щитов Приточная система П1(П2, П3). Шкаф ШУР1(ШУР2, ШУР3). Общий вид Приточная система П1(П2, П3). Шкаф ШУР1(ШУР2, ШУР3). Таблица соединений Приточная система П1(П2, П3). Шкаф ШУР1(ШУР2, ШУР3). Таблица подключения Приточная система П4. Шкаф управления ШУ4. Чертеж общего вида Приточная система П4. Шкаф управления ШУ4. Технические данные аппаратов Приточная система П4. Шкаф управления ШУ4. Перечень надписей Приточная система П4. Шкаф управления ШУ4. Схема электрическая соединений |
| Разработан: | Союзгипролесхоз |
| Утверждён: | 08.12.1989 Госкомлес СССР (USSR Goskomles 23) |







































































