Скачать Типовой проект 904-1-85.90 Альбом 2. Технология производстваДата актуализации: 01.01.2021
|
| Обозначение: | Типовой проект 904-1-85.90 |
| Обозначение англ: | 904-1-85.90 |
| Статус: | не определен законодательством |
| Название рус.: | Альбом 2. Технология производства |
| Дата добавления в базу: | 01.10.2014 |
| Дата актуализации: | 01.01.2021 |
| Дата введения: | 18.09.1990 |
| Дата окончания срока действия: | 30.06.2003 |
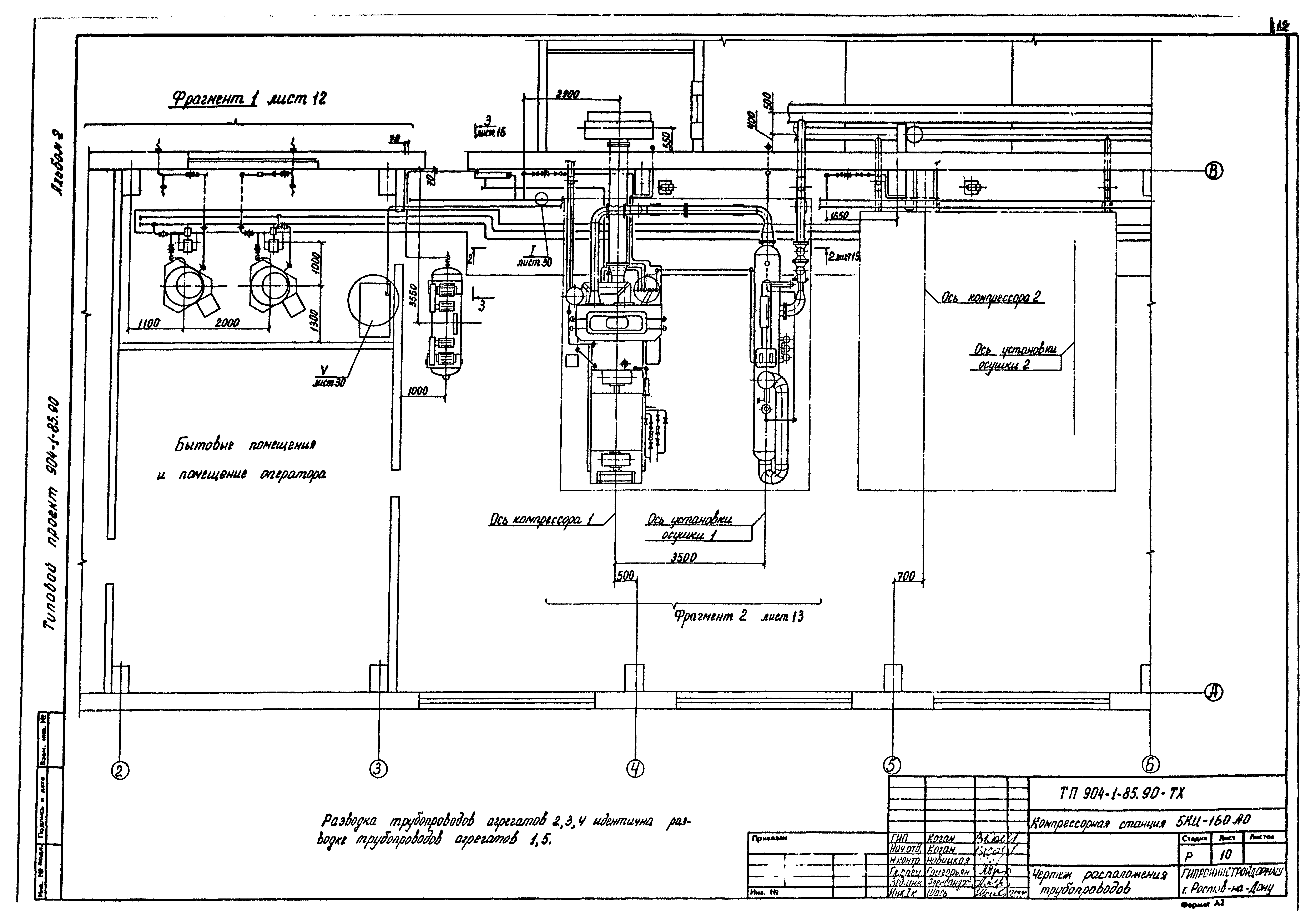
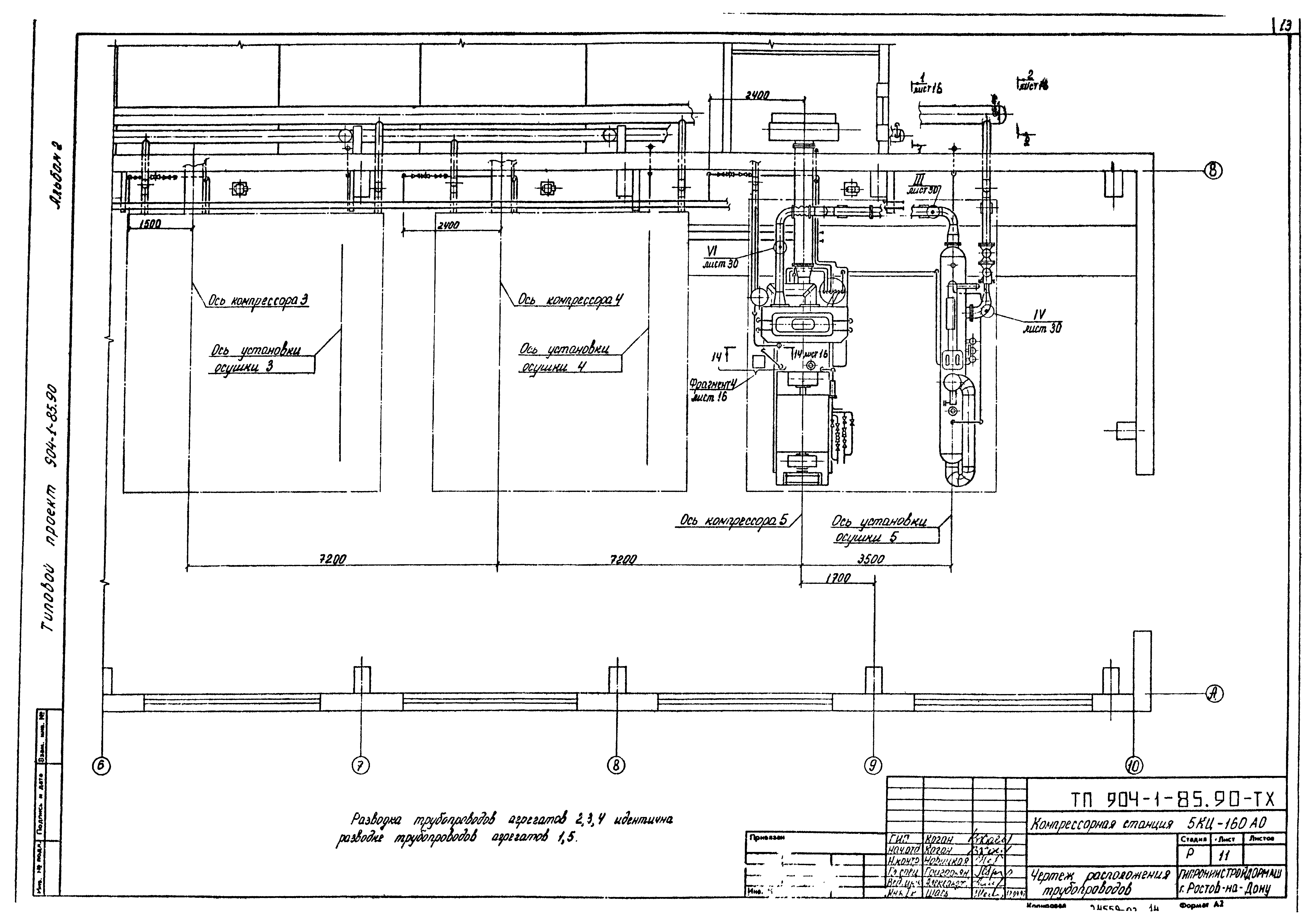
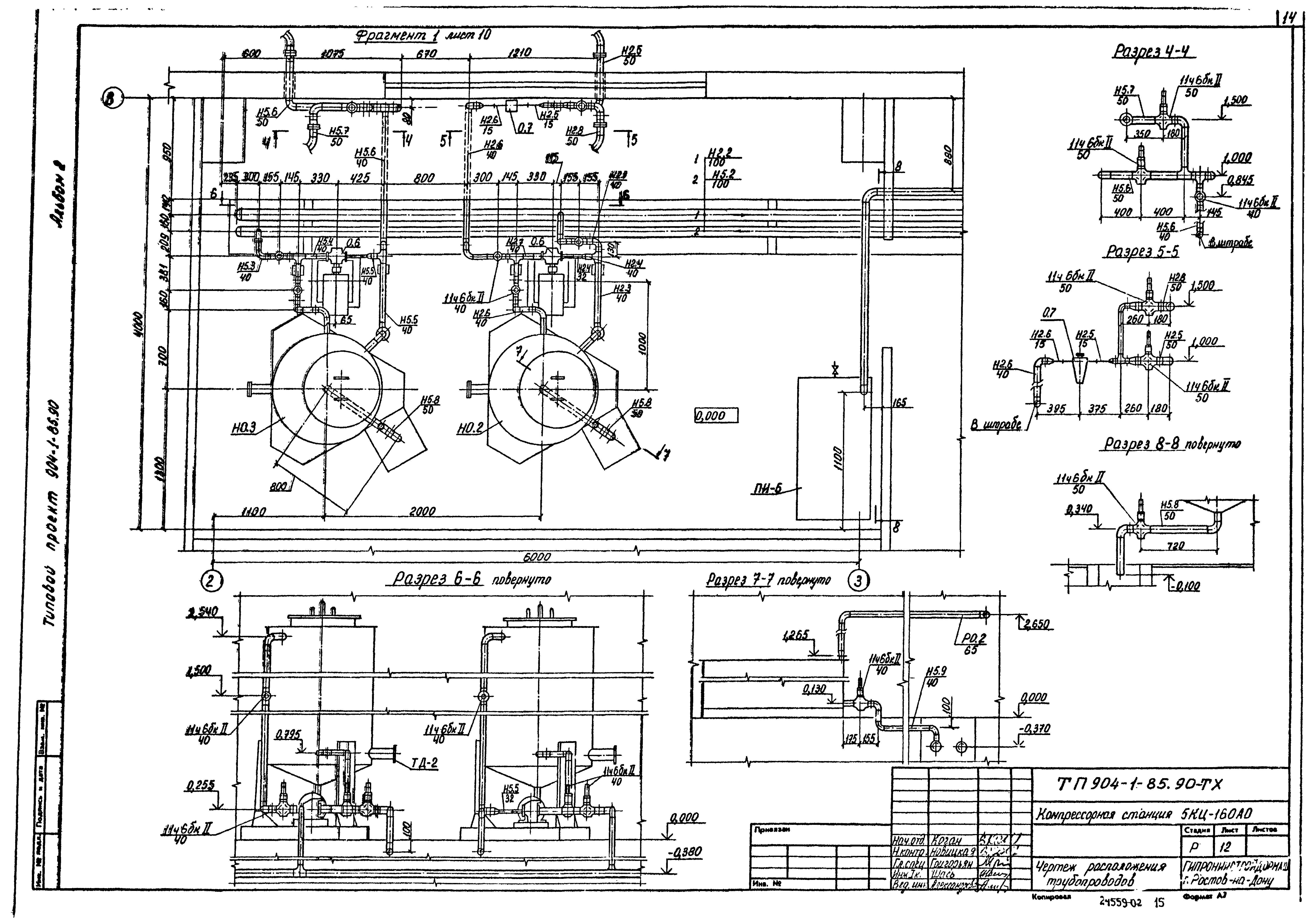
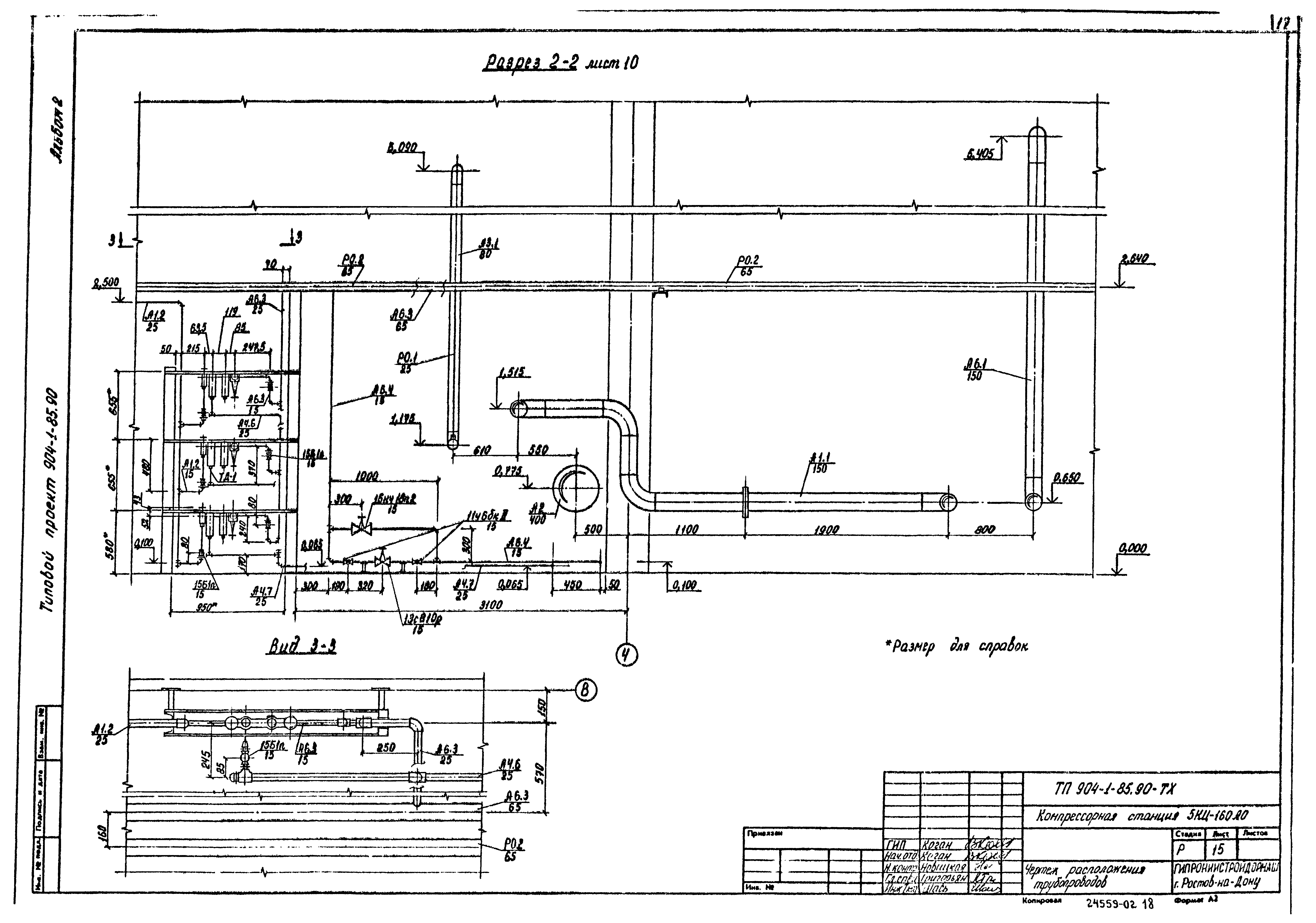
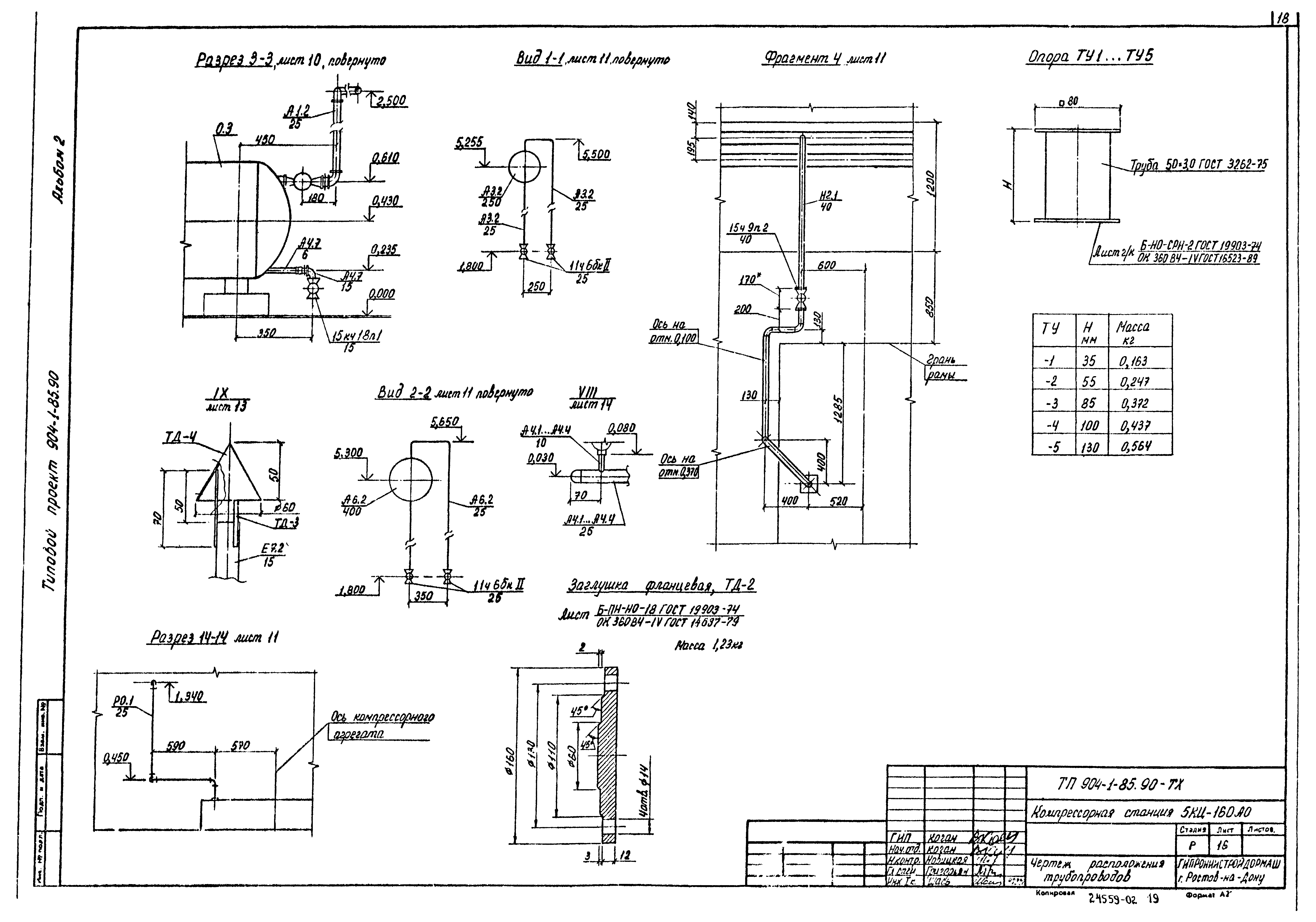
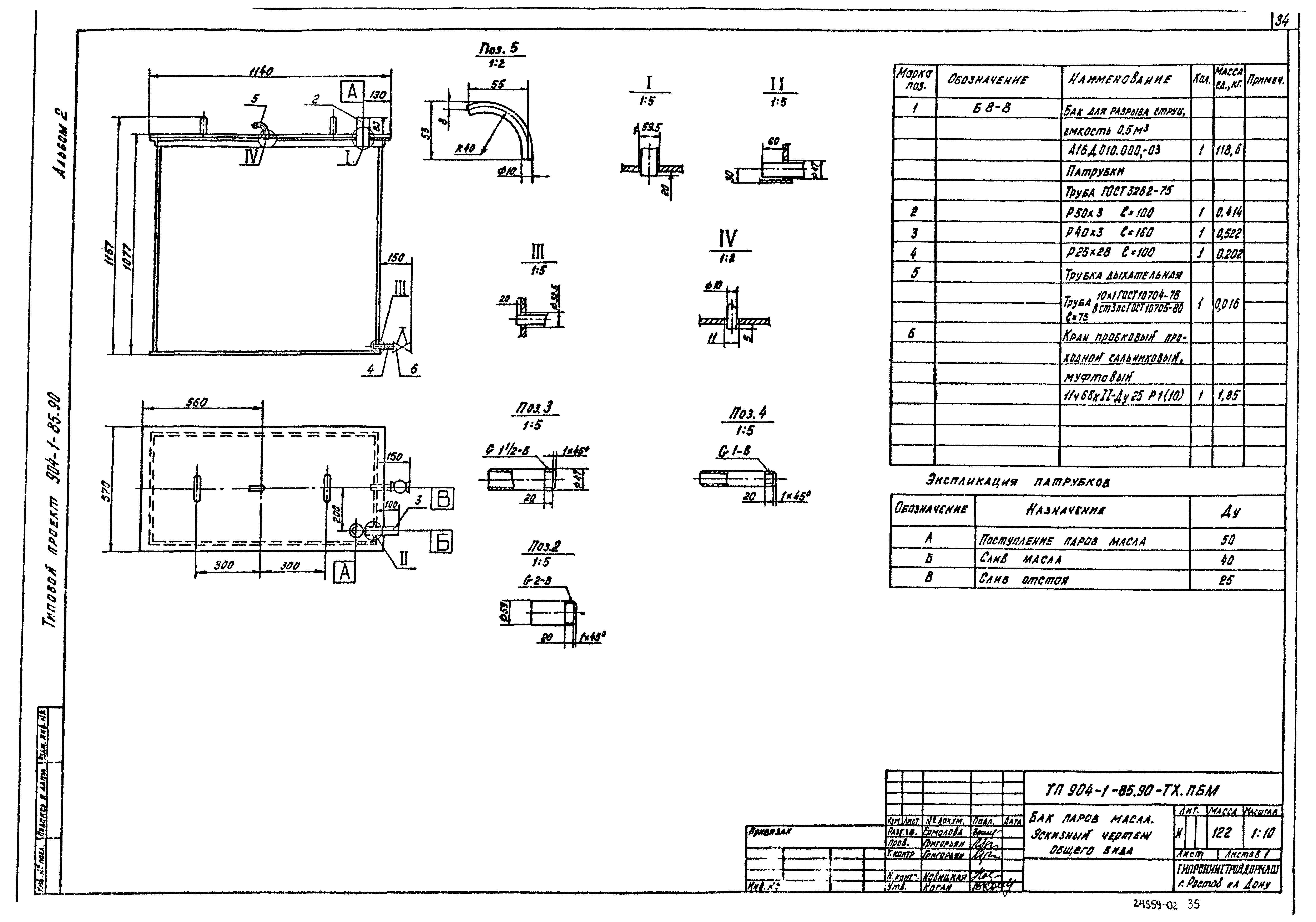
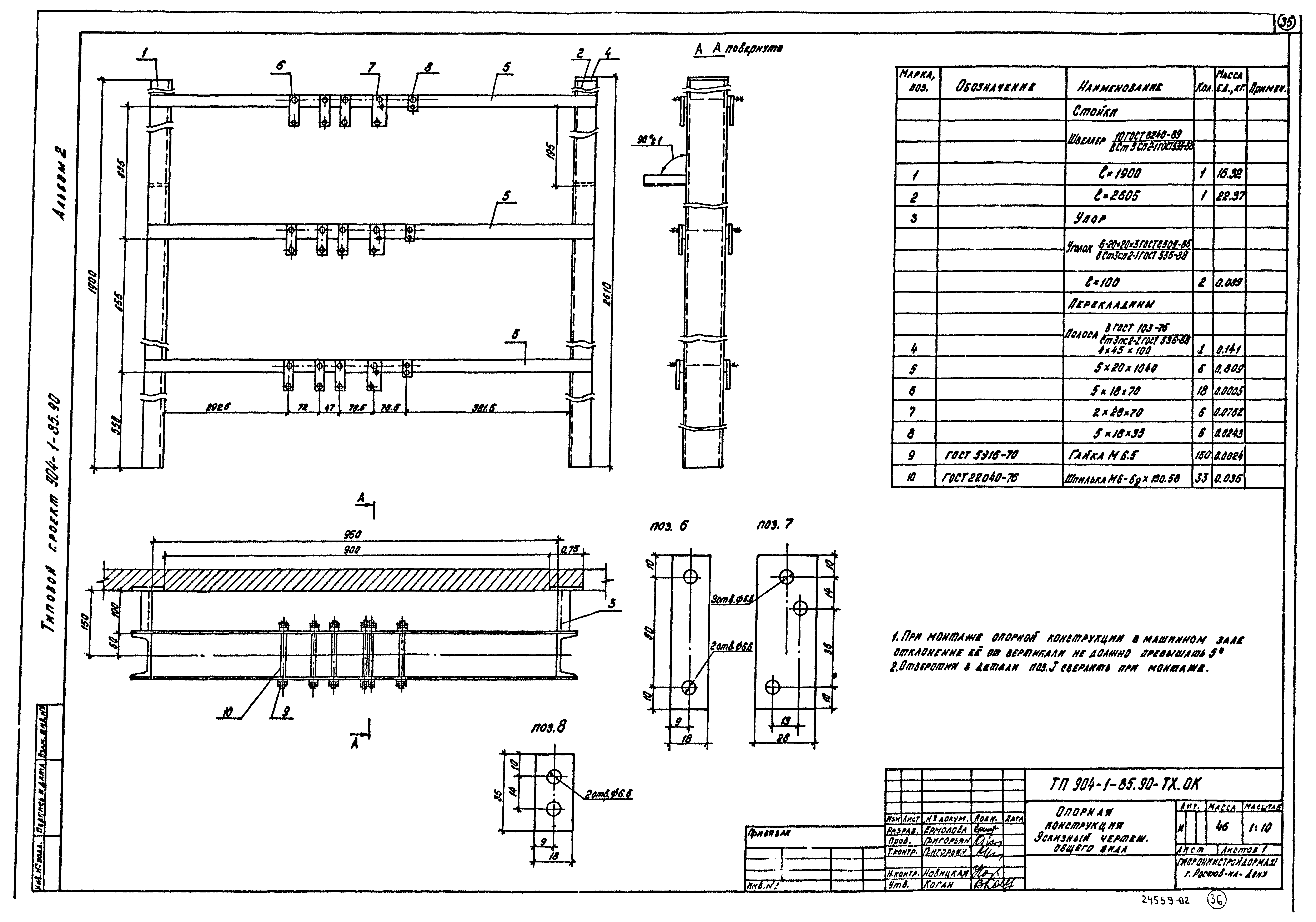
| Оглавление: | Содержание Общие данные План расположения оборудования Схема компрессорного агрегата Схема компрессорной станции Спецификация оборудования и участков трубопроводов Чертеж расположения трубопроводов Ведомость трубопроводов Ведомость изоляционных конструкций Размещение отборных устройств КИП Промежуточный бак продувок Бак паров масла Опорная конструкция |
| Разработан: | Гипрониистройдормаш |
| Утверждён: | 13.10.1989 Минстройдормаш (Minstroydormash 411) |




































