Скачать Типовой проект 904-1-85.90 Альбом 3. Силовое электрооборудование, электрическое освещение, связь и сигнализацияДата актуализации: 01.01.2021
|
| Обозначение: | Типовой проект 904-1-85.90 |
| Обозначение англ: | 904-1-85.90 |
| Статус: | не определен законодательством |
| Название рус.: | Альбом 3. Силовое электрооборудование, электрическое освещение, связь и сигнализация |
| Дата добавления в базу: | 01.10.2014 |
| Дата актуализации: | 01.01.2021 |
| Дата введения: | 18.09.1990 |
| Дата окончания срока действия: | 30.06.2003 |
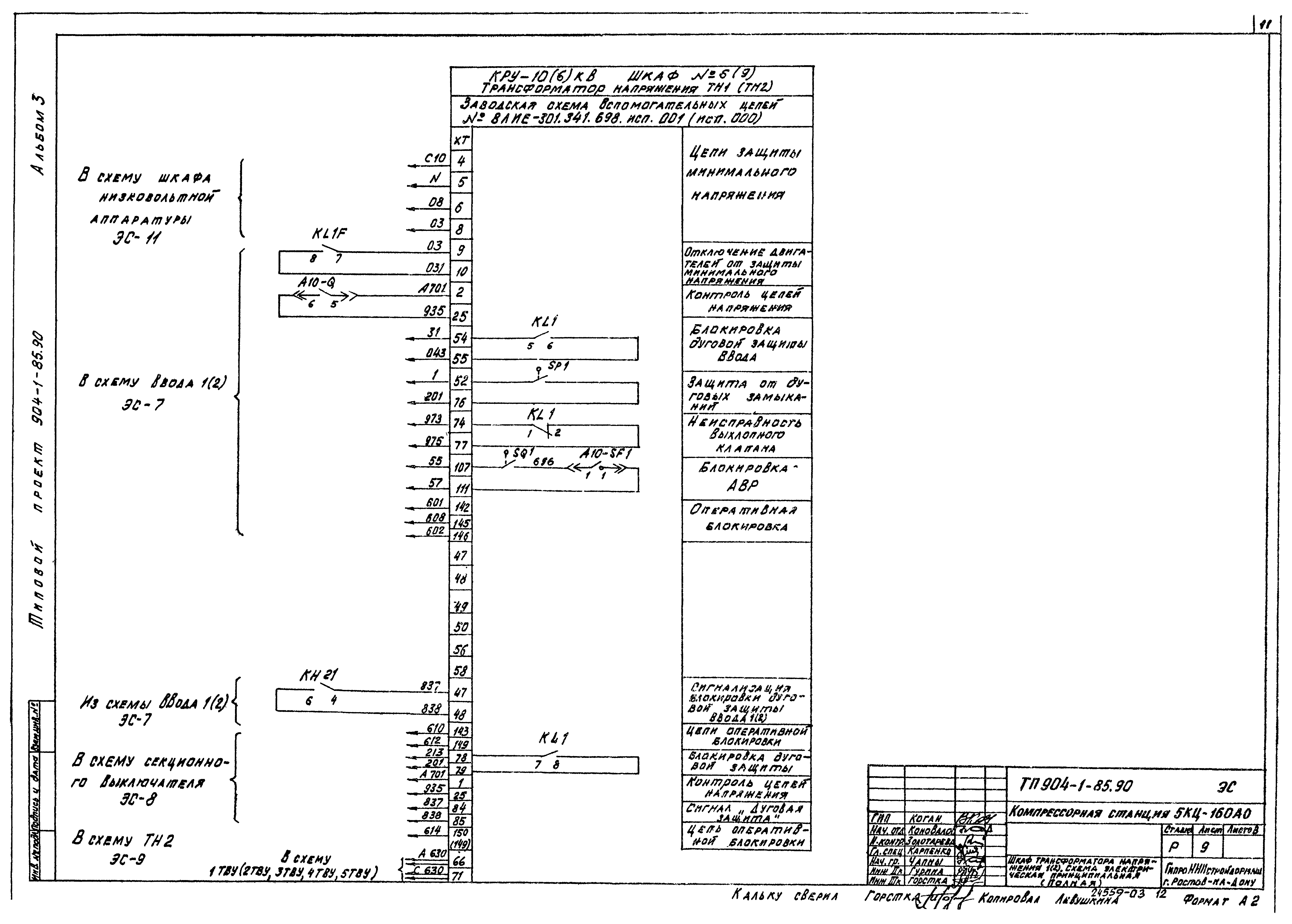
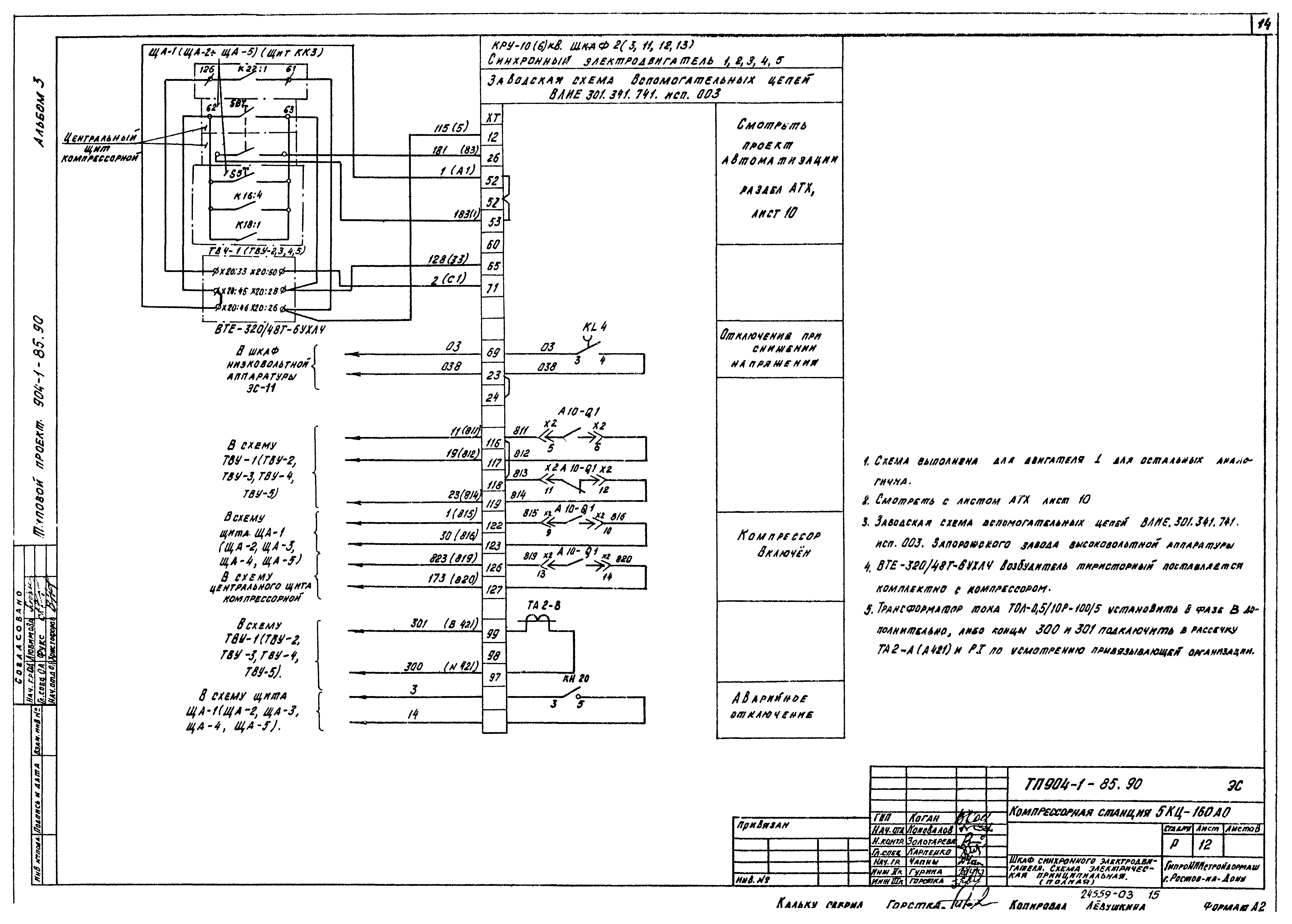
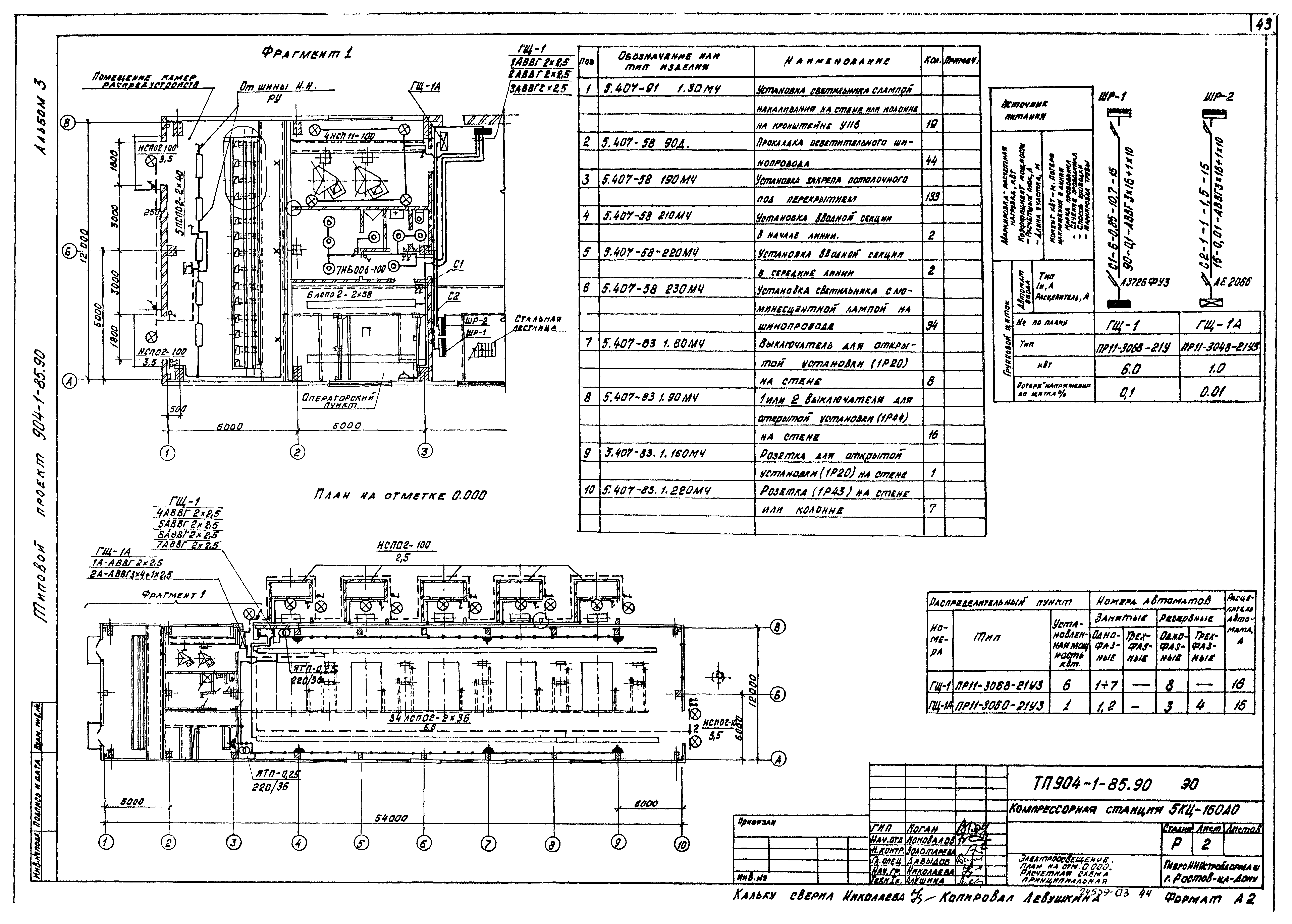
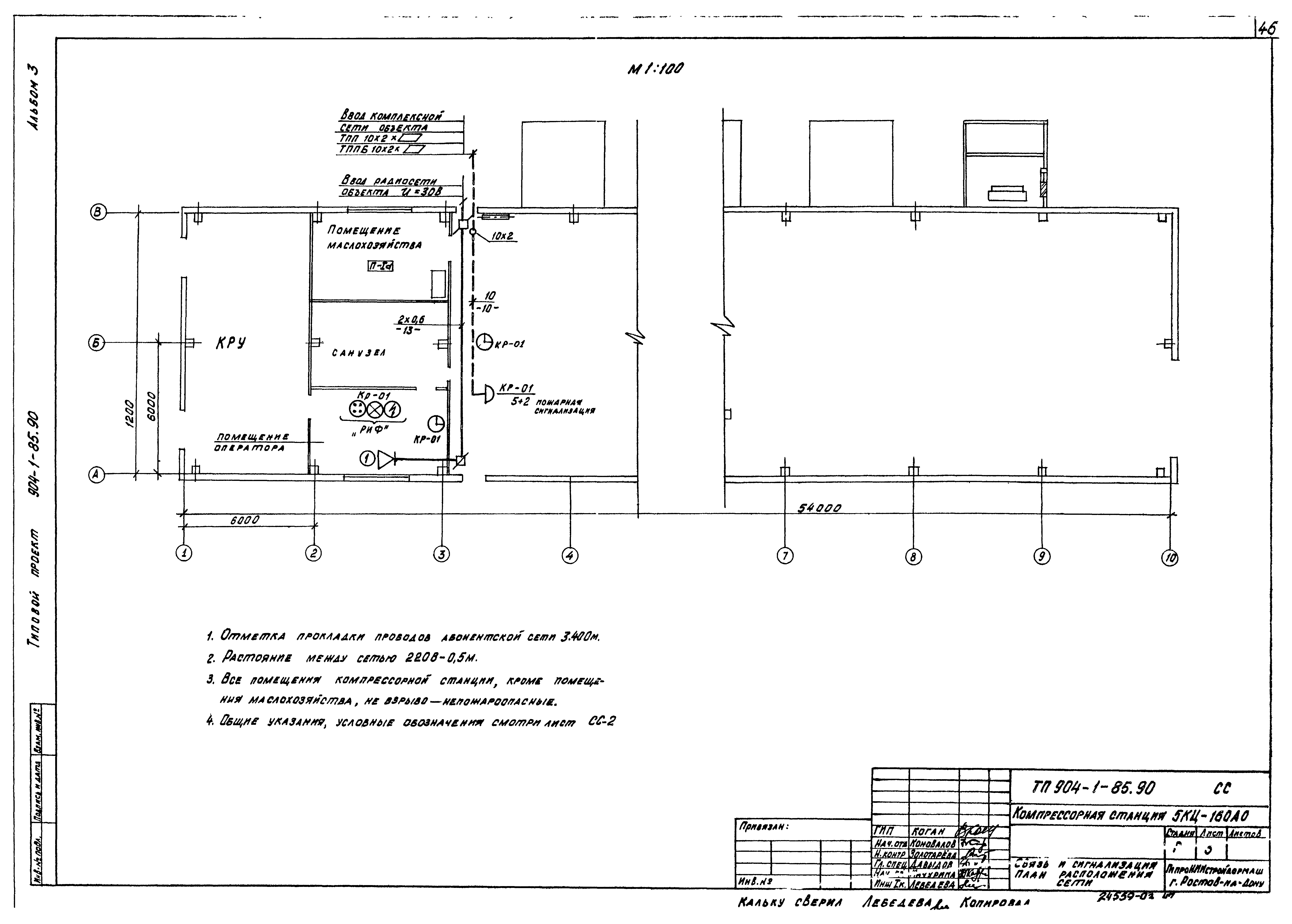
| Оглавление: | Содержание альбома Распредустройство 10(6) кВ Общие данные Компоновка электрооборудования. План Прокладка кабелей. План. Разрезы Принципиальная однолинейная схема 10(6) кВ Шкаф ввода 1(2). Схема электрическая принципиальная (полная) Шкаф секционного выключателя. Схема электрическая принципиальная (полная) Шкаф трансформатора напряжения 1(2). Схема электрическая принципиальная (полная) Шкаф трансформатора собственных нужд. Схема электрическая принципиальная (полная) Шкаф с низковольтной аппаратурой собственных нужд. Схема электрическая принципиальная (полная) Шкаф синхронного электродвигателя. Схема электрическая принципиальная (полная) Расчет релейных защит Шкаф синхронного электродвигателя. Схема подключения Шкаф ввода 1(2). Схема подключения Шкаф секционного выключателя и секционного разъединителя. Схема подключения Шкаф трансформатора напряжения 1(2). Схема подключения Шкаф трансформатора собственных нужд. Схема подключения Шкаф с низковольтной аппаратурой собственных нужд. Схема подключения Заземление Опросный лист на поставку устройства комплектного распределительного типа КМ-1Ф Силовое электрооборудование Общие данные Технические данные электроприемников Щит защищенный однорядный №1. Расчетная схема Шкафы ШР-1, ШР-2. Расчетная схема Шкаф ШР-3. Расчетная схема Схема подключения контрольных цепей шкафа тиристорного возбудительного устройства Схема подключения силовых цепей привода компрессорного агрегата Кабельный журнал Прокладка кабелей на отм. 0.000 и 3.600. План Прокладка кабелей. Разрезы Зануление. Троллеи Перечень проектной документации для заказа НКУ Щит защищенный однорядный №1. Таблица Щит защищенный однорядный №1. Опросный лист Электроосвещение Общие данные План на отм. 0.000 Связь и сигнализация Общие данные План расположения сети Схемы расположения сетей Вызывная сигнализация План расположения сети Пожарная сигнализация Общие данные План расположения сети Схема расположения сети |
| Разработан: | Гипрониистройдормаш |
| Утверждён: | 13.10.1989 Минстройдормаш (Minstroydormash 411) |




















































