Скачать Типовой проект 904-1-85.90 Альбом 5. Архитектурные решения. Конструкции железобетонные. Конструкции металлические. Отопление и вентиляция. Внутренний водопровод и канализацияДата актуализации: 01.01.2021
|
| Обозначение: | Типовой проект 904-1-85.90 |
| Обозначение англ: | 904-1-85.90 |
| Статус: | не определен законодательством |
| Название рус.: | Альбом 5. Архитектурные решения. Конструкции железобетонные. Конструкции металлические. Отопление и вентиляция. Внутренний водопровод и канализация |
| Дата добавления в базу: | 01.10.2014 |
| Дата актуализации: | 01.01.2021 |
| Дата введения: | 18.09.1990 |
| Дата окончания срока действия: | 30.06.2003 |
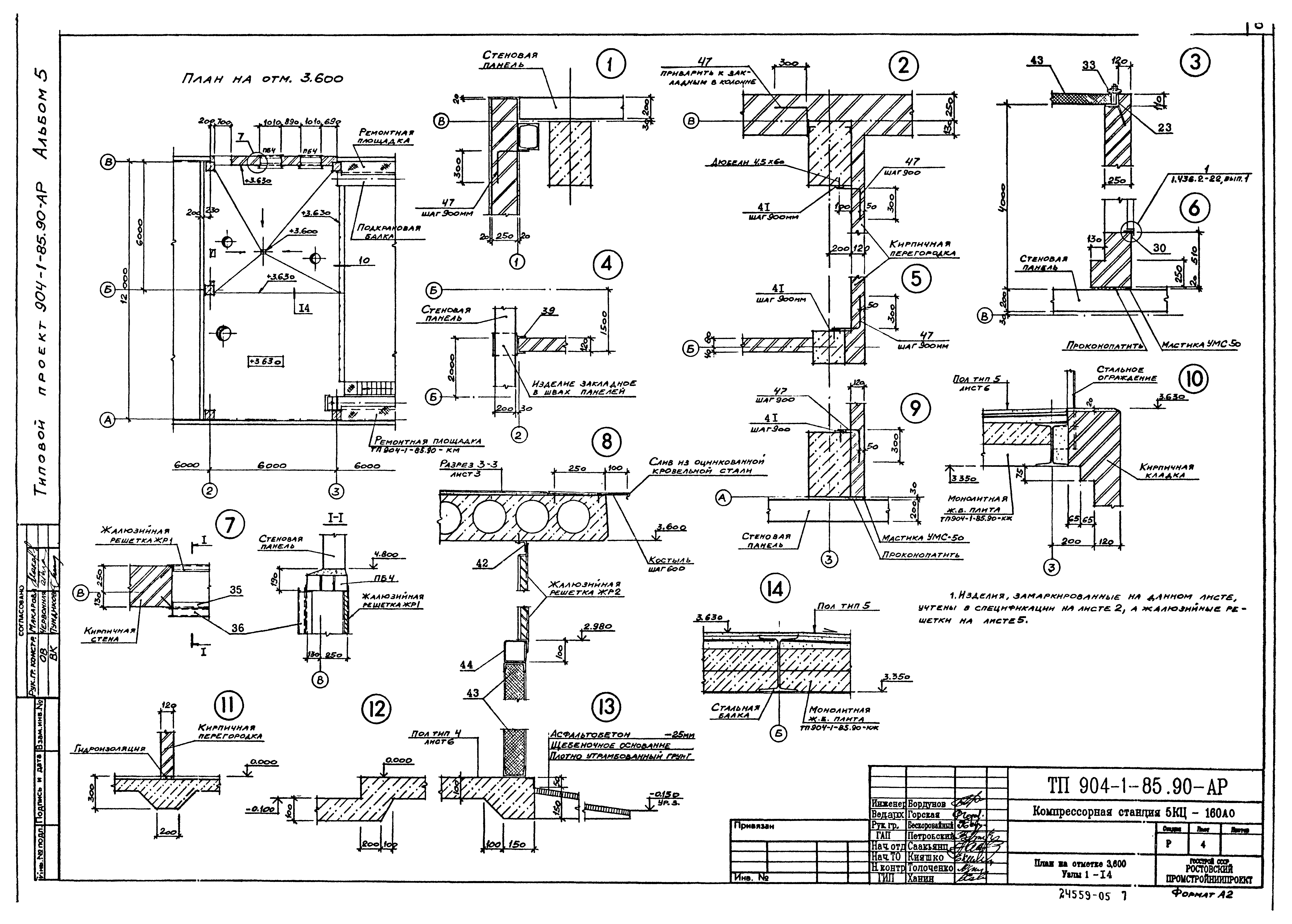
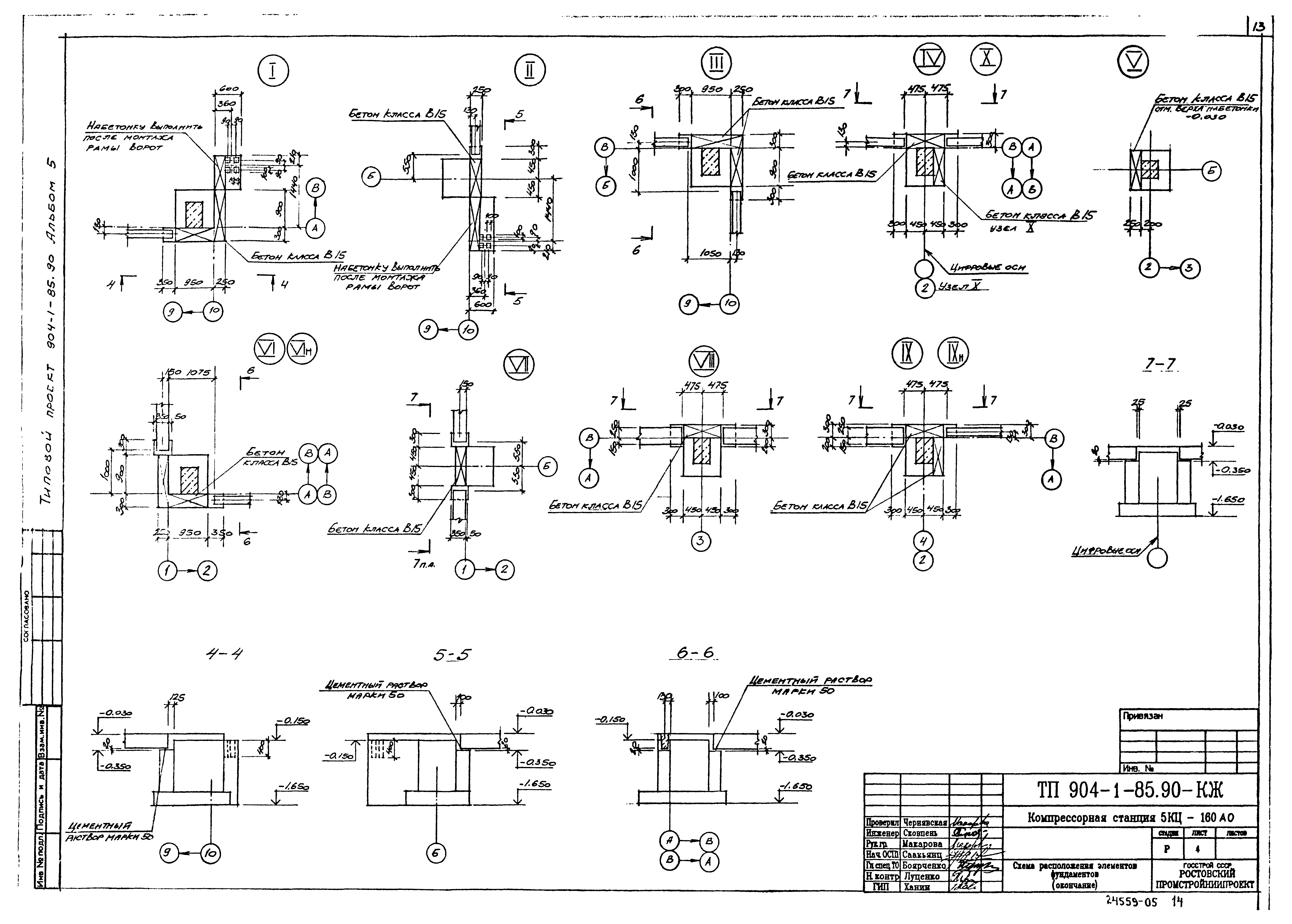
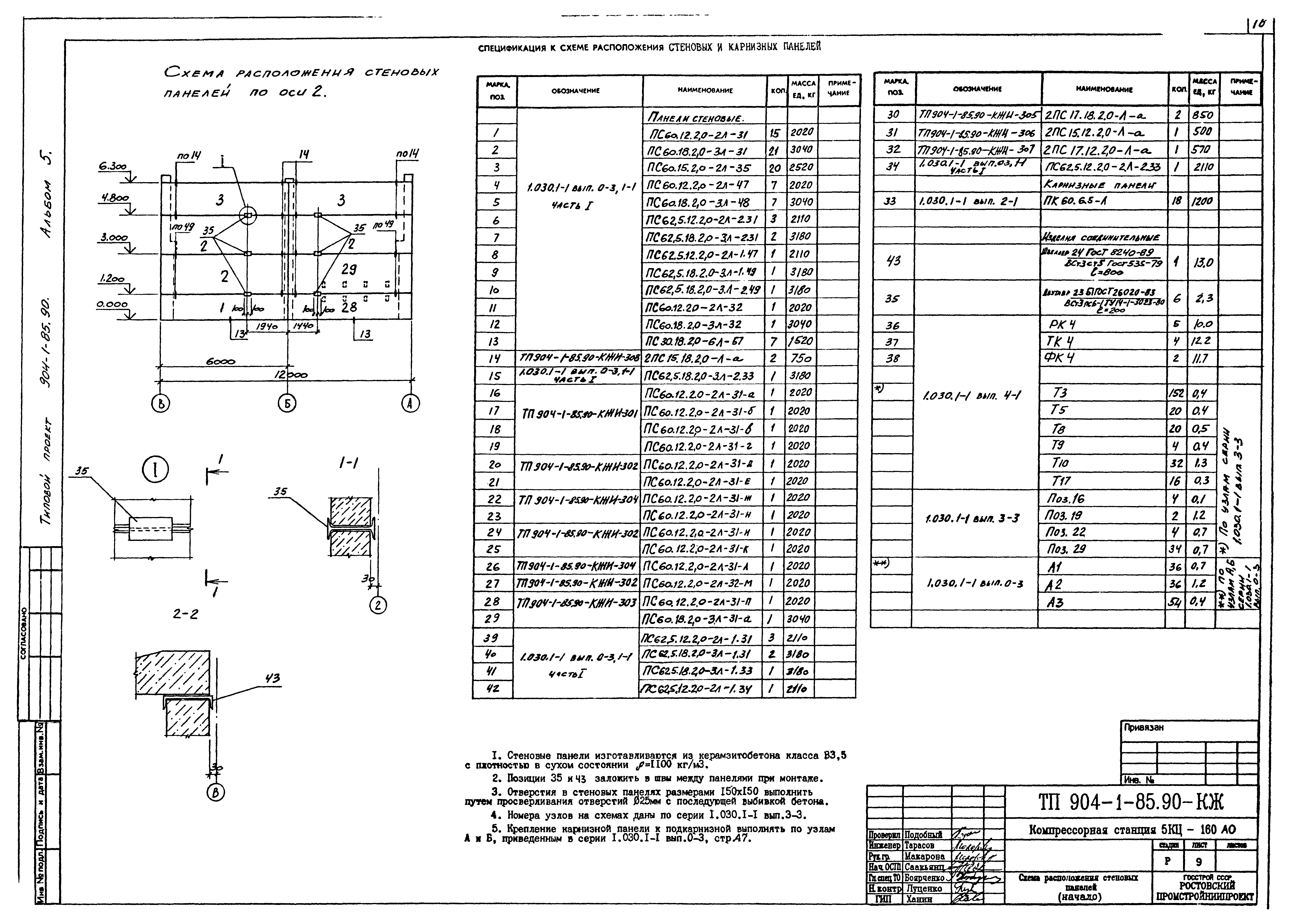
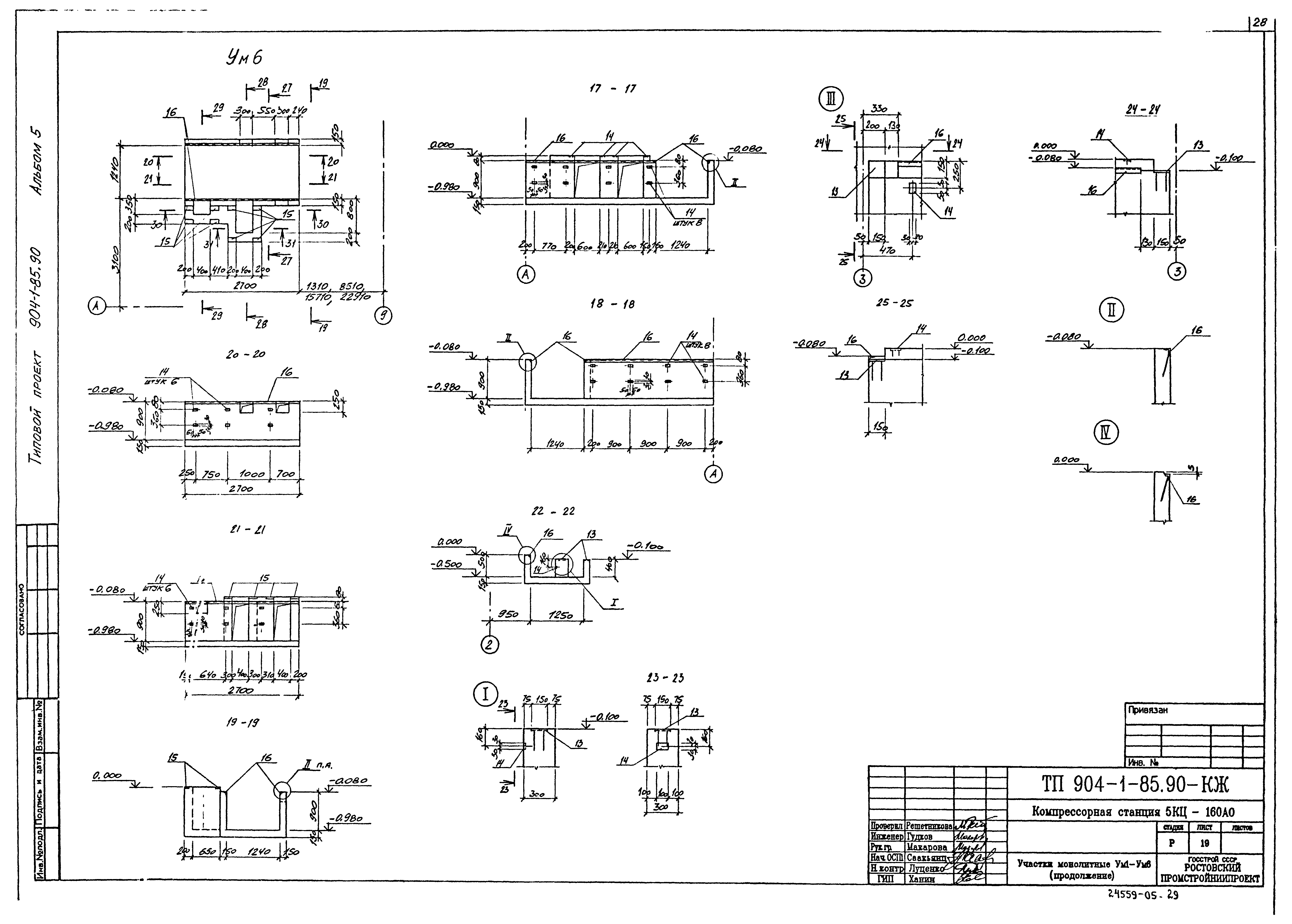
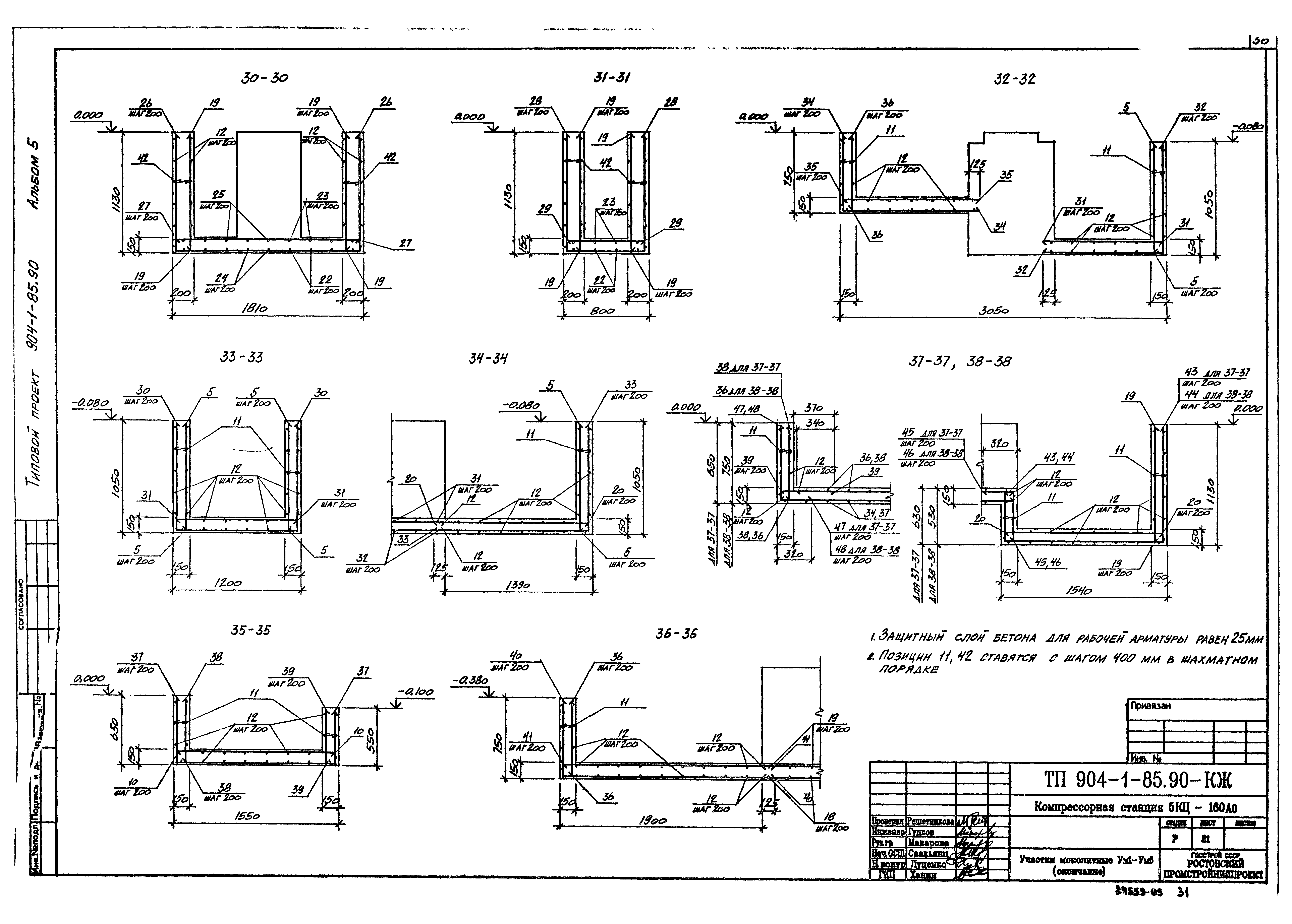
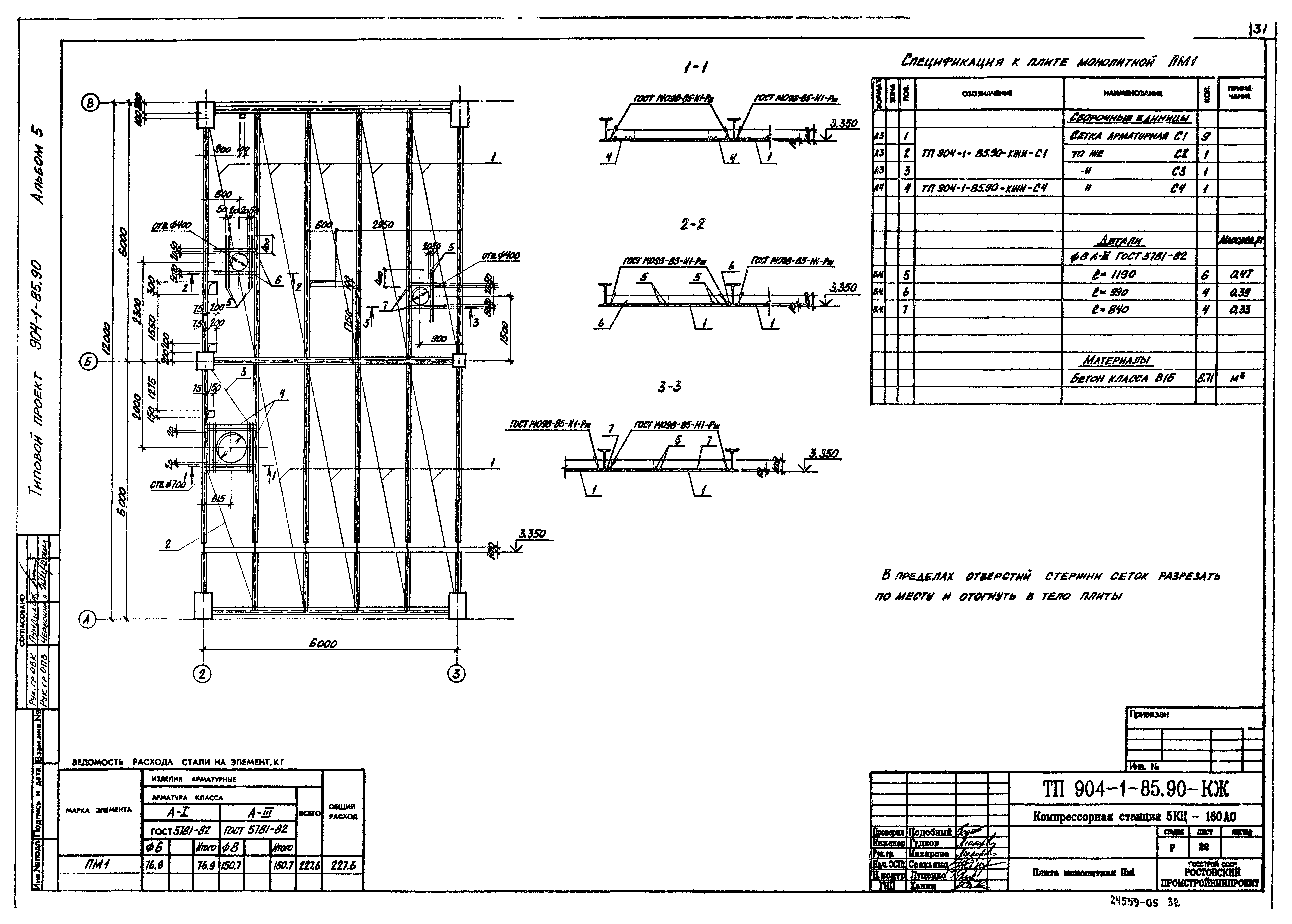
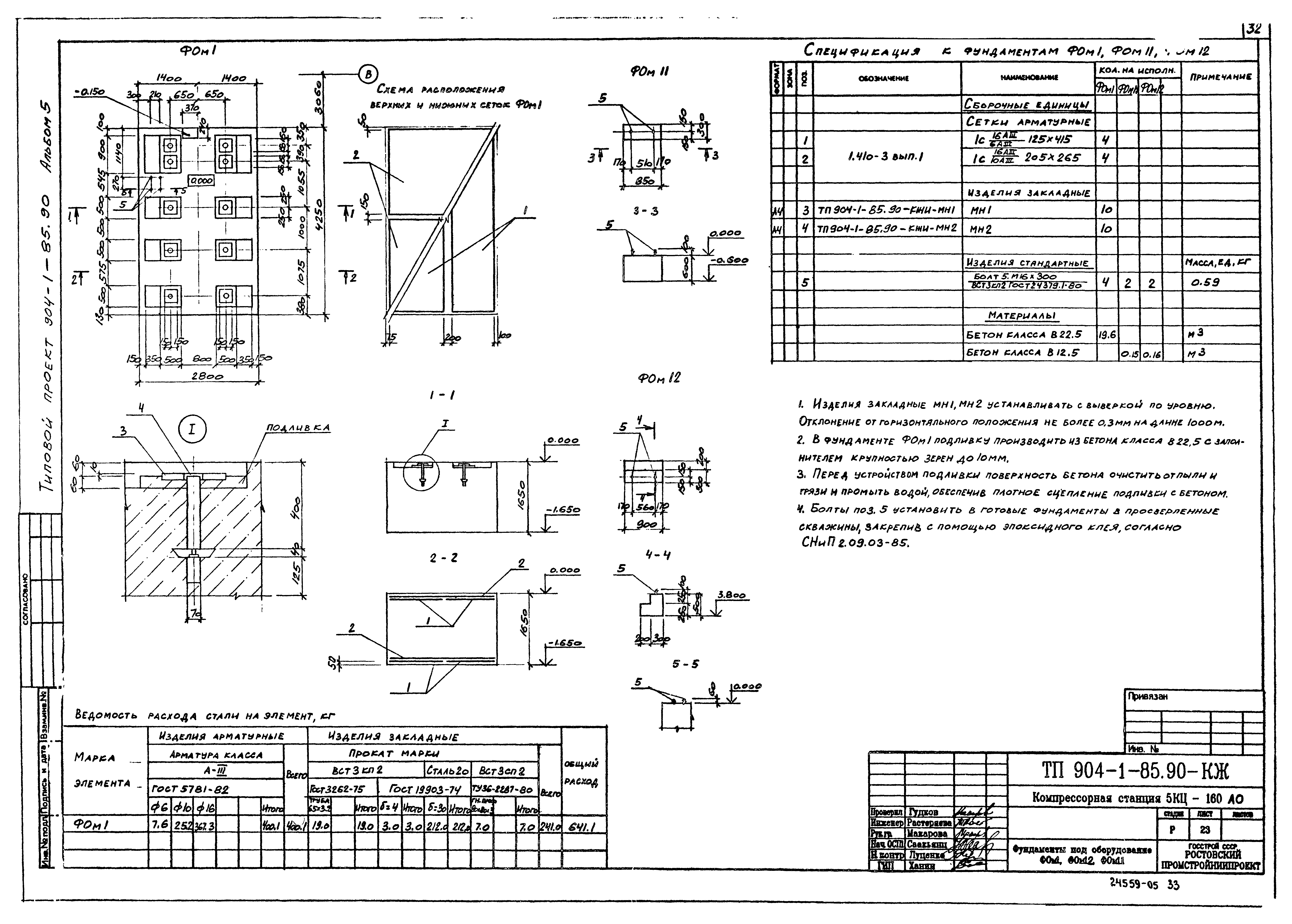
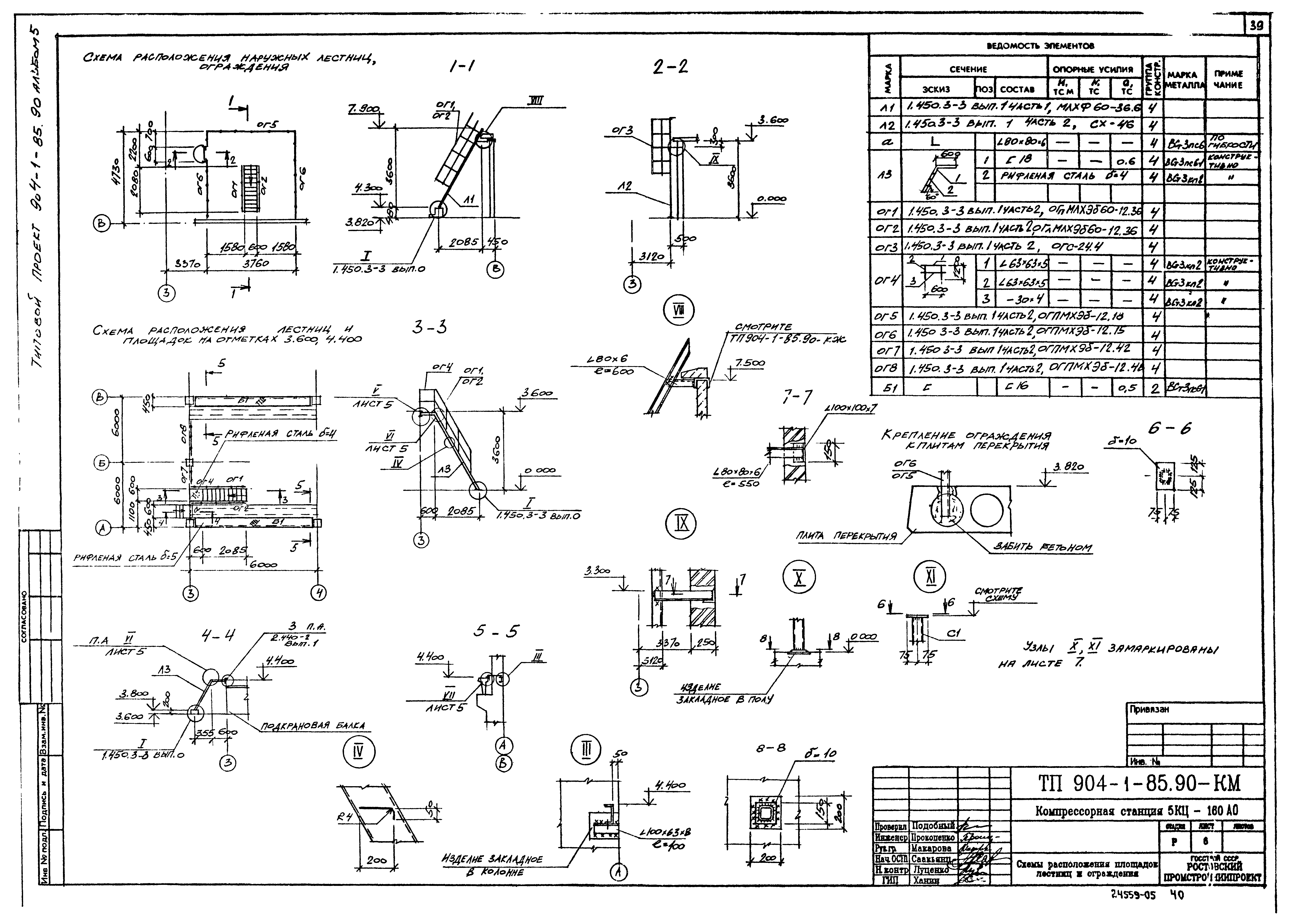
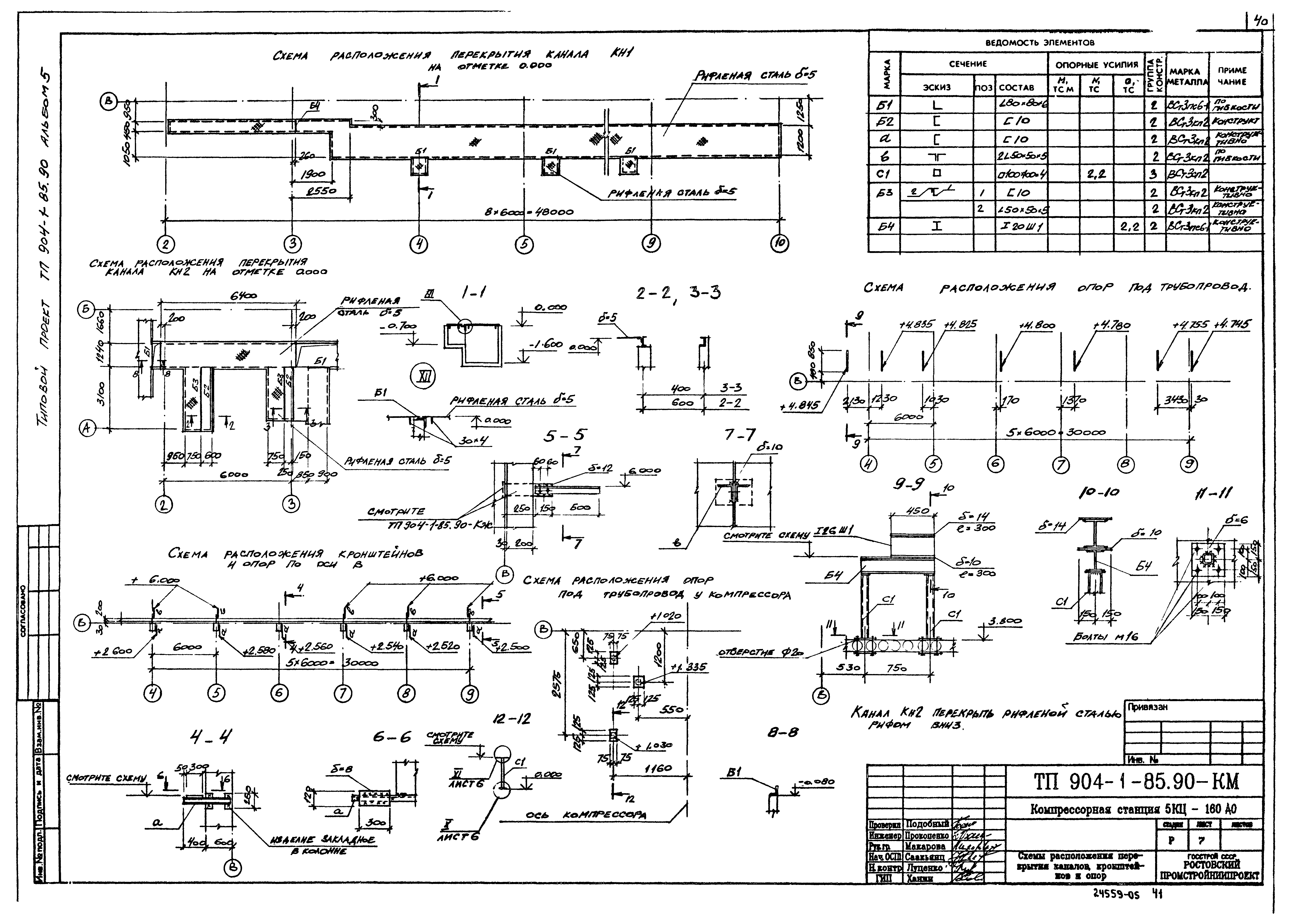
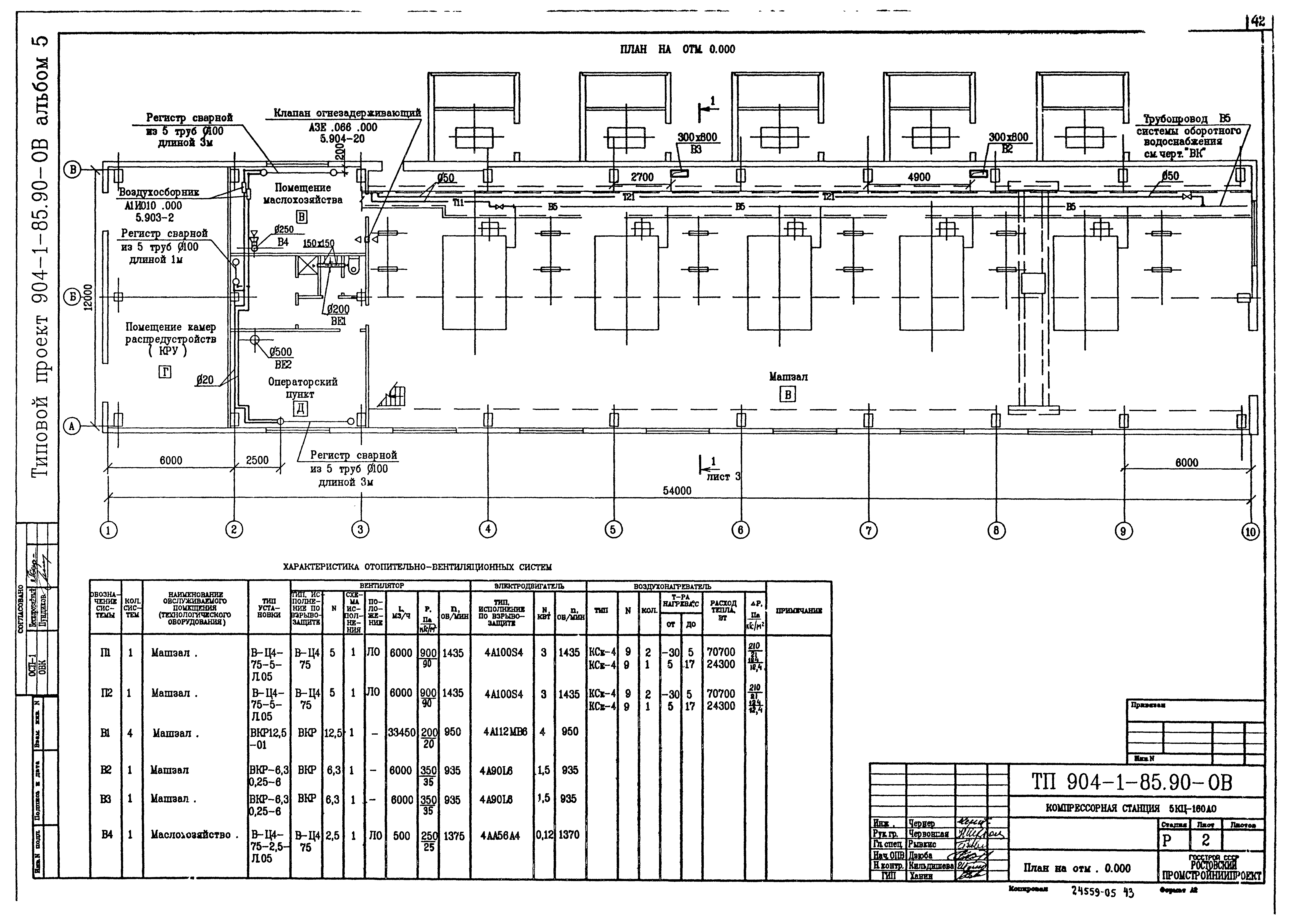
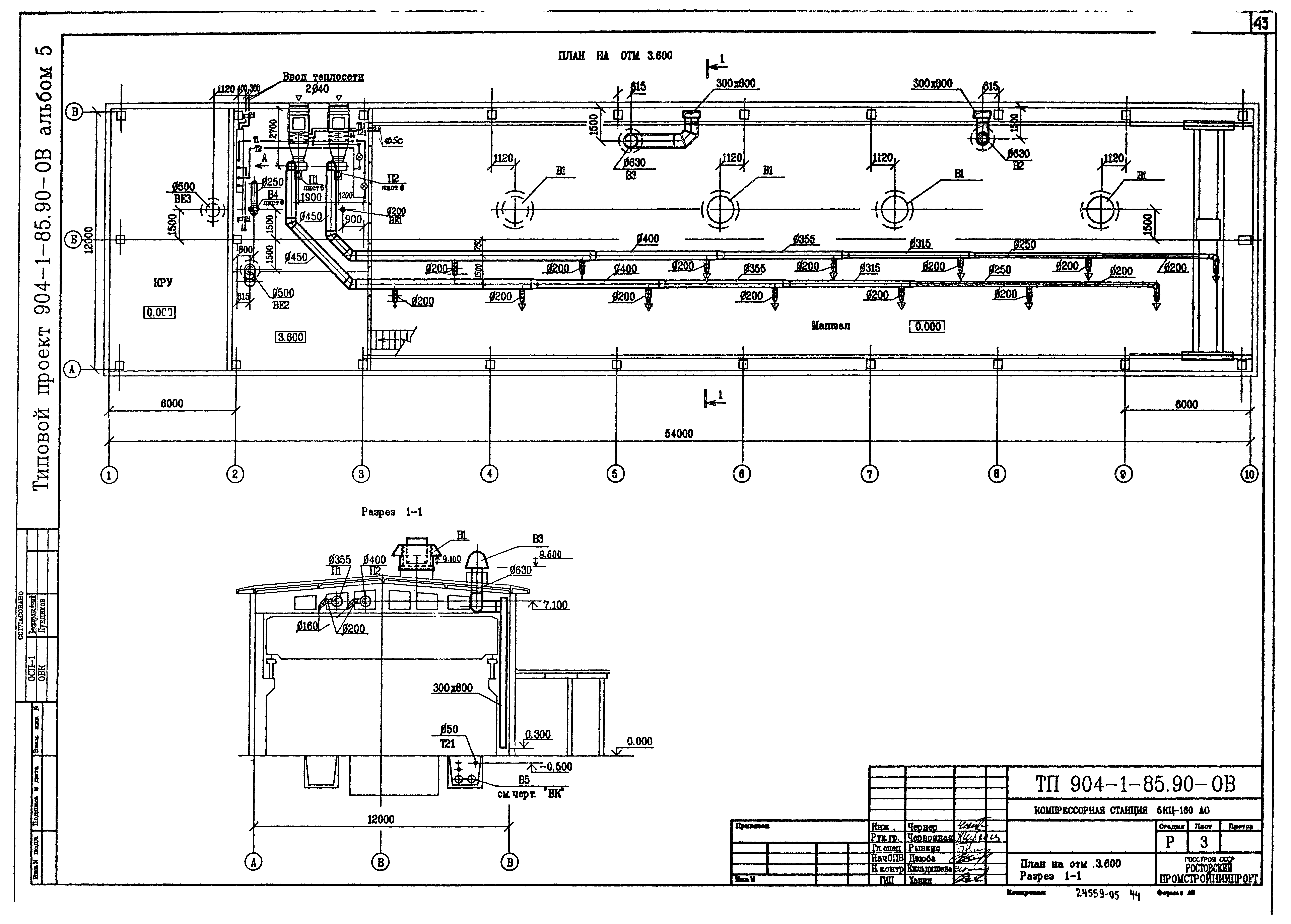
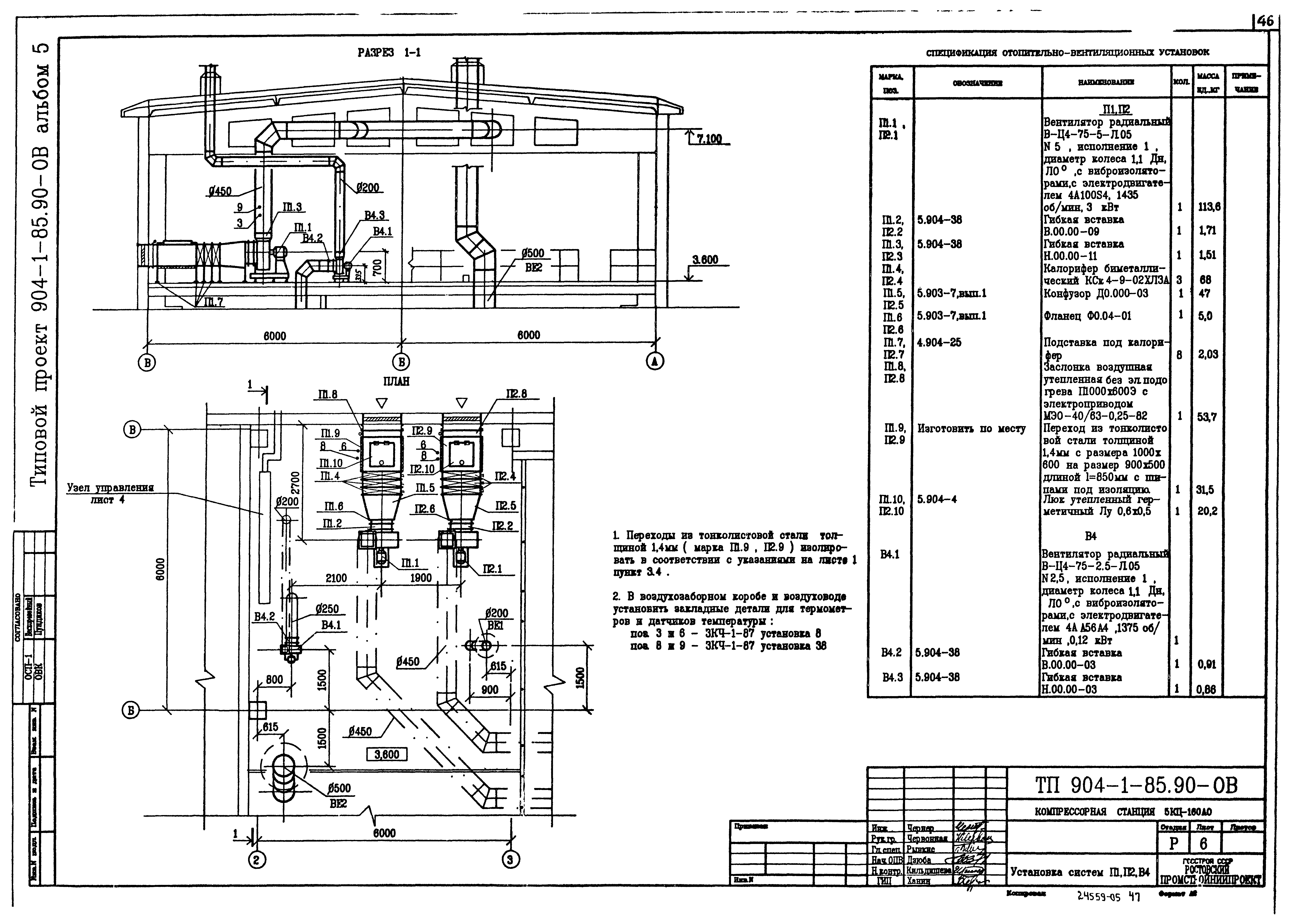
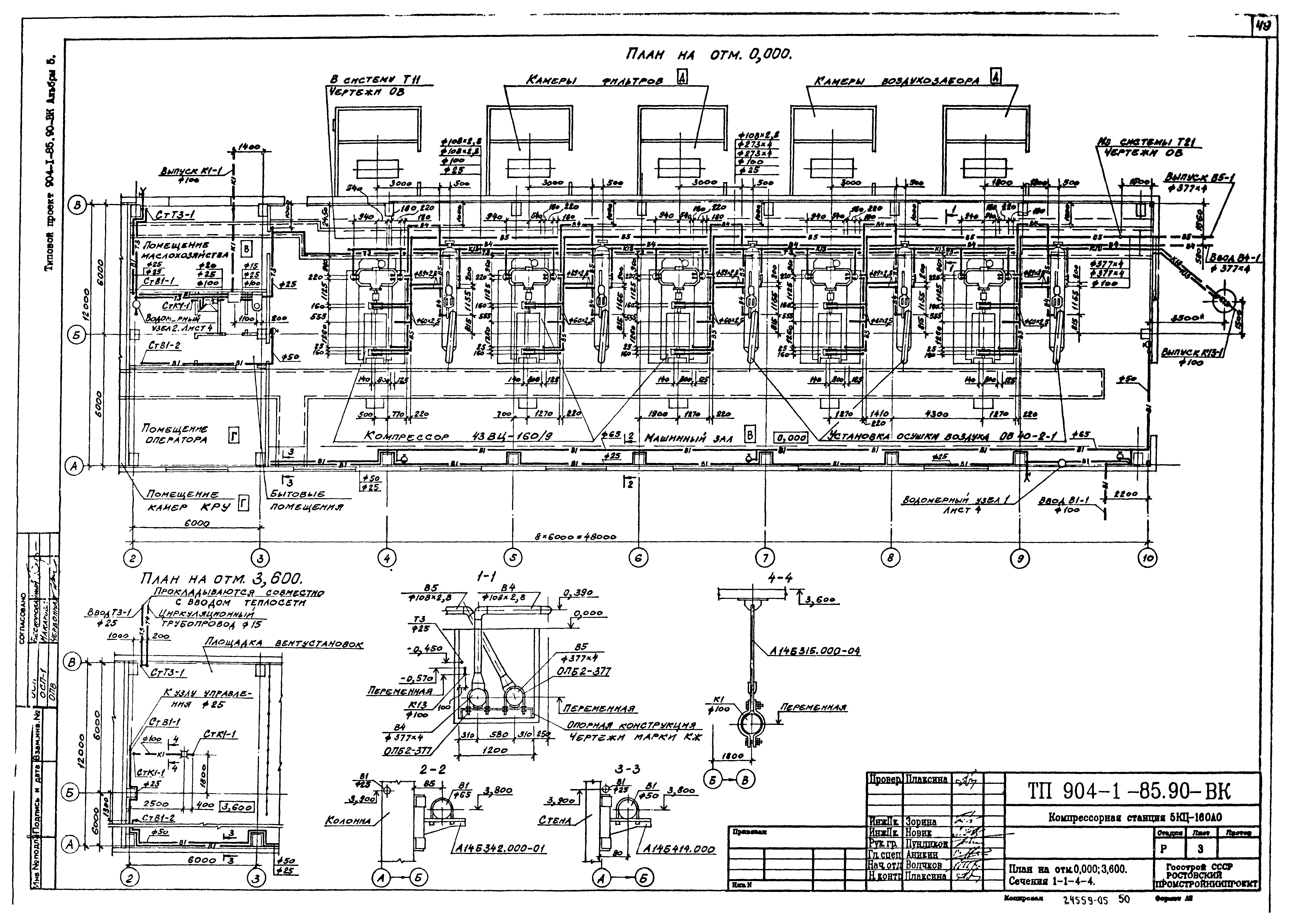
| Оглавление: | Содержание альбома Архитектурные решения Общие данные План на отм. 0.000. Разрезы 1-1 - 4-4 План на отм. 3.600. Узлы 1 - 14 Фасады План полов. Узлы 15 - 19 План кровли. План молниезащиты Конструкции железобетонные Общие данные Схема расположения элементов фундаментов Фундаменты Фм1, Фм2 Фундаменты Фм3 - Фм5 Схема расположения элементов каркаса Схема расположения стеновых панелей Схема расположения подземных конструкций Схема расположения элементов каналов КН1, КН2 Колодец К1 Участки монолитные Ум1 - Ум6 Плита монолитная Пм1 Фундаменты под оборудование ФОм1, ФОм12, ФОм11 Фундаменты под оборудование ФОм2 - ФОм10 Конструкции металлические Общие данные Техническая спецификация металла Техническая спецификация металла на лестницы Схемы расположения крановых путей и балок Схемы расположения площадок, лестниц и ограждения Схемы расположения перекрытия каналов, кронштейнов и опор Отопление и вентиляция Общие данные План на отм. 0.000 План на отм. 3.600. Разрез 1-1 Схемы теплоснабжения. Схема системы отопления. Узел отопления Схемы систем воздуховодов П1, П2, В2 - В4, ВЕ1 - ВЕ2 Установка систем П1, П2, В4 Внутренние водопровод и канализация Общие данные План на отм. 0.000; 3.600. Сечения 1-1 - 4-4 Схемы систем В1, Т3, Т4, К1 Схемы систем В4, В5, К13 Установка пожарного крана сечением 50 мм в шкафу Шкаф для пожарного крана сечением 50 мм. Габаритный чертеж |
| Разработан: | Гипрониистройдормаш Ростовский Промстройниипроект |
| Утверждён: | 13.10.1989 Минстройдормаш (Minstroydormash 411) |






















































