Скачать Типовые конструкции ОГ-ТП.010.09 Стальные опоры из гнутого профиля для высоковольтных линий электропередач 10 кВ с неизолированными проводамиДата актуализации: 01.01.2021
|
| Обозначение: | Типовые конструкции ОГ-ТП.010.09 |
| Обозначение англ: | ОГ-ТП.010.09 |
| Статус: | не определен законодательством |
| Название рус.: | Стальные опоры из гнутого профиля для высоковольтных линий электропередач 10 кВ с неизолированными проводами |
| Дата добавления в базу: | 01.10.2014 |
| Дата актуализации: | 01.01.2021 |
| Дата введения: | 01.07.2010 |
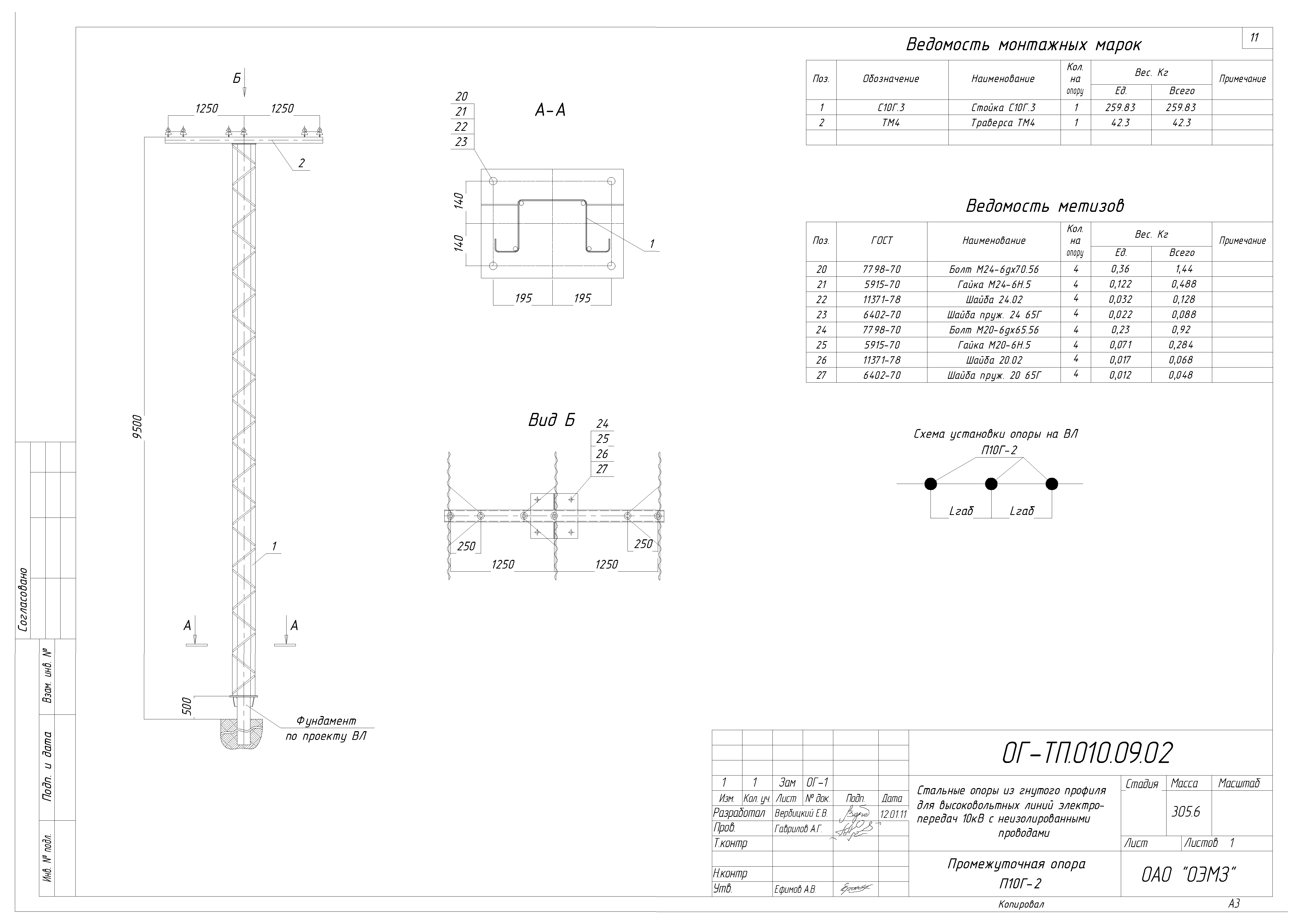
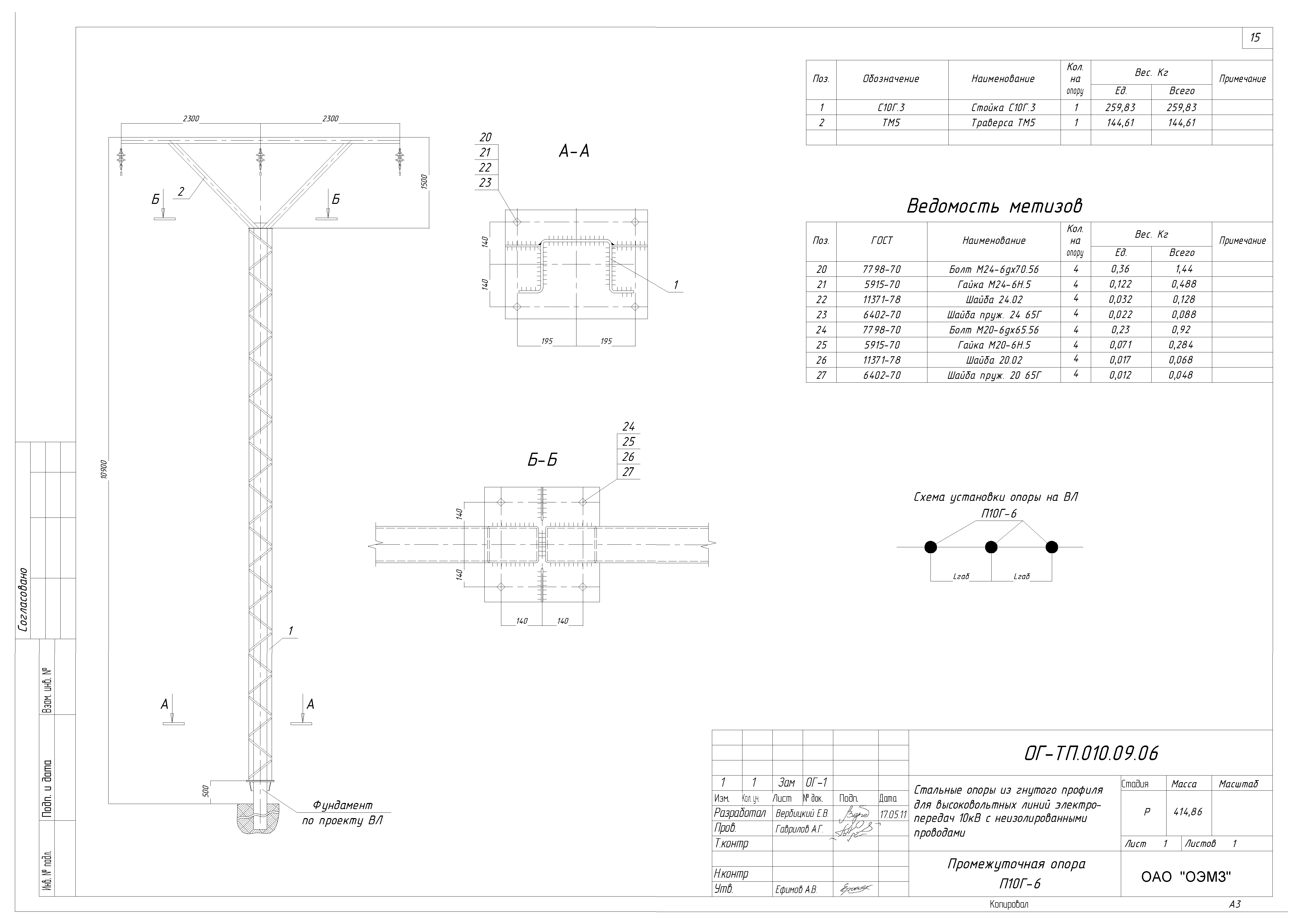
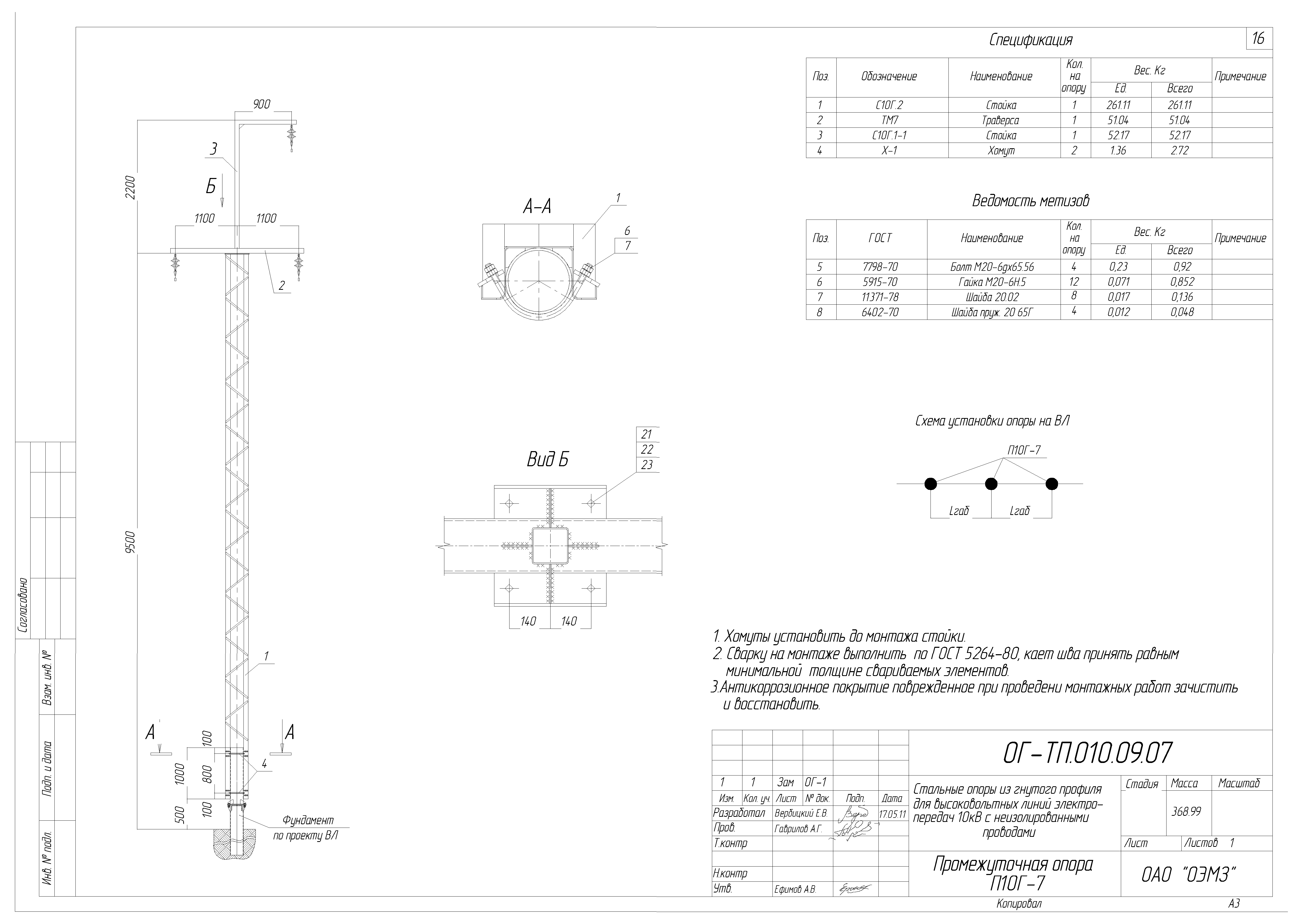
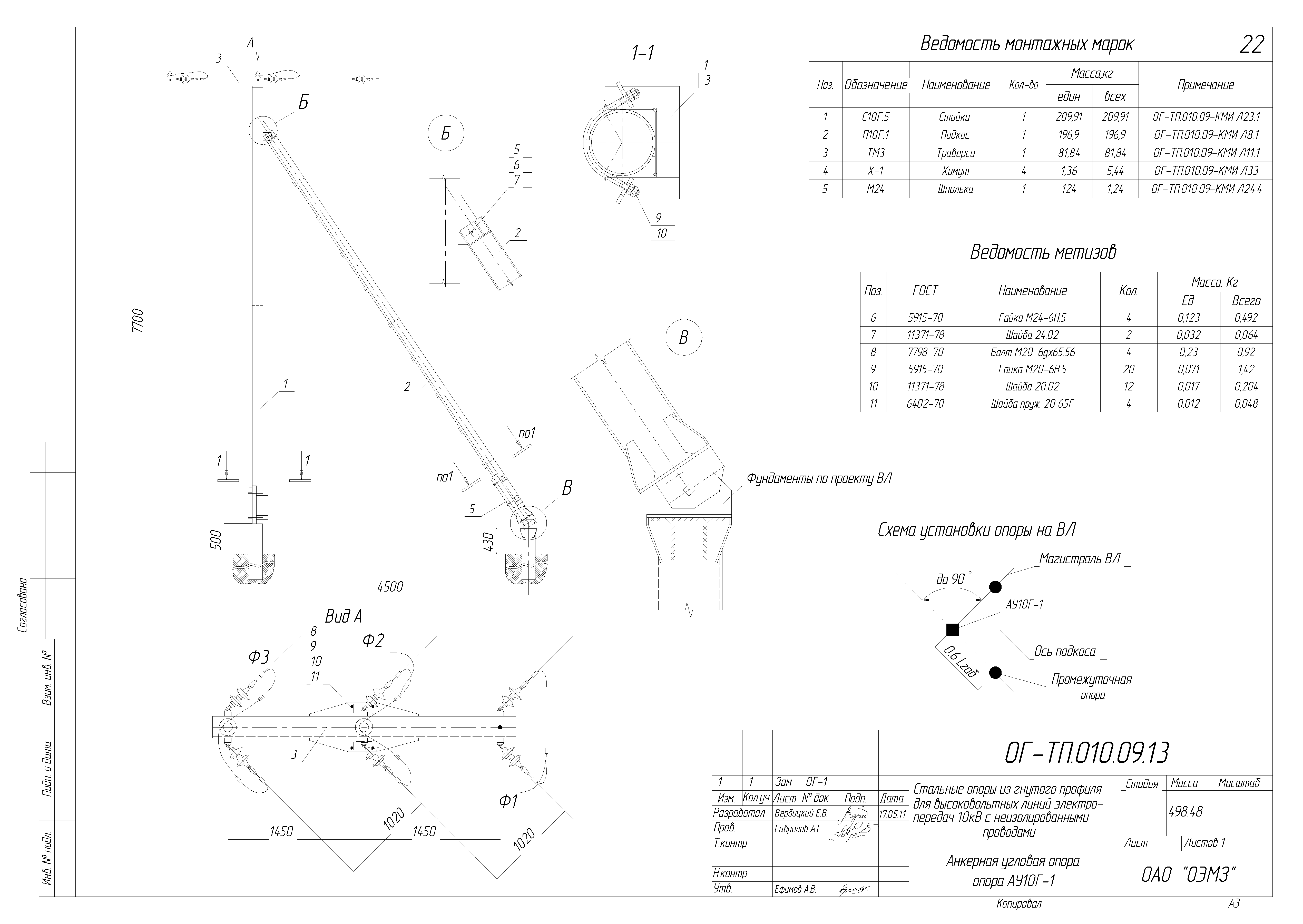
| Оглавление: | 1. Общая часть 2. Особенности проектирования ВЛ с учетом требований ПУЭ седьмого издания 3. Указания по применению опор 4. Провода, изоляторы, арматура 5. Основные положения по расчету опор 6. Технико-экономические показатели Номенклатура опор ВЛ 10 кВ Промежуточные опоры Анкерные и анкерные угловые опоры Линейная изоляция ВЛ Пример установки разрядников на ВЛ Типовые решения фундаментов Схема устройств ответвления |
| Разработан: | ОАО Омский ЭМЗ |
| Утверждён: | 01.07.2010 ОАО Омский ЭМЗ |


















































